焊接点焊电极的修磨与更换作业指导书_现用
- 格式:doc
- 大小:81.50 KB
- 文档页数:7
点焊机电极更换·研磨周期的计算要领【目的】制定点焊机电极的交换·研磨周期的计算要领,以防止焊接不良的发生。
【设定更换·研磨周期】以XX汽车资料作为计算依据,条件最恶劣的软钢和防锈的部位的电极寿命1000点,大致定为更换·研磨周期。
(电极X电极)【不同焊接机器的电极更换研磨周期】表1*1 由于可移动式焊枪经常有在同一条件下对厚度不均的钣件组合进行打点的情况,考虑到有某些钣件组合不能在最佳焊接条件下打点,因此电极更换研磨周期缩短。
表1 所表示的是在设备规划时选定设备规格的基准,是为探索试作·号试最初的焊接机器的合适条件而大体推断出的。
【设定的根据】XX汽车[设备设计要领·焊接条件](选自「电极管理周期的设定方法」)间设定。
但部的管理周期按下表的【电极更换方法】【有人工程】电极更换指示装置,焊接定时器的STEP完成,或在治具内置的计数器等的电极更换警报响后,迅速更换电极。
电极更换警报,在电极更换前不重新设置。
【无人工程】未设定自动研磨装置的工程,在不超过设定点数范围且时机便宜的时间点(H/T等)进行电极更换另外,使用管理板等明确电极更换周期。
【电极研磨方法】有自动研磨装置的工程,在焊接定时器STEPUP完成,或根据控制装置的内置计数器等启动自动研磨装置。
* 有自动研磨装置的工程的注意事项每个班次至少检查一次自动研磨装置是否正常动作,和电极前端直径。
自动研磨装置没有在运作时,对象焊接机(机器人)是否确实停止运转。
自动研磨装置休止时,要先确认根据焊接定时器STEPUP完成,或控制器内置计数器等控制的对象焊接机(机器人)是否确实停止运转。
* 自动研磨装置设置工程的异常处置。
发现自动研磨装置异常时(切割状态恶化等),根据异常处置规则行动。
【标准STEP UP条件】设定焊接机的焊接条件时,结合焊接定时器的种类进行step up条件设定。
* 可以设定linear up 条件的焊接定时器,使用linear up .下表所表示的,是在设备规划时选定设备规格的基准,是为探索试作·号试最初的焊接机器的合适条件而大体推断出的。
点焊作业指导书一、任务背景点焊是一种常见的焊接方法,广泛应用于汽车制造、电子设备制造、家电制造等行业。
为了确保点焊作业的质量和效率,制定一份详细的点焊作业指导书是必要的。
二、作业准备1. 确保焊接设备完好无损,包括焊接机、焊接枪、电源等。
2. 准备焊接材料,包括焊接电极、焊接片等。
3. 检查焊接工件,确保表面清洁、无油污和杂质。
三、作业步骤1. 将焊接工件放置在焊接台上,调整工件的位置和夹具,确保焊接位置正确。
2. 根据焊接工艺要求,选择合适的焊接电极和焊接片。
3. 将焊接电极固定在焊接枪上,确保电极与枪头接触良好。
4. 打开焊接机的电源开关,调整焊接参数,如焊接时间、电流等。
5. 将焊接枪对准焊接位置,按下焊接按钮,开始焊接。
6. 等待焊接时间结束,松开焊接按钮,完成一次焊接。
7. 根据焊接工艺要求,进行多次焊接,确保焊点质量。
8. 检查焊接质量,包括焊点的形状、大小、均匀性等。
9. 如发现焊接质量不合格,及时进行修复或更换焊接电极。
四、注意事项1. 在进行点焊作业时,必须佩戴防护眼镜和手套,确保人身安全。
2. 焊接过程中,注意观察焊接设备的工作状态,如发现异常及时停止作业并进行检修。
3. 焊接工艺参数的调整应根据具体工件和焊接材料的要求进行,避免过度或不足。
4. 焊接后,及时清理焊接工件和设备,保持工作环境整洁。
五、常见问题解决方法1. 焊接出现焊点不牢固的情况:检查焊接参数是否合适,如焊接时间、电流等。
2. 焊接出现焊点不均匀的情况:检查焊接电极是否损坏或磨损,及时更换。
3. 焊接出现焊接片脱落的情况:检查焊接片的固定是否牢固,如有松动及时修复。
六、作业总结点焊作业是一项需要严格操作的工作,只有按照标准的作业流程和要求进行,才能确保焊接质量和效率。
在作业过程中,要注意安全防护措施,及时检查和调整焊接设备,保持良好的工作环境。
通过不断总结和改进,提高点焊作业的技术水平和效率,为生产提供可靠的焊接产品。
word文档整理分享点焊焊接作业指导书编号:WHJX/ZD02-04编制:技术科审核:王煜梅批准:徐公明实施日期:2013.11.20诸城市五环机械有限公司点焊焊接工艺规范目录一.点焊工艺原理 (2)二.点焊机设备及技术参数 (2)三.点焊工艺参数 (5)四.零部件表面清理 (8)五.电极的选择与修磨、更换 (9)六.点焊的缺陷及排除方法 (13)七.点焊检验标准 (14)一.点焊工艺原理电阻点焊是将焊件装配成搭接接头并压紧两点极之间,利用电阻热熔化母材金属形成焊点的焊接方法。
特点:工件表面只有在接触点附近被熔化,加压后形成焊点。
电阻点焊示意图如下:点焊机系采用双面双点过流焊接的原理,工作时两个电极加压工件使两层金属在两电极的压力下形成一定的接触电阻,而焊接电流从一电极流经另一电极时在两接触电阻点形成瞬间的热熔接,且焊接电流瞬间从另一电极沿两工件流至此电极形成回路,不伤及被焊工件的内部结构。
点焊的工艺过程为开通冷却水;将焊件表面清理干净,装配准确后,送入上、下电极之间,施加压力,使其接触良好;通电使两工件接触表面受热,局部熔化,形成熔核;断电后保持压力,使熔核在压力下冷却凝固形成焊点;去除压力,取出工件。
焊接电流、电极压力、通电时间及电极工作表面尺寸等点焊工艺参数对焊接质量有重大影响。
点焊是焊件装配接头,并压紧在两电极之间,利用电阻热熔化母材金属,形成焊点的电阻焊方法。
点焊多用于薄板的连接,如飞机蒙皮、航空发动机的火烟筒、汽车驾驶室外壳等。
点焊机焊接变压器是点焊电器,它的次级只有一圈回路。
上、下电极与电极臂既用于传导焊接电流,又用于传递动力。
冷却水路通过变压器、电极等部分,焊接时应先通冷却水,然后接通电源开关。
电极的质量直接影响焊接过程、焊接质量和生产率。
电极材料常用紫铜、镉青铜、铬青铜等制成;电极的形状多种多样,主要根据焊件形状确定。
安装电极时,要注意上、下电极表面保持平行;电极平面要保持清洁,常用砂布或锉刀修整。
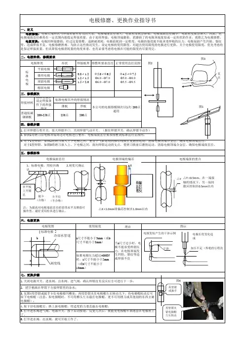
电极修磨作业指导书1.适用范围:车身厂焊铆SOT内所有的悬挂/固定式点焊机、凸焊机设备。
2. 悬挂/固定式点焊机电极(帽)修磨规定2.1、标准电极图样:2.2. 标准电极(帽)的技术标准:电极(帽)端面直径5-8mm(圆形电极帽端面);电极(帽)的接触面应平整无间隙(无凹陷现象);电极(帽)接触应对正,各方向偏差应不大于2mm;电极(帽)无卷边现象;2.3、电极修磨频次规定:2.3.1、修磨频次标准:在既定生产任务的情况下,每天工作开始前修磨一次电极,并每天工作三到四个小时后修磨一次电极(全天都有生产任务的,安排中午休息前后修磨一次电极)。
保证工作日当天电极修磨次数不少于两次。
2.3.2、当异常情况时对电极修磨频次的要求:在焊接过程中发现焊点出现外观质量问题的要立即进行修磨,具体情况如下:焊点熔核处有凸起现象的;焊点点径过大或过小(>8mm或<5mm);焊点表面同时出现两个焊接压痕现象的;在工作前点检或工作中发现焊钳电极出现下列图样所示中任何一项时应立即进行调整或修磨电极:焊钳电极(帽)出现错位(如图异常一所示)的应立即调整;(自己解决不了的可以报修)焊钳电极(帽)出现电极端面不平整时要进行修磨;(如异常二所示)焊钳电极(帽)出现电极卷边现象时要进行电极(帽)修磨;(如异常三所示)焊钳电极(帽)出现电极端面直径过大或过小(≥8mm或≤5mm)时要进行电极(帽)修磨;(如异常四所示)大于mm 异常一2.42.4.1、将“焊接/调整”开关打到调整状态(老式焊机除外);(示图一)2.4.2、将焊钳辅助行程打开;(示图二、三,无辅助行程的焊钳可不用打开)2.4.3、先修磨电极(帽)侧面锥度一圈后再修磨电极端部平面(示图四、五)2.4.4、修磨完后观察电极面接触情况,电极端部平面是否符合焊钳电极修磨规定;(示图六)2.4.5、修磨确认后将”焊接/调整”开关打到焊接状态;异常二(注意:操作者在修磨电极时请勿将手放置在焊钳电源开关上。
点焊作业指导书一、引言点焊是一种常见的金属连接方式,广泛应用于汽车创造、家电创造、船舶创造等行业。
本作业指导书旨在提供点焊作业的详细步骤和操作要求,以确保点焊作业的质量和安全性。
二、作业准备1. 点焊设备准备- 确保点焊设备处于正常工作状态,包括点焊机、电极、电缆等。
- 检查电极的磨损情况,如有磨损应及时更换。
- 检查电缆的接头是否松动,如有松动应紧固。
2. 工件准备- 清洁工件表面,确保无油污、灰尘等杂质。
- 对需要点焊的工件进行定位和固定,以确保焊接位置准确。
三、点焊作业步骤1. 设置焊接参数- 根据工件的材质和厚度,设置适当的焊接电流和时间。
- 确保焊接参数符合焊接规范要求。
2. 进行试焊- 在不影响工件的区域进行试焊,以验证焊接参数的准确性。
- 检查试焊的焊缝质量,如有问题应及时调整焊接参数。
3. 进行正式焊接- 将电极对准焊接位置,确保电极与工件密切接触。
- 按下焊接按钮,开始进行焊接。
- 焊接过程中要保持稳定的焊接速度和均匀的焊接力。
- 焊接完成后,松开焊接按钮,等待电极冷却。
四、作业注意事项1. 安全操作- 点焊作业需要注意电击和火灾等安全风险,操作人员应穿戴好防护设备,如绝缘手套、防火服等。
- 点焊设备应接地良好,以防止电击事故的发生。
2. 焊接质量控制- 焊接点的质量直接影响焊接连接的强度和稳定性,操作人员应注意焊接点的形状和焊缝的均匀性。
- 如发现焊接点质量不合格,应及时调整焊接参数或者更换电极。
3. 资源节约- 在点焊作业中,应尽量避免不必要的能量浪费,合理利用电极和电缆资源。
五、作业质量检验1. 外观检查- 对焊接点进行外观检查,确保焊接点无明显的焊缝缺陷、裂纹等。
- 检查焊接点的表面是否平整、无凹陷等质量问题。
2. 强度检验- 使用适当的检测设备对焊接点的强度进行检测,确保焊接点满足强度要求。
六、作业记录- 每次点焊作业完成后,应记录作业日期、作业人员、焊接参数、焊接点质量等信息,以便后续追溯和分析。
点焊作业指导书一、引言点焊是一种常见的金属焊接方法,广泛应用于汽车创造、电子设备创造等行业。
本作业指导书旨在提供点焊作业的详细步骤和操作要点,以确保操作人员能够正确、安全地进行点焊作业。
二、作业准备1. 确保点焊设备和工具完好无损,如焊接机、电极、夹具等。
2. 检查焊接材料的质量和尺寸,确保符合要求。
3. 确保作业区域通风良好,避免有害气体的积聚。
4. 操作人员应佩戴个人防护装备,如焊接面罩、手套、防护服等。
三、点焊作业步骤1. 确定焊接位置和焊点数量,标记焊点位置。
2. 将焊接材料放置在夹具上,并固定好。
3. 调整焊接机的参数,如电流、时间等,根据焊接材料的类型和厚度进行调整。
4. 连接焊接机的电极,确保电极与焊接材料接触良好。
5. 进行试焊,检查焊点的质量和外观,根据需要进行参数调整。
6. 开始正式焊接,按照焊点位置进行点焊,保持焊接时间和电流的一致性。
7. 焊接完成后,检查焊点的质量,如焊点是否坚固、焊接表面是否平整等。
8. 清理焊接区域,清除焊渣和其他杂物。
四、点焊作业注意事项1. 操作人员应熟悉点焊设备的使用方法和操作规程,确保安全操作。
2. 在进行点焊作业前,应对焊接材料进行预处理,如除锈、清洁等。
3. 点焊时应保持焊接材料的表面干燥,避免水分或者油污对焊接质量的影响。
4. 焊接机的电流和时间参数应根据焊接材料的类型和厚度进行调整,以确保焊接质量。
5. 操作人员应定期检查焊接机的电极和夹具,如发现损坏或者磨损应及时更换。
6. 在进行点焊作业时,应注意周围环境的安全,避免引起火灾或者其他事故。
7. 点焊作业完成后,应及时清理工作区域,保持整洁。
五、常见问题及解决方法1. 焊接时浮现焊点不坚固的情况:可能是电流过小或者焊接时间过短,应适当增加电流或者延长焊接时间。
2. 焊接材料浮现变形或者烧焦的情况:可能是电流过大或者焊接时间过长,应适当减小电流或者缩短焊接时间。
3. 焊接机浮现故障或者异常情况:应即将住手作业,并联系维修人员进行检修和维护。
点焊作业指导书一、任务背景点焊是一种常见的金属连接方法,广泛应用于汽车制造、家电制造、航空航天等行业。
为了确保点焊作业的质量和安全,制定本作业指导书,以提供详细的操作步骤和注意事项。
二、作业准备1. 设备准备:- 点焊机:型号XXX,功率XXX,电压XXX。
- 电极:选用合适的电极材料和规格,确保与工件接触良好。
- 冷却水:保证点焊机正常运行和散热。
- 其他辅助设备:如焊接夹具、焊接辅助工具等。
2. 材料准备:- 工件:准备待焊接的金属工件,确保表面清洁无油污和氧化物。
- 焊接材料:根据工件材料和要求,选择合适的焊接材料。
三、作业步骤1. 安全操作:- 穿戴个人防护装备,如安全帽、防护眼镜、防护手套等。
- 确保工作区域通风良好,避免有害气体积聚。
- 遵守点焊机的操作规程,严禁擅自操作和调整设备参数。
2. 设备调试:- 将点焊机连接电源,并确保电源稳定。
- 调整电极间距和焊接时间,根据工件材料和厚度进行合适的设置。
- 检查电极表面是否干净,如有污垢需及时清理。
3. 工件准备:- 清洁工件表面,去除油污和氧化物。
- 根据焊接位置和要求,使用焊接夹具固定工件。
- 确保工件与电极接触良好,无松动和间隙。
4. 焊接操作:- 将工件放置在焊接台上,调整焊接位置和姿态。
- 按下点焊机的启动按钮,电极将与工件接触并施加焊接电流。
- 焊接时间达到设定值后,松开按钮,电极与工件分离。
5. 检查和整理:- 检查焊接点的质量和外观,确保焊点充分熔化和连接紧密。
- 如有需要,进行修整和打磨,使焊接点平整光滑。
- 清理焊接区域的残渣和碎屑,保持工作区域整洁。
四、注意事项1. 安全第一:遵守操作规程,穿戴个人防护装备,确保工作安全。
2. 设备维护:定期检查点焊机和电极的状态,确保设备正常运行。
3. 材料选择:根据工件材料和要求,选择合适的焊接材料。
4. 电极维护:保持电极表面清洁,如有损坏或磨损应及时更换。
5. 焊接参数:根据工件材料和厚度,合理调整电极间距和焊接时间。
1主题与范围通过规定焊接点焊电极的修磨标准、修磨方式、修磨频次、回用标准、更换方式,保证焊接生产时使用的点焊电极符合焊接工艺标准,保证焊点质量。
本文件适用于生产部焊接班组所使用的点焊电极。
2引用文件(无)3定义点焊电极的修磨:通过使用规定工具打磨点焊电极端面,保证电极端面直径符合焊接工艺要求(见5.2.1.1)的过程。
点焊电极的回用:对于需要修磨的点焊电极,通过使用检测工具测量电极剩余长度,来判定电极能否回用的过程。
点焊电极的更换:使用规定工具拆下旧电极(不符合工艺要求的电极),装上新电极的过程。
4职责4.1焊接班组长负责点焊电极修磨及更换工作的落实。
4.2焊接操作工负责点焊电极的拆装。
4.3夹具修理工负责点焊电极能否回用的分类工作。
4.4夹具修理工负责能够回用的点焊电极的具体修磨工作。
4.5值班长负责督促和检查点焊电极的修磨及更换工作的执行情况。
5点焊电极的修磨、回用、更换程序5.1点焊电极5.1.1点焊电极端面直径5.1.1.1Φ16mm(外表直径)×23mm(长)电极:原始(机加工后)端面直径为6mm。
5.1.1.2Φ13mm(外表直径)×20mm(长)电极:原始(机加工后)端面直径为5mm。
5.1.1.3特殊形式电极:参见具体图纸规定。
5.1.2电极墩粗:点焊电极在使用过程中由于电极端面工作区域受力及受大电流的热影响,电极端面形状发生变化,端面直径变大,接触表面产生化合物,降低焊接时焊点区域内通过的电流密度值,从而产生虚焊现象,影响焊接质量。
5.2点焊电极的修磨5.2.1修磨标准5.2.1.1Φ16mm电极:电极端面直径允许范围为6~8mm。
5.2.1.2Φ13mm电极:电极端面直径允许范围为5~7mm。
5.2.1.3特殊型式电极:电极端面直径允许范围为原始直径~+2mm。
5.2.2端面直径检测工具5.2.2.1检测工具:电极卡板5.2.2.2检测方式:将电极卡板上放在电极端面上,保证卡板上的标准孔与端面基本同心。
本文部分内容来自网络整理,本司不为其真实性负责,如有异议或侵权请及时联系,本司将立即删除!== 本文为word格式,下载后可方便编辑和修改! ==电极修整作业指导书篇一:悬点电极修整作业指导书管理号:HJT-003 电极修整作业指导书共 2 页第 1 页298管理号:HJT-003 共 2 页第 2 页299篇二:焊接点焊电极的修磨与更换作业指导书_现用篇三:电极修磨及工艺纪律考核培训教材电极修磨和工艺纪律考核培训教材第一部分基础理论知识1.电阻焊的概念将被焊工件置于两电极之间加压,并在焊接处通以电流,利用电流流经工件接触面及其临近区域产生的电阻热将其加热到熔化或塑性状态,使之达到金属结合而形成牢固接头的工艺过程。
点焊:焊件装配成搭接接头,并压紧在两电极之间,利用电阻热熔化母材金属,形成焊点的电阻焊方法。
凸焊:在一焊件的贴合面上预先加工出一个或多个突起点,使其与另一焊件表面相接触并通电加热,然后压塌,使这些接触点形成焊点的电阻焊方法。
2.电阻焊的分类点焊:主要用于板材的连接,并承受一定的应力。
凸焊的用途:低碳钢和低合金钢的板件、螺帽、螺钉的连接,并承受一定的应力。
双面点焊3.点焊/凸焊的用途4.点(凸)焊的原理Rew——电极与焊件之间接触电阻 Rw——焊件内部电阻 Rc——焊件之间接触电阻点焊原理示意图1一个完成的点焊形成过程包括预压程序,焊接程序,维持程序,休止程序。
在预压阶段没有电流通过,只对母材金属施加压力。
在焊接程序和维持程序中,压力处于一定的数值下,通过电流,产生热量熔化母材金属,从而形成熔核。
在休止程序中,停止通电,压力也在逐渐减小。
预压的作用:在电极的压力的作用下清除一部分接触表面的油污和氧化膜,形成物理接触点。
为以后焊接电流的顺利通过及表面原子的键合作好准备。
焊接、维持的作用:其作用是在热和机械(力)的作用下形成塑性环、熔核,并随着通电加热的进行而长大,直到获得需要的熔核尺寸。
IFwIFwFw休止程序维持程序焊接程序6.点焊的主要工艺参数:焊接电流,焊接压力,电极端面直径,焊接时间。
焊接点焊电极的修磨与更换作业指导书-现用1主题与范围5点焊电极的修磨、回用、更换程序合要求后会自动在线修磨电极。
对带角度的电极需要使用锉刀修正接触端面。
将换下的旧电极放入【旧电极】箱内。
下面是“十个小故事大道理”不需要的朋友可以下载后编辑删除谢谢小故事1、《扁鹊的医术》魏文王问名医扁鹊说:“你们家兄弟三人,都精于医术,到底哪一位最好呢?扁鹊答:“长兄最好,中兄次之,我最差。
文王再问:“那么为什么你最出名呢?扁鹊答:“长兄治病,是治病于病情发作之前。
由于一般人不知道他事先能铲除病因,所以他的名气无法传出去;中兄治病,是治病于病情初起时。
一般人以为他只能治轻微的小病,所以他的名气只及本乡里。
而我是治病于病情严重之时。
一般人都看到我在经脉上穿针管放血、在皮肤上敷药等大手术,所以以为我的医术高明,名气因此响遍全国。
大道理:事后控制不如事中控制,事中控制不如事前控制。
小故事2、危险的森林里一个人在森林中漫游时,突然遇见了一只饥饿的老虎,老虎大吼一声就扑了上来。
他立刻用最快的速度逃开,但是老虎紧追不舍,他一直跑一直跑,最后被老虎逼到了断崖边。
站在悬崖边上,他想:“与其被老虎捉到,活活被咬死,还不如跳入悬崖,说不定还有一线生机。
”他纵身跳入悬崖,非常幸运地卡在一棵树上。
那是长在断崖边的梅树,树上结满了梅子。
正在庆幸之时,他听到断崖深处传来巨大的吼声,往崖底望去,原来有一只凶猛的狮子正抬头看着他,狮子的声音使他心颤,但转念一想:“狮子与老虎是相同的猛兽,被什么吃掉,都是一样的。
”刚一放下心,又听见了一阵声音,仔细一看,两只老鼠正用力地咬着梅树的树干。
他先是一阵惊慌,立刻又放心了,他想:“被老鼠咬断树干跌死,总比被狮子咬死好。
”情绪平复下来后,他看到梅子长得正好,就采了一些吃起来。
他觉得一辈子从没吃过那么好吃的梅子,他找到一个三角形的枝丫休息,心想:“既然迟早都要死,不如在死前好好睡上一觉吧!”于是靠在树上沉沉地睡去了。
点焊机作业指导书一、作业目的:本作业指导书旨在指导操作人员正确使用点焊机进行焊接作业,确保作业过程安全、高效,并保证焊接质量。
二、作业前准备:1. 确保点焊机处于良好工作状态,检查焊接电极、导电板等部件是否完好无损。
2. 确保作业环境通风良好,防止有害气体积聚。
3. 穿戴个人防护装备,包括防护眼镜、防护手套和防护服等。
三、操作步骤:1. 将待焊接的工件放置在点焊机的工作台上,确保工件与电极接触良好。
2. 根据工件材质和焊接要求,调整点焊机的焊接参数,包括电流、时间和压力等。
3. 按下点焊机的启动按钮,开始焊接作业。
4. 焊接完成后,松开启动按钮,等待电极自动抬起。
5. 检查焊接质量,确保焊接点牢固、均匀,并无明显的焊接缺陷。
6. 若需要连续焊接多个工件,重复步骤1至5,直至完成所有焊接作业。
四、注意事项:1. 在操作点焊机时,应集中注意力,避免分心或疏忽造成事故发生。
2. 在点焊机工作过程中,禁止触摸电极和导电板,以免发生触电事故。
3. 若发现点焊机异常情况(如电流不稳定、电极损坏等),应立即停止作业,并通知维修人员进行检修。
4. 点焊机作业结束后,应及时清理工作台和设备周围的焊渣和废料,保持工作环境整洁。
5. 严禁在点焊机周围堆放易燃、易爆物品,防止发生火灾事故。
五、常见问题及解决方法:1. 问题:焊接点不牢固。
解决方法:检查焊接参数是否正确,如电流、时间和压力等,适当调整参数。
2. 问题:焊接点出现明显的焊接缺陷。
解决方法:检查焊接电极是否磨损,如有磨损需及时更换;同时检查焊接参数是否合适。
3. 问题:点焊机无法启动。
解决方法:检查电源是否正常连接,确保电源供应稳定;同时检查启动按钮是否损坏,如有损坏需及时更换。
六、安全提示:1. 在操作点焊机时,应严格按照操作规程进行,切勿擅自调整焊接参数。
2. 若发现点焊机存在安全隐患或异常情况,应立即停止作业,并及时报告相关负责人。
3. 点焊机操作人员应定期接受相关培训,提高操作技能和安全意识。
点焊作业指导书一、引言点焊是一种常用的焊接方法,广泛应用于汽车制造、家电制造、金属制品制造等行业。
本作业指导书旨在提供点焊作业的详细步骤和操作要点,以确保操作人员能够正确、安全地进行点焊作业。
二、设备准备1. 点焊机:确保点焊机的电源正常接通,并检查焊接电极、电缆等部件是否完好。
2. 工件准备:将待焊接的工件清洁干净,确保表面无油污和氧化物。
3. 焊接电极:根据工件材料和要求选择合适的焊接电极,并进行安装和调整。
三、操作步骤1. 调整焊接参数:根据工件材料、厚度和焊接要求,设置合适的焊接电流、焊接时间和焊接压力。
2. 定位工件:将工件放置在焊接台上,并用夹具或磁性吸盘固定,确保工件位置稳定。
3. 确认焊接点:根据焊接要求,在工件上标记出焊接点的位置。
4. 进行焊接:将焊接电极对准焊接点,按下启动按钮开始焊接。
焊接时间结束后,松开按钮,完成一次焊接。
5. 检查焊接质量:检查焊接点的焊缝是否均匀、牢固,无明显裂纹和气孔等缺陷。
四、注意事项1. 安全操作:操作人员应佩戴防护眼镜、手套等个人防护装备,避免触摸焊接电极和工件。
2. 环境要求:确保焊接场所通风良好,避免产生有害气体和粉尘。
3. 电源接地:焊接机应接地良好,以确保操作人员的安全。
4. 定期维护:定期检查焊接设备的电缆、电极等部件是否磨损或损坏,及时更换和维修。
5. 操作规范:操作人员应严格按照操作步骤进行焊接,避免操作失误和安全事故的发生。
五、常见问题及解决方法1. 焊接点不牢固:可能是焊接时间过短或焊接压力不够,应适当增加焊接时间或焊接压力。
2. 焊接点有裂纹:可能是焊接电流过大或焊接时间过长,应适当调整焊接参数。
3. 焊接点有气孔:可能是工件表面有油污或焊接电极不干净,应清洁工件表面并清理焊接电极。
4. 焊接电极损坏:可能是电极磨损严重或使用不当,应及时更换电极并注意正确使用。
六、总结本作业指导书详细介绍了点焊作业的步骤、操作要点和注意事项。
电极修正、更换规范
1.0目的
为了规范点焊电极(电极帽)的修正和更换作业标准。
2.0范围
适用于渝北汽车零部件公司悬挂式点焊机生产线。
3.0 引用文件和标准
无
4.0术语
4.1 电极帽属于焊接电极的一种,用于电阻焊接设备的焊接,如固定式点焊机、悬挂式点焊机及机械手点焊机等,因为套于电极连杆上,故而称作电极帽,材质大多为铬锆铜。
5.0 职责
操作者应严格执行本规范,保证电极(电极帽)规格符合规范。
6.0程序
6.1
6.2电极(电极帽)更换按下表执行:
电极帽尺寸图
注:(1)任何情况下,电极帽出现爆裂、漏水等情况,应立即更换;
(2)电极帽更换应做好记录,并指定专人负责。
7.0附件无。
焊接点焊电极的修磨与更换作业指导书_现用1000字一、作业前准备1.1.准备工具砂轮机、刷轮、钢丝刷、扳手、焊接钳等。
1.2.材料准备焊接点焊电极、砂轮、刷轮、电焊丝等。
1.3.安全措施在操作时应佩戴防护手套、护目镜等防护用品,以保证人员安全和作业效率。
二、修磨焊接点焊电极2.1.拆卸焊接点焊电极首先,需要将焊接点焊电极从点焊机上拆下来,拆卸时需要按照电机的安装方式进行拆解,用扳手将电机的螺丝拧松,将电机从机头上拆下。
2.2.修磨焊接点焊电极(1)砂轮修磨法采用砂轮修磨法修磨点焊电极时应注意以下几点:①.保证点焊电极表面平整,不得有任何凹痕或裂缝,否则应将其更换。
②.选用适当的砂轮,对点焊电极进行粗磨和细磨。
③.将电极按照角度放置在砂轮上,沿着电极表面进行轻微的修磨。
④.修磨时应保持砂轮和点焊电极垂直,确保修磨出来的电极表面平整。
(2)钢丝刷修磨法采用钢丝刷修磨法修磨点焊电极时应注意以下几点:①.选用刚硬度适当的钢丝刷对电极进行修磨。
②.将电极固定在工作台上,并在其表面进行钢丝刷修磨。
③.用刷子刷除电极表面的锈垢和油污,保持其表面清洁。
2.3.更换焊接点焊电极当点焊电极的表面出现明显的凹痕、裂缝、磨损等情况时,应及时更换点焊电极。
(1)更换焊接点焊电极前,需要使用扳手将点焊电极与电机固定螺栓拧松,并拆下电机。
(2)将新点焊电极与电机固定螺栓固定即可。
三、操作注意事项1、电极表面不得有凹痕、裂缝、磨损等情况,需要经过修磨或更换。
2、操作时防护用品不能少,并严格按照操作流程进行。
3、电机固定螺栓拧紧时要注意不要过紧,以免造成电机运转时不稳定。
点焊作业指导书一、任务概述点焊是一种常用的焊接方法,通过在金属表面产生高温电弧,使金属材料瞬间熔化并连接在一起。
本作业指导书旨在提供点焊作业的详细步骤和操作要求,确保焊接质量和安全。
二、作业准备1. 确保工作环境安全,排除可能引起火灾、爆炸等危(wei)险因素。
2. 检查点焊设备,确保设备完好无损,电源接地良好。
3. 准备点焊所需材料和工具,包括焊接电极、焊接工件、焊接夹具、电焊机等。
三、作业步骤1. 根据焊接工件的要求,选择合适的焊接电极和电流。
2. 将焊接工件放置在焊接夹具上,并确保工件的位置稳定。
3. 清洁焊接工件表面,确保无油污、灰尘等杂质。
4. 将焊接电极正确安装在电焊机上,并调整电极间距。
5. 打开电焊机电源,根据焊接工件材料选择合适的焊接时间和电流。
6. 将焊接电极垂直放置在焊接工件上,按下电焊机的启动按钮开始焊接。
7. 在焊接过程中,保持焊接电极与工件的接触稳定,确保焊点质量。
8. 根据焊接工件的要求,进行多次点焊,确保焊接强度。
9. 完成焊接后,关闭电焊机电源,将焊接电极拆卸并妥善存放。
四、作业要求1. 焊接操作人员必须熟悉点焊操作流程和安全规范。
2. 焊接工件必须经过清洁处理,确保焊接质量。
3. 焊接电极和电焊机必须符合规定的技术要求和安全标准。
4. 焊接过程中,操作人员必须佩戴防护眼镜、手套等个人防护装备。
5. 焊接完成后,必须对焊接质量进行检查,确保焊点坚固可靠。
五、安全注意事项1. 操作人员必须经过专业培训,熟悉点焊操作规程和安全操作要求。
2. 在点焊过程中,操作人员必须佩戴防护用品,如防护眼镜、防护手套等。
3. 点焊设备必须定期检查维护,确保设备的正常运行和安全性能。
4. 点焊作业场所必须保持整洁,避免杂物堆放和易燃物品存在。
5. 点焊作业时,必须确保周围无易燃、易爆等危(wei)险物质存在。
六、常见问题及解决方法1. 问题:焊接后浮现焊点不坚固。
解决方法:检查焊接电极是否正确安装,调整电流和焊接时间,确保焊接质量。
点焊机作业指导书一、任务背景点焊机是一种常用的焊接设备,广泛应用于汽车创造、家电创造、金属制品加工等行业。
为了保证焊接质量和操作安全,制定点焊机作业指导书是必要的。
本文将详细介绍点焊机的操作步骤、注意事项和常见问题解决方法,以匡助操作人员正确使用点焊机。
二、操作步骤1. 准备工作a. 确保点焊机的电源与地线连接良好,电源电压符合要求。
b. 检查点焊机的焊枪、电缆和接地夹是否完好无损。
c. 检查工件表面是否清洁,无油污和杂质。
d. 穿戴好个人防护装备,包括安全帽、防护眼镜、防护手套等。
2. 设置焊接参数a. 根据工件材料和厚度,选择合适的焊接电流和时间。
b. 调节点焊机的压力控制装置,确保焊接压力适中。
3. 进行焊接a. 将工件放置在焊接台上,确保工件与电极接触良好。
b. 按下启动按钮,点焊机开始工作。
c. 等待焊接时间结束后,松开启动按钮,点焊机住手工作。
d. 检查焊接点的质量,如有问题需要重新焊接。
4. 安全操作a. 在操作过程中,严禁将手指或者其他物体挨近电极,以免触电或者受伤。
b. 点焊机工作时产生的火花和烟尘可能引起火灾,应保持操作区域清洁,并配备灭火器。
c. 点焊机长期工作会产生热量,操作人员应定期歇息,避免过度疲劳。
三、注意事项1. 操作人员应接受专业培训,熟悉点焊机的结构和工作原理,掌握正确的操作方法。
2. 点焊机的维护保养应定期进行,包括清洁焊枪、更换磨损电极等。
3. 在操作点焊机时,应注意周围环境的通风情况,避免因焊接产生的有害气体对操作人员造成伤害。
4. 点焊机的电源应与其他高功率电器隔离,避免电网干扰和触电风险。
四、常见问题解决方法1. 焊接点不坚固可能原因:焊接时间过短、焊接电流过小、焊接压力不足。
解决方法:延长焊接时间、增大焊接电流、增加焊接压力。
2. 焊接点浮现溅花可能原因:焊接电流过大、焊接时间过长、工件表面有油污。
解决方法:减小焊接电流、缩短焊接时间、清洁工件表面。
1主题与范围
通过规定焊接点焊电极的修磨标准、修磨方式、修磨频次、回用标准、更换方式,保证焊接生产时使用的点焊电极符合焊接工艺标准,保证焊点质量。
本文件适用于生产部焊接班组所使用的点焊电极。
2引用文件
(无)
3定义
点焊电极的修磨:通过使用规定工具打磨点焊电极端面,保证电极端面直径符合焊接工艺要求(见5.2.1.1)的过程。
点焊电极的回用:对于需要修磨的点焊电极,通过使用检测工具测量电极剩余长度,来判定电极能否回用的过程。
点焊电极的更换:使用规定工具拆下旧电极(不符合工艺要求的电极),装上新电极的过程。
4职责
4.1焊接班组长负责点焊电极修磨及更换工作的落实。
4.2焊接操作工负责点焊电极的拆装。
4.3夹具修理工负责点焊电极能否回用的分类工作。
4.4夹具修理工负责能够回用的点焊电极的具体修磨工作。
4.5值班长负责督促和检查点焊电极的修磨及更换工作的执行情况。
5点焊电极的修磨、回用、更换程序
5.1点焊电极
5.1.1点焊电极端面直径
5.1.1.1Φ16mm(外表直径)×23mm(长)电极:原始(机加工后)端面直径为6mm。
5.1.1.2Φ13mm(外表直径)×20mm(长)电极:原始(机加工后)端面直径为5mm。
5.1.1.3特殊形式电极:参见具体图纸规定。
5.1.2电极墩粗:点焊电极在使用过程中由于电极端面工作区域受力及受大电流的热影响,电极端面形状发生变化,端面直径变大,接触表面产生化合物,降低焊接时焊点区域内通过的电流密度值,从而产生虚焊现象,影响焊接质量。
5.2点焊电极的修磨
5.2.1修磨标准
5.2.1.1Φ16mm电极:电极端面直径允许范围为6~8mm。
5.2.1.2Φ13mm电极:电极端面直径允许范围为5~7mm。
5.2.1.3特殊型式电极:电极端面直径允许范围为原始直径~+2mm。
5.2.2端面直径检测工具
5.2.2.1检测工具:电极卡板
5.2.2.2检测方式:将电极卡板上放在电极端面上,保证卡板上的标准孔与端面基本同心。
5.2.2.3合格判定:Φ6~Φ8的标准孔内可以看到整个电极端面,判断该电极可以使用。
5.2.2.4不合格判定:电极端面小于Φ6标准孔,或Φ8标准孔内无法可以看到整个电极端面,判断该电极不可以使用。
5.2.3修磨方式
5.2.3.1手工在线锉刀修磨:在生产时,使用锉刀直接对安装在焊钳上的电极进行修磨端面的方法。
特殊型式电极使用锉刀在线修磨。
5.2.3.2线外统一设备修磨:使用修磨标准设备集中处理换下的电极的方法。
5.2.3.3为了保证修磨后电极质量(电极形状及端面直径),公司规定所有Φ16mm、Φ13mm手工用点焊电极使用线外统一修磨。
对于与有角度焊钳接杆连接的电极,在安装后,还需要使用锉刀根据上下电极的实际接触面修正电极端面。
5.2.3.4机器人在线设备修磨:点焊机器人工作站使用修磨设备在线修磨电极。
5.2.4修磨频次
5.2.4.1对未开启焊接电流递增器的点焊电极的修磨周期,应根据工位的实际情况决定:原则上,应随时检查电极的端面,如果磨损超过标准就要进行修磨。
5.2.4.2未开启焊接电流递增器的点焊电极建议修磨频次:见附录二《点焊电极修磨频次建议表(无递增版)》。
本表格每年或逢新项目批产更新。
5.2.4.3对开启焊接电流递增器的点焊电极的修磨周期,应根据递增器的工艺设定,在递增器报警后进行修磨。
5.2.4.4点焊机器人工作站的修磨频次设定在机器人程序中,焊接点数符
合要求后会自动在线修磨电极。
5.2.4.5突发情况:一旦发生爆电极情况,应立即修磨或更换电极。
5.3点焊电极的回用
5.3.1回用标准
5.3.1.1对于需要修磨的电极,首先要判定是否可以回用。
5.3.1.2点焊电极下半部分为了散热而开孔通水,在电极中间有修磨截止线(一个环形槽)用来标识最短电极长,考虑到电极在焊接时受热受压,电极端面到截止线应有剩余量,建议为2mm。
5.3.1.3Φ16mm电极:电极长度(从端面到底部)≤13mm时,必须报废,不可回用。
5.3.1.4Φ13mm电极:电极长度(从端面到底部)≤15mm时,必须报废,不可回用。
5.3.1.5特殊型式电极:电极端面至截止线距离≤2mm时,必须报废,不可回用。
5.3.2电极回用检测工具
5.3.2.1检测工具:电极卡板(适用于Φ16和Φ13电极)。
5.3.2.2检测方式:将电极根据直径大小放入相应的卡板检测槽内,保证电极在槽内保持竖直状态。
5.3.2.3回用判定:如果电极长度高于检测槽,判断该电极可以回用。
5.3.2.4报废判定:如果电极长度小于等于检测槽,判断该电极必须报废。
5.3.2.5特殊型式电极使用游标卡尺测量。
5.3.3电极状态隔离箱
5.3.3.1【旧电极】箱:存放使用过的,但未判断是否回用的电极。
5.3.3.2【待修磨】箱:存放已经被判定可回用的,但未修磨的电极。
5.3.3.3【回用】箱:存放已经修磨好的电极。
5.3.3.4【新电极】箱:存放外购进来未使用过的电极。
5.3.3.5【报废】箱:存放不能回用,确认报废的电极。
5.4点焊电极的更换
5.4.1更换对象
5.4.1.1手工点焊:应优先使用【回用】箱内的电极。
5.4.1.2机器人点焊:只能使用【新电极】箱内的电极。
5.4.2更换方式
5.4.2.1先关闭冷却循环水的2个阀门(进水阀+出水阀)。
拿来专用盛水桶。
5.4.2.2将电极对准盛水桶,使用专用工具(管子钳)夹住电极,向外旋转拆除电极。
注意,应引导剩余冷却水注入盛水桶,避免场地、零件、夹具被喷溅到水。
5.4.2.3将拆下的旧电极放置在一边,换上领来的新电极,用1.5磅木锤轻击电极端面,使电极与接杆接口紧实。
5.4.2.4对于手工焊枪,应将焊机切换到调整档,连续闭合焊钳3~5次,彻底压实电极。
用电极卡板检测上下电极的对中度,确认上下电极对中度符合要求。
对带角度的电极需要使用锉刀修正接触端面。
将换下的旧电极放入【旧电极】箱内。
打开进出水阀门,将焊机切换回焊接档,继续生产。
5.4.2.5对于机器人焊枪,应先打开进出水阀门,再根据《作业指导书》指导步骤操作,程序会提示校验对中度并自动完成压实电极步骤,然后机器人自动继续生产。
焊接操作人员应将换下的旧电极放入【旧电极】箱内。
5.4.3如果发现上下电极对中度不符合要求,应立即向焊接机修报修。
修理完
成后,才可以生产。
5.4.4电极更换时,尽量上下电极一起更换。
5.4.5拆装电极时应保护好电极的锥度面,安装时应清除电极锥度孔中的油污,保持装配面的清洁。
5.4.6焊枪应保持清洁,避免油污、飞溅物沉积。
6 记录
(无)
7 附录
附录一:点焊电极的修磨与更换流程图
附录二:点焊电极修磨频次建议表(无递增版)
发放数编制/修改审核批准批准日期实施日期
2 凌晶2011.2.22。