悬挑脚手架作用下阳台梁承载力验算
- 格式:doc
- 大小:183.54 KB
- 文档页数:11
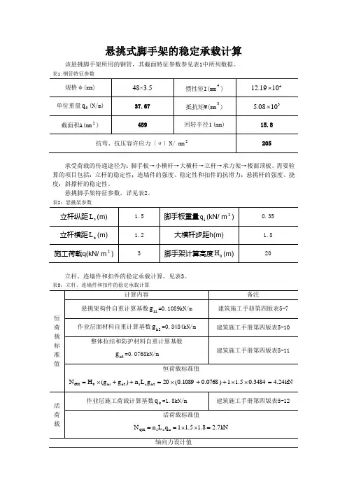
悬挑式脚手架的稳定承载计算
该悬挑脚手架所用的钢管,其截面特征参数参见表1中所列数据。
表1:钢管特征参数
承受荷载的传递途径为:脚手板→小横杆→大横杆→立杆→承力架→楼面顶板。
需要验算的项目包括:立杆的稳定性;连墙件的强度、稳定性和扣件的抗滑力;悬挑杆的强度、挠度;斜撑杆的稳定性。
悬挑脚手架特征参数,详见表2。
表2:悬挑架参数
立杆、连墙件和扣件的稳定承载计算,见表3。
表3:立杆、连墙件和扣件的稳定承载计算
kN 30.87.24.185.024.42.1N 4.185.0N 2.1N QK GK =⨯⨯+⨯=⨯⨯+=
水平挑杆、斜撑杆的稳定承载计算,见表3。
表4:水平挑杆、斜撑杆的稳定承载计算。
悬挑脚手架作用下阳台梁承载力验算根据本工程特点,型钢工具式悬挑脚手架分别在二层、八层、十四层、二十层结构悬挑,考虑到阳台处脚手架外附加荷载较大,为保证结构传力可靠,需对阳台梁承载力进行验算。
结合结构图,以27-29轴最大阳台跨度为最不利受力计算,见图1、图2。
图一图二根据外脚手架方案,立杆纵向间距,单立杆竖向力P=20KN,则型钢作用于阳台上,其受力简图如下:一、阳台连系梁承载力验算阳台连系梁截面为200*550,混凝土强度等级为C30,受力纵筋采用HRB400三级钢,箍筋采用HRB400三级钢。
2 计算条件:荷载条件:均布恒载标准值: m 活载准永久值系数:均布活载标准值: m 支座弯矩调幅幅度: %梁容重 : m3计算时考虑梁自重: 考虑恒载分项系数 : 活载分项系数 :活载调整系数 :配筋条件:抗震等级 : 不设防纵筋级别 : HRB400混凝土等级 : C30 箍筋级别 : HRB400配筋调整系数 : 上部纵筋保护层厚: 25mm面积归并率 : % 下部纵筋保护层厚: 25mm最大裂缝限值 : 挠度控制系数C : 200截面配筋方式 : 双筋3 计算结果:单位说明:弯矩: 剪力:kN纵筋面积:mm2箍筋面积:mm2/m裂缝:mm 挠度:mm-----------------------------------------------------------------------梁号 1: 跨长 = 600 B×H = 200 × 550左中右弯矩(-) :弯矩(+) :剪力:上部as: 35 35 35下部as: 35 35 35上部纵筋: 220 220 220下部纵筋: 220 220 220箍筋Asv: 191 191 191上纵实配: 2E14(308) 2E14(308) 2E14(308)下纵实配: 2E14(308) 2E14(308) 2E14(308)箍筋实配: 2E6@250(226) 2E6@250(226) 2E6@250(226)腰筋实配: 6d8(302) 6d8(302) 6d8(302)上实配筋率: % % %下实配筋率: % % %箍筋配筋率: % % %裂缝:挠度:最大裂缝:<最大挠度:<(600/200)本跨计算通过.-----------------------------------------------------------------------梁号 2: 跨长 = 1600 B×H = 200 × 550左中右弯矩(-) :弯矩(+) :剪力:上部as: 35 35 35下部as: 35 35 35上部纵筋: 220 220 220下部纵筋: 220 220 220箍筋Asv: 191 191 191上纵实配: 2E14(308) 2E14(308) 2E14(308)下纵实配: 2E14(308) 2E14(308) 2E14(308)箍筋实配: 2E6@250(226) 2E6@250(226) 2E6@250(226)腰筋实配: 6d8(302) 6d8(302) 6d8(302)上实配筋率: % % %下实配筋率: % % %箍筋配筋率: % % %裂缝:挠度:最大裂缝:<最大挠度:<(1600/200)本跨计算通过.-----------------------------------------------------------------------梁号 3: 跨长 = 1600 B×H = 200 × 550左中右弯矩(-) :弯矩(+) :剪力:上部as: 35 35 35下部as: 35 35 35上部纵筋: 220 220 220下部纵筋: 220 220 220箍筋Asv: 191 191 191上纵实配: 2E14(308) 2E14(308) 2E14(308)下纵实配: 2E14(308) 2E14(308) 2E14(308)箍筋实配: 2E6@250(226) 2E6@250(226) 2E6@250(226)腰筋实配: 6d8(302) 6d8(302) 6d8(302)上实配筋率: % % %下实配筋率: % % %箍筋配筋率: % % %裂缝:挠度:最大裂缝:<最大挠度:<(1600/200)本跨计算通过.-----------------------------------------------------------------------梁号 4: 跨长 = 1300 B×H = 200 × 550左中右弯矩(-) :弯矩(+) :剪力:上部as: 35 35 35下部as: 35 35 35上部纵筋: 220 220 220下部纵筋: 220 220 220箍筋Asv: 191 191 191上纵实配: 2E14(308) 2E14(308) 2E14(308)下纵实配: 2E14(308) 2E14(308) 2E14(308)箍筋实配: 2E6@250(226) 2E6@250(226) 2E6@250(226)腰筋实配: 6d8(302) 6d8(302) 6d8(302)上实配筋率: % % %下实配筋率: % % %箍筋配筋率: % % %裂缝:挠度:最大裂缝:<最大挠度:<(1300/200)本跨计算通过.-----------------------------------------------------------------------4 所有简图:由此可知原结构设计梁安全二、阳台悬挑梁承载力验算阳台梁截面尺寸200mm*550mm,混凝土强度等级C30,弯曲抗拉强度设计值为fcm=mm2,轴心抗压强度设计值fc = N/mm2,纵向受力钢筋为三级钢,fy=360N/mm2,fy'=360N/mm2,受拉钢筋为3Φ20,受压钢筋为2Φ16,箍筋为三级钢Φ8@100。
悬挑式脚手架构造实例分析与验算摘要:在工程施工中,悬挑式脚手架是很常见并且不可缺少的,它是支撑现浇构件的临时构件,也是建筑工人高处作业时的操作平台,因此,它直接影响着工程事故的发生与施工人员生命安全,脚手架施工方法与它结构的稳定性验算尤为重要。
关键词:悬挑式脚手架脚手架验算外力杆Abstract: in the course of engineering construction, overhung type the scaffold is a very common and essential, it is support cast-in-situ component temporary components, and construction workers homework operation platform height, so it has a direct impact on engineering accident and life safety construction personnel, scaffold construction method and it is particularly important to the structure stability checking.Keywords: overhung type checking the scaffold pole outside force scaffold一、工程背景本项目建筑面积为30513平方米,地上建筑面积为24260平方米,地下建筑面积6253平方米,本工程地上部分由A区(运功员生活区)和B区(运动员训练区)组成,地下一层为全埋式地下结构,平面呈“L”字形。
二、悬挑式脚手架构造验算1、搭设方式与主要参数脚手架用φ48×3.5钢管和扣件搭设成双排架,其横距为1.05m,纵距为1.5m,步距为1.8m;脚手架立杆下部支承在用16号工字钢制作的水平悬挑梁上。
悬挑脚手架作用下阳台梁承载力验算阳台梁是建筑物结构的重要组成部分,它起到支撑楼板和承重墙体的作用。
为了保证阳台梁的安全性和稳定性,需要对其承载力进行验算。
首先,需要确定阳台梁的材料和尺寸。
常见的阳台梁材料有钢筋混凝土和钢结构,不同材料的承载力计算方法有所不同。
尺寸方面,需要考虑阳台梁的长、宽和高等参数。
在进行承载力验算之前,我们需要明确阳台梁的受力形式和作用荷载。
阳台梁主要受到自重和附加荷载的作用。
自重是指阳台梁自身的重量,需要根据材料密度和尺寸计算得出。
附加荷载包括人员负荷、施工荷载等,根据实际情况确定。
接下来,我们可以根据阳台梁的受力情况,进行承载力验算。
常见的验算方法有以下几种:1.静力计算法:根据静力学原理,进行受力分析和计算。
静力计算需要考虑阳台梁的弯矩、剪力和轴力等受力情况,采用力学公式进行计算。
2.有限元分析法:利用计算机软件进行数值模拟,对阳台梁进行受力分析和计算。
有限元分析法可以更精确地模拟阳台梁的受力情况,考虑到材料的非线性性和复杂的受力分布。
3.抗弯强度验算法:根据阳台梁材料的抗弯强度和受力情况,进行验算。
抗弯强度验算需要考虑材料的弯曲应力和弯曲强度,根据弯矩和截面形状进行计算。
4.极限承载力验算法:根据阳台梁的极限承载能力,进行验算。
极限承载力验算需要考虑阳台梁的整体稳定性和局部稳定性,采用强度理论和抗变形理论进行计算。
在进行承载力验算时,还需要将阳台梁与其他结构的连接方式和受力情况考虑在内。
同时,还需要考虑施工期间的荷载变化和临时荷载的影响,以保证阳台梁的安全性和稳定性。
最后,为了确保阳台梁的承载力,需要进行验收和监测工作。
验收工作包括对阳台梁的材料和尺寸进行检查,验证验算结果的准确性。
监测工作包括对阳台梁的实际受力情况进行定期检测和记录,及时发现和解决潜在的问题。
总之,悬挑脚手架在阳台梁承载力验算中起到了重要的作用。
通过正确的计算方法和严格的验收监测工作,可以保证阳台梁的安全可靠,为高层建筑的施工提供良好的工作条件。
多排悬挑架主梁验算计算书一、基本参数悬挑方式普通主梁悬挑主梁间距(mm)1200主梁与建筑物连接方式平铺在楼板上锚固点设置方式压环钢筋压环钢筋直径d(mm)20主梁建筑物外悬挑长度L x(mm)3250主梁外锚固点到建筑物边缘的距离a(mm)0主梁建筑物内锚固长度L m(mm)2750梁/楼板混凝土强度等级C30二、荷载布置参数支撑点号支撑方式距主梁外锚固点水平距离(mm)支撑件上下固定点的垂直距离L1(mm)支撑件上下固定点的水平距离L2(mm)是否参与计算1下撑290030002900是作用点号各排立杆传至梁上荷载F(kN)各排立杆距主梁外锚固点水平距离(mm)主梁间距l a(mm)1 6.63001200 28.3111501200 38.3123001200 48.3131501200附图如下:平面图立面图三、主梁验算主梁材料类型工字钢主梁合并根数n z 1主梁材料规格16号工字钢主梁截面积A(cm 2)26.1主梁截面惯性矩I x (cm 4)1130主梁截面抵抗矩W x (cm 3)141主梁自重标准值g k (kN/m)0.205主梁材料抗弯强度设计值[f](N/mm 2)215主梁材料抗剪强度设计值[τ](N/mm 2)125主梁弹性模量E(N/mm 2)206000 q=1.2×g k =1.2×0.205=0.25kN/m 第1排:F 1=F 1/n z =6.6/1=6.6kN 第2排:F 2=F 2/n z =8.31/1=8.31kN 第3排:F 3=F 3/n z =8.31/1=8.31kN 第4排:F 4=F 4/n z=8.31/1=8.31kN1、强度验算弯矩图(kN·m)σmax=M max/W=5.87×106/141000=41.65N/mm2≤[f]=215N/mm2符合要求!2、抗剪验算剪力图(kN)τmax=Q max/(8I zδ)[bh02-(b-δ)h2]=13.76×1000×[88×1602-(88-6)×140.22]/(8×11300000×6)=16.26N/mm2τmax=16.26N/mm2≤[τ]=125N/mm2符合要求!3、挠度验算变形图(mm)νmax =1.9mm≤[ν]=2×l a /400=2×3250/400=16.25mm 符合要求!4、支座反力计算R 1=-1.17kN,R 2=15.62kN,R 3=18.59kN四、下撑杆件验算下撑杆材料类型槽钢下撑杆截面类型10号槽钢下撑杆截面积A(cm 2)14下撑杆截面惯性矩I(cm 4)173.67下撑杆截面抵抗矩W(cm 3)34.73下撑杆材料抗压强度设计值f(N/mm 2)205下撑杆弹性模量E(N/mm 2)206000下撑杆件截面回转半径i(cm)3.52对接焊缝抗压强度设计值f t w (N/mm 2)140下撑杆件角度计算:β1=arctanL 1/L 2=arctan(3000/2900)=45.97° 下撑杆件支座力:R X1=n z R 3=1×18.59=18.59kN主梁轴向力:N XZ1=R X1/tanβ1=18.59/tan45.97°=17.97kN下撑杆件轴向力:N X1=R X1/sinβ1=18.59/sin45.97°=25.85kN下撑杆件的最大轴向拉力N X=max[N x1...N xi]=25.85kN下撑杆长度:L01=(L12+L22)0.5=(30002+29002)0.5=4172.53mm下撑杆长细比:λ1=L01/i=4172.53/35.2=118.54查《钢结构设计规范》GB50017-2003表C得,φ1=0.502轴心受压稳定性计算:σ1=N X1/(φ1A)=25852.29/(0.502×1400)=36.78N/mm2≤f=205N/mm2符合要求!对接焊缝验算:σ=N X/(l w t)=25.85×103/A=25.85×103/1400=18.47N/mm2≤f c w=140N/mm2符合要求!五、悬挑主梁整体稳定性验算主梁轴向力:N =[(N XZ1)]/n z=[(17.97)]/1=17.97kN压弯构件强度:σmax=M max/(γW)+N/A=5.87×106/(1.05×141×103)+17.97×103/2610=46.55N/mm 符合要求!受弯构件整体稳定性分析:其中φb -- 均匀弯曲的受弯构件整体稳定系数:查表《钢结构设计规范》(GB50017-2003)得,φb=2.8由于φb大于0.6,根据《钢结构设计规范》(GB50017-2003)附表B,得到 φb值为0.97。
悬挑脚手架作用下阳台梁承载力验算根据本工程特点,外脚手架需进行分段卸荷于主体结构上,结合脚手架施工方案,型钢悬挑脚手架分别设置在8#栋7、13层,9、10、14#栋10层,考虑到阳台处脚手架外附加荷载较大,为保证结构传力可靠,需对阳台梁承载力进行验算。
结合8、9、10、14#栋结构图,选取以下阳台进行受力验算:1、9、10、14#栋南向大阳台选取跨度和荷载都较大的9、10#栋6~15轴南向阳台进行结构受力验算。
2、8#栋阳台选取跨度最大的14~22及29~37轴内阳台进行结构受力验算,3、14#栋10层北向阳台(2~8、10~16、18~24、26~32轴)验算4、8#栋7、13层南向阳台(10~14、37~41轴)验算5、8#栋7、13层北向阳台验算(16~18、33~35轴)验算6、8#栋7、13层南向阳台(3~5、46~48轴)验算7、9、10#栋10层北向阳台(7~9、12~14、26~28、31~33轴)验算验算成果见附件各栋阳台加强配筋图。
阳台梁上由外架传来的集中力大小及位置详见附图9、10#栋6~15轴南向阳台受力验算一、阳台连系梁承载力验算阳台连系梁截面为200*400,混凝土强度等级为C30,受力纵筋采用HRB400三级钢,箍筋采用HPB300一级钢,阳台板厚为100mm。
1、荷载统计恒荷载阳台连系梁自重:q1=0.2*0.4*25=2KN/M阳台板传给连系梁自重:q2=0.65*0.10*25=1.625KN/M阳台活荷载:q3=2.5KN/M2*1=2.5 KN/M则均布荷载设计值为q=1.2*( q1+ q2)+1.4* q3=1.2*(2+1.625)+1.4*2.5=7.85KN/M 外脚手架型型钢传给阳台连系梁的集中力为27.2KN,集中力间距为1.3m。
考虑连系梁两端固接于阳台悬挑梁上,其受力计算简图如下:经计算,其弯矩包络图及剪力包络图如下:2、阳台连系梁正截面承载力验算连系梁截面尺寸bxh=200mm*400mm ,混凝土强度等级C30,弯曲抗拉强度设计值为f t =1.43N/mm 2,轴心抗压强度设计值f c =14.3 N/mm 2,纵向受力钢筋为三级钢,f y =360N/mm 2,f y '=360N/mm 2,ξb=0.518,受拉钢筋为2Φ14,A s =308mm 2,受压钢筋为2Φ14,A s '=308mm 2,。
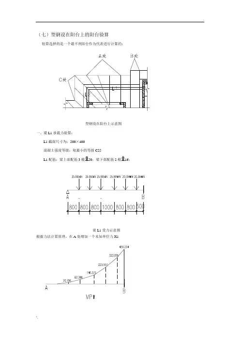
(七)型钢设在阳台上的阳台验算验算选择的是一个最不利阳台作为代表进行计算的;型钢设在阳台上示意图一、梁L1承载力验算:L1截面尺寸为:200×400混凝土强度等级:取最小的等级C25L1配筋:梁上部配筋3根20;梁下部配筋2根16;梁L1受力示意图根据力法计算原理,在A处增加一个未知单位力X1由公式01111=∆+P X δ()() ⎝⎛⨯⨯+⨯+⨯⨯+⨯+⨯⨯⨯=∆9.20.1373.140388.62210.28.0388.62796.202133.18.0796.202110121EIp()()())25.55.0234.429056.323216.48.0056.323557.223212.48.0557.223373.14021⨯⨯+⨯+⨯⨯+⨯+⨯⨯+⨯+mm 44.15912400200108.21016.29763512=÷⨯⨯⨯⨯= ()mm 335111097.212400200108.23255005500550021-⨯=÷⨯⨯⨯⨯⨯⨯⨯=δ代入公式得KN X 68.531-= (方向向上)M1和MP 图叠加,得最终弯矩图固端B 处弯矩最大m KN M •=2.100max剪力Q 图=max V 91.1KNmm bf f A f A x C yS y S 68.812009.110.13604023609421=⨯⨯⨯-⨯=''-=α)′(′′)2(001S y S C a h f A xh bx f M +=αμ ()mkN m kN M ⋅⋅=-⨯⨯+⎪⎭⎫ ⎝⎛-⨯⨯⨯⨯=2.10078.11035365360402268.8136568.812009.110.1<μ满足要求!L1抗剪承载力验算:000.175.1h s A f bh f V sv yv t CS++=λ36510010121036520023.10.15.175.1⨯⨯+⨯⨯⨯+=kN kN 1.9131.142>=抗剪承载力满足要求! 二、梁L2承载力验算:L2截面尺寸为:200×400 混凝土强度等级:C25 L2配筋:梁上部配筋3根20;梁下部配筋2根16;箍筋φ8@100/200固端C 处产生的弯矩最大:m kN m kN m kN m kN M ⋅=⨯+⨯+⨯=16.1163.0275.223.1275.225.168.53max KN Q 23.98max =抗弯承载力验算:mm bf f A f A x C yS y S 68.812009.110.13604023609421=⨯⨯⨯-⨯=''-=α)()2(001'-''+-=S y S C a h f A x h bx f M αμ()mkN m kN M ⋅⋅=-⨯⨯+⎪⎭⎫ ⎝⎛-⨯⨯⨯⨯=16.11678.11035365360402268.8136568.812009.110.1<μ不满足要求! L2配筋计算:m kN a h A f M S S y ⋅=-⨯⨯='-''=76.47)35365(402360)(02μ 混凝土所受弯矩:m kN m kN m kN M M M ⋅=⋅-⋅=-=4.6876.4716.11621μμ22.0365365200/9.110.1104.68262011=⨯⨯⨯⨯⋅⨯==mmmm mm mm N mmN bh f M C S ααμ 26.0=ξ查表得mm mm h x S 7029.9426.03650=>=⨯==αξmm f f A bx f yy S C 10303603604029.942009.110.11S =⨯+⨯⨯⨯=''+=αα选用4根20,钢筋面积为12572mm ,满足要求!对于设有型钢的阳台L2上部配筋原设计为3根20,现应改为4根20,能满足要求!L1抗剪承载力验算:000.175.1h sA f bh f V sv yv t CS++=λ36510010121036520023.10.15.175.1⨯⨯+⨯⨯⨯+=kN Q kN 23.98139max =>=抗剪承载力满足要求!。
阳台悬挑部位荷载分析验算一、工程概况 (1)二、阳台荷载 (2)三、脚手架荷载 (2)四、模型建立 (3)五、计算结果 (3)六、Morgain软件校核截面 (6)七、阳台结构梁位移 18一、工程概况本工程采用悬挑脚手架进行外围结构施工,悬挑脚手架附着在已完成施工的框架主体结构上。
因部分结构外围为悬挑阳台,考虑利用阳台封头梁(200×400)作为悬挑工字钢的附着点。
本方案将分析计算悬挑脚手架对悬挑阳台的影响,校核永久结构在脚手施工荷载影响下的安全。
根据工程设计图纸可知,结构差异不大,阳台受力情况相似,选取南侧阳台进行最不利工况分析。
二、阳台荷载本次校核采用MIDAS/gen专业结构计算软件,阳台结构自重由软件自行计算。
根据设计资料,阳台周边栏杆自重取1.5kN/m,阳台活荷载取 2.5KN/m2,考虑施工不利因素,校核时的阳台活荷载取为4KN/m2;考虑外围脚手架的围护作用,不考虑栏杆玻璃的风荷载,仅考虑脚手架风荷载作用;三、脚手架荷载按《建筑施工扣件式钢管脚手架安全技术规范》(JGJ130-2011)选取。
(1)恒载:立杆自重0.1295kN/m(1.5m纵距);扣件自重18.4N/个;脚手板自重0.35kN/m2;挂网自重0.05kN/m2;栏杆与脚手板挡板自重0.17kN/m(2)风荷载:基本风压ω0=0.4kN/m2,地面粗糙度C类,密目网挡风系数取为0.8。
风荷载体形系数μs=1.3φ=1.04;按屋顶高度(48.60m)考虑,计算近似按离地面50m高度,风荷载体型系数为μz=1.25,所以风荷载标准值ωk=1.25×1.04×0.4=0.52kN/m2。
(3)施工荷载:考虑两层,每层3Kpa。
四、模型建立脚手架悬挑支座(包括拉杆)与阳台整体建模,模型如图1所示(标准层高2.9m)。
阳台悬挑梁视为固端悬臂梁,不考虑阳台板刚度的有利作用。
图1 悬挑脚手及阳台整体计算模型示意图五、计算结果经MIDAS/gen计算,阳台悬挑主梁最大轴力4.7KN,最大剪力46.3KN(Y向剪力可忽略不计),最大扭矩3.3KN•m,最大弯矩69.6KN•m(Z向弯矩可忽略不计);封头梁最大轴力5.5KN,最大剪力39.6KN,最大扭矩 1.9KN•m,最大弯矩49.4KN•m。
安全技术之悬挑外脚手架卸荷措施的验算悬挑式外脚手架是一种常用于建筑施工中的高空作业设备,其设计和使用必须严格遵守相关安全规范和标准,以确保施工人员和设备的安全。
在悬挑式外脚手架的使用过程中,卸荷措施是非常重要的环节,其目的是确保设备在使用过程中承受的荷载没有超过其承载能力。
本文将重点介绍悬挑式外脚手架的卸荷验算方法和相关注意事项。
悬挑式外脚手架的卸荷验算主要包括两个方面:一是脚手架结构的卸荷验算,二是承载绳的卸荷验算。
首先,对于脚手架结构的卸荷验算,主要考虑脚手架各个部件的承载能力和受力情况。
常见的悬挑式外脚手架结构包括外悬臂、支撑杆、水平杆、纵向杆等。
卸荷验算时,需要根据设计图纸和相关标准,计算每个部件在使用过程中的受力情况,并判断其是否满足承载要求。
例如,对于外悬臂的卸荷验算,需要考虑其自重、施工荷载和风荷载等情况,并根据相关公式计算出其受力情况,判断是否满足承载要求。
其次,对于承载绳的卸荷验算,主要考虑绳索的承载能力和安全系数。
悬挑式外脚手架通常通过承载绳悬挂在高空,在卸荷验算时,需要对承载绳的直径、材质和悬挂方式进行评估,并根据相关公式计算出其承载能力和安全系数。
一般情况下,承载绳的安全系数应为2以上,以确保其在使用过程中的安全性。
在进行悬挑式外脚手架的卸荷验算时,需要注意以下几个方面:1.准确评估施工荷载:施工荷载是指在悬挑式外脚手架上进行施工作业时施加在脚手架上的实际荷载。
在进行卸荷验算时,需要准确评估施工荷载,并根据实际情况进行计算,以确保脚手架能够承受该荷载。
2.考虑不同工况:悬挑式外脚手架在使用过程中可能存在多种工况,如施工时的风荷载、荷载不均等。
在进行卸荷验算时,需要考虑不同工况的影响,并进行相应的计算和评估。
3.使用合适的公式和计算方法:卸荷验算需要使用相关的公式和计算方法,如悬挑式外脚手架结构的受力计算公式、承载绳的承载能力计算公式等。
在进行卸荷验算时,需要选择合适的公式和计算方法,并按照标准和规范进行计算,以确保结果的准确性。
悬挑式脚手架的稳定性承载力计算
该悬挑架所用钢管材质特性如下:
1.计算依据
1.2脚手架特性参数
1.3相关计算参数
2.该悬挑架承受荷载的传递途径是:脚手板→小横杆→大横杆→立杆→挑梁(工
字钢)→楼面顶板。
需计算的项目有:
1)立杆的稳定性
2)选择杆的强度,稳定性和扣件的抗滑力。
3)挑架的强度,桡度。
4)斜撑杆和钢丝绳的稳定性。
①杆,连墙件和扣件的稳定承载计算:
说明:1、由于内排立杆还要承受距结构外皮0.35m这段的施工荷载及整体拉结和防护材料重;所以他实际的承载要大于外排立杆。
2、做悬挑梁的稳定承载验算时,不考虑风载的影响。
②卸荷装置的稳定承载计算。
悬挑脚手架作用下阳台梁承载力验算阳台梁是连接阳台与建筑物主体的重要结构,承载着人们在阳台上活动时产生的各种荷载。
为了保证阳台梁的安全可靠,需要进行承载力验算。
1.提供工作平台:阳台梁的承载力验算需要测量梁的各个部位的尺寸,采集数据等,悬挑脚手架可以提供一个稳定的工作平台供工作人员进行操作。
2.支撑梁体:阳台梁一般为悬挑结构,悬挑脚手架能够提供必要的支撑,保证梁体的稳定,并均匀分布梁体的自重。
3.提供悬挑支撑:悬挑脚手架能够提供支撑,防止梁体在验算过程中产生过大的变形或挠度,保证梁体的安全。
进行阳台梁承载力验算时,首先需要了解阳台梁的材料、结构以及工况等。
材料:一般阳台梁采用钢筋混凝土结构,材料的特性需要取决于具体的设计要求,如强度等级、抗裂性能等。
结构:阳台梁的结构形式一般为梁或板梁。
梁为矩形横截面,板梁为矩形或T形横截面。
梁的承载力主要依靠梁截面的抗弯强度,而板梁的承载力主要依靠板的承压强度。
工况:阳台梁的工况主要包括常设荷载和活荷载。
常设荷载包括自重和固定荷载,如梁本身的重量以及阳台地板等的重量。
活荷载包括人员、家具、设备等的荷载作用。
验算步骤如下:1.确定梁体的截面尺寸。
2.计算常设荷载和活荷载的作用面积。
3.计算梁的弯矩和剪力大小。
4.根据梁的尺寸和混凝土的强度等参数,计算梁截面的抗弯承载力和抗剪承载力。
5.将弯矩和剪力与抗弯承载力和抗剪承载力进行比较,判断梁是否满足承载要求。
在进行阳台梁承载力验算时,需要注意以下问题:1.设计时要合理选择材料和结构形式,确保梁体具有足够的承载力和刚度。
2.根据具体情况合理估算常设荷载和活荷载的大小和分布。
3.验算结果要满足设计规范的要求,保证梁体的安全性。
4.在施工过程中,悬挑脚手架的安装要符合相关规范,保证工作平台的稳定性。
金茂紫庭1-5号楼阳台结构承载力验算计算书深圳市特辰科技有限公司二○一○年五月二十日阳台梁承载力验算该工程阳台面梁、挑梁截面均为200×450,面梁配筋为2φ14、2φ16;挑梁配筋为4φ18、2φ14。
根据升降架平面布置和阳台梁的跨度和配筋,可知5号楼中的4号机位处的阳台挑梁为最不利受力梁,其配筋为4φ18、2φ16;2号机位处的面梁为最不利受力面梁,其配筋为2φ14、2φ16。
其计算如下:一、计算依据1、建筑施工安全技术标准 JGJ59-992、钢结构设计规范 GBJ17-883、企业标准《建筑升降脚手架》Q/STC001-19994、建筑结构荷载设计规范GBJ9-875、简明钢筋混凝土房屋结构设计手册二、升降架荷载分析由我公司升降架设计计算书可知,升降架在最大布置跨度7.2m,且最大跨度7.2m×架高小于110m2时的计算荷载合计如下:取动力系数γb=1.05 冲击系数γc=1.5恒载分项系数γa=1.2 活载分项系数γq=1.41、静载: P静=1.2×(3825+4016+23655)=37795N2、活荷载:P活=1.4×7.2×0.9×3×2000=54432N3、工作时:P=γb×(P静+P活)=1.05(37795+54432)=96838 N4、升降时:P升=37795+1.4×7.2×0.9×500=42331 N(升降时,不允许人员停留在升降架上,也不允许架体上堆放杂物、垃圾和各种材料,故活荷载仅取一步架)。
从中可以分析,工作时荷载为96838N,由三个导向座(三点)共同承载,故每个导向座所受荷载约为 96838N/3=32246N,升降时由一点受力,承受荷载42331 N,故取升降荷载为最不利荷载计算:P升=42331 N(架体跨度为7.2m 时)三、阳台面梁验算根据导座式升降脚手架平面布置图可知,阳台面梁处升降架最大跨度为5.2米,本计算书取跨度为5.4米的升降架荷载来计算。
阳台悬挑梁规范篇一:悬挑梁搭设规范悬挑梁搭设规范一、悬挑式脚手架钢梁的构造1、挑架外挑梁或悬挑架应积极采用型钢或定型桁架。
2、悬挑型钢或悬挑架通过预埋与建筑结构固定,安装符合设计要求。
3、挑架立杆与悬挑型钢连接必须固定,防止滑移。
4、架体与建筑结构进行刚性拉结,按水平方向小于7M、垂直方向等于层高设一,架体边缘及转角处1M范围内必须设拉结点。
二、荷载施工荷载均匀堆放,并不超过3.0KN/m2。
建筑垃圾或不用的物料必须及时清除。
三、杆件间距挑架步距不得大于1.8M,横向立杆间距不大于1M,纵向间距不大于1.5M。
四、架体防护1、挑架外侧必须用建设主管部门认证的合格的密目式安全网封闭围护,安全网用不小于18#铅丝张挂严密。
且应将安全网挂在挑架立杆里侧,不得将网围在各杆件外侧。
2、挑架与建筑物间距大于20cm处,铺设站人片。
除挑架外侧、施工层设置1.2M高防护栏杆和18cm高踢脚杆外,挑架里侧遇到临边时(如大开窗、门洞等)时,也应进行相应的防护。
五、层间防护挑架作业层和底层应用合格的安全网或采取其他措施进行分段封闭式防护。
六、材质1、钢管脚手架应选用外径48mm,壁厚3.5mm的A3钢管,表面平整光滑,无锈蚀、裂纹、分层、压痕、划道和硬弯,新用钢管有出厂合格证。
搭设架子前应进行保养、除锈并统一涂色,颜色应力求环境美观。
2、钢管脚手架搭设使用的扣件应符合建设部《钢管脚件标准》要求,有生产许可证,规格与钢管匹配,采用可锻铸铁,不得有裂纹、气孔、缩松、砂眼等锻造缺陷,贴和面应平整,活动部位灵活,夹紧钢管时开口处最小距离不小于5mm。
3、型钢宜采用A3号槽钢或工字钢。
七、悬挑式脚手架的构造与搭设要求(1)支撑杆式悬挑脚手架搭设要求支撑杆式搭设需控制使用荷载,搭设要牢固。
搭设时应该先搭设好里架子,使横杆伸出墙外再将斜杆撑起与挑出横杆连接牢固,随后再搭设悬挑部分,铺脚手板,外围要设栏杆和挡脚板,下面支设安全网,以保安全。
关于XXXXXX工程阳台处悬挑工字钢阳台梁承载的验算根据XXXXXX工程《悬挑扣件式钢管脚手架施工方案》中P14页计算得知,阳台梁支座处局部压应力最大弯矩 MA = 15.043 kN•m。
根据XXXXXX3楼结构施工图设计中结施-46中知阳台梁截面为200×400最小配筋为3D14;3D14,砼标号为C25,试验算此梁截面。
1、计算资料混凝土强度等级为C25,fc =11.943N/mm2,ft =1.271N/mm2钢筋抗拉强度设计值 fy = 360N/mm2, Es = 200000N/mm2;纵筋的混凝土保护层厚度 c = 25mm由配筋面积 As 求弯矩设计值 M,查表得纵筋受拉钢筋面积 As = 462mm2截面尺寸 b×h = 200×450, h0 = h - as = 450-37.5 =412.5mm2、计算结果相对界限受压区高度ξb =β1 / [1 + fy / (Es〃εcu)]=0.8/[1+360/(200000*0.0033)] = 0.518混凝土受压区高度x =As〃fy / (α1〃fc〃b) =462*360/(1*11.943*200) = 70mm相对受压区高度ξ= x / h0 = 70/412.5 = 0.169 ≤ξb= 0.518弯矩设计值M =α1〃fc〃b〃x〃(h0 - x / 2) =1*11.943*200*70*(412.5-70/2)= 62.816kN〃m配筋率ρ= As / (b〃h0) = 462/(200*412.5) = 0.56%纵筋的最小配筋率ρmin =Max{0.20%, 0.45ft/fy} =Max{0.20%, 0.16%} = 0.20%M=62.816kN〃m> MA = 15.043 kN•m 满足要求!3、卸载措施根据上述验算可知,阳台梁能够承受从悬挑工字钢上传来的荷载,满足安全要求。
先看看悬挑脚手架底部承力架的形式,我们现场见得最多的应该是悬挑梁式,构造见图,A 端悬挑梁为锚固端(也有设置三个锚固点,每个锚固点设置两道锚固钢环的,具体做法再详细介绍),B段为脚手架立杆的支撑端(需采取一定的锚固措施,防止钢管滑移,并抵抗风荷载的上浮力)。
这个现场做得比较差,1、采用的槽钢,截面不合理,建议采用对称截面的,如工字钢。
施工单位的解释是采用槽钢的话等工程结束,浇筑路面的时候还能当模板用.....只要计算没有问题,有的时候也只能如此,但是在立杆位置应增设加强肋,改善构件的受力性能2、锚固长度太短,我们一般控制在悬挑长度的1.5―2倍之间。
3、锚固点设在悬挑板上,受力不合理,应该将槽钢加长,锚固点避开阳台位置,当然,如果悬挑阳台太大的话,可以在阳台位置加上锚固点,用来控制槽钢的侧向变形。
4、锚固点采用了木楔,木材材质比较软,受理后容易变形,建议采用钢制材料这个就是在立杆位置应增设加强肋的,刚才有人说图不清楚,简单的花了一下,画图水平有限,这样应该可以了吧这个锚固点就避开了阳台位置,但是端部做法值得探讨,现场焊接工程量比较小,而且分散,很少有单位愿意去找技术水平高一点的电焊工,一般就叫普通工人弄弄,焊接的质量难以控制,而且像这种只能单面焊,有的还是点焊,到低有多少焊接强度很难说这种端部的固定方式是我们目前见到的最好的形式了,端部采用两道固定,钢制的楔子,不错,不过也有问题,我们得到消息,目前正在修订的《建筑施工扣件式钢管脚手架安全技术规范》JGJ130规程中有这样一条:6.11.1悬挑钢梁应使用16号及以上双轴对称截面型钢,悬挑梁尾端应在两处以上使用HPB235级直径16当然,现场端部锚固的形式还有很多,不再一一列举,我们总结了一些,主要形式有下面几种:图一是最常见的在主体结构施工是预埋钢筋的形式,当然不一定是环形的,也有埋两个钢筋再对折的.......图二是后置式的,主体结构施工时预留洞口(也可以浇筑完主体后再打孔),然后用螺杆固定,螺杆形式有图示的两根对穿螺杆,也有将螺杆加工成U形的(这样只需要再一个面拧螺栓,工作量可以减少很多)。
悬挑脚手架作用下阳台梁承载力验算根据本工程特点,型钢工具式悬挑脚手架分别在二层、八层、十四层、二十层结构悬挑,考虑到阳台处脚手架外附加荷载较大,为保证结构传力可靠,需对阳台梁承载力进行验算。
结合结构图,以27-29轴最大阳台跨度为最不利受力计算,见图1、图2。
图一图二根据外脚手架方案,立杆纵向间距1.6m,单立杆竖向力P=20KN,则型钢作用于阳台上,其受力简图如下:一、阳台连系梁承载力验算阳台连系梁截面为200*550,混凝土强度等级为C30,受力纵筋采用HRB400三级钢,箍筋采用HRB400三级钢。
2 计算条件:荷载条件:均布恒载标准值: 0.00kN/m 活载准永久值系数: 0.50均布活载标准值: 0.00kN/m 支座弯矩调幅幅度: 0.0%梁容重 : 25.00kN/m3计算时考虑梁自重: 考虑恒载分项系数 : 1.20 活载分项系数 : 1.40活载调整系数 : 1.00配筋条件:抗震等级 : 不设防纵筋级别 : HRB400混凝土等级 : C30 箍筋级别 : HRB400配筋调整系数 : 1.0 上部纵筋保护层厚: 25mm面积归并率 : 30.0% 下部纵筋保护层厚: 25mm最大裂缝限值 : 0.400mm 挠度控制系数C : 200截面配筋方式 : 双筋3 计算结果:单位说明:弯矩:kN.m 剪力:kN纵筋面积:mm2箍筋面积:mm2/m裂缝:mm 挠度:mm----------------------------------------------------------------------- 梁号 1: 跨长 = 600 B×H = 200 × 550左中右弯矩(-) : 0.000 -0.119 -0.536弯矩(+) : 0.000 0.001 0.000剪力: 0.097 -0.893 -1.883上部as: 35 35 35下部as: 35 35 35上部纵筋: 220 220 220下部纵筋: 220 220 220箍筋Asv: 191 191 191上纵实配: 2E14(308) 2E14(308) 2E14(308)下纵实配: 2E14(308) 2E14(308) 2E14(308)箍筋实配: 2E6@250(226) 2E6@250(226) 2E6@250(226)腰筋实配: 6d8(302) 6d8(302) 6d8(302) 上实配筋率: 0.28% 0.28% 0.28%下实配筋率: 0.28% 0.28% 0.28%箍筋配筋率: 0.11% 0.11% 0.11% 裂缝: 0.000 0.000 0.001挠度: -0.000 -0.000 -0.000最大裂缝:0.001mm<0.400mm最大挠度:0.000mm<3.000mm(600/200)本跨计算通过.----------------------------------------------------------------------- 梁号 2: 跨长 = 1600 B×H = 200 × 550左中右弯矩(-) : -0.536 0.000 -0.750弯矩(+) : 0.000 0.416 0.000剪力: 2.506 -0.134 -2.774上部as: 35 35 35下部as: 35 35 35上部纵筋: 220 220 220下部纵筋: 220 220 220箍筋Asv: 191 191 191上纵实配: 2E14(308) 2E14(308) 2E14(308)下纵实配: 2E14(308) 2E14(308) 2E14(308)箍筋实配: 2E6@250(226) 2E6@250(226) 2E6@250(226)腰筋实配: 6d8(302) 6d8(302) 6d8(302) 上实配筋率: 0.28% 0.28% 0.28%下实配筋率: 0.28% 0.28% 0.28%箍筋配筋率: 0.11% 0.11% 0.11% 裂缝: 0.001 0.001 0.001挠度: -0.000 0.003 -0.000最大裂缝:0.001mm<0.400mm最大挠度:0.003mm<8.000mm(1600/200)本跨计算通过.----------------------------------------------------------------------- 梁号 3: 跨长 = 1600 B×H = 200 × 550左中右弯矩(-) : -0.750 0.000 -0.688弯矩(+) : 0.000 0.337 0.000剪力: 2.679 0.039 -2.601上部as: 35 35 35下部as: 35 35 35上部纵筋: 220 220 220下部纵筋: 220 220 220箍筋Asv: 191 191 191上纵实配: 2E14(308) 2E14(308) 2E14(308)下纵实配: 2E14(308) 2E14(308) 2E14(308)箍筋实配: 2E6@250(226) 2E6@250(226) 2E6@250(226)腰筋实配: 6d8(302) 6d8(302) 6d8(302) 上实配筋率: 0.28% 0.28% 0.28%下实配筋率: 0.28% 0.28% 0.28%箍筋配筋率: 0.11% 0.11% 0.11% 裂缝: 0.001 0.001 0.001挠度: -0.000 0.002 -0.000最大裂缝:0.001mm<0.400mm最大挠度:0.002mm<8.000mm(1600/200)本跨计算通过.----------------------------------------------------------------------- 梁号 4: 跨长 = 1300 B×H = 200 × 550左中右弯矩(-) : -0.688 0.000 0.000弯矩(+) : 0.000 0.395 0.000剪力: 2.674 0.529 -1.616上部as: 35 35 35下部as: 35 35 35上部纵筋: 220 220 220下部纵筋: 220 220 220箍筋Asv: 191 191 191上纵实配: 2E14(308) 2E14(308) 2E14(308)下纵实配: 2E14(308) 2E14(308) 2E14(308)箍筋实配: 2E6@250(226) 2E6@250(226) 2E6@250(226)腰筋实配: 6d8(302) 6d8(302) 6d8(302) 上实配筋率: 0.28% 0.28% 0.28%下实配筋率: 0.28% 0.28% 0.28%箍筋配筋率: 0.11% 0.11% 0.11% 裂缝: 0.001 0.001 0.000挠度: -0.000 0.002 0.000最大裂缝:0.001mm<0.400mm最大挠度:0.002mm<6.500mm(1300/200)本跨计算通过.----------------------------------------------------------------------- 4 所有简图:由此可知原结构设计梁安全二、阳台悬挑梁承载力验算阳台梁截面尺寸200mm*550mm,混凝土强度等级C30,弯曲抗拉强度设计值为fcm=21.5N/mm2,轴心抗压强度设计值fc =19.5 N/mm2,纵向受力钢筋为三级钢,fy=360N/mm2,fy'=360N/mm2,受拉钢筋为3Φ20,受压钢筋为2Φ16,箍筋为三级钢Φ8@100。
fyV=360N/mm2。
1 计算简图:2 计算条件:荷载条件:均布恒载标准值: 0.00kN/m 活载准永久值系数: 0.50均布活载标准值: 0.00kN/m 支座弯矩调幅幅度: 0.0%梁容重 : 25.00kN/m3计算时考虑梁自重: 考虑恒载分项系数 : 1.20 活载分项系数 : 1.40活载调整系数 : 1.00配筋条件:抗震等级 : 不设防纵筋级别 : HRB400混凝土等级 : C30 箍筋级别 : HPB300配筋调整系数 : 1.0 上部纵筋保护层厚: 25mm面积归并率 : 30.0% 下部纵筋保护层厚: 25mm最大裂缝限值 : 0.400mm 挠度控制系数C : 200截面配筋方式 : 单筋3 计算结果:单位说明:弯矩:kN.m 剪力:kN纵筋面积:mm2箍筋面积:mm2/m裂缝:mm 挠度:mm----------------------------------------------------------------------- 梁号 1: 跨长 = 1800 B×H = 200 × 550左中右弯矩(-) : -70.146 -33.737 -0.000弯矩(+) : 0.000 0.000 0.000剪力: 41.940 38.970 36.000上部as: 35 35 35下部as: 35 35 35上部纵筋: 398 220 220下部纵筋: 220 220 220箍筋Asv: 254 254 254上纵实配: 2E18(509) 2E18(509) 2E18(509)下纵实配: 2E14(308) 2E14(308) 2E14(308)箍筋实配: 2d8@250(402) 2d8@250(402) 2d8@250(402)腰筋实配: 6d8(302) 6d8(302) 6d8(302) 上实配筋率: 0.46% 0.46% 0.46%下实配筋率: 0.28% 0.28% 0.28%箍筋配筋率: 0.20% 0.20% 0.20% 裂缝: 0.275 0.045 0.000挠度: -0.000 0.797 2.531最大裂缝:0.275mm<0.400mm最大挠度2.531mm<18.000mm(2×1800/200 悬挑)本跨计算通过.----------------------------------------------------------------------- 4 所有简图:由此可知原结构设计梁安全11。