阳台处计算书
- 格式:rtf
- 大小:1.68 MB
- 文档页数:9
阳台雨蓬挑檐计算书项目名称_____________构件编号_____________日期_____________ 设计_____________校对_____________审核_____________一、基本资料1.设计规范:《建筑结构荷载规范》(GB50009—2001)《混凝土结构设计规范》(GB50010—2002)《砌体结构设计规范》(GB50003—2001)2.设计参数:几何信息类型: 挑檐梁宽b b: 240mm梁高h b: 500mm挑板宽L: 1300mm梁槛高h a: 0mm梁槛宽b a: 0mm墙厚b w: 240mm板下沉h0: 180mm板斜厚h1: 20mm板净厚h2: 100mm上翻板高h3: 200mm上翻板厚t1: 80mm翻板斜高h4: 300mm翻板角度A: 90°第一排纵筋至梁近边距离a s: 30mm 荷载信息板端集中活载P k: 0.00kN/m板上均布活载q k: 0.50kN/m2板上均布恒载g k: 0.50kN/m2混凝土容重γL: 25.00kN/m3恒载分项系数γG: 1.20活载分项系数γQ: 1.40指定梁上抗倾覆荷载G r: 100.00kN/m墙体容重γW: 19.00kN/m3过梁上墙高H w: 2600mm墙洞宽l n: 4000mm墙洞高h n: 1500mm梁伸入墙内D l: 1100mm墙洞下墙高h w: 1300mm材料信息混凝土等级: C25混凝土强度设计值f c: 11.90N/mm2主筋级别: HRB335(20MnSi)主筋强度设计值f y: 300N/mm2箍筋级别: HPB235(Q235)强度设计值f yv: 210N/mm2墙体材料: 砖砌体抗压强度设计值f: 1.700N/mm2二、计算过程1.计算过梁截面力学特性根据混凝土结构设计规范式7.6.3-1过梁截面W t = b26(3h - b) =24026×(3×500 - 240) = 12096000mm3μcor = 2(b cor + h cor) = 2×(240 - 30×2 + 500 - 30×2) = 1240mm 过梁截面面积A = b b h b = 240×500 = 120000mm22.荷载计算2.1 计算x0x0 = 0.13l1,L1 = b wx0 = 31.20mm 2.2 倾覆荷载计算g T = γL(h1 + 2h22) = 25.00×(20 + 2×1002) = 2.75kN/m2q T = γG(g k + g T) + γQ q k = 1.20×(0.50 + 2.75) + 1.40×0.50 = 4.600kN/m2 P T = γG g F + γQ P k = 1.20×0.60 + 1.40×0.00 = 0.72kN/m倾覆力矩M OV = 12q T(L + x0)2 + P T(L + x0)= 12×4.60×(1300 + 31.20)2/106 + 0.72×(1300 + 31.20)/103= 5.03kN?m2.3 挑板根部的内力计算M Tmax = M OV = 5.03kN?mV Tmax = q T L + p T = 4.60×1300/103 + 0.72 = 6.70kN/m2.4 计算过梁内力因为墙体材料是砖,所以h w0 = min(h w,l n/3) = min(1300,4000/3) = 1300mmg w = γw b w h w0 = 19.00 × 240 × 1300 = 5.93kN/mg L = γL(b b h b + h a b a) = 25.00×(240×500 + 0×0)/106 = 3.00kN/mq L = γG(g L + g W) + q T L + p T= 1.20 × (3.00 + 5.93) + 4.60 × 1300/1000 + 0.72 = 17.41kN/ml0 = 1.05l n = 1.05 × 4000 = 4200.0mmM max = 18q L l02 =18×17.41 × 42002 = 38.40kN?mV max = 12q L l0 =12×17.41 × 4200 = 36.57kNT max = 12l n[q T LL + b b2+ p T(L +b b2)]= 12× 4000 × [4.60 × 1300 ×1300 + 2402×106+ 0.72 × (1300 +2402)/103]/103= 11.25kN?m 3.抗倾覆验算l1 = b w = 240mml2 = l1/2 = 120mml3 = l n/2 = 2000mmG r = g L + γw b w[H w(l n + 2D l + 2l3) - (l n h n + l32)]l n + 2D l= 3.00 + 19.00 × 240 × [2600 × (4000 + 2 × 1100 + 2 × 2000) - (4000 × 1500 + ∠2)](4000 + 2 × 1100)× 106=15.15kN/m实际计算出来的G r < 用户输入的G r 取G r = 100.00kN/m l 1 = b w = 240mm l 2 = 0.5l 1 = 120mm G r 产生的抗倾覆力矩 M rG = 0.8G r (L 2 - x 0) = 0.8 × 100.00 × (120 - 31.2) = 7.104kN?m 过梁自重产生的抗倾覆力矩 M rL = 0.8×g L (0.5b b - x 0) = 0.8 × 3.00 × (0.5 × 240 - 31.2) = 0.213kN?m 总的抗倾覆力矩 M r = M rG + M rL = 7.104 + 0.213 = 7.317kN?m > M ov = 5.034kN?m , 满足抗倾覆要求 4.挑板相关计算4.1 挑板截面尺寸验算 按混凝土结构设计规范(7.5.1) 0.25βc f c bh 0 = 0.25×1.00×11.90×1000×90 = 267.8×103N V max = 6.70kN < 267.8kN, 截面尺寸满足要求 4.2 挑板配筋计算4.2.1相对界限受压区高度ξb εcu = 0.0033 - (f cu,k - 50)×10-5 = 0.0033 - (25 - 50)×10-5 = 0.0036 > 0.0033 取 εcu = 0.0033按混凝土结构设计规范(7.1.4-1)ξb =β11 +f yE s εcu=0.801 +3002.0×105×0.00330= 0.554.2.2 受压区高度x按混凝土结构设计规范(7.2.1-1), A 's = 0, A 'p = 0 M = α1f c bx ⎝⎛⎭⎫h 0 - x2x = h 0 -h 02 -2Mα1f c b= 90 - 902 -2×5.03×1061.00×11.90×1000= 4.83mm4.2.3 受拉钢筋截面积A s按混凝土结构设计规范(7.2.1-2)α1f c bx = f y A s得 A s =α1f c bx f y=1.00×11.90×1000×4.83300= 192mm 2最小配筋率ρmin = max(0.45f tf y,0.002) = max(0.45×1.27300,0.002) = 0.0020A s < A smin = ρmin A = 0.0020×120000 = 240mm 2 取A stb = 240mm 2 根据计算,挑板负筋实际配置为,直径10mm ,间距为140mm,每1000mm 的实际配筋率为0.5610%>计算每1000mm 的配筋率0.2400%,满足要求! 4.3 挑板分布钢筋计算按照最小配筋率计算 最小配筋率ρmin = max(0.45f t f y,0.002) = max(0.45×1.27300,0.002) = 0.0020A sTbfb = ρmin (h 1 + 2h 2)L/2 = 0.0020×(20 + 2×100)×1300/2 = 286.00mm 2 实际挑板分布钢筋配置,取直径为8mm,间距为200mm 5.梁端局部受压验算 计算梁端有效支承长度a 0 = min(10h cf ,b b) = min(105001.70,240) = 171mm 计算局部受压面积 A l = a 0b = 171 × 240 = 41160mm 2 计算影响砌体局部抗压强度的计算面积 A 0 = (D l + b w )b w = (1100 + 240) × 240 = 321600mm 2 局部受压强度提高系数γ =1 + 0.35A 0A l - 1 =1 + 0.3532160041160- 1 = 1.91 > 1.25 γ = 1.25梁端支承处砌体局部受压承载力计算公式 N l ≤ηγfA l N l = 0.5q L l 0 = 0.5 × 17.41 × 4200.0 = 36.6kNηγfA l = 1.0 × 1.25 × 1.70 × 41160 = 87.46kN > 36.6kN, 满足局部受压要求 6.过梁截面配筋计算 在以下计算过程中 h = h b = 500mm b = b b = 240mm h 0 = h - a s = 500 - 30 = 470mm M = M max = 38.40mm 6.1 过梁截面截面尺寸验算 按混凝土结构设计规范(7.5.1) 0.25βc f c bh 0 = 0.25×1.00×11.90×240×470 = 335.6×103N V max = 36.57kN < 335.6kN, 截面尺寸满足要求 6.2 验算截面剪扭承载力限制条件 按混凝土结构设计规范(7.6.1-1) f cu,k = 25 < 50mm 2, 故βc = 1.0V bh 0 + T 0.8W t = 36569240×470 + 112540000.8×12096000= 1.487 ≤ 0.25βc f c = 0.25×1.00×11.90= 2.98截面尺寸满足要求。
玻璃阳台栏杆设计计算书1计算引用的规范、标准及资料依据:1.1建筑设计规范:GB 17740-1999 地震震级的规定GB 50009-2001(2006版)建筑结构荷载规范GB 50010-2002 混凝土结构设计规范GB 50011-2001 建筑抗震设计规范GB 50019-2003 采暖通风与空气调节设计规范GB 50045-1995 高层民用建筑设计防火规范GB 50057-1994 建筑物防雷设计规范(2000年版)GB 50068-2001 建筑结构可靠度设计统一标准GB 50176-1993 民用建筑热工设计规范GB 50189-2005 公共建筑节能设计标准GB 50222-1995 建筑内部装修设计防火规范GB 50223-2004 建筑工程抗震设防分类标准GB 50352-2005 民用建筑设计通则GB/T 17742-1999 中国地震烈度表GB/T 18229-2000 CAD工程制图规则GB/T 18622-2002 温室结构设计荷载GB/T 18883-2002 室内空气质量标准GB/T 50001-2001 房屋建筑制图统一标准GB/T 50103-2001 总图制图标准GB/T 50104-2001 建筑制图标准GB/T 50105-2001 建筑结构制图标准GBJ 16-87建筑设计防火规范JGJ 3-2002高层建筑混凝土结构技术规程JGJ 101-96建筑抗震试验方法规程JGJ 26-95 民用建筑节能设计标准(采暖居住建筑部分)JGJ/T 16-92 民用建筑电气设计规范JGJ/T 97-95 工程抗震术语标准建筑结构静力计算手册(第2版)1.2钢结构规范:GB 14907-2002 钢结构防火涂料GB 50017-2003 钢结构设计规范GB 50018-2002 冷弯薄壁型钢结构技术规范GB 50205-2001 钢结构工程施工质量验收规范JGJ 81-2002 建筑钢结构焊接技术规程JGJ 82-91 钢结构高强度螺栓连接的设计施工及验收规程JGJ 99-98 高层民用建筑钢结构技术规程CECS 77∶96 钢结构加固技术规范CECS 80∶96 塔桅钢结构施工及验收规程CECS 102∶98 门式钢架轻型房屋钢结构技术规程CECS 133∶2002 包覆不饱和聚酯树脂复合材料的钢结构CECS 148∶2003 户外广告设施钢结构技术规程YB 9257-96 钢结构检测评定及加固技术规程01SG519 多高层民用建筑钢结构节点构造详图1.4玻璃规范:GB 4871-95 普通平板玻璃GB 9962-99 夹层玻璃GB 9963-98 钢化玻璃GB 11614-99 浮法玻璃GB 15763.1-2001 建筑用安全玻璃、防火玻璃GB 17840-99 防弹玻璃GB 17841-99 幕墙用钢化玻璃与半刚化玻璃GB/T 2680-94 建筑玻璃可见光透射比、太阳光直接透射比、太阳能总透射比、紫外线透射比及有关窗玻璃参数的测定GB/T 11944-2002 中空玻璃GB/T 7697-1996 玻璃马赛克JGJ 113-2009建筑玻璃应用技术规程GB/T 18915-2002 镀膜玻璃JC 433-96 夹丝玻璃JC/T 511-2002 压花玻璃1.5密封材料规范:GB14683—2003* 硅酮建筑密封胶JC/T881—2001 混凝土接缝用密封胶JC/T882—2001 幕墙玻璃接缝用密封胶JC/T883—2001 石材用建筑密封胶JC/T884—2001 彩色钢板用建筑密封胶C/T885—2001 建筑用防霉密封胶JC/T486—2001 中空玻璃用弹性密封胶1.6幕墙规范:JGJ102-2003玻璃幕墙工程技术规范JGJ133-2001 金属与石材幕墙工程技术规范CECS127:2001 点支式玻璃幕墙工程技术规范GB/T 21086-2007建筑幕墙JGJ113-2009建筑玻璃应用技术规范JG138-2001 点支式玻璃幕墙支承装置JGJ/139-2001 玻璃幕墙工程质量检验标准GB/T15227-2007 建筑幕墙气密、水密、抗风压性能检测方法GB/T18091-2000 玻璃幕墙光学性能GB/T18250-2000 建筑幕墙平面内变形性能检测方法GB/T18575-2001 建筑幕墙抗震性能振动台试验方法DBJ/CT014-2001 全玻璃幕墙工程技术规程1.7紧固件规范:GB 3098.1-2000紧固件机械性能螺栓、螺钉和螺柱GB 3098.2-2000紧固件机械性能螺母粗牙螺纹GB 3098.5-2000紧固件机械性能自攻螺钉GB 3098.6-2000紧固件机械性能不锈钢螺栓、螺钉和螺柱GB 3098.15-2000紧固件机械性能不锈钢螺母2基本参数依据2.1栏杆所在地区 The balcony projects area海岛地区。
型钢悬挑脚手架(扣件式)阳台最大悬挑长度计算书计算依据:1、《建筑施工扣件式钢管脚手架安全技术规范》JGJ130-20112、《建筑施工门式钢管脚手架安全技术规范》JGJ128-20103、《建筑结构荷载规范》GB50009-20124、《钢结构设计规范》GB50017-2003架体验算架体部分同前述型钢悬挑扣件式,不再重复计算。
悬挑梁验算一、基本参数悬挑方式普通主梁悬挑主梁间距(mm) 1500主梁与建筑物连接方式平铺在楼板上锚固点设置方式U型锚固螺栓锚固螺栓直径d(mm) 18 主梁建筑物外悬挑长度L x(mm) 3000主梁外锚固点到建筑物边缘的距离a(mm)100 主梁建筑物内锚固长度L m(mm) 3800梁/楼板混凝土强度等级C25 混凝土与螺栓表面的容许粘结强度[τb](N/mm2)2.5锚固螺栓抗拉强度设计值[f t](N/mm2) 50二、荷载布置参数支撑点号支撑方式距主梁外锚固点水平距离(mm) 支撑件上下固定点的垂直距离L1(mm)支撑件上下固定点的水平距离L2(mm)是否参与计算1 上拉2850 5800 0 是作用点各排立杆传至梁上荷载标准各排立杆传至梁上荷载设计各排立杆距主梁外锚固点水主梁间距l a(mm)号值F'(kN) 值F(kN) 平距离(mm)1 8.29 10.66 2100 15002 8.29 10.66 2900 1500 附图如下:平面图立面图三、主梁验算主梁材料类型工字钢主梁合并根数n z 1主梁材料规格16号工字钢主梁截面积A(cm2) 26.1 主梁截面惯性矩I x(cm4) 1130 主梁截面抵抗矩W x(cm3) 141 主梁自重标准值g k(kN/m) 0.205 主梁材料抗弯强度设计值[f](N/mm2) 215 主梁材料抗剪强度设计值[τ](N/mm2) 125 主梁弹性模量E(N/mm2) 206000 荷载标准值:q'=g k=0.205=0.2kN/m第1排:F'1=F1'/n z=8.29/1=8.29kN第2排:F'2=F2'/n z=8.29/1=8.29kN荷载设计值:q=1.2×g k=1.2×0.205=0.25kN/m第1排:F1=F1/n z=10.66/1=10.66kN第2排:F2=F2/n z=10.66/1=10.66kN1、强度验算弯矩图(kN·m) σmax=M max/W=5.17×106/141000=36.68N/mm2≤[f]=215N/mm2 符合要求!2、抗剪验算剪力图(kN)τmax=Q max/(8I zδ)[bh02-(b-δ)h2]=7.79×1000×[88×1602-(88-6)×140.22]/(8×11300000×6)=9.2N/mm2 τmax=9.2N/mm2≤[τ]=125N/mm2符合要求!3、挠度验算变形图(mm)νmax=0.93mm≤[ν]=2×l x/250=2×3000/250=24mm符合要求!4、支座反力计算R1=-0.01kN,R2=4.54kN,R3=18.49kN四、上拉杆件验算钢丝绳型号6×19 钢丝绳公称抗拉强度(N/mm2) 1850 钢丝绳直径(mm) 18.5 钢丝绳不均匀系数α0.85 钢丝绳安全系数k 9 钢丝绳绳夹型式骑马式拴紧绳夹螺帽时螺栓上所受力T(kN) 15.19 钢丝绳绳夹数量[n] 4主梁拉环直径d(mm) 20 焊缝厚度h e(mm) 8焊缝长度l w(mm) 100 角焊缝强度设计值f tw(N/mm2) 160钢丝绳绳卡作法上拉杆件角度计算:α1=arctanL1/L2=arctan(5800/2850)=63.83°上拉杆件支座力:R S1=n z R3=1×18.49=18.49kN主梁轴向力:N SZ1=R S1/tanα1=18.49/tan63.83°=9.08kN上拉杆件轴向力:N S1=R S1/sinα1=18.49/sin63.83°=20.6kN上拉杆件的最大轴向拉力N S=max[N S1...N Si]=20.6kN钢丝绳:查(《建筑施工计算手册》江正荣著2001年7月第一版)表13-4、13-5、13-6得,钢丝绳破断拉力总和:F g=238kN[F g]=α× F g/k=0.85×238/9=22.48kN≥N S=20.6kN符合要求!绳夹数量:n=2.5[Fg]/T=2.5×22.48/15.19=4个≤[n]=4个符合要求!钢丝绳与型钢悬挑梁采用兜设方式,距离最外端不小于50。
挑梁挑梁尺寸:挑出1680mm,埋入2100mm,b*h=240*350,墙体墙厚240mm,MU10烧结多孔砖(19KN/m3),M10混合砂浆(17KN/m3)混凝土C20砼f c=9.6N/mm2f t=1.10N/mm2荷载计算①墙间荷载0.24*19+2*0.02*17=5.24KN/m2楼面恒载 2.3KN/m2楼面活载 2.5KN/m2雨篷恒载 2.8KN/m2雨篷活载0.5KN/m2楼板自重26*0.1=2.6KN/m2②楼面均布荷载标准值楼面恒载 g2k=(2.3+2.6)*(4.5/2)=11.03KN/m雨篷恒载 g1k=(2.8+2.6)*(2.6/2)=7.02KN/m雨篷活载q1k=0.5*(2.6/2)=0.65KN/m挑梁自重26*0.24*0.35=2.18KN/m挑梁端集中荷载F k=26*0.1*0.3*2.6/2=1.01KN挑梁抗倾覆验算①计算倾覆点(砌体规范7.4.2)L=1.65m>2.2h=2.2*0.35=0.77mx0=0.3h=0.3*0.35=0.11m<0.13L=0.22m因为挑梁下有构造柱,所以x01=0.5*x0=0.06m②倾覆力矩M ov=(1/2)*[1.2*(7.02+2.18)+1.4*0.65]*(1.68+0.06)2+1.2*1.01*(1.68+0.06)=20.20KN·m③抗倾覆力矩(砌体规范7.4.3)挑梁抗倾覆力矩由本层挑梁尾端上部450扩展角范围内的墙体和楼面恒载标准值产生M v=0.8∑Gr(L2-x0)=0.8*[(1/2)*(11.03+2.18)*(2.1-0.06)2+5.24*(2.9-0.35)*2.1*(2.1/2-0.06)+5.24*(2.9-0.35)*2.1*(2.1+2.1/2-0.06)-5.24*2.12*(1/2)*(2.1*2/3+2.1-0.06)]=81.78KN·mM ov<M v满足要求(砌体规范7.4.1)挑梁下砌体局部受压承载力验算①挑梁下的支承压力N LN L=2R R为倾覆荷载设计值(砌体规范4.1.5)永久荷载控制R=1.35*1.01+[1.35*(7.02+2.18)+0.7*1.4*0.65]*(1.68+0.06)=32.03KN可变荷载控制R=1.2*1.01+[1.2*(7.02+2.18)+1.4*0.65]*(1.68+0.06)=26.16KN取N L=2*32.03=64.06KN(砌体规范7.4.4)②可取η=0.7 γ=1.5 f=1.89N/mm2(砌体规范7.4.4、砌体规范3.2.1中表3.2.1-1)A L=1.2*h b*b=1.2*240*350=100800mm2η*γ*f*A L=0.7*1.5*1.89*100800=200.04KNN L=64.06KN<η*γ*f*A L=200.04KN 满足要求挑梁承载力计算M max=M ov=20.20KN·m h b0=h b-30=320mm选用C20混凝土 f c=9.60N/mm2 f t=1.10N/mm2HRB400级钢筋 f y=360N/mm2M≤α1f c bx(h0-x/2) ⇒ x≥h0-fcbMh/202- (砼规7.2.1-1)得x≥320-291.32=28.7mm 取x=50mm验算:ξb=cuEsfyεβ/11+=)36*20/(36018.0+=0.533ξb·h0=0.533*320=170.56>x=50mmα1f c bx=f y A s⇒ A s=α1f c bx/f y=1*9.6*240*50/360=320mm2(砼规7.2.1-2)选用2根18=509mm2满足要求斜截面承载力计算工程编号:2012-xxxxV max=V0=1.2*1.01+1.68*[1.2*(7.02+2.18)+1.4*0.65]=21.30KN0.25f c bh0=0.25*9.6*240*320=177KN>V max=21.30截面尺寸符合要求0.7f t bh0=0.7*1.1*240*320=59.14KN>V max=21.30按构造配筋工程编号:2012-xxxx。
阳台设计XTB-2=====================================================================1 已知条件及计算要求:(1)已知条件:1) 几何数据:b b = 250mm,h b = 400mm,L = 1000mm,b t = 300mm,h t = 100mm,H = 2.800m,h0 = 150mm,h1 = 40mm,h2 = 80mm,2) 荷载数据(标准值):b w = 370mm,g k = 1.00kN/m2,q k = 1.00kN/m2,g k1 = 3.00kN/m2,q k1 = 3.00kN/m2,P k = 1.00kN/m,G r = 100.00kN/m,3) 材料数据:混凝土强度等级:C20;f c = 9.6N/mm2。
纵筋种类:HRB400,f y = 360N/mm2,箍筋种类:HPB300,f yv = 270N/mm2。
容重和荷载分项系数:γL = 25kN/m3,γG = 1.20,γQ = 1.40。
(2)计算要求:1) 抗倾覆验算2) 板受弯承载力计算---------------------------------------------------------------------2 荷载与内力计算:(1)荷载计算:g T = γL(h1 + h2 + h2)/2 = 2.50kN/m2g S = γL h t = 2.50kN/m2q T = γQ q k + γG(g k + g T) = 5.60kN/m2P T = γQ P k + γG F k = 1.40kN/m∵l1< 2.2h b,∴x0 = 0.13l1 = 0.05mM0V = P T(L + x0) + q T(L + x0)2/2 = 4.54kN.mV0 = P T + q T L = 7.00kN(2)内力计算:M T = M0V = 4.54kN.mV T = V0 = 7.00kNM S = 1/2(γG(g S + g k1) + γQ q k1)(b t)2 = 0.49kN.mV S = (γG(g S + g k1) + γQ q k1)b t = 3.24kN---------------------------------------------------------------------3 抗倾覆验算:l1 = b w = 0.37ml2 = l1/2 = 0.19mM r = 0.8(G r(l2 - x0) + g L(b/2 - x0) + (g S + g k1)b t(b t/2 + b - x0)) = 11.57kN.m结论:M0V = 4.54kN.m ≤ M r = 11.57kN.m,满足。
悬挑式扣件钢管脚手架计算书钢管脚手架的计算参照《建筑施工扣件式钢管脚手架安全技术规范》(JGJ130-2001)。
计算的脚手架为双排脚手架,搭设高度为93.8米,立杆采用单立管。
搭设尺寸为:立杆的纵距1.50米,立杆的横距0.90米,立杆的步距1.80米。
采用的钢管类型为48×3.5,连墙件采用2步2跨,竖向间距3.60米,水平间距3.00米。
施工均布荷载为3.0kN/m2,同时施工2层,脚手板共铺设26层。
卸荷钢丝绳采取3段卸荷,吊点卸荷水平距离2倍立杆间距。
卸荷钢丝绳的换算系数为0.80,安全系数K=5.0,上吊点与下吊点距离5.8m。
悬挑水平钢梁采用[16b号槽钢U口水平,其中建筑物外悬挑段长度3.40米,建筑物内锚固段长度0.50米。
悬挑水平钢梁采用拉杆与建筑物拉结,最外面支点距离建筑物3.30m。
拉杆采用钢管100.0×10.0mm。
一、大横杆的计算:大横杆按照三跨连续梁进行强度和挠度计算,大横杆在小横杆的上面。
按照大横杆上面的脚手板和活荷载作为均布荷载计算大横杆的最大弯矩和变形。
1.均布荷载值计算大横杆的自重标准值 P1=0.038kN/m脚手板的荷载标准值 P2=0.300×0.900/3=0.090kN/m活荷载标准值 Q=3.000×0.900/3=0.900kN/m静荷载的计算值 q1=1.2×0.038+1.2×0.090=0.154kN/m活荷载的计算值 q2=1.4×0.900=1.260kN/m大横杆计算荷载组合简图(跨中最大弯矩和跨中最大挠度)大横杆计算荷载组合简图(支座最大弯矩)2.抗弯强度计算最大弯矩考虑为三跨连续梁均布荷载作用下的弯矩跨中最大弯矩计算公式如下:跨中最大弯矩为M1=(0.08×0.154+0.10×1.260)×1.5002=0.311kN.m支座最大弯矩计算公式如下:支座最大弯矩为M2=-(0.10×0.154+0.117×1.260)×1.5002=-0.366kN.m我们选择支座弯矩和跨中弯矩的最大值进行强度验算:=0.366×106/5080.0=72.119N/mm2大横杆的计算强度小于205.0N/mm2,满足要求!3.挠度计算最大挠度考虑为三跨连续梁均布荷载作用下的挠度计算公式如下:静荷载标准值q1=0.038+0.090=0.128kN/m活荷载标准值q2=0.900kN/m三跨连续梁均布荷载作用下的最大挠度V=(0.677×0.128+0.990×0.900)×1500.04/(100×2.06×105×121900.0)=1.972mm 大横杆的最大挠度小于1500.0/150与10mm,满足要求!二、小横杆的计算:小横杆按照简支梁进行强度和挠度计算,大横杆在小横杆的上面。
海口市海航豪庭项目阳台护窗栏杆计算文件一:工程概况基本参数:1:本工程为海口市海航豪庭项目阳台,阳台栏杆材质为氟碳喷涂喷涂铝合金。
护窗栏杆材质为镀锌,表面氟碳喷涂喷涂防腐。
2:计算阳台栏杆以横杆跨度:W=1154mm;立柱高度1.1米;次立杆高度0.77米为例进行计算3:计算护窗栏杆以横杆跨度:W=1234mm;立柱高度0.9米;次立杆高度0.73米为例进行计算4:护栏用途:住宅二:阳台栏杆计算1.阳台栏杆横杆计算(30x30x1.2)1>横杆截面特性横杆截面尺寸为30x30x1.2方管高度 H=30(mm)翼缘宽 Bu=30(mm)腹板外缘宽 B1=30(mm)腹板厚 Tw=1.2(mm)翼缘厚 Tu=1.2(mm)截面积 A=224.0(mm2)单重 g=1.758(kg/m)x轴惯性矩 Ix=2.9419X1e4(mm4)x轴抵抗矩 Wx=1.9612X1e3(mm3)x轴回转半径 ix=11.4601(mm)x轴半截面面积矩 Sx=1.1780X1e3(mm3)y轴惯性矩 Iy=2.9419X1e4(mm4)y轴抵抗矩 Wy=1.9612X1e3(mm3)y轴回转半径 iy=11.4601(mm)y轴半截面面积矩 Sy=1.1780X1e3(mm3)扭转惯性矩 It=5.8837X1e4(mm4)2>阳台栏杆横杆荷载计算按规范GB50189-2001第5.5.2条规定:住宅、宿舍、办公楼、旅馆、医院、托儿所、幼儿园取1.0KN/m的均布荷载;本工程中考虑q k1=1.0N/mm的均布荷载标准值。
3>护栏横杆强度计算:(1)横杆在荷载作用下的弯矩计算值:M:弯矩计算值(N·mm);q:横杆上作用的均布荷载计算值(N/mm);L:横杆跨度(mm);M=q1W2/8=1.2×q k1W2/8=1.2×1×11542/8=N·mm(2)抗弯强度校核:按简支梁抗弯强度公式,应满足:M/γW n≤f上式中:M:弯矩计算值(N·mm);Wn:在弯矩作用方向的净截面抵抗矩(mm3);γ:塑性发展系数:对于非铝合金龙骨,参照JGJ133或JGJ102规范,取1.05;对于铝合金龙骨,参照最新《铝合金结构设计规范》GB 50429-2007,取1.00;此处取:γ=1.0;f:横杆的抗弯强度计算值,取215MPa;则:M/γWn=/1.0/1962=119MPa≤215MPa横杆的抗弯强度满足要求。
阳台雨蓬挑檐计算书项目名称_____________构件编号_____________日期_____________ 设计_____________校对_____________审核_____________一、基本资料1.设计规范:《建筑结构荷载规范》(GB50009—2001)《混凝土结构设计规范》(GB50010—2002)《砌体结构设计规范》(GB50003—2001)2.设计参数:几何信息类型: 阳台梁宽b b: 250mm梁高h b: 800mm挑板宽L: 1500mm伸板宽b t: 1800mm伸板厚h t: 100mm墙厚b w: 200mm板下沉h0: 380mm板斜厚h1: 0mm板净厚h2: 120mm上翻板高h3: 380mm上翻板厚t1: 80mm上翻板厚t2: 0mm第一排纵筋至梁近边距离a s: 30mm 荷载信息板端集中活载P k: 1.50kN/m板上均布活载q k: 1.00kN/m2板上均布恒载g k: 4.00kN/m2混凝土容重γL: 2.00kN/m2恒载分项系数γG: 4.50kN/m2活载分项系数γQ: 25.00kN/m3指定梁上抗倾覆荷载G r: 1.20墙体容重γW: 1.40过梁上墙高H w: 80.00kN/m材料信息混凝土等级: C25混凝土强度设计值f c: 11.90N/mm2主筋级别: HRB400(20MnSiV、20MnSiNb、20MnTi)主筋强度设计值f y: 360N/mm2箍筋级别: HPB235(Q235)强度设计值f yv: 210N/mm2墙体材料: 砖砌体抗压强度设计值f: 1.700N/mm28038012015002508001001800二、计算过程1.荷载计算 1.1 计算x 0 x 0 = 0.13l 1, L 1 = b w x 0 = 26.00mm 1.2 倾覆荷载计算g T = γL (h 1 + 2h 22) = 25.00×(0 + 2×1202) = 3.00kN/m 2 q T = γG (g k + g T ) + γQ q k = 1.20×(4.00 + 3.00) + 1.40×1.00 = 9.800kN/m 2P T = γG g F + γQ P k = 1.20×0.76 + 1.40×1.50 = 3.01kN/m 倾覆力矩 M OV = 12q T (L + x 0)2 + P T (L + x 0)= 12×9.80×(1500 + 26.00)2/106 + 3.01×(1500 + 26.00)/103 = 16.01kN?m1.3 挑板根部的内力计算 M Tmax = M OV = 16.01kN?m V Tmax = q T L + p T = 9.80×1500/103 + 3.01 = 17.71kN/m 1.4伸板根部内力计算 g S = γL h t /103 = 25.00×100/1000 = 2.50kN/m 2 q S = γG (g k1 + g S ) + γQ q k1 = 1.20×(4.50 + 2.50) + 1.40×2.00 = 11.20kN/m 2M Smax = 12q s b t2 = 12×11.20× 2 = 18.14kN?m V Smax = q s b t = 11.20×1800 = 20.16kN2.抗倾覆验算 l 1 = b w = 200mm l 2 = 0.5l 1 = 100mm G r 产生的抗倾覆力矩 M rG = 0.8G r (L 2 - x 0) = 0.8 × 80.00 × (100 - 26.0) = 4.736kN?m 过梁自重产生的抗倾覆力矩 M rL = 0.8×g L (0.5b b - x 0) = 0.8 × 5.00 × (0.5 × 250 - 26.0) = 0.396kN?m伸板产生的抗倾覆力矩M rS = 0.8(g S + g k1)b t (0.5b t + b b - x 0) = 0.8 × (2.50 + 4.50) × 1800 × (0.5 × 1800 + 250 - 26.0) = 11.330kN?m 总的抗倾覆力矩 M r = M rG + M rL + M rS = 4.736 + 0.396 + 11.330 = 16.462kN?m> M ov = 16.007kN?m , 满足抗倾覆要求 3.挑板相关计算 3.1 挑板截面尺寸验算 h = h 1 + h 2 = 0 + 120 = 120mm h 0 = h - a s = 120 - 30 = 90mm 按混凝土结构设计规范(7.5.1)0.25βc f c bh 0 = 0.25×1.00×11.90×1000×90 = 267.8×103NV max = 17.71kN < 267.8kN, 截面尺寸满足要求3.2 挑板截面负筋计算3.2.1相对界限受压区高度ξb εcu = 0.0033 - (f cu,k - 50)×10-5 = 0.0033 - (25 - 50)×10-5 = 0.0036 > 0.0033 取 εcu = 0.0033 按混凝土结构设计规范(7.1.4-1)ξb =β11 +f yE s εcu=0.801 +3602.0×105×0.00330= 0.523.2.2 受压区高度x 按混凝土结构设计规范(7.2.1-1), A 's = 0, A 'p = 0M = α1f c bx ⎝⎛⎭⎫h 0 - x2x = h 0 -h 02 -2Mα1f c b= 90 - 902- 2×16.01×1061.00×11.90×1000= 16.45mm3.2.3 受拉钢筋截面积A s 按混凝土结构设计规范(7.2.1-2)α1f c bx = f y A s得 A s =α1f c bx f y=1.00×11.90×1000×16.45360= 544mm 2A s > A smin = ρmin A = 0.0020×120000 = 240mm 2 3.3 挑板分布钢筋计算按照最小配筋率计算最小配筋率ρmin = max(0.45f tf y,0.002) = max(0.45×1.27360,0.002) = 0.0020A sTbfb = ρmin(h1 + 2h2)L/2 = 0.0020×(0 + 2×120)×1500/2 = 360.00mm2实际挑板分布钢筋配置,取直径为10mm,间距为200mm。
阳台建筑面积计算规则阳台是很多住宅中的一个重要部分,它不仅能增加住宅的视野和采光,还可以为居民提供一个舒适的休息和交流场所。
在房屋设计和规划过程中,准确计算阳台的建筑面积是很重要的,因为这将直接影响到房屋的总体布局和功能。
1. 定义阳台阳台是指位于建筑物外部,通常与室内空间有直接联系的平台或边缘。
它通常有一定的面积,并可以供人们使用。
在计算阳台的建筑面积时,需要清楚地界定阳台与室内空间的界限。
2. 计算阳台的建筑面积计算阳台的建筑面积通常遵循以下规则:2.1 直线型阳台对于直线型阳台,可以按照以下步骤计算建筑面积:1.首先,测量阳台的长度(L)。
2.然后,测量阳台最宽处的宽度(W)。
3.计算阳台的建筑面积(A):A = L × W。
2.2 弯曲型阳台对于弯曲型阳台,由于其形状的复杂性,可以按照以下步骤计算建筑面积:1.将阳台的形状分割成若干个矩形、三角形或梯形等基本形状。
2.分别测量每个基本形状的长度和宽度。
3.计算每个基本形状的面积。
4.将所有基本形状的面积相加,得到总的建筑面积。
2.3 非矩形阳台对于非矩形阳台,可以按照以下步骤计算建筑面积:1.将阳台的形状分割成若干个矩形、三角形或梯形等基本形状。
2.分别测量每个基本形状的长度和宽度。
3.计算每个基本形状的面积。
4.将所有基本形状的面积相加,得到总的建筑面积。
2.4 从总体面积中扣除在某些情况下,阳台的建筑面积可能需要从总体面积中扣除,以实际计算可以使用的建筑面积。
例如,如果阳台的一部分被围栏或墙体覆盖,这部分面积应被扣除。
3. 其他需要考虑的因素在计算阳台的建筑面积时,还需要考虑以下因素:• 3.1 建筑法规要求:不同的地区和国家可能有不同的建筑法规要求,需要按照当地法规进行计算和申报。
• 3.2 装饰和设备:如果阳台上安装有气候控制设备、灯具或其他装饰物品,这些设备和装饰物的空间需求也需要计算在内。
• 3.3 地面高度:有些阳台是设置在地面以上的,而另一些阳台则是设置在地面以下的。
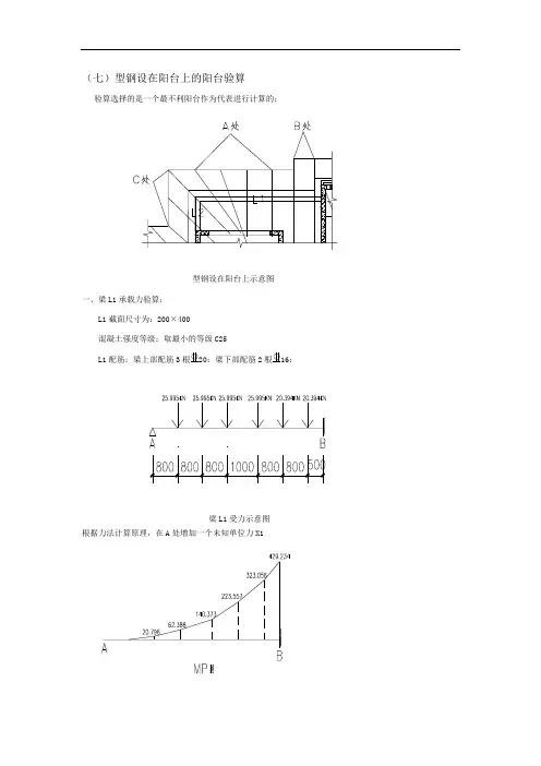
(七)型钢设在阳台上的阳台验算验算选择的是一个最不利阳台作为代表进行计算的;型钢设在阳台上示意图一、梁L1承载力验算:L1截面尺寸为:200×400混凝土强度等级:取最小的等级C25L1配筋:梁上部配筋3根20;梁下部配筋2根16;梁L1受力示意图根据力法计算原理,在A处增加一个未知单位力X1由公式01111=∆+P X δ()() ⎝⎛⨯⨯+⨯+⨯⨯+⨯+⨯⨯⨯=∆9.20.1373.140388.62210.28.0388.62796.202133.18.0796.202110121EIp()()())25.55.0234.429056.323216.48.0056.323557.223212.48.0557.223373.14021⨯⨯+⨯+⨯⨯+⨯+⨯⨯+⨯+mm 44.15912400200108.21016.29763512=÷⨯⨯⨯⨯= ()mm 335111097.212400200108.23255005500550021-⨯=÷⨯⨯⨯⨯⨯⨯⨯=δ代入公式得KN X 68.531-= (方向向上)M1和MP 图叠加,得最终弯矩图固端B 处弯矩最大m KN M •=2.100max剪力Q 图=max Vmm bf f A f A x C yS y S 68.812009.110.13604023609421=⨯⨯⨯-⨯=''-=α)′(′′)2(001S y S C a h f A xh bx f M +=αμ ()mkN m kN M ⋅⋅=-⨯⨯+⎪⎭⎫ ⎝⎛-⨯⨯⨯⨯=2.10078.11035365360402268.8136568.812009.110.1<μ满足要求!L1抗剪承载力验算:000.175.1h s A f bh f V sv yv t CS++=λ36510010121036520023.10.15.175.1⨯⨯+⨯⨯⨯+=kN kN 1.9131.142>=抗剪承载力满足要求! 二、梁L2承载力验算:L2截面尺寸为:200×400 混凝土强度等级:C25 L2配筋:梁上部配筋3根20;梁下部配筋2根16;箍筋φ8@100/200固端C 处产生的弯矩最大:m kN m kN m kN m kN M ⋅=⨯+⨯+⨯=16.1163.0275.223.1275.225.168.53max KN Q 23.98max =抗弯承载力验算:mm bf f A f A x C yS y S 68.812009.110.13604023609421=⨯⨯⨯-⨯=''-=α)()2(001'-''+-=S y S C a h f A x h bx f M αμ()mkN m kN M ⋅⋅=-⨯⨯+⎪⎭⎫ ⎝⎛-⨯⨯⨯⨯=16.11678.11035365360402268.8136568.812009.110.1<μ不满足要求! L2配筋计算:m kN a h A f M S S y ⋅=-⨯⨯='-''=76.47)35365(402360)(02μ 混凝土所受弯矩:m kN m kN m kN M M M ⋅=⋅-⋅=-=4.6876.4716.11621μμ22.0365365200/9.110.1104.68262011=⨯⨯⨯⨯⋅⨯==mmmm mm mm N mmN bh f M C S ααμ 26.0=ξ查表得mm mm h x S 7029.9426.03650=>=⨯==αξmm f f A bx f yy S C 10303603604029.942009.110.11S =⨯+⨯⨯⨯=''+=αα选用4根20,钢筋面积为12572mm ,满足要求!对于设有型钢的阳台L2上部配筋原设计为3根20,现应改为4根20,能满足要求!L1抗剪承载力验算:000.175.1h sA f bh f V sv yv t CS++=λ36510010121036520023.10.15.175.1⨯⨯+⨯⨯⨯+=kN Q kN 23.98139max =>=抗剪承载力满足要求!。
金茂紫庭1-5号楼阳台结构承载力验算计算书深圳市特辰科技有限公司二○一○年五月二十日阳台梁承载力验算该工程阳台面梁、挑梁截面均为200×450,面梁配筋为2φ14、2φ16;挑梁配筋为4φ18、2φ14。
根据升降架平面布置和阳台梁的跨度和配筋,可知5号楼中的4号机位处的阳台挑梁为最不利受力梁,其配筋为4φ18、2φ16;2号机位处的面梁为最不利受力面梁,其配筋为2φ14、2φ16。
其计算如下:一、计算依据1、建筑施工安全技术标准 JGJ59-992、钢结构设计规范 GBJ17-883、企业标准《建筑升降脚手架》Q/STC001-19994、建筑结构荷载设计规范GBJ9-875、简明钢筋混凝土房屋结构设计手册二、升降架荷载分析由我公司升降架设计计算书可知,升降架在最大布置跨度7.2m,且最大跨度7.2m×架高小于110m2时的计算荷载合计如下:取动力系数γb=1.05 冲击系数γc=1.5恒载分项系数γa=1.2 活载分项系数γq=1.41、静载: P静=1.2×(3825+4016+23655)=37795N2、活荷载:P活=1.4×7.2×0.9×3×2000=54432N3、工作时:P=γb×(P静+P活)=1.05(37795+54432)=96838 N4、升降时:P升=37795+1.4×7.2×0.9×500=42331 N(升降时,不允许人员停留在升降架上,也不允许架体上堆放杂物、垃圾和各种材料,故活荷载仅取一步架)。
从中可以分析,工作时荷载为96838N,由三个导向座(三点)共同承载,故每个导向座所受荷载约为 96838N/3=32246N,升降时由一点受力,承受荷载42331 N,故取升降荷载为最不利荷载计算:P升=42331 N(架体跨度为7.2m 时)三、阳台面梁验算根据导座式升降脚手架平面布置图可知,阳台面梁处升降架最大跨度为5.2米,本计算书取跨度为5.4米的升降架荷载来计算。
阳台悬挑型钢计算书一、依据规范:《建筑施工扣件式钢管脚手架安全技术规范》JGJ130-2011《建筑结构荷载规范》GB50009-2012《钢结构设计规范》GB50017-2003《混凝土结构设计规范》GB50010-2010由于阳台不能作为型钢锚固段,故采用双[5槽钢拉杆作为悬挑型钢的支撑点。
做法如下图示意:二、计算参数:钢管强度为205.0 N/mm2,钢管强度折减系数取1.00。
双排脚手架,搭设高度26.1米,立杆采用单立管。
立杆的纵距1.50米,立杆的横距0.90米,内排架距离结构0.30米,立杆的步距1.80米。
采用的钢管类型为φ48×3.0,连墙件采用2步2跨,竖向间距3.60米,水平间距3.00米。
施工活荷载为2.5kN/m2,同时考虑2层施工。
脚手板采用钢筋网片,荷载为0.15kN/m2,按照铺设10层计算。
栏杆采用木板,荷载为0.16kN/m,安全网荷载取0.0100kN/m2。
脚手板下大横杆在小横杆上面,且主结点间增加一根大横杆。
基本风压0.30kN/m2,高度变化系数1.7900,体型系数1.1200。
卸荷钢丝绳采取1段卸荷,吊点卸荷水平距离1倍立杆间距。
卸荷钢丝绳的换算系数为0.85,安全系数K=10.0,上吊点与下吊点距离3.2m。
悬挑水平钢梁采用16号工字钢,建筑物外悬挑段长度1.30米,建筑物内锚固段长度2.70米。
悬挑水平钢梁采用悬臂式结构,拉杆采用双[5槽钢与框架梁预埋钢板焊接拉结。
钢管惯性矩计算采用 I=π(D4-d4)/64,抵抗距计算采用 W=π(D4-d4)/32D。
三、脚手架荷载标准值作用于脚手架的荷载包括静荷载、活荷载和风荷载。
静荷载标准值包括以下内容:(1)每米立杆承受的结构自重标准值(kN/m);本例为0.1072N G1= 0.107×26.100=2.799kN(2)脚手板的自重标准值(kN/m2);本例采用钢筋网片脚手板,标准值为0.15N G2= 0.150×10×1.500×(0.900+0.300)/2=1.350kN(3)栏杆与挡脚手板自重标准值(kN/m);本例采用栏杆、木板挡板,标准值为0.16N G3= 0.160×1.500×10/2=1.200kN(4)吊挂的安全设施荷载,包括安全网(kN/m2);0.010N G4= 0.010×1.500×26.100=0.391kN经计算得到,静荷载标准值 N G = N G1+N G2+N G3+N G4 = 5.741kN。
悬挑式扣件钢管脚手架计算书钢管脚手架的计算参照《建筑施工扣件式钢管脚手架安全技术规范》(JGJ130-2001)。
计算的脚手架为双排脚手架,搭设高度为21.6米,立杆采用单立管。
搭设尺寸为:立杆的纵距1.50米,立杆的横距1.05米,立杆的步距1.80米。
采用的钢管类型为48×3.5,连墙件采用2步3跨,竖向间距3.60米,水平间距4.50米。
施工均布荷载为3.0kN/m2,同时施工2层,脚手板共铺设12层。
悬挑水平钢梁采用[12.6号槽钢,其中建筑物外悬挑段长度3.20米,建筑物内锚固段长度1.30米。
悬挑水平钢梁采用支杆与建筑物拉结,最外面支杆距离建筑物3.10m,支杆采用9号角钢b ×d×r=90×10×10mm。
一、大横杆的计算:大横杆按照三跨连续梁进行强度和挠度计算,大横杆在小横杆的上面。
按照大横杆上面的脚手板和活荷载作为均布荷载计算大横杆的最大弯矩和变形。
1.均布荷载值计算大横杆的自重标准值 P1=0.038kN/m脚手板的荷载标准值 P2=0.150×1.050/3=0.052kN/m活荷载标准值 Q=3.000×1.050/3=1.050kN/m静荷载的计算值 q1=1.2×0.038+1.2×0.052=0.109kN/m活荷载的计算值 q2=1.4×1.050=1.470kN/m大横杆计算荷载组合简图(跨中最大弯矩和跨中最大挠度)大横杆计算荷载组合简图(支座最大弯矩)2.强度计算最大弯矩考虑为三跨连续梁均布荷载作用下的弯矩跨中最大弯矩计算公式如下:跨中最大弯矩为M1=(0.08×0.109+0.10×1.470)×1.5002=0.350kN.m支座最大弯矩计算公式如下:支座最大弯矩为M2=-(0.10×0.109+0.117×1.470)×1.5002=-0.412kN.m我们选择支座弯矩和跨中弯矩的最大值进行强度验算:=0.412×106/5080.0=81.008N/mm2大横杆的计算强度小于205.0N/mm2,满足要求!3.挠度计算最大挠度考虑为三跨连续梁均布荷载作用下的挠度计算公式如下:静荷载标准值q1=0.038+0.052=0.091kN/m活荷载标准值q2=1.050kN/m三跨连续梁均布荷载作用下的最大挠度V=(0.677×0.091+0.990×1.050)×1500.04/(100×2.06×105×121900.0)=2.220mm 大横杆的最大挠度小于1500.0/150与10mm,满足要求!二、小横杆的计算:小横杆按照简支梁进行强度和挠度计算,大横杆在小横杆的上面。
用大横杆支座的最大反力计算值,在最不利荷载布置下计算小横杆的最大弯矩和变形。
1.荷载值计算大横杆的自重标准值 P1=0.038×1.500=0.058kN脚手板的荷载标准值 P2=0.150×1.050×1.500/3=0.079kN活荷载标准值 Q=3.000×1.050×1.500/3=1.575kN荷载的计算值 P=1.2×0.058+1.2×0.079+1.4×1.575=2.369kN小横杆计算简图2.强度计算最大弯矩考虑为小横杆自重均布荷载与荷载的计算值最不利分配的弯矩和均布荷载最大弯矩计算公式如下:集中荷载最大弯矩计算公式如下:M=(1.2×0.038)×1.0502/8+2.369×1.050/3=0.835kN.m=0.835×106/5080.0=164.442N/mm2小横杆的计算强度小于205.0N/mm2,满足要求!3.挠度计算最大挠度考虑为小横杆自重均布荷载与荷载的计算值最不利分配的挠度和均布荷载最大挠度计算公式如下:集中荷载最大挠度计算公式如下:小横杆自重均布荷载引起的最大挠度V1=5.0×0.038×1050.004/(384×2.060×105×121900.000)=0.02mm集中荷载标准值P=0.058+0.079+1.575=1.711kN集中荷载标准值最不利分配引起的最大挠度V2=1711.350×1050.0×(3×1050.02-4×1050.02/9)/(72×2.06×105×121900.0)=2.800mm最大挠度和V=V1+V2=2.824mm小横杆的最大挠度小于1050.0/150与10mm,满足要求!三、扣件抗滑力的计算:纵向或横向水平杆与立杆连接时,扣件的抗滑承载力按照下式计算(规范5.2.5):R ≤ R c其中 R c——扣件抗滑承载力设计值,取8.0kN;R ——纵向或横向水平杆传给立杆的竖向作用力设计值;1.荷载值计算横杆的自重标准值 P1=0.038×1.050=0.058kN脚手板的荷载标准值 P2=0.150×1.050×1.500/2=0.118kN活荷载标准值 Q=3.000×1.050×1.500/2=2.362kN荷载的计算值 R=1.2×0.058+1.2×0.118+1.4×2.362=3.518kN单扣件抗滑承载力的设计计算满足要求!当直角扣件的拧紧力矩达40--65N.m时,试验表明:单扣件在12kN的荷载下会滑动,其抗滑承载力可取8.0kN;双扣件在20kN的荷载下会滑动,其抗滑承载力可取12.0kN;四、脚手架荷载标准值:作用于脚手架的荷载包括静荷载、活荷载和风荷载。
静荷载标准值包括以下内容:(1)每米立杆承受的结构自重标准值(kN/m);本例为0.1248N G1 = 0.125×21.600=2.696kN(2)脚手板的自重标准值(kN/m2);本例采用竹笆片脚手板,标准值为0.15N G2 = 0.150×12×1.500×(1.050+2.100)/2=4.252kN(3)栏杆与挡脚手板自重标准值(kN/m);本例采用栏杆、竹笆片脚手板挡板,标准值为0.15 N G3 = 0.150×1.500×12/2=1.350kN(4)吊挂的安全设施荷载,包括安全网(kN/m2);0.010N G4 = 0.010×1.500×21.600=0.324kN经计算得到,静荷载标准值 N G = N G1+N G2+N G3+N G4 = 8.622kN。
活荷载为施工荷载标准值产生的轴向力总和,内、外立杆按一纵距内施工荷载总和的1/2取值。
经计算得到,活荷载标准值 N Q = 3.000×2×1.500×1.050/2=4.725kN风荷载标准值应按照以下公式计算其中 W0——基本风压(kN/m2),按照《建筑结构荷载规范》(GBJ9)的规定采用:W0= 0.550 U z——风荷载高度变化系数,按照《建筑结构荷载规范》(GBJ9)的规定采用:U z= 1.000 U s——风荷载体型系数:U s = 1.200经计算得到,风荷载标准值W k = 0.7×0.550×1.000×1.200 = 0.462kN/m2。
考虑风荷载时,立杆的轴向压力设计值计算公式N = 1.2N G + 0.85×1.4N Q风荷载设计值产生的立杆段弯矩 M W计算公式M W = 0.85×1.4W k l a h2/10其中 W k——风荷载基本风压值(kN/m2);l a——立杆的纵距 (m);h ——立杆的步距 (m)。
五、立杆的稳定性计算:不考虑风荷载时,立杆的稳定性计算公式其中 N ——立杆的轴心压力设计值,N=16.96kN;——轴心受压立杆的稳定系数,由长细比 l0/i 的结果查表得到0.19;i ——计算立杆的截面回转半径,i=1.58cm;l0——计算长度 (m),由公式 l0 = kuh 确定,l0=3.12m;k ——计算长度附加系数,取1.155;u ——计算长度系数,由脚手架的高度确定,u=1.50;A ——立杆净截面面积,A=4.89cm2;W ——立杆净截面模量(抵抗矩),W=5.08cm3;——钢管立杆受压强度计算值 (N/mm2);经计算得到 = 186.71[f] ——钢管立杆抗压强度设计值,[f] = 205.00N/mm2;不考虑风荷载时,立杆的稳定性计算 < [f],满足要求!考虑风荷载时,立杆的稳定性计算公式其中 N ——立杆的轴心压力设计值,N=15.97kN;——轴心受压立杆的稳定系数,由长细比 l0/i 的结果查表得到0.19;i ——计算立杆的截面回转半径,i=1.58cm;l0——计算长度 (m),由公式 l0 = kuh 确定,l0=3.12m;k ——计算长度附加系数,取1.155;u ——计算长度系数,由脚手架的高度确定;u = 1.50A ——立杆净截面面积,A=4.89cm2;W ——立杆净截面模量(抵抗矩),W=5.08cm3;M W——计算立杆段由风荷载设计值产生的弯矩,M W = 0.267kN.m;——钢管立杆受压强度计算值 (N/mm2);经计算得到 = 228.38[f] ——钢管立杆抗压强度设计值,[f] = 205.00N/mm2;考虑风荷载时,立杆的稳定性计算 > [f],不满足要求!六、连墙件的计算:连墙件的轴向力计算值应按照下式计算:N l = N lw + N o其中 N lw——风荷载产生的连墙件轴向力设计值(kN),应按照下式计算:N lw = 1.4 × w k× A ww k——风荷载基本风压值,w k = 0.462kN/m2;A w——每个连墙件的覆盖面积内脚手架外侧的迎风面积,A w = 3.60×4.50 =16.200m2;N o——连墙件约束脚手架平面外变形所产生的轴向力(kN);N o = 5.000经计算得到 N lw = 10.478kN,连墙件轴向力计算值 N l = 15.478kN连墙件轴向力设计值 N f = A[f]其中——轴心受压立杆的稳定系数,由长细比 l/i=210.00/1.58的结果查表得到=0.39;A = 4.89cm2;[f] = 205.00N/mm2。