横坡计算
- 格式:xls
- 大小:12.00 KB
- 文档页数:2
坡度怎么算1. 什么是坡度?在物理学中,坡度是描述地面或道路的倾斜程度的量度。
它可以帮助我们了解地表的变化或者确定斜面的陡峭程度。
坡度通常用百分比或度量单位来表示。
2. 如何计算坡度?2.1. 百分比坡度百分比坡度是以百分数的形式来表示的,计算公式如下:百分比坡度 = (高差 / 水平距离) * 100其中,高差为垂直方向上的高度差,水平距离为两点之间的水平距离。
2.2. 度数坡度度数坡度是以角度的形式来表示的,计算公式如下:度数坡度 = arctan(高差 / 水平距离)在计算度数坡度时,需要使用反三角函数(arctan)来求解。
2.3. 走向和横坡除了坡度的计算,我们还可以根据坡度的方向和位置来描述坡度的特性。
•走向:走向是指斜坡的方向,可以分为正走向(向上)和负走向(向下)。
•横坡:横坡是指斜坡相对于横向的倾斜程度。
走向和横坡可以通过实际测量来确定,也可以通过数学计算来推导。
3. 坡度的应用领域坡度的概念在许多领域中都有着广泛的应用,以下是一些常见的领域:3.1. 土木工程在土木工程中,坡度是十分重要的参数。
它可以帮助工程师确定合适的斜坡设计和地形地貌的改变。
通过合理计算坡度,可以确保道路和铁路的安全性,并减少自然灾害的风险。
3.2. 地质学在地质学领域,通过测量山坡和地表的坡度可以研究地质变化和地层运动。
坡度可以揭示地震活动、滑坡和崩塌等自然灾害的可能性。
3.3. 城市规划在城市规划中,坡度可以帮助规划师确定建筑物的位置和道路的设计。
坡度可以影响城市的排水系统和交通运输。
3.4. 农业在农业领域,坡度可以作为农田规划的参考。
合理的坡度可以改善土壤排水和水分利用效率,从而提高农作物的生长和产量。
4. 总结坡度是描述地表倾斜程度的重要参数,它可以通过百分比或度数来表示。
在计算坡度时,需要考虑高差和水平距离的关系。
除了计算坡度,还可以根据所在位置和方向来描述坡度的特性。
坡度在土木工程、地质学、城市规划和农业等领域都具有重要的应用价值。
高速公路的一些线路坐标、高程计算公式(缓和曲线、竖曲线、圆曲线、匝道) 一、缓和曲线上的点坐标计算已知:①缓和曲线上任一点离ZH点的长度:l②圆曲线的半径:R③缓和曲线的长度:l0④转向角系数:K(1或-1)⑤过ZH点的切线方位角:α⑥点ZH的坐标:xZ,yZ计算过程:说明:当曲线为左转向时,K=1,为右转向时,K=-1,公式中n的取值如下:当计算第二缓和曲线上的点坐标时,则:l为到点HZ的长度α为过点HZ的切线方位角再加上180°K值与计算第一缓和曲线时相反xZ,yZ为点HZ的坐标切线角计算公式:二、圆曲线上的点坐标计算已知:①圆曲线上任一点离ZH点的长度:l②圆曲线的半径:R③缓和曲线的长度:l0④转向角系数:K(1或-1)⑤过ZH点的切线方位角:α⑥点ZH的坐标:xZ,yZ计算过程:说明:当曲线为左转向时,K=1,为右转向时,K=-1,公式中n的取值如下:当只知道HZ点的坐标时,则:l为到点HZ的长度α为过点HZ的切线方位角再加上180°K值与知道ZH点坐标时相反xZ,yZ为点HZ的坐标三、曲线要素计算公式公式中各符号说明:l——任意点到起点的曲线长度(或缓曲上任意点到缓曲起点的长度)l1——第一缓和曲线长度l2——第二缓和曲线长度l0——对应的缓和曲线长度R——圆曲线半径R1——曲线起点处的半径R2——曲线终点处的半径P1——曲线起点处的曲率P2——曲线终点处的曲率α——曲线转角值四、竖曲线上高程计算已知:①第一坡度:i1(上坡为“+”,下坡为“-”)②第二坡度:i2(上坡为“+”,下坡为“-”)③变坡点桩号:SZ④变坡点高程:HZ⑤竖曲线的切线长度:T⑥待求点桩号:S计算过程:五、超高缓和过渡段的横坡计算已知:如图,第一横坡:i1第二横坡:i2过渡段长度:L待求处离第二横坡点(过渡段终点)的距离:x 求:待求处的横坡:i解:d=x/Li=(i2-i1)(1-3d2+2d3)+i1六、匝道坐标计算已知:①待求点桩号:K②曲线起点桩号:K0③曲线终点桩号:K1④曲线起点坐标:x0,y0⑤曲线起点切线方位角:α0⑥曲线起点处曲率:P0(左转为“-”,右转为“+”)⑦曲线终点处曲率:P1(左转为“-”,右转为“+”)求:①线路匝道上点的坐标:x,y②待求点的切线方位角:αT计算过程:。
横坡长度计算公式横坡长度是指道路或铁路在横向上的坡度长度,是指路面在横向上的倾斜长度。
在道路或铁路设计中,横坡长度的计算是非常重要的,它直接影响到道路或铁路的安全性和舒适性。
因此,掌握横坡长度的计算公式是非常必要的。
横坡长度的计算公式为:L = (V^2) / (2g)。
其中,L为横坡长度,V为车辆速度,g为重力加速度。
这个公式的推导过程如下:假设车辆在横坡上行驶,横坡的坡度为θ,车辆的速度为V,重力加速度为g。
在横坡上,车辆受到重力的作用,同时还受到横向的向心力的作用。
当车辆行驶到横坡的顶点时,横向的向心力达到最大值,此时车辆容易失控。
因此,需要计算出车辆在横坡上行驶的安全速度。
根据牛顿第二定律,横向的向心力可以表示为:Fc = m V^2 / R。
其中,Fc为向心力,m为车辆的质量,V为车辆的速度,R为曲率半径。
在横坡上,曲率半径可以表示为:R = L / sinθ。
将曲率半径代入横向的向心力公式中,可以得到:Fc = m V^2 / (L / sinθ)。
将向心力与重力相等,可以得到:m V^2 / (L / sinθ) = m g。
化简可得:V^2 = (g L) / sinθ。
将V^2代入横坡长度的公式中,可以得到:L = (V^2) / (2g) = (g L) / (2g sinθ)。
化简可得:L = L / (2 sinθ)。
通过这个公式,可以得到横坡长度与坡度的关系。
可以看出,横坡长度与坡度成反比关系,坡度越大,横坡长度越小,车辆在横坡上行驶的安全速度也越小。
在实际的道路或铁路设计中,需要根据车辆的行驶速度和横坡的坡度来计算横坡长度,以保证车辆在横坡上行驶的安全性。
同时,还需要考虑到道路或铁路的设计标准和实际使用情况,综合考虑各种因素来确定最终的横坡长度。
除了横坡长度的计算公式,还需要考虑到横坡长度对道路或铁路的影响。
横坡长度过长会增加车辆在横坡上行驶的难度,降低行驶的舒适性,同时还会增加车辆的燃油消耗。
高速公路的一些线路坐标、高程计算公式(缓和曲线、竖曲线、圆曲线、匝道)一、缓和曲线上的点坐标计算已知:①缓和曲线上任一点离ZH点的长度:l②圆曲线的半径:R③缓和曲线的长度:l0④转向角系数:K(1或-1)⑤过ZH点的切线方位角:α⑥点ZH的坐标:xZ,yZ计算过程:说明:当曲线为左转向时,K=1,为右转向时,K=-1,公式中n的取值如下:当计算第二缓和曲线上的点坐标时,则:l为到点HZ的长度α为过点HZ的切线方位角再加上180°K值与计算第一缓和曲线时相反xZ,yZ为点HZ的坐标切线角计算公式:二、圆曲线上的点坐标计算已知:①圆曲线上任一点离ZH点的长度:l②圆曲线的半径:R③缓和曲线的长度:l0④转向角系数:K(1或-1)⑤过ZH点的切线方位角:α⑥点ZH的坐标:xZ,yZ计算过程:说明:当曲线为左转向时,K=1,为右转向时,K=-1,公式中n的取值如下:当只知道HZ点的坐标时,则:l为到点HZ的长度α为过点HZ的切线方位角再加上180°K值与知道ZH点坐标时相反xZ,yZ为点HZ的坐标三、曲线要素计算公式公式中各符号说明:l——任意点到起点的曲线长度(或缓曲上任意点到缓曲起点的长度)l1——第一缓和曲线长度l2——第二缓和曲线长度l0——对应的缓和曲线长度R——圆曲线半径R1——曲线起点处的半径R2——曲线终点处的半径P1——曲线起点处的曲率P2——曲线终点处的曲率α——曲线转角值四、竖曲线上高程计算已知:①第一坡度:i1(上坡为“+”,下坡为“-”)②第二坡度:i2(上坡为“+”,下坡为“-”)③变坡点桩号:SZ④变坡点高程:HZ⑤竖曲线的切线长度:T⑥待求点桩号:S计算过程:五、超高缓和过渡段的横坡计算已知:如图,第一横坡:i1第二横坡:i2过渡段长度:L待求处离第二横坡点(过渡段终点)的距离:x 求:待求处的横坡:i解:d=x/Li=(i2-i1)(1-3d2+2d3)+i1六、匝道坐标计算已知:①待求点桩号:K②曲线起点桩号:K0③曲线终点桩号:K1④曲线起点坐标:x0,y0⑤曲线起点切线方位角:α0⑥曲线起点处曲率:P0(左转为“-”,右转为“+”)⑦曲线终点处曲率:P1(左转为“-”,右转为“+”)求:①线路匝道上点的坐标:x,y②待求点的切线方位角:αT计算过程:注:sgn(x)函数是取符号函数,当x<0时sgn(x)=-1,当x>0时sgn(x)=1,当x=0时sgn(x)=0。
横坡计算公式
横坡度计算公式:横坡度=2(中桩高程-边桩高程)/的路面实测宽度*100%,其中:中桩高程是指在线路施工测量中,作为定测的中桩的高程。
边桩高程=中桩标高±横坡×半幅道路宽度。
横坡一般有这样几个数据:坡长、水平长度、坡度、高差.它们之间的关系为:高差=坡度×水平长度一般坡度不大的时候,坡长≈水平长度,工程上可以用近似值,即:高差=坡度×坡长。
道路横坡坡率就是横坡度。
计算公式:(中心点标高-边线点标高)/(中心点到边线点的距离)。
路基的主要作用是为轨道或者路面铺设及列车或行车运营提供必要条件,并承受轨道及机车车辆或者路面及交通荷载的静荷载和动荷载,同时将荷载向地基深处传递与扩散。
横坡度是路基(路面)横断方向的坡度,一般的为2%,是为了便于排水,特别是在纵向坡度较小时就显得尤其重要了在弯道上,为了抵消离心力,需要设超高,即内弯低,外弯高。
纵坡度是路基(路面)纵向的坡度,也即平常我们所说的路线的坡度,坡度不宜太小(不利于排水),不宜过陡(不利于
行车及安全),同时对其坡长还有一定的限制。
工程测量横坡计算公式在道路、铁路、桥梁等工程施工中,横坡是一个非常重要的参数。
横坡的大小直接影响着车辆、列车等交通工具的行驶安全和舒适度。
因此,在工程测量中,对横坡的计算是必不可少的一项工作。
本文将介绍工程测量中常用的横坡计算公式及其应用。
一、横坡的定义。
横坡是指道路、铁路等线性工程在横向上的坡度。
它是指路面或铁轨中心线在横向上的倾斜度。
横坡通常用百分比或度数来表示,正值表示向右倾斜,负值表示向左倾斜。
横坡的大小直接影响着车辆、列车等交通工具的行驶安全和舒适度。
二、横坡的计算公式。
1. 百分比横坡计算公式。
百分比横坡是指横坡的坡度以百分比表示,通常用于道路工程中。
其计算公式为:百分比横坡(%)=(横向高差 / 横向距离)×100%。
其中,横向高差是指两个测点在横向上的高度差,横向距离是指两个测点在横向上的距离。
2. 度数横坡计算公式。
度数横坡是指横坡的坡度以度数表示,通常用于铁路工程中。
其计算公式为:度数横坡(°)=arctan(横向高差 / 横向距离)。
其中,arctan表示反正切函数,横向高差和横向距离同样是指两个测点在横向上的高度差和距离。
三、横坡计算的应用。
1. 道路工程中的横坡计算。
在道路工程中,横坡的计算对于道路的设计和施工非常重要。
合理的横坡设计可以提高道路的安全性和行驶舒适度。
通过横坡计算,可以确定道路的横坡坡度,从而指导道路的设计和施工。
2. 铁路工程中的横坡计算。
在铁路工程中,横坡的计算同样非常重要。
铁路的横坡设计直接关系着列车的行驶安全和舒适度。
通过横坡计算,可以确定铁路的横坡坡度,从而指导铁路的设计和施工。
四、横坡计算的注意事项。
1. 测量精度。
在进行横坡计算时,需要保证测量的精度。
横向高差和横向距离的测量精度直接影响着横坡计算的准确性。
因此,在测量过程中,需要使用精准的测量工具,并严格按照测量标准进行测量。
2. 地形影响。
在实际测量中,地形的不规则性会对横坡计算造成影响。
道路的横坡和纵坡计算公式道路的横坡和纵坡是道路设计和施工中非常重要的参数,它们直接影响着道路的安全性和舒适性。
横坡是指道路横向的坡度,纵坡是指道路纵向的坡度。
在道路设计和施工中,需要对道路的横坡和纵坡进行精确的计算,以确保道路的安全和舒适性。
横坡计算公式。
道路的横坡通常用百分比或度数来表示,它是指道路横向的坡度。
在道路设计中,横坡的计算是非常重要的,它直接影响着道路的排水和车辆行驶的舒适性。
横坡的计算公式如下:横坡(%) = (横向高差 / 道路宽度) × 100。
其中,横向高差是指道路两侧的高度差,道路宽度是指道路的横向宽度。
通过这个公式可以计算出道路的横坡百分比,从而确定道路的横向坡度。
纵坡计算公式。
道路的纵坡是指道路纵向的坡度,它直接影响着道路的爬坡能力和车辆行驶的舒适性。
在道路设计中,纵坡的计算是非常重要的,它需要根据道路的设计要求和地形条件来确定。
纵坡的计算公式如下:纵坡(%) = (纵向高差 / 道路长度) × 100。
其中,纵向高差是指道路两点之间的高度差,道路长度是指两点之间的距离。
通过这个公式可以计算出道路的纵坡百分比,从而确定道路的纵向坡度。
应用。
横坡和纵坡的计算在道路设计和施工中有着广泛的应用。
在道路设计中,需要根据道路的使用要求和地形条件来确定道路的横坡和纵坡。
通过精确的计算,可以确保道路的安全性和舒适性,提高道路的使用效率和寿命。
在道路施工中,横坡和纵坡的计算也是非常重要的。
施工人员需要根据设计要求和地形条件来进行道路的平整和坡度调整,以确保道路的质量和使用性能。
总结。
道路的横坡和纵坡是道路设计和施工中非常重要的参数,它们直接影响着道路的安全性和舒适性。
通过精确的计算,可以确保道路的安全性和舒适性,提高道路的使用效率和寿命。
因此,在道路设计和施工中,需要对道路的横坡和纵坡进行精确的计算,以确保道路的安全和舒适性。
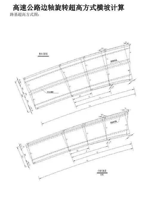
高速公路边轴旋转超高方式横坡计算路基超高方式图:说明∶1.路基超高采用边轴旋转,整体式路基旋转轴为中央分隔带边缘线;分离式路基为行车道前进方向左侧路基边缘内侧1.0米处。
2.行车道和硬路肩超高,土路肩不超高。
3.图中所示符号∶Ls--缓和曲线长,Lc--超高过渡段长;X0--与路拱同坡的单向超高点至超高过渡段起点的距离,I1--路拱横坡度;X--过渡段上任意点至超高过渡段起点的距离,I0--路肩横坡度;Ib--弯道超高横坡度,hc--路基外缘最大抬高值,h″c--路基内缘最大降低值;h″cx--x点路基内缘降低值,hcx--x点路基外缘抬高值.4.超高方式:圆曲线为全超高路段,超高过渡段长度(LC)从缓圆点(HY)往直缓点(ZH)或从圆缓点(YH)往缓直点(HZ)点计算。
先按超高渐变率p=1/330算出超高过渡段长度Lc,若Lc<Ls,则超高渐变率p=1/330。
若算出的Lc>Ls,则取Lc=Ls,超高过渡段长度等于缓和曲线长度。
5.图中尺寸均以厘米为单位,适用于设计时速V=80Km/h。
备注:正常路拱横坡(即直线段)为-2%;横坡计算按硬路肩比路缘带低为负。
一、整体式路基:图上为一左转直线到圆曲线的超高方式图。
半径为800m,缓和曲线长250m。
读图可得:R=800m,所以Ib弯道超高横坡度=4%;左转曲线,则黑线表示右幅,红线表示左幅;红点为直缓点;黑点为右幅超高起点;黄点为左幅超高起点;蓝点为缓圆点。
R=800,那么Lc=205<Ls=250.则:红点与黑点距离为:Ls-Lc=45m;黄点到蓝点距离为TX:(lb-|i左|)/(lb+|i右|)*Lc=(4-2)/(4+2)*205=68.333m; 黑点到黄点距离(与路拱同坡的单向超高点至超高过渡段起点):X0=Lc-68.333=136.667m 。
由此可得:1.直线段左右幅横坡都为-2%;2.圆曲线上分2种情况:曲线左转则:左幅横坡为-lb;右幅横坡为lb;曲线右转则:左幅横坡为lb;右幅横坡为-lb;3缓和曲线分为4种情况设桩号K:曲线左转:第一缓和曲线上则:左幅横坡= -2% -(K - (HY - TX)) / TX * (lb - 2%)右幅横坡= -2% +(K - (HY - Lc)) / lc * (lb + 2%)第二缓和曲线上则:左幅横坡= -lb + (K - YH) / TX * (lb - 2%)右幅横坡= lb - (K - YH) / lc * (lb + 2%)曲线右转:第一缓和曲线上则:左幅横坡= -2% +(K - (HY - Lc)) / Lc * (lb +2%)右幅横坡= -2% -(K - (HY - TX)) / TX * (lb -2%)第二缓和曲线上则:左幅横坡= lb - (K - YH) / Lc * (lb + 2%)右幅横坡=-lb + (K - YH) / TX * (lb - 2%)将缓和曲线公式汇总:设转向ZX,左转为-1,右转为1;设路幅A,左幅为-1,右幅为1;设与路拱同坡的过渡长TX,左转左幅或右转右幅Lc=TX,,即当ZX*A=1时,Lc=TX;公式为:第一缓和曲线:HP = -2% - ZX * A * (K - (HY - lc)) / lc * (lb - A * ZX * lz)第二缓和曲线:HP = -ZX * A * lb + ZX * A * (K - YH) / lc * (lb - ZX * A * lz)附:整体式路基excel VBA公式宏。
高速公路的一些线路坐标、高程计算公式(缓和曲线、竖曲线、圆曲线、匝道)一、缓和曲线上的点坐标计算已知:①缓和曲线上任一点离ZH点的长度:l②圆曲线的半径:R③缓和曲线的长度:l0④转向角系数:K(1或-1)⑤过ZH点的切线方位角:α⑥点ZH的坐标:xZ,yZ计算过程:说明:当曲线为左转向时,K=1,为右转向时,K=-1,公式中n的取值如下:当计算第二缓和曲线上的点坐标时,则:l为到点HZ的长度α为过点HZ的切线方位角再加上180°K值与计算第一缓和曲线时相反xZ,yZ为点HZ的坐标切线角计算公式:二、圆曲线上的点坐标计算已知:①圆曲线上任一点离ZH点的长度:l②圆曲线的半径:R③缓和曲线的长度:l0④转向角系数:K(1或-1)⑤过ZH点的切线方位角:α⑥点ZH的坐标:xZ,yZ计算过程:说明:当曲线为左转向时,K=1,为右转向时,K=-1,公式中n的取值如下:当只知道HZ点的坐标时,则:l为到点HZ的长度α为过点HZ的切线方位角再加上180°K值与知道ZH点坐标时相反xZ,yZ为点HZ的坐标三、曲线要素计算公式公式中各符号说明:l——任意点到起点的曲线长度(或缓曲上任意点到缓曲起点的长度)l1——第一缓和曲线长度l2——第二缓和曲线长度l0——对应的缓和曲线长度R——圆曲线半径R1——曲线起点处的半径R2——曲线终点处的半径P1——曲线起点处的曲率P2——曲线终点处的曲率α——曲线转角值四、竖曲线上高程计算已知:①第一坡度:i1(上坡为“+”,下坡为“-”)②第二坡度:i2(上坡为“+”,下坡为“-”)③变坡点桩号:SZ④变坡点高程:HZ⑤竖曲线的切线长度:T⑥待求点桩号:S计算过程:五、超高缓和过渡段的横坡计算已知:如图,第一横坡:i1第二横坡:i2过渡段长度:L待求处离第二横坡点(过渡段终点)的距离:x 求:待求处的横坡:i解:d=x/Li=(i2-i1)(1-3d2+2d3)+i1六、匝道坐标计算已知:①待求点桩号:K②曲线起点桩号:K0③曲线终点桩号:K1④曲线起点坐标:x0,y0⑤曲线起点切线方位角:α0⑥曲线起点处曲率:P0(左转为“-”,右转为“+”)⑦曲线终点处曲率:P1(左转为“-”,右转为“+”)求:①线路匝道上点的坐标:x,y②待求点的切线方位角:αT计算过程:注:sgn(x)函数是取符号函数,当x<0时sgn(x)=-1,当x>0时sgn(x)=1,当x=0时sgn(x)=0。
横坡计算公式范文横坡是道路上的一种特殊情况,指的是道路中横向的坡度。
横坡的计算对于道路工程和交通规划具有重要意义,可以影响到道路的安全性和通行能力。
本文将介绍横坡的计算公式及其应用。
横坡的计算公式根据实际情况可以分为两种情况:直线横坡和曲线横坡。
1.直线横坡计算公式直线横坡是指道路沿着直线方向呈现的横向坡度。
在计算直线横坡时,需要根据横坡的高度差和横向距离来计算横坡的百分比坡度。
公式如下:横坡百分比坡度=(横坡高度差/横坡横向距离)×100其中,横坡高度差是指横向距离两个点之间的高度差,横坡横向距离是指两个点之间的水平距离。
计算结果是一个百分比值,表示横坡的坡度。
2.曲线横坡计算公式曲线横坡是指道路沿着曲线方向呈现的横向坡度。
在计算曲线横坡时,需要考虑曲线的半径、曲线长度和纵向坡度。
公式如下:横坡百分比坡度=纵向坡度×曲线长度/(2×π×曲线半径)其中,纵向坡度是指曲线起点和终点之间的高度差,曲线长度是指曲线起点和终点之间的曲线长度,曲线半径是指曲线的半径。
计算结果也是一个百分比值,表示曲线横坡的坡度。
横坡的计算对于道路工程和交通规划具有重要意义。
首先,横坡的计算可以帮助工程师评估道路的通行能力和安全性。
如果横坡的百分比坡度过高,可能会增加车辆在上下坡时的制动距离,影响到道路的安全性。
其次,横坡的计算还可以帮助工程师选择合适的道路设计参数。
根据道路设计标准,不同道路等级和用途的道路有不同的横坡要求。
根据工程实际情况,可以通过横坡计算公式来确定合适的坡度范围,以满足交通需求和工程经济性的要求。
总之,横坡的计算公式可以帮助工程师评估道路的通行能力和安全性,选择合适的道路设计参数。
在道路工程和交通规划中,横坡的计算具有重要意义。
高侧k923+849.781k923+969.781120.00 -2.0004.000k923+780.000k923+840.000k923+850.000-1.99-1.99k923+860.000-1.49-1.49k923+870.000-0.99-0.99k923+880.000-0.49-0.49k923+890.0000.010.01k923+900.0000.510.51k923+910.000 1.01 1.01k923+920.000 1.51 1.51k923+929.781 2.00 2.00k923+930.000 2.01 2.01k923+940.000 2.51 2.51k923+950.000 3.01 3.01k923+960.000 3.51 3.51H Y点k923+969.781 4.00 4.00高侧k924+183.645大桩号段k924+063.645-120.00 4.00 HZ点 4.000YH点-2.000起点横坡k924+080.000 3.18 3.18渐变终点横坡k924+090.000 2.68 2.68k924+100.000 2.18 2.18所求点:k924+103.645 2.00 2.00k924+110.000 1.68 1.68k924+120.000 1.18 1.18k924+130.0000.680.68k924+140.0000.180.18k924+150.000-0.32-0.32k924+160.000-0.82-0.82 k924+170.000-1.32-1.32 k924+180.000-1.82-1.82 k924+183.645-2.00低侧k923+849.781-2 k923+969.781临界面长度Q=2*2/6*12 0=80k923+780.000k923+840.000-2.00k923+850.000-2.00k923+860.000-2.00公式(一):I=Abs(B-A) ×(E+D)/C-Ek923+870.000-2.00公式(二):I=Abs(B-A)×2E/Q-E ① (计算ZH或HZ至Q之k923+880.000-2.00 I=(Abs(B-A)-Q)(D-E)/(C-Q)+E ②k923+890.000-2.00I———缓和曲线内任一横断面超高横坡度(I的正负,抬高边为k923+900.000-2.00B———缓和曲线超高段内任一点里程桩号;k923+910.000-2.00A———缓和曲线起点直缓(ZH)或终点缓直(HZ)的里程桩k923+920.000-2.00E———直线段路拱横坡度,输入时不考虑符号取正值;k923+929.781C———缓和曲线长度(M) ;k923+930.000-2.01D———全超高段设定的最大超高横坡度,取正值;k923+940.000-2.51Abs———绝对值符号;k923+950.000-3.01k923+960.000-3.51k923+969.781-4.00低侧k924+183.645k924+063.645-4.00k924+080.000-3.18k924+090.000-2.68k924+100.000-2.18k924+103.645-2.00k924+110.000-2.00k924+120.000-2.00k924+130.000-2.00k924+140.000-2.00k924+150.000-2.00k924+160.000-2.00 k924+170.000-2.00 k924+180.000-2.00 k924+183.645-2.002① (计算ZH或HZ至Q之间缓和曲线上任一点超高横坡度E)/(C-Q)+E ②横坡度(I的正负,抬高边为正,降低边为负);终点缓直(HZ)的里程桩号;不考虑符号取正值;坡度,取正值;。