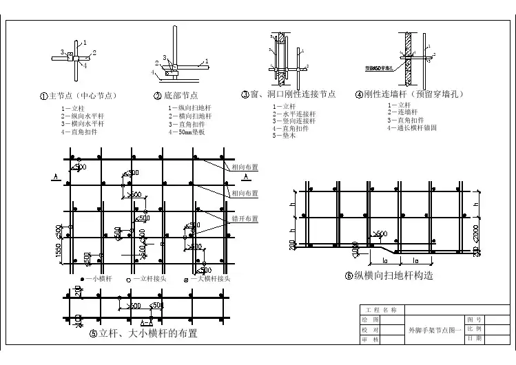
脚手架节点大样图例
- 格式:docx
- 大小:1.68 MB
- 文档页数:10
脚手架搭设大样图例洞口两侧均应设置为双立杆洞口两侧均设置人字型斜撑洞口两侧均应设置横向斜撑(右图)开口脚手架 必须每层楼 且不超 4m 高设连墙件开口脚手架必须每层楼 且不超 4m 高设连墙件开口脚手架 必须设置横 向斜撑开口脚手架 必须设置横 向斜撑开口脚手架两端设置横向斜撑、层层设置连墙件示意图 (卸料平台、升降机处以及错层处等可参照此节点进行加强)18cm高挡脚板脚手架防护通道转角示意图(内转角应有立杆,此图内转角立杆因遮挡未见;图中底部立杆为双立杆)栏杆上皮高度 1.2m腰杆高度0.5~0.6m18cm高挡脚板斜道(楼梯)临边防护内侧锁死连墙件应连接至外节点连墙件设置在主节点或不超过主节点30cm以内外侧锁死连墙件节点高处扫地杆 应向低处延 长两跨高处立杆距 坎边距离应 大于 0.5m高差应小 于 1.0m坎边脚手架地面高差节点(地面只允许纵向 1.0m 以内高差。
内外排架体之间 的地面, 架体横向不得有高差)从端部、转 角开始设 置剪刀撑剪刀撑应 设置到底架体高度在 24m 以下时剪刀撑设置图(必须从端部、转角开始设置剪刀撑,剪刀撑应设置至底层地面;高度超过 24m 的脚手架,应连续设置剪刀撑)脚手板离墙面距离不得大于 15cm 安全网挡脚板附柱杆连墙件风荷载计算单元面积连墙件应从第一步开始设置(即第一个主节点处)柱子横杆端头离墙面距离不得大于 10cma.双排脚手架连墙件布置(平面图) c.双排脚手架连墙件布置(立面图) b.双排脚手架连墙件布置(剖面图脚手架立面、剖面图脚手架特殊节点部位搭设要求采用未脱开处理方法时,高差处架体仍应参照下图节点要求进行加固上台阶立杆距台开口架处除层层设连墙件和横阶边缘距离应大向斜撑外,还可设置为双立杆于 0.5m错层达到或超过一层楼时,或上下台地的地基承载力相差较大时,建议断开按开口架进行加固本word文档可编辑可修改如为后安装升降机,应先按开口架要求进行加固,再拆除升降机部位架体除层层设连墙件和横向斜撑外,开口架处还可设置为双立杆除层层设连墙件和横向斜撑外,开口架处还可设置为双立杆除层层设连墙件和横向斜撑外,开口架处还可设置为双立杆本word文档可编辑可修改。
附件:1脚手架主要组成构件位置示意图1―外立杆;2―内立杆;3―横向水平杆;4―纵向水平杆;5―栏杆;6―挡脚板;7―直角扣件;8―旋转扣件;9―连墙件;10―横向斜撑;11―主立杆;12―副立杆;13―抛撑;14―剪刀撑;15―垫板;16―纵向扫地杆;17―横向扫地杆;附件2、脚手架警示牌脚手架警示牌脚手架挂牌实行两种颜色,内容应包含任务名称、搭设单位、脚手架位置、脚手架编号、搭建日期、搭建人、脚手架用途、监理验收签字、脚手架使用单位安全员签字、施工项目负责人签字、检查验收日期,其中:1. 绿色表示脚手架已经过检查且符合设计要求,可以使用;2. 红色表示脚手架未搭设完成或不合格,不得使用;另外,在特殊情况下,如天气原因等,禁止攀爬,也使用该牌。
脚手架禁用牌本脚手架不具备使用条件,除搭设作业人员外,其他人员禁止攀爬或使用。
任务名称:搭设单位:搭设人:附件3、脚手架检查清单编号:《建筑施工扣件式钢管脚手架搭设安全技术规范》JGJ130-2001。
《建筑施工门式钢管脚手架搭设安全技术规范》JGJ128-2000。
附件4、建筑用扣件钢管脚手架搭设的结构安全要求(一)纵向水平杆、横向水平杆、脚手板构造要求1.纵向水平杆的构造应符合下列规定。
1.1纵向水平杆宜设置在立杆内侧,其长度不宜小于3跨。
1.2纵向水平杆接长宜采用对接扣件连接,也可采用搭接。
对、接、搭接应符合下列规定。
1.2.1纵向水平杆的对接扣件应交错布置:两根相邻纵向水平杆的接头不宜设置在同步或同跨内;不同步或不同跨两个相邻接头在水平方向错开的距离不应小于500mm;各接头中心至最近主节点的距离不宜大于纵距的1/3(图1)。
1.2.2搭接长度不应小于1m,应等间距设置3个旋转扣件固定,端部扣件盖板边缘至搭接纵向水平杆杆端的距离不应小于100mm。
(a)接头不在同步内(立面);(b)接头不在同跨内(平面)1―立杆;2―纵向水平杆;3―横向水平杆图1 纵向水平杆对接接头布置1.2.3当使用冲压钢脚手板、木脚手板、竹串片脚手板时,纵向水平杆应作为横向水平杆的支座,用直角扣件固定在立杆上;当使用竹笆脚手板时,纵向水平杆应采用直角扣件固定在横向水平杆上,并应等间距设置,间距不应大于400mm(图2)。
附件:1脚手架主要组成构件位置示意图1―外立杆;2―内立杆;3―横向水平杆;4―纵向水平杆;5―栏杆;6―挡脚板;7―直角扣件;8―旋转扣件;9―连墙件;10―横向斜撑;11―主立杆;12―副立杆;13―抛撑;14―剪刀撑;15―垫板;16―纵向扫地杆;17―横向扫地杆;附件2、脚手架警示牌脚手架警示牌脚手架挂牌实行两种颜色,内容应包含任务名称、搭设单位、脚手架位置、脚手架编号、搭建日期、搭建人、脚手架用途、监理验收签字、脚手架使用单位安全员签字、施工项目负责人签字、检查验收日期,其中:1. 绿色表示脚手架已经过检查且符合设计要求,可以使用;2. 红色表示脚手架未搭设完成或不合格,不得使用;另外,在特殊情况下,如天气原因等,禁止攀爬,也使用该牌。
附件3、脚手架检查清单脚手架检查清单编号:《建筑施工门式钢管脚手架搭设安全技术规范》JGJ128-2000。
附件4、建筑用扣件钢管脚手架搭设的结构安全要求(一)纵向水平杆、横向水平杆、脚手板构造要求1.纵向水平杆的构造应符合下列规定。
1.1纵向水平杆宜设置在立杆内侧,其长度不宜小于3跨。
1.2纵向水平杆接长宜采用对接扣件连接,也可采用搭接。
对、接、搭接应符合下列规定。
1.2.1纵向水平杆的对接扣件应交错布置:两根相邻纵向水平杆的接头不宜设置在同步或同跨内;不同步或不同跨两个相邻接头在水平方向错开的距离不应小于500mm;各接头中心至最近主节点的距离不宜大于纵距的1/3(图1)。
1.2.2搭接长度不应小于1m,应等间距设置3个旋转扣件固定,端部扣件盖板边缘至搭接纵向水平杆杆端的距离不应小于100mm。
(a)接头不在同步内(立面);(b)接头不在同跨内(平面)1―立杆;2―纵向水平杆;3―横向水平杆图1 纵向水平杆对接接头布置1.2.3当使用冲压钢脚手板、木脚手板、竹串片脚手板时,纵向水平杆应作为横向水平杆的支座,用直角扣件固定在立杆上;当使用竹笆脚手板时,纵向水平杆应采用直角扣件固定在横向水平杆上,并应等间距设置,间距不应大于400mm(图2)。
附件:1脚手架主要组成构件位置示意图1―外立杆;2―内立杆;3―横向水平杆;4―纵向水平杆;5―栏杆;6―挡脚板;7―直角扣件;8―旋转扣件;9―连墙件;10―横向斜撑;11―主立杆;12―副立杆;13―抛撑;14―剪刀撑;15―垫板;16―纵向扫地杆;17―横向扫地杆;附件2、脚手架警示牌脚手架警示牌脚手架挂牌实行两种颜色,内容应包含任务名称、搭设单位、脚手架位置、脚手架编号、搭建日期、搭建人、脚手架用途、监理验收签字、脚手架使用单位安全员签字、施工项目负责人签字、检查验收日期,其中:1. 绿色表示脚手架已经过检查且符合设计要求,可以使用;2. 红色表示脚手架未搭设完成或不合格,不得使用;另外,在特殊情况下,如天气原因等,禁止攀爬,也使用该牌。
附件3、脚手架检查清单脚手架检查清单编号:《建筑施工门式钢管脚手架搭设安全技术规范》JGJ128-2000。
附件4、建筑用扣件钢管脚手架搭设的结构安全要求(一)纵向水平杆、横向水平杆、脚手板构造要求1.纵向水平杆的构造应符合下列规定。
1.1纵向水平杆宜设置在立杆内侧,其长度不宜小于3跨。
1.2纵向水平杆接长宜采用对接扣件连接,也可采用搭接。
对、接、搭接应符合下列规定。
1.2.1纵向水平杆的对接扣件应交错布置:两根相邻纵向水平杆的接头不宜设置在同步或同跨内;不同步或不同跨两个相邻接头在水平方向错开的距离不应小于500mm;各接头中心至最近主节点的距离不宜大于纵距的1/3(图1)。
1.2.2搭接长度不应小于1m,应等间距设置3个旋转扣件固定,端部扣件盖板边缘至搭接纵向水平杆杆端的距离不应小于100mm。
(a)接头不在同步内(立面);(b)接头不在同跨内(平面)1―立杆;2―纵向水平杆;3―横向水平杆图1 纵向水平杆对接接头布置1.2.3当使用冲压钢脚手板、木脚手板、竹串片脚手板时,纵向水平杆应作为横向水平杆的支座,用直角扣件固定在立杆上;当使用竹笆脚手板时,纵向水平杆应采用直角扣件固定在横向水平杆上,并应等间距设置,间距不应大于400mm(图2)。
外脚手架计算书及相关细部节点图纸(平、立、剖)1、研发楼落地式(扣件式)脚手架计算书(首层—天面层)1.计算参数设定(1)基本参数脚手架搭设高度 40.50m,起搭高度-0.30m,立杆材料采用Φ48×3.0,横向杆上有 1 条纵向杆, 立杆横距 0.80m,立杆纵距 La=1.50m,立杆步距 h=1.80m;立杆离墙 0.20m,连墙件按每层三跨布置, 连墙件材料为预埋钢筋,钢筋直径 20mm,预埋钢筋焊缝长度 50.00mm,连接件厚度 3.00mm,顶层层高3.80m;脚手架满铺铁栅网片。
(2)钢管截面特征钢管Φ48×3.0mm,截面积 A=424mm2,惯性矩 I=107800mm4;截面模量 W=4490mm3,回转半径i=15.9mm,每米长质量 0.0326kN/m;Q235 钢抗拉,抗压和抗弯强度设计值 f=205N/mm2,弹性模量E=206000N/mm2。
(3)荷载标准值1)永久荷载标准值每米立杆承受的结构自重标准值 0.1069kN/m,脚手板采用铁栅网片,自重标准值为 0.11kN/m2栏杆与挡板采用栏杆、冲压钢,自重标准值为 0.1600kN/m, 脚手架上吊挂的安全设施(安全网)自重标准值 0.010kN/m22)施工均布活荷载标准值装修脚手架 2.00kN/m2,结构脚手架 3.00kN/m23)作用于脚手架上的水平风荷载标准值ωk脚手架高度为 40.50m,地面粗糙度按 C 类;风压高度变化系数μz=0.65;挡风系数=0.8,背靠建筑物按敞开、框架和开洞墙计算,则脚手架风荷载体型系数μs=1.3=1.3×0.8=1.04,工程位于广东省肇庆市,基本风压ω0=0.30kN/m2;水平风荷载标准值ωk=μzμsω0=0.65×1.040×0.30=0.20kN/m22.纵向水平杆验算(1)荷载计算钢管自重 G K1=0.0326kN/m;脚手板自重 G K2=0.11×0.40=0.04kN/m;施工活荷载 Q K=3.00×0.40=1.20kN/m;作用于纵向水平杆上线荷载标准值q1=1.2×(0.0326+0.04)=0.09kN/m,q2=1.4×1.20=1.68kN/m(2)纵向水平杆受力计算每根钢管长约 6.00m,按四跨连续梁计算,L=1.50m。
脚手架搭设大样图例
洞口两侧均应
设置为双立杆
洞口两侧均设
置人字型斜撑
洞口两侧均应
设置横向斜撑
(右图)
开口脚手架必须每层楼且不超4m 高设连墙件
开口脚手架必须设置横向斜撑开口脚手架
必须每层楼
且不超4m
高设连墙件
开口脚手架
必须设置横
向斜撑
开口脚手架两端设置横向斜撑、层层设置连墙件示意图(卸料平台、升降机处以及错层处等可参照此节点进行加强)
18cm 高挡
脚板
脚手架防护通道转角示意图(内转角应有立杆,此图内转角立杆因遮挡未见;图中底部立杆为双立杆)
栏杆上皮
高度1.2m
腰杆高度
0.5~0.6m
18cm 高
挡脚板
斜道(楼梯)临边防护
连墙件应连
接至外节点
连墙件设置在
主节点或不超
过主节点
30cm 以内
外侧
锁死
连墙件节点内侧锁死
高处立杆距 坎边距离应 大于 0.5m
高处扫地杆 应向低处延 长两跨
高差应小 于 1.0m
坎边
脚手架地面高差节点
(地面只允许纵向 1.0m 以内高差。
内外排架体之间的地面, 架体横向不得有高差)
从端部、 转角开始 设置剪刀 撑
架体高度在 24m 以下时剪刀撑设置图
(必须从端部、转角开始设置剪刀撑,剪刀撑应设置至底层地面;高
度超过 24m 的脚手架,应连续设置剪刀撑)
剪刀撑应 设置到底
脚手板离墙
面距离不得
大于15cm件
件
件
件
件
件
连墙件应从第一步开始设置(即第一个主节点处)
件件件
件件
横杆端头离
墙面距离不
a.件
件件件件件件件件件件件件件件c.件件件
件件件件
件件件件
件件件件
b.件件件件件件件件件件件
件件件件
脚手架立面、剖面图
得大于
件件件
件件件
10cm
脚手架特殊节点部位搭设要求采用未脱开处理方法时,
高差处架体仍应参照下图
节点要求进行加固
上台阶立杆距台阶边缘距离应大于0.5m 开口架处除层层设连墙件和横向斜撑外,还可设置为双立杆规范
错层达到或超过一层楼时,或上下台地的地基承载力相差较大时,建议断开按开口架进行加固
如为后安装升降机,
应
先按开口架要求进行加固,再拆除升降机部位架体除层层设连墙件和横向斜撑外,开口架处还可设置为双立杆
除层层设连墙件和横向斜撑外,开口架处还可设置为双立杆
除层层设连墙件和横向斜撑外,开口架处还可设置为双立杆。