20层楼筏板基础设计计算手稿
- 格式:doc
- 大小:18.00 KB
- 文档页数:3
al 2 1 b 2 筏板基础及侧壁计算书一、基本数据:根据 xx 省 xx 护国房地产开发有限公司护国广场岩土工程勘察报告,本工程以③层圆 砾层为持力层,地基承载力特征值为 220KP a 。
基础形式为筏板基础,混凝土强度等级为 C 40 , f c = 19.1N / mm 2 ;受力钢筋均采用HRB 400 级,f y =360 N / mm 2;根据地质 报告,地下水位取 − 1.700m 。
二、地基承载力修正及验算:f a = f ak + ηb γ (b − 3) + ηd γ m (d − 0.5) = 220 + 0.3 × 8 × (6 − 3) + 1.5 × 8 × (5.65 − 0.5) = 289.0kN / m 2上部荷载作用下地基净反力(由地下室模型竖向导荷得)f = 61.6kN / m 2 < f = 289.0kN / m 2地基承载力满足要求。
三、地下室侧壁配筋计算:(1)双向板:l y 5.175 ① l x = 8.400m , l y = 5.175m , = x8.4 = 0.62E 土 = rhK a = 8.0 × 5.175 × tan 2 45o = 41.4KN / m E 水 = rh = 10.0 × 3.475 = 34.75KN / mE 合 = 1.27E 土 + 1.27E 水 = 52.6 + 44.1 = 96.7KN / m查静力计算手册,得:M x max = 0.0072ql 2= 0.0072 ×96.7 × 5.1752 2= 18.6KN ·m M y max = 0.0209ql '= 0.0209 × 96.7 × 5.175 2= 54.1KN ·m 2Mx max' = −0.0354ql 2= 0.0354 × 96.7 × 5.1752= −91.7KN ·mM y= −0.0566ql = −0.0566 × 96.7 × 5.175 = −146.6KN ·m配筋计算:取弯矩最大处进行计算。
1 * 平板基础的内筒进行抗冲切和抗剪计算结果*说明:1.本结果是对平板基础的内筒进行抗冲切和抗剪计算2.计算依据是GB50007-2011的8.4.8和8.4.103.内筒外边界由程序使用者指定4.土反力按筏板平均反力确定筏板参数:筏板厚度h= 600.mm 保护层厚度a0=75.mm截面有效高度h0= 525.mm 混凝土强度等级C30.0最大荷载组load: 7筏板内荷载= 5550.0 kN 筏板底面积= 15.910 m2 平均基底反力= 348.8kPa平板基础的内筒抗冲切验算:内筒最大荷载Nmax= 5550.0kN 破坏面平均周长Um= 15.900m冲切锥体底面积= 20.160 m2 冲切力Fl= -1482.6kNFl/Um*h0=-177.6055<0.7*Bhp*ft/ita=802.4189平板基础的内筒抗剪验算:内筒外H0处边长= 18.00m 冲切锥体底面积= 20.16m2单位长度剪力Vs= -82.36kN/mVs=-82.3646<0.7*Bhs*ft*h0=526.5875*结束*2* 平板基础的内筒进行抗冲切和抗剪计算结果*SS说明:1.本结果是对平板基础的内筒进行抗冲切和抗剪计算2.计算依据是GB50007-2011的8.4.8和8.4.103.内筒外边界由程序使用者指定4.土反力按筏板平均反力确定筏板参数:筏板厚度h= 600.mm 保护层厚度a0=75.mm截面有效高度h0= 525.mm 混凝土强度等级C30.0最大荷载组load: 7筏板内荷载= 4514.3 kN 筏板底面积= 13.775 m2 平均基底反力= 327.7kPa 平板基础的内筒抗冲切验算:内筒最大荷载Nmax= 4514.3kN 破坏面平均周长Um= 14.910m冲切锥体底面积= 17.778 m2 冲切力Fl= -1311.7kNFl/Um*h0=-167.5640<0.7*Bhp*ft/ita=802.4189平板基础的内筒抗剪验算:内筒外H0处边长= 17.01m 冲切锥体底面积= 17.78m2单位长度剪力Vs= -77.11kN/mVs=-77.1097<0.7*Bhs*ft*h0=526.5875*结束*。
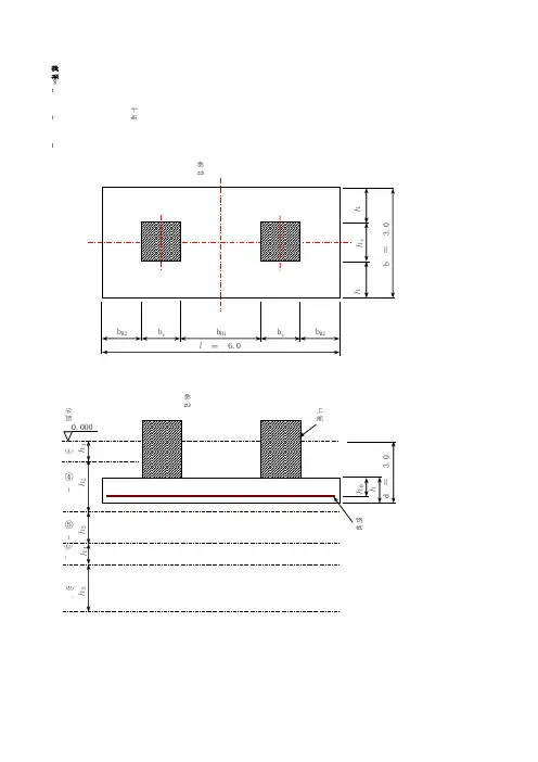
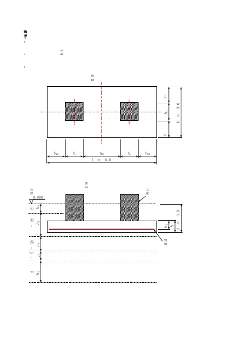
筏形基础设计§1. 基本条件1.1 基础类型:平板式筏基1.2 基础尺寸及地质资料基础平面图基础立面及地层分布图1.2.1 基础尺寸桥轴方向_柱截面的边长h c =m 桥轴直角_柱截面的边长b c =m 两立柱之间的净间距b H1=m 柱外边缘至基础边缘距离b H2=m 柱外边缘至基础边缘距离h v =m 桥轴方向_基础平面宽度b =m 桥轴直角_基础平面长度l =m 筏基础底面埋深取d =m 筏基础高度h=m 筏基础底面混凝土净保护层厚度c =m 筏基础有效高度h 0=m 筏基础采用混凝土强度等级C40抗压f c =N/mm 2(砼规)表4.1.4抗拉f t =N/mm2(砼规)表4.1.4上覆土重度N/mm 31.2.2 地质资料依据《中北镇天桥地质勘查报告》,岩土参数的选定方法:岩土性状指标选用平均值,并参考其范围值,岩土强度指标选用特征值,参考其对应的标准值。
地质参数如下表18.003.001.000.050.9519.11.711.601.600.600.703.006.001.60§2. 地基承载力验算 2.1 地基承载力特征值依据《中北镇天桥地质勘查报告》,基础持力层选取④1粉质粘土层,地基承载力特征值f ak =kPa2.2 地基承载力特征值修正依据《建筑地基基础设计规范》GB5007-2011(以下简称《基础》) 5.2.4,当基础宽度大于3m或埋置深度大于0.5m时,从载荷试验或其他原位测试、经验值等方法确定的地基承载力特征值,尚应按下式修正f a =f ak +×γ×(b -3)+ηd ×γm ×(d-)(5.2.4)=+××( -3)+××( -)=++=kPa式中:f a —修正后的地基承载力特征值,kPa;f ak —地基承载力特征值,kPa;ηb 、ηd —基础宽度和埋深的地基承载力修正系数,按基底下土的类别查《基础》表5.2.4γ—基础底面以下土的重度,地下水位以下取浮重度,kN/m ;依据《物理力学指标统计表》取值。
一:基础筏板手工算量计算方法:1:用CAD(PL画线命令闭合后在点Li命令)查询出异形筏板的周长L与面积S总。
2:S总面积—周长L*(钢筋保护层)0.04=实有钢筋面积S2。
0.04是保护层厚度,见图纸。
此外说明一下有基础梁的筏板,应把基础梁在筏板中占的面积(钢筋量)去掉,(筏板钢筋与基础梁同方向的不设,只设穿过梁的筏板筋)看三维图。
3:根据筏板钢筋上下双层双向@200, 1/0.2=5M*2层*2双层=20M(每平方含量), 【基础梁占有的钢筋每平方】=10米【如果X向@200,Y向@250,则每平方钢筋含量[1M/0.2+1M/0.25]*2[双层]=18M.】4:用(3中)【20M(每平方含量)】*【实有钢筋面积S2】+周长L/2*2[最后周圈少这个L/2钢筋—基础梁的占有面积*10【基础梁部分每平方少放10米的筏板钢筋】=筏板筋长度。
5: 筏板筋周圈的钢筋弯钩查得(筏板筋弯钩长度)15d*(筏板弯钩筋个数)筏板周长(L/0.2+1)*2【上下弯钩】={筏板周围弯钩筋长度}。
6:马镫筋,按施工组织设计中的数量计算(支撑上层钢筋)以上是马凳筋两种形式图片,此工程量根据甲方签字的筏板上层钢筋支撑施工方案计算,如采用图-2钢筋支撑三级钢18钢筋,每2米间距设一排支撑,每2米设两只腿,见图【图中的40是保护层厚度,具体以图纸总说明为主有时是20厚】,图纸没特殊说明时---马凳筋直径比筏板筋直径小2个号,即筏板筋16时,支撑马镫最小按14计算,现场筏板筋图片根据上图,马凳筋计算方法:每2米段长含量0.528*2+2=3.058米。
根据以下CAD图2米排一排支撑钢筋,最后把支撑钢筋长度累加在一起【L/2+1】*3.058米=支撑钢筋的量。
支撑钢筋分布图三级钢18钢筋:CAD查询排布的长度约530米/2=265段{指上边截图}*3.058米=810米以上筏板筋4+5+6 =筏板筋总长度工程量。
7:搭接头的工程量:钢筋直径18以上,采用机械(螺母)连接,计量:筏板钢筋总长度/9M=接头总个数----套(机械接头定额)。
筏板基础分为平板式筏基和梁板式筏基,平板式筏基支持局部加厚筏板类型;梁板式筏基支持肋梁上平及下平两种形式,下面就筏基的分析计算做详细阐述。
(1)地基承载力验算地基承载力验算方法同独立柱基,参见第17.1.1节内容。
对于非矩形筏板,抵抗矩W采用积分的方法计算。
(2)基础抗冲切验算按GB50007-2002第8.4.5条至第8.4.8条相关条款的规定进行验算。
①梁板式筏基底板的抗冲切验算底板受冲切承载力按下式计算式中:F l——作用在图17.1.5-1中阴影部分面积上的地基土平均净反力设计值;βhp——受冲切承载力截面高度影响系数;u m——距基础梁边h0/2处冲切临界截面的周长;f t——混凝土轴心抗拉强度设计值。
图17.1.5-1 底板冲切计算示意②平板式筏基柱(墙)对筏板的冲切验算计算时考虑作用在冲切临界截面重心上的不平衡弯矩所产生的附加剪力,2处冲切临界截面的最大剪应力τmax应按下列公式计算。
距柱边h0/式中:F l——相应于荷载效应基本组合时的集中力设计值,对内柱取轴力设计值减去筏板冲切破坏锥体内的地基反力设计值;对边柱和角柱,取轴力设计值减去筏板冲切临界截面范围内的地基反力设计值;地基反力值应扣除底板自重;u m ——距柱边h0/2处冲切临界截面的周长;M unb——作用在冲切临界截面重心上的不平衡弯矩设计值;c AB——沿弯矩作用方向,冲切临界截面重心至冲切临界截面最大剪应力点的距离;I s——冲切临界截面对其重心的极惯性矩;βs——柱截面长边与短边的比值,当βs<2时,βs取2;当βs>4时,βs取4;c1——与弯矩作用方向一致的冲切临界截面的边长;c2——垂直于c1的冲切临界截面的边长;a s——不平衡弯矩通过冲切临界截面上的偏心剪力传递的分配系数;③平板式筏基短肢剪力墙对筏板的冲切验算短肢剪力墙对筏板的冲切计算按等效外接矩形柱来计算,计算方法完全同柱对筏板的冲切,等效外接矩形柱参见图17.1.5-2。
当地基承载力很低,建筑物荷载又很大时,宜采用筏基。
沉积土层不均匀,有软弱土的不规则夹层,或者有坚硬的石芽出露,亦或石灰岩层中有不规则溶洞、溶曹时,采用筏基调节不均匀沉降或者跨越溶洞。
即使地基土相对较均匀时,对不均匀沉降敏感的结构也常采用筏基。
筏基的形式:等厚,局部加厚,上部加肋梁,下部加肋梁。
构造要求筏板厚度一般不小于柱网最大跨度的1/20,并不小于200mm,且应按抗冲切验算。
设置肋梁时宜取200-400mm。
筏基可适当加设悬臂部分以扩大基底面积和调整基底形心与上部荷载重心尽可能一致。
悬臂部分宜沿建筑物宽度方向设置。
当梁肋不外伸时板挑出长度不宜大于2m。
砼不低于c20,垫层100mm厚。
钢筋保护层不小于35mm。
地下水位以下的地下室底板应考虑抗渗,并进行抗裂度验算。
筏板配筋率一般在0.5-1.0%为宜。
当板厚小于300mm时单层配置,大于300mm时双层布置。
受力钢筋最小直径8mm,一般不小于12mm,间距100-200mm;分布钢筋8-10mm,间距200-300mm。
筏板配筋除符合计算配筋外,纵横方向支座钢筋尚应有0.15%、0.10%(全部受拉钢筋的1/2-1/3)的配筋率连通;跨中则按实际配筋率全部贯通。
双向悬臂挑出但肋梁不外伸时宜在板底放射状布附加钢筋。
平板式筏板柱下板带和跨中板带的底部钢筋应有1/2-1/3全部拉通,且配筋率不应小于0.15%;顶部按实际全部拉通。
当板厚小于250mm时分布筋为圆8间距250,板厚大于250mm时分不筋圆10间距200。
计算方法:1.简化方法倒梁法和到楼盖法(相对刚度较大);上部结构较柔时可用静力分析法。
2.考虑地基基础共同作用的方法2.考虑上部结构地基基础共同作用的方法常用简化方法——刚性板方法当柱荷载相对比较均匀(相邻柱荷载变化不超过20%),柱距相对比较一致(相邻柱距变化不大于20%),若果满足公式:或者筏基支撑着刚性的上部结构时,筏基可认为是刚性的,基底反力呈直线分布,反力的形心与作用在板上全部荷载的合力作用线相吻合。
筏板基础摘要:本文总结了筏板基础的适用条件,剪力墙面荷载按162/kNm时,最终传给地基的力,平、筏板板厚的取值、梁筏板不同厚度时,满足抗冲切的极限净反力、平筏板不同板厚和不同地基净反力时能抵抗的极限柱下轴力设计值、地梁的高度,宽度确定方法及经验值、地梁的内力计算方法和经验配筋、筏板的内力和配筋计算方法、经验配筋、pkpm进行筏板基础设计的具体操作过程、介绍了梁元法和板元法的一些具体操作。
本文章总结于:刘铮“建筑结构设计快速入门”、朱炳寅“建筑结构设计问答与分析”、“建筑地基基础设计方法及实例分析”、郁彦“高层建筑结构概念设计”、杨星“pkpm结构软件从入门到精通”、钢结构论坛、文献以及网上别人经验总结。
共11。
2011-11-20---12-281.适用条件:一般用于高层,且地基承载力必须很大;当多层房屋,比如框架,地基承载能力很低时,也可以用伐板基础;筏基,其整体性好,能很好的抵抗地基不均匀沉降。
2.荷载:剪力墙结构每层每平方162/kNm计算,假设一个30层的高层,地下1层,则传给地基4962/kNm,假设用伐板基础,伐板厚1100mm,则筏板自重的面荷载为:25*1.1=27.52/kNm,则传给基础总的面荷载为:496+27.5=5242/kNm,可以用这个大概估计下地基承载力大概要多大,并且地基资料给出地基承载力特征值已经包括了挖开土的重量。
按规范,天然地基的最小埋深取上部高度的1/15,所以一般高层的埋深为:7m左右,经深度修正后的地基承载力做多也就增加一个30kpa 的样子。
设计时,一般可以不修正,留作安全余量。
3.板厚:3.1.规范:箱筏规范:梁板式筏基板厚:当12层时,h1/14L短且400mm;L短为最大双向板格的短边净跨,假设8m*8m的双向板,则最小厚度为570mm。
应届生求职季宝典开启你的职场征途简历撰写笔试真题面试攻略专业技能指导公务员专区当12层时,h1/20L短且300mm;L短为最大双向板格的短边净跨,假设8m*8m的双向板,则最小厚度为400mm。
高层建筑平板式筏板基础设计计算分析摘要:筏板基础的埋置深度较深,整体性与抗震能力都非常强,同时其刚度也较大,所以被普遍应用在高层建筑工程中,但在对高层建筑平板式筏板基础进行设计的过程中,因为设计理念不同,设计人员所采用的设计计算方式中也存在一定不足,会对建筑工程产生一定的不良影响。
文章对筏板基础承载力的确定方式以及基础变形量计算等方面进行了分析,并论述了高层建筑平板式筏板基础设计中需要注意的计算问题,以供相关人员参考。
关键词:高层建筑;平板式筏板;基础设计计算;承载力;变形量进入二十一世纪以来,我国城市化进程不断加快,各个城市都在持续扩大城市规模,为了缓解城市建设用地资源的紧张局面,高层建筑成为当前城市建筑的主流。
但高层建筑的竖向荷载非常大,这就导致其倾覆力也相应大幅度增加,对建筑控制方面有非常大的影响。
所以,建筑工程设计人员必须加强基础设计工作,充分考虑建筑工程的地质环境、基础结构等各方面因素的影响,从而尽可能满足高层建筑基础设计的实际需要。
1.合理确定筏板基础埋深和承载力一般情况下,高层建筑会建造地下车库或地下人防工程,以此来节约用地面积,同时从具体使用功能出发来确定地下室的层数和高度,进而确定筏板基础底板的埋设深度。
然后结合建筑区域的岩土特性进行基础选型,对天然筏板基础的可能性进行研究。
天然筏板基础是一种补偿性基础,在确定地基承载力的过程中,要根据相关标准修正基宽与基深,以此获得地基承载力设计值,同时还应合理分析补偿性基础,并据此确定地基承载力。
从建筑荷载水平分布规律来看,将筏板基础科学划分成多个小单元,其单位面积内所承受的荷载重量与基础纵向挠曲曲线的形状相一致,这就表明建筑四周各点沉降量几乎不受其他点的荷载影响,中部各点沉降量则受到较大影响。
如果把基础设计为整片筏板基础,必然会导致在一样的地基承载力的情况下,四周沉降量很小,而中部沉降量则相对较大,基地土变形不均衡[1]。
若地基底层分布较为复杂而造成筏板基础的上部结构荷载也不能均匀分布,将会出现很大的沉降差异,设计人员可考虑利用下面几个措施来解决上述问题。
筏板基础的简化计算方法1.悬臂法方法概述——就是传统的墙下钢混条基计算法。
计算特点——假定基底土反力为均匀分布,为了减小基底压力使之满足软弱地基承载力的要求而将基底加宽到互相连通的程度,但不作为连续的整板去分析。
方法缺点——基础宽度加大后,基底土的反力分布实际上是不均匀的。
计算时,基底已经连成了一体却不考虑其连续性,因此很不合理,计算的结果是不经济的。
2.倒楼盖法方法概述——假定筏板为一块倒置于地基上的连续板,由纵横墙支承。
计算特点——假定基底土反力为均匀分布,按普通的楼盖计算。
方法缺点——考虑了筏板的整体性,计算结果较悬臂法经济。
但此法仍然没有考虑到基底土的反力分布实际上是不均匀的,所以各墙支座处所算得的负弯矩偏小,甚至出现小于实际弯矩而偏于不安全。
3.柔性基础简化计算法方法概述——将在柱荷载作用下的十字交叉条形基础简化为各条单向连续条形基础的计算方法。
计算特点——将柱荷载的总值先按两个方向交叉连续的条形基础(板)的刚度比值进行分配以作为各向的柱荷载,然后分别按单向连续条形基础(板)计算。
方法缺点——此方法的一般假定为基底反力是按线性分布的,柱下最大,跨中最小,计算结果较倒楼盖法还要经济。
但该方法只适用于柱下十字交叉条形基础和柱下筏板基础的简化计算,不适用于横墙承重的筏板基础。
4.弹簧地基梁法方法概述——假定筏板沿横向被截分为单位宽的条板,置于文克尔假设的弹簧低级上,并假定板底面任一点的单位压力p与地基沉降S成正比,即p=kS。
计算特点——条板按受有一组横墙集中荷载作用的无限长梁计算。
由于地基沉降S与基础挠度y接触协调相等,有p(x)=kS=ky.方法缺点——同文克尔弹簧地基法假设。
5.弹性理论截条法方法概述——将筏板横向截分为单位宽的条板并置于均质半空间弹性地基上。
计算特点——由于积分上的困难,基底地基反力与沉降之间的关系很难用解析函数表达。
目前是利用郭尔布诺夫-波萨多夫的《弹性地基上结构物的计算》中的计算表格来简化计算。
筏板基础设计要点及计算示例
一、筏板基础设计要点
1、材料和结构:根据建筑物的使用性质,湿法筏板基础可选用钢筋混凝土组合桩作为结构材料,其中混凝土的强度等级由长期使用要求来确定。
结构厚度、网络布置等应符合国家标准的要求。
2、环境条件:筏板基础的承载力受多种因素影响,如地质、水位、温度等。
因此,对于不同环境条件,应通过地质勘查、湿度测定、电阻率测定等手段,建立筏板基础的环境参数,以确保建筑物的安全使用。
3、设计及施工:筏板基础的施工应按照国家标准给出的要求进行,结构设计应满足工程实际要求,结构的厚度、网络布置等要求应符合国家标准。
施工前,应进行现场施工前设计,并根据现场施工条件,采取必要的施工措施,以保证施工的质量,确保建筑物的安全使用。
二、计算示例:
1、确定筏板基础中心距:
根据规范要求,筏板基础中心距应不小于基础宽度1/4、也就是说,对于一个宽为2m的筏板基础,其中心距不应小于500mm。
2、确定抗拔承载力:
根据国家规范要求,组合桩的抗拔承载力可以建立如下的计算公式:Q=AφKs-Bp(φ-P)
其中,A和B是规定的系数。
筏板基础摘要:本文总结了筏板基础的适用条件,剪力墙面荷载按162/kNm时,最终传给地基的力,平、筏板板厚的取值、梁筏板不同厚度时,满足抗冲切的极限净反力、平筏板不同板厚和不同地基净反力时能抵抗的极限柱下轴力设计值、地梁的高度,宽度确定方法及经验值、地梁的内力计算方法和经验配筋、筏板的内力和配筋计算方法、经验配筋、pkpm进行筏板基础设计的具体操作过程、介绍了梁元法和板元法的一些具体操作。
本文章总结于:刘铮“建筑结构设计快速入门”、朱炳寅“建筑结构设计问答与分析”、“建筑地基基础设计方法及实例分析”、郁彦“高层建筑结构概念设计”、杨星“pkpm结构软件从入门到精通”、钢结构论坛、文献以及网上别人经验总结。
共11。
2011-11-20---12-281.适用条件:一般用于高层,且地基承载力必须很大;当多层房屋,比如框架,地基承载能力很低时,也可以用伐板基础;筏基,其整体性好,能很好的抵抗地基不均匀沉降。
2.荷载:剪力墙结构每层每平方162/kNm计算,假设一个30层的高层,地下1层,则传给地基4962/kNm,假设用伐板基础,伐板厚1100mm,则筏板自重的面荷载为:25*1.1=27.52/kNm,则传给基础总的面荷载为:496+27.5=5242/kNm,可以用这个大概估计下地基承载力大概要多大,并且地基资料给出地基承载力特征值已经包括了挖开土的重量。
按规范,天然地基的最小埋深取上部高度的1/15,所以一般高层的埋深为:7m左右,经深度修正后的地基承载力做多也就增加一个30kpa 的样子。
设计时,一般可以不修正,留作安全余量。
3.板厚:3.1.规范:箱筏规范:梁板式筏基板厚:当12层时,h1/14L短且400mm;L短为最大双向板格的短边净跨,假设8m*8m的双向板,则最小厚度为570mm。
应届生求职季宝典开启你的职场征途简历撰写笔试真题面试攻略专业技能指导公务员专区当12层时,h1/20L短且300mm;L短为最大双向板格的短边净跨,假设8m*8m的双向板,则最小厚度为400mm。
筏板基础的计算1.1、基础的确定1.1.1、基础偏心计算:对(0,0)角点F 1y =16438.8kN ,F 2y =20962.3kN ,F 3y =21717.3kN , F 4y =26656.6kN ,F 5y =20993.1kN ,G=6977.8kNx 2=5m , x 3=11.5m ,x 4=17.5m ,x 5=23.5m ,x 6=2.5m ,∑+++++=G F Gx x F x F x F x F e x i y y y y x 655443322=11.71F 1x =17826.7kN ,F 2x =22434.7kN ,F 3x =21958.8kN ,F 4x =25720.4kN , F 5x =18827.5kN ,G=6977.8kN ,y 2=7.5m , y 3=13.5m ,y 4=20.1m ,y 5=26.1m ,y 5=13.05m ∑+++++=G F Gy y F y F y F y F e ixx x x x y 555443322=13.75 1.1.2、基础类型采用梁式筏板基础。
1.1.3、基础深度根据地质勘探报告,基础埋深为4.7m 。
1.1.4、地基承载力修正f ak +8.29532.93.0)5.03.5(4.116.1200)3()5.0(0=⨯⨯+-⨯⨯+=-+-b d b d γηγη外kPa aKPa f m kN rd A G N P a n 8.295/4.1561.35.1905.12.91.15.184.265.2825.54.265.28201.106768=<=⨯-⨯-⨯-⨯⨯⨯⨯+=-+=基础基地净反力为 m kN A N P j /9.1414.265.281.106768=⨯==∑ 1.2、基础板厚验算取板厚为h=550mm ,mm h 510405500=-=,最不利跨板的跨度为7.5mX6.5m1.2.1、基础底板受冲切承载力验算1=hp β,MPa f t 43.1=m u m 66.232)51.06.05.6(2)51.055.05.7(=⨯--+⨯--=j A =(6.5-0.6-0.51×2)×(7-0.55-0.51×2)=26.5m 207.0h u f m t hp β=0.7×1.0×1430×23.66×0.51=12078.7kNj j L A p F ==141.9×26.5=3760.35kN 07.0h u f m t hp β≤=12078.1kN因此底板满足受冲切要求1.2.2、基础底板受剪承载力验算002)2(7.0h h l f V n t hS S -≤β1=hS β,55.05.72-=n l =6.95m002)2(7.0h h l f n t hS -β=0.7×1.0×1430×(7.0-2×0.51)×0.51=3052.8kN37.8415.2)88.505.1(21=⨯+=s A m 2 s j S A p V ≤=141.9×8.37=1187.7kN 002)2(7.0h h l f n t hS -≤β=3296.1kN 因此底板受剪承载力也满足要求。
筏板基础施工方案工程名称阳光水岸住宅小区20#住宅楼编制部门编制人职称:助理工程师审核部门审核人职称:工程师审批部门审批人职称:工程师2014年3月2日基础筏板施工专项方案本工程为阳光水岸住宅小区20#住宅楼,位于保定市一亩泉河南侧,七一西路北,本工程为三个单元板式高层住宅楼,以居住为主。
室内外高差0.3米,建筑高度80.2米。
本工程地下3层,地上28层,地下3层平时自行车库,战时人防。
总建筑面积37848.46平方米。
其中住宅建筑面积为32608.3平方米,地下建筑面积为5121.78平方米。
地下室一层至3层层高为3.6米,建筑室外地平至屋面最高点80.2米。
室内外高差为0.3米。
建筑设计使用年限为50年,建筑物防火分类为一类,建筑物耐火等级:一级抗震设防烈度为7度。
结构类型:剪力墙结构。
本方案为筏板基础专项施工方案,在筏板防水保护层施工完毕后,按设计图轴线间关系进行轴线的测放工作,弹出墙、柱的中心线和边框控制线,并用红色油漆进行标注,以利于墙、柱钢筋和模板施工。
钢筋的制作与绑扎:(一)制作1、对所进场的钢筋原材料质量必须符合规范规定和设计要求,并且有出厂证明书,进场后经监理单位现场见证取样,并送检合格后才能开始加工。
2、材料进场后,按不同的规格和批号,每60吨取原材料进行复检,合格后方可使用。
3、钢筋连接按直螺纹连接为主,应先作试连、试焊,试件送检合格后,方可大面积连接、施焊。
焊工必须要持有效的操作证上岗,严禁违章。
4、按设计要求的钢筋规格、形状、尺寸进行钢筋的放样工作,力求达到准确无误,确保钢筋成型几何尺寸符合设计要求和规范要求。
5、钢筋的接头位置、数量必须符合设计和规范要求,底板钢筋的焊接头数量同一截面不得超过50%。
特别是要注意钢筋的锚固长度达到设计和规范要求。
6、钢筋制作完毕后,由质检部门按钢筋大样表进行详细的验收,特别是连接接头必须由专职质检员、逐个检查并有书面记录、交接签字,合格后交绑扎班组进行绑扎。
前言
筏板基础有埋深深、刚度大、整体性强、抗震能力好等优点,不仅能充分发挥地基承载力,减小基础沉降量,调整地基不均匀沉降,而且可满足地下大空间(如地下停车场、地下仓库、地下商场等)的要求。
因此,筏板基础作为建筑结构(尤其是高层和超高层建筑)首选的基础方案,应用越来越广泛。
但是,由于筏板基础的受力和变形与诸多因素有关,到目前为止,人们对筏基的受力机理还不十分清楚,致使筏基在实际应用中,不同设计人员设计的筏基(如厚度、配筋等)相差悬殊,从而给工程造成浪费或隐患。
本文以某工程为实例,对高层建筑筏板基础的选型和设计方法进行讨论,供同行商榷参考。
1.工程概况
某办公大楼,地面以上20 层,地下1 层,框架——剪力墙结构,基础占地面积1800m2。
建筑物总荷重580000KN,即要求地基平均承载力为322Kpa。
基坑开挖深度7.1m。
根据勘察资料,其土层分布自上而下为粘性土,强风化泥质粉砂岩,中风化泥质粉砂岩,局部强风化与中风化岩层。
2.基础选型
一般的高层建筑,常需在地下设
置车库、人防、设备用房、水池等,并由其使用功能决定其层高和层数。
这些条件基本确定了底板的埋置深度,然后根据该深度结合场地的岩土条件进行基础选型,确定选择天然筏板基础的可能性。
本地区由于特定的地理环境,形成了一种典型的上软(填土、淤泥、砂石)下硬(风化残积土和风化软岩)的岩土结构地层,且其软土层厚薄不一,基础埋深变化较大,所以高层建筑大多采用桩基,采用桩基是设计人员对这种地层结构基础选型的第一选择,设计风险小,计算简单;缺点是桩长较长,投资较天然地基大。
对本工程,地质勘察资料的建议也是桩基,但我们发现,该区域地下室开挖后板底标高下的岩土层已基本露出强风化或中风化岩层,通过对地基承载力和沉降的初步分析,这两项指标基本能满足要求,是有可能采用天然筏板基础型式的,没必要非桩基不可。
再经过反复试算对比,采用天然地基上的筏板基础方案。
3.筏板基础的结构设计
3.1筏板基础地基承载力的确定
天然地基承载力特征值的经验值fak,通常由下列方法确定:
(1)据地质勘察部门提供的报告。
(2)据场地的地质情况,参照岩土工程手册或有关规范确定。
(3)现场荷载试验或静力触探试验。
之后按照有关规范,经宽深修正得到修正后的地基承载力特征值fa。
风化岩土在取样时的扰动和失水会使室内土工试验结果出现偏差,采用原位试验(如标贯、压板试验等)结合室内土工试验来综合评定,这样结果会更接近实际情况。
有资料对本地区不同岩土层的现场压板试验和原位标贯试验以及建筑沉降观测结果反复分析,得到风化岩土地基承载力特征值的经验值fak 与实测标贯击数N 的关系为:
fak=(12~15)N
风化残积土取高值,强风化软岩取低值。
可用此值和其它方式取得的值对比,综合确定。
3.2筏板基础天然地基变形计算及差异沉降的处理
对高层建筑,地基变形往往起决定性的控制作用,对变形的验算必不可少。
根据该地区工程经验,采用传统的分层总和法计算残积层、全风化及强风化层的地基沉降量往往偏大,其主要原因是土样扰动使测得的土地压缩模量偏小。
采用土的变形模量作为计算参数,地基的沉降量与实测结果较为接近。
本工程按下式计算:
00
(
)pbSaE=式中:
S——地基最终变形量;
0E——土的变形模量;
0p——基底附加压力(相应于荷
载效应永久组合标准值)。
b——基础宽度;
a——为经验系数,取0.3~0.5。
本工程根据当地经验,取a=0.4。
当地基压缩层各土层压缩性差别较大时,变形模量改用各土层加权变形模量。
变形模量E0一般会有相关指标的统计关系或经验公式,可结合地区经验参考使用。
如本地区,泥质软岩的变形模量E0与实测标贯击数N的关系可取为:
E0=(2.0~2.5)N
硬塑或坚硬状的风化残积土取低值,强风化软岩取高值。
当设有多层地下室,挖深较大时,应考虑地基回弹再压缩变形的影响。
由于本工程地下室仅一层,挖深不大,设计时忽略地基回弹再压缩变形的影响。
本工程筏基底局部土层较差,范围较大。
本来筏板基础由于自身所具有的整体性和刚性,即使在地基局部不均匀的情况下,也会由于跨越作用而调整部分不均匀沉降,但不均匀区范围不可过大。
为稳妥起见,决定处理该软弱区域,措施是挖除较差的土层,用C10 的素砼换填,以改变及调整其不均匀变形。
同时,地下室的建筑功能要求裙楼与主楼连为一体,考虑到防水要求和基础的整体性,不希望设永久沉降缝。
在天然地基上,主楼与裙楼之间的沉降差是很难避免的,为解决沉降差的问题,在主楼与裙楼之间设800mm 宽后浇带,钢筋连通,到施工后期,沉降基本稳定后,才浇筑混凝土连为整体。
后浇带设在自主楼边缘向外一跨处,确保地下室处裙房有一跨与主楼整体浇在一起,以减小高层下的附加应力。
3.3筏板的形状和尺寸
尽量使上部结构的荷载合力重心与
筏板的形心重合。
当受条件限制无法重合时,控制竖向荷载作用下基底边缘最大与最小压应力之比不大于1.2。
当需将底板外挑时,要综合考虑各因素确定各边外挑尺寸,尽量减小偏心,以免基础端部基底反力过大而产生不利影响。
本工程结构布置及荷载基本对称,根据承载力需要及初定的板厚,底板从周边均外挑1400mm(柱外边起)。
3.4底板厚度
由抗冲切和抗剪强度验算确定,决定板厚的关键因素是冲切。
一般经验按地面上楼层数估算,每层约需板厚5~7cm。
计算确定,主楼筏板厚1.4m,裙房筏板厚0.8m。
主楼部分有四根柱用于结构布置,轴力大于其他中柱,1.4m 板厚还不能满足其抗冲切要求。
从结构经济合理角度,为少量几根柱位而将整个筏板加厚是应该避免的,采取的处理措施是在轴力较大的柱位处设置暗梁,配置箍筋抗冲切。
按《混凝土结构设计规范》(GB50010-2002)中的公式计算冲切:
10
101.050.350.8tmtmyvsvu
FfhFfhfAημημ≤≤+同时满足二式。
式中各项定义见《混凝土结构设计规范》。
经计算,在柱的四向暗梁的端部1500mm 长范围设置箍筋Ф14@150(6 肢箍),满足了对筏板的冲切要求,从而保证主楼筏板厚度仍然取1.4m。
3.5抗弯配筋计算
采用简化计算方法。
简化计算方法最基本的特点是将上部结构、地基和基础三部分构成的一个完整的静力平衡体系分割成三个部分,进行独立求解。
它仅满足了总荷载与总反力的静力平衡条件,而忽视了上部结构与基础之间、基础与地基之间的变形连续条件,与实际状态有偏差,因此基础内力与地基计算必然有偏差。
资料显示,片筏基础中钢筋实际拉应力远小于理论计算所得的拉应力,实测钢筋应力都在 50Mpa左右,钢筋强度的发挥还不到1/6。
即使按理论计算,底板最大弯距处的配筋也仅
比最小配筋率略高,如本工程的筏板配筋,h=1.4m的用Ф22@100,h=0.8m的用Ф22@200。
3.6配筋构造
由于筏板基础的实际力学状态较难精确分析,因此必须重视构造要求。
板的边角处是刚度和强度的薄弱区,该范围板的钢筋应力高于板的中心区域,设计时注意对该薄弱区域采取加强措施,可在四角增加适当的辐射状钢筋,在板边缘适当加大配筋量,也可适当增大边角区域的厚度。
在筏板厚度变化处,或筏板面标高有变化处,基础底板的连接采用平滑过度,保证筏板受力均匀,避免应力集中。
3.7防渗措施
采用刚性自防水和柔性外防水(1.5mm 水泥基防水涂料)相结合的方式防渗。
刚性自防水砼抗渗等级要求S8;底板经抗裂验算,满足抗裂要求。
建成后经一年使用,防水效果很好。