预应力混凝土管桩单桩竖向承载力计算格式
- 格式:doc
- 大小:67.50 KB
- 文档页数:2
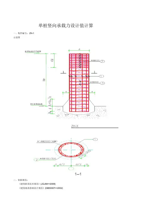
单桩竖向承载力设计值计算一、构件编号: ZH-1示意图二、依据规范:《建筑桩基技术规范》(JGJ 94-2008)《建筑地基基础设计规范》(GB50007-2002)三、计算信息1.桩类型: 桩身配筋率<0.65%灌注桩2.桩顶约束情况: 固接3.截面类型: 圆形截面4.桩身直径: d=800mm;桩端直径: D=1200mm5.材料信息:1)混凝土强度等级: C30 fc=14.3N/mm2 Ec=3.0×104N/mm22)钢筋种类: HRB335 fy=300N/mm2fy,=300N/mm2Es=2.0×105N/mm23)钢筋面积: As=2155mm24)净保护层厚度: c=50mm6.其他信息:1)桩入土深度: H>6.000m7.受力信息:桩顶竖向力: N=1169kN四、计算过程:1)根据桩身的材料强度确定桩型:人工成孔灌注桩(d≥0.8m)桩类别:圆形桩桩身直径D =800mm桩身截面面积A ps=0.50m桩身周长u=2.51mR a=ψc f c A ps +0.9f y,A S,【5.8.2-1】式中A ps————桩身截面面积f c———混凝土轴心抗压强度设计值ψc———基桩成孔工艺系数,预制桩取0.85,灌注桩取0.7~0.8。
f y,———纵向主筋抗压强度设计值A S,———纵向主筋截面面积R a =5363+582=5945KN2)根据经验参数法确定计算依据:《建筑桩基技术规范》JGJ94-2008和本项目岩土工程勘察报告单桩竖向承载力特征值(R a)应按下式确定:R a=1/k×Q uk 【5.2.2】式中Q uk————单桩竖向极限承载力标准值K———安全系数,取K=2.Q uk=Q sk+Q pk= u∑ψsi q sik L i +ψp q pk A p 【5.3.6】桩型: 人工成孔灌注桩(d≥0.8m)桩类别:圆形桩桩端直径D =1200mm桩端面积A p=1.13m桩端周长u=3.77m第1土层为:不计阻力土层,极限侧阻力标准值q sik=10Kpa土层厚度L i= 9.5 m极限侧阻力标注值Q sk=u×L i×q sik =1.88×9.5 ×10= 179.07KN 第2土层为:不计阻力土层,极限侧阻力标准值q sik=10Kpa土层厚度L i= 4 m极限侧阻力标注值Q sk=u×L i×q sik=1.88×4 ×10= 75.2 KN 第3土层为:不计阻力土层,极限侧阻力标准值q sik=150Kpa土层厚度L i= 1 m极限侧阻力标注值Q sk=u×L i×q sik=1.88×1 ×150= 282.74 KN总极限侧阻力标注值Q sk=∑Q sk= 537 KN极限端阻力标准值q pk=3000KN总极限端阻力标注值Q pk=q pk×A p=3000×0.28= 792 KNQ uk=Q sk+Q pk=537+792=1330单桩竖向承载力特征值R a = 666KN。
单桩竖向承载力设计值计算一、构件编号:ZH-1示意图ZH-X1--1二、依据规范:《建筑桩基技术规范》(JGJ94—2008)《建筑地基基础设计规范》(GB50007—2002)三、计算信息1. 桩类型:桩身配筋率<0.65%灌注桩2. 桩顶约束情况:固接3. 截面类型:圆形截面4. 桩身直径:d=800mm;桩端直径:D=1200mm5. 材料信息:1) 混凝土强度等级:C30fc=14.3N/mm2Ec=3.0x l04N/mn22) 钢筋种类:HRB335fy=300N/mm2fy'=300N/mn2Es=2.0X105N/mn223) 钢筋面积:As=2155mm4) 净保护层厚度:c=50mm6. 其他信息:1) 桩入土深度:H>6.000m7. 受力信息:桩顶竖向力:N=1169kN四、计算过程:1)根据桩身的材料强度确定桩型:人工成孔灌注桩(d>0.8m)桩类别:圆形桩桩身直径D=800mm桩身截面面积A ps=0.50m桩身周长u=2.51mR a=4)c f c A ps+0.9f y A S15.8.2-1】式中A ps—桩身截面面积f c混凝土轴心抗压强度设计值少c基桩成孔工艺系数,预制桩取0.85,灌注桩取0.7〜0.8of y纵向主筋抗压强度设计值A S,纵向主筋截面面积R a=5363+582=5945KN2)根据经验参数法确定计算依据:《建筑桩基技术规范》JGJ94-2008和本项目岩土工程勘察报告单桩竖向承载力特征值(R a)应按下式确定:R a=1/kXQ uk【5.2.21式中Quk——单桩竖向极限承载力标准值K安全系数,取K=2.Q uk=Q sk+Q pk=u Z J ip si q sik L i+p q pk A p【5.3.6】桩型:人工成孔灌注桩(d>0.8m)桩类别:圆形桩桩端直径D=1200mm桩端面积A p=1.13m桩端周长u=3.77m第1土层为:不计阻力土层,极限侧阻力标准值q sik=10Kpa 土层厚度L i=9.5m极限侧阻力标注值Q sk=uXLiXq sik=1.88X9.5X10=179.07KN 第2土层为:不计阻力土层,极限侧阻力标准值q sik=10Kpa 土层厚度L i=4m极限侧阻力标注值Q sk=uXL iX q sik=1.88X4X10=75.2KN 第3土层为:不计阻力土层,极限侧阻力标准值q sik=150Kpa 土层厚度L i=1m极限侧阻力标注值Q sk=uXLiXq sik=1.88乂1X150=282.74KN 总极限侧阻力标注值Q sk=EQ sk=537KN极限端阻力标准值q pk=3000KN总极限端阻力标注值Q pk=q pk><A p=3000X0.28=792KNQ uk=Q sk+Q pk=537+792=1330单桩竖向承载力特征值R a=666KN。
单桩竖向承载力特征值按《建筑桩基技术规范》JGJ94 -2008第5.2.2条公式5.2.2计算:R a=Q uk/K式中:R a——单桩竖向承载力特征值;Q uk——单桩竖向极限承载力标准值;K——安全系数,取K=2。
1. 一般桩的经验参数法此方法适用于除预制混凝土管桩以外的单桩。
按JGJ94-2008规范中第5.3.5条公式5.3.5计算:式中:Q sk——总极限侧阻力标准值;Q pk——总极限端阻力标准值;u——桩身周长;l i——桩周第i 层土的厚度;A p——桩端面积;q sik——桩侧第i 层土的极限侧阻力标准值;参考JGJ94-2008规范表5.3.5-1取值,用户需在地质资料土层参数中设置此值;对于端承桩取q sik=0;q pk——极限端阻力标准值,参考JGJ94-2008规范表5.3.5- 2取值,用户需在地质资料土层参数中设置此值;对于摩擦桩取q pk=0;2. 大直径人工挖孔桩(d≥800mm)单桩竖向极限承载力标准值的计算此方法适用于大直径(d≥800mm)非预制混凝土管桩的单桩。
按JGJ94-2008规范第5.3.6条公式5.3.6计算:式中:Q sk——总极限侧阻力标准值;Q pk——总极限端阻力标准值;q sik——桩侧第i层土的极限侧阻力标准值,可按JGJ94-2008规范中表5.3.5-1取值,用户需 1取值,用户需在地质资料土层参数中设置此值;对于扩底桩变截面以上2d范围不计侧阻力;对于端承桩取q sik=0;q pk——桩径为800mm极限端阻力标准值,可按JGJ94-2008规范中表5.3.6- 1取值;用户需在地质资料土层参数中设置此值;对于摩擦桩取qpk=0;ψsi,ψp——大直径桩侧阻、端阻尺寸效应系数,按JGJ94-2008表5.3.6-2取值;u——桩身周长。
3. 钢管桩单桩竖向极限承载力标准值的计算按JGJ 94-2008规范第5.3.8条公式5.3.8-1计算:式中:Q sk——总极限侧阻力标准值;Q pk——总极限端阻力标准值;q sik——桩侧第i层土的极限侧阻力标准值,可按JGJ94-2008规范中表5.3.5-1取值,用户需在地质资料土层参数中设置此值;对于端承桩取q sik=0;q pk——极限端阻力标准值,可按JGJ94-2008规范中表5.3.5-2取值;用户需在地质资料土层参数中设置此值;对于摩擦桩取q pk=0;l i——桩周第i层土的厚度;u——桩身周长;A j——空心桩端净面积面积;A p1——空心桩敞口面积;λp——桩端土塞效应系数。
预应力混凝土管桩单桩竖向承载力计算格式
青岛某工程,基础采用桩基础;桩选用山东省标准《预应力混凝土管桩》L06G407中的PC-A400(80),十字型钢桩尖。
地勘报告提供的场地土层情况及桩基
该建筑以4层为桩端持力层,桩长为8.5m. ±0.000相当于绝对标高为4.550,桩顶标高-1.250(绝对标高3.300)。
设计用单桩竖向承载力特征值ZH-1(直径400)为410kN。
ZH-1的截面特性如下:
ZH-1:直径d=400,周长L=1256.64mm,桩端面积Ap=125663.70mm2;
覆盖1、2、3、4号孔位。
各勘探孔处的单桩竖向极限承载力标准值计算如下:
Q uk=L∑q sik l i+q pk A p
单桩竖向承载特征值Ra= Q uk /2
1号孔
此处以4层为桩端持力层,计算过程见表格:
2号孔
此处以4层为桩端持力层,计算过程见表格:
3号孔
此处以4层为桩端持力层,计算过程见表格:
4号孔。
单桩竖向承载力特征值计算公式单桩竖向承载力特征值计算公式是一种用于估算土层中单桩竖向承载力的标准公式,它可以帮助工程人员快速有效地评估桩末端的竖向承载力。
根据桩的不同形式,单桩竖向承载力特征值计算公式也有不同的形式,主要分为钢筋混凝土桩、钢管桩、木桩三种。
1.钢筋混凝土桩:单桩竖向承载力特征值计算公式为F=0.2Qt×B×D,其中Qt表示桩顶部抗压强度,B表示桩的直径或边长,D表示桩的基底高度。
2.钢管桩:单桩竖向承载力特征值计算公式为F=0.3Qt×D×L,其中Qt表示桩顶部抗拔强度,D表示桩的外径,L表示桩的基底高度。
3.木桩:单桩竖向承载力特征值计算公式为F=0.5Qt×B×D,其中Qt表示桩顶部抗压强度,B表示桩的直径或边长,D表示桩的基底高度。
以上三种桩类型的竖向承载力特征值计算公式不仅反映桩的基础地基条件,还反映桩体结构自身的特性,可以作为建立桩体竖向承载力的重要参考依据。
在计算桩体竖向承载力时,单桩竖向承载力特征值计算公式可以帮助工程人员简化复杂的地质条件和桩体结构影响因素,从而快速有效地确定桩末端的竖向承载力。
在计算桩体竖向承载力时,如果某一项因素出现异常,如桩体结构出现裂缝,此时,工程人员还需要结合实际情况加以修正,以确保桩末端的竖向承载力的精确性。
另外,为了更好地确定桩末端的竖向承载力,还需要对桩体施工过程中发生的变化进行及时跟踪,如桩基础下沉或倾斜度发生变化等。
如果检测发现变化超出了可接受范围,则需要及时采取措施调整桩体竖向承载力,以确保其安全性。
总之,单桩竖向承载力特征值计算公式可以帮助工程人员快速有效地评估桩末端的竖向承载力,并且在计算过程中要结合实际情况加以修正,以确保桩末端的竖向承载力的精确性。
此外,还需要对桩体施工过程中发生的变化进行及时跟踪,以确保桩末端的竖向承载力的安全性。
预应力管桩计算书一、计算依据1、《预应力混凝土管桩基础技术规程》 (DBJ/T15-27-2018)2、《建筑结构荷载规范》 (GB-2012)3、《建筑桩基技术规范》 (JGJ94-2008)二、基本参数1、桩型:预应力管桩2、桩径:D=400mm3、桩长:L=15m4、桩端持力层:强风化岩层5、单桩承载力设计值:R=1200kN三、管桩结构计算1、截面面积A = π(D/2)² = π(400/2)² = 4000π mm²2、惯性矩I = π(D/2)³ = π(400/2)³ = π mm⁴3、桩身抗弯强度设计值fpy = 1.4 × 140 N/mm² = 1.4 × 140 ×1000 N/cm²4、桩身配箍率n = A × fpy / (πD²) = 4000π× 140 / (π×400²) = 1/75≈0.01335、约束箍筋布置:在桩身高度范围内每隔1m设置一道直径为16mm 的约束箍筋,约束箍筋的间距宜不大于350mm。
6、配箍率计算:n = (π×D²×Z×fy/4)/(Z×fy/2+π×D²×n×fy/4) = (π×400²×1×140/4)/(1×140/2+π×400²×16×140/4) =0.9667≈1/757、单桩竖向承载力设计值Q = n × A × fpy = 1/75 × 4000π×140 × 1000 N = N8、单桩竖向承载力特征值qpa = Q / (πD²) = / (π×400²) N/cm ² = 17 N/cm²9、根据地质勘察报告提供的资料,强风化岩层的承载力特征值fa=350kPa,则单桩竖向承载力特征值qpa= fa=350kPa。
单桩竖向承载力特征值按《建筑桩基技术规范》JGJ94 -2008第条公式5.2.2计算:创作时间:二零二一年六月三十日R a=Q uk/K式中:R a——单桩竖向承载力特征值;Q uk——单桩竖向极限承载力标准值;K——平安系数, 取K=2.1. 一般桩的经验参数法此方法适用于除预制混凝土管桩以外的单桩.按JGJ94-2008规范中第条公式5.3.5计算:式中:Q sk——总极限侧阻力标准值;Q pk——总极限端阻力标准值;u——桩身周长;l i——桩周第i 层土的厚度;A p——桩端面积;q sik——桩侧第i 层土的极限侧阻力标准值;参考JGJ94-2008规范表-1取值, 用户需在地质资料土层参数中设置此值;对端承桩取q sik=0;q pk——极限端阻力标准值, 参考JGJ94-2008规范表5.3.5- 2取值, 用户需在地质资料土层参数中设置此值;对摩擦桩取q pk=0;2. 年夜直径人工挖孔桩(d≥800mm)单桩竖向极限承载力标准值的计算此方法适用于年夜直径(d≥800mm)非预制混凝土管桩的单桩.按JGJ94-2008规范第条公式5.3.6计算:式中:Q sk——总极限侧阻力标准值;Q pk——总极限端阻力标准值;q sik——桩侧第i层土的极限侧阻力标准值, 可按JGJ94-2008规范中表-1取值, 用户需 1取值, 用户需在地质资料土层参数中设置此值;对扩底桩变截面以上2d范围不计侧阻力;对端承桩取q sik=0;q pk——桩径为800mm极限端阻力标准值, 可按JGJ94-2008规范中表5.3.6- 1取值;用户需在地质资料土层参数中设置此值;对摩擦桩取qpk=0;ψsi, ψp——年夜直径桩侧阻、端阻尺寸效应系数, 按JGJ94-2008表5.3.6-2取值;u——桩身周长.3. 钢管桩单桩竖向极限承载力标准值的计算按JGJ 94-2008规范第条公式5.3.8-1计算:式中:Q sk——总极限侧阻力标准值;Q pk——总极限端阻力标准值;q sik——桩侧第i层土的极限侧阻力标准值, 可按JGJ94-2008规范中表-1取值, 用户需在地质资料土层参数中设置此值;对端承桩取q sik=0;q pk——极限端阻力标准值, 可按JGJ94-2008规范中表-2取值;用户需在地质资料土层参数中设置此值;对摩擦桩取q pk=0;l i——桩周第i层土的厚度;u——桩身周长;A j——空心桩端净面积面积;A p1——空心桩敞口面积;λp——桩端土塞效应系数.之答禄夫天创作创作时间:二零二一年六月三十日。
单桩竖向承载力设计值计算一、构件编号: ZH-1示意图二、依据规范:《建筑桩基技术规范》(JGJ 94-2008)《建筑地基基础设计规范》(GB50007-2002)三、计算信息1.桩类型: 桩身配筋率<0.65%灌注桩2.桩顶约束情况: 固接3.截面类型: 圆形截面4.桩身直径: d=800mm;桩端直径: D=1200mm5.材料信息:1)混凝土强度等级: C30 fc=14.3N/mm2 Ec=3.0×104N/mm22)钢筋种类: HRB335 fy=300N/mm2fy,=300N/mm2Es=2.0×105N/mm23)钢筋面积: As=2155mm24)净保护层厚度: c=50mm6.其他信息:1)桩入土深度: H>6.000m7.受力信息:桩顶竖向力: N=1169kN四、计算过程:1)根据桩身的材料强度确定桩型:人工成孔灌注桩(d≥0.8m)桩类别:圆形桩桩身直径D =800mm桩身截面面积A ps=0.50m桩身周长u=2.51mR a=ψc f c A ps +0.9f y,A S,【5.8.2-1】式中A ps————桩身截面面积f c———混凝土轴心抗压强度设计值ψc———基桩成孔工艺系数,预制桩取0.85,灌注桩取0.7~0.8。
f y,———纵向主筋抗压强度设计值A S,———纵向主筋截面面积R a =5363+582=5945KN2)根据经验参数法确定计算依据:《建筑桩基技术规范》JGJ94-2008和本项目岩土工程勘察报告单桩竖向承载力特征值(R a)应按下式确定:R a=1/k×Q uk 【5.2.2】式中Q uk————单桩竖向极限承载力标准值K———安全系数,取K=2.Q uk=Q sk+Q pk= u∑ψsi q sik L i +ψp q pk A p 【5.3.6】桩型: 人工成孔灌注桩(d≥0.8m)桩类别:圆形桩桩端直径D =1200mm桩端面积A p=1.13m桩端周长u=3.77m第1土层为:不计阻力土层,极限侧阻力标准值q sik=10Kpa土层厚度L i= 9.5 m极限侧阻力标注值Q sk=u×L i×q sik =1.88×9.5 ×10= 179.07KN 第2土层为:不计阻力土层,极限侧阻力标准值q sik=10Kpa土层厚度L i= 4 m极限侧阻力标注值Q sk=u×L i×q sik=1.88×4 ×10= 75.2 KN 第3土层为:不计阻力土层,极限侧阻力标准值q sik=150Kpa土层厚度L i= 1 m极限侧阻力标注值Q sk=u×L i×q sik=1.88×1 ×150= 282.74 KN总极限侧阻力标注值Q sk=∑Q sk= 537 KN极限端阻力标准值q pk=3000KN总极限端阻力标注值Q pk=q pk×A p=3000×0.28= 792 KNQ uk=Q sk+Q pk=537+792=1330单桩竖向承载力特征值R a = 666KN。
管桩桩身的竖向极限承载力标准值Qpk预览说明:预览图片所展示的格式为文档的源格式展示,下载源文件没有水印,内容可编辑和复制管桩桩身的竖向极限承载力标准值Qpk、桩身竖向承载力设计值Rp与单桩竖向承载力最大特征值Ra的计算:1、管桩桩身竖向承载力设计值Rp的确定:根据03SG409《预应力混凝土管桩》国家标准图集中的说明第6.2.5条的计算式可以计算出桩身竖向承载力设计值Rp:Rp=AfcΨc。
式中Rp—管桩桩身竖向承载力设计值KN;A—管桩桩身横截面积mm2;fc—混凝土轴心抗压强度设计值MPa;Ψc—工作条件系数,取Ψc=0.70 。
2、单桩竖向承载力最大特征值Ra的确定:根据03SG409《预应力混凝土管桩》国家标准图集中的说明第6.2.6条的计算式可以计算出单桩竖向承载力最大特征值Ra:Ra= Rp/1.35。
3、管桩桩身的竖向极限承载力标准值Qpk的确定:第一种确定方法:根据GB50007—2002《建筑地基基础设计规范》附录中单桩竖向桩身极限承载力标准值Qpk=2 Ra。
第二种确定方法:根据以下公式计算Qpk=(0.8fck-0.6σpc)A。
式中Qpk—管桩桩身的竖向极限承载力标准值KN;A—管桩桩身横截面积mm2;fck—混凝土轴心抗压强度标准值MPa;σpc—桩身截面混凝土有效预加应力。
管桩桩身的竖向极限承载力标准值Qpk相当于工程施工过程中的压桩控制力。
4、综合以上计算公式,管桩桩身的竖向极限承载力标准值Qpk、桩身竖向承载力设计值Rp与单桩竖向承载力最大特征值Ra的关系如下:Ra= Rp/1.35;Qpk=2 Ra=2 Rp/1.35约等于1.48 Rp。
预应力管桩静压力计算计算参数:PHC管桩,A型,Ф500×125;Ф400×95Ф500设计单桩竖向承载力特征值:2600KN;单桩竖向极限承载力:2600KN×2=4600KNФ400设计单桩竖向承载力特征值:1300KN;单桩竖向极限承载力:1300KN×2=2600KN一、计算桩身允许抱压力:规程5.2.4PHC管桩:P≤fce-σpcAjmax:桩身允许抱压力;fce:管桩离心砼抗压强度,PHC管桩为80MPA; Pjmaxσpc:管桩砼有效应力,合格证显示该批桩Ф500×125为;Ф400×95为 A:桩身横截面面积S=R2-r2Ф500管桩的桩身允许抱压力:××{5002-2502×}/4=主副缸14MpaФ400管桩的桩身允许抱压力××{4002-1052×}/4=主副缸规范5.2.5Ф500管桩允许最大压力小于×=主副缸15MpaФ400管桩允许最大压力小于×=主副缸二、计算终压力:Q=βPzeUL:静压桩的入土深度;Q:入土部分的静压桩竖向极限承载力;Uβ:静压桩竖向极限承载力与终压力的相关系数; Pze:静压桩的终压值.=βPze =~Pze当桩长:6米≤L≤8米 QUФ500管桩终压力:4600KN/~=~5750KN,取最大压力值Ф400管桩终压力:2600KN /~~3250 KN,取最大压力值8米<L≤15米 Q=βPze =~PzeUФ500管桩终压力:4600KN/~=~4600KN,取最大压力值Ф400管桩终压力:2600KN /~=~2600 KN,取最大压力值15米<L≤23米 Q=βPze =~PzeUФ500管桩终压力:4600KN/~=~4600KN,取最大压力值Ф400管桩终压力:2600KN /~=~2600 KN,取最大压力值 L>23米 Q=βPze =~PzeUФ500管桩终压力:4600KN/~=4600~KN,取最小压力值Ф400管桩终压力:2600KN /~=2600~ KN,取最大压力值。
一、设计资料
1、基桩设计参数
成桩工艺:混凝土预制桩
承载力设计参数取值:根据建筑桩基规范查表
桩顶标高:-1.5m
桩身设计直径:d=0.400m
桩身长度:L=10m
3、设计依据
《建筑桩基技术规范》(JGJ-94-94),以下简称桩基规范
《建筑地基基础规范》(GB50007-2002)以下简称基础规范
二、单桩竖向抗压承载力计算
2、桩身周长u,桩端面积Ap
u=3.14*0.4=1.256m
Ap=3.14*0.4^2/4=0.1256㎡
3、单桩竖向承载力估算
根据桩基规范5.2.8按下式计算
Quk=Qsk+Qpk
土的总极限侧阻力标准值:
Qsk=1.256*(1.1*30+1.7*50+2.4*98+4.8*170)=1469kN
总极限端阻力标准值:
Qpk=0.1256*5000=628kN
单桩竖向抗压极限承载力标准值为:
Quk=Qsk+Qpk=1469+628=2097Kn
单桩竖向承载力特征值Ra计算。
根据基础规范附录Q条文Q.0.10第7条规定Ra=Quk/2=1049kN。
预应力混凝土管桩单桩竖向承载力计算格式
青岛某工程,基础采用桩基础;桩选用山东省标准《预应力混凝土管桩》L06G407中的PC-A400(80),十字型钢桩尖。
地勘报告提供的场地土层情况及桩基
该建筑以4层为桩端持力层,桩长为8.5m. ±0.000相当于绝对标高为4.550,桩顶标高-1.250(绝对标高3.300)。
设计用单桩竖向承载力特征值ZH-1(直径400)为410kN。
ZH-1的截面特性如下:
ZH-1:直径d=400,周长L=1256.64mm,桩端面积Ap=125663.70mm2;
覆盖1、2、3、4号孔位。
各勘探孔处的单桩竖向极限承载力标准值计算如下:
Q uk=L∑q sik l i+q pk A p
单桩竖向承载特征值Ra= Q uk /2
1号孔
此处以4层为桩端持力层,计算过程见表格:
2号孔
此处以4层为桩端持力层,计算过程见表格:
3号孔
此处以4层为桩端持力层,计算过程见表格:
4号孔。