盘扣式脚手架技术交底
- 格式:docx
- 大小:15.29 KB
- 文档页数:2
安全技术交底记录表安全技术交底内容一、危大工程-盘扣式脚手架我部选取的是最新型的墩身防护脚手架,他是一种新型的便捷式支撑脚手架,二、盘扣脚手架简介盘扣式脚手架主要有以下优点:1、具有可靠的双向自锁能力;2、无任何活动零件,运输、存储、搭设、拆除方便快捷;3、受力性能合理,可以自由调节,安全性、稳定性优于碗扣式和门式。
4、其他材料均符合相应的行业标准和标准化施工要求。
三、施工安全技术措施3.1脚手架布置墩身施工选择盘扣式脚手架,具体布置图见附件。
墩身脚手架采用10m高墩身形式进行布置,脚手架顶部高出墩顶1.2m。
墩身采用双排盘扣式脚手架,施工时应满足《建筑施工承插型盘扣式钢管支架安全技术规程》JGJ231-2010中相关要求。
脚手架距墩顶每侧距离为500mm,双排间距为900mm;脚手架扫地杆高度为200mm,底部设置100*100mm底托;脚手架立杆的纵距为1.5m,横距为0.9m,立杆的高度为2m;在每孔脚手架内设置一道斜杆支撑。
上下人行通到沿脚手架内逐级上升布置,采用定制材料挂3.1.6跳板铺设⑴跳板采用5mm钢板加工,宽20~30cm,长度不少于3.0m。
⑵跳板设置在3根横向水平杆上。
⑶操作平台上应满铺跳板。
拐角交接处平整,避免出现探头及空挡现象,铺设时要选用完好无损的跳板,发现有破损的要及时更换。
3.1.7人行斜道斜道附着脚手架内侧,沿门型孔对角线设置,宽度不小于0.6m,每层设置一个平台,交错设置直到墩顶。
斜道跳板横铺时,应在横向水平杆下增设纵向支托杆,纵向支托杆间距不应大于50cm;跳板顺铺时,接头宜采用搭接;下面的板头应压住上面的板头,斜道脚手板上应有防滑措施。
3.1.8防护设施⑴在作业层下部架设一道水平兜网(防坠网),随作业层上升,同时作业不超过两层,设置安全网防护。
⑵脚手架外侧使用合格绿色密目式安全网封闭,且将安全网固定在脚手架外立杆里侧。
⑶脚手架外侧必须设1.2m高的防护栏杆和30cm高踢脚杆,顶排防护栏横杆不少于2排,高度为1.2m。
分项工程名称碗扣式脚手架工程交底日期2019年8月11日星期日
c)纵向剪刀撑斜杆与地面的倾角宜在45~60度之间。
d)剪刀撑中的斜杆采用旋转扣件固定在立柱上或横向水平的伸出端上,剪刀撑可采用搭接,
搭接长度不应小于1m,不得少于2个旋转扣件。
2、水平剪刀撑:
a)水平剪刀撑依据水平剪刀撑布置图,在净高范围内设三道剪刀撑,自上而下共设置三道,
分别设置在第一、三、六(七)步位置上。
b)水平剪刀撑与水平杆的夹角为45度。
c)采用直角扣件固定在立柱上,水平钢管交叉采用旋转扣件连接。
三)梁底支撑体系剪刀撑
a)竖向剪刀撑设置在支撑架体两侧的长方向边缘从底到顶连续布置,每10跨(10*0.3=3米)
设置一组连续剪刀撑。
b)立杆全高范围内设置两道双向水平剪刀撑,水平剪刀撑在水平杆的第一步和最顶步设置,
每10跨(10*0.3=3米)设置一组剪刀撑
三、安全管理与维护
1)作业层上的施工荷载应符合设计要求,不得超载,不得在脚手架上集中堆放模板、钢筋等物料。
一、交底目的为确保落地盘扣式脚手架施工过程中的安全,提高施工人员的安全意识和操作技能,现将落地盘扣式脚手架安全技术进行交底。
二、交底内容1. 施工人员应具备的基本条件(1)施工人员必须身体健康,无高血压、心脏病、癫痫等疾病。
(2)施工人员必须经过专业技术培训,取得相关操作资格证书。
2. 施工现场安全管理(1)施工现场应设置明显的安全警示标志,确保施工人员了解施工现场的安全规定。
(2)施工现场应配备必要的安全防护设施,如安全网、防护栏杆、安全带等。
(3)施工现场应设立安全巡查制度,及时发现并消除安全隐患。
3. 落地盘扣式脚手架搭设要求(1)搭设前,应检查脚手架基础,确保其平整、坚实、无积水。
(2)搭设过程中,应严格按照施工方案进行操作,不得擅自更改。
(3)脚手架搭设过程中,应确保立杆、横杆、斜杆等构配件连接牢固。
(4)搭设过程中,应确保脚手架整体稳定性,防止倾覆、变形。
4. 落地盘扣式脚手架拆除要求(1)拆除前,应检查脚手架整体结构,确保其稳定可靠。
(2)拆除过程中,应按照从上至下的顺序进行,严禁跳跃拆除。
(3)拆除过程中,应确保施工人员安全,防止发生高处坠落。
(4)拆除后的脚手架构配件应分类码放,不得随意丢弃。
5. 高处作业安全要求(1)高处作业人员必须佩戴安全帽、安全带等个人防护用品。
(2)高处作业区域应设置安全防护栏杆,防止人员坠落。
(3)高处作业过程中,应确保作业平台稳定,防止人员滑倒。
(4)高处作业过程中,应密切关注作业人员身体状况,发现不适立即停止作业。
三、注意事项1. 施工人员必须严格遵守操作规程,不得擅自更改。
2. 施工过程中,如发现安全隐患,应立即停止作业,并向现场负责人报告。
3. 施工人员应熟悉本工程的安全技术要求,提高自身安全意识。
4. 施工单位应定期对施工人员进行安全教育培训,提高施工人员的安全操作技能。
四、交底结束以上为落地盘扣式脚手架安全技术交底内容,请施工人员认真学习并严格执行。
一、交底内容:l.脚手架搭设必须按盘扣脚手架支撑体系施工方案施工。
必须持有《特种作业人员操作证》的专业架子工进行,上岗前必须进行安全教育考试,合格后方可上岗;2.在盘扣脚手架支撑体系上作业人员必须穿防滑鞋,正确佩戴使用安全带,着装灵便;3.进入施工现场必须佩带合格的安全帽,系好下颚带,锁好带扣;4.登高(2米以上)作业时必须系合格的安全带,系挂牢固,高挂低用;5.盘扣脚手架支撑体系上作业人员应作好分工、配合,传递杆件应把握好重心,平稳传递;8.架设材料要随上随用,以免放置不当掉落伤人;9.在搭设作业中,地面上配合人员应避开可能落物的区域;10.严禁在盘扣脚手架支撑体系上作业时嬉戏、打闹、躺卧,严禁攀爬脚手架;11.严禁酒后上岗,严禁高血压、心脏病、癫痫病等不适宜登高作业人员上岗作业;12.搭拆盘扣脚手架支撑体系时,要有专人协调指挥,地面应设警戒区,要有旁站人员看守,严禁非操作人员入内;13搭设盘扣脚手架支撑体系时模板支架立杆搭设位置应按专项施工方案放线确定,不得任意搭设。
14、支架水平方向搭设,首先应根据立杆位置的要求布置可调底座,接着插入四根立杆,将水平杆、斜杆通过扣接头上的楔形插销扣接在立杆的连接盘上形成基本的架体单元,并以此向外扩展搭设成整体支撑体系。
垂直方向应搭完一层以后再搭设次层,以此类推。
15、调底座和垫板应准确地放置在定位线上,并保持水平,垫板应平整、无翘曲,不得采用已开裂垫板。
16、立杆应通过立杆连接套管连接,在同一水平高度内相邻立杆连接套管接头的位置应错开;水平杆扣接头与连接盘通过插销连接,应采用榔头击紧插销,保证水平杆与立杆连接可靠。
17、每搭完一步支模架后,应及时校正水平杆步距,立杆的纵、横距,立杆的垂直偏差与水平杆的水平偏差。
控制立杆的垂直偏差不应大于H/500,且不得大于50mm。
18、模板支架搭设应与模板施工相配合,可利用可调底座和可调托座调整底模标高。
19、建筑楼板多层连续施工时,应保证上下层支撑立杆在同一轴线上。
一、交底目的为确保施工现场的安全,提高施工人员对盘扣式脚手架的安全操作意识,特进行本安全技术交底。
二、交底对象所有参与盘扣式脚手架搭设、使用和拆除的施工人员及管理人员。
三、交底内容1. 脚手架基础知识- 盘扣式脚手架是一种新型多功能脚手架,具有结构简单、安装快捷、承载能力强等特点。
- 了解脚手架的组成:立杆、横杆、斜杆、连接件、底座等。
2. 安全技术要求- 搭设前的安全检查:确保脚手架材料符合标准,无破损、变形等现象。
- 搭设过程中的安全操作:- 确保脚手架基础坚实、平整,地基承载力满足要求。
- 立杆应垂直,横杆、斜杆应与立杆牢固连接。
- 每层脚手架应设置防滑措施,防止人员滑倒。
- 搭设过程中,不得随意改变脚手架的结构。
- 使用过程中的安全注意事项:- 施工人员应穿戴好个人防护用品,如安全帽、安全带等。
- 严禁在脚手架上放置重物,以免造成脚手架变形或倒塌。
- 禁止在脚手架上行走或跳跃。
- 严禁在脚手架上休息或就餐。
3. 拆除安全要求- 拆除前应进行全面检查,确保脚手架结构完好。
- 拆除顺序应从上至下,逐层拆除。
- 拆除过程中,严禁抛掷脚手架部件。
- 拆除后,应及时清理现场,确保无安全隐患。
4. 应急处理- 发生脚手架倾倒、坍塌等事故时,应立即停止作业,并迅速撤离现场。
- 及时报告事故情况,采取有效措施进行救援。
- 对事故原因进行分析,制定预防措施,防止类似事故再次发生。
四、交底责任1. 施工单位应负责组织安全技术交底,确保交底内容准确、全面。
2. 施工人员应认真参加安全技术交底,掌握安全操作技能。
3. 管理人员应加强对施工现场的安全巡查,及时发现并消除安全隐患。
五、交底记录1. 交底人:________2. 接受人:________3. 交底时间:____年__月__日4. 交底地点:____六、附件1. 盘扣式脚手架安全技术规范2. 个人防护用品使用说明请注意:以上模板仅供参考,具体交底内容应根据实际情况进行调整。
盘扣脚手架技术交底一、工程概述在本次建筑工程中,我们将采用盘扣脚手架作为主要的施工支撑结构。
盘扣脚手架具有搭建效率高、稳定性好、承载能力强等优点,能够为施工提供安全可靠的作业环境。
二、盘扣脚手架的组成及特点1、组成部分盘扣脚手架主要由立杆、横杆、斜杆、可调底座、可调托撑等构配件构成。
2、特点(1)节点抗扭转能力强,强度、刚度和稳定性可靠。
(2)搭拆效率高,节省人工成本。
(3)杆件标准化,通用性强。
三、施工准备1、技术准备熟悉施工图纸,了解盘扣脚手架的布置要求和承载能力。
编制施工方案,并对施工人员进行技术交底。
2、材料准备(1)确保所选用的盘扣脚手架构配件质量合格,具有相应的质量证明文件。
(2)对构配件进行外观检查,不得有裂缝、变形、锈蚀等缺陷。
3、场地准备清理施工现场,确保场地平整、坚实,排水畅通。
四、盘扣脚手架的搭设1、基础处理(1)根据现场实际情况,对基础进行夯实、平整处理。
(2)设置排水措施,防止基础积水。
(3)对于软弱地基,需采取加固措施,如铺设垫板等。
2、立杆设置(1)按照施工方案确定的立杆间距进行布置。
(2)立杆底部应安装可调底座,以调整立杆高度和保证垂直度。
3、横杆安装(1)横杆应与立杆垂直,且接头应错开布置。
(2)使用插销将横杆与立杆连接牢固。
4、斜杆安装(1)按照规定的角度和间距设置斜杆,增强脚手架的稳定性。
(2)斜杆两端应与立杆和横杆连接可靠。
5、可调托撑设置(1)在立杆顶部安装可调托撑,用于调整模板标高。
(2)可调托撑的伸出长度不得超过 300mm。
五、盘扣脚手架的使用1、荷载限制(1)严格按照设计要求控制脚手架上的荷载,不得超载。
(2)均匀分布荷载,避免集中堆载。
2、人员作业(1)作业人员应佩戴安全帽、安全带等防护用品。
(2)严禁在脚手架上嬉戏、打闹。
3、定期检查(1)定期对脚手架进行检查,发现问题及时处理。
(2)重点检查构配件的连接是否牢固、有无变形等。
六、盘扣脚手架的拆除1、拆除条件(1)在相关工程施工完毕,经项目负责人确认后方可拆除。
盘扣脚手架技术交底背景在建筑施工中,脚手架的作用不言而喻。
早期使用的是钢管脚手架,不仅造价高昂,搭建维护成本也很高。
随着技术的发展,盘扣脚手架技术应运而生,成为当前广泛使用的新型脚手架。
盘扣脚手架的定义盘扣式脚手架是通过钢管、钢板、扣件、管夹及其他连接件组装而成的支撑体系,形成一个可升降、可拆卸的工作平台结构。
盘扣式脚手架由于结构紧凑、架高度可调、承载力大、施工速度快、安装方便等优点,逐渐成为了建筑领域最主流、最经典的一种通用型脚手架。
盘扣脚手架的优点1. 结构紧凑盘扣脚手架结构紧凑,不仅可减少物料的使用量,也可节约搭建所需的人力和时间。
2. 架高度可调盘扣脚手架安装高度由楼层高度决定,非常灵活,可根据施工目的和要求进行调整,以满足不同的项目需求。
3. 承载力大盘扣脚手架采用优质的钢材制造,具有强度高、承载力大的特点,可满足各类建筑施工的需要。
4. 快速安装盘扣脚手架拆装简便、构件标准化,搭建速度快。
工人在按照脚手架套件组装图进行操作时,可以快速地进行施工。
5. 安装方便盘扣式脚手架支架主体为标准件,采用模块化拼装,拼装和拆卸方便,搬运和储存方便。
盘扣脚手架的施工注意事项在施工中,盘扣脚手架的搭建和使用需要注意以下事项:1.盘扣脚手架在搭建之前,必须经过专业的设计、计算和评析,并按照相关标准和规范进行施工。
2.搭建盘扣脚手架时,必须做好地质勘察、支撑和固定等工作,确保施工安全。
3.盘扣式脚手架的搭建和使用必须严格按照其设计要求进行,任何随意更改或替换构件的行为都是不允许的。
4.盘扣脚手架使用过程中,必须确保其结构稳定、牢固,构件和钢管不得有变形、裂纹等损坏,否则应及时更换。
5.盘扣脚手架使用过程中,应保证若干个基础脚手架的平面在同一水平面。
使用钢管四面支撑,四角固定。
盘扣脚手架支架应支撑在完全牢固不移的平面上。
盘扣脚手架的维护保养在使用盘扣脚手架的过程中,维护保养也是非常重要的。
维护保养可以延长脚手架的使用寿命,提高施工效率,保证施工的安全性。
一、交底目的为确保盘扣式脚手架搭设过程中的安全,预防事故发生,提高施工人员的安全意识,特进行本次安全技术交底。
二、交底内容1. 搭设人员要求- 搭设人员必须持有《特种作业人员操作证》的专业架子工。
- 上岗前必须进行安全教育考试,合格后方可上岗。
2. 搭设材料要求- 所有搭设材料必须符合国家标准,未经检验或检验不合格的材料不得使用。
- 盘扣式脚手架的主要构配件包括立杆、横杆、斜杆、剪刀撑、连墙件、脚手板等。
3. 搭设步骤及要求- 基础处理:搭设前应对地基进行平整、夯实,确保地基承载力满足要求。
- 立杆搭设:立杆底部应配置可调底座,首层立杆宜采用不同长度的立杆交错布置,错开立杆竖向距离500mm。
- 水平杆搭设:相邻水平杆步距宜选用2m,立杆纵距宜选用1.5m或1.8m,且不宜大于2.1m,立杆横距宜选用0.9m或1.2m。
- 斜杆或剪刀撑搭设:沿架体外侧纵向每5跨每层应设置一根竖向斜杆或每5跨间应设置扣件钢管剪刀撑,端跨的横向每层应设置竖向斜杆。
- 连墙件搭设:连墙件必须采用可承受拉压荷载的刚性杆件,连墙件与脚手架立面及墙体应保持垂直,同一层连墙件应在同一平面,水平间距不应大于3跨,与主体结构外侧面距离300mm。
- 脚手板搭设:脚手板应铺设平整,搭接处应牢固,搭接长度不应小于200mm。
4. 安全防护措施- 在盘扣式脚手架支撑体系上作业人员必须穿防滑鞋,正确佩戴安全帽、安全带等防护用品。
- 设置安全警示标志,明确警示内容。
- 定期检查脚手架的稳固性、安全性,发现问题及时整改。
三、注意事项1. 搭设过程中应严格按照施工方案进行,不得随意更改。
2. 搭设过程中应密切注意天气变化,遇大风、雨雪等恶劣天气时,应停止搭设,并将脚手架上的施工人员撤离现场。
3. 搭设过程中应保持施工现场的整洁,不得乱堆乱放材料。
4. 搭设完成后,应对脚手架进行验收,确保符合安全要求。
四、培训要求1. 施工人员必须参加安全技术培训,并取得操作证。
盘扣脚手架技术交底(一)引言:盘扣脚手架是一种常用于建筑施工中的搭建支撑结构的技术,它可以提供稳定的工作平台和安全的工作环境。
本文将对盘扣脚手架技术进行详细交底,包括盘扣脚手架的基本原理、搭建过程、使用注意事项等。
通过本文的学习,读者将能够掌握盘扣脚手架技术,并在实践中合理应用。
正文:1. 盘扣脚手架的基本原理- 盘扣脚手架的结构组成- 盘扣脚手架的工作原理- 盘扣脚手架的优势与特点2. 盘扣脚手架的搭建过程- 盘扣脚手架的准备工作- 盘扣脚手架的基础支撑搭建- 盘扣脚手架的立柱和横梁搭建- 盘扣脚手架的平台搭建- 盘扣脚手架的固定与检查3. 盘扣脚手架的使用注意事项- 盘扣脚手架的安全操作规范- 盘扣脚手架的负荷限制与材料要求- 盘扣脚手架的防护措施- 盘扣脚手架的检修与维护- 盘扣脚手架的拆除与存储4. 盘扣脚手架的应用场景- 盘扣脚手架在高层建筑施工中的应用- 盘扣脚手架在桥梁施工中的应用- 盘扣脚手架在电力设施施工中的应用- 盘扣脚手架在舞台搭建中的应用- 盘扣脚手架在装修工程中的应用5. 盘扣脚手架技术的发展趋势- 盘扣脚手架的智能化与自动化- 盘扣脚手架的安全性与稳定性改进- 盘扣脚手架的材料与结构创新- 盘扣脚手架的施工效率提升- 盘扣脚手架在可持续发展中的应用总结:本文交底了盘扣脚手架技术的基本原理、搭建过程、使用注意事项,以及其应用场景和发展趋势。
通过深入了解盘扣脚手架技术,读者可以更好地掌握其搭建与使用方法,并在实际施工中提升工作效率和安全性。
未来,盘扣脚手架技术仍有许多创新和发展空间,将进一步提高施工效率和推动建筑工程的可持续发展。
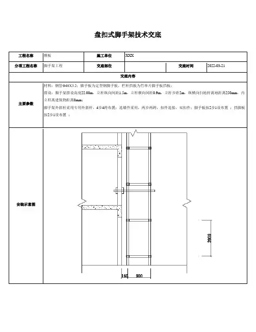
盘扣式脚手架技术交底工程名称模板施工单位XXX分项工程名称脚手架工程交底部位交底时间2022-03-21交底内容主要参数材料:钢管Φ48X3.2;脚手板为定型钢脚手板,栏杆挡板为竹串片脚手板挡板;搭设:脚手架搭设高度22.00m,立杆纵向间距1.5m,立杆横向间距0.9m,立杆步距2m,纵横向扫地杆离地距离250mm,内立杆离建筑物距离0mm;脚手架外斜杆采用专用外斜杆,4步4跨布置;连墙件采用,两步两跨,扣件连接,双扣件;脚手板按2步1设布置;挡脚板按2步1设布置;安装示意图施工工艺流程场地平整、夯实→基础承载力实验、材料配备→定位设置通长垫板、底座→立杆→纵、横向扫地杆→纵、横向横杆→立杆→纵、横向横杆→外斜杆→连墙件→铺脚手板→扎防护栏杆→扎安全网。
质量要求盘扣式脚手架搭设允许偏差质量保证措施1、脚手架的各种材料,在进入施工现场时,应进行检查验收,经检查验收不合格的材料应及时清除出场;2、主要受力杆件的规格、杆件设置应符合专项施工方案的要求;3、地基应符合专项施工方案的要求,应平整坚实,垫板必须铺放平整,不得悬空;4、脚手架在下列情况按进度分阶段进行检查和验收:1)基础完工后及脚手架搭设前;2)首段搭设达到6m时;3)架体随施工进度逐层升高时;4)搭设高度达到设计高度后;5)遇有六级强风及以上风或大雨及冻结的地基土解冻后;6)停用超过一个月,恢复使用前。
5、连墙件应设置牢固;6、剪刀撑、斜撑等的加固杆件应设置齐全,绑扎可靠;7、搭设过程中门洞、转角等部位的构造应符合《建筑施工承插盘扣式钢管脚手架安全技术标准》JGJ231-2021的规定安全保证措施1、作业架立杆应定位准确,并应配合施工进度搭设,双排外作业架一次搭设高度不应超过最上层连墙件两步,且自由高度不应大于4m;2、立杆应通过立杆连接套管承插连接,双排脚手架首层立杆应采用不同长度的立杆交错布置,立杆底部应配置可调底座,地势不平或高层及重载脚手架底部应用立杆可调座,当地基高差较大时,可利用立杆0.5m节点位差进行调整;3、应每隔不大于4跨设置一道竖向或斜向连续斜杆;当架体搭设高度在24m 以上时,应每隔不大于3跨设置一道竖向斜杆;4、承插型盘扣式钢管支架由塔式单元扩大组合而成,在拐角为直角部位应设置立杆间的竖向斜杆。
一、一、交底目的为确保施工现场作业人员安全,提高施工质量,特对盘扣式脚手架的使用进行安全技术交底。
二、二、交底内容1. 脚手架基本知识(1)盘扣式脚手架是一种新型多功能脚手架,具有结构简单、安装快捷、承载能力强、安全性高等特点。
(2)脚手架主要构件包括立杆、横杆、斜杆、连墙件、可调托座、扫地杆等。
2. 搭设要求(1)搭设前应进行现场勘查,了解施工对象情况、地基承载力、搭设高度等因素。
(2)搭设场地必须平整、坚实,有排水措施。
(3)脚手架基础应按设计要求施工,确保基础承载力满足要求。
(4)立杆应垂直、间距均匀,不得歪斜。
(5)水平杆、斜杆应与立杆连接牢固,确保整体稳定性。
(6)连墙件应与建筑物连接牢固,确保脚手架与建筑物的整体性。
(7)可调托座应插入立杆或双槽钢托梁长度不得小于150mm,且丝杆外露长度严禁超过400mm。
(8)模板支架可调托座伸出顶层水平杆或双槽钢托梁的悬臂长度严禁超过650mm。
3. 安全注意事项(1)进入施工现场必须穿戴安全帽、安全带等个人防护用品。
(2)操作人员必须经过专业技术培训和专业考试合格后,持证上岗。
(3)严禁在脚手架上放置超重物品,防止发生倾覆。
(4)严禁攀登、跳跃、抛掷物品等危险行为。
(5)严禁在脚手架上休息、睡觉。
(6)严禁私自拆除、改动脚手架结构。
(7)定期检查脚手架的安全性,发现问题及时整改。
4. 维护保养(1)定期检查脚手架的连接件、立杆、横杆等部件,确保连接牢固。
(2)检查脚手架基础,确保基础承载力满足要求。
(3)定期检查连墙件与建筑物的连接,确保连接牢固。
(4)保持脚手架的清洁,防止杂物堆积。
三、三、责任与义务1. 施工单位应负责脚手架的搭设、拆除及维护保养。
2. 操作人员应遵守安全技术交底要求,确保自身及他人安全。
3. 施工现场管理人员应定期检查脚手架的安全性,发现问题及时整改。
四、四、交底记录1. 本安全技术交底由施工负责人进行交底。
2. 交底时间:____年____月____日。
盘扣式脚手架安全交底范文1. 引言大家好!今天我们要聊聊盘扣式脚手架的安全问题。
别担心,我不会用那些难懂的术语,只要简单明了的讲解。
脚手架安全,听起来像是“老生常谈”,但真的是个至关重要的话题。
我们的目标是让大家在工地上既能安全又能轻松,毕竟“安全第一,工作第二”嘛。
2. 盘扣式脚手架的基本知识2.1 什么是盘扣式脚手架?简单来说,盘扣式脚手架就是那种“像积木一样”拼装起来的脚手架。
它主要由立杆、横杆和扣件组成,稳定性很好,所以工地上特别常见。
你可以把它想象成一组“组合乐高”,不同的部分可以拼接在一起,形成各种形状的脚手架。
这种脚手架有个好处,就是组装和拆卸都比较快,简直是工地上的“效率王”。
2.2 盘扣式脚手架的特点这种脚手架的“金字塔”结构设计,既稳固又安全。
你不需要用太多工具就能快速搭建,几下子就能搞定。
而且它的承载能力强,可以支持各种重型作业。
不过,正因如此,我们在使用的时候可得小心,千万不能大意。
正所谓“好钢用在刀刃上”,咱们的脚手架要用得当,才能真正发挥它的优势。
3. 安全操作规程3.1 搭建前的检查在搭建脚手架之前,咱们得做好一系列的检查工作。
首先要检查所有的部件是否完整,特别是扣件,千万别让它们“变成了花架子”。
然后,要确保地基稳固,避免因地基不平导致脚手架倾斜。
还要检查一下气象条件,不是说你要变成气象专家,但至少得知道风力大小,不然脚手架在风中摇摆可不是闹着玩的。
3.2 搭建过程中的注意事项在搭建过程中,一定要按照设计图纸一步步来,不要偷工减料。
每一个扣件都得紧固到位,不然脚手架的“脚”可能就不稳了。
施工中,工人们得佩戴好安全帽和防护带,避免出现“失足”的情况。
对于脚手架的稳定性,要经常检查,特别是在高空作业的时候。
记住,万事开头难,但只要注意细节,成功就会很简单。
4. 拆卸与维护4.1 拆卸时的注意事项拆卸脚手架时,别急着“拆东墙补西墙”。
要按照规定的顺序一步步拆卸,避免脚手架突然“解体”。
一、交底目的为确保施工现场安全,提高施工人员对盘扣式脚手架安全操作的认识,特进行本次安全技术交底。
二、交底内容1. 安全操作规程(1)施工人员必须经过专业培训,熟悉盘扣式脚手架的构造、性能和操作方法。
(2)操作前应检查脚手架的完整性,确保无损坏、变形、锈蚀等现象。
(3)搭设过程中,应严格按照设计要求进行,不得随意更改。
(4)严禁在脚手架上堆放超负荷物品,严禁攀爬、跳跃。
2. 安全防护措施(1)脚手架应与建筑物拉结牢固,设置防雷装置,接地电阻不得大于4Ω。
(2)模板支架可调托座伸出顶层水平杆或双槽钢托梁的悬臂长度严禁超过650mm,丝杆外露长度严禁超过400mm。
(3)可调托座插入立杆或双槽钢托梁长度不得小于150mm。
(4)模板支架最顶层的水平杆步距应比标准步距缩小一个盘扣间距。
(5)模板支架宜与周围已建成的结构进行可靠连接。
(6)当模板支架体内设置与单肢水平杆同宽的人行通道时,应设置竖向斜杆;当设置不同宽人行通道时,应在通道上部架设支撑横梁。
3. 安全检查与维护(1)定期对脚手架进行检查,发现安全隐患立即整改。
(2)检查内容包括:立杆、横杆、斜杆的连接是否牢固,脚手架的稳定性,防雷接地装置是否有效等。
(3)定期对施工人员进行安全教育和培训,提高安全意识。
4. 事故应急处理(1)发生事故时,立即停止施工,启动应急预案。
(2)迅速组织救援,对受伤人员进行急救。
(3)及时上报事故情况,配合相关部门进行调查处理。
三、交底对象施工现场所有施工人员、管理人员、技术人员。
四、交底时间[具体时间]五、交底人[交底人姓名及职务]六、验收人[验收人姓名及职务]七、注意事项1. 施工人员必须严格遵守安全技术交底内容,确保施工安全。
2. 施工过程中,如遇特殊情况,应及时报告,不得擅自改变安全措施。
3. 定期对施工人员进行安全技术交底,确保施工人员熟悉安全操作规程。
4. 施工单位应加强安全管理,确保施工现场安全有序。
八、附则本安全技术交底自发布之日起执行,如遇特殊情况,应及时修订。
盘扣脚手架技术交底一、工程概况本次施工项目为_____,建筑总面积为_____平方米,建筑高度为_____米。
盘扣脚手架将主要用于主体结构施工阶段的外架防护和模板支撑体系。
二、盘扣脚手架的特点1、稳定性好盘扣脚手架采用独特的圆盘式节点设计,各杆件之间通过插销连接,使得整个脚手架系统形成一个稳定的几何不变体系,大大提高了脚手架的稳定性和承载能力。
2、安全性高横杆和立杆的连接采用自锁式插销,插销在横杆插入立杆后会自动锁定,有效防止横杆脱落,确保施工安全。
3、安装便捷盘扣脚手架的构配件标准化程度高,安装时只需将横杆和立杆按照设计要求插入圆盘节点,并使用锤子敲紧插销即可,操作简单,施工效率高。
4、通用性强盘扣脚手架的杆件规格种类少,通用性强,可根据不同的施工需求灵活组合搭建。
三、盘扣脚手架的组成1、立杆立杆是盘扣脚手架的主要竖向受力杆件,通常采用 Q345 材质的钢管制作,管径一般为 60mm 或 48mm,壁厚为 32mm 或 275mm。
立杆上每隔 05m 设置一个圆盘节点,用于连接横杆和斜杆。
2、横杆横杆是盘扣脚手架的水平受力杆件,管径一般为 48mm,壁厚为275mm。
横杆两端通过插头与立杆上的圆盘节点连接,横杆长度有多种规格,可根据施工需要进行选择。
3、斜杆斜杆是盘扣脚手架的加固杆件,用于增强脚手架的稳定性。
斜杆两端通过插头与立杆上的圆盘节点连接,斜杆的布置方式和间距应符合设计要求。
4、可调底座和可调托座可调底座用于调节脚手架立杆的高度,使其在地面不平整的情况下也能保持垂直。
可调托座用于调节模板支撑体系中主龙骨的高度。
5、脚手板脚手板是施工人员在脚手架上行走和作业的平台,通常采用钢笆片或竹笆片。
6、安全防护设施包括安全网、护身栏杆、挡脚板等,用于保障施工人员的安全。
四、盘扣脚手架的搭设流程1、施工准备(1)熟悉施工图纸和盘扣脚手架的专项施工方案,明确脚手架的搭设位置、高度、尺寸等参数。
(2)对搭设场地进行清理和平整,确保地面坚实、无积水。