各种轴结构改错题目
- 格式:docx
- 大小:234.89 KB
- 文档页数:10
轴结构常见错误总结㈠、轴本身的常见结构错误:⑴、必须把不同的加工表面区别开来;⑵、轴段的长度必须小于轮毂的长度;⑶、必须考虑轴上零件的轴向、周向固定问题;⑷、轴外伸处应考虑密封问题。
㈡、轴承安装的常见错误:⑴、角接触轴承和圆锥滚子轴承①、一定要成对使用;②、方向必须正确,必须正装或反装;③、外圈定位(固定)边一定是宽边。
⑵、轴承内外圈的定位必须注意内外圈的直径尺寸问题①、内圈的外径一定要大于固定结构的直径;②、外圈的内径一定要小于固定结构的直径。
⑶、轴上如有轴向力时,必须使用能承受轴向力的轴承。
⑷、轴承必须考虑密封问题;⑸、轴承必须考虑轴向间隙调整问题。
㈢、键槽的常见错误:⑴、同一轴上各轴段上所有键槽应设计在同一加工直线上;⑵、键槽的长度必须小于轴段的长度;⑶、半圆键不用于传动零件与轴的连接。
㈣、轴承端盖的常见错误⑴、对于角接触和圆锥滚子轴承,轴承端盖一定要顶在轴承的大端;⑵、和机体的联接处必须要考虑轴承的间隙调整问题;⑶、轴承端盖为透盖时,必须和轴有间隙,同时,必须考虑密封问题。
㈤、螺纹的常见错误⑴、轴上螺纹应有螺纹退刀槽;⑵、紧定螺钉应该拧入轴上被联接零件,端部应顶在轴上;⑶、螺纹联接应保证安装尺寸;⑷、避免螺纹联接件承受附加弯矩。
例1.①——定位轴肩过高②——键的长度太短③——两个键应在同一母线上④——齿轮右端没有定位⑤——该传动件不能装入⑥——安装右轴承的轴段应设一轴肩⑦——右轴承与右边的传动件之间应有一个端盖,且有一个密封装置例2.图示为一用对圆锥滚子轴承外圈窄边相对安装的轴系结构。
请按示例①所示,指出图中的其他结构错误。
(注:润滑方式、倒角和圆角忽略不计。
)例①——缺少调整垫片[解]⑴——缺少调整垫片⑵——轮毂键槽不对⑶——与齿轮处键槽的位置不在同一角度上⑷——键槽处表达不正确(应该局部剖视)⑸——端盖孔与轴径间无间隙⑹——多一个键⑺——齿轮左侧轴向定位不可靠⑻——齿轮右侧无轴向定位⑼——轴承安装方向不对⑽——轴承外圈定位超高⑾——轴与轴承端盖相碰例3.①——该处轴端应短于皮带轮左端面⑤——接合面没有密封圈和调整垫片 ②——皮带轮右端未轴向定位⑥——轴承内圈没有定位③——皮带轮没有周向定位⑦——齿轮左右端面没有轴向定位 ④——端盖轴孔处未密封⑧——齿轮没有周例4.①——联轴器左端无轴端挡圈 ②——联轴器无周向固定(缺键) ③——联轴器右端无轴向固定 ④——套筒过高⑤——轴头长度等于轮毂宽度 ⑥——齿轮无周向固定(缺键) ⑦——定位轴肩过高 ⑧——缺调整垫片①③② ④⑤⑥⑤⑥⑦⑦⑧①②④③⑤⑥⑧⑦⑧例5.①——轴承端盖与轴之间应留有间隙 ②——左端轴承内圈和套筒装不上③——与齿轮轮毂相配的轴头长度应小于轮毂长度 ④——齿轮没有周向固定 ⑤——定位轴肩过高⑥——左端轴承应的窄边应与右端轴承的窄边相对安装例6.①轴承端盖与箱体间无调整密封垫片;②推力轴承应成对使用,宽边相对或者窄边相对安装;轴承剖面线内、外圈不一致。
}(1)缺少调整垫片;(2)轮毂键槽结构不对;(3)与齿轮处键槽的位置不在同一角度上;(4)键槽处没有局部剖;(5)端盖孔与轴径间无间隙;(6)多一个键;—(7)齿轮左侧轴向定位不可靠;(8)齿轮右侧无轴向定位;(9)轴承安装方向不对;(10)轴承外圈定位超高;(11)轴与轴承端盖相碰。
^①轴承内圈定位过高②与轮毂相配的轴段长度应短于轮毂长度③键槽过长"④应有调整垫片⑤动静件之间应有间隙应有调整垫片⑥轴承盖处应设密封装置⑦轴段过长,不利于轴承安装,应设计为阶梯轴⑧键槽位置错误⑨联轴器轴向定位错误'>①左端轴承的左端无轴向定位②与轮毂相配的轴段长度应短于轮毂长度③与轮毂相配键槽位置错误④右端轴承的右端无轴向定位⑤右端齿轮处的键槽位置错误⑥右端齿轮处的轴径错误⑦中间齿轮相配轴段过长,不利于轴承安装,应设计为阶梯轴:…①轴端无倒角,装拆不方便;与轮毂相配的轴段长度应短于轮毂长度;②轴肩过高③轴承内圈定位过高④轴段过长,不利于轴承安装,应设计为阶梯轴⑤键槽位置错误,联轴器没有轴向定位。
(①无倒角,轴承装拆不方便;与轮毂相配的轴段长度应短于轮毂长度;②轴肩过高,轴承无法拆卸;③轮毂与轴无键联接,周向固定不可靠;④轴头过长,齿轮装拆不便;》⑤轴与轴承盖无密封件,盖孔与轴间无间隙,动静件未分开,工作时会干涉;一.齿轮轴轴系上的错误结构并改正。
(轴承采用脂润滑,齿轮采用油润滑。
)—"];¥!1.转动件与静止件接触1) 轴与端盖接触;2) 套筒与轴承外圈接触;2.轴上零件未定位、固定3) 套筒顶不住齿轮;4)联轴器没轴向固定及定位;5 )联轴器没周向固定;6)此弹性圈没有用。
3.工艺不合理 (属加工方面)7) 精加工面过长,且装拆轴承不便;8)联轴器孔未打通;9)箱体端面加工面与非加工面没有分开;10)轴肩太高,无法拆卸轴承;11)键过长,套筒无法装入。
12)无调整垫片,无法调整轴承间隙。
轴系结构习题。
a ) 1.圆螺母直径小,不能固定齿轮;安装止动垫片的槽短,止动垫片无法安装到位; 2.锥齿轮轮毂应稍长于轴段的长度;3.圆锥滚子轴承无法安装;轴承滚子画法有误;4.键无法装拆;5.套筒应设计成套杯,以实现轴系位子调整;6.加装调整垫片;7.轴承的支承形式多处错误:按照反安装或正安装的形式进行分析改正,且需要考虑轴承游隙调整;8.轴外伸端应有轴向定位台阶;9.轴的两个键应布置于一条母线上; 10. 少密封装置;8 791051. 加装调整垫片;2. 轴肩过高,圆锥滚子轴承无法拆装;3. 齿轮轮毂应稍长于轴段的长度,以保证齿轮的轴向固定;4. 毡圈密封处的槽应为梯形槽;5. 平键上侧应有间隙;且轴上两个平键应布置于同一条母线上;6. 轴端挡圈没起固定作用;7. 联轴器定位台阶低,联轴器无法定位; 8. 端盖外侧不应与转动件接触;9. 套筒应加长,以保证圆锥滚子轴承与套筒轴向定位;29311. 端盖外径与座之间应有间隙;2. 对于嵌入式端盖,箱体(或轴承座)应为剖分式,剖靣线方向最好上下不同;3. 轴段的长度应稍短,以保证轴承的轴向固定;4. 应有安装止动垫片的键槽;5. 圆螺母处应装有止动垫片;6. 套筒应安装在轴承内圈之间;7. 轴承外圈应有轴向固定,可在孔处加工定位台阶; 8. 轴承内圈应有轴向固定(弹性挡圈等),以防轴承在轴上窜动、脱落; 9. 密封圈方向装反;10. 密封槽压板与轴之间应有间隙;问答题:① 摩擦分类(根据摩擦面间存在润滑剂的情况) ② 磨损的三个阶段 ③ 粘度及其影响因素④ 螺纹联接的四种基本类型 ⑤ 防松的目的和方法 ⑥ 链传动的运动不均匀性 ⑦ 链传动的失效形式⑧ 蜗杆传动的失效形式和设计准则 ⑨ 如平衡计算的目的8627。
轴结构改错题目:3、图示为一用对圆锥滚子轴承外圈窄边相对安装的轴系结构。
请按示例①所示,指出图中的其他结构错误(不少于7处)(7分)(注:润滑方式、倒角和圆角忽略不计。
)例①一一缺少调整垫片[解](1)——缺少调整垫片⑵一一轮毂键槽不对⑶——与齿轮处键槽的位置不在同一角度上(1)——键槽处表达不正确(应该局部剖视)⑸一一端盖孔与轴径间无间隙(1)——多一个键⑺一一齿轮左侧轴向定位不可靠(1)齿轮右侧无轴向定位⑼一一轴承安装方向不对⑵轴承外圈定位超高⑵——轴与轴承端盖相碰4、请说明图示轴系结构中用数字标出位置的错误(不合理)的原因。
(5分)⑴一一轴肩的高度超出了轴承内圈的外径;⑵一一轴段的长度应该小于轮毂的宽度;⑶一一螺纹轴段缺少螺纹退刀槽;(4)——键槽应该与中间部位的键槽在同一母线上布置;⑸一一键的长度应该小于轴段的长度。
轴结构常见错误总结㈠、轴本身的常见结构错误:⑴、必须把不同的加工表面区别开来;⑵、轴段的长度必须小于轮毂的长度;⑶、必须考虑轴上零件的轴向、周向固定问题;⑷、轴外伸处应考虑密封问题。
㈡、轴承安装的常见错误:⑴、角接触轴承和圆锥滚子轴承①、一定要成对使用;②、方向必须正确,必须正装或反装;③、外圈定位(固定)边一定是宽边。
⑵、轴承内外圈的定位必须注意内外圈的直径尺寸问题①、内圈的外径一定要大于固定结构的直径;②、外圈的内径一定要小于固定结构的直径。
⑶、轴上如有轴向力时,必须使用能承受轴向力的轴承。
⑷、轴承必须考虑密封问题;⑸、轴承必须考虑轴向间隙调整问题。
㈢、键槽的常见错误:⑴、同一轴上所有键槽应在一个对称线上;⑵、键槽的长度必须小于轴段的长度;⑶、半圆键不用于传动零件与轴的连接。
㈣、轴承端盖的常见错误⑴、对于角接触和圆锥滚子轴承,轴承端盖一定要顶在轴承的大端;⑵、和机体的联接处必须要考虑轴承的间隙调整问题;⑶、轴承端盖为透盖时,必须和轴有间隙,同时,必须考虑密封问题。
㈤、螺纹的常见错误⑴、轴上螺纹应有螺纹退刀槽;⑵、紧定螺钉应该拧入轴上被联接零件,端部应顶在轴上;⑶、螺纹联接应保证安装尺寸;⑷、避免螺纹联接件承受附加弯矩。
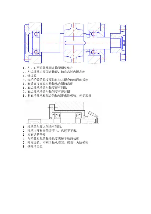
1、左、右两边轴承端盖均无调整垫片
2、左边轴承内圈固定错误,轴肩高过内圈高度
3、键过长
4、齿轮轮毂的长度要长过与其配合的轴段的长度
5、套筒高度高过右边轴承内圈的高度
6、右边轴承端盖与轴要留有间歇
7、右边轴承端盖与轴间要有密封圈
8、和右端轴承相配合的轴端作成阶梯轴,便于装拆
1,轴承盖与轴之间应有间隙。
2,轴承内环和套简装不上,也拆不下来。
3,应有调整垫片
4,与轮毂相配的轴段长度应短于轮毂长度
5,轴段过长,不利于轴承安装,应设计为阶梯轴6,缺轴端定位。
轴的结构改错①轴承端盖与箱体间无调整密封垫片;②推力轴承应成对使用,宽边相对或者窄边相对安装;轴承剖面线内、外圈不一致。
③轴长应比轮毂短④键槽过长⑤端盖孔与轴径间无间隙;⑥端盖无密封油毡⑦多一个套筒,并与轴承端盖接触;⑧无定位轴肩⑨无键槽1.键过长;2.过定位,轮毂宽应大于配合轴段长度;3.轴承内圈轴向定位台肩过高;4.箱体端面应留出和端盖接触的凸台;5.应加密封垫圈,端盖和轴应留有间隙6.应设一轴肩,便于轴承安装;7.应在轴上开设联轴器定位台肩;8.轴头应开设键槽。
斜齿轮圆柱齿轮作用力分析机械式设计中V带传动的优缺点:优点,结构简单、传动平稳、造价低廉、不需要润滑以及缓冲、吸震、易维护等特点。
缺点,滑动损失,滞后损失,空气阻力带传动的弹性滑动和打滑怎么产生的:弹性滑动是必然的,因为皮带的松边和紧边两边的受力不一样,我们取一小段长度皮带A 分析,在安装后在预紧力下肯定会加长些到A+a 的长度了,那么在传动后,紧边的拉力会比预紧力大这样皮带长度就变成了A+a+b 长度,而松边因为拉力比预紧力要小,那么长度会变成A+a-b长度了,那么皮带在从紧边到达皮带轮然后就会转换成松边了这样皮带长度的因为有一个长度差,这个长度差要解决就只能在皮带轮上的弹性滑动来协调了。
而打滑了,说明是皮带和皮带轮的摩擦力是不足以传递这么大的功率了,一般是预紧力不够大或则就是皮带过载了它的能承受的功率。
V 带传动的主要失效形式有哪些:带传动的主要失效形式:带的疲劳损坏和打滑。
设计准则:在保证不打滑的条件下,带传动具有一定的疲劳强度和寿命.带传动的设计步骤:1确定链轮齿数2,初定中心距ao.3,确定链节距4计算链条节数5确定实际中心距a 。
6验算链速7计算作用在轴上的力8计算链轮齿数9链条标记受横向或轴向载荷的紧螺栓联接强度计算1横向载荷F=2500N ,螺栓M27的材料为Q235钢,扳手L=15d ,d 为螺栓的公称直径,螺栓和螺母螺纹之间的当量摩察系数f1=0.16两被连接件摩擦系数f2=0.2螺母支撑断面和被连接件之间的摩擦系数f3=0.18,求预紧力Fs ,扳手上的作用力FT,验算螺栓的强度(1)N f F F F F f S S 150002.12.122==⇒=(2) N N d d F L dF F dF L F T S S S T 200152.02.02.0T 0===⇒≈= (3)查表得此螺栓的小径d 1=23.752mm ,于是有 Mpa d F S 03.4443.121==πσ Q235钢σs =238Mpa当d=27mm 时,[σ]=0.476σs =110.40Mpa>44.04Mpa此螺栓强度符合条件齿轮接触或弯曲疲劳强度计算:单级直齿圆柱齿轮减速器,齿轮齿数z1=20,z2=80齿顶圆直径da1=110mm ,da2=410mm 齿宽b=60mm 小齿轮材料为45钢,齿面硬度220HBS ,大齿轮材料ZG310-570,硬度180HBS ,齿轮精度8级齿轮相对轴承对称布置,现想把此减速器用于带式输送机上,需输出转速n2=240r/min ,单向转动,求其传递的最大功率1)确定齿轮模数m 和中心距amm mm h z d m a a 512201102*11=⨯+=+=()()mm mm z z m a 25280205221=+⨯=+=2 )该减速器能传递的最大功率[]()3211335+⎪⎭⎫ ⎝⎛=i K bi a T H σ确定许用接触应力[]Hσ(取两者小值) []()M MP HBS H 532207.03807.03801=⨯+=+=σ[]()M MP HBS H 431807.03807.03102=⨯+=+=σ因齿轮相对轴承对称布置,取动载系数K=1.3传动比 4208012===z z i 将各数值带入公式中得 mm N mm N T ⋅⨯=⋅⨯⨯⨯⎪⎭⎫ ⎝⎛⨯=53211056.153.1460335250436该齿轮传递能传递的最大功率kW kW n T P 72.151095524041056.110955454111=⨯⨯⨯⨯=⨯= 3 )按1P验算齿轮的弯曲强度 许用弯曲应力[]()M MP HBS F 182202.01402.01401=⨯+=+=σ []()M MP HBS F 151802.01202.01202=⨯+=+=σ 查齿形系数,2.2,80;79.2,202211====F F Y z Y z由于[][]2211014.0015.0F F F F Y Y σσ=>=,所以应验算小齿轮。
轴系结构改错题(共8题)1、 在图示轴的结构图中存在多处错误,请指出错误点,说明出错原因,并加以改正。
图4-1解:○1.无垫片;○2无间隙、无密封○3键太长○4无定位轴肩○5无轴肩 ○6套筒高于圈高度○7轴和轮毂一样长,起不到定位作用; ○8无定位;○9无垫片○10采用反装。
修改后图:162873549102、指出图中的结构错误(在有错处画○编号,并分析错误原因),并在轴心线下侧画出其正确结构图。
解:画出的正确结构图如图。
①固定轴肩端面与轴承盖的轴向间距太小。
②轴承盖与轴之间应有间隙。
③轴承环和套简装不上,也拆不下来。
④轴承安装方向不对。
⑤轴承外圈与壳体壁间应有5-8mm间距。
⑥与轮毂相配的轴段长度应小于轮毂长。
⑦轴承圈拆不下来。
3、指出图中的结构错误(在有错处画○编号,并分析错误原因),并在轴心线下侧画出其正确结构图。
解:画出的正确结构图如图。
①轴的右端面应缩到联轴器端面1~2mm,轴端挡圈压到联轴器端面上,与轴端面留有间隙;②联轴器与透盖不能接触,联轴器应右移;③联轴器与轴配合直径应小一点,形成轴肩定位;④联轴器处联接平键与蜗轮处联接平键应在一条线上;键与毂孔键槽底面间应有间隙;⑤右轴承圈左端面只能与套筒端面接触,与轴肩端面应有间隙,所以套筒轴颈右端面应左移1~2mm;⑥与蜗轮轮毂配合轴颈长度应比轮毂长短1~2mm,轴颈右端面缩进去;⑦左轴承圈不能被轴环全挡住,轴环左部轴径减小至圈厚度的2/3左右;⑧透盖和闷盖外圆外侧应倒角,与箱体间均应有调整垫片。
⑨轴的左端伸出轴承圈过长,应缩短一点。
4、指出图4-2中的结构错误,轴承采用脂润滑(有错处有编号,分析错误原因,说明改正措施)。
解:1.应设密封圈并留间隙;2.套筒不可同时接触、外圈;3.轮毂应比轴段长1-2mm;4.联轴器应给定位台阶;5.应有绩作用向定位;6.此处不必卡圈固定圈;7.轴承圈装入应有台阶;8.联轴器应为通孔,且应有轴端档圈固定;9.箱体端盖应有加工凸台并加垫片;10.轴环高不能超过圈厚度;11.键太长,套筒不能起定位作用;12.轴承盖凸缘应切倒角槽;13.应加挡油环。
轴系结构改错题(共7题)1、在图示轴的结构图中存在多处错误,请指出错误点,说明出错原因,并加以改正。
解:1.此处螺栓连接用该有垫片;2 轴承端盖与轴之间应该有间隙,并且配有密封。
3键的位置和尺寸不合适 4无定位轴肩5无轴肩 6套筒直径太大,不应该超过轴承内圈高度;7轴和轮毂一样长,起不到定位作用;8无定位;9无垫片10采用反装。
2、指出图中的结构错误(在有错处画○编号,并分析错误原因),并在轴心线下侧画出其正确结构图。
解: 画出的正确结构图如图。
①轴的右端面应缩到联轴器端面内1~2mm ,轴端挡圈压到联轴器端面上,与轴端面留有间隙; ②联轴器与透盖不能接触,联轴器应右移; ③联轴器与轴配合直径应小一点,形成轴肩定位;④联轴器处联接平键与蜗轮处联接平键应在一条线上;键与毂孔键槽底面间应有间隙; ⑤右轴承内圈左端面只能与套筒端面接触,与轴肩端面应有间隙,所以套筒内轴颈右端面应左移1~2mm ;⑥与蜗轮轮毂配合轴颈长度应比轮毂长短1~2mm ,轴颈右端面缩进去; ⑦左轴承内圈不能被轴环全挡住,轴环左部轴径减小至内圈厚度的2/3左右; ⑧透盖和闷盖外圆外侧应倒角,与箱体间均应有调整垫片。
⑨轴的左端伸出轴承内圈过长,应缩短一点。
3、试分析指出图中所示轴系结构中的错误,说明原因。
图中齿轮用油润滑,轴承用脂润滑。
解: 每指出1个错误得1分,说明错误原因得1分。
总分不超过10分。
存在问题分析: (1)轴承的轴向固定、调整,轴向力传递方面错误1)轴系采用全固式结构,两轴承反装不能将轴向力传到机架,应该为正装。
2)全固式结构中,轴左端的弹性挡圈多余,应去掉。
3)端盖处没有调整垫片,不能调整轴承游隙。
(2)转动零件与固定零件接触,不能正常工作方面错误1)轴的右端面应缩到联轴器端面内1~2mm ,轴端挡圈压到联轴器端面上,与轴端面留有间隙; 2)轴与右端盖之间不能接触,应有间隙。
3)定位齿轮的套筒径向尺寸过大,与轴承外圈接触。
机械设计(轴系改错)一.齿轮轴轴系上的错误结构并改正。
(轴承采用脂润滑,齿轮采用油润滑。
)1.转动件与静止件接触1) 轴与端盖接触;2) 套筒与轴承外圈接触;2.轴上零件未定位、固定 3) 套筒顶不住齿轮;4)联轴器没轴向固定及定位; 5 )联轴器没周向固定; 6) 此弹性圈没有用。
3. 工艺不合理 (属加工方面)7) 精加工面过长,且装拆轴承不便; 8) 联轴器孔未打通;9) 箱体端面加工面与非加工面没有分开; 10) 轴肩太高,无法拆卸轴承; 11) 键过长,套筒无法装入。
12) 无调整垫片,无法调整轴承间隙。
4.润滑与密封问题13) 轴承脂润滑无档油环;14) 轴承与轴直接接触且无密封。
二.锥齿轮轴系结构中的错误,并画出正确结构结构图,锥齿轮为油润滑,滚动轴承为脂润滑。
1.零件的固定(1) 轴承外圈不定位不固定;(2) 其轴端装联轴器时,没有轴向定位轴肩。
2. 调整与预紧(3) 无垫片,不能调整轴承游隙。
无套杯及垫片结构,不能调整锥齿轮的位置。
3.转动件与固定件接触摩擦(4) 端盖固定而轴转动,应该有间隙。
4. 加工与装配(5) 箱体端面的加工部份与不加工部分没分开。
(6) 缺台阶,使精加工面过长,且装拆轴承时压配距离过长,不方便。
(7) 凹进去太少,齿加工不方便。
(8) 端盖的端面加工部分与不加工部分没有分开。
(9) 锥齿轮直径大,箱体孔直径小,锥齿轮轴不能装入(设箱体是整体式不是剖分式)。
(10) 轴的此种结构使前轴承装不进去。
(11) 键的位置不正确,使端盖装不进去。
5.润滑与密封(12) 缺挡油盘。
(13) 缺注油孔。
(14) 缺密封。
6. 结构刚度(15) 轴承支点距离约为锥齿轮悬臂端伸出距离的2倍,为保证轴系的运转刚度,支点距不宜过小。
感谢您的阅读,祝您生活愉快。
轴系结构改错题
1. 错误:将 x 轴和 y 轴的标签颠倒了。
改正:将 x 轴的标签放在 x 轴上,将 y 轴的标签放在 y 轴上。
2. 错误:将两个不同的数据集放在同一条坐标轴上,导致数据之间无法区分。
改正:将每个数据集分别放在不同的坐标轴上,或者使用不
同颜色和符号来区分它们。
3. 错误:将轴的刻度标记设置得太密集,导致图表难以解读。
改正:将刻度标记调整为适当的间隔,以便更清晰的显示数据。
4. 错误:未标注轴的单位,导致读者无法理解图表的含义。
改正:在轴上注明单位,以确保读者能够正确理解数据。
5. 错误:将轴的起点设置得不正确,导致数据无法准确呈现。
改正:确保轴的起点和标记正确设置,以确保数据能够准确
呈现。
各种轴结构改错题目轴结构改错题目:3、图示为一用对圆锥滚子轴承外圈窄边相对安装的轴系结构。
请按示例①所示,指出图中的其他结构错误(不少于7处)(7分)(注:润滑方式、倒角和圆角忽略不计。
)例①一一缺少调整垫片[解]⑴缺少调整垫片⑵一一轮毂键槽不对⑶——与齿轮处键槽的位置不在同一角度上⑷一一键槽处表达不正确(应该局部剖视)⑸一一端盖孔与轴径间无间隙⑹——多一个键⑺ 齿轮左侧轴向定位不可靠⑻ 齿轮右侧无轴向定位⑼一一轴承安装方向不对(⑽ 轴承外圈定位超咼(11)——轴与轴承端盖相碰4、请说明图示轴系结构中用数字标出位置的错误 合理)的原因。
(5分)⑴一一轴肩的高度超出了轴承内圈的外径;⑵一一轴段的长度应该小于轮毂的宽度;⑶——螺纹轴段缺少螺纹退刀槽;⑷——键槽应该与中间部位的键槽在同一母线上布置.⑸一一键的长度应该小于轴段的长度。
轴结构常见错误总结㈠、轴本身的常见结构错误:⑴、必须把不同的加工表面区别开来;⑵、轴段的长度必须小于轮毂的长度;⑶、必须考虑轴上零件的轴向、周向固定问题;⑷、轴外伸处应考虑密圭寸问题。
㈡、轴承安装的常见错误:⑴、角接触轴承和圆锥滚子轴承①、一定要成对使用;②、方向必须正确,必须正装或反装;③、外圈定位(固定)边一定是宽边。
⑵、轴承内外圈的定位必须注意内外圈的直径尺寸问题①、内圈的外径一定要大于固定结构的直径;②、外圈的内径一定要小于固定结构的直径。
⑶、轴上如有轴向力时,必须使用能承受轴向力的轴承。
⑷、轴承必须考虑密封问题;⑸、轴承必须考虑轴向间隙调整问题。
㈢、键槽的常见错误:⑴、同一轴上所有键槽应在一个对称线上;(2)、键槽的长度必须小于轴段的长度;⑶、半圆键不用于传动零件与轴的连接。
㈣、轴承端盖的常见错误⑴、对于角接触和圆锥滚子轴承,轴承端盖一定要顶在轴承的大端;⑵、和机体的联接处必须要考虑轴承的间隙调整问题;⑶、轴承端盖为透盖时,必须和轴有间隙,同时,必须考虑密封问题。
㈤、螺纹的常见错误⑴、轴上螺纹应有螺纹退刀槽;⑵、紧定螺钉应该拧入轴上被联接零件,端部应顶在轴上;⑶、螺纹联接应保证安装尺寸;⑷、避免螺纹联接件承受附加弯矩。
润滑。
图11.6 11.7解题过程及要点:(1)轴系上零件的选用及结构表达;(2)支点轴向固定结构;(3)轴系上零件的相互位置关系(动件与静件接触、轴上零件定位和固定);(4)结构工艺性(加工、装拆、调查);(5)润滑和密封;(6)绘图表达等其他错误。
此轴系结构的主要错误如下:(1)凸缘式半联轴器无法联接,缺少联接螺栓孔;(2)联轴器孔应该打通;(3)联轴器周向未定位,应添加定位平键;(4)联轴器轴向未定位,在配合轴段应留有定位阶梯;(5)箱体外壁的加工面与非加工面没有分开,会造成轴承端盖安装不可靠或精加工面过大等问题;(6)轴与轴承端盖间应留有间隙。
轴系工作时,轴带动齿轮高速旋转,而轴承端盖保持静止,动静件间不能直接紧密接触;(7)轴与轴承端盖分开后,应添加密封圈;(8)无法调整轴承游隙,应添加调整垫片;(9)轴精加工面过长且装拆轴承不方便,应留有装配工艺阶梯轴;(10)套筒高度超过轴承内圈高度与轴承外圈接触,增添轴承拆卸难度,且与静件外圈直接接触;(11)齿轮的轴向定位不可靠,应留有“定位小窗口”;(12)键过长,套筒无法安装;(13)轴环高度过高,超过轴承内圈高度,不利于轴承拆卸;(14)因轴承采用脂润滑,应在轴承座孔的箱体内壁面处增加挡油盘;(15)此轴系轴承采用双端单向固定的安装方式,不需要安装弹性挡圈。
改正后的正确结构见图11.7。
精密机械设计第一章精密机械设计的基础知识1、什么是机械?答:一般认为它是“机器”和“机构”的总称2、机器的基本组成要素是什么?答:机械零件3、机器的基本组成部件是什么?答:各种机构4、什么叫部件?答:几个零件的组合体称为部件第七章摩擦轮传动和带传动1.摩擦轮传动的工作原理是什么?答:摩擦轮传动是利用两轮直接接触所产生的摩擦力来传递运动和动力。
2.带传动的工作原理是什么?答:当主动轮转动时,利用带与带轮接触面间产生的摩擦力来传递运动和转矩。
3.摩擦轮传动和带传动有何优缺点?答:主要优点是:1 )传动零件的结构简单,易于制造;2)传动平稳,工作时噪声很小;3)用作变速传动时,传动比调节简便;4)过载时,传动件间产生滑动,可对零件实施过载保护。
主要缺点是:1 )不能保持恒定的传动比,传动精度低;2 )不易传递较大转矩,机构不紧凑;3)传动件工作表面磨损较快,寿命低;4)传动效率低。
4.何为摩擦轮传动和带传动的弹性滑动和打滑?弹性滑动和打滑各是什么原因引起的?对传动的影响是什么?二者的性质有何不同?答:弹性滑动是由于材料弹性变形而产生的滑动;当它在从动轮上产生的驱动转矩小于从动轮实际阻转矩时,接触面即产生。
打滑是摩擦轮传动的非正常工作状态,经常打滑,摩擦轮表面将产生严重磨损,传动寿命降低。
滑动是由于带有弹性,且松边紧边存在拉力差所产生的,使v 1>v2,不可避免。
过载打滑由于载荷过大,需要传递的圆周力超过最大摩擦力而引起。
5.带传动的类型有那些?答:传动带可分为平型带、V带、圆形带、多楔带和靠啮合传动的同步齿形带等。
6.与平带传动相比,V带传动有何特点?答:V带的摩擦力大约相当平型带的三倍,V带传递功率的能力比平型带大。
7.带传动所能传递的最大有效圆周力与那些因素有关?为什么?答:张紧力Fo,包角a,当量摩擦系数fo。
当Fo和a一定时,fo越大,Ft越大。
8.带传动时,带中所受的应力有那几种?带中所受最大应力应在何处?答:1、拉力产生的拉应力2惯性离心力产生的拉应力3、弯曲应力cB;最大应力发生在带紧边进入小带轮处。
第八章齿轮传动1. 齿轮传动的主要特点是什么?缺点是什麽?答:传动比准确(稳定、精确);结构紧凑;工作可靠;效率高;寿命长;适用范围广。
缺点:制造精度要求高;成本较高;不适用较大中心距传动。
2. 齿轮传动有那些失效形式?各是什麽原因造成的?答:1、轮齿折断:一是轮齿因短时过载或冲击过载而引起的折断,另外是齿轮在多次重复的交变应力作用下引起的疲劳折断。
2、齿面点蚀齿:面因交变应力接触导致齿面产生疲劳点蚀3、齿面胶合:在高速重载情况下工作的齿轮,由于其滑动速度大而导致瞬时温度过高,使油膜破裂而产生粘焊,从而引起的胶合称为热胶合。
在低速重载情况下,由于齿面应力过大,相对速度低,油膜不易形成,使接触处产生了局部高温而发生的胶合,称为冷胶合。
4、齿面磨损:金属微粒、灰尘、异物等落入相啮合的齿面之间5、塑性变形由于主动轮齿齿面上所受到的摩擦力背离节线,分别朝向齿顶和齿根作用,因此产生塑性变形后,齿面上节线附近就下凹;从动轮轮齿表面所受到的摩擦力则分别由齿顶及齿根朝向节线作用,产生塑性变形之后,齿面上节线附近就上凸。
3. 一般用途的齿轮传动规定的标准压力角为多少?答:20°4. 斜齿轮传动有何特点?螺旋角B应如何确定?答:同时啮合的齿数较多,重合度比直齿轮大,与直齿轮相比传动平稳,承载能力较高,适用于高速重载,且冲击和噪声小。
螺旋角B:考虑重合度和轴向力,一般单斜齿轮传动中,在中心距、齿距、模数等确定下,常用B = 8。
•-15。
第十章轴、联轴器、离合器1.轴的功能是什么?按照所受的载荷和应力的不同,轴可分为几种类型?又各有何特点?答:功用:轴是机器中的重要零件之一,支撑旋转零件,传递运动和动力。
转轴:既传递转矩又承受弯矩;传动轴:只传递转矩而不承受弯矩或弯矩很小;心轴:只承受弯矩。
2.轴上零件的轴向固定有那些方法?有何特点?轴上零件的周向固定有那些方法?有何特点?答:轴向固定:常用轴肩、套筒、圆螺母(止退垫圈)和轴端挡圈等固定形式。
轴肩定位:最方便可靠的方法;套筒定位:结构简单可靠,不需开槽、钻孔和切制螺纹,不影响疲劳强度。
轴端挡圈:适用于轴端零件,可承受较大轴向力。
周向固定:常采用键联接、销联接、过盈配合(轴承内圈)、紧定螺钉等固定形式。
键联接简单方便、花键和过盈配合能承受较大的转矩。
3.轴上为什么要有过渡圆角、到角、中心孔、砂轮越程槽和螺纹退刀槽?答:过度圆角:减小集中应力;倒角:去锐角,防刮伤;中心孔:加工时定位、对中;越程槽:为了工件表面光泽度一制,因为沙轮磨到工件根部时人的潜意识就回往回摇手把,工件根部往往磨不上,所以要切槽。
退刀槽:车牙时退牙刀用还可以使螺牙平整。
4.联轴器可分为哪两大类?各使用于何种场合?答:联轴器:冈『性联轴器,用于两轴能严格的对中并在工作中不发生相对唯一的地方;弹性联轴器,用于两轴有相对位移的地方。
第十一章支承滚动轴承1.滚动轴承主要由哪些零件组成?答:由内圈、外圈、滚动体和保持架等四种零件组成。
2.滚动体主要由哪些形状?答:球、圆柱滚子、圆锥滚子、鼓形滚子、滚针3.按外载荷不同,滚动轴承可分为哪三大类?答:按承受载荷的方向的不同,分为向心轴承、推力轴承和向心推力轴承三大类。
4.滚动轴承代号的构成?答:轴承由前置代号、基本代号(类型代号、尺寸系列代号、内径代号)和后置代号组成。