涵洞工程图
- 格式:ppt
- 大小:7.32 MB
- 文档页数:28
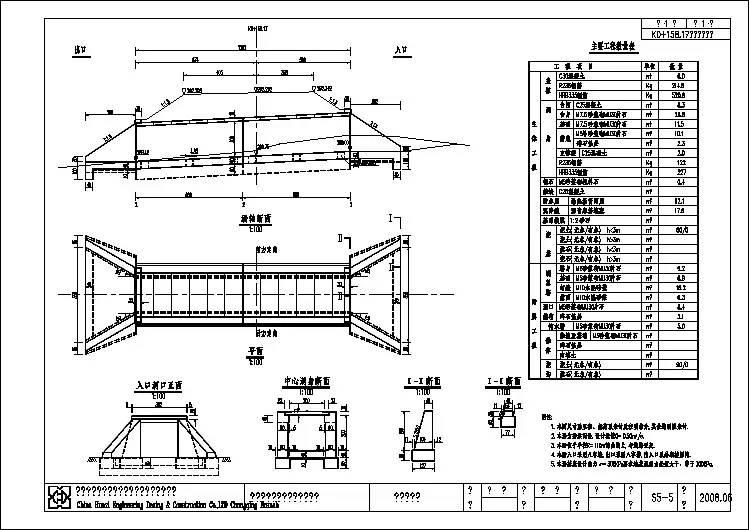
涵洞通用图-00004总目录国道318线林芝至拉萨段公路改造工程林芝至工布江达段第二合同段(K4229+430~K4264+800)序号图表名称图表编号数量备注1234535)路基、路面排水工程设计图S3-2-35第一分册36)紧急停车带设计图S3-2-36第四篇桥梁、涵洞第四册共五分册1说明S4-1第一分册2特大、大、中桥桥梁表S4-2第一分册3特大、大、中桥设计图S4-34小桥桥梁表S4-4本段无5小桥设计图S4-5本段无6涵洞工程数量表S4-6第一~三分册7涵洞设计图S4-78渡槽表S4-8本段无9渡槽设计图S4-9本段无10桥梁、涵洞通用设计图S4-10第四~五分册第五篇隧道本段无第六篇路线交叉第五册共一分册S6-12互通式立体交叉一览表S6-23互通式立体交叉设计图表S6-34服务设施主体工程设计图表S6-45分离式立体交叉设计图表S6-56通道设计图表S6-67天桥设计图表S6-7本段无8平面交叉设计图表S6-8本段无第七篇交通工程及沿线设施第六册共三分册1总体设计S7-1第一分册2监控系统S7-23通信系统S7-3第二分册第 2 页共 3 页序号图表名称图表编号数量备注123454房屋建筑S7-4第三分册第八篇环境保护与景观设计第七册共一分册1设计说明S8-12环境保护工程数量表S8-23环境保护工程设计图S8-34水土保持工程数量表S8-45水土保持工程设计图S8-56备选植物特性一览表S8-67景观工程数量表S8-78绿化景观工程设计图第九篇其他工程第八册共一分册1说明S9-12其他工程数量表S9-23其他工程设计图S9-3第十篇筑路材料第八册共一分册1说明S10-12沿线筑路材料料场表S10-23沿线筑路材料试验资料表S10-34沿线筑路材料供应示意图S10-4第十一篇施工组织计划第八册共一分册1说明S11-12施工便道主要工程数量表S11-23临时工程数量表S11-34公路临时用地表S11-45施工便道设计图S11-56工程概略进度图S11-6。