欧式箱式变电站
- 格式:docx
- 大小:180.64 KB
- 文档页数:3
探析变电站欧式箱变的结构和微机保护应用摘要:欧式箱变(简称欧变)是将已通过试验的高压开关柜、变压器、低压开关柜组合在一起。
可确保重要用户的供电可靠性。
关键词:变电站欧式箱变微机保护1.欧式箱变的结构和应用欧式箱变(简称欧变)是将已通过试验的高压开关柜、变压器、低压开关柜组合在一起。
我国自20世纪80年代初开始自行研制这种箱变,并对此制定了相应的技术标准,现行有效的标准有《高压、低压预装式变电站》(GB/T17467-1998)、《高压、低压预装箱式变电站选用导则》(DL/T537-2002)、《箱式变电站技术条件》(SD320-89)和《组合式变电所》(ZBK40001-89)。
欧变的高压室、变压器室和低压室可按“目字型”或“品字型”布置。
“目字型”布置与“品字型”布置相比,“目字型”接线较为方便,故大都采用“目字型”布置。
欧变有多种高压接线方式,常用的高压接线方案有:终端、双电源、环网等接线方式。
在高压回路中,通常采用负荷开关与限流熔断器组合的保护方式,负荷开关通常采用真空或SF6开关,额定电流为630A,动、热稳定电流分别为50kA和20kA。
变压器通常采用常规的、性价比高的油浸式或干式变压器,如S11系列等。
低压接线方案非常繁多,出线保护多采用空气开关或刀熔开关,回路最多可达20路;具有无功补偿和多路计量功能;目前根据市场的需求;亦有安装低压电源自动转换开关的产品,可确保重要用户的供电可靠性。
2.欧式箱变的应用要点一是应有降温措施。
欧变的变压器一般放在箱体内,夏季在太阳光的照射下变压器室温度很高,散热困难。
因此GB/T17467标准做了规定:变压器在外壳内部的温升超过同一变压器在外壳外部测得温升的差值,不应大于外壳级别规定的数值,如10K、20K或30K,否则必须采取降温措施。
防日照辐射的措施主要有:在变压器的四周壁添加隔热材料;采取双层夹板结构;顶盖采用空气垫或隔热材料的气楼结构。
强迫通风措施。
箱式变电站(简称箱变)一般由高压室、变压器室和低压室组成。
根据产品结构不同及采用元器件的不同,分为欧式箱变和美式箱变两种典型风格。
我国自70年代后期,从法国、德国等国引迚及仿制的箱式变电站,从结构上采用高、低压开关柜,变压器组成方式,这种箱变称为欧式箱变,形象比喻为给高、低压开关柜、变压器盖了房子。
从90年代起,我国引迚美国箱式变电站,在结构上将负荷开关,环网开关和熔断器结构简化放入变压器油箱浸在油中。
避雷器也采用油浸式氧化锌避雷器。
变压器取消油枕,油箱及散热器暴露在空气中,这种箱变称为美式箱变,形象比喻为变压器旁边挂个箱子。
从体积上看,欧式箱变由于内部安装常规开关柜及变压器,产品体积较大。
美式箱变由于采用一体化安装体积较小。
从保护方面,欧式箱变高压侧采用负荷开关加限流熔断器保护。
发生一相熔断器熔断时,用熔断器的撞针使负荷开关三相同时分闸,避免缺相运行,要求负荷开关具有切断转移电流能力。
低压侧采用负荷开关加限流熔断器保护,美式箱变高压侧采用熔断器保护,而负荷开关只起投切转换和切断高压负荷电流的功能,容量较小。
当高压侧出现一相熔丝熔断,低压侧的电压就降低,塑壳自动空气开关欠电压保护或过电流保护就会动作,低压运行不会发生。
从产品成本看,欧式箱变成本高。
从产品降价空间看,美式箱变还存在较大降价空间,一方面美式箱变三相五柱铁心可改为三相三柱铁心,另一方面,美式箱变的高压部分可以改型后从变压器油箱内挪到油箱外,占用高压室空间。
一、产品结构不同、采用的元器件不同1 、美式箱变:1)箱变的接线形式:一路或两路10KV 迚线;单台变压器,容量一般选用500KVA~800KVA; 低压出线电缆4~6 路2)箱变的主要部件:变压器、10KV 环网开关、10KV 电缆插头、低压桩头箱体等主要部件组成。
它具体积小、有造价低便于安装等优点。
美式箱变的优缺点1)优点:体积小占地面积小、便于安放、便于伪装,容易与小区的环境相协调。
ZBW系列高压/低压预装式变电站(欧式箱变)1.产品介绍:ZBW系列预装式变电站又称欧式箱变,是由高压开关柜,低压配电屏,配电变压器及外壳四部分组合而成,作为一种新型供配电装置,它比传统土建变电站具有许多优越性。
由于它体积小,占地面积小,结构紧凑,便于搬迁,因而大大缩短了基建的周期和占地面积,也减少了基建费用。
同时,箱式变电站现场安装简单,供电迅速,设备维修简单,无须专人值守,特别是它可以深入负荷中心,对提高供电质量减少电能损失,增强供电的可靠性以及对配电网络改造都是十分重要的。
箱变完成电能的变换、分配、传输、计量、补偿,系统的控制、保护及通讯等功能。
ZBW系列预装式变电站是我公司消化吸收国内外的先进技术自行开发的国产化欧式箱变,它具有结构紧凑、成套性强、安装维护方便、安全可靠、外形美观等优点,产品广泛应用于城市基础设施、住宅小区、宾馆、医院、厂矿、油田、机场、铁路、码头等户外供电场所。
ZBW系列预装式变电站分环网型、终端型及双电源供电三种方式,适用于电压等级35KV及以下,主要容量2000KVA及以下的小型无人值守变电站,城市工业变电站,10KV开闭所、环网系统、农网35KV 变电站等场合。
2.技术标准:本产品符合GB17467-1998《高低压预装式变电站》和IEC1330等标准。
3.使用环境及条件:海拔≤1000m风速≤34m/s(不大于700Pa)环境温度:最高气温+40℃,最低气温-35℃;相对湿度:日平均值不大于95%,月平均值不大于95%防震:水平加速度不大于0.4m/s2,垂直加速度0.15m/s2安装地点倾斜度:不大于3°安装在没有火灾、爆炸危险、严重污秽、化学腐蚀及剧烈震动的场所。
超出上述条件的规定时,可与公司协商。
4.产品结构及特点:A、变电站结构呈“目”字形或“品”字形布置;B、产品壳体材料采用铝合金板、不锈钢板、复合板、玻璃纤维增强水泥板等;C、变电站底座为镀锌槽钢或水泥制作,耐腐蚀性强,具有足够的机械强度;D、箱体顶盖采用双层结构,具有良好的隔热、防辐射和通风效果;E、变电站各室用铁板隔开形成独立的小室,各室均设有照明设施变压器室顶部装有自动排风装置,来调节变压器室温度;F、箱变箱体颜色灵活,可与周围环境协调。
环保型非金属预装箱式变电站XXXXX有限责任公司目录1 总则2 使用环境条件3 技术参数和要求4 试验5 供货范围6 技术资料和图纸交付进度7 运输要求8 技术服务1.总则1.1本设备技术规范书适用于10kV欧式(预装式)箱变,技术规范书提出了该产品的功能设计、结构、性能、和试验等方面的技术要求。
1.2需方在本规范书中提出了最低限度的技术要求,并未规定所有的技术要求和适用的标准,未对一切技术细则作出规定,也未充分引述有关标准和规范的条文,供方应提供一套满足本规范书和现行有关标准要求的高质量产品及其相应服务。
1.3如果供方没有以书面形式对本规范书的条款提出异议,则意味着供方提供的设备(或系统)完全满足本规范书的要求。
如有异议,应在投标书中以“对规范书的意见和与规范书的差异”为标题的专门章节加以详细描述。
1.4本设备技术规范书经需供双方确认后作为订货合同的技术附件,与合同正文具有同等的法律效力。
1.5供方须执行现行国家标准和行业标准。
应遵循的主要现行标准如下。
本技术规范出版时,所示版本均为有效。
所有标准都会被修订,供需双方应探讨使用下列标准最新版本的可能性。
有矛盾时,按现行的技术要求较高的标准执行。
DL/T 537-2002 《高压/低压预装箱式变电站选用导则》DL/T 537-1993 《6~35kV箱式变电站订货技术条件》GB311.1-1997 《高压输变电设备的绝缘配合》GB/T6451-1999 《三相油浸式电力变压器技术参数和要求》GB6450-1986 《干式电力变压器》GB11022-1999 《高压开关设备和控制设备标准的共用技术要求》GB3804-1990 《3~63kV交流负荷开关》GB7328-1987 《电力变压器和电抗器的声级测定》2.使用环境条件2.1周围空气温度:最高气温:+40℃最低气温:-15℃最高日平均气温:+30℃最高年平均气温:+20℃最大日温差:25K2.2 海拔:不超过1000m;2.3 风速:不大于25m/s;2.4 环境湿度:月平均值不大于90%;日平均值不大于95%;2.5 耐地震能力地震烈度:8级地面水平加速度: 0.2g;地面垂直加速度:0.1g;2.6安装地点的倾斜度:不大于3°2.7考虑日照、污秽、凝露及自然腐蚀的影响。
10kv欧式箱式变变电站,基础知识分享!一、概述10kv欧式箱式变电站(简称欧变)是预装式箱式变电站的一种,是将高压设备、变压器、低压设备按照科学排列方法安装在钢结构箱体内的成套配电装置。
广东紫光电气欧变可以将高压电源转化为用户正常使用的380v/220v电能,作为用户分配电能之用。
欧式箱变二、结构1、箱体外壳欧式箱变箱体外壳以钢结构为主体,四面可根据不同使用环境可采用复合夹心板、不锈钢板、冷轧板、不锈钢板镶嵌防腐木、混凝土墙等,做到与环境相协调。
2、高压室欧式箱变高压室安装高压进线柜、高压出线柜、高压计量柜、PT 柜、直流屏等装置,高压开关柜主要以XGN15-12型环网柜和XGN□-12型充气柜为主,操作简单,使用安全。
3、变压器室欧式箱变变压器室安装干式变压器或油浸式变压器,室内安装温度控制器和大功率风机,变压器高压端采用电缆连接,低压端采用优质铜排连接,裸露部分采用绝缘套管包裹。
4、低压室欧式箱变低压室主要采用GGD型低压开关柜,根据需求可配置低压进线、低压计量、低压补偿、低压出线等开关柜,可实现智能操控,无需专人看守。
原理欧式箱式变电站和传统土建电房原理基本一样,都是高压电源通过高压开关设备进来,经过变压器降压,再通过低压开关柜分配电能。
因为欧式箱式变电站采用箱体外壳结构,所以可移动性强,安装方便,可在户外使用。
三、特点1、可移动性强,欧变十分适合临时用电工程,使用完后可安装在另一个地方继续使用,不会造成资源浪费。
2、安装方便,欧式箱变内部设备在厂家安装调试完毕,现场安装只需将欧变放在预先做好的基座上,固定好,连接进出线电缆即可使用。
3、现场施工量少,欧式箱变不需要单独建配电房,只需修建简易基座即可,施工量大大减少。
4、造价成本低,欧式箱式变电站造价比土建电房节约50%左右,工期可缩短一半,运行阶段无需人员值班。
预装式箱式变电站(欧式)使用说明书阿斯特尼电气(北京)有限公司⏹ 1.1简介⏹本箱变是把高压开关设备,配电变压器,低压开关设备,电能计量设备和无功补偿装置等按一定的接线方案组合在一个箱体几个隔室内的紧凑型成套配电装置,适用于矿山、工厂企业、油气田和风力发电站,它替代了原有的土建配电房,配电站,称为新型的成套变配电装置。
⏹欧式箱变的接线形式a、单台配变形式:两路10KV进线;单台变压器容量一般在80KVA~1250KVA;低压出线柜一般为4~6路。
b、两台配变形式—两路10KV进线;两台变压器,每台变压器的容量在100KVA~1250KKVA;低压出线电缆一般为8~12路。
⏹箱变的主要部件:配变变压器、10KV环网型开关柜、低压电容器、低压开关等主要部件组成,安装在金属的箱体内,实现小型化。
⏹欧式箱变的优点:噪音较低;辐射较美式箱变要低,因为欧式箱变的变压器是放在金属的箱体内起到屏蔽的作用;可以设置配电自动化,可保证在-40---+40的恶劣环境下正常运行,全封闭,全绝缘,能达到零触电事故,可实现无人值守。
⏹欧式箱变适用于多层住宅、小高层、高层和其他的较重要的建筑物。
⏹产品型号及含义Y B □□-□/□-□额定容量(kVA)低压侧额定电压(kV)高压侧额定电压(kV)设计序号结构型式变电站预装式⏹使用条件⏹预装式变电站可以在以下使用条件、在额定容量下持续运行。
⏹使用位置:户外⏹海拔高度:≤2000m⏹环境温度:⏹最高气温:40℃⏹最热月平均温度:30℃⏹最高年平均温度:20℃⏹最低气温:-40℃⏹相对湿度⏹在25℃时,空气相对湿度不超过95%,月平均不超过90%。
⏹安装环境⏹安装环境应无明显污秽、无爆炸、腐蚀性气体和粉尘,安装场所应无强烈震动冲击;地震引发的地面加速度ag ,水平方向低于3m/s2,垂直方向低于1.5m/s2。
⏹电源电压的波形近似于正弦波。
⏹三相电源电压应大致对称。
⏹除上述正常使用条件外的其它使用条件按GB1094.1、GB/T11022、GB/T14048.1和GB7251.1标准规定。
ZBW系列高压/低压预装式变电站(欧式箱变)1.产品介绍:ZBW系列预装式变电站又称欧式箱变,是由高压开关柜,低压配电屏,配电变压器及外壳四部分组合而成,作为一种新型供配电装置,它比传统土建变电站具有许多优越性。
由于它体积小,占地面积小,结构紧凑,便于搬迁,因而大大缩短了基建的周期和占地面积,也减少了基建费用。
同时,箱式变电站现场安装简单,供电迅速,设备维修简单,无须专人值守,特别是它可以深入负荷中心,对提高供电质量减少电能损失,增强供电的可靠性以及对配电网络改造都是十分重要的。
箱变完成电能的变换、分配、传输、计量、补偿,系统的控制、保护及通讯等功能。
ZBW系列预装式变电站是我公司消化吸收国内外的先进技术自行开发的国产化欧式箱变,它具有结构紧凑、成套性强、安装维护方便、安全可靠、外形美观等优点,产品广泛应用于城市基础设施、住宅小区、宾馆、医院、厂矿、油田、机场、铁路、码头等户外供电场所。
ZBW系列预装式变电站分环网型、终端型及双电源供电三种方式,适用于电压等级35KV及以下,主要容量2000KVA及以下的小型无人值守变电站,城市工业变电站,10KV开闭所、环网系统、农网35KV 变电站等场合。
2.技术标准:本产品符合GB17467-1998《高低压预装式变电站》和IEC1330等标准。
3.使用环境及条件:海拔≤1000m风速≤34m/s(不大于700Pa)环境温度:最高气温+40℃,最低气温-35℃;相对湿度:日平均值不大于95%,月平均值不大于95%防震:水平加速度不大于0.4m/s2,垂直加速度0.15m/s2安装地点倾斜度:不大于3°安装在没有火灾、爆炸危险、严重污秽、化学腐蚀及剧烈震动的场所。
超出上述条件的规定时,可与公司协商。
4.产品结构及特点:A、变电站结构呈“目”字形或“品”字形布置;B、产品壳体材料采用铝合金板、不锈钢板、复合板、玻璃纤维增强水泥板等;C、变电站底座为镀锌槽钢或水泥制作,耐腐蚀性强,具有足够的机械强度;D、箱体顶盖采用双层结构,具有良好的隔热、防辐射和通风效果;E、变电站各室用铁板隔开形成独立的小室,各室均设有照明设施变压器室顶部装有自动排风装置,来调节变压器室温度;F、箱变箱体颜色灵活,可与周围环境协调。
1600kva欧式箱式变电站通用参数引言概述:1600kVA欧式箱式变电站是一种常见的电力设备,具有广泛的应用领域。
本文将从三个大点出发,详细阐述1600kVA欧式箱式变电站的通用参数。
正文内容:1. 容量参数:1.1 额定容量:1600kVA欧式箱式变电站的额定容量为1600千伏安,表示该变电站可以提供1600千伏安的电力输出。
这是变电站的重要参数,用于衡量其供电能力。
1.2 额定电压:1600kVA欧式箱式变电站的额定电压通常为10千伏或20千伏,这取决于具体的应用场景和需求。
额定电压决定了变电站的输出电压范围,对于不同的电力系统和设备有着重要的影响。
1.3 频率:1600kVA欧式箱式变电站的频率通常为50赫兹或60赫兹,这是电力系统中电压和电流周期性变化的频率。
频率的选择要根据具体的国家标准和电力系统要求来确定。
2. 结构参数:2.1 外形尺寸:1600kVA欧式箱式变电站的外形尺寸通常为标准化的尺寸,以适应不同的安装环境和场地要求。
这些尺寸包括变电站的长度、宽度和高度,可以根据具体需求进行调整。
2.2 防护等级:1600kVA欧式箱式变电站的防护等级通常为IP23或更高级别,用于保护电力设备免受外界的灰尘、水分和固体物质的侵入。
防护等级的选择要根据变电站的安装环境和使用条件来确定。
2.3 冷却方式:1600kVA欧式箱式变电站的冷却方式通常为强制风冷或水冷,用于散热和保持设备的正常运行温度。
不同的冷却方式适用于不同的环境和功率需求。
3. 功能参数:3.1 过载能力:1600kVA欧式箱式变电站具有一定的过载能力,可以在短时间内提供超过额定容量的电力输出。
这是为了应对突发的负载峰值和电力需求增加的情况。
3.2 输出稳定性:1600kVA欧式箱式变电站的输出稳定性是指在额定容量下,输出电压和电流的稳定性。
稳定的输出可以保证电力设备的正常运行和电力质量的稳定。
3.3 控制方式:1600kVA欧式箱式变电站的控制方式通常为自动控制或远程控制,可以通过监控系统实现对变电站的远程监控和操作。
欧式箱变与美式箱变的区别箱式变电站(简称箱变)一般由高压室、变压器室和低压室组成。
根据产品结构不同及采用元器件的不同,分为欧式箱变和美式箱变两种典型风格。
我国自70年代后期,从法国、德国等国引进及仿制的箱式变电站,从结构上采用高、低压开关柜,变压器组成方式,这种箱变称为欧式箱变,形象比喻为给高、低压开关柜、变压器盖了房子。
从90年代起,我国引进美国箱式变电站,在结构上将负荷开关,环网开关和熔断器结构简化放入变压器油箱浸在油中。
避雷器也采用油浸式氧化锌避雷器。
变压器取消油枕,油箱及散热器暴露在空气中,这种箱变称为美式箱变,形象比喻为变压器旁边挂个箱子。
从体积上看,欧式箱变由于内部安装常规开关柜及变压器,产品体积较大。
美式箱变由于采用一体化安装体积较小。
从保护方面,欧式箱变高压侧采用负荷开关加限流熔断器保护。
发生一相熔断器熔断时,用熔断器的撞针使负荷开关三相同时分闸,避免缺相运行,要求负荷开关具有切断转移电流能力。
低压侧采用负荷开关加限流熔断器保护,美式箱变高压侧采用熔断器保护,而负荷开关只起投切转换和切断高压负荷电流的功能,容量较小。
当高压侧出现一相熔丝熔断,低压侧的电压就降低,塑壳自动空气开关欠电压保护或过电流保护就会动作,低压运行不会发生。
从产品成本看,欧式箱变成本高。
从产品降价空间看,美式箱变还存在较大降价空间,一方面美式箱变三相五柱铁心可改为三相三柱铁心,另一方面,美式箱变的高压部分可以改型后从变压器油箱内挪到油箱外,占用高压室空间。
一、产品结构不同、采用的元器件不同1 、美式箱变:1)箱变的接线形式:一路或两路 10KV 进线;单台变压器,容量一般选用 500KV A~800KV A; 低压出线电缆 4~6 路2)箱变的主要部件:变压器、 10KV 环网开关、 10KV 电缆插头、低压桩头箱体等主要部件组成。
它具体积小、有造价低便于安装等优点。
美式箱变的优缺点1)优点:体积小占地面积小、便于安放、便于伪装,容易与小区的环境相协调。
YB系列预装式变电站(欧式)安装、操作说明书一、概述YB—12型预装式变电站(又名箱式变电站,以下简称箱变)是北京合纵科技有限公司根据国家城乡电网改造的需要,按照国际、国内标准进行设计的系列产品。
由高压开关设备、配电变压器、低压开关设备、电能计量设备和功率补偿装置(必要时)等组装在一个或几个箱体内构成的紧凑型变配电装置。
它适用于城市公用配电、高层建筑、住宅小区、厂矿企业等场所。
本产品具有成套性强、安装周期短、占地面积小、投资小、运行安全可靠、造型美观等特点。
二、使用环境•海拔高度:2000m•周围空气温度:-30℃~+40℃•周围相对湿度:日平均值不大于95% 月平均值不大于90%•户外风速:不超过35m∕s•安装地点:安装在没有火灾爆炸危险,没有严重化学腐蚀及剧烈震动的场所注:超出上述使用环境条件时,请与我公司销售中心联系。
三、产品型号及含义欧式:品字型:目字型:终端型:环网型变压器容量kVA低压电压等级kV高压电压等级kV:变压器性能参数等级为“9系列”:变压器性能参数等级为“11系列”:三相变压器:单相变压器:预装式变电站四、手册说明本手册是用来辅助技术人员进行YB—12型预装式变电站的安装、操作运行及维护。
虽然本手册尽可能详尽地考虑了一般安装、操作和维护过程中可能遇到的问题,但它不可能包括设备和使用条件的所有可能变化。
本手册没有对在设备安装、操作或维护中发生的偶然事件逐一讨论。
如需更详尽的资料,请与我公司产品技术服务部联系。
需要指出的是:使用本手册的人员必须了解电力系统的高、低压安全操作规程,本手册不能代替安全操作此设备所需的适当培训和必要的实践经验。
五、安装①.验收检查●产品到货,先检查运输中是否发生损坏或装卸不当,把发现的任何损坏或缺陷通知我公司产品技术服务部,以便尽快妥善处理。
●在移动箱变之前,要先拧紧或更换可能已经松动或损坏的零件或附件。
●产品附有装箱单、合格证、安装使用说明书、电气原理图、二次接线图、外形图、安装地基图、所采用的主要设备的说明书、操作工具(有专用操作工具时)、钥匙(有门锁时)以及根据协议而提供的备品备件。
美式箱变和欧式箱变的区别箱式变电站(简称箱变)一般由高压室、变压器室和低压室组成。
根据产品结构不同及采用元器件的不同,分为欧式箱变和美式箱变两种典型风格。
我国自七十年代后期从法国、德国等国引进及仿制的箱式变电站,结构上采用高低压开关柜、变压器组成方式,这种箱变称为欧式箱变,形象比喻为给高、低压开关柜、变压器盖了房子。
九十年代起,我国引进美国箱式变电站,在结构上将负荷开关、环网开关和熔断器结构简化放入变压器油箱浸在油中。
避雷器也采用油浸式氧化锌避雷器。
变压器取消油枕,油箱及散热器暴露在空气中,这种箱变称为美式箱变,形象比喻为变压器旁边挂个箱子。
从体积上看,欧式箱变由于内部安装常规开关柜及变压器,产品体积较大。
美式箱变由于采用一体化安装体积较小。
从保护方面,欧式箱变高压侧采用负荷开关加限流熔断器保护。
发生一相熔断器熔断时,用熔断器的撞针使负荷开关三相同时分闸,避免缺相运行,要求负荷开关具有切断转移电流能力。
低压侧采用负荷开关加限流熔断器保护。
美式箱变高压侧采用熔断器保护,而负荷开关只起投切转换和切断高压负荷电流的功能,容量较小。
当高压侧出现一相熔丝熔断,低压侧的电压就降低,塑壳开关欠电压保护或过电流保护就会动作,低压运行不会发生。
从产品成本看,欧式箱变成本高。
从产品降价空间看,美式箱变还存在较大降价空间,一方面美式箱变三相五柱铁心可改为三相三柱铁心,另一方面,美式箱变的高压部分可以改型后从变压器油箱内挪到油箱外,占用高压室空间。
一、产品结构不同、采用的元器件不同1、美式箱变:1)箱变的接线形式:一路或两路10KV进线;单台变压器,容量一般选用500KVA~800KVA; 低压出线电缆4~6路。
2)箱变的主要部件:变压器、10KV环网开关、10KV电缆插头、低压桩头箱体等主要部件组成。
它具体积小、有造价低便于安装等优点。
美式箱变的优缺点:1)优点:体积小占地面积小、便于安放、便于伪装,容易与小区的环境相协调。
第四章400KVA欧式终端型箱式变电站(ZXB-B-2)1 电气一次1.1 施工说明及材料表1.1.1 设计依据新建居住区供配电设施规划设计导则1.1.2 设计范围、设计内容及设备选型(1)本工程设计从变电所10kV进线电缆头到0.4kV低压柜出线处止,进线电缆头未计及。
(2)本工程采用欧式箱变,户外布置,变压器与高低压室成目字型布置;规模为400kVA 变压器远景考虑630kVA变压器;10kV进线1回,线变组接线;0.4kV出线6回,单母线接线。
变压器选用S11型油浸全密封变压器或非晶合金变压器,变比10±2x2.5%/0.4kV(或10±5%/0.4kV),连接组别Dyn11,Uk=4%;10kV设备采用充气式负荷开关柜;0.4kV采用框架断路器及塑壳断路器;额定电流按变压器额定电流的2/3配置,额定极限短路分断能力为50kA,配电子脱扣器,三段保护,电气寿命7000次以上。
内设串芯电流互感器一组,选用精度0.2级,用于配变综合测控仪及无功补偿装置,要求测控仪选用配变监测终端(TTU),兼具无功补偿控制功能,并配置GPRS通信模块。
无功补偿装置采用智能型免维护产品,具备自动过零投切、分相补偿功能。
补偿容量按变压器容量的30%配置。
(3)本次设计包括箱变防雷接地的设计。
1.1.3 电气部分施工说明(1)本箱式变电站进出线均为电缆。
0.4kV设备与变压器采用封闭母线连接。
(2)设备安装中用的钢材采用热镀锌处理,焊接拼装件宜先焊接成形再镀锌,对某些不宜镀锌的铁件,应在设备安装后刷T-90I富锌涂料二道、T-90II富锌涂料罩面漆一道。
(3)由于箱式变电站一般都设在市区负荷密集区,周围有较高的建筑物,可不单独考虑防雷设施。
若设置在较为空旷的区域,则要根据现场的实际情况考虑增加防雷设施。
为防止线路侵入的雷电波过电压,当进出线电缆从电线杆上接入时,应在10kV进出线侧安装避雷器。
(4)箱式变电站接地按有关技术规程的要求设计,接地装置采用水平接地体与垂直接地体组成,水平接地体由-50×6的镀锌扁钢组成,垂直接地体由<50×5×2500镀锌角钢组成。
10kV 预装式变电站(欧式箱变)技术规范书广西鑫盟工程咨询有限企业2018年 7月目录1.总则 (1)2.工作范围 (1)3.应依据的主要标准 (2)4.使用条件 (3)5.技术要求 (3)6.试验方法 (10)7.技术文件要求 ................................................................................................................................... 错误!不决义书签。
8.起吊、包装、运输、安装及质量保证............................................................ 错误!不决义书签。
1.总则1.1 本招标技术文件合用于10kV 预装式变电站(欧式箱变)技术规范书(通用部分)的功能、性能、安装等方面的技术要求。
1.2 本招标技术文件提出的是最低限度的技术要求。
凡招标技术文件中未规定,但在有关设备的行业标准、国家标准或IEC 标准中有规定的规范条则,招标方应按相应标准的条则进行设备设计、制造、试验和安装。
对国家有关安全、环保等强迫性标准,一定知足其要求。
1.3 假如招标方没有以书面形式对本招标技术文件的条则提出异议,则意味着招标方供给的设备完好切合本招标技术文件的要求。
若有异议,不论是多么细小,都应在报价书中以“对招标技术文件的建议和同招标技术文件的差别”为标题的特意章节中加以详尽描绘。
1.4 本招标技术文件所使用的标准如与招标方所履行的标准不一致时,按较高标准履行。
1.5 本招标技术文件经买、卖两方确认后作为订货合同的技术附件,与合同正文拥有同样法律效劳。
1.6 招标方在应标技术文件中应照实反应应标产品与本招标技术文件的技术差别。
假如招标方没有提出技术差别,而在履行合同的过程中,招标方发现招标方供给的产品与其应标技术文件的条则存在差别,招标方有权益要求退货,并将对下一年度的评标工作有不一样程度的影响。
欧式箱式变电站和美式箱式变电站的区别箱式变电站(简称箱变)一般由高压室、变压器室和低压室组成。
根据产品构造不同及采用元器件的不同,分为欧式箱变和美式箱变两种典型风格。
我国自70年代后期,从法国、德国等国引进及仿制的箱式变电站,从构造上采用高、低压开关柜,变压器组成方式,这种箱变称为欧式箱变,形象比喻为给高、低压开关柜、变压器盖了房子。
从90年代起,我国引进美国箱式变电站,在构造上将负荷开关,环网开关和熔断器构造简化放入变压器油箱浸在油中。
避雷器也采用油浸式氧化锌避雷器。
变压器取消油枕,油箱及散热器暴露在空气中,这种箱变称为美式箱变,形象比喻为变压器旁边挂个箱子。
从体积上看,欧式箱变由于内部安装常规开关柜及变压器,产品体积较大。
美式箱变由于采用一体化安装体积较小。
从保护方面,欧式箱变高压侧采用负荷开关加限流熔断器保护。
发生一相熔断器熔断时,用熔断器的撞针使负荷开关三一样时分闸,防止缺相运行,要求负荷开关具有切断转移电流能力。
低压侧采用负荷开关加限流熔断器保护,美式箱变高压侧采用熔断器保护,而负荷开关只起投切转换和切断高压负荷电流的功能,容量较小。
当高压侧出现一相熔丝熔断,低压侧的电压就降低,塑壳自动空气开关欠电压保护或过电流保护就会动作,低压运行不会发生。
从产品成本看,欧式箱变成本高。
从产品降价空间看,美式箱变还存在较大降价空间,一方面美式箱变三相五柱铁心可改为三相三柱铁心,另一方面,美式箱变的高压部分可以改型后从变压器油箱内挪到油箱外,占用高压室空间。
一、产品构造不同、采用的元器件不同1 、美式箱变:1)箱变的接线形式:一路或两路10KV 进线;单台变压器,容量一般选用500KVA~800KVA; 低压出线电缆4~6 路2)箱变的主要部件:变压器、10KV 环网开关、10KV 电缆插头、低压桩头箱体等主要部件组成。
它具体积小、有造价低便于安装等优点。
美式箱变的优缺点1)优点:体积小占地面积小、便于安放、便于伪装,容易与小区的环境相协调。
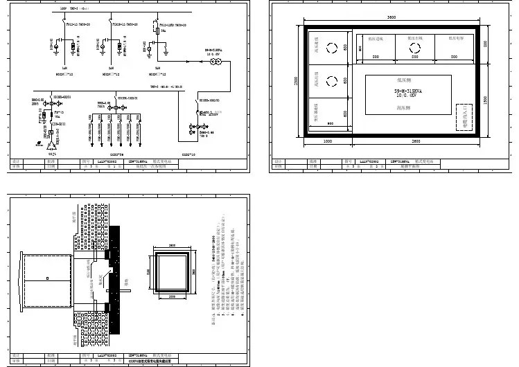
欧式箱式变电站
1、箱体结构:
欧式变电站的箱体是由:底座、外壳、顶盖三部分构成。
底座一般用槽钢、角钢、扁钢、钢板等,组焊或用螺栓连接固定成形;为满足通风、散热和进出线的需要、还应在相应的位置开出条形孔和大小适度的圆形孔。
箱体外壳、顶盖槽钢、角钢、钢板、铝合金板、彩钢板、水泥板等进行折弯、组焊或用螺钉、铰链或相关的专用附件连接成形。
不管哪种材料的箱变壳体,按标准要求必须具备:防晒、防雨、防尘、防锈,防小动物(如蛇)等进入的五防功能。
欧式变电站的壳体为防止炎热夏季强烈的日光辐射,其顶部一般都设有导热系数较低的隔热材料作填料。
常用的填料有:岩棉板、聚苯乙烯泡沫塑料等。
在统一设计的传统“组合式变电站”中,一般在壳体中也填充隔热填料,这种方法大多数设计者已不在采用,这是因为:隔热填料虽然能防止炎热夏季强烈的日光辐射,同时也阻碍了变压器运行时产生大量热量的散发,所以设计者们除保留在壳体上冲百叶窗孔的方法外,同时采用加大散热面积、加强空气对流的方法散热,同时还可减少制造成本。
欧式箱式变电站的表面处里:欧式箱式变电站表面处里的方法较多,中国北方大多采用传统的喷漆、烤漆、喷塑等方法进行处理;在中国南方经济发达地区,除采用上述方法外,还在水泥板结构的壳体外贴上彩色瓷砖,或贴贴面等方法进行表面处理,特别是置于住宅小区的箱变外观,与当地建筑物的风格更加协调、统一。
2、高压配电装置结构:
欧式箱式变电站高压配电装置,从进线方式上分为:终端型、环网型两种;从进线方位上分可分为:从箱体顶部架空进线(传统箱变用此法较多)和利用高压电缆沟从地下进出线,这是现代设计较为普遍的采用方法。
以SF6气体为灭弧介质的SF6系列负荷开关较多,其成本高于FN-10系列高压负荷开关。
这类开关结构、有带熔断器、不带熔断器、接地开关等,但一般都装有带电显示器;操作机构一般为手动,也有电动操作的。
带熔断器的,当回路出现短路故障能自切断开关,保护电路及变压器、开关等设备。
还有以真空为灭弧介质的真空开关,这类开关可以单独使用、也可与熔断器配用,还可与SF6系列负荷开关串接使用,不过这样将使成本增大,如用户无特别要求不须这样使用。
高压计量:高压配电装置中,如用户有高压计量要求的,还须设置高压计量柜。
中国各地供电部门,对高压或低压计量问题没有统一的要求。
西北地区供电规程规定:变压器容量大于160KVA时,必须采用高压计量;高压计量柜开关必须由供电部门控制。
北京、天津等华北地区供电部门则认为:箱式变电站计量应以低压侧为好,这样,可以提高供电可靠性,减少高压计量带来的不稳定因素,对变压器本身的损耗,可折算成电费,由用户承担。
箱式变电站高压计量柜的结构一般由:CT、PT、及计量表计,遥控、遥测装置等构成。
3、变压器室结构:
欧式箱式变电站都设有独立的变压器室,变压器室主要由:变压器,自动控温系统,照明及安全防护栏等构成。
变压器运行时,将在箱变中产生大量的热量向变压器室内散发,所以变压器室的散热、通风问题是欧式箱式变电站设计中应重点考虑的问题;变压器运行时,源源不断的产生大量的热量,使变压器室的温度不断升高,特别是环境温度高时,温度升高更快,所以只靠自然通风散热往往不能保证变压器可靠、安全运行;欧式箱式变电站设计中,除变压器容量较小的箱变采用自然通风外,一般都设计了测温保护,用强制排风措施加以解决。
该系统主要由测量装置,测变压器室温、油温均可。
然后通过手动和自动控制电路,对排风扇是否需要投入,按变压器可靠、安全运行温度的设定范围进行设置控制。
欧式箱式变电站中,变压器既可选用油浸式变压器,也可采用干式变压器,但由于干式变压器价格较高,所以在用户没有特别要求的情况下,应首选油浸式变压器、以降低制造成本。
变压器容量一般在100-1250KVA为宜,最大不应超过1600KVA。
4、低压室结构设计:
欧式箱式变电站的低压室按工矿企业或住宅小区的使用场合的不同,在设计结构上应有所不同。
一般对于工矿企业使用的欧式箱式变电站,应对动力供电、照明供电进行分开设计。
在采用低压计量时,一般情况下,供电局要求对照明用电进行分开计度,这主要是因为照明用电的单位价格,普遍高于动力用电。
在住宅小区使用的变电站在结构设计上,则不须考虑动力用电的问题。
欧变低压室的输出路数,在结构设计上根据变压器容量大小和用户使用需求的不同而不同。
变压器容量小,用户需求输出路数较少的可少设;而变压器容量大,用户要求输入出路数多的,可考虑设计路数多一些,还可考虑按带走廊操作形式进行布局。