玻璃幕墙节点
- 格式:ppt
- 大小:7.68 MB
- 文档页数:33
玻璃幕墙设计知识点(含高清节点图)玻璃幕墙是由龙骨、玻璃和附件三部分组成的(1)龙骨由纵向立柱和横档组成,它是用来支撑玻璃、固定玻璃,并通过连接件与墙体结构相连。
它将玻璃的自重和风荷载及其他荷载传给主体结构,使玻璃与墙体结构连成一整体。
① 型钢龙骨:型钢做玻璃幕墙的龙骨,玻璃镶嵌在铝合金的框内,然后再将铝合金框与龙骨固定。
型钢组合的框架,其网格尺寸的适当可适当加大,但对主要受弯构件,截面不能太小,挠度最大处宜控制在5mm以内。
否则将影响铝窗的玻璃安装,也影响幕墙的外观。
② 铝合金型材龙骨:用特殊断面的铝合金型材作为玻璃幕墙的龙骨,玻璃镶嵌在龙骨的凹槽内,玻璃幕墙的立柱与主体结构之间,用连接板固定。
安装玻璃时,先在立柱的内侧上安铝合金压条,然后将玻璃放入凹槽内,再用密封材料密封。
支承玻璃的横梁略有倾斜,目的是排除因密封不严而流入凹槽的雨水,并将外侧盖封住。
(2)玻璃玻璃是建造玻璃幕墙的关键材料。
它直接制约幕墙的各项性能,同时也是幕墙艺术风格的主要体现者,因此选用玻璃是幕墙设计的主要内容,如果玻璃选用不当会产生相当严重的后果。
要根据使用要求分别选用孵化玻璃、吸热玻璃、钢化玻璃、热反射镀膜玻璃、低辐射镀膜玻璃以及由这些单层玻璃组合成的夹层玻璃和中空玻璃。
① 浮法玻璃:浮法玻璃生产的成型过程是在通入保护气体(N2及H2)的锡槽中完成的。
熔融玻璃从池窑中连续流入并漂浮在相对密度大的锡液表面上,在重力和表面张力的作用下,玻璃液在锡液面上铺开、摊平、形成上下表面平整、硬化、冷却后被引上过渡辊台。
辊台的辊子转动,把玻璃带拉出锡槽进入退火窑,经退火、切裁,就得到平板玻璃产品。
浮法与其他成型方法比较,其优点是:适合于高效率制造优质平板玻璃,如没有波筋、厚度均匀、上下表面平整、互相平行 ;生产线的规模不受成形方法的限制,单位产品的能耗低 ; 成品利用率高; 易于科学化管理和实现全线机械化、自动化,劳动生产率高;连续作业周期可长达几年,有利于稳定地生产 ;可为在线生产一些新品种提供适合条件,如电浮法反射玻璃、退火时喷涂膜玻璃、冷端表面处理等。
浅析节能玻璃幕墙的节点设计随着现代建筑技术的不断发展,玻璃幕墙已经成为了城市建筑中不可或缺的一部分。
在建筑设计中,节能是一项重要的考量因素。
设计节能玻璃幕墙的节点显得尤为重要。
玻璃幕墙的节能设计是指通过合理的结构设计和选材,使得玻璃幕墙在建筑中的能耗尽可能地减少。
在节点设计中,要考虑的因素众多,包括材料的选用、结构的设计以及与其他部件的连接方式等。
下面,我们将从材料的选择、结构设计和连接方式三个方面来浅析节能玻璃幕墙的节点设计。
在材料的选择上,应尽量选择具有良好保温隔热性能的材料。
目前,市面上常见的玻璃幕墙材料有单层玻璃、中空玻璃、低辐射玻璃等。
中空玻璃由两片玻璃板之间有一定间隙,因此具有良好的隔热性能。
在一些建筑中,还可以选择使用具有太阳能调节功能的玻璃,来有效减少窗户透射的太阳辐射,从而减少室内空调的能耗。
在结构设计上,应充分考虑玻璃幕墙的支撑结构,以确保其稳固性和密封性。
由于幕墙玻璃的重量较大,因此支撑结构应设计合理、坚固耐用。
为了提高玻璃幕墙的隔热性能,可以在幕墙内侧设置保温层,有效减少能量的传输。
还可以采用空气隔热层的设计,来提高玻璃幕墙的隔热性能。
在连接方式上,应选择合适的密封材料和连接件,确保玻璃幕墙的密封性能。
由于玻璃幕墙处于建筑外墙,因此对于其密封性能的要求较高。
在设计节点时,应该选择具有较好密封性能的密封材料,并采用专门设计的连接件,以保证幕墙的密封性。
在实际的工程设计中,要求节能的幕墙节点设计与传统节点设计有很大不同。
在结构设计上,传统节点设计考虑的是外墙和内墙的承重和抗风压能力,而节能幕墙节点设计则更注重热桥效应和隔热性能。
在材料的选用上,传统节点设计常采用的是钢结构,而节能幕墙节点设计则需要更多地考虑到玻璃和保温隔热材料的特性。
在连接方式上,传统节点设计可能会更侧重于强度和稳定性,而节能幕墙节点设计则需要更注重密封性和隔热性。
节能玻璃幕墙的节点设计需要在材料选择、结构设计和连接方式上进行综合考虑,以确保幕墙在外观美观的也能充分发挥其节能功能。
隐框玻璃幕墙节点图-----返回上一页一、玻璃幕墙种类:现阶段在我国应用较广泛的玻璃幕墙有明框玻璃幕墙、全(半)隐框玻璃幕墙、无框全玻璃幕墙及特殊玻璃幕墙等。
玻璃幕墙工程必须由具有专业幕墙施工资质的公司设计、制作及安装。
二、施工工艺及方法:1、基本作业条件1.1应编制幕墙施工组织设计,并严格按施工组织设计的顺序进行施工。
1.2幕墙应在主体结构施工完毕后开始施工。
对于高层建筑的幕墙,如因工期需要,应在保证质量与安全的前提下,可按施工组织设计沿高分段施工。
在与上部主体结构进行立体交叉施工幕墙时,结构施工层下方及幕墙施工的上方,必须采取可靠的防护措施。
1.3幕墙施工时,原主体结构施工搭设的外脚手架宜保留,并根据幕墙施工的要求进行必要的拆改(脚手架内层距主体结构不小于300mm)。
如采用吊篮安装幕墙时,吊篮必须安全可靠1.4幕墙施工时,应配备必要的安全可靠的起重吊装工具和设备。
1.5当装修分项工程会对幕墙造成污染或损伤时,应将该项工程安排在幕墙施工之前施工,或应对幕墙采取可靠的保护措施。
1.6不应在大风大雨气候下进行幕墙的施工。
当气温低于-5℃时不得进行玻璃安装,不应在雨天进行密封胶施工。
1.7应在主体结构施工时控制和检查固定幕墙的各层楼(屋)面的标高、边线尺寸和预埋件位置的偏差,并在幕墙施工前应对其进行检查与测量。
当结构边线尺寸偏差过大时,应先对结构进行必要的修正;当预埋件位置偏差过大时,应调整框料的伺距或修改连结件与主体结构的连接方式。
2、幕墙安装2.1隐(明)框玻璃幕墙安装工艺幕墙安装施工顺序:测量放线→安装L型转接件→安装铝立柱→安装铝横梁→安装避雷、防火→玻镁板安装→安装玻璃→安装横(竖)向扣盖→注胶及外立面清洗(1)、测量放线:依据结构复查时的放线标记,及预埋件的十字中心线,确定安装基准线,包括龙骨排布基准及各部分幕墙的水平标高线,为各个不同部位的幕墙确定三个方向的基准。
(2)、L型转接件的安装:根据预埋件的放线标记,将L型转接角钢码采用M16。
玻璃幕墙节点的收口处理玻璃幕墙同其他饰面材料一样,装饰于外墙,都存在如何收口的问题.幕墙最后一根立柱的小侧面如何封闭的问题,该节点采用1.5毫米厚的成型铝合金板,将幕墙骨架全部包住。
这样。
大侧面上看,只是一条通长的铝合金板。
铝板的色彩应同幕墙骨架立柱外露部分相同。
考虑到两种不同材料的收缩影响,在饰面铝板与立柱及墙的相接处用密封胶处理。
铝合金横档,宜离开结构一段距离。
因为铝合金横档固定在立柱上,离开一定距离便于横档的布置。
横档底下与结构之间的间隙,一般不用填缝材料,只在外测注一道防水密封胶。
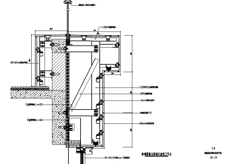
女儿墙水平部位的压顶与斜面相交处的构造大样。
用通常的铝合金成型板,固定在横档上。
这样,既解决了幕墙上端收回的问题,也解决了女儿墙压顶的收口处理。
在核档与成型板相交处,用密封胶做封闭处理。
厌顶部位的铝合金板,用不锈钢螺丝固定在型钢骨架上。
玻璃慕墙与主体结构的墙面,一般直留出一段距离。
但是幕墙与主体结构之间的空隙,不论从使用角度,还是从防水的角度,均应采取适当措施。
特别是防水方面,因幕墙与结构之间有空隙,而且还是上下贯穿,一旦失火,将成为烟、火的通道。
所以,此部分务必作妥善处理。
先用一条“L”的镀锌铁皮,固定在幕墙的横档上,然后在铁皮上面铺上防火材料。
防火材料有岩锦,超细玻璃棉等。
铺放的高度应根据建筑物的防火等级,结合防火材料的防火性能,经过计算后确定。
防火材料要销放均匀、整齐,不得漏铺。
幕墙横档与结构相交部位的处理。
在横档与水平结构面接触处,外侧安上一条铝合金被水板,起到封盖与防水的双重作用。
幕墙顶部收口示意。
用一条成型的铝合金板,罩在幕墙上端的收回部位。
防止在压顶板接合处有渗水现象,在压顶板的下面加铺一层防水层。
有些玻璃幕墙的水平部位压顶,虽然在成型的铝合金板上有形状差异,但在结构上大多数是双道防水线。
所用的防水层一般应具有较好的抗拉性能,目前,用的较多的是三元已丙橡胶防水带。
铝合金压顶板可以侧向固定在骨架上,也可在水平面上用螺丝固定。