幕墙施工节点做法详图(铝板幕墙、石材幕墙、玻璃幕墙)
- 格式:ppt
- 大小:9.13 MB
- 文档页数:125
幕墙装饰常见做法及构造大样图一、玻璃幕墙玻璃幕墙一般由结构框架、填衬材料和幕墙玻璃所组成.国家标准《建筑幕墙》对玻璃幕墙提出了专项要求。
1、性能应符合本标准3.1和3.2的要求,并满足设计要求.2、材料玻璃面板,幕墙采用的玻璃应符合本标准4.2。
1的相关要求。
全玻幕墙的面板玻璃的厚度不宜小于10㎜;夹层玻璃单片厚度不宜小于8㎜;玻璃肋的厚度不应小于12㎜,断面宽度不应小于100㎜。
金属材料、密封材料、五金配件、转接件和连接件应符合本标准的2。
2、2。
3、2.4和2。
5的要求。
3、组装件要求吊挂式玻璃幕墙支承装置应符合《吊挂式玻璃幕墙支承装置》JG 139-2001的规定。
面板吊挂处和底部支承处应具有传递幕墙所受作用的能力。
4、组件制作工艺质量要求单片玻璃边长允许偏差、中空玻璃边长允许偏差、夹层玻璃的边长允许偏差应符合本标准9。
4。
1的要求。
5、组件组装质量要求全玻璃幕墙安装质量应符合本标准表75的要求。
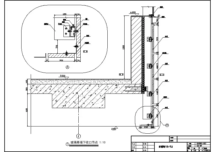
玻璃与周边结构或装饰物的间隙不应小于8㎜,密封胶填缝应均匀、密实、连续.6、外观质量应符合本标准9.6和《玻璃幕墙工程质量检验标准》JGJ/T 139-2001的规定。
二、石材幕墙以前石材饰面施工基本工艺是湿贴,在外部环境下影响下,板材不断热胀冷缩,石材与基材粘结力下降,甚至可导致石材板面脱落,同时由于采用砂浆粘贴,一旦水进入粘接部位后再排出,会将砂浆溶融析出形成泛白.于是石材面板干挂工艺应运而生.国家标准《建筑幕墙》对石材幕墙提出了专项要求。
1、性能应符合本标准3.1和3。
2的要求,并满足设计要求。
2、材料石材1)幕墙用石材宜选用花岗岩,可选用大理石、石灰石、石英砂等。
2)石材板面弯曲强度标准值应符合规定,按照GB/T 6566—2001中的A级、B 级、C级的要求。
弯曲强度标准值小于8。
0Mpa的石材面板,应采取附加构造保证面板的可靠性。
3)在严寒和寒冷地区,幕墙用石材面板的抗冻系数不应小于0。
幕墙主梁安装顺序图竖料进出钢弦张紧决定竖料间隔决定水平钢弦线竖料钢弦线进出位置决定竖料靠近决定竖料左右决定连接件垂直(纵向)钢弦线1预埋件竖料主眼安装顺序竖料间隔决定基准定位决定竖料高度竖料进出位置决定竖料高度决定1342定位决定竖料高度水平钢弦线连接件垂直(纵向)钢弦线预埋件板432锚固件竖料预埋件决定竖料间隔决定3定尺2预埋件连接件竖料左右决定竖料左右决定竖料水平仪幕墙工程玻璃幕墙施工方法(图示)1、幕墙主梁安装顺序2、标准节点及三维图如下:隐框玻璃幕墙安装完成图玻璃板块3、施工测量放线(1)复核土建结构标高线的正确性①以土建的±0.0标高为基准,利用水平仪、50米长卷尺及适当重量的重物,复核土建标高的正确性。
②如发现土建标高不准确,应另作标记,并应有“幕墙专用”的标识,并将复核情况上报总包单位及监理。
(2)确定幕墙施工测量放线的基准层①用经纬线仪、50米长卷尺复核土建基准点、线的角度、距离、如发现偏差进行均差处理。
②当测量时应注意考虑温度、拉尺对测量结果的影响,应进行适当的修正。
③当发现测量结果有较大偏差时,应及时上报总包单位及监理公司,进行联合测量、纠偏。
(3)以复核过的基准点或基准线为依据,做出转接件施工所需的辅助测量线。
(4)以正确的控制线及主体结构图进行结构边缘尺寸的复核,如发现超差现象及时上报总包进行剔凿,以免影响板块。
4、转接件的安装转接件安装的质量与否关系到幕墙安装质量的一个重要环节。
该部分工作还应包含埋板的预埋处理,防雷的连接等。
埋件与连接件进行焊接固定。
埋板偏差的需先按设计要求处理,无埋板的需进行后埋件处理,确保安全、经济又能满足相关规范要求。
埋件与转接件安装如下图所示:5、龙骨安装(1)幕墙立柱安装:幕墙立柱是通过螺栓与转接件连接固定。
安装时,将竖立柱按节点图放入两连接件之间,在竖立柱与两侧转接件相接触面放置防腐垫片,穿入连接螺栓,并按要求垫入平、弹垫,调平,拧紧螺丝。
幕墙工程铝单板装饰施工方法(图示)1、节点和三维示意图2、测量放线施工队伍进场后首先进行测量定位,测量出土建结构和钢结构的偏差,为施工做好准备,测量后需确定安装基准线。
包括龙骨分布基准及部分幕墙的水平标高线,为各个不同部位的幕墙确定三个方向的基准。
3、施工工艺1、连接件的安装熟悉图纸及技术交底→熟悉施工现场→加工制作→确定连接件基准线→点焊→检查→加焊→防腐→记录。
(1)熟悉图纸:了解前段工序的变化更改及设计变更。
(2)熟悉施工现场:施工现场的熟悉包括两方面的内容,一是对已施工工序质量的验收;二是对照图纸要求对下步工作的安排。
(3)加工制作:根据图纸的要求对钢板连接件进行加工制作,通过质检人员验收合格后方可施工。
(4)拉水平线控制水平高低及进深尺寸。
虽然埋铁件时已控制水平高度,但由于施工误差的影响,安装连接件时仍要拉水平线控制其水平及进深的位置以保证连接件的安装准确无误。
(5)根据图纸的连接件分格尺寸,向垂直方向拉拉连接件的垂直线,根据已经确定的连接件水平及垂直控制线作为连接件的基准线,便可确定连接件准确的安装位置。
(6)点焊:在连接件三维空间定位确定准确后要进行连接件的临时固定即点焊。
点焊时每个焊接面点2~3点,要保证连接件不会脱落。
点焊时要两人同时进行,一人固定位置;另一人点焊,这样协调施工同时两人都要做好各种防护;点焊人员必须是有焊工技术操作证者,以保证点焊的质量。
(7)验收检查。
对初步固定的连接件按层次逐个检查施工质量,主要检查三维空间误差,一定要将误差控制在误差范围内。
三维空间误差工地施工控制范围为垂直误差小于2mm,水平误差小于2mm,进深误差小于3mm。
(8)加焊正式固定:对验收合格的连接件进行固定,即正式焊接。
焊接操作时要按照焊接的规格及操作规定进行,一般情况下连接件的两边都必须满焊。
(9)验收:对焊接好的连接件,现场管理人员要对其进行逐个检查验收,对不合格处进行返工改进,直至达到要求为止。
工艺工法 QC 玻璃石 材及铝板异面组合幕墙施工工法(附图)精品好文档,推荐学习交流玻璃、石材、铝板异面组合幕墙施工工法有限公司 1.前言 幕墙工程作为体现建筑物整体观感的重要分项工程,在房屋建筑工程中起 着至关重要的作用。
因建筑物高度、造型等各不相同,外墙装饰的做法也花样 迭出,根据社会需求在不断地创新。
幕墙作为一种普遍使用、技术成熟的外立 面装饰建筑,也取得了突破性的发展。
从单一面板的玻璃幕墙、石材幕墙、铝 板幕墙,以及其他特殊材料面板的建筑幕墙,开始向两种及两种以上面板的组 合幕墙发展。
经过对武汉市社会福利综合大楼工程正立面玻璃、石材、铝板组 合幕墙施工的实践,总结出“玻璃、石材、铝板异面组合幕墙施工工法”。
2.工法特点 2.1 与普通的玻璃、石材、铝板幕墙等单一面板幕墙相比,组合幕墙通过 主次龙骨的安装定位使各种面板在不同平面上呈现,更能突显建筑物的立面效 果,使建筑物更具立体感和层次感,充分体现建筑物的挺拔、美观。
2.2 工艺可靠,目前各种幕墙的施工工艺均已成熟,能够为组合幕墙施工 提供技术参考和理论依据。
2.3 组合幕墙中各种幕墙面板的安装工艺各不相同,组合幕墙主次龙骨的 安装较单一面板幕墙复杂,并做好各种幕墙面板间的节点处理。
3.适用范围 本工法适用于外墙装饰为组合幕墙的各种建筑。
仅供学习与交流,如有侵权请联系网站删除 谢谢 10精品好文档,推荐学习交流4.工艺原理 组合幕墙是指板材为玻璃、金属、石材等不同板材组成的建筑幕墙。
组合 幕墙的特点是更美观、更具立体感和层次感。
武汉市社会福利综合大楼工程组 合幕墙是将玻璃、石材、铝板三种单一面板幕墙融为一体,通过对主次龙骨的 安装定位形成凹凸有致的异面空间,使玻璃、石材、铝板幕墙在三个不同的平 面上呈现,突显整个建筑物外立面的立体层次感,达到新颖、大气、美观的感 官效果。
5.施工工艺流程及操作要点 5.1 施工工艺流程(见工艺流程图) 5.2 操作要点 5.2.1 施工准备 1、技术准备 熟悉和了解幕墙工程深化设计图纸,熟悉玻璃、石材、铝板等单一面板幕 墙的安装工艺技巧;详细核对组合幕墙细部节点的处理方法,保证玻璃、石 材、铝板三种幕墙之间能够充分融合。