桥架支吊架安装实用标准图
- 格式:pdf
- 大小:867.87 KB
- 文档页数:26
桥架支吊架安装标准图.XXX编制了一份电缆桥架支吊架制作安装图例(2008),由安装分公司XXX负责安装。
根据图纸要求和现场情况,制作电缆桥架支架,并在安装时拉通线,控制水平和垂直度。
水平安装的支架间距为1.5-2米,垂直安装的支架间距不大于2米。
在水平长度超过20米或在转弯、转角处应设固定支架。
在采用顶爆螺丝工艺安装时,钻头应与顶爆螺丝匹配,然后在通丝螺杆上带双螺母锁定,采用扳手与顶爆螺丝连接牢固。
非镀锌电缆桥架间连接板的两端跨接铜芯接地线,接地线最小截面积不小于4mm²,采用焊锡铜接线端子连接,连接处应进行除漆处理。
此外,根据图例,楼板使用Φ8×30mm顶爆螺丝和Φ8通丝螺杆,桥架使用50×50~200×50 L30×3角钢和Φ8×25mm六角螺丝,制作水平支架。
水平固定支架使用Φ8×50mm膨胀螺丝和L30×3角钢,桥架使用50×50~200×100,制作图中有正视和侧视。
另外,制作垂直支架和固定支架也有类似的图例,使用的材料和螺丝规格略有不同。
最后,根据图例,使用Φ12×50mm顶爆螺丝和Φ12通丝螺杆,桥架使用500×100~600×150 L50×5角钢和Φ8×30mm 六角螺丝,制作大型桥架支架。
制作桥架水平支架和垂直安装支架的图纸是建筑工程中不可或缺的步骤。
以下是XXX制作的500×100~600×150和800×150~1000×150桥架水平支架的正视和侧视图纸。
楼板使用L50×5角钢和Φ12×70mm膨胀螺丝固定,桥架则使用Φ8×30mm六角螺丝进行固定。
另外,墙体的垂直安装支架使用L30×3角钢和Φ8×50mm膨胀螺丝固定,而300×100~400×150和500×150~600×150桥架垂直安装支架则使用L40×4角钢和Φ10×65mm膨胀螺丝进行固定。
桥架支吊架制作安装图例(2008)精彩文档编制说明1.电缆桥架支架应根据图纸要求及现场情况制作;安装时应拉通线控制水平及垂直度;2.电缆桥架水平安装的支架间距为1.5~2m;垂直安装的支架间距不大于2m;在水平长度超过20米或在转弯、转角处应设固定支架;3.采用顶爆螺丝工艺安装时,钻头选择应与顶爆螺丝匹配,然后在通丝螺杆上带双螺母锁定,采用扳手与顶爆螺丝连接牢固;4.非镀锌电缆桥架间连接板的两端跨接铜芯接地线,接地线最小截面积不小于4mm2,采用焊锡铜接线端子连接,连接处应进行除漆处理;精彩文档精彩文档Φ8×30mm顶爆螺丝Φ8通丝螺杆L30×3角钢楼 板桥 架50×50~200×50Φ8×25mm六角螺丝50×50~200×100桥架水平支架制作图楼 板Φ8×50mm膨胀螺丝L30×3角钢桥 架Φ8×25mm六角螺丝50×50~200×100桥架水平固定支架制作图(正视)精彩文档楼 板L30×3角钢Φ8×50mm膨胀螺丝L30×3角钢桥 架Φ8×25mm六角螺丝50×50~200×100桥架水平固定支架制作图(侧视)精彩文档精彩文档Φ10×40mm顶爆螺丝Φ10通丝螺杆L40×4角钢楼 板桥 架300×100~400×150300×100~400×150桥架水平支架制作图Φ8×25mm六角螺丝楼 板Φ10×65mm膨胀螺丝L40×4角钢桥 架Φ8×25mm六角螺丝300×100~400×150桥架水平固定支架制作图(正视)精彩文档楼 板L40×4角钢Φ10×65mm膨胀螺丝L40×4角钢桥 架Φ8×25mm六角螺丝300×100~400×150桥架水平固定支架制作图(侧视)精彩文档精彩文档Φ12×50mm顶爆螺丝Φ12通丝螺杆L50×5角钢楼 板桥 架500×100~600×150500×100~600×150桥架水平支架制作图Φ8×30mm六角螺丝楼 板Φ12×70mm膨胀螺丝L50×5角钢桥 架Φ8×30mm六角螺丝500×100~600×150桥架水平固定支架制作图(正视)精彩文档楼 板L50×5角钢Φ12×70mm膨胀螺丝L50×5角钢桥 架Φ8×30mm六角螺丝500×100~600×150桥架水平固定支架制作图(侧视)精彩文档精彩文档Φ12×70mm膨胀螺拴6.3#槽钢6.3#槽钢楼 板桥 架800×150~1000×150150×150×8mm钢板Φ8×30mm六角螺丝800×150~1000×150桥架水平支架制作图(正视)楼 板桥 架Φ12×70mm膨胀螺拴150×150×8mm钢板6.3#槽钢6.3#槽钢Φ8×30mm六角螺丝800×150~1000×150桥架水平支架制作图(侧视)精彩文档精彩文档墙 体50×50~200×100桥架垂直安装支架制作图(俯视)Φ8×50mm膨胀螺丝L30×3角钢L30×3角钢Φ8×25mm六角螺丝50×50~200×100桥架垂直安装支架制作图(侧视)精彩文档精彩文档墙 体300×100~400×150桥架垂直安装支架制作图(俯视)Φ10×65mm膨胀螺丝L40×4角钢L40×4角钢Φ8×30mm六角螺丝300×100~400×150桥架垂直安装支架制作图(侧视)精彩文档精彩文档墙 体500×150~600×150桥架垂直安装支架制作图(俯视)Φ12×70mm膨胀螺丝L50×5角钢L50×5角钢Φ10×30mm六角螺丝500×150~600×150桥架垂直安装支架制作图(侧视)精彩文档精彩文档墙 体800×150~1000×150桥架垂直安装支架制作图(俯视)Φ12×70mm膨胀螺丝L60×6角钢L60×6角钢Φ10×30mm六角螺丝800×150~1000×150桥架垂直安装支架制作图(侧视)精彩文档精彩文档 Φ10×40mm~Φ12×50mm顶爆螺丝Φ10~Φ12通丝螺杆L30×3~L40×4角钢楼 板桥 架200×100~300×150双层桥架(宽度相加小于600mm)水平支架制作图Φ8×25mm六角螺丝桥 架200×100~300×150楼 板Φ10×65mm~Φ12×70膨胀螺丝桥 架L30×3~L40×4角钢桥 架Φ8×25mm六角螺丝双层桥架(宽度相加小于600mm)水平固定支架正视图精彩文档精彩文档 楼 板桥 架Φ8×25mm六角螺丝桥 架双层桥架(宽度相加小于600mm)水平固定支架制作侧视图Φ10×65mm~Φ12×70膨胀螺丝L30×3~L40×4角钢L30×3~L40×4角钢楼 板Φ12×70膨胀螺丝桥 架L50×5角钢桥 架Φ8×30mm六角螺丝双层桥架(宽度相加700~1000mm)水平固定支架图精彩文档楼 板Φ12×70膨胀螺丝桥 架L60×6角钢桥 架Φ8×30mm六角螺丝双层桥架(宽度相加1100~1400mm)水平固定支架图精彩文档。
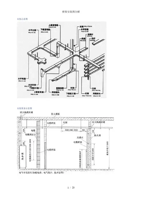
安装示意图安装要求示意图线槽内电缆填充率多层电缆桥架铺设时层间距一般要求金属线槽规格线槽需配用连接螺栓、盖板及扣锁线槽高度125mm及以下时连接片为6个螺栓孔;线槽高度过150mm及以上时连接片为12个螺栓孔。
电缆桥架托臂安装方法托臂在工字钢、角钢立柱上安装用M10*50螺栓连接固定。
托臂长度B由设计确定。
电缆桥架落地安装方法支架要进行防腐处理。
电缆桥架延墙安装方法线槽固定点间距,线槽宽100mm以下式为1500mm,线槽宽150mm以上时由工程设计确定。
线槽延楼板或延墙铺设,线槽宽150mm以上时,应采用双螺栓固定。
电缆桥架吊装方法托臂上度B由设计确定电缆桥架垂直安装方法电缆桥架延竖井安装方法金属线槽垂直安装时电缆(线)固定支架安装方法电缆桥架与配电盘连接方法配电盘开口处要用橡胶条护口电缆桥架配件安装方法:镀锌电缆桥架用连接片接地,不可用跨接地线电缆桥架穿楼板、穿墙防火安装方法施工前将要封堵部位清理干净钢丝网应刷防火涂料防火枕应按顺序依次摆放整齐,防火枕与电缆之间空隙不大于1平方厘米防火枕摆放厚度不小于24cm防火枕规格为三种:I型——320X120X25II型——160X120X25III型——160X75X25组合式电缆托盘组装示意图电缆托盘规格有盖电缆桥架(槽宽50 - 200mm)无盖电缆桥架(槽宽50 - 250mm)有盖电缆桥架(槽宽250 - 1000mm)无盖电缆桥架(槽宽300 - 1000mm)50 1.0 50 12 400 1.5 100 20100 1.0 50 12 500 1.5 150 20 150 1.0 75 12 600 2.0 150 20 200 1.0 75 12 700 2.0 150 20 250 1.5 100 12 800 2.0 150 20 300 1.5 100 20 1000 2.0 150 20 安装说明:电缆托盘长度为2.44m,托盘开有孔洞,并采用热度锌处理。
桥架支吊架制作安装图例(2008)安装分公司深圳经理部- 考试资料编制说明1.电缆桥架支架应根据图纸要求及现场情况制作;安装时应拉通线控制水平及垂直度;2.电缆桥架水平安装的支架间距为1.5~2m;垂直安装的支架间距不大于2m;在水平长度超过20米或在转弯、转角处应设固定支架;3.采用顶爆螺丝工艺安装时,钻头选择应与顶爆螺丝匹配,然后在通丝螺杆上带双螺母锁定,采用扳手与顶爆螺丝连接牢固;4.非镀锌电缆桥架间连接板的两端跨接铜芯接地线,接地线最小截面积不小于4mm2,采用焊锡铜接线端子连接,连接处应进行除漆处理;- 考试资料- 考试资料Φ8×30mm顶爆螺丝Φ8通丝螺杆L30×3角钢楼 板桥 架50×50~200×50Φ8×25mm六角螺丝50×50~200×100桥架水平支架制作图楼 板Φ8×50mm膨胀螺丝L30×3角钢桥 架Φ8×25mm六角螺丝50×50~200×100桥架水平固定支架制作图(正视)- 考试资料楼 板L30×3角钢Φ8×50mm膨胀螺丝L30×3角钢桥 架Φ8×25mm六角螺丝50×50~200×100桥架水平固定支架制作图(侧视)- 考试资料- 考试资料Φ10×40mm顶爆螺丝Φ10通丝螺杆L40×4角钢楼 板桥 架300×100~400×150300×100~400×150桥架水平支架制作图Φ8×25mm六角螺丝楼 板Φ10×65mm膨胀螺丝L40×4角钢桥 架Φ8×25mm六角螺丝300×100~400×150桥架水平固定支架制作图(正视)- 考试资料楼 板L40×4角钢Φ10×65mm膨胀螺丝L40×4角钢桥 架Φ8×25mm六角螺丝300×100~400×150桥架水平固定支架制作图(侧视)- 考试资料- 考试资料Φ12×50mm顶爆螺丝Φ12通丝螺杆L50×5角钢楼 板桥 架500×100~600×150500×100~600×150桥架水平支架制作图Φ8×30mm六角螺丝楼 板Φ12×70mm膨胀螺丝L50×5角钢桥 架Φ8×30mm六角螺丝500×100~600×150桥架水平固定支架制作图(正视)- 考试资料楼 板L50×5角钢Φ12×70mm膨胀螺丝L50×5角钢桥 架Φ8×30mm六角螺丝500×100~600×150桥架水平固定支架制作图(侧视)- 考试资料- 考试资料Φ12×70mm膨胀螺拴6.3#槽钢6.3#槽钢楼 板桥 架800×150~1000×150150×150×8mm钢板Φ8×30mm六角螺丝800×150~1000×150桥架水平支架制作图(正视)楼 板桥 架Φ12×70mm膨胀螺拴150×150×8mm钢板6.3#槽钢6.3#槽钢Φ8×30mm六角螺丝800×150~1000×150桥架水平支架制作图(侧视)- 考试资料- 考试资料墙 体50×50~200×100桥架垂直安装支架制作图(俯视)Φ8×50mm膨胀螺丝L30×3角钢L30×3角钢Φ8×25mm六角螺丝50×50~200×100桥架垂直安装支架制作图(侧视)- 考试资料- 考试资料墙 体300×100~400×150桥架垂直安装支架制作图(俯视)Φ10×65mm膨胀螺丝L40×4角钢L40×4角钢Φ8×30mm六角螺丝300×100~400×150桥架垂直安装支架制作图(侧视)- 考试资料- 考试资料墙 体500×150~600×150桥架垂直安装支架制作图(俯视)Φ12×70mm膨胀螺丝L50×5角钢L50×5角钢Φ10×30mm六角螺丝500×150~600×150桥架垂直安装支架制作图(侧视)- 考试资料- 考试资料墙 体800×150~1000×150桥架垂直安装支架制作图(俯视)Φ12×70mm膨胀螺丝L60×6角钢L60×6角钢Φ10×30mm六角螺丝800×150~1000×150桥架垂直安装支架制作图(侧视)- 考试资料- 考试资料 Φ10×40mm~Φ12×50mm顶爆螺丝Φ10~Φ12通丝螺杆L30×3~L40×4角钢楼 板桥 架200×100~300×150双层桥架(宽度相加小于600mm)水平支架制作图Φ8×25mm六角螺丝桥 架200×100~300×150楼 板Φ10×65mm~Φ12×70膨胀螺丝桥 架L30×3~L40×4角钢桥 架Φ8×25mm六角螺丝双层桥架(宽度相加小于600mm)水平固定支架正视图- 考试资料- 考试资料 楼 板桥 架Φ8×25mm六角螺丝桥 架双层桥架(宽度相加小于600mm)水平固定支架制作侧视图Φ10×65mm~Φ12×70膨胀螺丝L30×3~L40×4角钢L30×3~L40×4角钢楼 板Φ12×70膨胀螺丝桥 架L50×5角钢桥 架Φ8×30mm六角螺丝双层桥架(宽度相加700~1000mm)水平固定支架图- 考试资料楼 板Φ12×70膨胀螺丝桥 架L60×6角钢桥 架Φ8×30mm六角螺丝双层桥架(宽度相加1100~1400mm)水平固定支架图- 考试资料。
电缆桥架支架装置与图例之青柳念文创作电缆桥架系指电缆梯架、电缆托盘及金属线槽.电缆桥架主要有钢制、铝合金制及玻璃钢制等.钢制桥架概况处理分为喷漆、喷塑、电镀锌,热镀锌、粉沫静电喷涂等工艺.电缆桥架的装置主要有沿顶板装置.沿墙水平和垂直装置、沿竖井装置、沿地面装置.沿电缆沟及管道支架装置等.装置所用支(吊)架可选用成品或自制.支(吊)架的固定方式主要有预埋铁件上焊接,膨胀螺栓固定等.桥架装置应符合以下规定:1.直线段钢制电缆桥架长度超出 30m,铝合金或玻钢制桥架长度超出 15m时,设有伸缩节; 电缆桥架逾越建筑变形缝处设置抵偿装置.2.电缆桥架应在下列地方设置吊架或支架:2.1桥架接头两头 0.5m处;2.2每间距 1.5~3m 处;2.3转弯处;2.4垂直桥架每隔 1.5米处.3.吊架和支架装置坚持垂直、整齐、安稳、无歪斜现象.4.桥架毗连板螺栓固定紧固无遗漏,螺母位于桥架外侧.5.缆桥架应敷设在易燃易爆气体管道和热力管道的下方.6.金属桥架及其支架全长应很多于 2处接地或接零.7.金属桥架间毗连片两头很多于 2个有防松螺帽或防松垫圈的毗连固定螺栓,而且毗连片两头跨接不小于 4mm2的铜芯接地线.8.桥架装置应符合下列要求:8.1桥架左右偏差不大于 50mm;8.2桥架水平度每米偏差不该大于 2mm;8.3桥架垂直度偏差不该大于 3mm建筑电气工程中的电缆桥架均为钢制产品,较少采取在工业工程中为了防腐蚀而使用的非金属桥架或铝合金桥架.所以其接地或接零至为重要,目标是不了包管供电干线电路的使用平安,有的施工设计在桥架内底部,全线敷设一支铜或镀锌扁钢制成的呵护地线(PE),且与桥架每段有数个电气连通点,则桥的接地或接零呵护十分靠得住,因而验收时可不做本条 2、3 款的检查9 电缆桥架敷设易燃易爆气体管道和热力管道的下方,当设计无要求时,与管道的最小净距,符合表 12.2.12 的规定;电缆桥架型号暗示方法桥架装置示意图电缆桥架托臂装置方法1、托臂在工字钢、角钢立柱上装置用 M10*50 螺栓毗连固定.2、托臂长度 B 由设计确定.电缆桥架落地装置方法支架要停止防腐处理电缆桥架延墙装置方法1、线槽固定点间距,线槽宽 100mm 以下式为 1500mm,线槽宽 150mm 以上时由工程设计确定.2、线槽延楼板或延墙铺设,线槽宽 150mm 以上时,应采取双螺栓固定.电缆桥架吊装方法。
桥架支吊架制作安装图例
欧阳学文
()
安装分公司深圳经理部
编制说明
1.电缆桥架支架应根据图纸要求及现场情况制作;安装时应拉通线控制水平及垂直度;
2.电缆桥架水平安装的支架间距为1.5~2m;垂直安装的支架间距不大于2m;在水平长度超过20
米或在转弯、转角处应设固定支架;
3.采用顶爆螺丝工艺安装时,钻头选择应与顶爆螺丝匹配,然后在通丝螺杆上带双螺母锁定,
采用扳手与顶爆螺丝连接牢固;
之欧阳学文创作
4.非镀锌电缆桥架间连接板的两端跨接铜芯接地线,接地线最小截面积不小于4mm2,采用焊锡
铜接线端子连接,连接处应进行除漆处理;
之欧阳学文创作。
桥架支吊架制作安装图例〔2008〕安装分公司XX经理部编制说明1.电缆桥架支架应根据图纸要求及现场情况制作;安装时应拉通线控制水平及垂直度;2.电缆桥架水平安装的支架间距为1.5~2m;垂直安装的支架间距不大于2m;在水平长度超过20米或在转弯、转角处应设固定支架;3.采用顶爆螺丝工艺安装时,钻头选择应与顶爆螺丝匹配,然后在通丝螺杆上带双螺母锁定,采用扳手与顶爆螺丝连接结实;4.非镀锌电缆桥架间连接板的两端跨接铜芯接地线,接地线最小截面积不小于4mm2,采用焊锡铜接线端子连接,连接处应进展除漆处理;Φ8×30mm顶爆螺丝Φ8通丝螺杆L30×3角钢楼 板桥 架50×50~200×50Φ8×25mm六角螺丝50×50~200×100桥架水平支架制作图楼 板Φ8×50mm膨胀螺丝L30×3角钢桥 架Φ8×25mm六角螺丝50×50~200×100桥架水平固定支架制作图(正视)楼 板L30×3角钢Φ8×50mm膨胀螺丝L30×3角钢桥 架Φ8×25mm六角螺丝50×50~200×100桥架水平固定支架制作图(侧视)Φ10×40mm顶爆螺丝Φ10通丝螺杆L40×4角钢楼 板桥 架300×100~400×150300×100~400×150桥架水平支架制作图Φ8×25mm六角螺丝楼 板Φ10×65mm膨胀螺丝L40×4角钢桥 架Φ8×25mm六角螺丝300×100~400×150桥架水平固定支架制作图(正视)楼 板L40×4角钢Φ10×65mm膨胀螺丝L40×4角钢桥 架Φ8×25mm六角螺丝300×100~400×150桥架水平固定支架制作图(侧视)Φ12×50mm顶爆螺丝Φ12通丝螺杆L50×5角钢楼 板桥 架500×100~600×150500×100~600×150桥架水平支架制作图Φ8×30mm六角螺丝楼 板Φ12×70mm膨胀螺丝L50×5角钢桥 架Φ8×30mm六角螺丝500×100~600×150桥架水平固定支架制作图(正视)楼 板L50×5角钢Φ12×70mm膨胀螺丝L50×5角钢桥 架Φ8×30mm六角螺丝500×100~600×150桥架水平固定支架制作图(侧视)Φ12×70mm膨胀螺拴6.3#槽钢6.3#槽钢楼 板桥 架800×150~1000×150150×150×8mm钢板Φ8×30mm六角螺丝800×150~1000×150桥架水平支架制作图(正视)楼 板桥 架Φ12×70mm膨胀螺拴150×150×8mm钢板6.3#槽钢6.3#槽钢Φ8×30mm六角螺丝800×150~1000×150桥架水平支架制作图(侧视)墙 体50×50~200×100桥架垂直安装支架制作图(俯视)Φ8×50mm膨胀螺丝L30×3角钢L30×3角钢Φ8×25mm六角螺丝50×50~200×100桥架垂直安装支架制作图(侧视)墙 体300×100~400×150桥架垂直安装支架制作图(俯视)Φ10×65mm膨胀螺丝L40×4角钢L40×4角钢Φ8×30mm六角螺丝300×100~400×150桥架垂直安装支架制作图(侧视)墙 体500×150~600×150桥架垂直安装支架制作图(俯视)Φ12×70mm膨胀螺丝L50×5角钢L50×5角钢Φ10×30mm六角螺丝500×150~600×150桥架垂直安装支架制作图(侧视)墙 体800×150~1000×150桥架垂直安装支架制作图(俯视)Φ12×70mm膨胀螺丝L60×6角钢L60×6角钢Φ10×30mm六角螺丝800×150~1000×150桥架垂直安装支架制作图(侧视)Φ10×40mm~Φ12×50mm顶爆螺丝Φ10~Φ12通丝螺杆L30×3~L40×4角钢楼 板桥 架200×100~300×150双层桥架(宽度相加小于600mm)水平支架制作图Φ8×25mm六角螺丝桥 架200×100~300×150楼 板Φ10×65mm~Φ12×70膨胀螺丝桥 架L30×3~L40×4角钢桥 架Φ8×25mm六角螺丝双层桥架(宽度相加小于600mm)水平固定支架正视图楼 板桥 架Φ8×25mm六角螺丝桥 架双层桥架(宽度相加小于600mm)水平固定支架制作侧视图Φ10×65mm~Φ12×70膨胀螺丝L30×3~L40×4角钢L30×3~L40×4角钢楼 板Φ12×70膨胀螺丝桥 架L50×5角钢桥 架Φ8×30mm六角螺丝双层桥架(宽度相加700~1000mm)水平固定支架图楼 板Φ12×70膨胀螺丝桥 架L60×6角钢桥 架Φ8×30mm六角螺丝双层桥架(宽度相加1100~1400mm)水平固定支架图。
桥架支吊架制作安装图例(2008)安装分公司XX经理部- - 优质资料编制说明1.电缆桥架支架应根据图纸要求及现场情况制作;安装时应拉通线控制水平及垂直度;2.电缆桥架水平安装的支架间距为1.5~2m;垂直安装的支架间距不大于2m;在水平长度超过20米或在转弯、转角处应设固定支架;3.采用顶爆螺丝工艺安装时,钻头选择应与顶爆螺丝匹配,然后在通丝螺杆上带双螺母锁定,采用扳手与顶爆螺丝连接牢固;4.非镀锌电缆桥架间连接板的两端跨接铜芯接地线,接地线最小截面积不小于4mm2,采用焊锡铜接线端子连接,连接处应进行除漆处理;- - 优质资料- - 优质资料Φ8×30mm顶爆螺丝Φ8通丝螺杆L30×3角钢楼 板桥 架50×50~200×50Φ8×25mm六角螺丝50×50~200×100桥架水平支架制作图楼 板Φ8×50mm膨胀螺丝L30×3角钢桥 架Φ8×25mm六角螺丝50×50~200×100桥架水平固定支架制作图(正视)- - 优质资料楼 板L30×3角钢Φ8×50mm膨胀螺丝L30×3角钢桥 架Φ8×25mm六角螺丝50×50~200×100桥架水平固定支架制作图(侧视)- - 优质资料- - 优质资料Φ10×40mm顶爆螺丝Φ10通丝螺杆L40×4角钢楼 板桥 架300×100~400×150300×100~400×150桥架水平支架制作图Φ8×25mm六角螺丝楼 板Φ10×65mm膨胀螺丝L40×4角钢桥 架Φ8×25mm六角螺丝300×100~400×150桥架水平固定支架制作图(正视)- - 优质资料楼 板L40×4角钢Φ10×65mm膨胀螺丝L40×4角钢桥 架Φ8×25mm六角螺丝300×100~400×150桥架水平固定支架制作图(侧视)- - 优质资料- - 优质资料Φ12×50mm顶爆螺丝Φ12通丝螺杆L50×5角钢楼 板桥 架500×100~600×150500×100~600×150桥架水平支架制作图Φ8×30mm六角螺丝楼 板Φ12×70mm膨胀螺丝L50×5角钢桥 架Φ8×30mm六角螺丝500×100~600×150桥架水平固定支架制作图(正视)- - 优质资料楼 板L50×5角钢Φ12×70mm膨胀螺丝L50×5角钢桥 架Φ8×30mm六角螺丝500×100~600×150桥架水平固定支架制作图(侧视)- - 优质资料- - 优质资料Φ12×70mm膨胀螺拴6.3#槽钢6.3#槽钢楼 板桥 架800×150~1000×150150×150×8mm钢板Φ8×30mm六角螺丝800×150~1000×150桥架水平支架制作图(正视)楼 板桥 架Φ12×70mm膨胀螺拴150×150×8mm钢板6.3#槽钢6.3#槽钢Φ8×30mm六角螺丝800×150~1000×150桥架水平支架制作图(侧视)- - 优质资料- - 优质资料墙 体50×50~200×100桥架垂直安装支架制作图(俯视)Φ8×50mm膨胀螺丝L30×3角钢L30×3角钢Φ8×25mm六角螺丝50×50~200×100桥架垂直安装支架制作图(侧视)- - 优质资料- - 优质资料墙 体300×100~400×150桥架垂直安装支架制作图(俯视)Φ10×65mm膨胀螺丝L40×4角钢L40×4角钢Φ8×30mm六角螺丝300×100~400×150桥架垂直安装支架制作图(侧视)- - 优质资料- - 优质资料墙 体500×150~600×150桥架垂直安装支架制作图(俯视)Φ12×70mm膨胀螺丝L50×5角钢L50×5角钢Φ10×30mm六角螺丝500×150~600×150桥架垂直安装支架制作图(侧视)- - 优质资料- - 优质资料墙 体800×150~1000×150桥架垂直安装支架制作图(俯视)Φ12×70mm膨胀螺丝L60×6角钢L60×6角钢Φ10×30mm六角螺丝800×150~1000×150桥架垂直安装支架制作图(侧视)- - 优质资料- - 优质资料 Φ10×40mm~Φ12×50mm顶爆螺丝Φ10~Φ12通丝螺杆L30×3~L40×4角钢楼 板桥 架200×100~300×150双层桥架(宽度相加小于600mm)水平支架制作图Φ8×25mm六角螺丝桥 架200×100~300×150楼 板Φ10×65mm~Φ12×70膨胀螺丝桥 架L30×3~L40×4角钢桥 架Φ8×25mm六角螺丝双层桥架(宽度相加小于600mm)水平固定支架正视图- - 优质资料- - 优质资料 楼 板桥 架Φ8×25mm六角螺丝桥 架双层桥架(宽度相加小于600mm)水平固定支架制作侧视图Φ10×65mm~Φ12×70膨胀螺丝L30×3~L40×4角钢L30×3~L40×4角钢楼 板Φ12×70膨胀螺丝桥 架L50×5角钢桥 架Φ8×30mm六角螺丝双层桥架(宽度相加700~1000mm)水平固定支架图- - 优质资料楼 板Φ12×70膨胀螺丝桥 架L60×6角钢桥 架Φ8×30mm六角螺丝双层桥架(宽度相加1100~1400mm)水平固定支架图- - 优质资料。
欧阳索引创编 2021.02.02
桥架支吊架制作安装图例
欧阳家百(2021.03.07)
(2008)
安装分公司深圳经理部
编制说明
1.电缆桥架支架应根据图纸要求及现场情况制作;安装时应拉通线控制水平及垂直度;
2.电缆桥架水平安装的支架间距为1.5~2m;垂直安装的支架间距不大于2m;在水平长度超过20米或在
转弯、转角处应设固定支架;
3.采用顶爆螺丝工艺安装时,钻头选择应与顶爆螺丝匹配,然后在通丝螺杆上带双螺母锁定,采用扳
手与顶爆螺丝连接牢固;
4.非镀锌电缆桥架间连接板的两端跨接铜芯接地线,接地线最小截面积不小于4mm2,采用焊锡铜接线
端子连接,连接处应进行除漆处理;
欧阳索引创编 2021.02.02。
电缆桥架支架安装与图例电缆桥架系指电缆梯架、电缆托盘及金属线槽。
电缆桥架主要有钢制、铝合金制及玻璃钢制等。
钢制桥架表面处理分为喷漆、喷塑、电镀锌,热镀锌、粉沫静电喷涂等工艺。
电缆桥架的安装主要有沿顶板安装。
沿墙水平和垂直安装、沿竖井安装、沿地面安装。
沿电缆沟及管道支架安装等。
安装所用支(吊)架可选用成品或自制。
支(吊)架的固定方式主要有预埋铁件上焊接,膨胀螺栓固定等。
桥架安装应符合以下规定:1.直线段钢制电缆桥架长度超过 30m,铝合金或玻钢制桥架长度超过15m 时,设有伸缩节; 电缆桥架跨越建筑变形缝处设置补偿装置.2.电缆桥架应在下列地方设置吊架或支架:2.1桥架接头两端 0.5m 处;2.2 每间距 1.5~3m 处;2.3转弯处;2.4垂直桥架每隔 1.5 米处.3.吊架和支架安装保持垂直、整齐、牢固、无歪斜现象。
4.桥架连接板螺栓固定紧固无遗漏,螺母位于桥架外侧。
5.缆桥架应敷设在易燃易爆气体管道和热力管道的下方。
6.金属桥架及其支架全长应不少于 2 处接地或接零。
7.金属桥架间连接片两端不少于 2 个有防松螺帽或防松垫圈的连接固定螺栓,并且连接片两端跨接不小于 4mm2 的铜芯接地线。
8.桥架安装应符合下列要求:8.1桥架左右偏差不大于 50mm;8.2桥架水平度每米偏差不应大于 2mm;8.3桥架垂直度偏差不应大于 3mm建筑电气工程中的电缆桥架均为钢制产品,较少采用在工业工程中为了防腐蚀而使用的非金属桥架或铝合金桥架。
所以其接地或接零至为重要,目的是不了保证供电干线电路的使用安全,有的施工设计在桥架内底部,全线敷设一支铜或镀锌扁钢制成的保护地线(PE),且与桥架每段有数个电气连通点,则桥的接地或接零保护十分可靠,因而验收时可不做本条 2、3 款的检查9 电缆桥架敷设易燃易爆气体管道和热力管道的下方,当设计无要求时,与管道的最小净距,符合表 12.2.1-2 的规定;电缆桥架型号表示方法桥架安装示意图电缆桥架托臂安装方法1、托臂在工字钢、角钢立柱上安装用 M10*50 螺栓连接固定。
桥架支吊架制作安装图例
(2008)
编制说明
1.电缆桥架支架应根据图纸要求及现场情况制作;安装时应拉通线控制水平及垂直度;
2.电缆桥架水平安装的支架间距为 1.5~2m;垂直安装的支架间距不大于2m;在水平长度
超过20米或在转弯、转角处应设固定支架;
3.采用顶爆螺丝工艺安装时,钻头选择应与顶爆螺丝匹配,然后在通丝螺杆上带双螺母锁
定,采用扳手与顶爆螺丝连接牢固;
4.非镀锌电缆桥架间连接板的两端跨接铜芯接地线,接地线最小截面积不小于4mm2,采用
焊锡铜接线端子连接,连接处应进行除漆处理;
Φ8×30mm 顶爆螺丝
Φ8通丝螺杆
L30×3角钢
楼 板
桥 架
50×50~200×50
Φ8×25mm 六角螺丝
50×50~200×100桥架水平支架制作图
楼板
Φ8×50mm膨胀螺丝
L30×3角钢
桥架
Φ8×25mm六角螺丝
50×50~200×100桥架水平固定支架制作图(正视)
楼板
L30×3角钢
Φ8×50mm膨胀螺丝
L30×3角钢
桥架
Φ8×25mm六角螺丝
50×50~200×100桥架水平固定支架制作图(侧视)
Φ10×40mm 顶爆螺丝
Φ10通丝螺杆
L40×4角钢
楼 板
桥 架
300×100~400×150
300×100~400×150桥架水平支架制作图
Φ8×25mm 六角螺丝
楼板
Φ10×65mm膨胀螺丝
L40×4角钢
桥架
Φ8×25mm六角螺丝
300×100~400×150桥架水平固定支架制作图(正视)
楼板
L40×4角钢
Φ10×65mm膨胀螺丝
L40×4角钢
桥架
Φ8×25mm六角螺丝
300×100~400×150桥架水平固定支架制作图(侧视)
Φ12×50mm 顶爆螺丝
Φ12通丝螺杆
L50×5角钢
楼 板
桥 架
500×100~600×150
500×100~600×150桥架水平支架制作图
Φ8×30mm 六角螺丝
楼板
Φ12×70mm膨胀螺丝
L50×5角钢
桥架
Φ8×30mm六角螺丝
500×100~600×150桥架水平固定支架制作图(正视)
楼板
L50×5角钢
Φ12×70mm膨胀螺丝
L50×5角钢
桥架
Φ8×30mm六角螺丝
500×100~600×150桥架水平固定支架制作图(侧视)
Φ12×70mm 膨胀螺拴6.3#槽钢
6.3#槽钢
楼
板
桥 架
800×150~1000×150
150×150×8mm 钢板
Φ8×30mm 六角螺丝
800×150~1000×150桥架水平支架制作图(正视)
楼板
桥架Φ12×70mm膨胀螺拴
150×150×8mm钢板
6.3#槽钢
6.3#槽钢
Φ8×30mm六角螺丝
800×150~1000×150桥架水平支架制作图(侧视)
墙 体
50×50~200×100桥架垂直安装支架制作图(俯视)
Φ8×50mm 膨胀螺丝L30×3角钢
L30×3角钢
Φ8×25mm 六角螺丝
桥架
墙
体Φ8×50mm膨胀螺丝
L30×3角钢
Φ8×25mm六角螺丝
50×50~200×100桥架垂直安装支架制作图(侧视)
墙 体
300×100~400×150桥架垂直安装支架制作图(俯视)
Φ10×65mm 膨胀螺丝L40×4角钢
L40×4角钢
Φ8×30mm 六角螺丝
桥架
墙
体Φ10×65mm膨胀螺丝
L40×4角钢
Φ8×30mm六角螺丝
300×100~400×150桥架垂直安装支架制作图(侧视)
墙 体
500×150~600×150桥架垂直安装支架制作图(俯视)
Φ12×70mm 膨胀螺丝L50×5角钢
L50×5角钢
Φ10×30mm 六角螺丝
桥架
墙
体Φ12×70mm膨胀螺丝
L50×5角钢
Φ10×30mm六角螺丝
500×150~600×150桥架垂直安装支架制作图(侧视)
墙 体
800×150~1000×150桥架垂直安装支架制作图(俯视)
Φ12×70mm 膨胀螺丝L60×6角钢
L60×6角钢
Φ10×30mm 六角螺丝
桥架
墙
体Φ12×70mm膨胀螺丝
L60×6角钢
Φ10×30mm六角螺丝
800×150~1000×150桥架垂直安装支架制作图(侧视)
Φ10×40mm ~Φ12×50mm 顶爆螺丝
Φ10~Φ12通丝螺杆
L30×3~L40×4角钢
楼 板
桥 架
200×100~300×150双层桥架(宽度相加小于600mm )水平支架制作图
Φ8×25mm 六角螺丝
桥 架
200×100~300×150
楼板
Φ10×65mm~Φ12×70膨胀螺丝
桥架L30×3~L40×4角钢
桥架
Φ8×25mm六角螺丝
双层桥架(宽度相加小于600mm)水平固定支架正视图
楼 板
桥 架
Φ8×25mm 六角螺丝
桥 架
双层桥架(宽度相加小于600mm )水平固定支架制作侧视图
Φ10×65mm ~Φ12×70膨胀螺丝
L30×3~L40×4角钢
L30×3~L40×4角钢
楼板
Φ12×70膨胀螺丝
桥架L50×5角钢
桥架
Φ8×30mm六角螺丝
双层桥架(宽度相加700~1000mm)水平固定支架图
楼板
Φ12×70膨胀螺丝
桥架L60×6角钢
桥架
Φ8×30mm六角螺丝
双层桥架(宽度相加1100~1400mm)水平固定支架图。