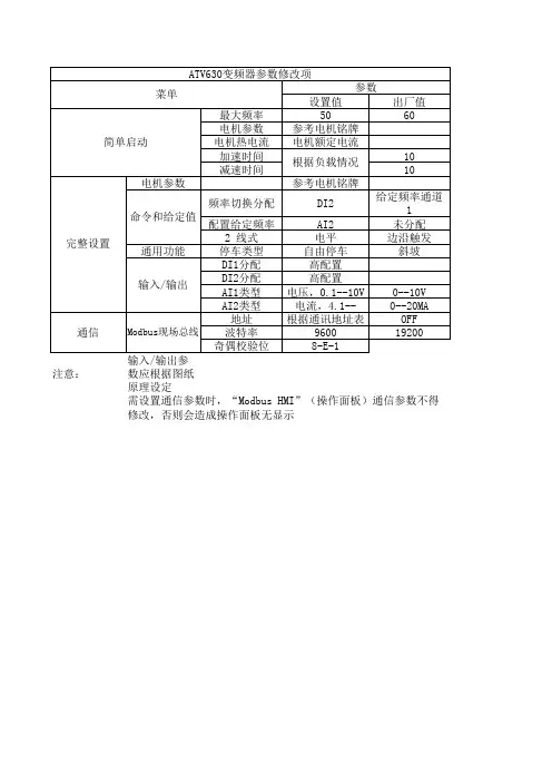
施耐德ATV630变频器模拟实验指导书
- 格式:doc
- 大小:28.50 KB
- 文档页数:5
1施耐德ATV630变频器调试步骤23第一步型号确认:确认变频器的型号与所购买的变频器的型号是否一致。
4如不一致,让代理商退货。
5第二步运输确认:打开包装后,检查变频器在运输过程中有无损坏。
如6有损坏,让代理商退货。
7第三步电压确认:现场的电源电压应在变频器所接受的电压范围内。
否8则,下面的所有步骤停止。
9第四步机械安装10第五步电机、变频器的绝缘测量。
然后给变频器连线:按照图纸,连接11电机线到U,V,W上,确保连接与电压一致;在确保电源关闭之后连接主电源到12L1,L2,L3;连接控制源;连接速度给定源。
有网络的连接网络。
13第六步上电调试语言修改:上电后会显示语言选择。
(仅上电第一次要14做此修改)1516第七步恢复出厂设置17在7号菜单“文件管理”有出厂设置,可恢复出厂设置。
1819第八步访问等级、时间修改20在“我的首选项”8.6有访问级别;8.5待定义为时间的修改21电气维修人员一般把此访问等级设为专家权限。
22第九步在“简单启动”里设定电机参数:电机的功率、电压、电流、23频率、转速等,并作自整定。
设置最高频率、最低频率等。
24第十步在“简单启动”里设加减速时间:设置合理的加减速时间。
25第十一步在“简单启动”里设保护参数电机的热保护电流值;在“完26整设置”,电机参数,电机热监控下设电流限幅值等。
272829第十二步设控制源、频率源:在“完整设置”“命令与给定值(5.4)”中30设启动变频器的通道,频率给定的通道。
31第十三步 IO分配在“完整设置”下“输入输出(5.10)”设置。
AI1,32AI2是电压信号;AI3是电流信号。
AO1电流信号,AO2电压信号。
电压信号0-10V,33电流信号0-20mA。
34第十四步有应用功能的分配应用功能。
在“完整设置”下设35第十五步确定电机的转向给定以较小的频率,点动变频器,确认电机36的转向;如相反可修改“完整设置”下“电机参数”“电动机控制”中参数PHr。
ATV61参数设置➢菜单[1 变频器菜单][2 访问等级][3 打开/另存为][4 密码][5 语言选择][6 监视设置][7 显示设置]➢[1 变频器菜单][1.1简单起动]:用于快速起动的简化菜单[1.2监视]:显示电流、电机与输入/输出值[1.3设置]:访问可在运行期间修改的调节参数[1.4 电机控制]:电机参数(电机铭牌,自整定,开关频率,控制算法等)[1.5输入/输出设置]:I/O设置(缩放比例,滤波,2线控制,3线控制等)[1.6命令]:命令与给定通道的设置(图形显示终端,端子,总线等)[1.7应用功能]:应用功能设置(例如:预置速度,PID等)[1.8 故障管理]:故障管理设置[1.9通信]:通信参数(现场总线)[1.10诊断]:电机/变频器诊断[1.11软硬件识别]:变频器与内部可选件的识别[1.12出厂设置]:访问设置文件并返回出厂设置[1.13用户菜单]:用户在[7.显示设置]菜单中创建的专用菜单[1.14内置控制器卡]:可选Controller Inside(内置控制器)卡的设置➢[1.1简单起动]●[2/3线控制]tCC=2C[2线控制]●[宏配置]CFG=PnF[泵和风机]●bFr[标准电机频率]= [50 Hz IEC](50):IEC●nPr[电机额定功率]=●UnS[电机额定电压]=●[电机额定电流]nCr=●FrS[电机额定频率]=●nSP[电机额定速度]=●tFr[最大输出值频率]=●tUn[自整定]= [No](nO)/ [Yes](YES)/ [电阻已整定](dOnE)●tUS[自整定状态]✧[电阻未整定](tAb):默认的定子阻抗值用于控制电机。
✧[整定等待中](PEnd):已经请求自整定,但还未执行。
✧[整定进行中](PrOG):正在执行自整定。
✧[整定失败](FAIL):自整定失败。
✧[电阻已整定](dOnE):自整定功能测出的定子阻抗被用于控制电机。
ATV630变频器通讯实验2016年1月25日目录一、实验目的 (3)二、实验设备 (3)三、实验步骤 (3)1.操作说明 (3)2.内置以太网通讯 (4)3.MODBUS通讯 (9)四、实验注意事项 (12)一、实验目的1、掌握ATV630变频器内置以太网通讯功能2、掌握ATV630变频器modbus通讯功能二、实验设备三、实验步骤1.操作说明ATV630变频器操作面板图形显示终端及各部分作用:2.变频器自带以太网口通讯:2.1设备变频器通讯参数:进入通信组菜单,通信参数,嵌入式以太网配置变频器地址类型设置为固定IP地址IP地址设置,本例中设置为10.177.123.11网关设置,本例中设置为10.177.123.1掩码设置,本例中设置为255.255.255.0通讯组参数设置完成后需将变频器断电重启。
2.2 PLC配置:根据机架、CPU、以太网模块、输入输出模块的型号在Unity软件中做好硬件配置如下:配置网络:打开项目浏览器中的通讯》网络菜单,新建网络,选择以太网,名称可根据自己需要更改,如图:在配置中将网络和以太网模块关联上,如图:配置好模块地址、网关、掩码:选择模块实用程序为IO扫描,并配置IO数据区长度和起始地址上表中,读取地址对应变频器通信扫描器输入区域地址,%MW0对应扫描输入地址1,后面的按顺序排列;写入地址对应变频器通信扫描器输出区域地址,%MW10对应扫描输出地址1,后面的按顺序排列。
按变频器默认参数,上表中的对应关系为%MW10为控制字,%MW11为速度给定,为方便演示,将扫描输出地址2(nCA2)改为8502,即%MW11为频率给定,改完后变频器断电重启。
在数据表中,将%MW11的值修改为500,可看到变频器对应显示给定频率为50HZ依次在数据表中写入%MW10的值为6、7、15(16进制的F),可看到变频器开始运行如图4.MODBUS通电试验ATV630变频器MODBUS通讯采用modscan32软件模拟,变频器MODBUS接口引脚定义:4.1变频器参数设置:COM-通讯菜单》modbus通讯菜单MD1:Add:设置modbus通讯地址,本例设为3Tbr:设置mdbus通讯波特率,19200Tfo:设置modbus格式,默认为8E1Cst-完整设置菜单》命令和给定值CrP-:FR1:设置给定方式,改为modbusCHCF:设置控制模式,默认为组合通道4.2设置变频器的地址ID,寄存器起始地址和寄存器类型,如图:变频器与电脑的连接设置,点击连接,设置波特率、通讯口、通讯协议,如图:4.3点击寄存器地址,modscan软件对应寄存器地址有1位偏移,因此图中48502实际对应变频器控制字8501,48503对应变频器频率给定8502,默认数据格式为10进制,写入频率50HZ,对应写入48503值为500,由于使用的组合通道,因此需按DriveCom流程操作变频器,在48502中依次写入6、7、15(16进制F),然后变频器起动开始以50HZ运行,在48502中写入7后停机:DriveCom流程控制字每一位的定义如下:当控制模式CHCF=IO配置,同时将CD1命令通道1改为modbus,此时不需要走DriveCom 流程,直接用控制字模拟输入端子信号,因此将48502的第1位置1,变频器就会起动,置0,变频器就会停止:四、实验注意事项1、变频器通讯参数在每次更改后,需要断电将变频器重启。
施耐德变频器说明书大全
施耐德变频器说明书大全
1. 引言
1.1 本文档目的
本文档旨在提供关于施耐德变频器的详细说明,包括产品特点、安装步骤、操作指南、故障排除和维护等内容,以帮助用户正确、
安全地使用该设备。
1.2 读者对象
本文档适用于施耐德变频器的用户和维护人员,要求读者具备
一定的电气知识和动力控制技能。
2. 施耐德变频器概述
2.1 产品简介
施耐德变频器是一种用于控制电动机转速的设备,能够实现电
动机的频率调节和速度控制,广泛应用于工业生产和自动化系统中。
2.2 产品特点
2.2.1 高效节能:施耐德变频器采用先进的变频控制技术,能
够根据实际负载情况自动调节输出功率,以实现能源的有效利用。
2.2.2 稳定可靠:施耐德变频器具有良好的电气性能和稳定的工作特性,能够保证设备的稳定运行和长期可靠性。
2.2.3 界面友好:施耐德变频器设有直观的操作界面和用户友好的菜单,方便用户进行操作和参数设置。
2.3 产品型号
施耐德变频器产品系列包括:ATV312、ATV320、ATV630等多个型号,具体型号可根据用户需求选择。
3. 安装步骤
3.1 安全注意事项
在安装施耐德变频器之前,务必注意以下事项:
3.1.1 确保停电:在进行任何安装步骤之前,必须先断电,并确保设备的电源完全切断。
3.1.2 防止触电:使用绝缘手套和绝缘工具进行安装,避免触电事故的发生。
3.1.3 合理配线:进行电气连接时,必须根据设备的电气图纸和接线规范进行正确的配线和接线操作。
4. 操作指南
4.1 启动和停止操作
4.1.1 启动变频器:按下\。
ATV施耐德变频器参数设置ATV312施耐德变频器参数设置MODE ---模式切换ESC ---退出键盘中间---进入/确认RUN ---运行STOP RESET---停止/复位注:全新变频器默认运程模式(左边3个灯循环闪烁,此模式不可设参数),按MODE 键3秒至灯不闪烁,进入本地模式才可以设置参数。
每次按键盘中间进入或者确认,按ESC退出,旋转键盘可选择参数。
必设参数:1、电机参数(根据电机铭牌设置)drC---nCr (电机额定电流)bFr (电机标准频率)nSP (电机额定转速)UnS (电机额定电压)2、SEt---ItH 电机热电流(按电机额定电流倍设置)HSP上限频率(默认50HZ,电机是60HZ的要设置60HZ)3、FLt---rsf---LI5 故障复位点一、面板操作1、CtL --- LAC --- L3 (按键盘中间2秒确定)CHCF -- SEPCdI---LOC (本地)FrI---AIUIrOt--dFr 电机正转(drs ,电机反正)2、rEF---AIUI 运行频率(100对应HSP设置频率,50/60HZ)进到该参数里面,再旋转键盘可调频率。
二、端子控制1、CtL --- LAC --- L3 (按键盘中间2秒确定)CHCF -- SEPCdI---tEr (端子控制)FrI---AIUI2、rEF---AIUI 运行频率(100对应HSP设置频率,50/60HZ)三、压力传感器控制4-20mA (AI3 端子控制)1、CtL --- LAC --- L3 (按键盘中间2秒确定)CHCF -- SECdI---tEr (端子控制)FrI---AI3 (给定通道)2、I-O- --- CrL3 控制最小值(计算公式:16÷40x压力+4 ,40是传感器量程)CrH3 控制最大值(对应13-18MPa,稳定在15,16MPa)AOIt-- 4A (传感器接线:上面有1,2,3,4角,1角是电源线,2角是信号线)四、恢复出厂设置DrC --- FCS ---InI (按键盘中间2秒,切换到no)。
ATV630模拟调试指导书QCS-Helpdesk2016年1月22日目录一、实验目的 (3)二、实验设备 (3)三、实验步骤 (3)1.接线概述 (6)2.上电完成如下实验 (7)(1)预设速度实验 (7)(2)加减速实验 (9)(3)速度切换实验 (10)(4)PI调节实验 (11)(5)Modbus通讯实验 (13)一、实验目的1、掌握ATV630变频器预设速度的功能2、掌握ATV630变频器加减速的功能3、掌握ATV630变频器速度给定切换的功能4、掌握ATV630变频器PI调节的功能5、掌握ATV630变频器与PLC通讯应用的功能二、实验设备变频器ATV630U07M3一台、小电机一台、电位计R分别接到VIA、10V,COM,DI1,DI2到DI6端子为逻辑输入端子,R2,R3灯接在变频器的R2,R3上。
AO1电流表接AQ1和COM 上。
三、实验步骤1.控制端子布局及功能介绍ATV630控制端子的布局图如下:ATV630控制端子的功能表如下:ATV630的接线图:2.实验操作(1)预设速度实验1.能够正转,并有七级速度:10Hz,15HZ,20Hz,25Hz,30Hz,35HZ,40HZ。
端子采用DI3,DI5,DI6三个端子;2. 加减速斜坡时间分别10S,10S;实验解答:在完整设置菜单中找到5.9通用功能,按OK键进去找到预设速度,再按OK键进去,2预设速度设为DI3,4预设速度设为DI5,8预设速度设为DI6。
预设速度2设为10HZ,预设速度3设为15HZ,预设速度4设为20HZ,预设速度5设为25HZ,预设速度6设为30HZ,预设速度7设为35HZ,预设速度8设为40HZ。
找到5完整设置按OK键进去,找到5.9通用功能,按OK键进去找到斜坡,把加速时间,减速时间分别改为10S。
(2)加减速实验1.用端子DI1为正转功能;2.用端子DI5,做加速功能;端子DI6做减速功能;3.当断电时,有存储原给定值;实验解答:找到5完整设置菜单,进去找到5.5命令和参考值,按OK键进去找到频率切换分配菜单改为参考频率通道2,给定频率2配置改为通过DI的参考频率,找到5.9通用功能进去找到加减速菜单,把加速分配改为DI5,把减速分配改为DI6,给定频率存储改为保存至EEPROM。
ATV61变频器针对 0.75 至 2400 kW 三相同异步电机产品泵和风机会消耗大量的能源,特别是在工业环境和基础设施领域。
通过这种新一代的变频器,施耐德电气利用其在速度控制领域中范围广泛的专业技术和技能,协助您提高竞争力,保护您的设施,降低您的维护成本,同时保持环境友好性。
出众的性能、先进的功能...同时又一直强调简便性。
对所有通信网络、应用、用户等开放。
ATV61 标准转矩产品针对您的所有特殊需求提供了独创性的解决方案。
控制您的能耗■其节能可使能耗削减50%。
■在变频器控制下,流量为额定值 80% 时的电机功率仅对应额定功率的50%,而在传统控制方式下则为 95%。
■ATV61 提供多种控制比率:- 二次比率 (Kn2)。
- 电压/频率比 (2 或 5 个点)。
- 节能比:根据施加在设备上的负载来优化能耗。
■减少电流谐波 (直流电抗器、无源滤波器等)。
ATV61前沿产品!强大的产品阵容■ IP20,UL 1 型,三相 200 至 240 V:ATV61 0.75 至 90 kW■ IP20,UL 1 型,三相 380至 480 V:ATV61 0.75 至 630 kW■ IP20,UL 1 型,三相 500 至 690 V:ATV61 2.2 至 800 kW■ IP54,UL 12 型,三相 380 至 480 V:ATV61 0.75 至 90 kW■ IP23/54,柜式变频器,三相 380 至 480 V:ATV61 90 至 1400 kW■ IP23/54,柜式变频器,三相 500 至 690 V:ATV61 90 至 2400 kW■集成 A 级或 B 级 EMC 滤波器。
■适应全世界要求的产品:UL、CSA、CE、C-Tick、DNV、GOST、ATEX ...可扩展的功能基本设备配有多种功能:应用功能、输入/输出、通信网络等等,可通过以下板卡进一步扩展:■输入/输出扩展卡。
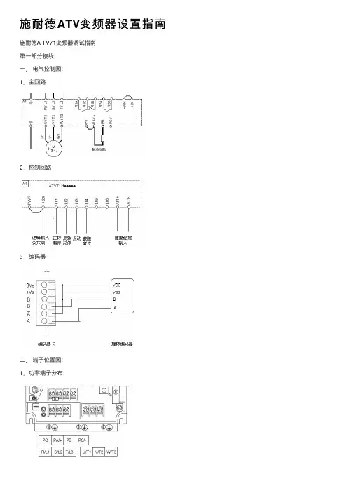
施耐德ATV变频器设置指南施耐德A TV71变频器调试指南第⼀部分接线⼀.电⽓控制图:1.主回路2.控制回路3.编码器⼆.端⼦位置图:1.功率端⼦分布:4KW及以下 5.5KW及以上2.控制端⼦位置图:3.编码器卡安装图三.接线注意事项:1.各功率端⼦和控制端⼦⼀定要安装紧固;1.1 动⼒直流母线端⼦PO--PA+之间的短接铜⽚⼀定要保持紧固;1.2 控制端⼦的PWR--+24V之间的短接⽚⼀定要保持连接,否则变频器将显⽰状态PRA并且不能正常输出。
1.3 如⽤AI1+和AI1-做双极性给定,请去掉AI1-和com之间的短接⽚。
2.请可靠连接各保护地和屏蔽地。
第⼆部分⽤中⽂图形终端编程⼀.中⽂图形编程操作终端界⾯⼆.菜单结构1.主菜单注:所有的参数调整都在 1 变频器菜单中进⾏,其它的主菜单都是辅助功能。
这些需要在使⽤中灵活掌握,慢慢积累经验。
2.变频器菜单注:变频器菜单中有关调试主要菜单是1.1 到 1.8 。
我们暂时也仅仅涉及⼀些主要的菜单和参数。
其它都是辅助菜单,这些需要在使⽤中灵活掌握,慢慢积累经验。
三.调试的步骤第⼀步,设置简捷的起停控制设置端⼦与⾯板切换功能键(命令菜单):在命令菜单,找到最后⼀个参数:F4键分配:设置其功能为T/K,即为端⼦控制(Terminals)与图形终端控制(Kepad)切换。
这样按F4键可以切换⽤端⼦控制起停或图形终端控制起停。
端⼦控制有效时,起停命令来⾃LI1, LI2的逻辑端⼦的输⼊,这时变频器图形终端⾸⾏显⽰的第⼆个位置显⽰TERM;图形终端控制激活时,按图形终端上的RUN, STOP,FWD/REV键可以控制变频器的正反转,旋转导航键(浏览⿎轮)改变频率给定这时图形终端⾸⾏显⽰的第⼆个位置显⽰HMI。
此设置的⽬的是为了便于⼿动试运转。
正常运⾏时,应采⽤端⼦控制。
第⼆步,设置电机的闭环磁通⽮量控制⽅式1.电机铭牌参数的输⼊与参数优化(1.4 电机控制菜单) :在1.4 电机控制菜单中,我们需要输⼊以下电机铭牌参数,⽬的是为了让变频器识别电机的电⽓指标,以便实现最优控制。
ATV630模拟调试指导书QCS-Helpdesk2016年1月22日目录一、实验目的 (3)二、实验设备 (3)三、实验步骤 (3)1.接线概述 (6)2.上电完成如下实验 (7)(1)预设速度实验 (7)(2)加减速实验 (9)(3)速度切换实验 (10)(4)PI调节实验 (11)(5)Modbus通讯实验 (13)一、实验目的1、掌握ATV630变频器预设速度的功能2、掌握ATV630变频器加减速的功能3、掌握ATV630变频器速度给定切换的功能4、掌握ATV630变频器PI调节的功能5、掌握ATV630变频器与PLC通讯应用的功能二、实验设备变频器ATV630U07M3一台、小电机一台、电位计R分别接到VIA、10V,COM.DI1,DI2到DI6端子为逻辑输入端子.R2.R3灯接在变频器的R2.R3上。
AO1电流表接AQ1和COM 上。
三、实验步骤1.控制端子布局及功能介绍ATV630控制端子的布局图如下:ATV630控制端子的功能表如下:ATV630的接线图:2.实验操作(1)预设速度实验1.能够正转.并有七级速度:10Hz.15HZ.20Hz.25Hz.30Hz.35HZ.40HZ。
端子采用DI3.DI5.DI6三个端子;2. 加减速斜坡时间分别10S.10S;实验解答:在完整设置菜单中找到5.9通用功能.按OK键进去找到预设速度.再按OK键进去.2预设速度设为DI3.4预设速度设为DI5.8预设速度设为DI6。
预设速度2设为10HZ.预设速度3设为15HZ.预设速度4设为20HZ.预设速度5设为25HZ.预设速度6设为30HZ.预设速度7设为35HZ.预设速度8设为40HZ。
找到5完整设置按OK键进去.找到5.9通用功能.按OK键进去找到斜坡.把加速时间.减速时间分别改为10S。
(2)加减速实验1.用端子DI1为正转功能;2.用端子DI5,做加速功能;端子DI6做减速功能;3.当断电时,有存储原给定值;实验解答:找到5完整设置菜单.进去找到5.5命令和参考值.按OK键进去找到频率切换分配菜单改为参考频率通道2,给定频率2配置改为通过DI的参考频率.找到5.9通用功能进去找到加减速菜单.把加速分配改为DI5.把减速分配改为DI6.给定频率存储改为保存至EEPROM。
ATV630变频器调试步骤1.确定参数设置前的准备工作:在进行ATV630变频器调试之前,需要进行一些基本的准备工作。
首先,确保变频器的安装位置合适,通风良好,并避免与其他设备产生干扰。
其次,检查电源电压和频率是否与ATV630的额定电压和频率匹配。
最后,清除变频器的默认设置,以便进行新的参数设置。
2.设置基本参数:首先,通过ATV630变频器的面板或者连接到计算机的软件完成基本参数设置。
这些基本参数包括输入电压和频率、输出电压和频率、电机额定功率和转速等。
此外,还需要设置运行模式,如速度控制模式、力矩控制模式等。
3.设置保护参数:ATV630变频器还具有多种保护功能,包括过载保护、过温保护、短路保护等。
根据实际需求,设置这些保护参数,以确保电机和变频器的安全运行。
4.配置控制信号:ATV630变频器支持多种控制信号输入,如模拟信号输入、数字信号输入、网络通信输入等。
根据实际需求,配置这些控制信号,以便实现远程控制或自动控制。
5.进行负载测试:在进行ATV630变频器调试时,需要对其进行负载测试。
首先,将电机连接到变频器的输出端口,并将负载连接到电机的输出轴上。
然后,通过调整ATV630变频器的输出频率和电压,逐步增加负载,观察电机的运行状态,以确保其正常运行。
6.进行闭环控制测试:ATV630变频器支持闭环控制,可以通过连接编码器或其他反馈设备实现。
在进行闭环控制测试时,通过调整ATV630变频器的参数,观察电机的转速、位置等反馈信号,并与设定值进行比较,以实现精确的控制。
7.进行故障诊断:ATV630变频器具有自动故障诊断功能,可以检测电机和变频器的异常状态,并提示相应的故障代码。
在调试过程中,如果出现故障代码,可以根据相关的故障代码手册进行故障诊断和排除。
8.进行参数优化:通过以上步骤,可以初步调试ATV630变频器,并确保其正常运行。
然而,为了实现更高的控制精度和效率,还需要进行参数优化。
atv630编程手册
施耐德ATV御程系列ATV630变频器编程手册可以在施耐德官方网站上下载,手册编号是EAV64324.01,发布日期是2014年05月。
该编程手册为PDF格式,共有751页,提供了有关ATV630变频器的详细编程信息和技术规格。
在使用该手册时,需要注意手册中的免责声明,未经施耐德公司书面许可,不得复制手册的任何部分。
此外,施耐德ATV御程系列ATV630变频器编程手册还提供了以下有用的信息:
硬件和软件要求:手册详细介绍了ATV630变频器的硬件要求,包括电源、电机、连接器和电缆等。
此外,还提供了软件要求,包括所需的编程软件和通信软件。
安装和布局:手册提供了ATV630变频器的安装和布局指南,包括变频器的尺寸、重量、安装位置和散热要求等。
调试和测试:手册提供了ATV630变频器的调试和测试步骤,包括通电前的检查、通电后的检查、参数设置和故障排除等。
应用实例:手册提供了多个ATV630变频器的应用实例,包括在纺织机械、电梯、压缩机和水泵等场合的应用。
这些实例可以帮助读者更好地了解ATV630变频器的应用场景和性能。
技术规格和性能数据:手册提供了ATV630变频器的技术规格和
性能数据,包括电压范围、电流范围、频率范围、调速精度和稳定性等。
这些数据可以帮助读者了解ATV630变频器的性能和技术指标。
总之,施耐德ATV御程系列ATV630变频器编程手册是一个非常有用的资源,可以帮助用户更好地了解和使用ATV630变频器。
如果您需要更深入地了解ATV630变频器的使用和编程方法,建议仔细阅读该手册并参考相关示例和应用。
atv630编程手册
摘要:
1.ATV630 编程手册简介
2.ATV630 编程手册适用对象
3.ATV630 编程手册主要内容
3.1 产品概述
3.2 编程基础
3.3 编程实践
3.4 故障处理与维护
4.ATV630 编程手册的学习建议
正文:
ATV630 编程手册是一本针对ATV630 产品编程的指导书籍,适用于对ATV630 产品有一定了解,想要深入学习编程的读者。
本书以实用为导向,全面、系统地介绍了ATV630 编程的相关知识,旨在帮助读者快速掌握编程技巧,提高工作效率。
在本书中,首先介绍了ATV630 编程手册的适用对象,明确读者群体,使得读者能够对本书有一个基本的认识。
接下来,详细地介绍了ATV630 编程手册的主要内容,包括产品概述、编程基础、编程实践和故障处理与维护四个方面。
在产品概述部分,详细地介绍了ATV630 产品的性能、结构和工作原理等方面的内容,为读者提供了一个全面的了解。
编程基础部分则重点介绍了编
程的基本概念、编程语言和编程工具等方面的知识,为读者奠定编程基础。
编程实践部分是本书的核心内容,通过丰富的实例,详细地介绍了
ATV630 产品的编程方法与技巧。
这些实例具有很强的实用性,可以帮助读者快速掌握编程要领,提高编程效率。
在故障处理与维护部分,介绍了在编程过程中可能遇到的问题及其解决方法,使得读者在遇到问题时能够迅速找到解决办法。
最后,本书给出了学习建议,针对不同读者的需求,提供了一些切实可行的学习方法,以帮助读者更好地学习和掌握ATV630 编程知识。
atv630编程手册ATV630编程手册是ABB公司专门为ATV630系列变频器用户准备的一本重要参考资料。
在现代工业控制领域,变频器作为调节电机转速的关键设备,扮演着越来越重要的角色。
而ATV630系列变频器作为ABB公司的一款高性能产品,其编程手册更是为用户提供了详尽的使用说明和技术支持。
首先,ATV630编程手册详细介绍了该系列变频器的功能特点和技术参数。
用户可以通过手册了解到ATV630变频器具有哪些先进的功能,比如能够实现多种控制模式的切换、支持多种编程方式以及具备网络通信功能等。
同时,手册还列出了ATV630的技术参数表,包括额定输入电压、额定输出电流、最大输出频率等,帮助用户选择适合自己工程需求的产品型号。
其次,ATV630编程手册详细描述了ATV630变频器的硬件结构和接线方法。
用户可以从手册中了解到ATV630变频器的外形尺寸、安装方式以及各个接口的功能和接线要求。
这对于用户正确安装和接线变频器至关重要,不仅可以确保设备的正常运行,还可以提高设备的使用寿命。
此外,ATV630编程手册还包含了ATV630变频器的参数设置和应用程序编程的详细步骤。
用户可以根据手册中的指导,逐步完成对变频器各项参数的设置,如控制方式、保护参数、速度曲线等。
同时,手册还提供了ATV630变频器的应用程序编程示例,帮助用户快速上手,实现对电机转速的精确控制。
最后,ATV630编程手册还包含了ATV630变频器的故障诊断和维护方法。
在使用过程中,变频器可能会出现各种故障,如过载、短路等,手册中提供了详细的故障代码和解决方法,帮助用户快速找到故障原因并进行处理。
同时,手册还介绍了ATV630变频器的日常维护方法,包括清洁、检查接线等,延长设备的使用寿命。
总的来说,ATV630编程手册是一本对ATV630系列变频器用户来说极具实用价值的参考资料。
通过学习和掌握手册中的内容,用户可以更好地理解和使用ATV630变频器,提高设备的运行效率和稳定性,同时也为工业控制领域的发展做出贡献。
Product data sheetCharacteristicsATV630C22N4变频器 ATV630 - 220kW/350HP - 380...480V -IP00主要信息产品系列ATV御程系列 ATV600产品类型变频器应用领域过程应用产品短名ATV630变量标准版本产品应用场景异步电机同步电机EMC 滤波器集成的 和 50 m 最长电机电缆 符合 IEC 61800-3 C3类IP 保护等级IP00 符合 IEC 61800-5-1 IP00 符合 IEC 60529IP21 (带VW3A9112套件) 符合 IEC 61800-5-1 IP21 (带VW3A9112套件) 符合 IEC 60529额定电源电压 [Us]380...480 V 冷却方式强制通风供电频率50...60 Hz - 5...5 %额定电源电压 [Us]380...480 V - 15...10 %电动机功率 (kW)160 KW (重载)220 KW (标准负载)电机功率350 Hp 标准负载 250 Hp 重载线路电流397 A 在…上 380 V (标准负载) 324 A 在…上 480 V (标准负载) 296 A 在…上 380 V (重载) 246 A 在…上 480 V (重载)预期线路Isc 50 KA视在功率247 KVA 在…上 480 V (标准负载) 187 KVA 在…上 480 V (重载)连续输出电流302 A 在…上 2.5 kHz 适用 重载427 A 在…上 2.5 kHz 适用 标准负载异步电机控制配置文件标准恒转矩 标准变转矩优化转矩模式同步电机控制配置模式永磁同步电机同步磁阻电机变频器输出频率0.1…500 Hz 额定开关频率 2.5 kHz 开关频率 2.5...8 kHz 有 2...8 kHz 可调安全功能STO(安全扭矩中断) SIL 3离散量输入逻辑16个预置速度T h e i n f o r m a t i o n p r o v i d e d i n t h i s d o c u m e n t a t i o n c o n t a i n s g e n e r a l d e s c r i p t i o n s a n d /o r t e c h n i c a l c h a r a c t e r i s t i c s o f t h e p e r f o r m a n c e o f t h e p r o d u c t s c o n t a i n e d h e r e i n .T h i s d o c u m e n t a t i o n i s n o t i n t e n d e d a s a s u b s t i t u t e f o r a n d i s n o t t o b e u s e d f o r d e t e r m i n i n g s u i t a b i l i t y o r r e l i a b i l i t y o f t h e s e p r o d u c t s f o r s p e c i f i c u s e r a p p l i c a t i o n s .I t i s t h e d u t y o f a n y s u c h u s e r o r i n t e g r a t o r t o p e r f o r m t h e a p p r o p r i a t e a n d c o m p l e t e r i s k a n a l y s i s , e v a l u a t i o n a n d t e s t i n g o f t h e p r o d u c t s w i t h r e s p e c t t o t h e r e l e v a n t s p e c i f i c a p p l i c a t i o n o r u s e t h e r e o f .N e i t h e r S c h n e i d e r E l e c t r i c I n d u s t r i e s S A S n o r a n y o f i t s a f f i l i a t e s o r s u b s i d i a r i e s s h a l l b e r e s p o n s i b l e o r l i a b l e f o r m i s u s e o f t h e i n f o r m a t i o n c o n t a i n e d h e r e i n .通讯端口协议以太网Modbus以太网Modbus 串行选项卡卡槽A: 通讯模块, Profibus DP V1卡槽A: 通讯模块, Profinet卡槽A: 通讯模块, DeviceNet卡槽A: 通讯模块, Modbus TCP/EtherNet/IP卡槽A: 通讯模块, CANopen 菊花链 RJ45卡槽A: 通讯模块, CANopen SUB-D 9卡槽A: 通讯模块, CANopen 螺钉端子排卡槽A/卡槽B: 数字和输入I/O扩展模块卡槽A/卡槽B: 继电器输出扩展模块卡槽A: 通讯模块, Ethernet IP/Modbus TCP/MD-Link通讯模块, BACnet MS/TP通讯模块, 以太网Powerlink补充信息安装类型壁挂式安装最大瞬变电流453 A 在 60 s (重载)470 A 在 60 s (标准负载)电网相数 3 相离散量输出数量0输出型式继电器输出 R1A, R1B, R1C 250 V AC 3000 mA继电器输出 R1A, R1B, R1C 30 V 直流 3000 mA继电器输出 R2A, R2C 250 V AC 5000 mA继电器输出 R2A, R2C 30 V 直流 5000 mA继电器输出 R3A, R3C 250 V AC 5000 mA继电器输出 R3A, R3C 30 V 直流 5000 mA输出电压<= 电源电压容许的临时增强电流 1.1 x In 在 60 s (标准负载)1.5 x In 在 60 s (重载)电机滑差补偿可调自动 无论负载情况不适用永磁同步电机规律可以抑制加速和减速倾斜线性可单调 从0.01...9999S物理接口以太网2线制RS485制动至停止采用直流注入保护类型热保护: 马达安全转矩关断: 马达电机断相: 马达热保护: 驱动安全转矩关断: 驱动过热: 驱动输出相线和接地之间的过流: 驱动输出电压过载: 驱动短路保护: 驱动电机断相: 驱动直流总线过压: 驱动线路电源过压: 驱动总线供电欠压: 驱动总线供电失相: 驱动超速: 驱动控制电路上制动: 驱动传输速率10, 100 Mbits4800 bps, 9600 bps, 19200 bps, 38.4 Kbps频率分辨率显示单元: 0.1 Hz模拟量输入: 0.012/50 Hz传输帧RTU电气连接控制: 可拆卸螺钉端子 0.5...1.5 mm² AWG 20...AWG 16线路侧: 螺钉终端 2 x 150 mm² 2 x 350 kcmil马达: 螺钉终端 2 x 150 mm² 2 x 350 kcmil端口类型RJ45 (在远程图形终端) 适用 Ethernet/Modbus TCPRJ45 (在远程图形终端) 适用 Modbus 串行数据格式8比特,可配置为偶数,奇数或无奇偶极化方式无阻抗交换模式半双工, 全双工, 自动协商 Ethernet/Modbus TCP地址数1…247 适用 Modbus 串行访问方法从(站) 以太网Modbus电源用于逻辑输入的外部电源: 24 V 直流 (19…30 V), <1.25 mA, 保护类型: 过载和短路保护内部电源 用于参考电位计 (1 至 10 kOhm): 10.5 V 直流 +/- 5 %, <10 mA, 保护类型: 过载和短路用于逻辑输入的内部电源和STO功能: 24 V 直流 (21…27 V), <200 mA, 保护类型: 过载和短路保本地信号指示 3 LED for 本地诊断:3 LED (双色) for 集成通讯状态:4 颗LED指示灯 (双色) for 通讯模块状态:1 个LED (红色) for 电压状态:宽度440 Mm高度1195 Mm深度380 Mm净重172 Kg模拟量输入数量3模拟量输入类型AI1, AI2, AI3 软件-可配置电压: 0...10 V 直流, 阻抗: 31.5 kOhm, 分辨率 12 bitsAI1, AI2, AI3 软件-可配置电流: 0...20 mA, 阻抗: 250 Ω, 分辨率 12 bitsAI2 电压模拟输入: - 10...10 V 直流, 阻抗: 31.5 kOhm, 分辨率 12 bits离散量输入数量8数字量输入类型DI7, DI8 可编程为脉冲输入: 0…30 kHz, 24 V 直流 (<= 30 V)输入兼容DI1...DI6: 离散量输入 1 级 PLC 符合 IEC 61131-2DI5, DI6: 离散量输入 1 级 PLC 符合 IEC 65A-68STOA, STOB: 离散量输入 1 级 PLC 符合 IEC 61131-2离散量输入逻辑正逻辑(源) (DI1...DI8), < 5 V (状态 0), > 11 V (状态 1)负逻辑 (漏) (DI1...DI8), > 16 V (状态 0), < 10 V (状态 1)模拟量输出数量2模拟量输出 型号软件-可配置电压 AQ1, AQ2: 0...10 V 直流 阻抗 470 Ω, 分辨率 10 bits软件-可配置电流 AQ1, AQ2: 0...20 mA, 分辨率 10 bits软件-可配置电流 DQ-, DQ+: 30 V 直流软件-可配置电流 DQ-, DQ+: 100 mA采样期间2 Ms +/- 0.5 ms (DI1...DI4) - 离散量输入5 Ms +/- 1 ms (DI5, DI6) - 离散量输入5 Ms +/- 0.1 ms (AI1, AI2, AI3) - 模拟量输入10 Ms +/- 1 ms (AO1) - 模拟量输出精度+/- 0.6 % AI1, AI2, AI3 用于60 °C的温度变动 模拟量输入+/- 1 % AO1, AO2 用于60 °C的温度变动 模拟量输出线性度误差AI1, AI2, AI3: 最大值 +/- 0.15 % 适用 模拟量输入AO1, AO2: +/- 0.2 % 适用 模拟量输出继电器输出数量3继电器输出类型可配置的继电器逻辑 R1: 故障继电器 NO/NC 电气寿命 100000 次可配置的继电器逻辑 R2: 序列继电器 NO 电气寿命 100000 次可配置的继电器逻辑 R3: 序列继电器 NO 电气寿命 100000 次更新时间继电器输出 (R1, R2, R3): 5 ms (+/- 0.5 ms)最小开关电流 [Imin]继电器输出 R1, R2, R3: 5 mA 在…上 24 V 直流最大开关电流继电器输出 R1, R2, R3 在…上 阻性(负载) 量, cos phi = 1: 3 A 在…上 250 V AC继电器输出 R1, R2, R3 在…上 阻性(负载) 量, cos phi = 1: 3 A 在…上 30 V 直流继电器输出 R1, R2, R3 在…上 感性负载 量, cos phi = 0.4 L/R = 7 ms: 2 A 在…上 250 V AC继电器输出 R1, R2, R3 在…上 感性负载 量, cos phi = 0.4 L/R = 7 ms: 2 A 在…上 30 V 直流隔离电源与控制端子之间Maximum output frequency500 KHz最大输入电流397.0 A离散和制造流程建筑-HVAC 离心式压缩机食品和饮料加工 其他应用设备开采矿产和金属 风机开采矿产和金属 泵石油和天然气 风机水和废水 其他应用设备建筑-HVAC 螺杆式压缩机食品和饮料加工 泵食品和饮料加工 风机食品和饮料加工 自动化石油和天然气 电潜泵(ESP)石油和天然气 水喷射泵石油和天然气 高效能燃油泵石油和天然气 提炼用压缩器水和废水 离心泵水和废水 容积泵水和废水 电潜泵(ESP)水和废水 螺杆泵水和废水 螺杆压缩机水和废水 螺杆式压缩机水和废水 离心式压缩机水和废水 风机水和废水 输送机水和废水 混合器功率范围110…220 KW 在…上 380…440 V 3 相110…220 KW 在…上 480…500 V 3 相每套数量1箱体安装方式壁挂式安装环境绝缘电阻> 1 MOhm 接地 1 分钟 500 V 直流噪音等级66 DB 符合 86/188/EEC功耗W强制通风: 5030 W自然通风: 451 W 在…上 380 V,开关频率 2.5 kHz冷却空气容量860 M3/H操作位置垂直方向 +/- 10°Maximum THDI<48 % 全负荷 符合 IEC 61000-3-12电磁兼容性静电放电抗干扰 级别 3 符合 IEC 61000-4-2射频电磁场辐射抗扰度试验 级别 3 符合 IEC 61000-4-3抗快速瞬变 级别 4 符合 IEC 61000-4-41.2/50和8/20 µs复合波(测试) 级别 3 符合 IEC 61000-4-5抗射频场引起的传导波动 级别 3 符合 IEC 61000-4-6污染等级 2 符合 IEC 61800-5-1抗振动波峰至波峰 1.5 mm (f= 2…13 Hz) 符合 IEC 60068-2-61 gn (f= 13…200 Hz) 符合 IEC 60068-2-6抗冲击15 gn 适用 11 ms 符合 IEC 60068-2-27相对湿度5…95 % 无凝结 符合 IEC 60068-2-3环境温度-10…40 °C (无降容)40…60 °C (有)贮存环境温度-25…70 °C工作海拔<= 1000 m 无降容1000...3000 m 电流降额 1%/100m产品认证TÜV[RETURN]CSA[RETURN]UL标识CE符合标准UL 508CIEC 61800-3IEC 61800-3 environment 1 category C2EN/IEC 61800-3 环境 2 级别 C3IEC 61800-5-1IEC 61000-3-12IEC 60721-3IEC 61508IEC 13849-1过电压类别III调节回路可调的PID调节器噪音级别73 DB污染等级2包装单位Unit Type of Package 1PCENumber of Units in Package 11Package 1 Height68.0 CmPackage 1 Width60.0 CmPackage 1 Length140.0 CmPackage 1 Weight180.0 Kg可持续性REACh法规REACh 声明欧盟ROHS指令主动合规性(超出欧盟 RoHS 法定范围的产品)无汞是中国 ROHS 管理办法中国 ROHS 声明WEEE该产品必须经特定废物回收处理后弃置于欧盟市场,绝不可丢弃于垃圾桶中。
ATV630模拟调试指导书
QCS-Helpdesk
2016年1月22日
目录
一、实验目的 ........................ 错误!未定义书签。
二、实验设备 ........................ 错误!未定义书签。
三、实验步骤 ........................ 错误!未定义书签。
1.接线概述 (6)
2.上电完成如下实验 (7)
(1)预设速度实验 (7)
(2)加减速实验 (9)
(3)速度切换实验 (10)
(4)PI调节实验 (11)
(5)Modbus通讯实验 (13)
一、实验目的
1、掌握ATV630变频器预设速度的功能
2、掌握ATV630变频器加减速的功能
3、掌握ATV630变频器速度给定切换的功能
4、掌握ATV630变频器PI调节的功能
5、掌握ATV630变频器与PLC通讯应用的功能
二、实验设备
变频器ATV630U07M3一台、小电机一台、电位计R分别接到VIA、10V,COM,DI1,DI2到DI6端子为逻辑输入端子,R2,R3灯接在变频器的R2,R3上。
AO1电流表接AQ1和COM 上。
三、实验步骤
1.控制端子布局及功能介绍
ATV630控制端子的布局图如下:
ATV630控制端子的功能表如下:
ATV630的接线图:
2.实验操作
(1)预设速度实验
1.能够正转,并有七级速度:10Hz,15HZ,20Hz,25Hz,30Hz,35HZ,40HZ。
端子采用
DI3,DI5,DI6三个端子;
2. 加减速斜坡时间分别10S,10S;
实验解答:在完整设置菜单中找到通用功能,按OK键进去找到预设速度,再按OK键进去,2预设速度设为DI3,4预设速度设为DI5,8预设速度设为DI6。
预设速度2设为
10HZ,预设速度3设为15HZ,预设速度4设为20HZ,预设速度5设为25HZ,预设速度6设为30HZ,预设速度7设为35HZ,预设速度8设为40HZ。
找到5完整设置按OK键进去,找到通用功能,按OK键进去找到斜坡,把加速时间,减速时间分别改为10S。
(2)加减速实验
1.用端子DI1为正转功能;
2.用端子DI5,做加速功能;端子DI6做减速功能;
3.当断电时,有存储原给定值;
实验解答:找到5完整设置菜单,进去找到命令和参考值,按OK键进去找到频率切换分配菜单改为参考频率通道2,给定频率2配置改为通过DI的参考频率,找到通用功能进去找到加减速菜单,把加速分配改为DI5,把减速分配改为DI6,给定频率存储改为保存至EEPROM。
(3)速度切换实验
1.单向正转运行;
2.本地用变频器的面板调速,远方用电位计R调速
实验解答:找到5完整设置菜单,找到命令和参考值,按OK键进去,把参考频率1配置设为AI1,控制模式改为隔离通道,频率切换分配改为DI5,给定频率2分配改为安装流量。
(4)PI调节实验
为压力反馈;采用内部PID给定
实验解答:找到控制器菜单,按OK键进去把控制类型改为压力,ID反馈分配改为AI1,AI1类型为电压,AI1最小值0V,AI1最大值10V,PID反馈最小值改为1000,PID反馈最大值改为10000,PID反馈由AI1值进行调节,按给定菜单,内部PID参考值改为是,PID 最小过程1000,PID最大过程9000,内部PID参考值2500
(5)ATV630与PLC走Modbus通讯实验
1,变频器的命令和给定值都由PLC控制。
实验解答:在5完整设置中找到命令和参考值,把给定频率1配置改为,控制模式改为IO 配置,命令通道1改为Modbus。
找到6通信菜单,进入通信参数,按OK键Modbus现场总线菜单,把Modbus地址改为1,变频器波特率改为9600,变频器格式改为8-E-1。