调压井施工方案
- 格式:doc
- 大小:513.50 KB
- 文档页数:17
东方市污水处理厂污水深海排放工程调压井施工方案编制:审核:批准:广州打捞局东方市污水处理厂污水深海排放工程经理部2019年04月目录一、概述 (3)1.1 编制依据 (3)1.2 编制原则 (3)1.3 主要引用规范和标准 (4)1.4 工程概况 (4)1.4.1 工程位置 (4)1.4.2地质 (5)二、施工组织 (6)2.1 项目组织机构 (6)2.2 调压井施工主要人员 (6)2.3 调压井土方开挖施工主要设备 (7)三、工艺流程 (7)3.1 施工工艺流程 (7)四、调压井土方开挖设计 (8)4.1 断面设计 (8)4.2 平面设计 (9)五、施工准备及测量放样 (9)5.1 准备 (9)5.2 测量仪器配置 (9)5.3测量质量控制 (10)六、钢板桩施工 (10)6.1 概述 (10)6.2 钢板桩进场 (10)6.3 钢板桩插打 (11)七、调压井土方开挖施工 (11)7.1土方开挖概述及施工部署 (11)7.2 土方开挖 (12)7.3 钢板桩拔除 (13)八、调压井施工 (13)8.1、钢筋工程 (13)8.2、模板工程 (14)九、环保保护控制措施 (16)9.1 现场施工环境保护 (16)十、安全管理措施 (16)10.1建立安全保证体系 (16)10.2制定安全管理计划即规章制度 (16)10.3安全技术交底 (17)10.4安全制度落实 (17)10.5防火安全措施 (17)10.6施工现场强制性安全要求 (17)10.7 现场施工应急预案 (18)一、概述1.1 编制依据✧东方市污水处理厂污水深海排放工程招标文件;✧东方市污水处理厂污水深海排放工程施工设计图纸;✧施工合同文件;✧现场调查所得资料;✧我单位施工队伍、技术装备能力及以往同类工程的施工实践经验。
✧国家、海南省、东方市现行有关法规、标准、技术规范、劳材机定额,以及环境保护、水土保持方面的政策和法规。
✧广州打捞局按GB/T 19001-2000、GB/T24001-2004和GB/T28001-2001标准建立的质量、环境、职业健康安全“三标一体化”管理体系✧《给水排水管道工程施工及验收规范》✧《工业金属管道工程施工及验收规范》✧《混凝土结构工程施工质量验收规范》✧其他相关的规范、标准。
调压井施工方案本标段引水工程特殊建筑物为调压井,调压井中心桩号:引 0+6313.081,为阻抗式,高约 41m,圆形结构,开挖内径为 9.6m,挂网喷射砼厚度为 15 cm,钢筋衬砌厚度 65cm,成形建筑物内径为8.0m,调压井下端为阻抗式孔口段,与主洞相通,孔口段高度约7.475m,成形内径约 1.4m,开挖内径为 2.6m,其结构为双层钢筋砼结构衬砌。
第一节调压井施工总体布置一、施工注意事项:1.根据项目部的布署,确保调压井上的施工机械设备、施工用电、施工用水系统畅通;2.在各调压井施工中,确保便道畅通;3.作好施工安全防护措施,制定出各队安全规章制度;4.调压井周围按规范要求布设好洞内测量控制网,施工队切实作好桩体保护。
二、调压井施工方案:调压井采取通过其附近的GBS 点直接施测建立座标控制网,精确测量调压井中心桩号,并在调压井工作面附近 50m 内建立平面控制座标网,测量精度不得低于四等水平;首先对调压井进行覆盖土层开挖,然后采取浅孔爆破技术,进行明石开挖;在调压井井身段开挖中,采取导井开挖,实行光面爆破技术,利用钢架结构配合卷扬机进行垂直出渣,弃渣运输采用自卸汽车直接运至弃渣场;开挖过程中,按设计进行强支护;砼衬砌采取自制滑模自下而上进行整体衬砌施工。
三、调压井施工流程:调压井中心桩号测量调压井附近建立平面座标控制网覆盖土层开挖明石开挖导井开挖调压井扩挖喷锚支护砼衬砌第二节调压井测量一、测量投入仪器:调压井座标控制测量采用日本托普康公司生产的( GTS-311) 2〃级电子全站仪进行施测,水准测量采用上海生产的 C32Ⅱ型自动安平水准仪进行施测。
二、测量方法及步骤:1.测量准备工作①进行调压井测量工作前,首先进行调压井附近的GBS 导线点( AS12、AS13、AS14、AS15)校核。
②根据 GBS 导线点采取交会测量方法直接进行调压井中心座标控制测量,中心控制桩不得低于五等控制网水平。
调压井施工方案1. 引言调压井是在油气田中用于控制井口瞬时流量和压力的设备,它通过调节排放管道的流速来达到平稳排放油气的目的。
本文将介绍调压井的施工方案,包括前期准备、施工步骤、关键工艺及质量控制等内容。
2. 前期准备2.1 设计方案确认在施工调压井之前,需先由专业工程师编制设计方案。
设计方案应包括调压井的位置选择、尺寸确定、材料选用等内容,并需要审批通过后才能进行施工。
2.2 材料准备调压井施工所需要的主要材料有:调压器、排水管线、阀门、密封材料等。
在施工前,需要提前准备足够的材料,并做好验收工作,确保满足施工的需要。
2.3 人员组织根据施工方案的复杂程度和施工周期的预估,合理组织施工人员,确保项目按时按质完成。
人员组织应包括施工队伍、监理人员和安全人员等。
2.4 安全措施施工过程中,需要严格遵守安全操作规程,做好文明施工。
同时,设置临时防护设施和警示标志,确保工作场所安全。
3. 施工步骤3.1 确定施工位置根据设计方案,确定调压井的布置位置。
通常情况下,调压井应设置在油气开采井距离,尽量靠近主井的距离和流量。
3.2 埋设排水管线根据设计方案,开挖井口并埋设排水管线。
排水管线应与调压井和主井进行连接,以便实现流量调节。
3.3 安装调压器在井口位置上安装调压器,并与排水管线连接。
调压器的安装过程中,需要严格按照设计方案要求进行,确保安装质量。
3.4 连接阀门调压井与主井之间需要安装阀门,以便实施流量的调节和控制。
在安装阀门时,需注意密封性的要求,确保阀门操作正常。
3.5 测试与调试完成调压井的安装后,需要进行测试和调试。
测试时,需逐一检查排水管线、调压器和阀门的运行情况,确保其正常工作。
4. 关键工艺4.1 排水管线的设计排水管线的设计是保证调压井正常运行的关键工艺。
在设计过程中,需考虑满足排放需求的流速、防腐要求以及运行的安全稳定性等因素。
4.2 调压器的选型调压井的调压器需要通过流量控制来调节井口压力的变化。
调压井施工方案本标段引水工程特殊建筑物为调压井,调压井中心桩号:引0+6313.081,为阻抗式,高约41m,圆形结构,开挖内径为9.6m,挂网喷射砼厚度为15 cm,钢筋衬砌厚度65cm,成形建筑物内径为8.0m,调压井下端为阻抗式孔口段,与主洞相通,孔口段高度约7.475m,成形内径约1.4m,开挖内径为2.6m,其结构为双层钢筋砼结构衬砌。
第一节调压井施工总体布置一、施工注意事项:1.根据项目部的布署,确保调压井上的施工机械设备、施工用电、施工用水系统畅通;2.在各调压井施工中,确保便道畅通;3.作好施工安全防护措施,制定出各队安全规章制度;4.调压井周围按规范要求布设好洞内测量控制网,施工队切实作好桩体保护。
二、调压井施工方案:调压井采取通过其附近的GBS点直接施测建立座标控制网,精确测量调压井中心桩号,并在调压井工作面附近50m内建立平面控制座标网,测量精度不得低于四等水平;首先对调压井进行覆盖土层开挖,然后采取浅孔爆破技术,进行明石开挖;在调压井井身段开挖中,采取导井开挖,实行光面爆破技术,利用钢架结构配合卷扬机进行垂直出渣,弃渣运输采用自卸汽车直接运至弃渣场;开挖过程中,按设计进行强支护;砼衬砌采取自制滑模自下而上进行整体衬砌施工。
三、调压井施工流程:调压井中心桩号测量调压井附近建立平面座标控制网覆盖土层开挖明石开挖导井开挖调压井扩挖喷锚支护砼衬砌第二节调压井测量一、测量投入仪器:调压井座标控制测量采用日本托普康公司生产的(GTS-311)2〃级电子全站仪进行施测,水准测量采用上海生产的C32Ⅱ型自动安平水准仪进行施测。
二、测量方法及步骤:1.测量准备工作① 进行调压井测量工作前,首先进行调压井附近的GBS 导线点(AS12、AS13、AS14、AS15)校核。
② 根据GBS 导线点采取交会测量方法直接进行调压井中心座标控制测量,中心控制桩不得低于五等控制网水平。
③ 在调压井附近50m 范围内,根据GBS 导线点建立调压井中心桩号测量控制网,以便施工过程控制测量。
调压井施工方案在油气井开发中,调压井是一种重要的技术手段,用于调节井口流压,控制井筒压力。
调压井施工是一个复杂的过程,需要精确的计划和操作。
下面将介绍一套完整的调压井施工方案。
1. 工程准备阶段在施工之前,需要进行充分的准备工作。
首先,要进行详细的施工方案设计,包括井口流压的目标值、调压井的位置以及调压井装备的选型,需充分考虑井下环境条件等因素。
同时需要准备好必要的材料和设备,保证施工的顺利进行。
2. 井口压力测定在调压井施工过程中,井口压力的准确测定是至关重要的。
使用适当的压力传感器,在施工现场进行实时监测,并根据监测数据进行调整。
在确定井口压力的基础上,选择合适的调压井工具和装备。
3. 调压井工具选择根据井口压力的实时监测数据,选择合适的调压井工具。
一般常用的调压井工具包括调压阀、调压管道等。
需根据具体情况选择合适的工具,并确保其性能和可靠性。
4. 调压井施工操作根据施工方案设计,采取相应的操作步骤进行调压井施工。
首先将调压井工具下入井下,并进行固定。
然后根据实时监测数据进行调节,最终达到设定的井口流压目标值。
5. 施工验收和监测调压井施工完成后,需要进行验收和监测。
通过再次测定井口压力,并观察井下情况,验证调压井的效果。
同时需要建立完善的监测系统,定期检查井口压力,确保井筒压力的控制。
结语调压井施工是油气井开发中不可或缺的环节,合理的施工方案和认真的操作可以有效控制井筒压力,保证井口安全稳定生产。
本文介绍了一套完整的调压井施工方案,希望能为相关工作提供一些参考和帮助。
一、工程概况调压井工程是输油气管道系统的重要组成部分,其主要作用是调节管道内流体压力,保证管道安全稳定运行。
本工程调压井位于XX市XX区,设计压力为XXMPa,设计容积为XX立方米。
调压井由井筒、调压罐、进出口管道、控制系统等组成。
为确保施工质量和工程安全,特制定本专项施工方案。
二、施工准备1. 技术准备(1)组织施工人员学习调压井施工技术规范和操作规程。
(2)对施工人员进行专项技术培训,确保其掌握施工技能和安全知识。
(3)编制详细的施工方案,明确施工工艺、质量控制点和安全措施。
2. 材料准备(1)调压罐、井筒、进出口管道等设备材料应符合设计要求,并经过严格检验。
(2)焊接材料、防腐材料、密封材料等辅助材料应符合国家相关标准。
3. 施工机具准备(1)挖掘机、吊车、钻机、焊接设备等施工机具应满足施工需求,并经过定期检查和维护。
(2)配备必要的安全防护用品,如安全帽、安全带、防护眼镜等。
三、施工工艺1. 井筒施工(1)根据设计图纸,进行井筒定位和放线。
(2)采用挖掘机进行土方开挖,确保井筒尺寸符合设计要求。
(3)井筒开挖完成后,进行井筒支护和防渗处理。
2. 调压罐安装(1)根据设计要求,对调压罐进行吊装和就位。
(2)连接调压罐进出口管道,确保连接牢固。
(3)进行调压罐的内部清洗和防腐处理。
3. 进出口管道施工(1)根据设计要求,对进出口管道进行铺设和焊接。
(2)确保管道连接严密,无泄漏。
(3)对管道进行试压和吹扫,检验管道的密封性能。
4. 控制系统安装(1)根据设计要求,安装调压井控制系统。
(2)对控制系统进行调试,确保其功能正常。
四、质量控制1. 材料质量控制(1)严格审查材料质量证明文件,确保材料符合设计要求。
(2)对进场材料进行抽样检验,不合格材料不得使用。
2. 施工过程质量控制(1)严格执行施工工艺,确保施工质量。
(2)对关键工序进行监控,确保质量符合要求。
3. 工程验收(1)按照设计要求和施工规范进行工程验收。
调压井施工补充方案在考虑工期和降低成本的两方面因素后,我单位提交如下两种施工方案,在进场后将根据现场实际情况和保证我单位所承诺的工期和质量的前提下做出最佳选择。
调压井的开挖施工补充方案1调压井开挖及支护先开挖一个1.5米直径的小导洞,开挖由上至下,采用人工装碴卷扬机提升出碴斗,碴在被提升至井外后,通过上方管架和滑轮输送到弃碴车进行弃碴。
每次开挖深度为1米。
在小导洞施工过程中,我们将在井口处采取安全防护,以保证施工过程中的安全。
在小导洞施工中要进行严格的测量工作,以保证开挖的质量和开挖的进度,在开挖至小导洞的洞底距隧洞洞顶3至4米处,要根据围岩的性质采取与隧洞贯通的爆破方法。
在小导洞与隧洞贯通后,进行调压井的二次扩挖,为了保证调压井的开挖质量,二次扩挖采用预裂爆破,预留出1米的距离,进行第三次光面爆破,在第二次扩挖的施工中,炮孔的间距要控制在0.7米以内,以防止大块石头在滑向井底时,卡到井中间,对施工产生不利的影响。
在施工的过程中,施工人员严格遵守安全规定,严禁违规操作。
二次扩挖的出碴通过井底支洞进行出碴,开挖面残留的石碴采用人工扒碴至井底。
在二次扩挖之后,进行第三次光面爆破,调压井开挖成形。
在开挖8~10米后,要进行调压井井口的锁口处理,主要内容为:在调压井周围1米的范围内打直径25mm的锚杆,利用这些锚杆做调压井的周边防护,以保证调压井下面的施工安全。
井口处的锁口处理要与井口周边的锚杆相连,并且在井口周边做好防水台,防止雨水冲进井里,然后根据围岩情况向监理和业主申报锁口的范围和方案,在监理和业主审批后再进行锁口处理,在上述安全措施完成后再进行下面的开挖。
在开挖过程中,根据围岩情况采取相应的支护措施.具体支护方法如下:在围岩风化严重和地下水丰富处,采用锚杆挂网喷护,在围岩较破碎处采取锚杆喷护。
在围岩较软,有地下水渗出,采用喷护封闭。
开挖过程中在井壁上设置爬梯和在井的上方设吊篮,施工人员通过爬梯下井,设备和工具用吊篮放下。
毛家河水电站调压井方案一、项目背景最近一直在思考这个毛家河水电站调压井方案,毕竟这可是个大工程,涉及到的因素非常多。
想到这里,我不由得回想起过去那些年参与过的项目,每一个都是那么独特,而又充满挑战。
二、项目目标1.确保电站运行安全稳定。
2.提高电站发电效率。
3.优化电站布局,降低工程成本。
4.符合国家环保政策,减少对生态环境的影响。
三、方案构思1.调压井选址选址是个头疼的问题,要考虑到地质条件、交通便利性、施工难度等多方面因素。
经过一番研究,我认为将调压井设置在电站下游约500米处较为合适,这里地质条件稳定,施工难度适中。
2.调压井结构设计调压井的结构设计至关重要,直接关系到电站的运行效率和安全性。
我决定采用圆形调压井,直径为20米,深度为50米。
井壁采用高强度混凝土,内部设置多级调压室,以满足不同工况的需求。
3.调压井设备配置(1)水位监测仪:实时监测调压井内水位变化,确保运行安全。
(2)压力传感器:实时监测调压井内压力变化,为电站运行提供数据支持。
(3)溢流阀:当调压井内水位超过设定值时,自动开启溢流阀,排放多余水量。
(4)排水泵:用于排放调压井内多余水量,保持水位稳定。
4.施工方案(1)施工前期准备:对选址地进行地质勘探,了解地质条件,为施工提供依据。
(2)基础施工:采用明挖法施工,挖出圆形基础,并进行加固处理。
(3)井壁施工:采用滑模施工技术,确保井壁施工质量。
(4)内部设备安装:在井壁施工完成后,进行内部设备安装,包括水位监测仪、压力传感器、溢流阀等。
(5)调试运行:设备安装完成后,进行调试运行,确保电站运行安全稳定。
四、项目预算1.工程费用:包括施工、设备购置、安装等费用,预计总投资约为5000万元。
2.环保费用:包括环保设施购置、运行维护等费用,预计总投资约为1000万元。
3.其他费用:包括项目管理、人员培训等费用,预计总投资约为500万元。
五、项目实施1.成立项目组,明确各部门职责。
施工组织设计水电站管道及调压井工程施工组织设计承包人:(全称及盖章)施工队长:(签名)日期:年月日目录一、工程概况二、施工平面总布置三、施工进度计划四、主要工程施工方案五、施工组织机构与管理六、施工人员、机械及材料计划七、质量保证措施八、安全生产保证体系及措施九、文明施工与环境保护措施省市仙女湖水电站压力管道以及调压井土建工程一、工程概况XXXXX水电站位于省市东南部新唐乡横栏村境马尾沟河段,为马尾沟流域梯级开发的第一个梯级。
电站由混凝土挡水闸坝、右岸发电引水系统、岸边式地面厂房等建筑物组成。
挡水建筑物正常蓄水未为971.0 m ,总库容为8.06 m3,电站装机容量10MW。
混凝土闸坝顶高程972.5,建筑面积高程950.5 m ,最大坝高22 m;泄洪闸3孔,堰顶溢流泄洪,堰顶高程962.0 m,采用底流式消能。
发电引水系统布置在右案,引水线路全长约为3100 m,设置有调压井,引水隧洞开挖洞径为3.0 m,井后压力管道采用部分明敷和部分埋管结合形式,钢管主管径1.6 m,支管径0.8 m。
电站厂房位于下游右岸开阔地带,距坝址约3.5 km。
厂房由机组段、安装场、副厂房和尾水平台组成,主厂房长52.9 m,宽13.6 m,机组安装高程743.51 m。
升压站布置于厂房后侧台地上。
1.主要建设容本合同工程建设围为仙女湖水电站压力管道及调压井(不包括调压井开挖)土建工程。
2.工程施工条件(1)水文气象与工程地质马尾沟流域属亚热带湿润性季风气候区,东无严寒、夏无酷暑、雾多湿重,雨量丰沛,植被良好。
流域暴雨最早出现在4月,大多于10月结束,6-9月为暴雨集中的时期。
流域发生的暴雨多属涡切变型暴雨。
洪水由暴雨形成,洪水发生的时间与暴雨一致,4-10月为汛期,大洪水多发生在6-9月,其中7月份居多。
马尾沟流域属山溪性河流,山高坡陡,谷深河窄,洪水具有暴涨暴落、峰高量小等山溪性河流特点。
马尾沟流域与清江流域同属温带季风气候区,年平均气温15℃-17℃,7、8月份气温最高,一般为27℃-30℃,12、1月份气温最低,一般为2℃-8℃,极端最高气温44.9℃,(1953年8月19日),极端最低气温-12℃,(长阳1977年1月31日)。
干溪坡水电站调压井混凝土的施工方案干溪坡水电站调压井是水电站发电过程中的重要设施之一,主要用于调节和稳定发电机组出力及负荷调整。
调压井一般由混凝土构造而成,为了确保其施工质量和工程稳定,需要制定详细的施工方案。
一、施工前准备1. 混凝土原材料准备:确定混凝土配合比,按照要求购买水泥、砂子、石子等原材料,并对原材料进行检验合格后方可使用。
2. 施工设备准备:准备混凝土搅拌机、搅拌车、泵车和运输车辆等施工设备,并对设备进行检查和维护,以确保施工过程的顺利进行。
3. 环境准备:清理施工场地,使其平整、干燥,确保混凝土施工时的工作环境安全和舒适。
二、施工方法1. 模板安装:根据调压井的设计图纸,按照尺寸要求搭建模板,确保模板的稳固和成型质量。
2. 混凝土搅拌:按照设计要求,将水泥、砂子和石子按一定比例放入混凝土搅拌机中进行搅拌,直至获得均匀的混凝土糊状物。
3. 混凝土浇筑:将搅拌好的混凝土用泵车从搅拌机装载,经过输送管道输送到调压井内部,从井口倒入模板中,同时使用振动棒振实混凝土,确保混凝土的密实性和均匀性。
4. 模板拆除:混凝土浇筑完成后,等待混凝土达到一定强度后,拆除模板,并及时修补拆除模板留下的洞口。
5. 养护:混凝土浇筑完成后,要进行养护工作,保持混凝土的湿润和稳定温度,通常采用水洒、覆盖湿布等方式进行养护,并按照混凝土设计强度要求进行养护时间。
6. 防渗处理:为了防止地下水入侵,应对混凝土调压井进行防水处理。
可以在混凝土表面涂刷防水材料,或者使用防水胶布进行包裹,确保调压井的密封性。
三、施工安全注意事项1. 施工人员应进行相应的安全培训,并严格遵守施工现场的各项安全规定。
2. 使用施工设备时,应检查设备的安全性能,确保设备操作的安全可靠。
3. 在混凝土浇筑过程中,要严格按照操作规程进行,避免操作错误导致事故发生。
4. 施工现场应设置警示标识和安全警示牌,提醒人员注意施工安全。
5. 施工现场应保持整洁,禁止乱堆乱放杂物,以免对施工安全造成影响。
调压井施工方案1. 引言调压井(也被称为压力调节井)是一种用于调节管道系统中流体压力的设备。
调压井的主要作用是维持管道系统中的压力在一定范围内,保证系统的正常运行。
本文将详细介绍调压井施工方案。
2. 施工前准备在进行调压井施工前,需要进行以下准备工作:2.1 工程设计根据实际需求和管道系统的特点,进行调压井工程的设计。
设计应包括调压井的类型、规格、材质以及位置等。
2.2 材料准备根据设计要求,准备调压井施工所需的材料,包括钢材、阀门、接头等。
组织施工人员,确保具备相关的施工经验和技能。
2.4 设备准备准备所需的施工设备和工具,包括挖掘机、焊接设备、测量仪器等。
3. 施工步骤调压井施工通常包括以下步骤:3.1 地面准备工作首先要选择适合的建井地点,并进行必要的土地平整工作。
清理井口周围的杂物和障碍物,确保施工区域的安全。
3.2 井身挖掘使用挖掘机等设备进行井身挖掘。
根据设计要求,挖掘井身到达设计深度,并确保井身的垂直度和规格要求。
井身挖掘完成后,需要进行井身加固工作。
根据设计要求,在井身内部设置适当的加固结构,以增加井身的稳定性和承载能力。
3.4 安装调压设备将调压设备(如调压阀)安装到井身内部。
在安装过程中需要注意设备的位置以及与井身之间的连接方式。
3.5 管道连接将调压设备与管道系统进行连接。
确保连接的牢固和密封,以防止压力损失和泄漏。
3.6 试压和调试施工完成后,进行试压和调试工作。
通过加压测试,确保调压设备的正常运行和管道系统的稳定性。
4. 施工注意事项在调压井施工过程中,需要注意以下事项:•施工现场要保持整洁,杂物和障碍物要及时清理。
•工程施工人员要穿戴好个人防护装备,确保施工安全。
•施工过程中需要进行必要的测量和监控,确保施工的准确性和质量。
•施工完成后应对施工现场进行清理,恢复原貌,并进行必要的记录和检查。
5. 施工验收在完成调压井施工后,需要进行验收工作。
验证调压设备的性能和管道系统的稳定性,确保施工符合设计要求和相关标准。
CB1施工技术方案申报表(江南春厂【2014】技案 001 号)合同名称:武义县石硖水库工程(发电引水隧洞及厂房土建标) 合同编号:WYSX/SG-1说明:本表一式 4 份,由承包人填写。
监理机构审签后,随同审批意见,承包人、监理机构、发包人、设代机构各 1 份。
调压井开挖专项施工方案1、工程概况武义石硖水库工程调压井总长为 61.34m,洞顶高程为 376.1m,底高程为 314.76m,分上室、下室两段,上室段开挖洞径为 4.8m,衬砌后洞径为:4m;下室段开挖洞径为 2.8m,衬后洞径为 2m。
2、施工方案2.1 土石方开挖调压井顶部覆盖层土方由一台日立 200 挖机和由上而下逐层剥离,用柳工 ZL50E 铲车运至弃碴场。
调压井洞身长度为 60m,洞身较长,且洞径较大,无论从施工难度还是安全隐患方面施工人员都将面临严峻的考验,在经过仔细斟酌,我部计划洞身段采用自上而下的开挖方式,考虑到爆破石渣都需卷扬机竖直运送出井口,若渣量太大,一增加运输成本,二是在石渣长时间反复搬运中增加安全风险,故决定先开挖一个 1.5*1.5 圆形导洞,待导洞贯通后,在自上而下扩挖至设计断面。
2.2 导洞开挖:① 竖井井身开挖前在井口设置龙门架 3T 的小型电动葫芦作为提升设备,采用钢板及型钢自制容量小于 1m3的装碴筒装碴。
②主要采用人工开挖、石方根据岩层情况可以采用人工风镐凿挖的采用风镐凿挖,如遇硬岩采用爆破(光面或松动爆破)开挖,循环进尺 2m,每天不少于 1 个循环。
③爆破石方采用龙门架电动葫芦配装碴筒将石渣吊运至井口,手推车推至指定的堆碴点进行堆放。
④潜水泵或抽水机、排水管配合机械式排水;施工时在开挖面挖集水坑, 用潜水泵把水抽至井口顺水沟排出洞外。
⑤当竖井开挖大于 15m 时若井内有人,压风机不允许停,由风枪软风管向井内供风。
⑥导洞井口成型后,洞壁周衬砌砼加以孔口支护,确保洞口稳定。
随竖井开挖观察周边围岩状况,随时分析岩层的稳定性,保证施工安全。
调压井施工方案本标段引水工程特殊建筑物为调压井,调压井中心桩号:引0+6313.081,为阻抗式,高约41m,圆形结构,开挖内径为9.6m,挂网喷射砼厚度为15 cm,钢筋衬砌厚度65cm,成形建筑物内径为8.0m,调压井下端为阻抗式孔口段,与主洞相通,孔口段高度约7.475m,成形内径约1.4m,开挖内径为2.6m,其结构为双层钢筋砼结构衬砌。
第一节调压井施工总体布置一、施工注意事项:1.根据项目部的布署,确保调压井上的施工机械设备、施工用电、施工用水系统畅通;2.在各调压井施工中,确保便道畅通;3.作好施工安全防护措施,制定出各队安全规章制度;4.调压井周围按规范要求布设好洞内测量控制网,施工队切实作好桩体保护。
二、调压井施工方案:调压井采取通过其附近的GBS点直接施测建立座标控制网,精确测量调压井中心桩号,并在调压井工作面附近50m内建立平面控制座标网,测量精度不得低于四等水平;首先对调压井进行覆盖土层开挖,然后采取浅孔爆破技术,进行明石开挖;在调压井井身段开挖中,采取导井开挖,实行光面爆破技术,利用钢架结构配合卷扬机进行垂直出渣,弃渣运输采用自卸汽车直接运至弃渣场;开挖过程中,按设计进行强支护;砼衬砌采取自制滑模自下而上进行整体衬砌施工。
三、调压井施工流程:调压井中心桩号测量调压井附近建立平面座标控制网覆盖土层开挖明石开挖导井开挖调压井扩挖喷锚支护砼衬砌第二节调压井测量一、测量投入仪器:调压井座标控制测量采用日本托普康公司生产的(GTS-311)2〃级电子全站仪进行施测,水准测量采用上海生产的C32Ⅱ型自动安平水准仪进行施测。
二、测量方法及步骤:1.测量准备工作①进行调压井测量工作前,首先进行调压井附近的GBS导线点(AS12、AS13、AS14、AS15)校核。
②根据GBS导线点采取交会测量方法直接进行调压井中心座标控制测量,中心控制桩不得低于五等控制网水平。
③ 在调压井附近50m 范围内,根据GBS 导线点建立调压井中心桩号测量控制网,以便施工过程控制测量。
2. 调压井井挖测量方法:①控制网建立:通过GBS 导线点在调压井开挖范围外(50m )内建立十字形座标控制网(每条线上不得少于三个点),具体详见下图。
② 覆盖土层、明石开挖施工放样:根据施工现场情况,测绘调压井覆盖土层纵横断面图,参考土方、石方明挖放坡系数,对开挖范围进行初步测量施工样。
要求在实际地形上用白灰画出开挖边线。
③ 石方井挖:第一次石方开挖时,通过测量调压井中心P 1点,按设计开挖直径在地面上画出开挖边线;在下步开挖中,由于中心点无法实测在地面上,可通过周边开挖线吊铅锤的方法进行开挖,如若为保证开挖精度,可通过辅助控制点反推临时控制点,并通过临时控制点测绘出每一进尺开挖边线。
④ 砼衬砌施工放样:衬砌砼浇筑前,必须校正模板的垂直度、中心点,调压井中心点可作成在调压井上空固定的点,每板砼浇筑前都必须复核中心点位置,如若正确无误,则采取吊铅锤的方法进行模板的核正和加固,方可浇筑砼。
第三节 调压井石方井挖一、调压井覆盖土石方明挖方式:1、Y2、Y3、Y 4表示辅助控制点,L 1、L 2表示临时施工样点。
2.图中所有点均对称分布,图中标注尺寸以m计单位;3.在进行石方进挖过程中,主要以辅助控制点、临时施工放样点作初步控制;在砼衬砌中,主要以中必控制点施工样。
土方明挖按照施工规范边坡要求进行放坡,自上而下,机械开挖;石方明挖采取预裂爆破技术,进行石方明挖边坡放坡,机械出渣,自卸汽车拉至弃渣场。
二、爆破的基本方法:针对本标段地质情况,施工中决定采取浅孔(孔径小于75mm,孔深小于5m)光面爆破工艺,合理布置炮孔,充分利用天然临空面或创造更多的临空面,形成低成本、高效益爆破。
1.炮孔布置原则布孔时,宜使炮孔与岩石层面和节理面正交,不宜穿过与地面贯穿的裂隙,以防漏气,影响爆破效果。
2.炮孔参数的确定最小抵抗线W=kW d,炮孔深度L=KLH,炮孔间距a= KaWp,炮孔排距a=kaWp;当炮孔呈梅花形布置时,b=asin600=0.87,当炮孔按方格形布置时b=a。
用药量Q=0.33KW3,W:由炮孔底至临空面的最小距离,m;d:钻孔最大直径,cm; KW:系数,一般取15—30,坚石用小值,次坚石用大值。
L:炮孔深度m;H:爆破岩石厚度,台阶高度m;KL:系数,坚石为1.0~1.15;次坚石为0.85~0.95;软石为0.7~0.9;a:炮孔间距m;Ka:系数,采用火雷管起爆为1.2~2.0,采用电雷管起爆为0.8~2.3;b:炮孔排距m;Q:炸药量kg;K单位岩石的硝铵炸药消耗量kg/m3,软石为0.26~0.28;次坚石为0.28~0.34;坚石为0.34~0.35。
本爆破炮孔直径初步定为50mm,台阶高度H设计为3m,其它爆破参数根据现场由实验确定。
3.洞室爆破的施工要点:(1)装药程序:先在药室四周装填选用的炸药,再放置猛度较高性能稳定的炸药,最后于中部放置起爆体。
起爆体重20~25kg,内装有敏感性高、传爆速度快的烈性起爆炸药,其中安放几个电雷管或传爆索。
起爆药量通常为总装药量的1%~2%。
(2)堵塞:先用木板封闭药室,再用粘壤土填塞1~2m,最后用石碴料堵塞。
总的堵塞长度不应小于最小抵抗线长度的1.2~1.5倍。
(3)起爆系统:为保证安全准爆,起爆网路宜用复式并串联。
即药室内雷管间用并联,药室间用串联,同样并串联网路两套,最终并联在同一条主线上。
(4)为改善爆破效果,施工中特采用如下方法:图3.6.1-1 预裂爆破装药示意图① 合理利用或创造人工自由面:在光爆中,充分发挥掏槽孔或空孔的作用增加爆破作业面的临空面,有利于降低爆破的单位耗药量;② 采用毫秒微差挤压爆破:在光爆中,毫秒微差挤压爆破是利用孔间微差迟发不断创造临空面,使岩石内的应力波与先期产生的残留在岩体内的应力相迭加,从而提高爆破的能量利用率。
③ 分段装药:为防止爆破爆能集中,爆后块度不匀,因此施工中准备采取竹节炮,以改善沿孔长方向的爆能均匀分布,且增强爆压作用时间。
装药结构:采用导爆索和竹片捆扎药卷间隔装药结构,孔底1m 用加强装药,装药量为750g ,上部1.5m 为减弱装药用200g ,孔口堵塞长度1.5m 。
装药结构见下图图二 装药结构图三、调压井石方井挖 考虑到调压井井挖方量大、出渣困难等特点,施工中准备采取一次导井开挖,二次扩井开挖,利用导井通过4#支洞出渣,为确保严格控制井挖超欠挖,施工中准备采取定向抛掷光面爆破技术,具体施工示意图详见下图:1、导井开挖方式:导井开挖尺寸以3.0m 直径进行光面爆破,通过卷机提升出渣,采取自卸汽车直接拉弃至弃渣场。
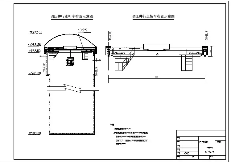
钻爆设计图如下:图三 调压井施工示意图调压井开挖施工图吊篮卷扬机YYYYYY Y YYY二次扩井施工导井图四 导井爆破开挖图2、调压井扩挖方式:当导井全面贯通后,施工中采取自上而下,采取定向抛掷光面爆破技术进行石方开挖,通过调压井阻抗孔进行垂直出渣,在低压洞(4#支洞附近)中采取耙渣机进行机械装渣,自卸车运渣的方式进行开挖。
图五 调压井二次扩挖爆破图二次爆破临空面调压井二次扩挖爆破图YYYYYYY111111111111111111111222222222222222222222233333333333333333333333333444444444444444444444444444444555555555555555555555555555555556666666666666666666666666666666666667777777777777777777777777777777777777777777777777777777777777777YY YY1234567说明:1.图中标注尺寸均以米计;2.每次进尺均以1.5米左右计算;3.中心孔设为空孔,以增加爆破临空面。
导井爆破开挖图3调压井开挖必须尽可能减轻对围岩的振动,充分发挥围岩的自承能力。
钻爆作业是保证开挖断面轮廓平整准确、减少超挖、降低爆破振动、维护围岩自承能力的关键。
我项目部采用线形微震爆破新技术和光面爆破技术进行爆破作业,根据围岩情况,及时修正爆破参数,以达到最佳爆破效果,形成整齐准确的开挖断面。
线形微震爆破新技术能使炸药产生的能量尽量多的转换为破碎岩石,减少传给开挖范围以外岩石的能量。
从而使开挖范围外的岩石引起的震动和损害最小。
这样就可有效地保护围岩。
这种爆破新技术的特点是:炮孔布置除周边和掏槽孔外都是线形,炮孔布置简单,炮孔参数准确;可提高炸药爆炸能量利用率,同样情况下用炸药量少,对围岩的扰动小,最适合采用“新奥法”施工;炮孔除掏槽孔、周边孔外都是平行的,便于钻孔可提高钻孔效率,易于采用光面爆破,控制开挖轮廓;可以控制爆破块度,提高装运效率;此外,还可减轻对周围地层的震动。
⑴、爆破设计原则炮孔布置要便于机械钻孔;尽量提高炸药能量利用率,以减少炸药用量;减少对围岩的破坏,采用光面爆破,控制好开挖轮廓;控制好起爆顺序,提高爆破效果;在保证安全前提下,尽可能提高掘进速度,缩短工期。
⑵、爆破器材选用采用塑料导爆管非电毫秒雷管起爆系统,毫秒雷管采用我公司特定的等差(50ms)毫秒雷管,引爆采用火雷管。
炸药采用2#岩石铵锑炸药和乳化炸药(有水地段使用该种炸药),选用φ22、φ32两种规格,其中φ22为周边眼使用的光爆药卷,φ32为掏槽眼及辅助炮眼使用药卷。
3、钻爆作业钻爆是保证开挖断面轮廓平整准确,减少超欠挖,降低振动、维护围岩自承能力的关键。
因此,施工时按照爆破设计进行钻眼、装药、连线和引爆。
如开挖条件出现变化需要变更设计时,由主管技术人员确定,其它人员不可随意改变。
(1)测量测量是控制开挖轮廓准确度的关键。
每一循环都由测量技术人员在掌子面标出开挖轮廓和炮孔位置。
(2)钻孔钻孔用钻孔台车或气腿凿岩机施作,并按以下要求钻孔。
按照炮眼布置图正确对孔和钻进;掏槽眼比其它眼深20cm,对孔误差不大于3cm,并保持平行;掘进眼对孔误差不大于5cm;周边眼位置在设计断面轮廓线上,其环向误差不大于5cm,眼底不超出开挖面轮廓线10cm,孔深误差小于10cm;开挖面凹凸较大时,应按实际情况,调整炮眼深度,力求所有炮眼(除掏槽眼外)眼底在同一垂直面上;钻眼完毕,按炮眼布置图进行检查,有不符合要求的炮眼重钻,经检查合格后,才能装药起爆。
(3)装药装药前先用高压风将孔中岩粉吹净,并用炮棍检查孔内是否有堵塞物,装药分片分组,严格按爆破参数表及炮孔布置图规定的单孔装药量,雷管段别“对号入座”。
爆破网路连接、检查及起爆,按照爆破设计要求和《爆破安全规程》GB6722—86和《水电水利工程爆破施工技术规范》DL/T5134—2001执行。