配电系统图
- 格式:doc
- 大小:24.00 KB
- 文档页数:2
1)总配电箱系统接线图:
某总配电箱电器配置接线图(1)
DK、1DK、2DK――电源隔离开关;1KK、2KK――空气开关;RCD――漏电断路器
某总配电箱电器配置接线图(2)
2)分配电箱系统接线图:
某分配电箱电器配置接线图
(19)漏电保护器的测试内容分两项:第一项是测试联锁机构的灵敏度,测试方法为按动漏电保护器的试验按钮,带负荷分、合开关三次,均不应有误动作;第二项是测试特性参数,测试内容为漏电动作电流、漏电不动作电流和分断时间,其测试方法应用专用的漏电保护器测试仪进行。
施工现场可采用透明壳的漏电断路器,看得见分断点,且既有漏电保护功能、又有空气开关的功能(过
流、过压、短路)。
透明壳漏电断路器
使用透明壳漏电断路器的分配电箱。
(1)放射式
配电线故障互不影响,供电可靠性较高,配电设备集中,检修比较方便;但系统灵活性较差,有色金属消耗较多。
一般在下列情况下采用:
容量大、负荷集中或重要的用电设备
需要集中连锁启动、停车的设备
有腐蚀性介质或爆炸危险等环境,不宜将用电及启动设备放在现场者
(2)树干式
配电设备及有色金属消耗较少,系统灵活性好,但干线故障时影响范围大。
一般用于用电设备的布置比较均匀、容量不大又无特殊要求的场合。
(3)变压器干线式
除了具有树干式系统的优点外,接线更简单,能大量减少低压配电设备。
为了提高母干线的供电可靠性,应适当减少接出的分支回路数,一般不超过10个。
频繁启动、容量较大的冲击负荷,以及对电压质量要求严格的用电设备,不宜用此方式供电。
(4)备用柴油发电机组
10KV专用架空线路为主电源,快速自启动型柴油发电机组做备用电源。
用于附近只能提供一个电源,若得到第二个电源需要大量投资时,经技术经济比较,可采用此方式供电,宜注意:
与外网电源间应设机械电气连锁,不得并网运行
避免与外网电源的计费混淆
在接线上要具有一定的'灵活性,以满足在正常停电(或限电)情况下能供给部分重要负荷用电
(5)链式
特点与树干式相似,适用于距配电屏较远而彼此相距又较近的不重要的小容量用电设备。
链接的设备一般不超过5台,总容量不超过10KW。
供电给容量较小用电设备的插座,采用链式配电时,每一条环链回路的数量可适当增加。
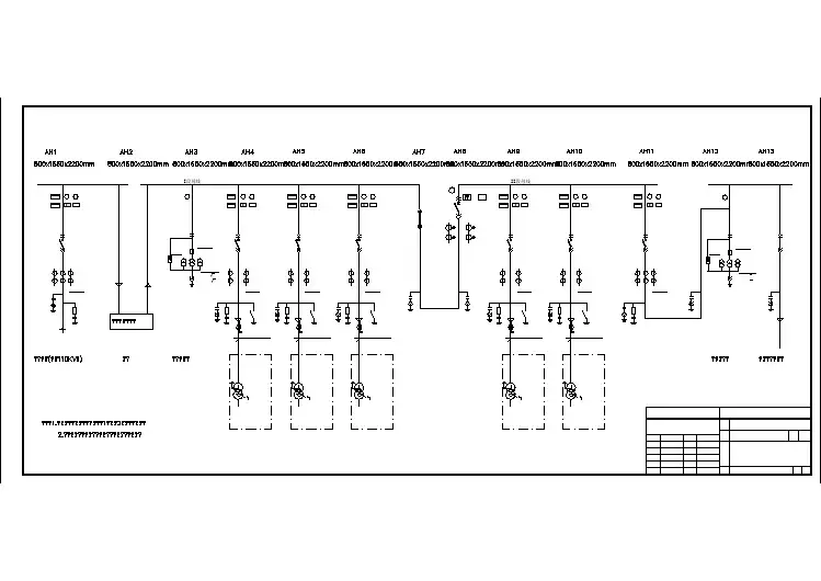
1000A/4P630A/4P800A/4P800A/4P1000A/4P630A/4P800A/4P800A/4P 1#切换柜A三楼电力室ATS 800A/4P1#UPS-A 市电旁路输入800A/3P智能电力电量仪1#UPS-A 市电主路输入800A/3P1#UPS-A 市电800A/3P外置维修旁路输入机房配电柜负一楼配电室ZA-YJVR,2 *(4x240+1x120)A 路 1# UPS 400KVA 逆变器维修旁路自动旁路UPS-A 输出AC380V/50HZ-+电池12P-H11\H136P-H5\H7滤波装置UPS-A 市电旁路输入UPS-A 市电主路输入静态开关整流器监控模块电池开关箱1电池架1-2电池开关+N -ZA-RVV,2 *(4x240+1x120)ZA-RVV,2 *(4x240+1x120)B 路 2# UPS 400KVA逆变器维修旁路自动旁路UPS-B 输出AC380V/50HZ-+电池12P-H11\H136P-H5\H7滤波装置UPS-B 市电旁路输入UPS-B 市电主路输入静态开关整流器监控模块电池开关箱2电池架3-4电池开关+N -ZA-RVV,2 *(4x240+1x120)ZA-RVV,2 *(4x240+1x120)2#切换柜B三楼电力室ATS 800A/4P2#UPS-B 市电旁路输入800A/3P智能电力电量仪2#UPS-B 市电主路输入800A/3P2#UPS-B 市电800A/3P外置维修旁路输入C 路 3# UPS 300KVA逆变器维修旁路自动旁路UPS-C 输出AC380V/50HZ-+电池12P-H11\H136P-H5\H7滤波装置UPS-C 市电旁路输入UPS-C 市电主路输入静态开关整流器监控模块电池开关箱3电池架1-2电池开关+N -ZA-RVV,2 *(4x185+1x95)ATS 630A/4P3#UPS-C 市电旁路输入630A/3P智能电力电量仪3#UPS-C 市电主路输入630A/3P3#UPS-C 市电630A/3P外置维修旁路输入ZA-RVV,2 *(4x185+1x95)机房空调配电箱JFDL1630A/3P3#切换柜C三楼电力室ATS1000A/4P智能电力电量仪运营商接入机房配电箱E 320A/3P 4#切换柜D三楼电力室列间空调-180A/3P列间空调-280A/3P 列间空调-380A/3P列间空调备用80A/3P 电池室1精密空调32A/3P电池室2精密空调32A/3P 休息室VRV 空调外机32A/3P指挥中心VRV 空调外机63A/3P 照明配电箱JFAL132A/3P 照明配电箱JFAL232A/3P 指挥中心配电箱320A/3P VR 体验区配电箱32A/3P 电力机房空调-140A/3P备用80A/3P备用32A/3P 备用32A/3P ZA-YJVR,2 *(4x240+1x120)ZA-YJVR,2 *(4x240+1x120)ZA-RJVR,3 *(4x240+1x120)250A/3P 三楼电力室5#UPS 输出柜250A/3P 250A/3P250A/3P800A/3P 800A/4P 250A/3P250A/3PZA-RVV,2 *(4x120+1x70)带机械锁250A/3P250A/3P250A/3P250A/3P800A/3P 800A/4P 250A/3P250A/3P带机械锁三楼电力室6#UPS 输出柜32A/3P40A/3P630A/3P630A/3P 630A/4P 带机械锁三楼电力室7#UPS 输出柜机房空调配电箱JFDL1备用备用32A/3PUPS 电源配电箱UAL132A/3P弱电配电箱RDAL132A/3P备用32A/3P备用32A/3P备用外置维修旁路输入ZA-RVV,2 *(4x240+1x120)外置维修旁路输入ZA-RVV,2 *(4x240+1x120)外置维修旁路输入ZA-RVV,2 *(4x185+1x95)智能电力电量仪智能电力电量仪智能电力电量仪32A/1P250A/3P智能电力电量仪32A/1P21个5KW 机柜IT 机柜IT 机柜32A/1P冷通道电源备用备用32A/1P32A/1P5个备用开关三楼IDC 机房8#列头柜列头柜UPT-01 A 路列头柜UPT-03 A 路列头柜UPT-05 A 路列头柜预留 A 路备用 A 路备用 A 路32A/1P 250A/3P智能电力电量仪32A/1P 21个5KW 机柜IT 机柜IT 机柜32A/1P冷通道电源备用备用32A/1P 32A/1P5个备用开关三楼IDC 机房9#列头柜32A/1P250A/3P智能电力电量仪32A/1P 21个5KW 机柜IT 机柜IT 机柜32A/1P冷通道电源备用备用32A/1P32A/1P5个备用开关三楼IDC 机房10#列头柜32A/1P 250A/3P智能电力电量仪32A/1P 21个5KW 机柜IT 机柜IT 机柜32A/1P 冷通道电源备用备用32A/1P32A/1P5个备用开关三楼IDC 机房11#列头柜32A/1P250A/3P 智能电力电量仪32A/1P 21个5KW 机柜IT 机柜IT 机柜32A/1P冷通道电源备用备用32A/1P32A/1P5个备用开关32A/1P250A/3P 智能电力电量仪32A/1P 21个5KW 机柜IT 机柜IT 机柜32A/1P冷通道电源备用备用32A/1P32A/1P5个备用开关三楼IDC 机房12#列头柜三楼IDC 机房13#列头柜ZA-RVV,2 *(4x120+1x70)列头柜UPT-02 B 路列头柜UPT-04 B 路列头柜UPT-06 B 路列头柜预留 B 路备用 B 路备用 B 路ATS 630A/4P智能电力电量仪列间空调-480A/3P15#运营商总配电箱三楼接入机房列间空调-580A/3P 列间空调-680A/3P 列间空调-780A/3P列间空调预留备用32A/3P ZA-RVV,2 *(4x185+1x95)列间空调-880A/3P 列间空调-980A/3P 80A/3P列间空调预留80A/3P 电力机房空调-280A/3P接入机房空调-132A/3P320A/3P智能电力电量仪80A/3P备用运营商分配电箱160A/3P 100A/3P 备用63A/3P 备用32A/3P备用32A/3P备用16A/3P备用16A/3P 备用16A/1P照明16A/1P照明16A/1P备用16A/2P备用16A/2P备用16A/2P插座16A/2P插座16A/2P备用16A/1P监控室VRV 内机16A/1P监控室VRV 内机16A/3P备用16A/3P备用16#指挥中心配电箱三楼指挥中心320A/3P智能电力电量仪80A/3P 指挥中心LED 大屏80A/3P 备用63A/3P 备用32A/3P 备用32A/3P 备用16A/3P 备用16A/1P照明16A/1P 照明16A/2P 插座16A/2P 插座数字沙盘LED 大屏100A/3P16A/1P 照明16A/2P 插座10A/3P 指挥中心VRV 内机10A/3P 指挥中心VRV 内机10A/3P指挥中心VRV 内机10A/3P 指挥中心VRV 内机10A/3P 指挥中心VRV 内机10A/3P 指挥中心VRV 内机ZA-RVV,4x150+1x70)ZA-RVV,4x150+1x70)17#机房照明配电箱三楼机房32A/3P智能电力电量仪照明16A/1P 照明16A/1P照明16A/1P照明16A/1P 照明16A/1P照明16A/1P插座16A/2P 插座16A/2P16A/2P备用16A/1P备用16A/1P 备用16A/1P备用ZA-RVV,5x618#UPS 电源配电箱三楼机房32A/3P智能电力电量仪门禁16A/1P消防16A/1P动环监控16A/1P16A/1P备用16A/1P备用16A/1P备用ZA-RVV,5x616A/1P备用16A/1P 备用16A/1P备用备用照明箱ZAT116A/3PATS 16A/3P智能电力电量仪备用照明16A/1P21#备用照明切换箱三楼机房备用照明16A/1P备用照明16A/1P 备用16A/1P备用16A/1P备用16A/1P ZA-RVV,5x2.519#机房照明配电箱三楼机房32A/3P智能电力电量仪照明16A/1P照明16A/1P 照明16A/1P 插座16A/2P插座16A/2P16A/1P 备用16A/1P备用VRV 内机16A/1PVRV 内机16A/1P 备用照明箱ZAT116A/3P16A/3P备用ZA-RVV,5x620#VR 配电箱三楼VR 体验区32A/3P智能电力电量仪照明16A/1P照明16A/1P照明16A/1P插座16A/2P 插座16A/2P16A/2P备用16A/1P 备用16A/1P备用16A/1P备用VRV 空调室内机10A/3PVRV 空调室内机10A/3PZA-RVV,5x622#弱电配电箱三楼机房32A/3P 智能电力电量仪16A/1P备用16A/1P备用16A/1P备用16A/1P备用16A/1P备用16A/1P备用16A/1P备用16A/1P备用16A/1P备用ZA-RVV,5x6三楼电力室14#空调切换柜。
配电箱系统图学习简介什么是配电箱?所有用户用电的总的一个电路分配箱.工作原理配电箱是按电气接线要求将开关设备、测量仪表、保护电器和辅助设备组装在封闭或半封闭金属柜中或屏幅上,构成低压配电装置。
正常运行时可借助手动或自动开关接通或分断电路。
故障或不正常运行时借助保护电器切断电路或报警。
借测量仪表可显示运行中的各种参数,还可对某些电气参数进行调整,对偏离正常工作状态进行提示或发出信号。
常用于各发、配、变电所中。
用途便于管理,当发生电路故障时有利于检修。
配电箱和配电柜配电盘配电凭等,是集中安装开关、仪表等设备的成套装置。
常用的配电箱有木制和铁板制两种,现在哪儿的用电量都挺大的,所以还是铁的用的比较多。
配电箱的用途:当然是方便停、送电,起到计量和判断停、送电的作用。
分类按结构特征和用途分类:(1)固定面板式开关柜,常称开关板或配电屏。
它是一种有面板遮拦的开启式开关柜,正面有防护作用,背面和侧面仍能触及带电部分,防护等级低,只能用于对供电连续性和可靠性要求较低的工矿企业,作变电室集中供电用。
(2)防护式(即封闭式)开关柜,指除安装面外,其它所有侧面都被封闭起来的一种低压开关柜。
这种柜子的开关、保护和监测控制等电气元件,均安装在一个用钢或绝缘材料制成的封闭外壳内,可靠墙或离墙安装。
柜内每条回路之间可以不加隔离措施,也可以采用接地的金属板或绝缘板进行隔离。
通常门与主开关操作有机械联锁。
另外还有防护式台型开关柜(即控制台),面板上装有控制、测量、信号等电器。
防护式开关柜主要用作工艺现场的配电装置。
(3)抽屉式开关柜。
这类开关柜采用钢板制成封闭外壳,进出线回路的电器元件都安装在可抽出的抽屉中,构成能完成某一类供电任务的功能单元。
功能单元与母线或电缆之间,用接地的金属板或塑料制成的功能板隔开,形成母线、功能单元和电缆三个区域。
每个功能单元之间也有隔离措施。
抽屉式开关柜有较高的可靠性、安全性和互换性,是比较先进的开关柜,目前生产的开关柜,多数是抽屉式开关柜。
举例,从电源引入端开始向配出端顺序看:
1、SCB10-2000 10/0.4 D/Yn11
干式变压器,10KV/0.4KV,容量2000KVA,高压侧三角形接法,低压侧为星形接法,连接组别为D/Yn11(星三角11点接法);
2、TMY-3[2*(125*10)]+1*(125*10)
低压进线柜主母线或低压水平母线规格,125*10硬铜排,3条相线为双排,PEN为单排;
3、MT40H1/3P MIC5.0 I=3200A
低压总进线自动(万能)断路器,施耐德品牌,电流规格4000A,整定电流(长延时)3200A,性能要求查厂家样本;
4、4000/5A
进线侧电流互感器变比,4000/5
5、NS100H/3P I=100A GPU3-60II
浪涌保护辅助回路,配施耐德NS100H/3P开关、GPU3-60II浪涌吸收保护器;
6、D1:MNS 1000*1000*2200
低压柜编号、型号,MNS系列,进线柜尺寸为1000宽、1000深、2200高;
7、D2、D3:无功功率补偿
电容补偿柜
8、GLR-1250/3P,ZWK ARC-12/J
带熔断器隔离开关1250A/3P,无功功率自动补偿控制器(安科瑞品牌)12路;
9、FYS-0.22
浪涌吸收保护(避雷器);
10、NT100-100A
熔断器,100A;
11、LC1-DPK12M7C
施耐德产接触器,需要查产品样本(略),用于自动切换电容器组;
12、FK-Dr30/440/7
电容器组回路串接电抗器,防止瞬间切换过电流;
13、10*MKPg0.44-30-3
10组电容器,MKPg0.44型号,30KVar、三相;
14、D7,含4套NS系列断路器
低压出线柜,NS400N/3P 200A表示施耐德NS400N断路器,400A框架,整定电流为200A;
15、112KW WDZA-YJY-4*185+E95
该出线回路为112KW负荷,出线电缆为无卤低烟A级阻燃(交联聚乙烯绝缘、交联聚乙烯护套),规格为4*185+E95,E95表示PE线规格95;
16、ACR220E、300/5
安科瑞品牌仪表(出线回路电流表),配300/5电流互感器;
17、D9,含MT25H1/3P MIC5.0 I=1600A及2000/5A
低压母联柜,断路器为MT25H1/3P MIC5.0,整定电流1600A,配2000/5A电流互感器。
18、标注:3-7-N3之类
不同的设计人员有不同的习惯,这里表示第3套变配电系统(对应变压器T3)、第7面低压柜、第3条出线回路(该柜内的第3个抽屉);
19、补充
MNS系列低压配电柜标准垂直母线的规格是1000A,即每个柜可以提供1000A以内的配电负荷能力,超出1000A时(如需要1600A)要采用双垂直母线,可以做到2000A,这些参数要查不同系列低压柜的样本。
(没有具体的图纸,只好对照我手中的图来举例)
44
回答者:rbt183。