工程定位测量记录
- 格式:doc
- 大小:31.50 KB
- 文档页数:1
归档编号:C1--11工程定位(竣工)测量记录制表日期:2008年10月 02 日建设单位:沈阳碧桂园房地产开发有限公司工程名称:沈阳碧桂园·太阳城西区高层7#楼施工单位:大连金广建设集团有限公司图纸编号:结施--3 施测日期:2008年10月01 日坐标依据:规划院给已定高程依据:海拔49.153m测量技术负责人:.复核:抄测:质量检查员:施工员:归档编号:C1--11工程定位(竣工)测量记录制表日期:2008年10月 02 日建设单位:沈阳碧桂园房地产开发有限公司工程名称:沈阳碧桂园·太阳城西区高层8#楼施工单位:大连金广建设集团有限公司图纸编号:结施--3 施测日期:2008年10月01 日坐标依据:规划院给已定高程依据:海拔49.153m测量技术负责人:.复核:抄测:质量检查员:施工员:归档编号:C1--11工程定位(竣工)测量记录制表日期:2008年10月 02 日建设单位:沈阳碧桂园房地产开发有限公司工程名称:沈阳碧桂园·太阳城西区高层9#楼施工单位:大连金广建设集团有限公司图纸编号:结施--3 施测日期:2008年10月01 日坐标依据:规划院给已定高程依据:海拔49.153m测量技术负责人:.复核:抄测:质量检查员:施工员:工程定位(竣工)测量记录制表日期:2008年10月 02 日建设单位:沈阳碧桂园房地产开发有限公司工程名称:沈阳碧桂园·太阳城西区高层10#楼施工单位:大连金广建设集团有限公司图纸编号:结施--3 施测日期:2008年10月01 日坐标依据:规划院给已定高程依据:海拔49.153m使用仪器:定位仪闭合差:1mm测量技术负责人:.复核:抄测:质量检查员:施工员:人活着的意义,就是活得有价值,可惜很多的人把这种价值看得太浅了,认为拥有更多的财富、拥有社会地位、拥有名气就是价值的体现。
这种价值是一种虚伪的价值,更经不起时间的考验。
工程定位测量记录一、工程基本信息项目名称:XXX工程工程位置:XX市XX区XX路工程开始时间:XXXX年XX月XX日测量时间:XXXX年XX月XX日二、测量项目1.地理定位测量1.1测量基准点的设定及测量:使用GPS技术测定工程位置相对于全球导航卫星系统的经纬度坐标,并记录在下方表格中(表格略)。
1.2测量标志物的设置:在工程位置周围采用一定数量的地面标志物,包括里程碑、地形特征标志物等,以供后期测量使用。
2.高程定位测量2.1高程基准点的设定及测量:使用水平仪等测量工具对工程位置的高程进行测量,并记录在下方表格中。
2.2测量建筑物高度:对工程位置附近的建筑物高度进行测量,并记录在下方表格中。
3.其他定位测量3.1水平定位测量:使用光电测距仪等测量工具对工程位置内各个关键点的水平距离进行测量,并记录在下方表格中。
3.2竖直定位测量:使用水平仪等测量工具对工程位置内各个关键点的竖直距离进行测量,并记录在下方表格中。
三、测量结果1.地理定位测量结果:-经度:XXX度XX分XX秒-纬度:XXX度XX分XX秒2.高程定位测量结果:-高程:XXX米3.其他定位测量结果:-水平距离:-A点到B点:XXX米-A点到C点:XXX米-竖直距离:-A点到D点:XXX米-A点到E点:XXX米四、测量设备1.GPS测量设备2.水平仪3.光电测距仪五、测量记录人员及签名测量人员:XXX日期:XXXX年XX月XX日六、备注任何与测量过程相关的额外信息可以在此部分记录。
以上是关于工程定位测量的记录,该记录详细记录了工程位置的地理定位、高程定位以及其他定位测量结果。
这些测量结果将为工程的施工和后期维护提供重要依据,确保工程的准确性和稳定性。
4.1.6.1 工程定位测量检查记录Ⅰ基本要求和内容(1)工程定位测量前,应先由城建规划部门根据建筑红线以及城市规划要求,确定方位,提供建设各方以测量标志。
(2)施工单位应根据城建规划部门提供的水准点、坐标点以及施工红线图等,作出包括建筑位置线、现场标准水准点、坐标点(包括标准轴线桩、示意图)等,填写工程定位测量检查记录,见质控(建)表4.1.6.1,报监理单位(建设)单位确认。
(3)界桩点、红线点定位及高程测量,可按下列细部点测量技术进行:1)细部坐标,宜采用极坐标法施测。
水平角可采用经纬仪观测半测回,距离采用钢尺量距时,不宜超过一尺段,细部标高,可采用水准仪或经纬仪望远镜置平施测;2)采用速测仪或测距仪测细部点时,应进行测桩检查,仪器对中偏差不应大于5mm,归零差不宜大于1′;当采用经纬仪半测回测角时,测距的长度不应超过100m;同时施测细部标高时,垂直角范围应在±10°以内,并应观测1测回,测量仪器高和觇标高的取值精确至1mm;3)坐标及标高成果取值,均应精确至10mm,坐标展点误差不应大于图上0.3mm。
Ⅱ核查办法(1)核查有否城建规划部门提供的水准点及红线图。
(2)核查是否有工程定位测量记录。
Ⅲ核定原则凡出现下列情况之一,本项目核定为“不符合要求”。
(2)检查记录与施工规划红线图或与现场不符。
4.1.6.2 地基钎探记录Ⅰ基本要求和内容(1)对地质复杂的或重要的工程,对地基变形有特殊要求以及地基开挖后对地基土有疑义时,应根据设计要求或验槽磋商的意见进行钎探试验,并做好测试记录,钎探记录应填写清楚、真实,并有钎探记录人、施工员、项目技术负责人签字,钎探记录应附有打钎平面图以及钎探结果的分析。
(2)钎探打钎按平面图标定的钎探点顺序进行,记录每打入300mm (一步)深度的锤击数,填入地基钎探记录见质控(建)表4.1.6.2,钎探锤重、落距、钎径应符合规范规定。
(3)钎探完毕,要认真分析钎探记录,查明槽底以下土质的变化,分析孔深范围内基土坚硬程度是否均匀,如有异常需处理,应在打钎平面布点图上标明部位、区段、标高及处理方法。
工程定位测量记录定位抄测示意图:
“工程定位测量记录”填写说明
1、工程名称与施工图纸一致
2、委托单位:建设单位或总承包单位总称
3、图纸编号:总平面图、首层建筑图等。
4、坐标依据、高程依据为当地规划部门提供
5、允许误差符合《工程测量规范》GB50026 的规定
6、使用仪器为仪器名称及型号
7、仪器效验日期为仪器检定时间
8、定位抄测示意图:坐标、高程依据要标出引出位置,并标出它与建筑物的关系;特殊情况下,可不按比例,只画示意图,但要标出主要轴线尺寸,并注明± 0.000 标高的绝对高程。
将建筑物平面位置线、重要控制轴线、尺寸及指北针方
向、±0.000标高的绝对高程、现场标准水准点、坐标点、红线桩、周边原有建
筑物、道路等采用适当比例绘制在此图内。
9、相关要求:
边长相对中误差1/15000,测角中误差±15〞按《工程测量规范》
GB/50026-2007 中8.3.2 条;
建筑物施工平面控制网,应根据建筑物的分布、结构、高度、基础埋深和机械设备传动的连接方式、生产工艺的连续程度,分别布设一级或二级控制网,其
主要技术要求,应符合下表的规定
建筑物控制网的主要技术要求
7″
15 ″
1、测角最大中误差2〞是现场实际误差值。
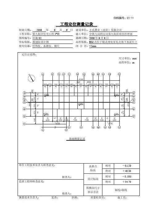
归档编号:C1-11工程定位测量记录制表日期:2006 年9 月9 日建设单位:王氏置业(沈阳)有限公司工程名称:第九街区住宅工程5#楼施工单位:中铁九局四公司第九街区项目经理部图纸编号:结施-02 施测日期:2006年9月9日坐标依据:规划院设计图高程依据:BM点位于箱式变电室东北角下水泥台上使用仪器:经纬仪、水准仪、钢尺闭合差:+2mm工程定位测量记录制表日期:2006 年10 月 4 日建设单位:王氏置业(沈阳)有限公司工程名称:第九街区住宅工程5#楼施工单位:中铁九局四公司第九街区项目经理部图纸编号:结施-02 施测日期:2006年10月4日坐标依据:规划院设计图高程依据:BM点位于箱式变电室东北角下水泥台上使用仪器:经纬仪、水准仪、钢尺闭合差:+2mm工程定位测量记录制表日期:2006 年10 月16 日建设单位:王氏置业(沈阳)有限公司工程名称:第九街区住宅工程5#楼施工单位:中铁九局四公司第九街区项目经理部图纸编号:结施-02 施测日期:2006年10月16日坐标依据:规划院设计图高程依据:BM点位于箱式变电室东北角下水泥台上使用仪器:经纬仪、水准仪、钢尺闭合差:+2mm工程定位测量记录制表日期:2006 年10 月19 日建设单位:王氏置业(沈阳)有限公司工程名称:第九街区住宅工程5#楼施工单位:中铁九局四公司第九街区项目经理部图纸编号:结施-02 施测日期:2006年10月19日坐标依据:规划院设计图高程依据:BM点位于箱式变电室东北角下水泥台上使用仪器:经纬仪、水准仪、钢尺闭合差:+2mm工程定位测量记录制表日期:2006 年10 月21 日建设单位:王氏置业(沈阳)有限公司工程名称:第九街区住宅工程5#楼施工单位:中铁九局四公司第九街区项目经理部图纸编号:结施-02 施测日期:2006年10月21日坐标依据:规划院设计图高程依据:BM点位于箱式变电室东北角下水泥台上使用仪器:经纬仪、水准仪、钢尺闭合差:+2mm工程定位测量记录制表日期:2006 年10 月25 日建设单位:王氏置业(沈阳)有限公司工程名称:第九街区住宅工程5#楼施工单位:中铁九局四公司第九街区项目经理部图纸编号:结施-02 施测日期:2006年10月25日坐标依据:规划院设计图高程依据:BM点位于箱式变电室东北角下水泥台上使用仪器:经纬仪、水准仪、钢尺闭合差:+2mm工程定位测量记录制表日期:2006 年10 月27 日建设单位:王氏置业(沈阳)有限公司工程名称:第九街区住宅工程5#楼施工单位:中铁九局四公司第九街区项目经理部图纸编号:结施-02 施测日期:2006年10月27日坐标依据:规划院设计图高程依据:BM点位于箱式变电室东北角下水泥台上使用仪器:经纬仪、水准仪、钢尺闭合差:+2mm工程定位测量记录制表日期:2006 年10 月28 日建设单位:王氏置业(沈阳)有限公司工程名称:第九街区住宅工程5#楼施工单位:中铁九局四公司第九街区项目经理部图纸编号:结施-02 施测日期:2006年10月28日坐标依据:规划院设计图高程依据:BM点位于箱式变电室东北角下水泥台上使用仪器:经纬仪、水准仪、钢尺闭合差:+2mm工程定位测量记录制表日期:2006 年10 月31 日建设单位:王氏置业(沈阳)有限公司工程名称:第九街区住宅工程5#楼施工单位:中铁九局四公司第九街区项目经理部图纸编号:结施-02 施测日期:2006年10月31日坐标依据:规划院设计图高程依据:BM点位于箱式变电室东北角下水泥台上使用仪器:经纬仪、水准仪、钢尺闭合差:+2mm工程定位测量记录制表日期:2006 年11 月 2 日建设单位:王氏置业(沈阳)有限公司工程名称:第九街区住宅工程5#楼施工单位:中铁九局四公司第九街区项目经理部图纸编号:结施-02 施测日期:2006年11月2日坐标依据:规划院设计图高程依据:BM点位于箱式变电室东北角下水泥台上使用仪器:经纬仪、水准仪、钢尺闭合差:+2mm工程定位测量记录制表日期:2006 年11 月 4 日建设单位:王氏置业(沈阳)有限公司工程名称:第九街区住宅工程5#楼施工单位:中铁九局四公司第九街区项目经理部图纸编号:结施-02 施测日期:2006年11月4日坐标依据:规划院设计图高程依据:BM点位于箱式变电室东北角下水泥台上使用仪器:经纬仪、水准仪、钢尺闭合差:+2mm工程定位测量记录制表日期:2006 年11 月7 日建设单位:王氏置业(沈阳)有限公司工程名称:第九街区住宅工程5#楼施工单位:中铁九局四公司第九街区项目经理部图纸编号:结施-02 施测日期:2006年11月7日坐标依据:规划院设计图高程依据:BM点位于箱式变电室东北角下水泥台上使用仪器:经纬仪、水准仪、钢尺闭合差:+2mm。
工程定位测量记录工程定位测量记录是工程施工过程中的重要环节,它用于记录工程位置的准确测量结果和相关信息,确保工程施工的准确性和稳定性。
通过进行工程定位测量记录,可以有效地控制工程位置的偏差,减少施工中出现的错误和纠正工程问题的成本。
工程定位测量记录的主要目的是:1)提供准确的位置信息,确保工程按照设计要求进行施工;2)为工程质量控制和验收提供参考依据;3)为工程进度计划和资源调配提供必要数据;4)为工程变更和后续施工提供基础数据。
在进行工程定位测量记录时,应严格按照相关测量规范和要求进行操作,保证测量结果的准确性和可靠性。
同时,记录过程中应详细记录测量仪器和设备的型号、测量人员的姓名和资质、测量时间等信息,以便进行后续的查证和分析。
通过合理的工程定位测量记录,可以提高工程施工的质量和效率,保证工程的正常进行。
因此,对于每个工程项目来说,进行工程定位测量记录都是必要的且重要的一步。
工程名称:[工程名称]位置:[工程位置]日期:[测量日期]请提供工程的具体名称、位置和测量日期。
本文档旨在描述每个测量点的位置、测量工具和方法,包括使用的仪器设备和测量精度要求。
测量点1:位置:[描述测量点1的具体位置]测量工具和方法:[描述测量点1所使用的测量工具和方法]仪器设备:[列出测量点1所涉及的仪器设备]测量精度要求:[描述测量点1的测量精度要求]测量点2:位置:[描述测量点2的具体位置]测量工具和方法:[描述测量点2所使用的测量工具和方法]仪器设备:[列出测量点2所涉及的仪器设备]测量精度要求:[描述测量点2的测量精度要求]测量点3:位置:[描述测量点3的具体位置]测量工具和方法:[描述测量点3所使用的测量工具和方法]仪器设备:[列出测量点3所涉及的仪器设备]测量精度要求:[描述测量点3的测量精度要求]继续按照相同的格式描述其他测量点的位置、测量工具和方法,以及仪器设备和测量精度要求。
)注意:以上描述仅为示例,具体内容应根据实际情况进行填写。