2017年北京建筑大学建筑历史遗产保护规划与设计复试理论课真题
- 格式:pdf
- 大小:92.60 KB
- 文档页数:2
北建工考研真题一(建筑史填空题)92年1.古埃及第一座石头得多层金字塔就是在得金字塔,以后金字塔得形制经不断探索,终于在建造了代表性得三大金字塔、、。
2、古罗马公共浴场得主要成就表现在:。
3、中世纪西欧与东欧得宗教建筑在形制、结构、艺术上分为两个建筑体系,在东欧发展了得结构与型制;在西欧则发展了得型制与结构。
4、《建筑十书》、《论建筑》、《建筑四书》与《五种柱式规范》得作者分别就是、、、与。
5、英国杰出得古典主义者设计得在得成为英国资产阶级革命得纪念碑。
6、芝加哥学派得得力支柱就是,她最先提出得口号,其代表作品就是。
其她建筑立面上采用了典型得处理手法。
7、“德意志制造联盟”中最有威望得建筑师就是、她在为设计得就是现代建筑就是中得一个里程碑。
8、一次大战后得初期,各种造型艺术家及建筑师对新建筑形式进行多方探索,较重要得流派有、、、。
9.“新陈代谢派”得主要成员有,体现其观点得代表作就是。
10、、二次大战后得建筑思潮之一就是讲求“个性”与“象征”得倾向,究其手段,大致有三:、、。
93年1、古代希腊晚期,纪念性建筑中产生集中式构图型制,其代表就是在得与在得。
2古罗马建筑类型很多,按作用说主要分为两类:(1)(2)3、西班牙得阿尔罕布宫,她以两个互相垂直得园子为中心,从方向说向得叫其用途就是以为主,向得叫,就是得地方。
4、工业革命后,欧美资本主义城市得种种矛盾日益尖锐,为缓与社会矛盾,实施过一些有利得探索,其中著名得如、、。
5、意大利文艺复兴之后,出现了风格,而法国古典主义之后,则出现了风格。
6、一次大战后“风格派”在建筑方面有代表性得就是利特维德设计得在得地方得一所。
7、“表现派”得代表性作品爱因斯坦天文台就是建筑师得作品。
8、法国资产阶级革命时期曾出现了一些激进得建筑师,力图标新立异,王室建筑师与院士就是其中最突出得,其建筑方案多采用。
9、从格罗皮乌斯与梅耶设计得发古斯工厂中可以瞧到一些新得建筑形式美,表现在:(1)(2)(3)(4)(5)94年1、古希腊雅典卫城上得主要建筑物就是、、、,还有得塑像,卫城建筑得总负责人就是。
2017年北京建筑设计(知识)考试辅导:城市公共空间规划试题本卷共分为2大题50小题,作答时间为180分钟,总分100分,60分及格。
一、单项选择题(共25题,每题2分,每题的备选项中,只有 1 个事最符合题意)1、1666年伦敦大火以后,建筑师雷恩(Christopher Wren)为伦敦作的改建规划方案效法了()。
A.雅典卫城的布局手法B.米利都(Miletus)城的布局手法C.巴黎凡尔赛花园的布局手法D.奥斯曼巴黎改建的布局手法2、推拉自动门的最大开门感应时间应为:(2005,47)A.0.3sB.0.4sC.0.5sD.0.6s3、高层建筑采用钢筋混凝土筒中筒结构时,外筒柱子截面设计成下列何者为最好__A.圆形截面B.正方形截面C.矩形截面,长边平行外墙放置D.矩形截面,短边平行外墙放置4、广泛应用于冷库工程,冷冻设备的膨胀珍珠岩制品,选用下列哪一种?()A.磷酸盐珍珠岩制品B.沥青珍珠岩制品C.水泥珍珠岩制品D.水玻璃珍珠岩制品5、一般抹灰按使用要求、质量标准可分为______。
A.普通抹灰和高级抹灰B.石灰砂浆、水泥砂浆和混合砂浆C.墙面抹灰、顶棚抹灰和地面抹灰D.大理石、天然石材和水刷石6、6度、7度抗震设防的高层钢筋混凝土框架—剪力墙结构的高宽比不宜超过以下何值()A.3B.5C.8D.107、砖砌体临时间隔处,所设置拉结筋的沿墙高度间距,是______。
A.每隔50 cmB.每隔60 cmC.每隔80 cmD.每隔100 cm8、普通水磨石地面面层施工中,关于水磨石面层的厚度,下列__是正确的。
A.12~18mmB.18~25mmC.10~12mmD.15~25mm9、地下防水工程施工中,下述水泥砂浆防水层的做法,哪项要求是不正确的(2012,42)A.可采用聚合物水泥砂浆B.可采用掺外加剂的水泥砂浆C.防水砂浆施工应分层铺拌或喷涂D.水泥砂浆初凝后应及时养护10、”装饰就是罪恶”的口号是由谁提出的__A.瓦格纳B.霍夫曼C.贝尔拉格D.路斯11、以下哪条不是土地使用权出让的方式(2012,81)A.拍卖B.招标C.划拨D.双方协议12、以幕墙作为维护结构的建筑物,应按幕墙外边线计算建筑面积(2009,12) A.按幕墙外边线计算B.按幕墙中心线计算C.层高在2.20m及以上者应计算全面积;层高不足2.20m者应计算1/2面积D.不计算13、修改建设工程设计文件的正确做法是:(2011,74)A.无须委托原设计单位而由原设计人员修改B.由原设计单位修改C.无须征询原设计单位同意而由具有相应资质的设计单位修改D.由施工单位修改,设计人员签字认可14、框架—剪力墙结构设计中,剪力墙应双向布置,间距不宜超过规范限值,且尚应满足下列何种正确要求A.墙肢长度大于8.0mB.其中有一道墙肢必须能承受40%以上的水平力,以保证抗震的安全性C.房屋纵向较长时,剪力端宜集中布置在两端,以增加抵抗温度应力影响的能力D.剪力墙沿高度宜贯通,厚度逐渐减薄15、北京所在的光气候区是__。
建筑类考研面试题目及答案### 建筑类考研面试题目及答案题目一:请简述建筑的可持续性设计原则。
答案:建筑的可持续性设计原则主要包括以下几点:1. 环境友好性:设计应减少对自然环境的负面影响,如减少污染和生态破坏。
2. 资源节约:在设计中应尽可能使用可再生资源,减少能源和材料的消耗。
3. 经济性:建筑应具有长期的经济价值,降低维护成本,提高使用效率。
4. 社会适应性:建筑应满足不同社会群体的需求,促进社区的和谐发展。
5. 文化传承:尊重并融入当地的文化特色,使建筑成为文化的载体。
6. 技术整合:利用先进的建筑技术,如绿色建筑技术,提高建筑的性能和舒适度。
7. 生命周期考虑:从建筑的全生命周期角度出发,考虑其设计、建造、使用和拆除的各个阶段。
题目二:请解释什么是绿色建筑,并举例说明。
答案:绿色建筑是指在建筑的全生命周期内,最大限度地节约资源、保护环境、减少污染,为人们提供健康、适用、高效的使用空间,与自然和谐共生的建筑。
绿色建筑的特点包括节能、节水、节材、节地、环保和可循环利用。
例如,新加坡的“滨海湾花园”就是一个典型的绿色建筑项目。
它利用太阳能发电、雨水收集系统、绿色屋顶和墙面,以及高效的能源管理系统,实现了能源的自给自足和环境的可持续性。
题目三:简述建筑的美学价值与功能价值的关系。
答案:建筑的美学价值与功能价值是相辅相成的。
美学价值体现在建筑的外观设计、空间布局、材料选择等方面,它能够提升建筑的视觉和感官体验,给人以美的享受。
功能价值则关注建筑的实用性,包括空间的合理利用、结构的稳定性、使用功能的完善等。
一个优秀的建筑设计应该在满足功能需求的基础上,追求美学的表达,使建筑既实用又美观。
例如,北京的国家大剧院,其独特的“蛋壳”造型不仅具有强烈的视觉冲击力,而且内部空间设计合理,满足了剧院的演出和观众的需求。
题目四:请谈谈现代建筑设计中对历史文脉的尊重与创新。
答案:在现代建筑设计中,对历史文脉的尊重与创新是并行不悖的。
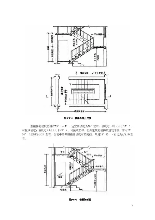
图2-5-4 楼梯各部分尺度一般楼梯的坡度范围在23°~45°,适宜的坡度为30°左右。
坡度过小时(小于23°),可做成坡道;坡度过大时(大于45°),可做成爬梯。
公共建筑的楼梯坡度较平缓,常用26°34′(正切为1/2)左右。
住宅中的共用楼梯坡度可稍陡些,常用33°42′(正切为1/1.5)左右。
图2-5-7 楼梯间剖面楼梯坡度一般不宜超过38°,供少量人流通行的内部交通楼梯,坡度可适当加大。
楼梯、坡道、爬梯的坡度范围如图2-5-8。
图2-5-8 楼梯、台阶和坡道坡度的适用范围对成年人而言,楼梯踏步高度以150mm左右较为舒适,不应高于175mm。
踏步的宽度以300mm 左右为宜,不应窄于250mm。
当踏步宽度过大时,将导致梯段长度增加;而踏步宽度过窄时,会使人们行走时产生危险。
在实际中经常采用出挑踏步面的方法,使得在梯段总长度不变情况下增长踏步面宽(如图2-5-9)。
一般踏步的出挑长度为20~30mm。
图2-5-9 增加踏步宽度的方法5.1.6 楼梯的设计与实例分析5.1.6.1 设计步骤及方法1.已知楼梯间开间、进深和层高,进行楼梯设计(1)选择楼梯形式根据已知的楼梯间尺寸,选择合适的楼梯形式。
进深较大而开间较小时,可选用双跑平行楼梯,如图2-5-12所示;开间和进深均较大时,可选用双分式平行楼梯;进深不大且与开间尺寸接近时,可选用三跑楼梯。
图2-5-12 钢筋混凝土楼梯的平、剖面内视图(2)确定踏步尺寸和踏步数量根据建筑物的性质和楼梯的使用要求,确定踏步尺寸,参见表2-5-2。
通常公共建筑主要楼梯的踏步尺寸适宜范围为:踏步宽度300 mm、320mm,踏步高度140~150mm;公共建筑次要楼梯的踏步尺寸适宜范围为:踏步宽度280mm、300 mm,踏步高度150~170mm;住宅共用楼梯的踏步尺寸适宜范围为:踏步宽度250mm、260mm,280mm,踏步高度160~180mm。
07年真题中国建筑史:一、填空1.代表性遗址,长江流域_______式建筑,黄河流域木骨泥墙式建筑。
2.西周陕西歧山________遗址是我国最早最严整的四合院实例3.秦都咸阳布局.渭水,摒弃"________"制4.石窟的几种形式_____, _____, ______二、画图题山西芮城永乐宫三清殿立、剖三、宋代建筑水平新高度,具体表现在哪几个方面?外国建筑史:一、填空1.《论建筑》《建筑十书》《走向新建筑》《像拉斯维加斯学习》《城市建筑》《城市空间》的作者分别是?2.帕提农作为雅典围城的中心建筑,从以下几个方面突出________,________3.圣彼得大教堂的七位建筑师分别是________、________、________、________、________、________、________4.后现代建筑师________设计海豚与天鹅宾馆5.巴黎拉莱特公园_____思潮作品,_____设计二.绘图题1.帕拉第奥、圆厅别墅2.勒·柯布西耶巴黎瑞士学生宿舍三、1.结合实例说明现代建筑设计方面共同点2.结合实例,说明后现代主义建筑设计特征08年真题一中建史:1宋代时以____什么作为造屋的标准.2<营造法式>中有___种大木作形式3.营造法式的模数制4. 北魏最大的佛寺()画图3独乐寺观音阁平面与剖面二外建史1伊斯兰清真寺朝拜时面向东方,是为了,面向____(地名)2基督教堂的圣坛面向西方,是为了面向____(地名)3雅阁布斯写的_(书名)讲述了现代大城市的建设问题4柯布西耶对于现代建筑所提出的五项原则是_______________ 5<现代建筑-一部批判的历史>的作者是________有一道题空题题干很长,题目填空是(芝加哥学派)画图题1多立克和爱奥尼柱式2圣彼德大教堂的立面论述题1哥特教堂的结构特点2评价柯布西耶(评价柯布西耶的现代建筑观)三建筑构造名词解释1清水混凝土2刚性基础与柔性基础3热桥填空1屋面防水按材料可分为_和_两种防水形式2瓦屋面的构造层次为______________________桩基础的形式()画图题1木扶手的构造(扶手入墙)2坡屋面挑檐的构造做法简答:以柱的作用为例,分析建筑承载系统的作用?滑模建筑的工作原理?城市规划:元大都平面城市发展史:<雅典宪章>和<马丘比秋宪章>的区别和联系09年真题中国建筑史1.秦朝发展了自然_______园林2.唐以前除了宵禁外还有什么制度?画图:佛光寺平立剖面大题:清朝的特点?外建画图:帆拱巴黎圣母院填空跟埃菲尔铁塔同期建设后被拆除的是?大题18-19世纪美国欧洲出现的复古思潮?雅典卫城特点?建筑构造变形缝的形式:基础按材料分两种类型望板屋面层次可以和框架结合的高层结构形式名词解释清水砖墙梁架承檩板柱结构判断:板式楼梯比梁板式更有优势大题承载系统的作用,以砌筑墙体为例说明?装修的作用?楼梯是直跑,面宽6900,进深2700,高2800墙厚二百2010年建筑构造一、填空1.灰浆整体式外墙做法名称2、建筑变形缝的种类二、名词解释1.防火分隔物2.混水砖墙三、简答题1.装修的作用?2.什么是大模建筑,其工作原理?四、画图题1、外墙抗震缝2、窗台构造五、画图题一个双分楼梯建筑历史中建史一、填空1、石窟的类型2、浙江余姚河姆渡遗址最早采用——二、画图题1、永乐宫三清殿立面、剖面三、问答题宋朝建筑特点外建史一、填空1、古埃及什么时间开始采用透视法画建筑2、二战后的建筑有标志性,纪念性,——、——、二、画图题1、尼德兰的跳舞楼2、朗香教堂透视三、简答题1、如何处理古罗马建筑和柱式之间的矛盾2、弗兰普顿的批判的地域性的特点?2011年构造填空:共20个空,每空一分,比较简单。
建筑历史与文化遗产考试试题一、选择题1. 建筑历史研究的范畴主要包括以下哪些内容?A. 建筑风格和流派B. 建筑材料和施工技术C. 建筑空间和功能设计D. 建筑的政治和社会背景E. 建筑的环境和可持续发展2. 文化遗产的保护与利用需要考虑的因素包括以下哪些?A. 文物的保护和修复B. 文化遗址的管理和开发C. 文化传统的传承和传播D. 文化遗产的教育和宣传E. 文化产业的发展和创新3. 下列哪个是著名的世界文化遗产?A. 埃菲尔铁塔B. 自由女神像C. 埃及金字塔D. 罗马斗兽场E. 帝王谷河谷4. 建筑历史研究的方法论包括以下哪些?A. 文献研究B. 考古发掘C. 建筑测量和绘图D. 建筑风格和装饰风格分析E. 建筑史与艺术史的对比研究5. 文物修复的原则主要包括以下哪些?A. 保护为主B. 兼顾传承和利用C. 尊重历史和原址D. 注意可持续发展E. 遵循科学和规范二、简答题1. 请简要介绍一种中国古代建筑的风格和特点。
2. 举例说明一处世界文化遗产的保护和利用实践。
3. 建筑历史研究对当代建筑设计有何启示和影响?4. 文化遗产的保护与利用应该如何平衡传统和现代的需求?5. 请列举一些可以促进文化遗产保护和传承的政策和措施。
三、论述题从建筑历史和文化遗产的角度出发,探讨现代城市化进程中的文化保护和建筑设计创新之间的关系。
[正文开始]近年来,随着城市化的快速发展,建筑历史的保护和文化遗产的传承成为了全球范围内关注的重要议题。
本文将从建筑历史和文化遗产的角度,探讨现代城市化进程中的文化保护与建筑设计创新之间的关系。
首先,建筑历史的保护对于现代城市化进程至关重要。
建筑历史研究帮助我们了解过去的建筑风格、施工技术以及建筑背后的政治、经济和社会背景。
通过对建筑历史的研究,我们能够借鉴古代建筑的创新理念,提升现代建筑设计的质量和可持续性。
此外,建筑历史的保护还能够保留历史城区的独特魅力,吸引游客和投资者,促进经济发展。
北建工考研真题一(建筑史填空题)92年1.古埃及第一座石头的多层金字塔是在的金字塔,以后金字塔的形制经不断探索,终于在建造了代表性的三大金字塔、、。
2.古罗马公共浴场的主要成就表现在:。
3.中世纪西欧和东欧的宗教建筑在形制、结构、艺术上分为两个建筑体系,在东欧发展了的结构和型制;在西欧则发展了的型制和结构。
4.《建筑十书》、《论建筑》、《建筑四书》和《五种柱式规范》的作者分别是、、、和。
5.英国杰出的古典主义者设计的在的成为英国资产阶级革命的纪念碑。
6.芝加哥学派的得力支柱是,他最先提出的口号,其代表作品是。
其他建筑立面上采用了典型的处理手法。
7.“德意志制造联盟”中最有威望的建筑师是、他在为设计的是现代建筑是中的一个里程碑。
8.一次大战后的初期,各种造型艺术家及建筑师对新建筑形式进行多方探索,较重要的流派有、、、。
9.“新陈代谢派”的主要成员有,体现其观点的代表作是。
10..二次大战后的建筑思潮之一是讲求“个性”与“象征”的倾向,究其手段,大致有三:、、。
93年1.古代希腊晚期,纪念性建筑中产生集中式构图型制,其代表是在的和在的。
2古罗马建筑类型很多,按作用说主要分为两类:(1)(2)3.西班牙的阿尔罕布宫,他以两个互相垂直的园子为中心,从方向说向的叫其用途是以为主,向的叫,是的地方。
4.工业革命后,欧美资本主义城市的种种矛盾日益尖锐,为缓和社会矛盾,实施过一些有利的探索,其中著名的如、、。
5.意大利文艺复兴之后,出现了风格,而法国古典主义之后,则出现了风格。
6. 一次大战后“风格派”在建筑方面有代表性的是利特维德设计的在的地方的一所。
7.“表现派”的代表性作品爱因斯坦天文台是建筑师的作品。
8.法国资产阶级革命时期曾出现了一些激进的建筑师,力图标新立异,王室建筑师和院士是其中最突出的,其建筑方案多采用。
9.从格罗皮乌斯与梅耶设计的发古斯工厂中可以看到一些新的建筑形式美,表现在:(1)(2)(3)(4)(5)94年1.古希腊雅典卫城上的主要建筑物是、、、,还有的塑像,卫城建筑的总负责人是。
北京建筑工程学院1992年中国建筑史部分一,绘图或用文字说明下列术语:(每题4分共20分)1,密檐式塔2,梭柱3,覆盆和鼓镜4,阙5,旋子彩画二,从下列三座古建筑中,任选两座,分别绘出其透视图或主要立面图,并注明其建造朝代和地点。
(每题5分共10分)1,佛光寺大殿2,晋祠圣母殿3,佛宫寺释迦塔三,列举三种我国有关建筑方面的古代著作,分别说明其成书时代,主要内容和作者。
(十分)四,从下列两座城市中任选一个绘出其平面示意图,并分析其城市规划布局的特点。
(10分)1,唐长安城2,明清北京城外国建筑史部分五,填空题(每空0.5分共20分)1,古埃及第一座石头的多层金字塔是在____________的____________金字塔,以后金字塔的形制不断探索,终于在____________建造了代表性的三大金字塔____________,____________,____________。
2,古罗马公共浴场的主要成就表现在______________________________________________ ______________________________________________________________________________。
3,中世纪西欧和东欧的宗教建筑在型制,结构,艺术上分为两个建筑体系,在东欧发展了_____________________的_____________________结构和_______________________型制。
在西欧发展了______________________的______________________型制和结构,4,《建筑十书》《论建筑》《建筑四书》《五种柱式规范》的作者分别为____________,____________,____________和____________。
5,英国杰出的古典主义者____________设计的在___________的成为英国资产阶级革命的纪念碑。
北京住建委面试试题及答案一、单项选择题1. 根据《中华人民共和国城乡规划法》,城市规划的制定和实施应当遵循以下哪项原则?A. 经济发展优先B. 社会公共利益优先C. 个人利益优先D. 企业利益优先答案:B2. 下列哪项不是建筑工程质量监督的内容?A. 工程质量的检查B. 工程进度的监督C. 工程安全措施的检查D. 工程成本的控制答案:D3. 在城市规划中,对于历史文化遗产的保护应当采取以下哪种措施?A. 拆除重建B. 原址保护C. 迁移他处D. 限制使用答案:B二、多项选择题4. 根据《中华人民共和国建筑法》,建筑工程安全生产管理应包括哪些方面?A. 安全生产责任制度B. 安全教育培训C. 安全事故应急预案D. 安全生产检查答案:A, B, C, D5. 下列哪些属于城市绿化的范畴?A. 公园绿地B. 居住区绿地C. 工业区绿地D. 交通设施绿地答案:A, B, D三、判断题6. 建筑工程竣工后,建设单位应当组织设计、施工、工程监理等有关单位进行竣工验收。
答案:正确7. 任何单位和个人都有权对违反城乡规划的行为进行举报或者控告。
答案:正确四、简答题8. 简述建筑工程质量管理的重要性。
答案:建筑工程质量管理是确保工程安全、使用功能、经济合理和环境美观的重要环节。
它直接关系到人民生命财产安全、工程的耐久性和可靠性,以及投资效益的最大化。
通过有效的质量管理,可以预防和减少工程事故,提高工程质量,满足使用者的需求,促进建筑行业的健康发展。
9. 阐述城市绿化的意义。
答案:城市绿化对于改善城市生态环境、提升城市居民生活质量具有重要意义。
它能够吸收空气中的有害物质,减少噪音污染,调节城市气候,增加空气湿度,提升城市景观美感,为居民提供休闲和娱乐的场所。
此外,城市绿化还有助于提升城市形象,吸引投资和旅游,促进经济发展。
五、案例分析题10. 某市住建委在对一建筑工程项目进行质量检查时,发现施工单位使用了不合格的建筑材料。
1992一、名词解释1、营造法式2、明柎3、落地罩4、5、一颗印住宅6、古典煮式7、尖券8、巴洛克建筑9、城市居住单元二、绘图比较1、喇嘛塔与金刚宝座塔三、简述特点1、太原晋祠圣母殿平面特点2、山西应县木塔结构特点3、北京颐和园布局特点4、试述欧洲“功能纹”制作特点5、“象纹”制作手法四、明清两代主要砖石建筑的成就展现在哪些方面五、中国近代建筑如何受西方建筑的影响六、简述“有机建筑”制作特征1993一、比较1、中国古典园林与西方古典园林2、《营造法式》与《建筑十书》3、折衷主义与浪漫主义4、唐长安与汴梁(开封城)二、分析1、拉萨布达拉宫2、巴黎圣母院3、贝聿铭创作思想4、南京中山陵三、绘图注释1、罗马万神庙剖面2、独乐寺观音阁剖面3、巴塞罗那博览会德国馆平面4、北京天坛祈年殿立面四、看法1、你对引进外国建筑理论的看法2、你认为中国传统建筑哪些西方可以学习1994一、说明特点1、唐代长安城2、苏州拙政园3、中山陵4、泰吉玛哈尔陵5、流水别墅二、绘图1、悉尼歌剧院造型2、古希腊雅典卫城总平面3、巴黎圣母院立面4、宋代屋顶举折图5、北京天安门立面三、问答1、佛光寺大殿室内艺术空间处理2、文丘里R的创作思想及其作品介绍3、中西古代建筑文化的比较1995一、基础理论1、简述建筑起源2、中国古代建筑的结构原理是什么3、绘一汉代明器,说明汉代建筑风格4、绘一哥特式建筑,说明哥特式建筑风格5、中、西古典园林艺术的比较二、实际只是问题1、为什么要保护古建筑2、中国古典园林主要用石有哪几种3、巴黎埃菲尔铁塔的建造年代、高度、结构特点及设计者4、简述中国古建筑在世界的地位和影响5、从圆明园的兴毁谈自己的感想三、综合分析1、举一后现代主义建筑的实例(绘图),论述其建筑理论及主要观点2、从元大都至明清北京故宫的发展过程,分析我国古代城市规划思想及其发展变化3、绘图分析南京中山陵的创作思想,兼论中国近代建筑的主要思潮1996一、基本概念1、中国古建筑群体布景原则是什么2、举例说明中国古建筑的移柱法与减柱法3、什么是巴西利卡建筑4、巴洛克风格特点是什么5、西方现代建筑的主要特征是什么二、基本知识题1、近代中国城市产生了哪些变化2、窑洞住宅的产生环境、类型、优缺点(绘图)3、4、写出西方现代建筑四位大师,并各列出其主要作品5、绘出古罗马拱顶结构的四种形式三、综和分析1、以明十三陵为例,综述明代陵墓的设计思想和时代艺术风格2、绘图分析北京天坛祈年殿的技术和艺术价值3、分析伦敦“水晶宫”和法国埃菲尔铁塔,并论述它们对现代建筑产生的影响4、文艺复兴时期建筑产生的历史背景,选举实例说明其建筑风格特征1997一、中国古代建筑的结构特征是什么二、曲阜孔庙的独特形制是什么三、中国古代园林的设计思想是什么四、分析明清北京故宫,论述中国建筑布局原则五、绘图分析哥特式建筑的艺术风格六、绘图分析圣马可广场七、包豪斯校舍的特点是什么八、论述第二次世界大战后建筑设计的主要思想1998一、名词解释1、副阶周匝2、石窟3、窑洞住宅4、欧洲古典式建筑5、美国芝加哥学派二、比较1、营造学与《营造法式》2、全厢斗底槽与分心(身)槽3、喇嘛塔与金刚宝座塔4、巴洛克与洛可可5、粗野主义与典雅主义三、绘图说明其特征1、唐长安城2、中国古典园林(私家园林为例)3、希腊(平、立面)四、论述西方四位现代建筑运动大师的共同主张,并展望当今中国建筑发展的趋势1999一、填空1、拜占庭建筑继承了的建筑遗产,同时吸取了等地的经验,形成了自己独特的建筑体系。
2017年相关知识考试题进群720788771下载规划师考题及讲解、加微信jhc77823获取更多考试信息及资料一、单项选择题(共80题,每题1分。
每题的备选项中,只有一个最符合题意)。
17-1、关于中国古代建筑天坛哪项是正确的()。
A、建筑用于祭祖B、建筑建于明末清初C、建筑群为二重垣D、形式为南圆北方17-2、下列关于西方古典建筑风格的表述正确的是()。
A、卢浮宫东立面是浪漫主义的作品B、凡尔赛宫是洛可可建筑作品C、德国柏林宫廷剧院是希腊复兴的建筑作品D、法国巴黎万神庙是哥特复兴的建筑作品17-3、下列哪项不属于一般建筑物防灾设计考虑的内容()。
A、地震B、火灾C、地面沉降D、电磁辐射17-4、依据我国现行的《住宅设计规范》,单人卧室的最小面积为()。
A、4平方米B、5平方米C、6平方米D、7平方米17-5、下列关于工业建筑总平面设计的表述,哪项是错误的?()。
A、以人为尺度B、应考虑材料的输入输出C、功能单元应包括生活单元D、生产流水线包括纵向、横向和环形三种方式17-6、下列关于建设项目场地选择的要求,哪项是错误的?()。
A、应尽可能利用自然资源条件B、场地边界外形应尽可能简单C、应了解场地的冻土深度D、不能在8度地震区选址17-7、工业建筑的适宜坡度是()。
A、0.05%-0.1%B、0.15%-0.4%C、0.5%-2.0%D、3.0%-5.0%17-8、下列关于大型工业项目总平面布局的表述,哪项是错误的?()。
A、综合交通组织要考虑不同运输方式的车流衔接B、应方便内部车辆及过境车辆的疏解和导入C、考虑人车分流,非机动车宜有专线D、车流应尽量避免在人流活动集中地段通行进群720788771下载规划师考题及讲解、加微信jhc77823获取更多考试信息及资料17-9、在砖混建筑横向承重体系中,荷载的主要传递路线是()。
A、屋顶-板-横墙-基础B、屋顶-板-横墙-地基C、板-横墙-基础-地基D、板-梁-横墙-基础17-10、下列哪项不属于建筑的八大构件?()。
模拟试题序号 判断题1.文物保护单位所在地的国民经济和社会发展规划、城乡建设发展规划应当纳入保护规划,应当与相关的生态保护、环境治理、土地利用等各类专门性规划相衔接。
A. 对B. 错2.国家鼓励文物保护规划理论和技术的研究、创新与运用,提倡多学科结合,提高文物保护单位保护规划的编制水平。
A. 对B. 错3.文物保护单位保护规划是专业性很强的工作,文物保护单位的管理者不宜参与保护规划的编制的全过程。
A. 对B. 错4.为加强文物保护单位保护规划编制和审批的管理,根据《中华人民共和国文物保护法》、《中华人民共和国文物保护法实施条例》及其它相关法律法规,制定《全国重点文物保护单位保护规划编制审批办法》。
A. 对B. 错5.已编制过文物保护规划的文物保护单位不得再次申请文物保护规划立项。
A. 对B. 错6.全国重点文物保护单位保护规划应当在国家文物行政主管部门指导下,由所在地的省级以上人民政府组织编制。
A. 对B. 错7.全国重点文物保护单位保护规划应当在省级文物行政部门指导下,由所在地的县级以上人民政府组织编制。
A. 对B. 错8.在保护规划中,重点保护区是指《文物保护法》中的保护范围,一般保护区是指《文物保护法》中的建设控制地带。
9.在考古调查、勘探工作尚未全面展开的情况下,编制保护规划应当分析文物分布的密集区、可能分布密集区和可能分布区,以此确定文物保护单位的分布范围、重点保护对象和不同的区划等级或类别。
A. 对B. 错10.保护规划中,划定建设控制地带的目的是对周边的建设活动进行控制,因此耕地等非建设用地不应被划入建设控制地带。
A. 对B. 错11.在编制保护规划时,根据文物保护单位的价值与现状评估,针对破坏因素,结合保护目标,制定保护措施。
A. 对B. 错12.在保护规划制定保护措施时,一般保护措施应满足文物的保存、管理、安防和日常维护要求。
特殊保护措施必须经由专业技术论证,要考虑可逆性。
涉及防火、防洪、防震等急性灾变的保护措施应制定应急措施预案。
历史建筑保护与修复考试试题一、选择题1. 下列哪项不是历史建筑保护的目标?A. 保留历史遗迹的原汁原味B. 增加历史建筑的实用性C. 维护历史建筑的材料和结构完整性D. 促进历史建筑的可持续发展2. 文物保护单位需要获得哪个部门的批准才能进行修缮工作?A. 文物局B. 地方政府C. 社区居民委员会D. 历史建筑保护组织3. 下列哪个原则是历史建筑修复过程中必须遵守的?A. 以修复的过程和结果为第一要素B. 尽可能多地恢复建筑的历史元素C. 忽略建筑的功能需求D. 不考虑修复成本4. 在历史建筑修复过程中,如何处理建筑结构的缺陷?A. 忽略结构缺陷,只关注建筑的外观B. 统一使用现代材料进行结构加固C. 保留原有材料,进行必要的结构修复D. 完全重建建筑结构5. 哪个国际组织主要负责保护世界文化遗产?A. 联合国教科文组织B. 世界遗产保护协会C. 国际文化遗产组织D. 世界历史建筑保护联盟二、简答题1. 请简要描述历史建筑保护的意义和价值。
历史建筑保护的意义和价值在于保留和传承人类历史文化的瑰宝。
历史建筑代表着特定时期的建筑风格、材料运用和施工技术,是历史和文化的见证。
通过保护历史建筑,可以使后代了解、研究和欣赏历史的积淀,促进文化交流和对话。
此外,历史建筑也可以成为旅游景点,为社会经济发展和就业创造机会。
2. 请简要介绍历史建筑保护中常见的材料和技术。
常见的历史建筑保护材料包括石材、砖材、木材、水泥和玻璃等。
在修复历史建筑时,常采用的技术包括:清洗和除污、缺损修复、结构加固、抗震加固、防潮防水、防火处理、彩绘修复等。
具体的选择取决于建筑的特点、历史价值和修复目标。
三、论述题请从以下两个方面论述历史建筑保护与修复在当今社会中的挑战和重要性:1. 挑战:- 历史建筑的老化和损坏:许多历史建筑经过数百年的风雨侵蚀,材料老化和结构损坏严重,保护和修复工作面临巨大挑战。
- 城市化和发展压力:城市建设和经济发展对历史建筑保护造成了压力,很多历史建筑遭到拆除或改建的威胁。
建筑历史保护专家面试问题及答案面试问题1:请简要介绍一下您的背景和经验,以及为什么对建筑历史保护感兴趣。
答案:我的名字是XXX,我在建筑史研究和保护领域有XX年的经验。
在我求学期间,我专攻建筑历史学,并获得了建筑学士学位。
为了进一步深入研究和保护建筑遗产,我继续攻读了建筑历史学硕士学位。
在过去的工作中,我参与了多个历史建筑的保护项目,积累了丰富的实践经验。
我对建筑的历史背景、文化价值以及保护技术有着浓厚的兴趣,希望能够为保护人类宝贵的建筑遗产做出贡献。
面试问题2:请谈谈您对建筑历史保护的理解和认知。
答案:建筑历史保护是一项重要的文化事业,它致力于保护和传承人类历史遗留下的宝贵建筑文化遗产。
建筑作为人类文明的重要见证,不仅仅是建筑物本身,更是一个国家、一个地区甚至一个文化的象征。
通过建筑历史保护,我们可以更好地理解过去的文明成就,感受不同历史阶段的文化风貌,为后代传承留下重要的物质和精神财富。
面试问题3:在您之前的工作中,您参与过哪些规模较大的建筑历史保护项目?请谈谈其中的挑战和收获。
答案:在我之前的工作中,我有幸参与了某市某著名历史建筑的保护工作。
这座建筑有着悠久的历史,代表着该市的文化和传统。
在保护过程中,我们面临着不少挑战,例如建筑结构的老化、文物损毁、人为破坏等。
为了保护这座建筑的完整性和真实性,我们利用先进的技术手段进行了建筑结构检测,修复和保护文物。
在经过团队的共同努力下,我们成功地保护了这座历史建筑,并向公众展示了其独特的价值和魅力。
这次经历让我深刻地认识到建筑历史保护这一事业的重要性,并对工作充满了热情和动力。
面试问题4:在您的看法中,建筑历史保护的成功关键是什么?答案:在我看来,建筑历史保护的成功关键在于综合性的考虑。
首先,我们需要对建筑物进行全面的历史研究和文物价值评估,确保对其历史特点和文化价值的准确理解。
其次,科学的保护规划和方法必不可少,包括适当的修复和维护,保护材料的选择等。
2017年北京建筑大学硕士研究生入学考试
建筑历史遗产保护规划与设计
复试理论综合真题(满分150分)
一、选择题(单选3’*10)
1、宋代屋顶构造
A.举架
B.举折
C.升举
2、故宫太和门的屋顶形式是()
A.庑殿式
B.歇山式
C.悬山式
D.复合式
3、著有《疯狂纽约》《S,M,L,XL》,并创建OMA事务所的城市理论家在中国的设计是()
A.国家大剧院
B.建外SOHO
C.
D.中央电视台大楼
4、清代斗拱所具备的作用不体现在以下哪个方面?
A.材分制度
B.装饰艺术
C.结构支撑
D.模数
5、提出“形式服从功能”的美国芝加哥学派代表人物是()
A.格罗皮乌斯
B.赖特
C.
D.沙利文
二、填空题(2’*10)
1、雅典卫城建筑群中以女神柱作为廊柱的建筑是。
2、在代以前建筑使用偶数开间,只有都采用奇数开间。
3、佛罗伦萨的圣母百花大教堂最后是由建成的,使用了作为穹顶的壳体材料。
4、阐述“巧于因借,精在体宜”的古代园林理论著作是由写的。
5、清代木构架建筑营造的模数制度将材分为等。
6、北京颐和园中的园中园“谐趣园”是仿照的园。
10、南京中山陵的设计者是,它是在口号的号召下建成的。
三、画图题(5’*4)
1、梭柱和卷杀
2、一斗三升
3、拉丁十字
4、古希腊柱式
四、简答题,并配简图进行说明(10’*4)
1、古罗马建筑的结构、功能、空间艺术有哪些特征?
2、古代木构架建筑屋顶构件“踩步金”是什么?
3、北京四合院是如何在建筑和空间层次上体现等级制度的?
4、“推山”构造是什么?
五、论述题(20’,二选一)
1、谈谈你是如何看待“风格式修复”的?
2、北京建筑师在旧城改造时对。