VS1高压真空断路器
- 格式:doc
- 大小:4.47 MB
- 文档页数:29
VS1-12户内高压真空断路器,是三相交流50HZ 、额定电压为12 kV的户内高压配电装置. 可作接通线路,切断故障电流和保护功能.尤其适合于额定工作电流下的频繁操作,如投、切电容器组、控制电炉变压器和高压电机等,也可作为联络使用. VS1-12高压真空断路器,采用操动机构与断路器本体一体式设计,既可做为固定安装单元,也可配有专用推进机构,组成手车单元作用。
1、结构特点:VS1-12高压真空断路器,主体部分设置在由环氧树脂采用APG工艺浇注而成的绝缘桶内,这种结构能有效防止外力冲击,因环境污秽等外部因素对真空灭弧室的影响. 断路器配用ZMD1410系列中封式陶瓷或玻璃真空灭弧室,其铜铬触头具有环状纵磁场触头结构,开断能力强,截流水平低,电寿命长. 真空灭弧室置与绝缘捅内,使断路器具有免维护,无污染,无爆炸危险,噪音低, 绝缘水平高. 操动机构为弹簧储能操作机构,机构箱内装有合闸单元,前方面板上设有分、合按钮,手储能操作孔、弹簧储能状态指示牌等.机构与本体前后布置成一体,传动效率高,操作性能好,适用于频繁操作,可装于移开式或固定式开关柜.2、工作原理:VS1-12高压真空断路器,合闸所需能量由弹簧储能机构供给, 储能机构可以由外部电源驱动电机完成,也可以由手动储能把手储能. 储能完成后, 储能指示牌显示“已储能”.同时, 储能切换开关切断储能电机电源, 断路器处于待合闸状态. 在合闸操作中,不论用手按下“合闸”按钮或远方操作使合闸电磁铁动作,均可使断路器合闸. 合闸动作完成后, 储能指示牌、储能切换开关复位, 电机电源接通. 电机再次储能. 合闸指示牌显示“合”.辅助开关接点转换. 在分闸操作中, 不论用手按下“分闸”按钮或远方操作使合闸电磁铁动作, 均可使断路器分闸, 分闸动作完成后, 分闸指示牌显示“合”.辅助开关接点转换. 同时在分闸操作中,计数器自动进一位,可从面板观察窗看到相应的数字.3、防误连锁:VS1-12高压真空断路器,合闸操作完成后,在断路器未分闸时, 断路器将不能再次合闸. 断路器合闸操作完成后,如合闸信号未及时去掉, 断路器内部防跳控制回路,将切断合闸回路防止多次重合闸.手车断路器在未到实验位置或工作位置时,断路器不能合闸.如果选用闭锁断路器,在二次控制电路未接同情况下, 闭锁电磁铁将防止4、断路器符合的标准: 断路器符合GB1984-2003《户内交流高压断路器》,IEC62271的相关要求.1998年涌过了原国家机械部、电力工业部鉴定.5、断路器特点: 该真空断路器运行性能稳定、开断电流大、设计合理、二次接线方便,很适合我国电网运行.6、使用环境条件: 海拔高度: 1000m及以下(超海拔时,要特别说明)环境温度: —15℃~+40℃相对湿度: 日平均值≤95%月平均值≤95%使用条件:无尘埃、烟、腐蚀性和可然性气体、蒸汽、或烟雾的污染及剧裂震动的场合, 辅助电路中感应的电磁干扰的幅值≤1.6。
一、VS1真空断路器原理图二、以下是两种vs1真空断路器介绍:VS1真空断路器- 西安森源珠海自动化公司西安森源配电自动化设备有限公司提供的VS1真空断路器是空气绝缘的户内式开关设备元件。
断路器符合GB1984、DL/T403及IEC60056等标准的规定。
在正常使用条件下,只要在断路器的技术参数范围内,它就可以保证安全、可靠地运行于相应电压等级的电网中。
VS1真空断路器可在工作电流范围内进行频繁的操作或多次开断短路电流;机械寿命可高达30,000次,满容量短路电流开断次数可达50次。
VS1真空断路器适于重合闸操作并有极高的操作可靠性与使用寿命。
VS1真空断路器(普通型)采用了立式的绝缘筒防御各种气候的影响;且在维护和保养方面,通常仅需对操作机构做间或性的清扫或润滑。
VS1真空断路器(极柱型)采用了固体绝缘结构—集成固封极柱,实现了免维护。
VS1真空断路器在开关柜内的安装形式既可以是固定式,也可以是可抽出式的,还可安装于框架上使用。
一、断路器主体结构●普通型断路器主体部分导电回路设置在用绝缘材料制成的圆柱状绝缘筒内。
这种结构可以使得真空灭弧室免受外界环境影响和机械的损害。
断路器主体安装在做成托架状的断路器操动机构外壳的后部。
视使用场所情况,可在绝缘筒上增装一个防尘盖(作为附加装置),这种设计有助于防止闪络的发生,并作为断路器内部污秽的附加保护。
在实际使用当中,额定电流1250A 及以下等级在运行时可不必去除,额定电流1600A及以上等级运行时则必须去除。
●极柱型断路器极柱设计为圆柱形,安装在作成托架状的操作机构外壳的后部。
断路器极柱的导电部分封闭在环氧树脂套筒内,以免受冲击和外部环境影响。
二、断路器操动机构的结构操动机构为弹簧储能操作机构,一台操动机构操作三相真空灭弧室。
操动机构主要包括两个储能用拉伸弹簧、合闸储能装置、传力至各相灭弧室的连板、拐臂以及分闸脱扣装置,此外,在框架前方还装有诸如储能电动机、脱扣器、辅助开关、控制设备、分合闸按钮、手动储能轴、储能状态指示牌、合分闸指示牌等部件。
一、VS1真空断路器原理图二、以下是两种vs1真空断路器介绍:VS1真空断路器- 西安森源珠海自动化公司西安森源配电自动化设备有限公司提供的VS1真空断路器是空气绝缘的户内式开关设备元件。
断路器符合GB1984、DL/T403及IEC60056等标准的规定。
在正常使用条件下,只要在断路器的技术参数范围内,它就可以保证安全、可靠地运行于相应电压等级的电网中。
VS1真空断路器可在工作电流范围内进行频繁的操作或多次开断短路电流;机械寿命可高达30,000次,满容量短路电流开断次数可达50次。
VS1真空断路器适于重合闸操作并有极高的操作可靠性与使用寿命。
VS1真空断路器(普通型)采用了立式的绝缘筒防御各种气候的影响;且在维护和保养方面,通常仅需对操作机构做间或性的清扫或润滑。
VS1真空断路器(极柱型)采用了固体绝缘结构—集成固封极柱,实现了免维护。
VS1真空断路器在开关柜内的安装形式既可以是固定式,也可以是可抽出式的,还可安装于框架上使用。
一、断路器主体结构●普通型断路器主体部分导电回路设置在用绝缘材料制成的圆柱状绝缘筒内。
这种结构可以使得真空灭弧室免受外界环境影响和机械的损害。
断路器主体安装在做成托架状的断路器操动机构外壳的后部。
视使用场所情况,可在绝缘筒上增装一个防尘盖(作为附加装置),这种设计有助于防止闪络的发生,并作为断路器内部污秽的附加保护。
在实际使用当中,额定电流1250A及以下等级在运行时可不必去除,额定电流1600A及以上等级运行时则必须去除。
●极柱型断路器极柱设计为圆柱形,安装在作成托架状的操作机构外壳的后部。
断路器极柱的导电部分封闭在环氧树脂套筒内,以免受冲击和外部环境影响。
二、断路器操动机构的结构操动机构为弹簧储能操作机构,一台操动机构操作三相真空灭弧室。
操动机构主要包括两个储能用拉伸弹簧、合闸储能装置、传力至各相灭弧室的连板、拐臂以及分闸脱扣装置,此外,在框架前方还装有诸如储能电动机、脱扣器、辅助开关、控制设备、分合闸按钮、手动储能轴、储能状态指示牌、合分闸指示牌等部件。
VS1真空断路器名称:VS1真空断路器型号:VS1VS1真空断路器是三相交流50HZ 、额定电压为12 kV的户内高压配电装置. 可作接通线路切断故障电流和保护功能.尤其适合于频繁操作如投、切电容器组、控制电炉变压器和高压电机等也可作为联络使用.佳吉电气O135********袁详细介绍1、概述:VS1真空断路器是三相交流50HZ、额定电压为12 kV的户内高压配电装置.可作接通线路切断故障电流和保护功能.尤其适合于频繁操作如投、切电容器组、控制电炉变压器和高压电机等也可作为联络使用.2、结构特点:断路器主体部分设置在由环氧树脂采用APG工艺浇注而成的绝缘桶内这种结构能有效防止外力冲击因环境污秽等外部因素对真空灭弧室的影响.断路器配用ZMD1410系列中封式陶瓷或玻璃真空灭弧室其铜铬触头具有环状纵磁场触头结构开断能力强截流水平低电寿命长.真空灭弧室置与绝缘捅内使断路器具有免维护无污染无爆炸危险噪音低绝缘水平高.佳吉电气专业生产操动机构为弹簧储能操作机构机构箱内装有合闸单元前方面板上设有分、合按钮手储能操作孔、弹簧储能状态指示牌等.机构与本体前后布置成一体传动效率高操作性能好适用于频繁操作可装于移开式或固定式开关柜.3、工作原理:断路器合闸所需能量由弹簧储能机构供给储能机构可以由外部电源驱动电机完成也可以由手动储能把手储能.储能完成后储能指示牌显示“已储能”.同时储能切换开关切断储能电机电源断路器处于待合闸状态.在合闸操作中不论用手按下“合闸”按钮或远方操作使合闸电磁铁动作均可使断路器合闸.合闸动作完成后储能指示牌、储能切换开关复位电机电源接通.电机再次储能.合闸指示牌显示“合”.辅助开关接点转换.在分闸操作中不论用手按下“分闸”按钮或远方操作使合闸电磁铁动作均可使断路器分闸分闸动作完成后分闸指示牌显示“合”.辅助开关接点转换.同时在分闸操作中计数器自动进一位可从面板观察窗看到相应的数字.4、防误连锁:合闸操作完成后在断路器未分闸时断路器将不能再次合闸.断路器合闸操作完成后如合闸信号未及时去掉断路器内部防跳控制回路将切断合闸回路防止多次重合闸.手车断路器在未到实验位置或工作位置时断路器不能合闸.如果选用闭锁断路器在二次控制电路未接同情况下闭锁电磁铁将防止手动合闸.5、断路器符合的标准:断路器符合GB1984-2003《户内交流高压断路器》IEC62271的相关要求.1998年涌过了原国家机械部、电力工业部鉴定.6、断路器特点:该真空断路器运行性能稳定、开断电流大、设计合理、二次接线方便很适合我国电网运行.7、使用环境条件:海拔高度:1000m及以下(超海拔时,要特别说明)环境温度:--15℃~+40℃相对湿度:日平均值≤95%月平均值≤95%无尘埃、烟、腐蚀性和可然性气体、蒸汽、或烟雾的污染及剧裂震动的场合辅助电路中感应的电磁干扰的幅值≤1.6。
高压真空断路器vs1手动优先开关原理高压真空断路器VS1手动优先开关原理引言:高压真空断路器VS1手动优先开关是电力系统中常见的一种开关设备,其原理是通过手动操作实现对电路的开关和分合。
本文将对高压真空断路器VS1手动优先开关的原理进行详细介绍。
一、高压真空断路器的原理高压真空断路器是一种在高压电路中用于开断和合闸的电器设备。
其主要原理是利用真空断路器的特殊结构和真空的绝缘性能来实现电路的开断和合闸。
1.1 真空断路器的结构真空断路器主要由断路器本体、真空瓷瓶和操作机构三部分组成。
断路器本体包括固定触头、活动触头、触头支架、隔离开关、真空瓷瓶等部件。
真空瓷瓶是真空断路器的关键部件,其内部充填有高度真空的绝缘介质。
1.2 真空断路器的工作原理当真空断路器处于闭合状态时,固定触头和活动触头通过触头支架连接在一起,电流可以在触头之间流动。
当需要断开电路时,通过操作机构对断路器进行操作,使得活动触头和固定触头分离,实现电路的断开。
在断开时,真空瓷瓶内部的真空状态能够保证电弧在触头分离的瞬间得到有效的灭弧,从而实现电路的断开。
二、VS1手动优先开关的原理VS1手动优先开关是一种根据人工操作优先开关和自动开关的要求设计的一种开关装置。
其主要原理是通过手动操作优先开关来控制电流的通断或转换。
2.1 VS1手动优先开关的结构VS1手动优先开关主要由手动机构、电控机构和触发机构三部分组成。
手动机构用于手动操作开关,电控机构用于接收外部信号并控制开关的运行,触发机构用于触发开关的动作。
2.2 VS1手动优先开关的工作原理当手动操作优先开关时,手动机构通过操纵杆或按钮等方式对开关进行操作。
手动机构实际上是通过机械传动将人的操作力传递给开关,从而实现电流的通断或转换。
在手动操作过程中,电控机构接收到手动机构的信号,并根据设定的逻辑条件来判断是否需要进行自动开关操作。
如果需要进行自动开关操作,电控机构会触发触发机构,从而实现开关的动作。
一、VS1真空断路器原理图二、以下是两种vs1真空断路器介绍:VS1真空断路器- 西安森源珠海自动化公司西安森源配电自动化设备有限公司提供的VS1真空断路器是空气绝缘的户内式开关设备元件。
断路器符合GB1984、DL/T403及IEC60056等标准的规定。
在正常使用条件下,只要在断路器的技术参数范围内,它就可以保证安全、可靠地运行于相应电压等级的电网中。
VS1真空断路器可在工作电流范围内进行频繁的操作或多次开断短路电流;机械寿命可高达30,000次,满容量短路电流开断次数可达50次。
VS1真空断路器适于重合闸操作并有极高的操作可靠性与使用寿命。
VS1真空断路器(普通型)采用了立式的绝缘筒防御各种气候的影响;且在维护和保养方面,通常仅需对操作机构做间或性的清扫或润滑。
VS1真空断路器(极柱型)采用了固体绝缘结构—集成固封极柱,实现了免维护。
VS1真空断路器在开关柜内的安装形式既可以是固定式,也可以是可抽出式的,还可安装于框架上使用。
一、断路器主体结构●普通型断路器主体部分导电回路设置在用绝缘材料制成的圆柱状绝缘筒内。
这种结构可以使得真空灭弧室免受外界环境影响和机械的损害。
断路器主体安装在做成托架状的断路器操动机构外壳的后部。
视使用场所情况,可在绝缘筒上增装一个防尘盖(作为附加装置),这种设计有助于防止闪络的发生,并作为断路器内部污秽的附加保护。
在实际使用当中,额定电流1250A及以下等级在运行时可不必去除,额定电流1600A及以上等级运行时则必须去除。
●极柱型断路器极柱设计为圆柱形,安装在作成托架状的操作机构外壳的后部。
断路器极柱的导电部分封闭在环氧树脂套筒内,以免受冲击和外部环境影响。
二、断路器操动机构的结构操动机构为弹簧储能操作机构,一台操动机构操作三相真空灭弧室。
操动机构主要包括两个储能用拉伸弹簧、合闸储能装置、传力至各相灭弧室的连板、拐臂以及分闸脱扣装置,此外,在框架前方还装有诸如储能电动机、脱扣器、辅助开关、控制设备、分合闸按钮、手动储能轴、储能状态指示牌、合分闸指示牌等部件。
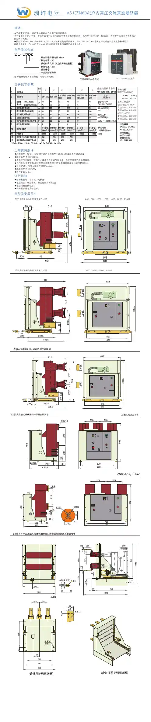
1、 概述ZN63A(VS1)型户内高压真空断路器(以下简称断路器)是用于12KV 电力系统的户内开关设备,作为电网设备、工矿企业动力设备的保护和控制单元.由于真空断路器的特殊优越性,尤其适用于要求额定工作电流的频繁操作,或多次开断短路电流的场所。
断路器采用操动机构与断路器本体一体式设计,既可做为固定安装单元,也可配用专用推进机构,组成手车单元使用,其中固定式断路器可以增加相应的连锁,以满足配XGN2、GG1A 等固定柜的需要。
2、型号的表达方式V S 1 - 12/真空断路器森源开关产品设计序号额定短路开断电流KA 额定电流A 额定电压KV3、产品依据标准断路器符合GB1984-89《交流高压断路器》、JB3855-1996《3。
6-40.5KV 户内交流高压真空断路器》、DL/T403-2000《12KV-40.5KV 高压真空断路器订货技术条件》标准要求,并符合IEC56(87出版物)的相关要求。
4、使用环境条件a) 环境温度最高温度:+40℃ 最低温度:-15℃; b) 环境温度日平均相对湿度:≤95% 月平均相对湿度:≤90%日平均蒸汽压:≤2。
2×10-3MPa 月平均蒸汽压:≤1。
8×10—3 Mpa ;c ) 海拔高度:不超过1000m;d ) 地震烈度不超过8度;e) 使用场所无滴水,无易燃和爆炸危险,无化学腐蚀性气体以及无剧烈震动。
5。
主要规格及技术参数 主要规格及技术参数见表1*注:4000A需强制风冷6。
产品结构及工作原理6。
1 主体结构断路器主体部分设置在由环氧树脂采用APG工艺浇注而成的绝缘筒内,这种结构能有效地防止包括外力冲击、污秽环境等外部因素对真空灭弧室的影响。
断路器主体安装在断路器框架后部,与操动机构连接成一个整体。
断路器在合闸位置时主回路电流路径:(参见图2)上出线座27经固定在灭弧室上的上支架26到真空灭弧室内部静触头,经动触头及其连接的导电夹、软连接,至下支架30到下出线座31。
VS1-12户内高压真空断路器,是三相交流50HZ 、额定电压为12 kV的户内高压配电装置. 可作接通线路,切断故障电流和保护功能.尤其适合于额定工作电流下的频繁操作,如投、切电容器组、控制电炉变压器和高压电机等,也可作为联络使用. VS1-12高压真空断路器,采用操动机构与断路器本体一体式设计,既可做为固定安装单元,也可配有专用推进机构,组成手车单元作用。
1、结构特点:VS1-12高压真空断路器,主体部分设置在由环氧树脂采用APG工艺浇注而成的绝缘桶内,这种结构能有效防止外力冲击,因环境污秽等外部因素对真空灭弧室的影响. 断路器配用ZMD1410系列中封式陶瓷或玻璃真空灭弧室,其铜铬触头具有环状纵磁场触头结构,开断能力强,截流水平低,电寿命长. 真空灭弧室置与绝缘捅内,使断路器具有免维护,无污染,无爆炸危险,噪音低, 绝缘水平高. 操动机构为弹簧储能操作机构,机构箱内装有合闸单元,前方面板上设有分、合按钮,手储能操作孔、弹簧储能状态指示牌等.机构与本体前后布置成一体,传动效率高,操作性能好,适用于频繁操作,可装于移开式或固定式开关柜.2、工作原理:VS1-12高压真空断路器,合闸所需能量由弹簧储能机构供给, 储能机构可以由外部电源驱动电机完成,也可以由手动储能把手储能. 储能完成后, 储能指示牌显示“已储能”.同时, 储能切换开关切断储能电机电源, 断路器处于待合闸状态. 在合闸操作中,不论用手按下“合闸”按钮或远方操作使合闸电磁铁动作,均可使断路器合闸. 合闸动作完成后, 储能指示牌、储能切换开关复位, 电机电源接通. 电机再次储能. 合闸指示牌显示“合”.辅助开关接点转换. 在分闸操作中, 不论用手按下“分闸”按钮或远方操作使合闸电磁铁动作, 均可使断路器分闸, 分闸动作完成后, 分闸指示牌显示“合”.辅助开关接点转换. 同时在分闸操作中,计数器自动进一位,可从面板观察窗看到相应的数字.3、防误连锁:VS1-12高压真空断路器,合闸操作完成后,在断路器未分闸时, 断路器将不能再次合闸. 断路器合闸操作完成后,如合闸信号未及时去掉, 断路器内部防跳控制回路,将切断合闸回路防止多次重合闸.手车断路器在未到实验位置或工作位置时,断路器不能合闸.如果选用闭锁断路器,在二次控制电路未接同情况下, 闭锁电磁铁将防止4、断路器符合的标准: 断路器符合GB1984-2003《户内交流高压断路器》,IEC62271的相关要求.1998年涌过了原国家机械部、电力工业部鉴定.5、断路器特点: 该真空断路器运行性能稳定、开断电流大、设计合理、二次接线方便,很适合我国电网运行.6、使用环境条件: 海拔高度: 1000m及以下(超海拔时,要特别说明)环境温度: —15℃~+40℃相对湿度: 日平均值≤95%月平均值≤95%使用条件:无尘埃、烟、腐蚀性和可然性气体、蒸汽、或烟雾的污染及剧裂震动的场合, 辅助电路中感应的电磁干扰的幅值≤1.6。
产品型号及含义■概述VS1(ZN63)型真空断路器是原机械部和电力部组织开发的具有国内先进水平的断路器,该断路器符合GB1984、DL403、IEC56及694等标准的规定,在工作电流范围内可进行频繁的操作或多次开断短路电流。
本断路器适合于重合闸操作并有很高的操作可靠性与使用寿命。
VS1型真空断路器在开关柜的安装形式既可以是固定式,也可以是抽出式。
■主要技术参数项目单位技术参数额定电压 kV 12额定电流 A 630、1000、1250、2000、2500额定短路开断电流 kA 20 25 31.5额定短路关合电流 kA 50 63 804s热稳定电流(有效值) kA 20 25 31.5额定动稳定电流(峰值) kA 50 63 80额定短路电流开断次数次 50额定操作顺序分-0.3s-合分-180s-合分雷电冲击耐受电压(峰值) kV 751min工频耐受电压 kV 42机械寿命次 20000额定单个电容组开断电流 A 630额定背对背电容组开断电流 A 400分合闸线圈额定操作电压 V DC220、DC110 AC220、AC110项目单位技术参数分合闸线圈功率 W 245储能电机额定电压 V DC110、DC220额定电压下储能时间 s ≤15触头开距 mm 11±1触头接触行程 mm 4±0.5相间中心距离 mm 210±0.5三相合分闸不同期性 ms ≤2触头合闸弹跳时间 ms ≤2分闸时间 ms ≤50合闸时间 ms ≤100平均分闸速度 m/s 0.9~1.2平均合闸速度 m/s 0.6~0.8每相主回路电阻μΩ≤40合闸触头接触压力 N 3200±100动静触头累积允许磨损厚度 mm 3产品简介»●结构简单●高可靠性●全面超越VS1性能及结构VS1+型户内高压真空断路器是立足于原VS1型户内高压真空断路器基础上,进行全新设计,力求实现断路器的小型化、高可靠、免维护的改进型产品。
一、产品概述VS1系列真空断路器为额定电压12kV,三相交流50Hz的高压户内开关设备,是引进瑞士ABB公司技术结合国内行业发展状况、生产能力开发制造的产品。
该产品总体结构为开关本体于操动机构,无污染、无爆炸危险,绝缘水平高。
本系列产品的操动机构为弹簧储能式,可以用电动操作,亦可用手动操作。
二、型号及含义三、结构及特点断路器主体部分设置在由环氧树脂采用APG工艺浇注而成的绝缘桶内,这种结构能有效防止外力冲击,因环境污秽等外部因素对真空灭弧室的影响。
断路器配用ZMD1410系列中封式陶瓷或玻璃真空灭弧室,其铜铬触头具有环状纵磁场触头结构,开断能力强,截流水平低,电寿命长。
真空灭弧室置与绝缘捅内,使断路器具有免维护,无污染,无爆炸危险,噪音低,绝缘水平高。
操动机构为弹簧储能操作机构,机构箱内装有合闸单元,前方面板上设有分、合按钮,手储能操作孔、弹簧储能状态指示牌等。
机构与本体前后布置成一体,传动效率高,操作性能好,适用于频繁操作,可装于移开式或固定式开关柜。
四、工作原理断路器合闸所需能量由弹簧储能机构供给,储能机构可以由外部电源驱动电机完成,也可以由手动储能把手储能。
储能完成后,储能指示牌显示“已储能”。
同时,储能切换开关切断储能电机电源, 断路器处于待合闸状态。
在合闸操作中,不论用手按下“合闸”按钮或远方操作使合闸电磁铁动作,均可使断路器合闸。
合闸动作完成后, 储能指示牌、储能切换开关复位, 电机电源接通。
电机再次储能。
合闸指示牌显示“合”。
辅助开关接点转换。
在分闸操作中, 不论用手按下“分闸”按钮或远方操作使合闸电磁铁动作, 均可使断路器分闸, 分闸动作完成后, 分闸指示牌显示“合”。
辅助开关接点转换。
同时在分闸操作中,计数器自动进一位,可从面板观察窗看到相应的数字。
五、防误连锁合闸操作完成后,在断路器未分闸时,断路器将不能再次合闸。
断路器合闸操作完成后,如合闸信号未及时去掉,断路器内部防跳控制回路,将切断合闸回路防止多次重合闸。
VSS1-12(ZN63A )型室内高压真空断路器使用说明书华仪电气有限公司VS1(ZN63)-12 型户内高压真空断路器,三相交流50Hz 定额电压为12kV电力系统的户内开关设备,作为电网设备、工矿企业动力设备的保护和控制单元。
适用于在额定工作电流下的频繁操作,或多次开断短路电流的场所。
该断路器采用操动机构与断路器本体一体式设计,既可做为固定安装单元,也可配专用推进机构,组成手车单元作用。
1.主回路采用复合绝缘,体积小,节省空间,而且能有效保护真空灭弧室受冲击和碰撞的影响。
2.真空灭弧室选用国内一流厂家,同时能根据用户要求安装国内外进口的真空灭弧室。
3 .可配KYN28A- 2 4中置柜.4.额定电流630-3150A, 额定短路开断电流20kA-31.5kA ,产品的型号颁发证书和型号使用证书齐全。
5. 机械寿命20000 次.6. 通过电容器投切电容试验,无重燃现象。
7. 能满足电压12KV 海拔4500 米高原型地区使用。
ZN63(VS1 )-1 2A 空断路器足3〜1 2kV ・5OHz= 4B 交沥t 系统中的户内西己电装董. 可供工矿企业、生电厂、亚电站中作为电SSift^r 的保护和扌空制之用. 特别ifi 用于龚 求无油化. 少檢修及步页傑扌亲作的便用炀所・ 产品可配苗在中BE 柜、双层柜、EJ 定才巨 中作为扌空制和彳呆护高压电气设备用.特点a.可 Mt •性高,在额定电流下. 允许开断次数离达1OOOO 次 在额定炬路电流下.试验开断次数50次。
b. 功能齐全* 可理想的开合电阻、容性. 感性的员我。
c •少维护・ 通常只需娈对揆动机构做少垠済扫或润滑.d. 采用了立式的绝缘套简.可防彷卩各干中环境白勺影PA. 因而.断路海可适用于各 种牛寺殊的环境条件。
e. 貝有完整的产品系列參数:捉额定电流M630A 至U34 5OA : 颔定5®路开断电流 从 2OXA 至 U5OXAf. 颔定炬路关合电濾(鮭值〉、额定动租定电流等技术卷数标;隹?S5于现行(S 家 标准规定。
1. 概述ZN63A(VS1) 型户内交流高压真空断路器以下简称断路器是三相交流额定电压的户内开关设备,可供工矿企业,发电厂及变电站作电气设施的控制和保护之用,并适用于频繁操作的场所。
断路器符合《交流高压断路器》,855-1996《3.6-40.5kV户内交流高压真空断路器》,DL403-91,《10-35KV户内交流高压断路器订货技术条件》标准要求,并符合IEC56(87出版物)的相关要求。
断路器采用操动机构与断路器本体一体式设计,既可做为固定安装单元,也可配用专用推进机构,组成手车单元使用。
2. 型号及含义3. 使用条件3.1 环境温度不高于+40℃,不低于—15℃(允许在-30℃时储运);3.2 海拔高度不超过1000m;3.2 相对温度:日平均值不大于95%,月平均值不大于90%,饱和蒸汽压日平均值不大于2.2×10Mpa,平均值不大于1.8×10 Mpa;3.4 地震热度不超过8度;3.5 没有火灾,爆炸危险,严重污秽,化学腐蚀以及剧烈震动的场所。
4. 技术参数4.1 主要规格及技术参数4.2 断路器装配调整后机械特性参数4.3 分合闸线圈参数4.4 储能电机采用永磁式单相直流电动机,操作电压允许采用交,直流电源其技术参数6. 产品结构及特点6.1 真空灭弧室断路器配用中间封接式陶瓷或玻璃真空灭弧室,采用铜铬触头材料,杯状纵磁场触头结构,其触头的电磨损速率小,电寿命长,触头的耐压水平高,介质绝缘强度稳定,弧后恢复速度快,截流水平底,开段能力强。
6.2 总体结构断路器总体结构采用操动机构和灭弧室前后布置的形式,主导电回路部分为三相落地式结构,真空灭弧室纵向安装在一个管状的绝缘筒内,绝缘筒由环氧树脂采用APG工艺浇注而成,因而它特别抗爬电。
这种结构设计大大地减小粉尘在灭弧室表面的聚积,不仅可以防止真空灭弧室受到外部因素的损坏,而且可以确保即使在湿热及严重污秽环境下也可对电压效应呈现出高阻态。
断路器在合闸位置时主回路电流路径:上出线座28经固定在灭弧室上的上支架27到真空灭弧室内部静触头,经动触头及其联接的导电夹,软连接,至下支架30,下出线座32。
由绝缘拉杆34与内部碟形弹簧33经过断路器连杆系统来完成断路器的操作运动及保持触头接触。
断路器出厂时各电流等级均装有防尘绝缘筒盖,在实际使用中额定电流1250A及以下等级运行时均可不必去除,额定电流1600A及以上等级运行时必须去除。
6.3 操动机构操动机构是平面布置的弹簧储能式操动机构,具有手动储能和电动储能功能,操动机构置于灭弧室前的机构箱内,断路器的机构箱同时用作操动机构的构架。
机构箱被四块中间隔板分成五个装配空间,期间分别装有操动机的储能部分,传动部分,脱扣部分和缓冲部分,前部设有合,分按钮,手动储能操作孔,弹簧储能状态指示牌,合分指示牌。
这样,灭弧室和机构前后布置组成一个整体,使两者更加吻合,减少不必要的中间传动环节降低了能耗和噪声,使断路器的功能更加可靠。
6.4该断路器具有寿命长,维护简单,无污染,无爆炸危险,噪音低等优点,比适用于频繁操作等条件比较苛刻的工作条件。
断路器即可装入手车式开关柜。
也可用于固定式开关柜。
7. 工作原理7.1 储能动作断路器合闸所需能量由合闸弹簧储能提供。
储能即可由外部电源驱动电机完成,也可使用储能手柄手动完成。
储能操作:固定在框架上的储能电机15通电输出扭矩,通过电机输出轴16的单向轴承13带动链轮14转动,或者将储能受柄插入手动储能孔中顺时针摇动,通过蜗轮蜗杆(10,11)带动链轮14转动。
然后通过链条9带动链轮3转动,链轮3转动时,档销1推动轮5上的滑块2使储能轴21跟随转动,并通过两边拐臂19拉伸合闸弹簧进行储能.到达储能位置时,框架上的限位杆压下滑块2,使储能轴与链轮传动系统脱开,储能保持掣子7顶住滚轮6保持储能位置,同时储能轴上拨板23带动储能指示牌翻转,显示已储能标记,并切换行程开关,切断储能电机供电电源,此时断路器处于合闸准备状态。
7.2 合闸操作机构储能后,若接到合闸信号,合闸电磁铁17动作或按下合闸按钮,使储能保持轴8转动,带动掣子7松开滚轮6,解除储能保持,合闸弹簧18释放能量,使储能轴21和轴上的凸轮22作顺时针转动,通过转动拐臂36,传动连板37带动绝缘拉杆34带动动触头向上运动进入合闸位置,并压缩触头弹簧33,保持触头所需接触压力。
合闸动作完成后,由合闸掣子40与半轴42保持合闸位置,同时储能指示牌,储能行程开关复位,电机供电回路接通,合分指示牌显示“合”标记,若外接电源也接通则再次进入储能状态。
注:当断路器已处于合闸状态或选用闭锁装置而未接通外接电源及手车式断路器在推进过程中,均不能进行合闸操作。
7.3 分闸操作合闸动作完成后,一旦接到分闸信号或按分闸按钮,分闸脱扣电磁铁或过流脱扣电磁铁动作,使分闸半轴42对合闸保持掣子40的约束被解除。
由触头簧33和分闸35储存的能量使灭弧室29动静触头分离而实现分闸操作。
在分闸过程后段,由液压缓冲器吸收分闸过程剩余能量并限定分闸位置。
合分指示牌显示出“分”标记,同时拉动计数器43,实现计数器计数,由传动连杆拉动主辅助开关切换。
8. 防误联锁8.1 断路器合闸操作完成后,合闸联锁弯板2向下运动扣住合闸保持轴上的合闸弯板3,在断路器未分闸时将不能再次合闸。
8.2 断路器在合闸结束后,如合闸电信号未及时去除,断路器内部防跳控制回路将切断合闸回路防止多次重合闸。
8. 3 手车式断路器在未到实验位置或工作位置时,由联锁弯板4扣住合闸脱扣3上的销5,断路器将不能合闸,防止断路器处于合闸状态进入负荷区。
8.4 手车式断路器在工作位置或试验位置合闸后,由滚轮压推进机构锁板,手车将无法移动,防止在合闸状态拉出或推进负荷区。
8.5 如果选用电气合闸闭锁,在二次控制电源末接通情况下阻止手动进行合闸操作。
注意:合闸闭锁功率消耗为4.5W,在0.8-1.1倍额定电压可正常操作。
9. 断路器内部电气原理图9.1 手车式断路器内部电气原理图见图八,接线图见图八(1) 9.2 固定式断路器内部电气原理图见图九,接线图见图九(1)10. 断路器与柜体推荐配合尺寸10.1 ZN63A(VS1)断路器与800宽柜体推荐配合尺寸见图十10.2 ZN63A(VS1)断路器与1000宽柜体推荐配合尺寸见图十一11. 动,静触头配合尺寸动,静触头配合尺寸见图十二12. 接地装置装配尺寸12.1 ZN63A(VS1) (800)接地装置装配尺寸见图十三12.2 ZN63A(VS1) (1000)接地装置装配尺寸见图十四13. 安装,调试13.1 拆箱断路器从包装箱中起吊时,挂钩应挂在断路器上有明显标志的起吊机处,搬移时不得使上下出线臂受力,同时不应让断路器受到较大的冲击振动。
13.2 安装前检查断路器出厂前已经过严格的出厂检验,参数均符合技术要求。
一次回路通电前须做以下准备工作。
a.检查产品铭牌,合格证是否与订货单相符,装箱清单是否与实物相符。
b.检查断路器有无损坏,如有损坏请停止使用。
c.清楚表面灰尘赃污,尤其是绝缘表面,用工濒耐压法检查真空灭弧室的真空度(断路器分闸,在断口间施加工频42kV\1min)d.用手动方式按规程操作断路器进行储能,合闸和分闸,观察储能状态,分合指示位置是否正常。
(注:装有闭锁装置的断路器必须在二次回路通电后才能进行手动操作)e.用操作电源操作断路器进行储能,合闸和分闸,观察储能状态,分合指示位置是否正常手车式断路器按如下步骤操作:将推进手柄插入孔中,顺时针摇动为推进,逆时针摇动为退出。
推行总行程约为200mm在分闸状态下,应顺利进入工作位置或实验位置,请中速转动手柄圈,当听到“嗒”的一声时即为到位(切忌用力过大而损伤推进结构),同时接通相应位置指示回路。
注:在正式进柜操作前,请按要求去除起吊装置。
操作过程可能出现的现象13.3 正式运行时额定电流1600A及以上等级请按要求除去绝缘筒盖。
14. 维护和保养14.1 断路器在正常使用的过程中,应定期对断路器本体进行适当检查.对设备表面的污秽受潮部分进行清洁,用于布楷拭绝缘表面,然后用粘着清洗剂的绸布揩去其他污秽物(注意所用清洗剂能适用于塑料或合成塑料材料)。
用工濒耐压法检查真空灭弧室的真空度,在打耐压的过程中,灭弧室外部有微弱的发光是正常的,如发现灭弧室的持续的击穿,应更换真空灭。
14.2 当断路器长期放置时,可能使断路器活动部分生阻滞,每年应对断路器进行至少5次的储能及合,分闸操作。
14.3 安装和使用时严禁用坚硬的物体撞击真空灭弧室。
14.4 用户不应随意更换使用与原型号规格不一致的电器元件。
14.5 操作人员应初步了解断路器和机构的结构,性能和安装调式,维护检修知识,对运行中问题予以记录,必要时通知制造厂家。
14.6 频繁操作场所,应注意严格控制在技术条件规定的操作次数及开断次数范围内,不能在超出使用寿命后继续使用。
15. 配置15.1 二次控制电压:DC220V AC220V DC110V AC110V15.2 二次控制可选件配置15.2.1 防跳装置:作用一断路器在合闸完成后,如合闸信号未及时解除,断路器内部防跳控制回路将切断合闸回路,防止多闪重合闸。
如果柜上采用综合保护仪和防跳装置,则需确认防跳装置是否需要安装。
15.2.2 闭锁装置:作用一在二次控制电源未接通或低于技术要求情况下防止合闸。
15.2.3 过流装置;作用一在一次回路中过载或短路情况下,通过过流继电器使过流线圈得电动作,使断路器分闸。
一般加在A,C相,也有三相都加的。
当电流互感器的二次输出容量足够时,选用间接过流脱扣器方案,有3.5A和5A两种,当电流互感器的二次输出容量不足以提供过流脱扣电磁铁需求时,选用中间变压器方案,中间变压器的接线端2.4和2.5接断路器上的过流脱扣电磁铁。
15.2.3.1 A.C相过流脱扣(二过流)中间变压器外部接线原理图;15.2.3.2 A B C 相过流脱扣(三过流)中间变压器外部接线原理图;15.3 接地装置根据断路器配柜宽度可分为:800屏接地方案,1000屏接地方案,具体接地装置示意图15.4 二次元器件电气参数表16. 运输与储存16.1 运输断路器运输时必须整台装入封闭的包装箱内并加以固定。
16.2 储存断路器应存放在干燥,通风,防潮,防震祭有害气体侵蚀的室内,长期存放应在传动部分加润滑油,并检查环境是否符合要求,真空灭弧事的储存为20年。
17. 随机文件a. 产品合格证及出厂实验报告;b. 安装使用说明书;c. 装箱清单。
18. 订货须知用户在订货时应注明:a. 断路器型号名称及订货数量;b. 断路器的额定电压,额定电流及额定短路开断电流;c. 储能电机和分合闸线圈的额定操作电压;d. 过流脱扣线圈的个数和脱扣电流值;e. 备品备件的名称及数量;f. 用户若有不明之处或有特殊要求请与制造厂家联系。