机械加工工艺路线期末考试试题
- 格式:doc
- 大小:2.60 MB
- 文档页数:11
《机械加工技术》期末考试B试卷班级______________ 姓名____________ 学号__________一、填空题(每空1分,共20分)1、机械加工工艺过程的组成包括:工序_________________、__________________、__________________、工步和__________________。
2、切削运动是指在切削过程中刀具与工件之间的相对运动,它包括__________________和__________________。
3、切削用量包括:_____________________、_____________________和__________________三个要素。
4、切削液分为:______________________、______________________和__________________三大类。
5、CA6140车床的40是__________________mm。
6、根据作用的不同基准可以分为和两大类。
7、车床由主要由_____________________、_____________________、溜板箱等三个箱体构成。
8、机床的传动必须具备基本部分是由__________________、__________________ 和_________________组成。
二、选择题(每题2分,共30分)1、设计基准是指 ( )。
A、零件图中所用基准B、加工时用于确定工件位置的基准C、工序图中所用的基准 C、用于测量工件尺寸、位置的基准2、在一道工序中,可以有( )。
A、多个工步B、多个工位C、多次安装D、多次走刀3、切削脆性金属材料一般产生()切屑。
A. 带状B. 节状C. 崩碎D. 条状4、零件在加工过程中允许出现的情况是什么?()。
A.过定位B. 欠定位C. 不完全定位5、在四爪单动卡盘上装夹工件对毛坯面进行找正时,一般采用()。
机械制造工艺复习题含参考答案一、单选题(共48题,每题1分,共48分)1.磨削加工时常用的切削液是()。
A、极压切削油B、极压乳化液C、水溶液D、合成切削液正确答案:C2.常用点位控制的数控机床有()。
A、钻床B、车床C、刨床D、铣床正确答案:A3.如加工过程中没有变值性系统误差,那么其尺寸分布应服从()。
A、点图分布B、平顶分布C、正态分布D、偏态分布正确答案:C4.数控机床的特点是()。
A、美观B、精度高C、经济正确答案:B5.闭环控制的数控系统是指()。
A、反馈装置安装在传动链的末端B、有无反馈装置C、反馈装置安装的位置不同D、反馈装置安装在丝杠上正确答案:A6.()箱可以实现车刀的纵向或横向运动。
A、进给B、溜板C、交换齿轮D、主轴正确答案:B7.防止铸件产生裂纹的方法有()。
A、提高浇注温度B、提高砂型和型芯退让性C、提高型砂的强度D、使铸件的壁厚均匀正确答案:B8.机床的类别用()汉语拼音字母表示。
A、不确定B、大写C、小写正确答案:B9.金属材料切削性能的好坏一般是以()钢作为基准的。
A、Q235—AB、调质C、正火D、45正确答案:D10.测量刃倾角λs的基准座标平面是()。
A、基面PrB、假定工作平面PfC、正交平面PoD、主切削平面Ps正确答案:D11.车削较长的轴的端面或钻孔、车孔时,为提高工件刚性,常使用()。
A、花盘B、鸡心夹头和拨盘C、卡盘D、中心架正确答案:D12.当工件表面有硬皮时,不宜采用()方式。
A、顺铣B、逆铣正确答案:A13.YT类硬质合金刀具主要用于加工()。
A、陶瓷B、金刚石C、铸铁D、钢正确答案:D14.中批量生产中用以确定机加工余量的方法是()。
A、查表法B、经验估计法C、计算法正确答案:A15.空心毛坯采用芯棒拔长锻造工序可以使毛坯()。
A、内径增大B、壁厚减少C、长度增加D、外径增大正确答案:C16.麻花钻的()越大,切削越省力,但刃口强度降低。
机械制造工艺试题库(附答案)一、选择题1. 下列哪种加工方法属于机械加工范畴?()A. 铸造B. 焊接C. 切削D. 热处理答案:C2. 在机械加工过程中,工件和刀具之间的相互作用产生切削力,下列哪种是切削力的主要成分?()A. 摩擦力B. 剪切力C. 拉伸力D. 压缩力答案:B3. 下列哪种加工方法主要用于加工平面和直线轮廓?()A. 铣削B. 车削C. 钻削D. 磨削答案:A4. 下列哪种刀具适用于加工硬质合金材料?()A. 高碳钢刀具B. 高速钢刀具C. 陶瓷刀具D. 硬质合金刀具答案:D5. 在车削加工中,下列哪种因素会影响加工精度?()A. 车床的精度B. 刀具的磨损C. 工件的装夹D. 切削液的使用答案:ABC6. 下列哪种工艺方法可以提高金属材料的强度和硬度?()A. 热处理B. 表面处理C. 焊接D. 铸造答案:A7. 在下列加工方法中,哪种加工方法可以获得最好的表面质量?()A. 铣削B. 车削C. 钻削D. 磨削答案:D8. 下列哪种设备用于检测机械零件的尺寸和形状精度?()A. 量具B. 测量仪器C. 检测设备D. 以上都对答案:D9. 在机械加工过程中,下列哪种方法可以减少切削力和切削温度?()A. 高速切削B. 慢速切削C. 切削液的使用D. 增大刀具前角答案:C10. 下列哪种材料属于难加工材料?()A. 低碳钢B. 高强度钢C. 不锈钢D. 铝及铝合金答案:BC二、判断题1. 机械加工过程中,工件和刀具之间的摩擦力越小,切削力越小。
()答案:×2. 在机械加工过程中,切削速度越快,切削力越小。
()答案:√3. 刀具的前角越大,切削力越小。
()答案:×4. 机械加工过程中,切削液的使用可以提高加工表面质量。
()答案:√5. 机械加工误差主要由刀具磨损引起。
()答案:×6. 热处理可以改变金属材料的物理性能。
()答案:√7. 高速切削可以提高加工效率和加工质量。
《机械制造工艺学》习题1第一部分一、单项选择题1.采用合理结构减小热变形对加工精度影响的措施主要有采用()、热补偿结构和合理选择装配基准。
A、热对称结构B、热处理C、合理减少重量D、提高热容量2.机械加工表面缺陷主要有表层加工冷作硬化、表层金相组织变化和()。
A、位置误差B、形状误差C、圆柱度不达标D、表层残余应力3.以下不属于机械加工中振动的危害的是()。
A、影响加工表面粗糙度B、影响生产效率C、加速刀具磨损D、明显增加切削热4.切削加工表面粗糙度值主要取决于切削残留面积的()。
A、大小B、形状误差C、平面度D、高度5. 工艺规程规划时,产品基本不变的大批、大量生产,选用()。
A、数控机床B、普通机床C、专用组合机床D、自动机床6. ()的基本尺寸等于各组成环基本尺寸的代数和。
A、组成环B、封闭环C、增环D、减环7.在确定夹紧力方向时应选择在工件刚度较大的方向上,主要原因是()。
A、防止工件变形B、确保夹紧可靠C、确保定位可靠D、防止翻转8. 在机械加工过程中,()是工件实际定位中绝不允许的。
A、完全定位B、不完全定位C、过定位D、欠定位二、多项选择题1. 加工误差预防主要措施()。
A、采用先进工艺和设备B、直接减少原始误差C、转移原始误差D、误差分组E、就地加工2.表面几何形状精度主要包括()。
A、表面粗糙度B、圆柱度C、波纹度D、纹理方向E、表面缺陷3.机械加工工艺路线主要内容有()。
A、熟悉或确定毛坯B、选择定位基准C、确定加工方法D、安排加工顺序以及安排热处理E、检验和其它工序4.机械加工工艺规程规划所需原始资料有()。
A、产品的全套装配图及零件图B、产品的验收质量标准C、产品的生产纲领及生产类型D、零件毛坯图及毛坯生产情况E、本厂(车间)的生产条件5.机器装配的自动化基本内容有()。
A、装配组织自动化B、装配过程的储运系统自动化C、装配规划自动化D、装配作业自动化E、装配过程信息流自动化6. 加工方法的选择原则有()。
《机械加工技术》考试试卷 (闭卷) 班级________ 学号________ 姓名________ 一、填空题(每空1分,共20分) 1、工程材料一般可分为___________和___________两大类. 2、机械加工工艺过程是由一系列的___________工序组成。
3、生产纲领是指包括_______________________的该产品的年产量。
4、根据作用的不同,基准可以分为___________和___________两大类。
5、根据铣削时切削层参数的变化规律不同,圆周铣削有___________和___________两种。
6、尺寸链具有的两个特点是:___________和___________。
7、加工余量是指_________________________________. 8、为了便于组织生产,常将工艺路线划分为若干工序,划分的原则可采用___________和___________的原则。
9、___________是指规定产品或零部件制造工艺过程制造工艺过程和操作方法等的工艺文件。
10、___________是制定工艺规程最基本的原始资料之一. 11、镗削加工时,___________是主运动,工件或镗刀的移动为进给运动。
12、钻床和镗床都属于___________机床。
13、B6065型牛头刨床的最大刨削长度为___________mm 。
14、为了保证加工精度,使工件相对于机床和刀具占有正确的加工位置,这一过程称为___________。
15、尺寸链中在装配过程或加工过程最后形成的一环叫做___________。
二、判断题(每题1分,共15分) ( )1、在一个尺寸链中,可以有一个封闭环,也可以有几个封闭环。
()2、确定加工余量的方法有三种,分析计算法在实际生产中应用广泛。
( )3、在盘形砂轮上磨刀时,应尽量避免使用砂轮的侧面。
( )4、与封闭环反向变动的组成环叫增环。
学校 班级 学号 姓名______________________ ◆◆◆◆◆◆◆◆◆◆◆◆◆◆◆装◆◆◆◆◆◆◆◆◆◆◆◆◆◆◆订◆◆◆◆◆◆◆◆◆◆◆◆◆线《机械加工工艺编制与实施》期末考试试卷(A 卷)使用班级:命题教师: 考核方式:闭卷考试考试时间:100分钟一、判断题:正确的在括号内打“√”,错误的打“×”。
本题共15题,每题1分,共15分。
1、( )粗加工时,限制进给量提高的主要因素是表面粗糙度;精加工时,限制进给量提高的主要因素是切削力2、( )半精加工的目的,是降低粗加工中留下的误差,使被加工表面达到一定精度,来为精加工做准备。
3、( )车削外圆柱面和车削套类工件时,它们的切削深度和进给量通常是相同的。
4、( )粗基准在同一尺寸方向上通常可以使用多次。
5、( )工件在夹具中与各定位元件接触,虽然没有夹紧尚可移动,但由于其已取得确定的位置,所以可以认为工件已定位。
6、( )制定机械加工工艺规程时,如果是单件小批生产应尽量使工序分散,如果是大量生产则只能是工序集中。
7、( )不完全定位在零件的定位方案中是允许出现的。
8、( )要保证加工表面的余量均匀,应选择不加工表面为粗基准。
9、( )铣削加工生产率高,加工表面粗糙度值较小,是目前应用最广泛的切削加工平面的方法之一。
10、( )用换算后的工序尺寸间接保证原设计尺寸要求时,存在“假废品”的问题。
11、( )单件小批生产常采用“工序分散”的原则 12、( )经济加工精度是在非常仔细的加工条件下所能保证的加工精度和表面粗糙度。
13、( )编零件机械加工工艺规程、生产计划和进行成本核算最基本的单元是工序。
14、( )磨销属于精加工。
15、( )硬质合金是一种耐磨性好,耐热性高,抗弯强度和冲击韧性较高的刀具材料。
二、选择题:每题只有一个正确答案,请将正确答案填在括号内。
本题共20题,每题1.5分,共30分。
1、箱体类零件加工常采用一面双孔定位,符合下列( )原则A.基准统一B. 基准重合C.自为基准D.互为基准 2、重要的轴类零件的毛坯通常应选择( ):A.棒料B.管材C.铸件D.锻件3、经济加工精度是在( )条件下所能保证的加工精度和表面粗糙度。
机加工考试题库及答案一、单项选择题(每题2分,共20分)1. 机加工中,以下哪项不是车削加工的特点?A. 高精度B. 高效率C. 低表面粗糙度D. 只能加工旋转体答案:D2. 在机加工中,以下哪种材料最适合进行铣削加工?A. 木材B. 塑料C. 不锈钢D. 橡胶答案:C3. 以下哪项不是磨削加工的优点?A. 高精度B. 高表面光洁度C. 高生产效率D. 可以加工硬质材料答案:C4. 钻孔加工时,以下哪项不是钻头的主要参数?A. 直径B. 长度C. 材料D. 转速答案:D5. 在机加工中,以下哪种设备不是用于切削加工?A. 车床B. 铣床C. 磨床D. 压力机答案:D6. 以下哪项不是机加工中的常见测量工具?A. 卡尺B. 千分尺C. 量规D. 温度计答案:D7. 在机加工中,以下哪种材料最适合进行线切割加工?A. 木材B. 塑料C. 不锈钢D. 橡胶答案:C8. 以下哪项不是机加工中常用的夹具?A. 虎钳B. 吸盘C. 卡盘D. 压板答案:B9. 在机加工中,以下哪种设备用于加工齿轮?A. 车床B. 铣床C. 磨床D. 滚齿机答案:D10. 以下哪项不是机加工中常用的润滑方式?A. 油浴润滑B. 喷雾润滑C. 干摩擦D. 油雾润滑答案:C二、多项选择题(每题3分,共15分)11. 以下哪些因素会影响机加工的精度?A. 刀具磨损B. 机床精度C. 操作者技能D. 材料硬度答案:ABCD12. 在机加工中,以下哪些因素会影响加工表面粗糙度?A. 切削速度B. 刀具磨损C. 冷却液的使用D. 工件材料答案:ABCD13. 以下哪些是机加工中常用的测量单位?A. 毫米B. 英寸C. 厘米D. 微米答案:ABD14. 以下哪些是机加工中常用的刀具材料?A. 高速钢B. 硬质合金C. 陶瓷D. 塑料答案:ABC15. 以下哪些是机加工中常用的冷却液?A. 水B. 油C. 空气D. 乳化液答案:ABD三、判断题(每题2分,共20分)16. 机加工中的切削液可以提高切削效率,但不影响加工精度。
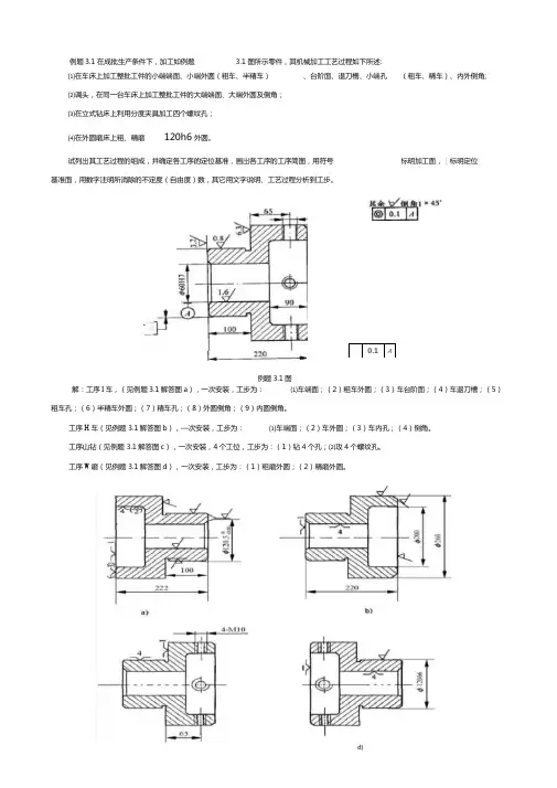
例题3.1在成批生产条件下,加工如例题 3.1图所示零件,其机械加工工艺过程如下所述:(粗车、精车)、内外倒角;标明加工面,[标明定位⑴在车床上加工整批工件的小端端面、小端外圆(粗车、半精车) 、台阶面、退刀槽、小端孔⑵调头,在同一台车床上加工整批工件的大端端面、大端外圆及倒角; ⑶在立式钻床上利用分度夹具加工四个螺纹孔; ⑷在外圆磨床上粗、精磨120h6外圆。
试列岀其工艺过程的组成,并确定各工序的定位基准,画岀各工序的工序简图,用符号 基准面,用数字注明所消除的不定度(自由度)数,其它用文字说明、工艺过程分析到工步。
解:工序I 车,(见例题3.1解答图a ),一次安装,工步为: ⑴车端面;(2)粗车外圆;(3)车台阶面;(4)车退刀槽;(5)粗车孔;(6)半精车外圆;(7)精车孔;(8)外圆倒角;(9)内圆倒角。
工序H 车(见例题 3.1解答图b ),—次安装,工步为:⑴车端面;(2)车外圆;(3)车内孔;(4)倒角。
工序山钻(见例题 3.1解答图c ),一次安装,4个工位,工步为:(1)钻4个孔;⑵攻4个螺纹孔。
工序W 磨(见例题 3.1解答图d ),一次安装,工步为:(1)粗磨外圆;(2)精磨外圆。
巨例题3.1图0.1A例题3.2 指出例题3.2图零件结构工艺性不合理的地方,并提出改进建议。
例题3.2图答:例题3. 2图a底面较大,加工面积较大,加工量较大且不易保证加工质量,建议减少底面加工面的尺寸,如开一通槽。
例题图3.2b中孔的位置距直壁的尺寸太小,钻孔时刀具无法切入,安装也不方便,故应该增大其距离。
例3.6 试拟定例题3.6图所示小轴的单件小批生产和大批大量生产的机械加工工艺规程,并分析每种方案的工艺过程组成。
例题3.6图解:零件的机械加工工艺规程如例题 3.6表a和b所示。
从表中可看出,随零件生产类型的不同,工序的划分及每一个工序所包含的加工内容是不同的。
在例题表3.6a中,车完一个工件的大端外圆和倒角后,立即调头车小端外圆及倒角,这是一个工序。
机械加工工艺题库一、选择题1. 在外圆磨床上磨削工件外圆表面,其主运动是( A)A. 砂轮的回转运动B. 工件的回转运动C. 砂轮的直线运动D. 工件的直线运动2. 在立式钻床上钻孔,其主运动和进给运动( B )。
A. 均由工件来完成B. 均由刀具来完成 B. 分别由工件和刀具来完成D. 分别由刀具和工件来完成3. 背吃刀量是指主刀刃与工件切削表面接触长度( D )。
A. 在切削平面的法线方向上测量的值B. 正交平面的法线方向上测量的值C. 在基面上的投影值D. 在主运动及进给运动方向所组成的平面的法线方向上测量的值4. 在背吃刀量和进给量f一定的条件下,切削厚度与切削宽度的比值取决于( C)A. 刀具前角B. 刀具后角C. 刀具主偏角D. 刀具副偏角5. 垂直于过渡表面度量的切削层尺寸称为( C )。
A. 切削深度B. 切削长度C. 切削厚度D. 切削宽度6. 普通车床的主参数是(D )。
A. 车床最大轮廓尺寸B. 主轴与尾座之间最大距离C. 中心高D. 床身上工件最大回转直径7. 大批量生产中广泛采用( B )A. 通用夹具B. 专用夹具C. 成组夹具D. 组合夹具8. 通过切削刃选定点,垂直于主运动方向的平面称为( C )A. 切削平面B. 进给平面C. 基面D. 主剖面9. 在正交平面内度量的基面与前刀面的夹角为( A )。
A. 前角B. 后角C. 主偏角D. 刃倾角10. 刃倾角是主切削刃与( B)之间的夹角。
A. 切削平面B. 基面C. 主运动方向D. 进给方向11. 车削加工时,车刀的工作前角( A )车刀标注前角。
A. 大于B. 等于C. 小于D. 有时大于、有时小于12. 用硬质合金刀具对碳素钢工件进行精加工时,应选择刀具材料的牌号为( A )A. YT30B. YT5C. YG3D. YG813. 有刻度,能量出一定范围内几何量的具体数值的量具为( C )。
A. 游标卡尺B. 专用量具C. 通用量具D. 千分尺14. 影响切削层公称厚度的主要因素是( C )。
《机械制造工艺学》期末考试题参考答案一、名词解释(本大题共5小题,每小题2分,共10 分)1.工序:一个或一组工人,在一台机床或一个工作地点对同一或同时对几个工件所连续完成的那部分工艺过程。
2.尺寸链:相互联系,按一定顺序首尾相接和尺寸封闭图形。
3.基准:确定生产对象上几何要素的几何关系所依据的那些点,线,面。
4.过定位:几个定位支撑点重复限制同一个或几个自由度。
5.形状精度:加工后零件各表面的实际形状与表面理想形状之间的附和精度。
二、填空题(本大题共7小题,每空1 分,共20 分)6.牛头刨床的主运动是(刨刀)的直线往复移动,进给运动是(工件)的间歇移动。
7.工时定额是完成某一(零件)或(工序)所规定的时间。
8.刨削和插削都是(间断)切削,刀具易受到(冲击),因此(切削速度)不宜太高。
9.电火花加工是在一定的(介质)中,通过(工具)电极和(工件)电极之间的(脉冲放电)的电蚀作用,对工作进行加工的方法。
10.切削用量是在切削加工过程中(V)(F)和(ap)的总称。
11.装夹是工件在加工前,使其在机床上或夹具中获得(正确而固定位置)的过程,它包括(定位)和(夹紧)两部分内容。
12.零件的加工精度包括(尺寸精度)(形状精度)和(相互位置)三个方面。
三、不定项选择(本大题共10小题,每小题1 分,共10 分)13.车床主轴的纯轴向窜动对(B、C)加工有影响。
A、车销内外圆B、车销端面 C车销螺纹14.制定零件工艺过程时,首先研究和确定的基准是(C )A、设计基准B、工序基准C、定位基准D、测量基准15.零件在加工过程中使用的基准叫做(B、D )A、设计基准B、工艺基准C、装配基准D、定位基准E、测量基准16.车床主轴轴颈和锥孔的同轴度要求很高,常采用(B )来保证A、基准重合B、互为基准C、自为基础D、基准统一17.机械加工中直接改变工件的形状、尺寸和表面性能使之变成所需零件的过程为( C )A、生产过程 B、工艺过程 C、机械加工工艺过程18.受迫振动系统在共振区消振最有效的措施使(B)A.增大系统刚度;B.增大系统阻尼;C.增大系统质量19.用(b)来限制六个自由度,称为(c)。
机械加工工艺试题库含答案一、单选题(共50题,每题1分,共50分)1、磨削加工中,大部分切削热( )。
A、被磨屑所带走B、传给工件C、传给机床D、传给刀具正确答案:B2、车外圆时,能使切屑流向工件待加工表面的几何要素是( )A、前角小于00B、前角大于00C、刃倾角小于00D、刃倾角大于00正确答案:D3、既要完成在其上定位并夹紧,还承担沿自动线输送工件的任务的夹具足( ).A、能用夹具B、随行夹具C、组合夹具D、专用可调夹具正确答案:B4、加工一批中小型工件位于同一表面上的一组孔,孔距公差大于±0.15mm,则优先选用的钻模型为( )。
A、盖板式B、固定式C、移动式D、滑桩式正确答案:C5、在普通车床上镗孔,若走刀方向在垂直平面内和主轴回转轴线不平行,则加工后工件孔为( )。
A、腰鼓形B、双曲面C、圆锥面D、圆柱面正确答案:B6、为消除一般机床主轴箱体铸件的内应力,应采用( )。
A、正火B、时效C、调质D、表面热处理正确答案:B7、人为引入一个附加误差,与原始误差大小相等、方向相反,它属于( )。
A、转移原始误差B、抵消原始误差C、补偿原始误差D、减少原始误差正确答案:C8、通过切削刃选定点,垂直于主运动方向的平面称为( )A、切削平面B、主剖面C、基面D、进给平面正确答案:C9、连续钻削几个相同直径的孔可视为一个( )。
A、工步B、安装C、工序D、工位正确答案:A10、用硬质合金刀具告诉切削时,一般( )。
A、不用切削液B、用少量切削液C、用低浓度乳化液D、用切削油正确答案:A11、选择加工表面的设计基准为定位基准的原则称为( )原则。
A、自为基准B、基准重合C、基准统一D、互为基准正确答案:B12、在机床上用三爪卡盘装夹工件外圆车内孔,加工后发现孔与外圆不同轴,可能的原因是( )。
A、三爪卡盘装夹面与主轴回转线不同轴B、车床主轴径向跳动C、刀尖与主轴回转线不等高D、车床纵向导轨与主轴回转线不平行正确答案:A13、通过切削刃选定点的基面是( )。
《机械制造工艺学》课程综合复习资料一、单选题1.两级降速传动链,首、末级传动比分别为i1和i2,在总的传动比和传动元件误差不变的情况下,()时,对减小传动误差更有利。
A.i1<i2B.i1>i2C.i1=i2答案:B2.如果某加工过程中,误差服从正态分布,但是样本平均值与公差带中心不重合,可以判断该加工过程存在()。
A.随机误差B.常值系统误差C.变值系统误差答案:B3.()是组成机器的最小单元。
A.零件B.组件C.套件答案:A4.使用计算法确定加工余量时,对于本工序加工余量大小没有直接影响的因素是()。
A.上工序的表面质量B.上工序的加工精度C.本工序的加工精度答案:C5.工件经一次装夹后所完成的那一部分工序称为()。
A.工步B.安装C.工位答案:B6.轴类零件定位用的顶尖孔属于()。
A.设计基准B.辅助基准C.粗基准D.精基准答案:D7.机械加工工艺过程是()。
A.直接生产过程B.辅助生产过程C.直接或者辅助生产过程答案:A8.薄壁圆环零件用三爪卡盘装夹,在车床上车内孔,下列图形中()能描述由于夹紧力变形而产生的加工误差。
A.B.C.答案:A9.制定机械加工工艺规程时,如果采用普通加工方法的单件小批生产,一般只需要填写()。
A.机械加工工艺过程卡片B.机械加工工艺卡片C.机械加工工序卡片答案:A10.对于装配尺寸链,当某一组成环是不同装配尺寸链公共环时,其公差大小和位置根据()的那个尺寸链确定。
A.对其精度要求最高B.对其精度要求最低C.不确定答案:A11.连续加工一批工件时,如果工艺系统存在显著的热变形,会使工件的尺寸呈()。
A.正态分布B.双峰分布C.平顶分布D.偏向分布答案:D12.精基准选择时的“基准重合”原则是指选用被加工面的()作为定位精基准。
A.工序基准B.设计基准C.测量基准答案:B13.零件上某重要表面要求加工余量小且均匀,应采用()的原则方法来定位。
A.互为基准B.自为基准C.基准统一答案:B14.下列刀具中,()的制造误差能直接带来加工误差。
机械加工考试题及答案一、单项选择题(每题2分,共20分)1. 机械加工中,切削用量三要素不包括以下哪一项?A. 切削速度B. 进给量C. 切削深度D. 刀具材料答案:D2. 在机械加工中,刀具磨损到何种程度时需要更换?A. 轻微磨损B. 中度磨损C. 严重磨损D. 任何程度的磨损答案:C3. 以下哪种材料不适合用于制造高速钢刀具?A. 碳素钢B. 合金钢C. 钨钢D. 不锈钢答案:A4. 车削加工中,刀具的主切削刃与工件轴线的夹角称为:A. 前角B. 后角C. 刃倾角D. 副偏角答案:C5. 在机械加工中,以下哪种加工方式可以实现工件的内外圆表面加工?A. 车削B. 铣削C. 刨削D. 磨削答案:A6. 以下哪种机床适用于加工复杂曲面?A. 车床B. 铣床C. 钻床D. 磨床答案:B7. 以下哪种测量工具适用于测量工件的内径?A. 游标卡尺B. 千分尺C. 内径百分表D. 外径千分尺答案:C8. 在机械加工中,以下哪种加工方式可以实现工件的平面加工?A. 车削B. 铣削C. 刨削D. 磨削答案:B9. 以下哪种材料不适合用于制造硬质合金刀具?A. 碳化钨B. 碳化钛C. 碳化硅D. 碳钢答案:D10. 在机械加工中,以下哪种加工方式可以实现工件的螺纹加工?A. 车削B. 铣削C. 刨削D. 磨削答案:A二、多项选择题(每题3分,共15分)11. 机械加工中,影响切削力的因素包括:A. 刀具材料B. 切削速度C. 工件材料D. 冷却液答案:ABCD12. 以下哪些因素会影响刀具的使用寿命?A. 刀具材料B. 切削速度C. 进给量D. 工件材料答案:ABCD13. 以下哪些是机械加工中常见的加工误差来源?A. 刀具磨损B. 机床误差C. 测量误差D. 操作者技能答案:ABCD14. 以下哪些是机械加工中常用的测量工具?A. 游标卡尺B. 千分尺C. 百分表D. 量规答案:ABCD15. 以下哪些是机械加工中常见的加工方式?A. 车削B. 铣削C. 刨削D. 磨削答案:ABCD三、判断题(每题2分,共20分)16. 机械加工中,切削速度越快,切削力越大。
XX 职业学校XXXX-XXXX 学年度第二学期期末考试 XX 级《机械制造工艺》试卷 班级:20机电技术班、20机械加工班、20机电大专1-2班、20智能制造班、20机电高技1-2班、20工业机器人班、20计算机辅助班 一、 填空题:(1分/空,小计30分) 1.夹紧力的三要素是指 1 、 2 和 3 2.工件的定位有 4 、 5 、 6 、 7 四种情况 。
3. 机械加工工艺过程是由一系列的工序组成,而一道工序又可分成__8____、 __9___和_____10_____。
4.在零件和部件的设计中,基准按其作用不同,可分为 11 和 12 。
5.切削用量三要素是 13 、 14 、 15 。
6. 机械加工中达到尺寸精度的方法有: 16 、 17 、 18 和 19 。
7. 机床在切削过程中所需的运动,可按其功能的不同而分为20和21两类。
8.传动链中包含两类传动机构22和23。
9.切削时工件上形成的三个表面是24、25和26 10. CA6140上车圆锥面的方法有27 、 28 和 29 。
11.床头箱零件一般都选择 30 为粗基准。
二、判断题:(1分/题,小计10分) ( )1.三爪自定心卡盘是通用夹具。
( )2.用两顶尖装夹车轴时,轴的两中心孔就是定位基准。
( )3. 所有零件在制定工艺过程时都应划分加工阶段。
( )4. 在尺寸链中必须有增环。
( )5.表面粗糙度小的表面质量就好。
( )6.钻出的孔一般应经扩孔或半精镗等半精加工,才能进行铰孔。
( )7.刀具耐用度是指一把新刀从开始切削到达到报废为止经历的总的切削时间。
( )8.浮动式镗刀进行切削加工能提高尺寸精度,也能校正上道工序的位置误差。
( )9.通常情况下面铣刀齿数增加可显著提高生产率和加工质量。
( )10.在加工质量方面,铣削和刨削一般相同,但对于尺寸较大的平面,由于刨削无明显的接刀痕,故刨削优于铣削 三、选择题:(2分/题,小计30分) 1.工件在机床上加工时,通常由夹具中的( ) 来保证工件相对于刀具处于一个正确的位置。
例题 在成批生产条件下,加工如例题图所示零件,其机械加工工艺过程如下所述:⑴在车床上加工整批工件的小端端面、小端外圆(粗车、半精车)、台阶面、退刀槽、小端孔(粗车、精车)、内外倒角; ⑵调头,在同一台车床上加工整批工件的大端端面、大端外圆及倒角; ⑶在立式钻床上利用分度夹具加工四个螺纹孔; ⑷在外圆磨床上粗、精磨1206h 外圆。
试列出其工艺过程的组成,并确定各工序的定位基准,画出各工序的工序简图,用符号标明加工面,标明定位基准面,用数字注明所消除的不定度(自由度)数,其它用文字说明、工艺过程分析到工步。
例题图解:工序I 车,(见例题解答图a ),一次安装,工步为:(1)车端面; (2)粗车外圆;(3)车台阶面;(4)车退刀槽;(5)粗车孔;(6)半精车外圆; (7)精车孔; (8)外圆倒角; (9)内圆倒角。
工序Ⅱ车(见例题解答图b ),一次安装,工步为:(1)车端面;(2)车外圆;(3)车内孔;(4)倒角。
工序Ⅲ钻(见例题解答图c ),一次安装,4个工位,工步为:(1)钻4个孔;(2)攻4个螺纹孔。
工序Ⅳ磨(见例题解答图d ),一次安装,工步为:(1)粗磨外圆;(2)精磨外圆。
例题指出例题图零件结构工艺性不合理的地方,并提出改进建议。
例题图答:例题3. 2图a 底面较大,加工面积较大,加工量较大且不易保证加工质量,建议减少底面加工面的尺寸,如开一通槽。
例题图中孔的位置距直壁的尺寸太小,钻孔时刀具无法切入,安装也不方便,故应该增大其距离。
例试拟定例题图所示小轴的单件小批生产和大批大量生产的机械加工工艺规程,并分析每种方案的工艺过程组成。
例题图解:零件的机械加工工艺规程如例题表a和b所示。
工序工序内容所用设备1车一端端面,打中心孔调头车另一端面,打中心孔车床2车大端外圆及倒角调头车小端外圆及倒角车床3铣键槽、去毛刺铣床工序工序内容所用设备1铣端面,打中心孔铣端面打中心孔机床2车大端外圆及倒角车床3调头车小端外圆及倒角车床4铣键槽键槽铣床5去毛刺钳台从表中可看出,随零件生产类型的不同,工序的划分及每一个工序所包含的加工内容是不同的。
在例题表中,车完一个工件的大端外圆和倒角后,立即调头车小端外圆及倒角,这是一个工序。
而在例题表中,是在车完一批工件的大端外圆和倒角后再调头车小端外圆和倒角,加工内容没有连续进行,故是两个工序。
另外,去毛刺的工作在单件小批生产中由铣工在加工后顺便进行。
而在大批大量生产中,由于生产率较高,铣工忙于装卸工件及操作机床,因此,需另设一道工序来专门清除毛刺。
例 试拟订例题图所示零件加工的工艺路线。
例题图分析:该零件属于典型的轴类零件。
零件使用性能没有提出特殊要求,材料为 40Cr ,且生产10件属于单件小批生产,故可以采用热扎圆钢下料;其中主要加工面有a 286R 0.4h φ、外圆,a 256R 0.4h φ、外圆,a 327R 1.6f φ、外圆,左端齿形面、8级精度、齿顶和分度圆表面粗糙度为a R 3.2和a R 1.6,根据加工精度和表面粗糙度选择即可;此外,各外圆对轴线有的跳动要求,例题图中已给出中心孔要求,加工中采用轴线作为定位基准,在一次安装中加工多个表面,此项要求很容易满足;大多数表面的热处理为调质处理,不需考虑热处理对加工顺序的影响,对于齿形有淬火要求,故齿形精加工宜选择磨削类方法。
解:该零件的工艺路线如下:下料→车端面、钻顶尖孔→粗车→调质处理→半精车→滚齿→齿面淬火→配钻销孔→铣键槽→珩齿→粗磨286h φ、256h φ、327f φ外圆→精磨286h φ、256h φ外圆→检验→入库。
常见错误解析:在做本题时,经常会将“车端面、钻顶尖孔”这一工序漏掉。
主要原因在于对于安排加工顺序的原则理解不够,尤其是“基准先行”;实际上轴类零件加工中,“车端面、钻顶尖孔这一工序体现了“基准先行”和“先面后孔”两个原则。
例 试拟订例题图所示零件成批生产的工艺路线,并指出各工序的定位基准。
分析:该零件属于典型的盘类零件。
零件使用性能没有提出特殊要求,材料为 HTl50,属于成批生产,故毛坯采用铸造毛坯;其中主要加工面有a 207R 1.6H φ、孔,a 3107R 1.6H φ-、孔,根据加工精度和表面粗糙度选择即可。
中心轴线为设计基准,且a 207R 1.6H φ、孔精度较高,因此可以作为主要定位基准面。
答:该零件的工艺安排如例题表所示。
例题3. 8表 零件成批生产的工艺路线工序 工序内容 定位基准 1 车端面、钻、扩、铰207H φ基准孔 外圆、端面 2 车另一端面及外圆 内孔和端面 3 插键槽内孔和端面 4 钻、扩、铰3107H φ-孔 内孔和端面5检验第一道工序采用外圆面作为定位基准,其他工序则均采用207H φ孔及一个端面作为定位基准。
常见错误解析:在第一道工序时往往对于207H φ孔只进行钻削,然后即以其定位加工其他表面。
主要原因是认为加工中一定要划分加工阶段。
其实对于一个结构相对简单而且没有热处理要求的零件而言,加工阶段的划分是相对也是比较模糊的;比如在加工基准时,往往为了保证定位精度,基准面的精度一般要求较高,以保证加工质量,是不是就不满足划分加工阶段的原则了,其实不然。
问题的出现仍然是因为没能很好地对所学知识融会贯通,缺少灵活运用的能力。
例 例题图a 所示工件,成批生产时以端面B 定位加工表面A ,保证尺寸0.2010mm φ+,试标注铣此缺口时的工序尺寸及公差。
例题图解:分析:表面A 的位置尺寸是由C 面标注的。
表面C 为表面A 的设计基准。
铣缺口的定位基准为B 面,故设计基准与定位基准不重合,需进行工艺尺寸换算。
工序尺寸应由B 面标出。
①确定封闭环。
设计尺寸0.2010mm φ+在铣缺口工序中间接得到,故为封闭环。
②建立工艺尺寸链,并查找组成环和判别增、减环。
建立工艺尺寸链图如例图 b)所示。
其中,3L 和2L 为增环,1L 为减环。
③计算中间工序尺寸及偏差 由竖式法(如例题表) 求解该尺寸链得:10.005.0340++=L mm 。
环的名称 基本尺寸 上偏差 下偏差L 1 (减环) -60 + L 2 (增环)30 + 0 L 3 (增环) 40L 0 10加工过程如下:(1)精车A 面,保证尺寸01.02.26-φmm ;(2)渗碳处理,控制渗碳层深度为H 1;(3)精磨A 面,保证尺寸0016.08.25-φmm ;同时保证渗碳层深度达到规定的要求。
试确定H 1的尺寸及公差。
解:根据工艺过程,可建立尺寸链如例题图b 所示。
在尺寸链中, 010.0513.1R -=mm , 020.00812.9R -=mm , 0.3000.5H +=mm 。
其中0H 为经过磨削加工后,零件上渗碳层的深度,是间接获得的尺寸,因而是尺寸链的封闭环。
12H R 、为增环,1R 为减环。
由竖式法(如例题表)计算可得:0.2510.0080.7H ++=mm 。
环的名称基本尺寸上偏差 下偏差 R 1(减环) + 0 R 2(增环) 0 H 1(增环)+ + H 0+例题 加工如例题图所示轴套零件,其部分工序如下: 工序5 精车小端外圆、端面及肩面; 工序10 钻孔; 工序15 热处理; 工序20 磨孔及底面;工序25 磨小端外圆及肩面。
试求工序尺寸A 、B 及其极限偏差。
解:由轴套零件加工工序可知,设计尺寸0.3023+mm和5.50.3±mm 是间接获得的尺寸为封闭环,分别以0.301023L +=mm 和02 5.50.3L =±mm 为封闭环建立工艺尺寸链如例题解答图。
(1) 以0.301023L +=为封闭环建立尺寸链如例题解答图a 所示,1L 、2L 增环,B 为减环。
由竖式法(如例题解答表a)计算可得:00.129B-=mm 。
环的名称基本尺寸上偏差 下偏差 B (减环) -29+ 0 1L (增环) 26 + 0 2L (增环)26 + 0 01L23+(2) 以025.50.3L =±为封闭环建立尺寸链如例题解图)所示,A 、3L 、2L 增环,B 为减环。
由竖式法(如例题解答表b)计算可得:00.23.3A -=mm 。
环的名称基本尺寸 上偏差 下偏差 B (减环) -29 + 0 A 0 3L (增环) + 2L (增环)26 + 0 02L+故 00.23.3A -=mm ,00.129B -=mm 。
写出小批生产题图所示螺钉零件的机械加工工艺过程(包括工序、 安装、工步、走刀、工位),工件的毛坯为圆棒料。
工序安装工 步走刀 工位1 车削 1(三爪卡盘)(1)车端面A 1(2)车外圆E1 (3)车螺纹外径D 3 (4)车端面B 1 (5)倒角F (6)车螺纹 6 (7)切断 12 车削 1(三爪卡盘)(1)车端面C 1 (2)倒棱G1 3 铣削 1(旋转夹具)(1)铣六方(复合工步)33在小批生产条件下,加工一批直径为01.020-φmm ,长度为50mm 的光轴,材料为45钢,表面粗糙度为μm ,试确定其加工方法。
(提示:粗车-半精车-粗磨-精磨-研磨)编写题图所示的盘状零件在单件小批生产和中批生产时的工艺路线,工件材料为Q235。
题图(解:单件小批生产的工艺过程如题解 表a ,中批生产的工艺过程如题解 表b 。
)题解表 a 单件小批生产的工艺过程工序 工序内容所用设备1 车端面C 及外圆φ200mm ,镗孔074.0060+φmm ,内孔倒角;调头,车端面A ,内孔倒角,车φ96mm 外圆,车端面B车床 2 插键槽 插床 3 划线 平台 4 钻孔、去毛刺钻床题解表 b 中批生产的工艺过程工序 工序内容 所用设备1 车端面C ,镗孔074.0060+φmm ,内孔倒角车床 2 车外圆φ200mm 、φ96mm 外圆、端面A 、B ,内孔倒角 车床(胀力心轴) 3 拉键槽 拉床 4 钻孔 钻床(钻模) 5 去毛刺 钳工台试拟定题图所示零件的机械加工工艺路线(包括工序名称、加工方法、定位基准),已知该零件毛坯为铸件(孔未铸出),成批生产。
(答案:该零件的机械加工工艺路线如题解表所示。
)题图 工序号 工序名称 工序简图工序内容0 铸铸—清砂—退火—检验1 车三爪自定心卡盘夹持 粗、精车A粗、精镗孔φ36mm ,成 倒角2 铣铣大端面 铣小端面3 钻、扩、铰钻--扩--铰孔φ15mm ,成4 插插键槽10mm5 钳 去毛刺,倒棱边6 检验 按图样要求检验题图为在齿轮上加工内孔和键槽的有关尺寸,其加工顺序如下:(1)拉内孔至0.0251053.75D φ+=mm ;(2)拉键槽保证尺寸x ,这时的工序尺寸只能从留有磨削余量的内孔下母线标注; (3)热处理(不考虑热处理后内孔的变形误差);(4)磨内孔,保证设计尺寸0.03054D φ+=mm ,考虑到磨孔后的中心(磨孔时是以齿轮节圆来定位的)不可能与拉孔中心重合,设同轴度误差为,即e=0±。