二次回路原理图
- 格式:doc
- 大小:1.29 MB
- 文档页数:36
目 录直流母线电压监视装置原理图------------------------------------------------1 直流绝缘监视装置----------------------------------------------------------2 不同点接地危害图----------------------------------------------------------3 带有灯光监视的断路器控制回路(电磁操动机构)--------------------------------4 带有灯光监视的断路器控制回路(液压操动机构)--------------------------------7 带有灯光监视的断路器控制回路(弹簧操动机构)--------------------------------8 闪光装置接线图(由两个中间继电器构成)--------------------------------------9 闪光装置接线图(由闪光继电器构成)------------------------------------------10 中央复归能重复动作的事故信号装置原理图------------------------------------11 预告信号装置原理图--------------------------------------------------------12 线路定时限过电流保护原理图------------------------------------------------14 线路方向过电流保护原理图--------------------------------------------------15 线路三段式电流保护原理图--------------------------------------------------16 线路三段式零序电流保护原理图----------------------------------------------17 双回线的横联差动保护原理图------------------------------------------------18 双回线电流平衡保护原理图--------------------------------------------------19 变压器瓦斯保护原理图------------------------------------------------------20 双绕组变压器纵差保护原理图------------------------------------------------21 变压器复合电压启动的过电流保护原理图--------------------------------------22 单电源三绕组变压器过电流保护原理图----------------------------------------23 变压器零序电流保护原理图--------------------------------------------------24 变压器中性点直接接地零序电流保护和中性点间隙接地保------------------------25 线路三相一次重合闸装置原理图----------------------------------------------26 储能电容器组接线图--------------------------------------------------------29 小电流接地系统交流绝缘监视原理接线图--------------------------------------29 变压器强油循环风冷却器工作和备用电源自动切换回路图------------------------30 变电站事故照明原理接线图--------------------------------------------------31 开关事故跳闸音响回路原理接线图--------------------------------------------32 10KV线路保护原理图-------------------------------------------------------33 直流回路展开图说明--------------------------------------------------------34 三绕组变压器差动保护原理图------------------------------------------------35 自动按频率减负荷装置(LALF)原理图------------------------------------------361、直流母线电压监视装置原理图直流母线电压监视装置主要是反映直流电源电压的高低。
直流母线电压监视装置原理图————————----—----—---—-—-—--—-—-—--——-—-———1直流绝缘监视装置——-——-—-—---—---——————------——-—-——-———--—-—-——-———-—--—-—1不同点接地危害图——--—---—--—-——--—-----——-——------—-————-——-—---—-—--—---—2带有灯光监视的断路器控制回路(电磁操动机构)----------——--—--—--3带有灯光监视的断路器控制回路(弹簧操动机构)——--——————-----————-5带有灯光监视的断路器控制回路(液压操动机构)-——----————-—-———-—6闪光装置接线图(由两个中间继电器构成)-----——---—--—-—----—-——--———8闪光装置接线图(由闪光继电器构成)——-—--—————--———-——-———-——-—-——----9中央复归能重复动作的事故信号装置原理图—-——-—-----——----—--———--9预告信号装置原理图—-—-—--——----—-——-—-—-----——-————-——-—--————-—————-—--11线路定时限过电流保护原理图-——-—--——--———-—-—-——-—————————--—--—-—-—-12 线路方向过电流保护原理图—--————-——--——-——--———--—--—--——--———--——-—-—13 线路三段式电流保护原理图-————-------——-——---—--------—-—-—------—-—--14线路三段式零序电流保护原理图——-—---—--———--—-—-—————----—-——-—————-15双回线的横联差动保护原理图——--—————--—------———-----—-—————--—-————-16双回线电流平衡保护原理图——-----—---——-————--——------————--—-———--—--—18变压器瓦斯保护原理图—-—-—-——---———-——-——--———-—---———----—-——---—---———19 双绕组变压器纵差保护原理图———-——-———-———-——--—--—-——---—————-—-——---20 三绕组变压器差动保护原理图———------——--—----———--—----—--——-————---—21变压器复合电压启动的过电流保护原理图-————--——-—-—--——-————-—-—-22单电源三绕组变压器过电流保护原理图——————---—-——-———---———--———--23变压器过零序电流保护原理图-———-—--—-———--—-———--——--------———----—--24变压器中性点直接接地零序电流保护和中性点间隙接地保-——--—24线路三相一次重合闸装置原理图-——--——-—----——-———--——--—---—-—-——-—--26自动按频率减负荷装置(LALF)原理图——----———---—-—---—--———-——-—--—29储能电容器组接线图--——-—--—-——------—-——---—--——---—--——————-—-——-—-———-29 小电流接地系统交流绝缘监视原理接线图—--——--——---—-----------—--29变压器强油循环风冷却器工作和备用电源自动切换回路图-——--—30变电站事故照明原理接线图——----——-—-————-----—-——-—-——-—-—--—--———--——31开关事故跳闸音响回路原理接线图—-—---——---——---———------—-————-—--—31二次回路展开图说明(10KV线路保护原理图)--——------—-—————--———-32直流回路展开图说明—-—--—---——---——-—-——-———-———————-—————-———--————---——331、图E—103为直流母线电压监视装置电路图,请说明其作用。
直流母线电压监视装置原理图 --------------------------------- 1直流绝缘监视装置 -------------------------------------------- 1不同点接地危害图 ------------------------------------------- 2带有灯光监视的断路器控制回路(电磁操动机构)------------------ 3带有灯光监视的断路器控制回路(弹簧操动机构)------------------ 5带有灯光监视的断路器控制回路(液压操动机构)------------------ 6闪光装置接线图(由两个中间继电器构成) -------------------------------- 8闪光装置接线图(由闪光继电器构成)-------------------------------------- 9中央复归能重复动作的事故信号装置原理图 ----------------------- 9预告信号装置原理图 ----------------------------------------- 11线路定时限过电流保护原理图---------------------------- 12线路方向过电流保护原理图 ----------------------------------- 13线路三段式电流保护原理图 ----------------------------------- 14线路三段式零序电流保护原理图 ------------------------------- 15双回线的横联差动保护原理图---------------------------- 16双回线电流平衡保护原理图 ----------------------------------- 18变压器瓦斯保护原理图 --------------------------------------- 19双绕组变压器纵差保护原理图 ---------------------------------- 20三绕组变压器差动保护原理图---------------------------- 21变压器复合电压启动的过电流保护原理图 ------------------------ 22单电源三绕组变压器过电流保护原理图 ------------------------- 23变压器过零序电流保护原理图---------------------------- 24变压器中性点直接接地零序电流保护和中性点间隙接地保——24线路三相一次重合闸装置原理图 -------------------------------- 26自动按频率减负荷装置(LALF)原理图 ------------------------ 29储能电容器组接线图 ----------------------------------------- 29小电流接地系统交流绝缘监视原理接线图 ------------------------ 29变压器强油循环风冷却器工作和备用电源自动切换回路图------30变电站事故照明原理接线图 ----------------------------------- 31开关事故跳闸音响回路原理接线图 ----------------------------- 31二次回路展开图说明(10KV线路保护原理图)--------------------------- 32直流回路展开图说明 ----------------------------------------- 331、图E-103为直流母线电压监视装置电路图,请说明其作用答:直流母线电压监视装置主要是反映直流电源电压的高低。
二次回路图(控制电路图解)
二次回路(secondary circuit)定义:测量回路、继电保护回路、开关控制及信号回路、操作电源回路、断路器和隔离开关的电气闭锁回路等全部低压回路。
由二次设备互相连接,构成对一次设备进行监测、控制、调节和保护的电气回路称为二次回路。
遇到困难和挫折,让我们感到:
物是人非事事休,欲语泪先流。
解决后就会感到:
正入万山圈子里,一山放过一山拦。
是在电气系统中由互感器的次级绕组、测量监视仪器、继电器、自动装置等通过控制电缆连成的电路。
用以控制、保护、调节、测量和监视一次回路中各参数和各元件的工作状况。
用于监视测量表计、控制操作信号、继电保护和自动装置等所组成电气连接的回路均称为二次回路或称二次接线。
直流母线电压监视装置原理图-------------------------------------------1 直流绝缘监视装置----------------------------------------------------------1不同点接地危害图----------------------------------------------------------2带有灯光监视的断路器控制回路(电磁操动机构)--------------------3 带有灯光监视的断路器控制回路(弹簧操动机构)--------------------5 带有灯光监视的断路器控制回路(液压操动机构)-------- -----------6 闪光装置接线图(由两个中间继电器构成)-----------------------------8 闪光装置接线图(由闪光继电器构成)-----------------------------------9 中央复归能重复动作的事故信号装置原理图-------------------------9 预告信号装置原理图------------------------------------------------------11 线路定时限过电流保护原理图------------------------------------------12 线路方向过电流保护原理图---------------------------------------------13 线路三段式电流保护原理图---------------------------------------------14 线路三段式零序电流保护原理图---------------------------------------15 双回线的横联差动保护原理图------------------------------------------16 双回线电流平衡保护原理图---------------------------------------------18 变压器瓦斯保护原理图---------------------------------------------------19 双绕组变压器纵差保护原理图------------------------------------------20 三绕组变压器差动保护原理图------------------------------------------21 变压器复合电压启动的过电流保护原理图---------------------------22 单电源三绕组变压器过电流保护原理图------------------------------23 变压器过零序电流保护原理图------------------------------------------24 变压器中性点直接接地零序电流保护和中性点间隙接地保------24线路三相一次重合闸装置原理图---------------------------------------26自动按频率减负荷装置(LALF)原理图--------------------------------29储能电容器组接线图------------------------------------------------------29小电流接地系统交流绝缘监视原理接线图---------------------------29变压器强油循环风冷却器工作和备用电源自动切换回路图------30变电站事故照明原理接线图---------------------------------------------31开关事故跳闸音响回路原理接线图------------------------------------31二次回路展开图说明(10KV线路保护原理图)-----------------------32直流回路展开图说明------------------------------------------------------331、图E-103为直流母线电压监视装置电路图,请说明其作用。
答:直流母线电压监视装置主要是反映直流电源电压的高低。
KV1是低电压监视继电器,正常电压KV1励磁,其常闭触点断开,当电压降低到整定值时, KV1失磁,其常闭触点闭合, HP1光字牌亮,发出音响信号。
KV2是过电压继电器,正常电压时KV2失磁,其常开触点在断开位置,当电压过高超过整定值时KV2励磁,其常开触点闭合, HP2光字牌亮,发出音响信号。
图E-103直流母线电压监视装置接线图2.说明图E-104直流绝缘监视装置接线图各元件的作用。
答:图E-108是常用的绝缘监察装置接线图,正常时,电压表1PV开路,而使ST1的触点5-7、9-11( ST1的1-3、2-4断开)与ST2的触点9-11接通,投入接地继电器KA。
当正极或负极绝缘下降到一定值时,电桥不平衡使KA动作,经KM而发出信号(若正、负极对地的绝缘电阻相等时,不管绝缘下降多少,KA不可能动作,就不能发出信号,这是其缺点)。
此时,可用2PV进行检查,确定是哪一极的绝缘下降(测“+”对地时,ST2的2-1、6-5接通;测“-”对地时,ST2的1-4、5-8接通。
正常时,母线电压表转换开关ST2的2-1、5-8、9-11接通,电压表2PV可测正、负母线间电压,指示为220V。
),若正极对地绝缘下降,则投ST1 I档,其触点1-3、13-14接通,调节R3至电桥平衡电压表1PV指示为零伏;再将ST1投至II档,此时其触点2-4、14-15接通,即可从1PV上读出直流系统的对地总绝缘电阻值。
若为负极对地绝缘下降,则先将ST1放在II档,调节3R至电桥平衡,再将ST1投至I档,读出直流系统的对地总绝缘电阻值。
假如正极发生接地,则正极对地电压等于零。
而负极对地指示为220V,反之当负极发生接地时,情况与之相反。
电压表1PV用作测量直流系统的总绝缘电阻,盘面上画有电阻刻度。
由于在这种绝缘监察装置中有一个人工接地点,为防其它继电器误动,要求电流继电器KA有足够大的电阻值,一般选30kΩ,而其启动电流为1.4mA,当任一极绝缘电阻下降到20 kΩ时,即能发出信号。
对地绝缘下降和发生接地是两种情况。
图E-104直流绝缘监视装置接线图3、根据图E-105分别说明A点与C点;B点与C点;A点与B点或A点与D点同时发生接地时有什么危害。
答:直流系统在变电站中具有重要的位置。
要保证一个变电站长期安全运行,其因素是多方面的,其中直流系统的绝缘问题是不容忽视的。
变电站的直流系统比较复杂,通过电缆沟与室外配电装置的端子排、端子箱、操作机构箱等相连接,因电缆破损、绝缘老化、受潮等原因发生接地的可能性较多,发生一极接地时,由于没有短路电流,熔断器不会熔断,仍可继续运行,但也必须及时发现、及时消除。
通常,要求直流系统的各种小母线、端子回路、二次电缆对地的绝缘电阻值,用500V摇表测量其值不得小于0.5MΩ。
直流回路绝缘的好坏必须经常地进行监视。
否则,会给运行带来许多不安全因素。
现以图E-105为例说明直流接地的危害。
当图中A点与C点同时有接地出现时,等于+WC、-WC通过大地形成短路回路,可能会使熔断器FU1和FU2熔断而失去保护电源;当B点与C点同时有接地出现时,等于将跳闸线圈短路,即使保护正常动作,YT跳闸线圈短路,即使保护正常动作,YT跳闸线圈也不会起动,断路器就不会跳闸,因此在有故障的情况下就要越级跳闸;当A点与B点或A点与D点,同时接地时,就会使保护误动作而造成断路器跳闸。
直流接地的危害不仅仅是以上所谈的几点,还有许多,在此不一一作介绍了。
因为发生直流接地将产生许多害处,所以对直流系统专门设计一套监视其绝缘状况的装置,让它及时地将直流系统的故障提示给值班人员,以便迅速检查处理。
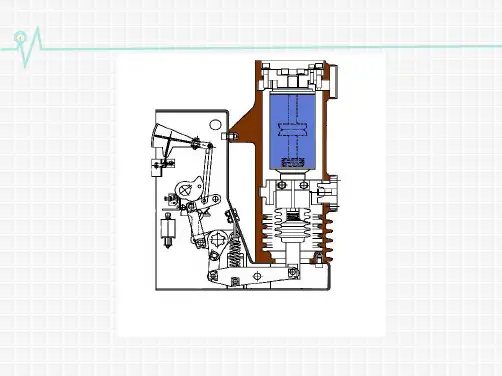
图E-105直流接地示意图4、据图E-106具有灯光监视的断路器控制回路图(电磁操动机构)说明各元件的名称,动作过程。
答:图中:+WC、-WC —控制母线; FU1、FU2—熔断器,R1-10/6型,250V;SA —控制开关,LW2-1a.4.6a.40.20.20/F8型;HG —绿色信号灯具,XD2型,附2500Ω电阻;HR —红色信号灯具,XD2型,附2500Ω电阻;KL —中间继电器,DZB-115/220V型;KMC—接触器; KOM —保护出口继电器;QF—断路器辅助开关;WCL—合闸小母线;WSA—事故跳闸小母线; WS—信号小母线;YT—断路器跳闸线圈;YC—断路器合闸线圈,FU1、FU2—熔断器,RM10-60/25 250V;R1—附加电阻,ZG11-25型,1Ω;R2—附加电阻,ZG11-25型,1000Ω;(+)WTW—闪光小母线。
(一)“跳闸后”位置当SA的手柄在“跳闸后”位置,断路器在跳闸位置时,其常闭触点闭合,+WC经FU1 SA11-10 HG及附加电阻 QF(常闭) KMC线圈FU2 -WC。
此时,绿色信号灯回路接通,绿灯亮,它表示断路器正处于跳闸后位置,同时表示电源、熔断器、辅助触点及合闸回路完好,可以进行合闸操作。
但KMC不会动作,因电压主要降在HG及附加电阻上。
(二)“预备合闸”位置当SA的手柄顺时针方向旋转90º至“预备合闸”位置,SA9-10接通,绿灯HG回路由(+)WTW SA9-10 HG QF(常闭) KMCFU2 -WC导通,绿灯闪光,发出预备合闸信号,但KMC仍不会启动,因回路中串有HG和R。
(三)“合闸”位置当SA的手柄再顺时针方向旋转45º至“合闸”位置时,SA5-8触点接通,接触器KMC回路由+WC SA5-8 KL2(常闭) QF(常闭)KMC线圈 -WC导通而启动,闭合其在合闸线圈回路中的触点,使断路器合闸。
断路器合闸后,QF常闭触点打开、常开触点闭合。
(四)“合闸后”位置松手后,SA的手柄自动反时针方向转动45º,复归至垂直(即“合闸后”)位置,SA16-13触点接通。
此时,红灯HR回路由 FU1SA16-13 HR KL线圈 QF(常开) YT线圈 FU2 -WC导通,红灯亮,指示断路器处于合闸位置,同时表示跳闸回路完好,可以进行跳闸。
(五)“预备跳闸”位置SA手柄在“预备跳闸”位置时,SA13-14导通,经(+)WTW HRKL QF常开触点 YT -WC回路,红灯闪光,发出预备合闸信号。
(六)“跳闸”位置将SA手柄反时针方向转45º至“跳闸”位置,SA6-7导通,HR及R被短接,经+WC SA6-7 KL QF常开触点 -WC,使YT励磁,断路器跳闸。