脱硫物料平衡计算公式
- 格式:xls
- 大小:16.00 KB
- 文档页数:1
Cp烟气=(0.2536+0.2520)/2=0.2528 kcal/kg.℃氧化空气进口温度为80℃,其比热约为0.2452 kcal/kg.℃,Cp(40℃)=0.2430kcal/kg.℃。
Cp空气=(0.2452+0.2430)/2=0.2441 kcal/kg.℃Cp水(20~40℃)=1.0kcal/kg.℃r水(20)=586kcal/kgr水(40)=575kcal/kg烟气蒸发水量=[0.2528×(70-40)×1630224+0.2441×15491.12×(80-40)]/[1.0×(40-20)+(586+575)/2]=20841kg/h=1156.55kmol/h水蒸汽含量=(2551.78+1156.55)/(54816.21+1156.55)=6.63%40℃水蒸汽饱和蒸汽压=0.00737MPa。
烟气总压102000Pa。
40℃烟气饱和水蒸汽含量=0.00737/0.102=7.23%根据以上计算,假设温度下烟气蒸发水量及原烟气含水量之和小于40℃烟气饱和水蒸汽含量。
因此,实际出口温度小于40℃。
2)假设出口温度为35℃烟气蒸发水量=[0.2528×(70-35)×1630224+0.2441×15491.12×(80-35)] /[1.0×(40-20)+(586+575)/2]=24296.6kg/h=1348.31kmol/h水蒸汽含量=(2551.78+1348.31)/(54816.21+1348.31)=6.94%35℃水蒸汽饱和蒸汽压=0.00562MPa。
35℃烟气饱和水蒸汽含量=0.00562/0.102=5.51%根据以上计算,假设温度下烟气蒸发水量及原烟气含水量之和大于35℃烟气饱和水蒸汽含量。
因此,实际出口温度大于35℃,取38.5℃,则烟气蒸发水量为1213.82kmol/h×18.02=21873kg/h,其水蒸汽含量=(2551.78+1213.82)/(54816.21+1213.82)=6.72%38.5℃水蒸汽饱和蒸汽压=0.00684MPa。
脱硫物料平衡水平衡计算引言脱硫是指对燃煤等含硫燃料进行处理,去除其中的硫化物,减少大气中的硫化物排放,减少空气污染。
在脱硫过程中,物料平衡是一个重要的参数,用于计算输入和输出的物料流量以及物料的组成。
本文将介绍脱硫物料平衡的计算方法,并给出一个示例。
脱硫物料平衡的基本原理脱硫过程中的物料平衡是根据质量守恒定律进行计算的。
假设脱硫系统中只有一个输入流和一个输出流,则物料平衡可以表示为以下公式:输入物料 = 输出物料其中,输入物料是指进入脱硫系统的物料流量和组成,输出物料是指离开脱硫系统的物料流量和组成。
脱硫物料平衡的计算方法脱硫物料平衡的计算包括以下几个步骤:1.确定输入流的物料流量和组成:根据实际情况,确定进入脱硫系统的物料流量和组成。
物料的组成可以通过化验等方法测定,一般以百分比的形式表示。
2.确定输出流的物料流量和组成:根据实际情况,确定离开脱硫系统的物料流量和组成。
与输入流相似,输出流的物料组成也以百分比的形式表示。
3.物料平衡计算:根据质量守恒定律,将输入物料和输出物料进行比较,并进行物料平衡计算。
物料平衡计算可以采用以下公式:输入物料 = 输出物料根据物料平衡公式,可以得到进一步的更具体的计算公式,如下所示:输入物料流量 × 输入物料组成 = 输出物料流量 × 输出物料组成根据该公式,可以计算出未知的物料流量或组成。
4.检查和修正:完成物料平衡计算后,应该对结果进行检查,确保计算的准确性。
如果有必要,可以对输入物料和输出物料的流量或组成进行修正,以满足物料平衡公式。
示例下面给出一个脱硫物料平衡的示例,以帮助读者更好地理解物料平衡的计算方法。
假设一个脱硫系统的输入流为500 kg,含硫量为3%;输出流的物料流量和组成未知。
我们需要计算输出流的物料流量和含硫量。
首先,根据已知条件可以得到:输入物料流量 = 500 kg,输入物料含硫量 = 3%然后,假设输出物料流量为X kg,输出物料含硫量为Y%。
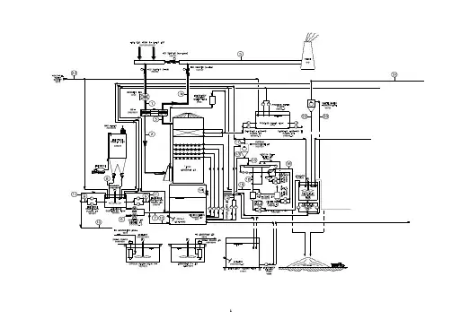
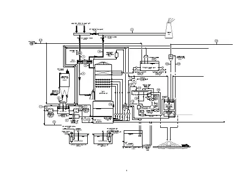
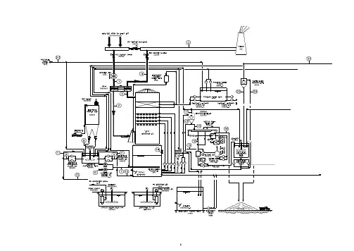
1M MMMM3MMMM湿法脱硫系统物料平衡一、计算基础数据(1)待处理烟气烟气量:1234496Nm3/h(wet)、1176998 Nm3/h(dry)烟气温度:114℃烟气中SO2浓度:3600mg/Nm3烟气组成:组分分子量V ol% mg/Nm3SO264.06 0.113 3600(6%O2)O232 7.56(dry)H2O 18.02 4.66CO244.01 12.28(dry)N228.02 80.01(dry)飞灰200 石灰石浓度:96.05%二、平衡计算(1)原烟气组成计算组分V ol%(wet) mg/Nm3kg/h Kmol/hSO20.1083226(7.56%O2)3797 59.33O27.208 127116 3972.38 H2O 4.66 46214 2564.59 CO211.708 283909 6452.48 N276.283 1177145 42042.89 飞灰200(dry)235合计1638416 55091.67平均分子量(0.108×64.06+7.208×32+4.66×18.02+11.708×44.01+76.283×28.02)/100=29.74平均密度 1.327kg/m3(2)烟气量计算1、①→②(增压风机出口→ GGH出口):取GGH的泄漏率为0.5%,则GGH出口总烟气量为1234496 Nm3/h×(1-0.5%)=1228324Nm3/h=1629634kg/h泄漏后烟气组分不变,但其质量分别减少了0.5%,见下表。
温度为70℃。
组分V ol%(wet) mg/Nm3kg/h Kmol/hSO20.1083226(7.56%O2)3778 59.03O27.208 126480 3952.52H2O 4.66 45983 2551.78CO211.708 282489 6420.22N276.283 1171259 41832.68飞灰200 234合计1630224 54816.212、⑥→⑦(氧化空气):假设脱硫塔设计脱硫率为95.7%,即脱硫塔出口二氧化硫流量为3778×(1-95.7%)=163 kg/h,二氧化硫脱除量=(3778-163)/64.06=56.43kmol/h。
1湿法脱硫系统物料平衡一、计算基础数据(1)待处理烟气烟气量:1234496Nm3/h(wet)、1176998 Nm3/h(dry)烟气温度:114℃烟气中SO2浓度:3600mg/Nm3烟气组成:石灰石浓度:96.05%二、平衡计算(1)原烟气组成计算(2)烟气量计算1、①→②(增压风机出口→ GGH出口):取GGH的泄漏率为0.5%,则GGH出口总烟气量为1234496 Nm3/h×(1-0.5%)=1228324Nm3/h=1629634kg/h泄漏后烟气组分不变,但其质量分别减少了0.5%,见下表。
温度为70℃。
2、⑥→⑦(氧化空气):假设脱硫塔设计脱硫率为95.7%,即脱硫塔出口二氧化硫流量为3778×(1-95.7%)=163 kg/h,二氧化硫脱除量=(3778-163)/64.06=56.43kmol/h。
取O/S=4需空气量=56.43×4/2/0.21=537.14kmol/h×28.86(空气分子量)=15499.60kg/h,约12000Nm3/h。
其中氧气量为537.14 kmol/h×0.21=112.80 kmol/h×32=3609.58kg/h氮气量为537.14 kmol/h×0.79=424.34 kmol/h×28.02=11890.02kg/h。
氧化空气进口温度为20℃,进塔温度为80℃。
3、②→③(GGH出口→脱硫塔出口):烟气蒸发水量计算:1)假设烟气进塔温度为70℃,在塔内得到充分换热,出口温度为40℃。
由物性数据及烟气中的组分,可计算出进口烟气的比热约为0.2536kcal/kg.℃,Cp =0.2520 kcal/kg.℃。
(40℃)Cp烟气=(0.2536+0.2520)/2=0.2528 kcal/kg.℃氧化空气进口温度为80℃,其比热约为0.2452 kcal/kg.℃,Cp(40℃)=0.2430kcal/kg.℃。
物料衡算-大气污染物大气污染物排污费的物料衡算方法一、二氧化硫(S02)1、公式:S02排放量(kg)G=1.6×B×S×(1-η)1.6是硫的转化系数(一般取硫的转化率为80%,消耗2个氧原子,80%×2=1.6;若硫的转化率为85%,系数则为1.7。
硫的转化率为80%--85%)B为用煤量,单位kg。
S为煤的含硫率。
η为脱硫效率。
2、若已知知S02排放量16吨,含硫率1%,无脱硫设施,反推用煤量B=G/1.6S=16/(1.6×1%)=1000吨二、烟尘公式:烟尘排放量(kg)=B×A×D×(1-η)/(1-C)B为用煤量,单位kg。
A为煤中灰分含量。
D为灰分中烟尘的百分比。
C为烟尘中可燃物含量。
η为除尘效率。
三、氮氧化物(NO X)公式:NO X月排放量(kg)=1.63×B×(N〃b+0.000938)B为耗煤量,单位kg。
N为煤的含氮率,一般为1.5%。
b为氮的NO X的转化率(不同的锅炉燃烧不同的燃料转化率不同,燃煤锅炉在25%至35%之间)。
1.63是NO X的转化系数。
0.000938是修正系数。
四、一氧化碳(CO)公式:CO排放量=2.33×Q×C×BB为耗煤量,单位kg。
Q为煤的含碳量百分比。
C为不完全燃烧值。
五、例子某链条锅炉用河南焦作煤700吨/月,锅炉除尘η为90%,无脱硫设施,求2012年7月份排污费应收多少元?解:(1)计算污染物排放量查《全国各地煤矿煤灰分含量》和《全国各地燃煤硫分含量》得河南煤灰分21.7%,硫分2.27%,链条炉中灰分的烟尘百分比为20%;可燃物含量30%,氮的NO X的转化率为37.5%;烟煤的含碳量为75%,不完全燃烧值为3%。
燃煤SO2排放量=1.6×700×2.27%×1000=25424(千克/月) 烟尘=1000×700×21.7%×20%×(1-92%)/(1-30%)=3472(千克/月) NO X=1.63×700×1000×(1.5%×37.5%+0.000938)=7488.38(千克/月)CO=2.33×700×1000×75%×3%=36697.5(千克/月) (1000为用煤量由吨转化为千克的系数)(2)污染当量:SO2=25424/0.95=26762.11当量烟尘=3472/2.18=1592.66当量NO X=7488.38/0.95=7882.51当量CO=36679.5/16.7=2197.46当量(3)确定收费因子为:SO2、NO X、烟尘。
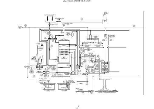
湿法脱硫系统物料均衡计算学习资料MM M3M MM MM M11 / 12湿法脱硫系统物料均衡一、计算基础数据(1)待办理烟气烟肚量: 1234496Nm3/h(wet)、1176998 Nm3/h(dry)烟气温度: 114℃烟气中 SO2浓度: 3600mg/Nm3烟气构成:组分分子量Vol% mg/Nm3SO2 64.06 0.113 (2)3600 6%OO2 32 7.56(dry)H2O 18.02 4.66CO 44.01 12.28(dry)2N2 28.02 80.01(dry)飞灰200 石灰石浓度: 96.05%二、均衡计算(1)原烟气构成计算组分Vol%(wet) mg/Nm3 kg/h Kmol/hSO2 0.10832263797 59.33 ( 7.56%O2)O2 7.208 127116 3972.38H2O 4.66 46214 2564.59CO2 11.708 283909 6452.48N 2 76.283 1177145 42042.89 飞灰200(dry)235共计1638416 55091.67 (0.108 ×64.06+7.208 ×32+4.66×18.02+11.708 ×44.01+76.283 ×2 均匀分子量8.02)/100=29.74均匀密度 1.327kg/m3(2)烟肚量计算1、①→②(增压风机出口→ GGH出口):取GGH 的泄露率为 0.5%,则 GGH 出口总烟肚量为 1234496 Nm3/h(×1-0.5%)=1228324Nm3/h=1629634kg/h泄露后烟气组分不变,但其质量分别减少了0.5%,见下表。
温度为 70℃。
组分Vol%(wet) mg/Nm3 kg/h Kmol/h20.108 32263778 59.03SO ( 7.56%O2)O2 7.208 126480 3952.52H2O 4.66 45983 2551.78CO2 11.708 282489 6420.22N2 76.283 1171259 41832.68飞灰200 234共计1630224 54816.212、⑥→⑦(氧化空气):假定脱硫塔设计脱硫率为 95.7%,即脱硫塔出口二氧化硫流量为 3778×(1-95.7%)=163 kg/h,二氧化硫脱除量 =(3778-163)/64.06=56.43kmol/h。
1湿法脱硫系统物料平衡一、计算基础数据(1)待处理烟气烟气量:1234496Nm3/h(wet)、1176998 Nm3/h(dry)烟气温度:114℃烟气中SO2浓度:3600mg/Nm3烟气组成:石灰石浓度:96.05%二、平衡计算(1)原烟气组成计算(2)烟气量计算1、①→②(增压风机出口→ GGH出口):取GGH的泄漏率为0.5%,则GGH出口总烟气量为1234496 Nm3/h×(1-0.5%)=1228324Nm3/h=1629634kg/h泄漏后烟气组分不变,但其质量分别减少了0.5%,见下表。
温度为70℃。
2、⑥→⑦(氧化空气):假设脱硫塔设计脱硫率为95.7%,即脱硫塔出口二氧化硫流量为3778×(1-95.7%)=163 kg/h,二氧化硫脱除量=(3778-163)/64.06=56.43kmol/h。
取O/S=4需空气量=56.43×4/2/0.21=537.14kmol/h×28.86(空气分子量)=15499.60kg/h,约12000Nm3/h。
其中氧气量为537.14 kmol/h×0.21=112.80 kmol/h×32=3609.58kg/h氮气量为537.14 kmol/h×0.79=424.34 kmol/h×28.02=11890.02kg/h。
氧化空气进口温度为20℃,进塔温度为80℃。
3、②→③(GGH出口→脱硫塔出口):烟气蒸发水量计算:1)假设烟气进塔温度为70℃,在塔内得到充分换热,出口温度为40℃。
由物性数据及烟气中的组分,可计算出进口烟气的比热约为0.2536kcal/kg.℃,Cp =0.2520 kcal/kg.℃。
(40℃)Cp烟气=(0.2536+0.2520)/2=0.2528 kcal/kg.℃氧化空气进口温度为80℃,其比热约为0.2452 kcal/kg.℃,Cp(40℃)=0.2430kcal/kg.℃。
脱硫物料平衡计算一、项目概况二、项目设计条件2.1 FGD装置条件1)规模 75t/h2)燃料煤3)脱硫工艺石灰石-石膏湿法4)吸收剂石灰石5)副产品石膏6)脱水系统真空皮带脱水机7)再加热方式: 无8)烟气量 112000Nm3/h(湿基)×2(100%BMCR)9)FGD入口温度 135℃(设计),141℃(最大)10)FGD入口SO2浓度 40001m3(干基)11)FGD入口粉尘浓度≤200mg/Nm3(干基,6%O2)12)FGD出口温度(进烟囱)≥50℃13)除雾器出口含水量≤75mg/ Nm3(干基)14)吸收剂耗量≤7.8t/h15)工艺水消耗量≤8.6t/h16)副产品石膏含水量≤15%17)电力消耗≤12700kWh/h18)脱硫效率≥92%19)系统可用率≥95%5.1.2 设计条件1)煤质分析项目单位设计煤种校核煤种元素分析Car %59.95 65.71Har % 2.25 2.36Oar %0.57 0.9Nar %0.94 0.74Sar % 2.29 2.29工业分析Var %9.0 7.0Aar %27.03 20.0Mar %7.0 8.0Mad % 2.17 1.67低位发热量kj/kg 21465 24668100%BMCR燃煤消耗量t/h(每台134.89 134.89炉)2)烟气设计条件项目单位100%BMCR 35%BMCR FGD入口烟气流量Nm3/h(湿基) 1256682 517256 FGD入口烟气流量Nm3/h(干基) 1193075 492172 FGD入口烟气温度℃131 103FGD入口烟气压力Pa 0 0粉尘浓度mg/Nm3 180.5 164.6SO2浓度ppm(dry) 1761 1652Nm3/h 2101 813烟气含水量V ol%(dry) 5.06 4.85烟气含氧量V ol%(dry) 7.46 8.29CO2 V ol%(dry) 12.29 11.53N2 V ol%(dry) 80.07 80.01HCL ppm(dry) 25.2 23.0HF ppm(dry) 11.2 10.2资料确认注意事项:1)由于烟气设计资料,常常会以不同的基准重复出现多次,(如:干基\湿基,标态\实际态,6%O2\实际O2等),开始计算前一定要核算统一,如出现矛盾,必须找出正确的一组数据,避免原始数据代错。
设计煤种校核煤种一、项目概况 、项目设计条件元素分析□□□□□□□□1)规模 2)燃料 75t/h煤3)脱硫工艺 石灰石-石膏湿法 4)吸收剂 石灰石 5)副产品石膏6)脱水系统真空皮带脱水机7)再加热方式:无8)烟气量 112000Nm3/h (湿基)x2(100%BMCR )9)FGD 入口温度135°C(设计),141°C(最大) 10)FGD 入口SO2浓度 40001m3(干基)11)FGD 入口粉尘浓度<200mg/Nm3(干基,6%02)12)FGD 出口温度(进烟囱)>50 13)除雾器出口含水量<75mg/Nm3(干基) 14)吸收剂耗量<7.8t/h15)工艺水消耗量<8.6t/h 16)副产品石膏含水量<15% 17)电力消耗<12700kWh/h18)脱硫效率>92% 19)系统可用率>95%5.1.2设计条件1)煤质分析2.1FGD 装置条件 项目 单位Car 59.95 65.71 Har2.252.36Oar%0.570.9Nar%0.940.74Sar% 2.29 2.29工业分析Var%9.07.0Aar%27.0320.0Mar%7.08.0Mad% 2.17 1.67低位发热量kj/kg2146524668100%BMCR燃煤消耗量t/h(每台134.89134.89炉)2)烟气设计条件项目单位100%BMCR35%BMCR FGD入口烟气流量Nm3/h(湿基)1256682517256 FGD入口烟气流量Nm3/h(干基)1193075492172 FGD入口烟气温度°C131103 FGD入口烟气压力Pa00粉尘浓度mg/Nm3180.5164.6 SO2浓度ppm(dry)17611652Nm3/h2101813烟气含水量Vol%(dry) 5.06 4.85烟气含氧量Vol%(dry)7.468.29 CO2Vol%(dry)12.2911.53 N2Vol%(dry)80.0780.01 HCL ppm(dry)25.223.0HF ppm(dry) 11.2 10.2资料确认注意事项:1)由于烟气设计资料,常常会以不同的基准重复出现多次,(如:干基\湿基,标态\实际态,6%02\实际O2等),开始计算前一定要核算统一,如出现矛盾,必须找出正确的一组数据,避免原始数据代错。
脱硫计算公式比较全湿法脱硫系统物料平衡一、计算基础数据(1)待处理烟气烟气量:1234496Nm3/h(wet)、1176998 Nm3/h(dry)烟气温度:114℃烟气中SO2浓度:3600mg/Nm3烟气组成:石灰石浓度:96.05%二、平衡计算(1)原烟气组成计算(2)烟气量计算1、①→②(增压风机出口→ GGH出口):取GGH的泄漏率为0.5%,则GGH出口总烟气量为1234496 Nm3/h×(1-0.5%)=1228324Nm3/h=1629634kg/h泄漏后烟气组分不变,但其质量分别减少了0.5%,见下表。
温度为70℃。
2、⑥→⑦(氧化空气):假设脱硫塔设计脱硫率为95.7%,即脱硫塔出口二氧化硫流量为3778×(1-95.7%)=163 kg/h,二氧化硫脱除量=(3778-163)/64.06=56.43kmol/h。
取O/S=4需空气量=56.43×4/2/0.21=537.14kmol/h×28.86(空气分子量)=15499.60kg/h,约12000Nm3/h。
其中氧气量为537.14 kmol/h×0.21=112.80 kmol/h×32=3609.58kg/h氮气量为537.14 kmol/h×0.79=424.34 kmol/h×28.02=11890.02kg/h。
氧化空气进口温度为20℃,进塔温度为80℃。
3、②→③(GGH出口→脱硫塔出口):烟气蒸发水量计算:1)假设烟气进塔温度为70℃,在塔内得到充分换热,出口温度为40℃。
由物性数据及烟气中的组分,可计算出进口烟气的比热约为0.2536kcal/kg.℃,Cp =0.2520 kcal/kg.℃。
(40℃)Cp烟气=(0.2536+0.2520)/2=0.2528 kcal/kg.℃氧化空气进口温度为80℃,其比热约为0.2452 kcal/kg.℃,Cp(40℃)=0.2430kcal/kg.℃。
湿法脱硫系统物料平衡计算基础数据(1)待处理烟气烟气量:1234496Nm3/h (wet)、1176998 Nm3/h (dry )烟气温度:114℃3烟气中SO2浓度:3600mg/Nm3 烟气组成:组分分子量Vol% mg/Nm3SO2 64.06 0.113 3600(6%O2)O2 32 7.56(dry)H2O 18.02 4.66CO2 44.0112.28(dry )N2 28.0280.01(dry )飞灰200石灰石浓度:96.05%1)原烟气组成计算组分Vol%(wet) mg/Nm3kg/h Kmol/hSO2 0.1083226(7.56%O2)3797 59.33O2 7.208 127116 3972.38 H2O 4.66 46214 2564.59 CO2 11.708 283909 6452.48 N2 76.283 1177145 42042.89 飞灰200(dry )235合计1638416 55091.67平均分子量(0.108 ×64.06+7.208 ×32+4.66×18.02+11.708×44.01+76.283 ×28.02 )/100=29.74平衡计算2)烟气量计算1、①→②(增压风机出口→ GGH出口):取GGH的泄漏率为0.5%,则GGH出口总烟气量为1234496 Nm3/h ×(1-0.5%)=1228324Nm3/h=1629634kg/h泄漏后烟气组分不变,但其质量分别减少了0.5%,见下表。
温度为70℃。
2、⑥→⑦(氧化空气):假设脱硫塔设计脱硫率为95.7%,即脱硫塔出口二氧化硫流量为3778×(1-95.7%)=163 kg/h ,二氧化硫脱除量=(3778-163)/64.06=56.43kmol/h 。
取O/S=4需空气量=56.43 ×4/2/0.21=537.14kmol/h ×28.86 (空气分子量)=15499.60kg/h ,约12000Nm3/h 。
湿法脱硫系统物料平衡计算基础数据(1)待处理烟气烟气量:1234496Nm3/h(wet)、1176998 Nm3/h(dry)烟气温度:114C烟气中S02浓度:3600mg/Nm3烟气组成:组分分子量Vol% mg/Nm3SO2 64.06 0.113 3600 (6%O2)O2 32 7.56(dry)H2O 18.02 4.66CO2 44.01 12.28(dry)N2 28.02 80.01(dry)飞灰200 石灰石浓度:96.05%(1)原烟气组成计算组分Vol%(wet) mg/Nm3kg/h Kmol/hSO2 0.1083226(7.56%O2)3797 59.33O2 7.208 127116 3972.38 H2O 4.66 46214 2564.59 CO2 11.708 283909 6452.48 N2 76.283 1177145 42042.89 飞灰200 (dry)235合计1638416 55091.67平均分子量(0.108 64.06+7.208 32+4.66 >18.02+11.708 44.01+76.283 28.02) /100=29.74平均密度 1.327kg/m3(2)烟气量计算1①一②(增压风机出口 - GGH出口):平衡计算取GGH的泄漏率为0.5%,则GGH出口总烟气量为1234496 Nm3/h Q-0.5%)3=1228324Nm3/h=1629634kg/h泄漏后烟气组分不变,但其质量分别减少了0.5%,见下表。
温度为70 C。
2、假设脱硫塔设计脱硫率为95.7%,即脱硫塔出口二氧化硫流量为3778 X (1-95.7%)=163 kg/h,二氧化硫脱除量=(3778-163)/64.06=56.43kmol/h。
取O/S=4需空气量=56.43 X2/0.2仁537.14kmol/h 28X6 (空气分子量)3=15499.60kg/h,约12000Nm/h。