主梁纵向预应力钢束横断面布置图(十)
- 格式:dwg
- 大小:79.12 KB
- 文档页数:1
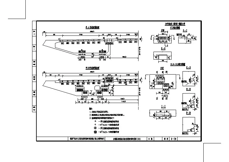
预应力钢束的布置 1)跨中截面及锚固端截面的钢束位置①.对于跨中截面,在保证布置预留管道构造要求的前提下,尽可能使钢束群重心的偏心距大些。
本算例采用内径70mm ,外径77mm 的预留铁皮波纹管,根据《公预规》9.1.1条规定,管道至梁底和梁侧净距不应小于3cm 及管道直径1/2。
根据《公预规》9.4.9条规定,水平净距不应小于4cm 及管道直径的0.6倍,在竖直方向可叠置。
根据以上规定,跨中截面的细部构造如图2-12所示。
由此可直接得出钢束群重心至梁底距离为:cm0.182)0.92(12.55.12=++=p a②.对于锚固端截面,钢束布置通常考虑下述两个方面:一是预应力钢束合力重心尽可能靠近截面形心,是截面均匀受压;二是考虑锚头布置的可能性,以满足张拉操作方便的要求。
为使施工方便,全部3束预应力钢筋均锚于梁端,如图2-12所示。
钢束群重心至梁底距离为:cm5931409550=++=p a图2-12 钢束布置图(尺寸单位:cm )a ) 预制梁端部;b ) 钢束在端部的锚固位置;c ) 跨中截面钢束位置2)其它截面钢束位置及倾角计算 ①钢束弯起形状、弯起角及其弯曲半径采用直线段中接圆弧线段的方式弯曲;为使预应力钢筋的预加力垂直作用于锚垫板,N1、N2和N3弯起角05.7=θ;各钢束的弯起半径为:mm R N 800001=;mm R N 250002=;mm R N 250003=。
由图2-12 a )可得锚固点到支座中心的水平距离xi a 为:cm 2535)tan7-(50-72a x321====x x a a②钢束各控制点位置的确定以N3号钢束为例,其起弯布置如图2-13所示。
图2-13 曲线预应力钢筋布置图(尺寸单位:mm )由0cot θ⋅=c L d 确定导线点距锚固点的水平距离mm 28485.7cot )125500(=⨯-= d L由)2/tan(02θ⋅=R L b 确定弯起点至导线点的水平距离 mm 163975.3tan 2500002=⨯=b L所以弯起点至锚固点的水平距离为mm 4486163928482=+=+=b d w L L L则弯起点至跨中截面的水平距离为mm L x w k 10204448614690)2502/29380(=-=--=根据圆弧切线的性质,图中弯止点沿切线方向至导线点的距离与弯起点至导线点的水平距离相等,所以弯止点至导线点的水平距离为mm 16255.7cos 1639cos 0021=⨯=⋅=θb b L L故弯止点至跨中截面的水平距离为mm 13468)1639162510204()(21=++=++b b k L L x同理可以计算N1、N2的控制点位置,将各钢束的控制参数汇总与表2-12。
预应力钢束的布置01)跨中截面及锚固端截面的钢束位置①.对于跨中截面,在保证布置预留管道构造要求的前提下,尽可能使钢束群重心的偏心距大些。
本算例采用内径70mm ,外径77mm 的预留铁皮波纹管,根据《公预规》9.1.1条规定,管道至梁底和梁侧净距不应小于3cm 及管道直径1/2。
根据《公预规》9.4.9条规定,水平净距不应小于4cm 及管道直径的0.6倍,在竖直方向可叠置。
根据以上规定,跨中截面的细部构造如图2-12所示。
由此可直接得出钢束群重心至梁底距离为:cm0.182)0.92(12.55.12=++=pa②.对于锚固端截面,钢束布置通常考虑下述两个方面:一是预应力钢束合力重心尽可能靠近截面形心,是截面均匀受压;二是考虑锚头布置的可能性,以满足张拉操作方便的要求。
为使施工方便,全部3束预应力钢筋均锚于梁端,如图2-12所示。
钢束群重心至梁底距离为:cm5931409550=++=pa图2-12 钢束布置图(尺寸单位:cm )a ) 预制梁端部;b ) 钢束在端部的锚固位置;c ) 跨中截面钢束位置2)其它截面钢束位置及倾角计算①钢束弯起形状、弯起角及其弯曲半径采用直线段中接圆弧线段的方式弯曲;为使预应力钢筋的预加力垂直作用于锚垫板,N1、N2和N3弯起角05.7=θ;各钢束的弯起半径为:mmR N 800001=;mmR N 250002=;mmR N 250003=。
由图2-12 a )可得锚固点到支座中心的水平距离x i a 为:cm2535)tan7-(50-72ax321====x x a a②钢束各控制点位置的确定以N3号钢束为例,其起弯布置如图2-13所示。
图2-13 曲线预应力钢筋布置图(尺寸单位:mm )由0cot θ⋅=c L d 确定导线点距锚固点的水平距离mm28485.7cot )125500(=⨯-=d L由)2/tan(02θ⋅=R L b 确定弯起点至导线点的水平距离mm163975.3tan 250002=⨯=b L所以弯起点至锚固点的水平距离为mm4486163928482=+=+=b d w L L L则弯起点至跨中截面的水平距离为mmL x w k 10204448614690)2502/29380(=-=--=根据圆弧切线的性质,图中弯止点沿切线方向至导线点的距离与弯起点至导线点的水平距离相等,所以弯止点至导线点的水平距离为mm16255.7cos 1639cos 0021=⨯=⋅=θb b L L故弯止点至跨中截面的水平距离为mm13468)1639162510204()(21=++=++b b k L L x同理可以计算N1、N2的控制点位置,将各钢束的控制参数汇总与表2-12。