角铁法兰加工工艺
- 格式:doc
- 大小:19.00 KB
- 文档页数:1
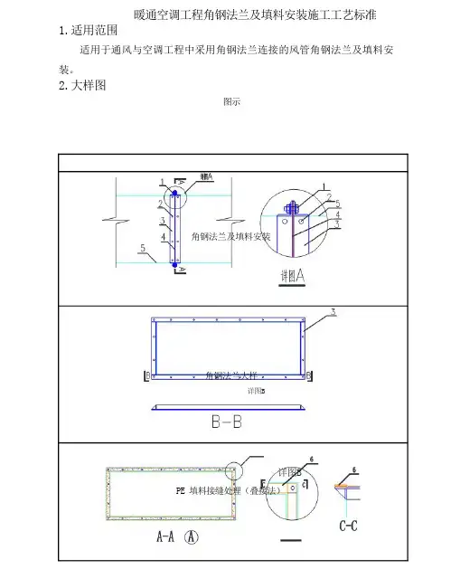
暖通空调工程角钢法兰及填料安装施工工艺标准1.适用范围适用于通风与空调工程中采用角钢法兰连接的风管角钢法兰及填料安装。
2.大样图图示角钢法兰及填料安装角钢法兰大样详图B详图BPE 填料接缝处理(叠接法)详图C详图C石棉板填料接缝处理图例:1.螺栓2.铆钉3.等边角钢4.填料5.风管6.PEF 填料7.特氟龙 8501 填料3.采购要求明确角钢规格、螺栓规格、填料材质及厚度。
4.工艺要求1)角钢法兰的螺孔大小与排列应一致,采用机械开孔;螺栓应均匀拧紧,螺母应在同一侧。
2)法兰填料厚度宜为 3~5 mm。
3)输送温度低于 70℃的空气选用 A 型接法,可用橡胶板、闭孔海棉橡胶板、密封胶带或其他闭孔弹性材料,推荐选用单面粘型 PEF 板;4)防、排烟系统或输送温度高于 70℃的空气或烟气选用 B 型接法,采用耐热橡胶板或不燃的耐温、防火材料,推荐选用特氟龙 8501。
5)法兰填料不应凸入管内,也不宜突出法兰外。
6)如设计对法兰填料材料及安装有特别规定的,按设计要求施工。
7)风管参数表 1 金属矩形风管角钢法兰连接附件规格及适用范围连接形式附件规格适用范围(风管边长 mm)低压风管中压风管高压风管M6 螺栓∠25?≤1250 ≤1000 ≤630 角钢法兰M8 螺栓∠30? ≤2000 ≤2000 ≤1250M8 螺栓∠40? ≤2500 ≤2500 ≤1600M8 螺栓∠50? ≤4000 ≤3000 ≤2500 表 2 金属圆形风管角钢法兰连接附件规格及适用范围连接形式附件规格连接要求适用范围∠25?角钢法兰连接∠30?∠40?法兰与风管连接采用低、中、高压风管铆接或焊接表 3 风管法兰垫料的种类和特性种类燃烧性能主要基材耐热性能岩棉类不燃 A 级600℃玻璃纤维类不燃 A 级300℃氯丁橡胶类难燃 B1级100℃异丁基橡胶类难燃 B1级80℃丁腈橡胶类难燃 B1级120℃。
金属法兰工艺流程
《金属法兰工艺流程》
金属法兰工艺是一种用于连接管道、阀门、泵等设备的金属连接件。
它的重要性在于它能够稳固地连接设备,并保证管道系统正常运行。
下面将详细介绍金属法兰的工艺流程。
首先,金属法兰工艺流程在选材时非常重要。
通常情况下,常用的金属材料包括碳钢、不锈钢、合金钢等。
选择合适的材料需要考虑环境、介质、温度等因素,以确保金属法兰的使用寿命和安全性。
接下来是加工工艺。
金属法兰的加工工艺包括锻造、精密铸造或焊接,其中焊接是常见的加工方式。
在加工过程中,需要精确的尺寸和表面光洁度,以确保金属法兰的质量达到标准要求。
然后是检测和校验。
完成金属法兰的加工后,需要进行严格的检测和校验,包括尺寸、表面质量、连接螺纹等方面。
只有通过检测和校验的金属法兰才能投入使用。
最后是包装和运输。
完成金属法兰的生产后,需要进行适当的包装,以确保在运输过程中不受损坏,以及方便存储和使用。
总的来说,《金属法兰工艺流程》虽然在加工过程中需要经历多个步骤,但每个步骤都至关重要。
只有严格按照标准要求来进行生产流程,才能最终得到高质量的金属法兰产品,保障管道系统的正常运行和安全性。
法兰盘的加工工艺设计法兰盘是连接管道或设备的重要组成部分,其加工工艺设计对产品质量和安全性起着至关重要的作用。
下面将详细介绍法兰盘的加工工艺设计。
首先,法兰盘的材料选择非常重要。
一般情况下,法兰盘的材料应具有良好的耐腐蚀性和耐磨性,以确保在长期使用过程中能够保持良好的工作状态。
常见的法兰盘材料包括碳钢、不锈钢、合金钢等。
在选择材料时需要考虑管道或设备的工作环境以及介质的性质等因素。
其次,法兰盘的加工工艺应满足工程要求。
在加工过程中,应参考工程设计图纸,严格按照要求进行加工。
常见的加工工艺包括锻造、铸造、焊接等。
根据不同的要求,选择合适的加工工艺和方法。
对于锻造法兰盘,应根据工程要求选择合适的锻造方法,如自由锻造、模锻等。
在锻造时,需注意加热温度和保温时间的控制,确保材料的塑性和韧性。
锻造后,需进行热处理以消除内应力,提高材料的性能。
对于铸造法兰盘,应选择适合的铸造方法,如砂型铸造、金属型铸造等。
在铸造前,需要制作好铸型,严格按照设计要求进行浇注。
铸造后,需进行除砂、研磨等处理,以消除缺陷并提高表面质量。
对于焊接法兰盘,需要选择合适的焊接方法和设备。
在焊接过程中,注意焊接电流、电压和焊接速度的控制,以确保焊缝的质量。
焊接完成后,需进行焊后热处理,以消除焊接应力和提高焊缝性能。
此外,还需注意法兰盘的尺寸精度和表面质量。
法兰盘的尺寸精度应满足设计要求,通常采用数控机床进行加工,确保尺寸的精度和一致性。
同时,还需对法兰盘的表面进行处理,如磨削、抛光等,以提高表面质量和光洁度。
总结起来,法兰盘的加工工艺设计需要考虑材料选择、加工工艺、尺寸精度和表面质量等因素。
通过合理选择材料、严格执行加工过程、控制加工参数,可以确保法兰盘的质量和安全性。
此外,还需要根据具体工程要求进行工艺设计,以满足使用要求。
技术交底记录
三、工艺流程
四、技术要点及质量标准
1.风管与配件的咬口缝紧密、宽度一致;折角平直,圆弧均匀;两端面平行。
风管无明显扭曲与翘角;半成品风管在搬运过程中注意保护风管保持风管表面应平整,凹凸不大于10mm;
2.在剪板过程中,对镀锌板的限位装置经常性检查,复核切刀及位置保证风管的外径或外边长在允许偏差符合要求(当小于或等于300mm 时,为2mm;当大于300mm时,为3mm。
管口平面度的允许偏差为2mm,矩形风管两条对角线长度之差不大于3mm;圆形法兰任意正交两直径之差不大于2mm)。
3.剪口切刀的位置经常性复核,保证剪口深度不大于15mm,确保风管拼装后剪口处严密。
4.在咬口过程中使风管边紧贴咬口机,限位板,保证咬口过程中咬口深度一直。
5.风管管件制作时板材拼接采用整板平行拼接,咬口缝错开,不得有
本表一式二份,交底人、被交底人各一份。
六角法兰螺母加工工艺流程那咱就来说说六角法兰螺母的加工工艺流程吧。
一、原材料准备。
这六角法兰螺母加工啊,第一步就得准备好原材料。
一般呢,会选用合适的金属材料,像碳钢啊就挺常用的。
这些原材料得是质量靠谱的,就跟咱找对象似的,得挑个好的基础。
原材料要是不好,后面加工出来的螺母那肯定也是问题多多。
比如说,要是金属里杂质太多,在加工的时候就可能出现裂缝之类的情况,那这螺母可就没法好好用啦。
而且啊,这原材料的尺寸也得大致符合要求,不能太离谱,不然加工的时候得费好大的劲儿去调整呢。
二、切割。
有了原材料之后呢,就要开始切割啦。
这一步啊,就像是给原材料做个初步的整形。
把一大块的原材料按照需要的大小切割成小块。
这时候啊,工人师傅就得特别小心,要切得准准的。
要是切得歪了或者尺寸不对,那后面可就麻烦喽。
就像做饭的时候切菜,切得不好看,炒出来的菜可能也没那么美味啦。
切割的工具也很重要哦,得是那种锋利又精准的工具,这样才能保证切出来的小块符合下一步加工的要求。
三、锻造。
切割好的小块就进入锻造环节啦。
锻造这个过程呢,就像是给螺母塑形。
通过各种锻造设备,把小块的原材料变成六角法兰螺母的大致形状。
这可不容易呢,得有合适的温度和压力。
温度低了,材料不好变形,温度高了呢,又可能会把材料给弄坏了。
就像我们人啊,得在合适的环境里才能茁壮成长。
在锻造的时候,工人师傅得时刻盯着,就像照顾小婴儿一样细心,确保每个螺母的形状都能锻造得差不多,六角的形状得规整,法兰部分也得有个雏形。
四、钻孔攻丝。
锻造出大致形状后,就要钻孔攻丝啦。
这可是很关键的一步呢。
钻孔就像是给螺母开个小嘴巴,攻丝呢就是在这个小嘴巴里做出螺纹。
这个螺纹可得做精细了,要是螺纹做得不好,那螺母和螺栓就没法好好配合啦。
就好比两个人跳舞,要是舞步都不协调,那还怎么跳得起来呢。
工人师傅在这一步得用很精密的工具,而且操作的时候得稳稳的,不然一不小心就可能把螺纹弄坏了,那这个螺母可能就成废品了。
目录前言 (2)一法兰零件的加工工艺 (3)(一)零件图工艺分析 (3)(二)选择数控加工的内容 (4)(三)确定加工方案 (4)1平面的加工 (5)2孔系的加工 (5)(四)毛坯尺寸与材料特性分析 (6)二确定定位装夹方案 (6)(一)定位基准的选择 (6)(二)夹具的选择 (6)(三)刀具的选择 (7)四确定加工顺序 (9)(一)切削用量的选择 (12)(二)切削深度的确定 (13)五编程 (13)(一)加工工艺 (13)(二)程序 (13)六操作要点及分析 (16)(一)操作要点 (16)(二)要点分析 (17)总结 (17)参考文献 (19)前百根据学院要求大学生毕业之前写毕业设计,毕业设计是完成教学计划、实现培养目标要求的重要培养阶段,是学生运用在校学习的知识,去分析,解决实际问题的实践锻炼过程,是一个综合性的教学实践环节。
毕业设计是大学期间,学生毕业前的最后学习阶段,是学习深化与升华的重要过程:;是学生学习研究与实践成果的全面总结;是学生综合素质与动手实践能力培养效果的全面检验,培养学生能够根据机械设备和零件的要求编制合理的加工工艺,最后生成数控加工程序。
随着科学技术的不断的发展,对机械产品的不断发展,对机械产品的质量和生产率提出了越来越高的要求。
机械加工过程的自动化是实现上述要求的最重要的措施之一。
它不仅能提高产品的质量,提高生产效率,降低生产成本,还能够大大降低工人的劳动强度。
近年来,由于市场竞争日趋激烈,为在竞争中求得生存与发展,各生产加工企业不仅要提高产品质量,而且必须不断的改进,缩短生产周期,以满足市场上不断变化的需要。
计算机控制的数控机床的高精度、高度柔性化及适合加工复杂零件的性能,正好满足当今市场激烈竞争和工艺发展的需求。
可以说,计算机数字控制技术的应用是机械制造行业先进生产技术的标志,在很大程度上决定了企业在市场竞争中的成败。
近年来,由于市场竞争日趋激烈,各生产不仅要提高质量的产品,而且为满足市场上不断变化的需要进行频频改进。
法兰是一种用于连接管道、阀门、泵等设备的关键组件,其制造工艺需要经过以下几个步骤:
1. 材料准备:法兰的材料通常为碳钢、不锈钢、铸钢等,根据需要选择合适的材料进行加工。
在材料准备阶段,需要对材料进行检测和筛选,确保其质量达标。
2. 切割工艺:利用切割机器将钢板或钢板和钢管切割成一定大小的法兰基体。
切割工艺要求精度高、速度快、无毛刺。
3. 冲压工艺:利用冲床等设备对法兰基体进行冲孔、冲眼、冲牙、冲凸起等加工。
4. 加工工艺:通过车床、数控机床等机械加工设备,对法兰进行精密加工,包括钻孔、攻丝、磨削、铣削等操作。
5. 焊接工艺:对于一些大型法兰,需要采用焊接工艺将不同零部件进行连接,常用的焊接方法有电弧焊、惰气保护焊等。
6. 表面处理:对法兰进行表面处理,包括喷砂、抛光、喷漆等,以提高法兰的耐腐蚀性和美观度。
7. 检验工艺:对法兰进行检验,确保其符合相关标准和客户需求。
通常包括外观质量、尺寸精度、材料成分、机械性能等多项指标。
以上是法兰制造工艺的主要步骤,每个步骤都需要控制加工精度,确保最终成品的质量符合标准要求。
温馨小提示:本文主要介绍的是关于角铁法兰风管与角钢法兰的区别的文章,文章是由本店铺通过查阅资料,经过精心整理撰写而成。
文章的内容不一定符合大家的期望需求,还请各位根据自己的需求进行下载。
本文档下载后可以根据自己的实际情况进行任意改写,从而已达到各位的需求。
愿本篇角铁法兰风管与角钢法兰的区别能真实确切的帮助各位。
本店铺将会继续努力、改进、创新,给大家提供更加优质符合大家需求的文档。
感谢支持!(Thank you for downloading and checking it out!)阅读本篇文章之前,本店铺提供大纲预览服务,我们可以先预览文章的大纲部分,快速了解本篇的主体内容,然后根据您的需求进行文档的查看与下载。
角铁法兰风管与角钢法兰的区别(大纲)一、引言1.1背景介绍1.2研究意义二、角铁法兰风管概述2.1定义与结构2.2材料与性能特点2.3应用场景三、角钢法兰概述3.1定义与结构3.2材料与性能特点3.3应用场景四、角铁法兰风管与角钢法兰的区别4.1结构与形状4.1.1角铁法兰风管的结构与特点4.1.2角钢法兰的结构与特点4.2材料与性能4.2.1角铁法兰风管的材料与性能4.2.2角钢法兰的材料与性能4.3制造工艺4.3.1角铁法兰风管的制造工艺4.3.2角钢法兰的制造工艺4.4安装与维护4.4.1角铁法兰风管的安装与维护4.4.2角钢法兰的安装与维护4.5经济性比较4.5.1角铁法兰风管的经济性4.5.2角钢法兰的经济性五、结论与建议5.1综合对比分析5.2选择与应用建议六、发展趋势与展望6.1行业发展趋势6.2技术创新与改进方向6.3市场前景分析一、引言在现代建筑和工业领域,风管系统的设计与施工是确保室内空气质量、节能减排以及舒适环境的关键环节。
风管材料的选用直接关系到系统的运行效率和使用寿命。
角铁法兰风管与角钢法兰风管作为常见的两种风管连接方式,在实际应用中各具特点。
然而,对于二者之间的具体差异,以及在不同工况下如何选择最合适的风管连接方式,是需要深入探讨的问题。
安徽丰力机械有限公司现在普遍使用的风管制造是用共板法兰,但在一些大型风管方面使用的还是角钢法兰生产线。
什么是角钢法兰?角钢法兰生产线操作流程是什么样的?安徽丰力机械制造有限公司为大家带来解答。
希望对大家有所帮助。
角钢法兰是指将角钢或角铁通过特制的设备进行卷弯,加工后的角钢仍然保持角钢的两条边垂直为90°,不翻边。
且没有褶皱。
角钢法兰分为两种:一种是角钢向外卷(角钢正卷,开口向外),一种是角钢向内卷(角钢反卷,开口向内)。
实际操作过程中,能做到两条边垂直为90°,并且不翻边的有一定难度,这是由其物理特性决定的。
角钢向外卷(角钢正卷,开口向外):角钢或角铁在进行卷弯的时候,外边被拉伸,而里边垂直的边被挤压,所以外边被延伸,里边被挤压,造成受力既不均匀,又是受的相反的力,从而造成加工后的角钢产生不是90°垂直,而且很可能有褶皱产生。
这种现象一般出现安徽丰力机械有限公司在5#以上角钢比较明显。
3#角钢及4#角钢如果加工的尺寸在600mm 以上,褶皱现象不是很明显。
角钢向内卷有一定难度,角钢在向内卷的过程中,外侧的立边受到挤压的应力,而里侧的边也同样受到挤压的应力,这就造成了两条边同时受挤压,被挤压变形的材料无处可去,所以在内侧积压,造成了一个个小突起,从而成为褶皱,加上受力不均匀,造成两条边并不垂直,常见的情况是两条边小于90°大多数厂家均能加工碳钢和不锈钢材质的角钢。
但一般能加工角钢法兰的工艺均是卷弯。
该工艺可以使角钢连续卷弯,从而没有料废。
拉弯的做出来的产品不是很理想,因为拉弯的产品是夹住两边,去顶中间,只有三个点受力,不是整个角钢都受力,所以一般不考虑拉弯工艺去制作角钢法兰。
安徽丰力机械制造有限公司(安力达机械)主要从事专业研发通风管道加工设备:超级U 型风管生产线五线、直线型风管生产线五线、超级风管生产线五线、风管生产线四线、风管生产线三线、风管生产线二线、角钢法兰生产线、剪板机、折边机、咬口机、压筋机、共板法兰机、偏三星卷板机、角铁卷圆机、牛头剪等通风管道加工机械设备。
技术交底记录表交底内容:1 适用范围本工艺标准适用于镀锌钢板角钢法兰风管的制作。
2 施工准备2.1 材料要求及主要机具:2.1.1 所使用板材、型钢的主要材料应具有出厂合格证明书或质量鉴定文件。
2.1.2 制作钢板风管及配件的钢板厚度按设计要求,当设计无要求应符合表4.2.3-1的规定,本项目排烟系统风管板材厚度均按照下表高压系统风管选用。
2.1.3 镀锌薄钢板表面不得有裂纹、结疤及水印等缺陷。
性能应宜于机械咬口。
2.1.4 常用机具有:风管三线机(送料机、剪板机、压筋机、倒角机)、风管六线机(送料机、剪板机、压筋机、倒角机)数控等离子切割机、咬口机、折方机、型钢切割机、液压铆钉机、台钻、手电钻、冲孔机、共板法兰机、电、气焊设备等设备及不锈钢板尺、钢直尺、角尺量器、划规、划针、铁锤、木锤、钢卷尺、石笔等小型工具。
2.2 作业条件:2.2.1 集中加工应具有宽敞、明亮、洁净、地面平整、不潮湿的加工场所。
具备三通一平(通水、通电、通路及土地平整)施工条件。
2.2.2 现场分散加工应具有能防雨雪、大风及结构牢固的设施。
夜间施工有充足的照明设施。
电动工具、照明插座完好,严禁两根裸线直接插在插座上。
2.2.3 作业地点要有相应加工工艺的基本机具、设施及电源和可靠的安全防护装置,并配有消防器材,文明施工。
2.2.4 风管及三通、弯头等部件的下料展开制作方法参见《通风工长》、《通风与安装工程便携手册》等书。
3 操作工艺3.1 工艺流程:3.2 划线的基本线有:直角线、垂直平分线、平行线、角平分线、直线等分、圆等分等。
展开方法宜采用平行线法、放射线法和三角线法。
根据风管不同的几何形状和规格,分别进行划线展开。
放样时应充分考虑利用板材,减少废料,在允许的情况下,拼板使用,严禁浪费。
例如采用1250mm规格的卷板角钢兰连接时,一般按每节直管模数为1240mm长,半截管按620mm长为好。
放样时应尽量考虑保证风管有效截面积,减小风道阻力。
角铁加工的原理角铁加工的原理是指通过一系列加工工艺和操作步骤,将原材料角铁转化成满足特定要求的产品。
下面将详细介绍角铁加工的原理。
角铁加工的主要工艺包括切割、成型、焊接、钻孔、磨削和表面处理等步骤。
首先,将原材料的角铁通过切割工艺分割成所需大小。
切割的常用方法有剪切、锯切和切割机等,根据产品设计的要求选择适当的切割方式。
接下来是成型过程,可以通过冷弯和热弯等方式将角铁加工成需要的形状。
冷弯可以通过在角铁上施加力量使其弯曲,而热弯则是通过加热角铁使其软化而得以弯曲。
这个过程需要根据产品需求和角铁的材质和厚度来确定。
焊接是角铁加工的重要一环,可以将多个角铁连接成整体。
常用的焊接方法有电弧焊、气焊和激光焊等,选择合适的焊接方法取决于材料的特性、产品的要求和成本因素等。
钻孔是角铁加工中常用的一道工序,可以在角铁上开辟孔洞。
钻孔可以通过手工钻和机械钻两种方式进行,根据孔洞的大小和数量选择适合的钻孔方式。
这个步骤在方便产品安装和连接等方面起到重要作用。
磨削是对角铁进行表面处理的过程,可以使其表面更加光滑和平整。
常用的磨削工艺有刷砂、打磨和抛光等,根据产品的要求选择适当的磨削方式。
磨削能够改善产品的外观质量和表面光洁度,提高产品的整体观感。
最后是表面处理,通过涂层或镀层等方法对角铁进行包装和保护。
涂层可以使用喷涂、涂装和喷粉等方式进行,镀层则可以利用电解镀和热镀等方法进行。
表面处理可以提高产品的耐腐蚀性、耐磨性和外观质量,延长产品的使用寿命。
综上所述,角铁加工的原理是通过一系列工艺和操作步骤将原材料角铁转化成特定要求的产品。
这个过程包括切割、成型、焊接、钻孔、磨削和表面处理等工艺,每个步骤都有其特定的目的和方法。
角铁加工是一个综合性的加工过程,需要根据产品要求和角铁的特性进行合理选择和操作。
锻造法兰加工工艺流程详细The process of forging flange machining involves several important steps to ensure the production of high-quality flanges. 鍛造法蘭加工工藝過程涉及幾個重要步驟,以確保生產高質量的法蘭。
Firstly, the raw material, usually a piece of metal, is heated to a specific temperature in a furnace. 首先,通常是一塊金屬原材料在爐子中加熱到特定溫度。
This process is essential for making the metal more malleable and easier to shape during the forging process. 這個過程對於在鍛造過程中使金屬更加韌性並更容易塑形至關重要。
Once the metal reaches the desired temperature, it is placed on a die and struck with a hammer to shape it into the desired form. 當金屬達到所需的溫度後,將其放在模具上,用鎚子敲打以將其塑形成想要的形狀。
This step requires a great amount of skill and precision from the workers to ensure the flange is formed correctly. 這一步需要工人具備高超的技巧和精密度,以確保法蘭被正確地塑形。
After the forging process, the flange is then machined to achieve the specific dimensions and surface finish required for its intendedapplication. 在鍛造過程之後,法蘭被加工,以達到其預期應用所需的特定尺寸和表面光洁度。
法兰零件的加工工艺一,零件的工艺分析。
ه对于该零件的工艺分析:主要从结构形状、尺寸和技术要求、定位基准及毛坯材料等方面进行。
该零件的加工表面由凸台平面、中心孔Φ40及2-Φ22的沉孔、2-Φ13的通孔组成?尺寸标注完整:几何条件充分。
各尺寸均未标注公差:Φ40内孔表面粗糙度要求较高:为Ra1.6um。
2个沉孔与通孔粗糙度要求不高:为Ra12.5um,其余各表面的粗糙度要求均为Ra3.2um。
但是该零件图为轴对称图形:轮廓有多次要求换向进给?每当坐标移动换向时;由正?负、负?正,:都有可能带入因机床磨损而产生的机械间隙:加工中要注意反向间隙补偿。
在数控铣床上加工时是手动换刀:不仅会降低生产效率:而且还会给编程增加许多麻烦:同时:因换刀增加了零件加工的接刀接差:从而降低了零件的加工质量。
因此尽量减少换刀次数。
该零件材料为HT200:切削加工性能好。
二,选择数控加工的内容数控铣床与普通铣床相比:具有加工精度高、加工零件的形状复杂、加工范围广等特点。
但是数控铣床价格较高:加工技术复杂:零件的制造成本也较高。
因此:正确选择适合数控铣削的内容就显得很有必要。
普通机床无法加工或加工难度不大、质量难以保证的内容作为数控加工的优先内容。
对于普通机床能加工但加工效率低:而且又可以在数控机床加工其它表面时顺带加工出的内容也可用数控加工。
例如该零件上2个Φ22沉孔及2个Φ除13通孔本身尺寸和加工精度要求都不高:但为了减少工艺装备:提高效率:可以在数控铣床上顺带加工完成。
除底面在普通机床上铣削外:其余各加工部位均需采用数控机床铣削加工。
三,确定加工方案根据上述分析:该法兰零件的中心孔Φ40表面粗糙度要求较高:因此应分别用粗、精加工两个阶段完成:Φ40孔采用三个工步?钻—粗镗—精镗的方法来加工完成:零件的上表面轮廓由粗铣、精铣完成。
另外由于工件毛坯是铸造件:加工余量较大:在加工中变形较大:因此也适合粗精加工分开的方法。
1平面的加工?由于上平面A采用的是去除材料的方法加工获得的表面:要求采用粗铣;精铣两种加工方案才能保证达到标准公差IT8级的精度:考虑到要进行高效率加工:尽量采用减少加工时间方法:故在进行粗加工时选用较大直径的面铣刀;宜选用直径大于80mm的面铣刀,进行粗铣和精铣由于粗铣和精铣在选择刀片上有所区别:所以选用两把刀具分别进行粗加工和精加工。
法兰厂家生产法兰的四种工艺法兰厂家生产工艺主要分为锻造、铸造、割制、卷制这四种。
1 铸造法兰铸造出来的法兰,毛坯形状尺寸准确,加工量小,成本低,但有铸造缺陷(气孔.裂纹.夹杂);铸件内部组织流线型较差(如果是切削件,流线型更差);2 锻造法兰锻造法兰一般比铸造法兰含碳低不易生锈,锻件流线型好,组织比较致密,机械性能优于铸造法兰;锻造工艺不当也会出现晶粒大或不均,硬化裂纹现象,锻造成本高于铸造法兰。
锻件比铸件能承受更高的剪切力和拉伸力。
铸件的优点在于可以制造出比较复杂的外形,成本比较低;锻件优点在于内部组织均匀,不存在铸件中的气孔,夹杂等有害缺陷;从生产工艺流程区别铸造法兰和锻造法兰的不同,比如离心法兰就属于铸造法兰的一种。
离心法兰属于精密铸造方法生产法兰,该种铸造较普通砂型铸造组织要细很多,质量提高不少,不易出现组织疏松、气孔、沙眼等问题。
首先我们需要了解离心法兰是怎样生产制作的,离心浇铸制作平焊法兰的工艺方法及产品,其特征是该产品经过下列工艺步骤加工而成:①将所选原材料钢材放入中频电炉熔炼,使钢水温度达到1600-1700℃;②将金属模具预加热到800-900℃保持恒温;③起动离心机,将步骤①中钢水注入步骤②中预热后金属模具;④铸件自然冷却到800-900℃保持1-10分钟;⑤用水冷却至接近常温,脱模取出铸件。
我们再来了解锻造法兰的生产工艺流程:锻造工艺过程一般由以下工序组成,即选取优质钢坯下料、加热、成形、锻后冷却。
锻造的工艺方法有自由锻、模锻和胎膜锻。
生产时,按锻件质量的大小,生产批量的多少选择不同的锻造方法。
自由锻生产率低,加工余量大,但工具简单,通用性大,故被广泛用于锻造形状较简单的单件、小批生产的锻件。
自由锻设备有空气锤、蒸汽-空气锤和水压机等,分别适合小、中和大型锻件的生产。
模锻生产率高,操作简单,容易实现机械化和自动化。
模锻件尺寸精度高,机械加工余量小,锻件的纤维组织分布更为合理,可进一步提高零件的使用寿命。
角钢法兰风管制作方案角钢法兰风管制方案1、目的学会制作角钢法兰风管2、适用范围适用于风管采用角钢法兰的连接工艺3、引用的标准及编制依据GB50243-2002《通风与空调工程施工质量验收规范》4、施工准备●机具:剪板机、咬口机、折弯机、砂轮切割机、电焊机、台钻等。
●工具:垫铁、板金榔头,钢板尺、曲尺、划规、木榔头、拍板、打胶枪等●风管预制应有独立的工作场地,地面已硬化平整、清洁,加工平台应找平5、工艺流程6、操作程序以及技术要求1)风管排料●根据施工图纸绘制加工草图,并在风管与设备的碰口,风管之间的连接短管以及一些特殊部位,留出一些活口,待安装阶段结合现场实际情况实测尺寸进行制作。
●根据料宽确定风管构成形式,即一节矩形风管由几片料构成,通常由两个L型板构成。
●咬口量确定:不同的咬口机、不同的咬?形式、不同的板厚咬口所耗板材是不一样的,所以咬口量的确定,应以实验的数据为准。
2)风管加工●根据系统的工作压力,正确选择板厚和采取密封措施得有裂纹、结疤水印等缺陷;不锈钢板和铝板其表面不得有明显的划痕、刮伤、斑痕和凹穴等缺陷。
●制作风管及配件的钢板厚度应满足设计要求,当设计无要求时,应符合下表规定。
钢板风管板材厚度高、中、低压系统不锈钢板风管板材厚度(mm)中低压系统铝板风管板材厚度(mm)●确,尺寸要准确。
●咬口时手指距滚轮护壳不小于5cm,不准放在咬口机轨道上,扶稳板料。
●咬口后的板料将画好的折方线放在折方机上,置于下模的中心线。
操作时使机械上刀片中心线与下模中心线重合,折成所需要的角度。
●折方时应互相配合并与折方机保持一定距离,以免被翻转的钢板或配重碰伤。
●制作圆风管时,将咬口两端拍成圆弧状放在卷圆机上圈圆,按风管圆径规格适当调整上、下辊间距,操作时,手不得直接推送钢板。
●拼接缝咬合:拼接缝咬合须在钢平台上进行。
用木榔头敲击,敲击时用力要适中,用力过小会造成假咬、开缝、漏风、强度不够等弊病,用力过大会造成拼接板面变形不平。
角钢法兰风管制作指导书风些短管段结合6.1.2根据料宽确定风管构成形式,即一节矩形范》4 施工准备4.1电焊机剪台板机等咬口机、折弯机、砂轮切割机、 干、台'钻.。
郅头钢板尺、曲尺、划规、 ,地面已硬化平木榔头:、垫板、打榔等 4-3整风 .....................工艺流程 4.2 清洁,1目的学会制作角钢法兰风管2适用范围适用于采用角钢法兰连接工艺的镀锌板风管的 制作3引用的标准及编制依据GB50243-2002《通风与空调工程施工质量验收规操作程序排及技术要求口工平台应找平6.1形管由几所管‘通常由两个 L 型板构成 咬口量的板定不同口以咬口机卜O咬 ? 的, 。
•2UM , 型。
陷 材養<要使疤集 或、,ji 按呛成埴用池m内卡吒1 j外罕吆口 低*中、崗”届址nxrrfh 咬口1底、叩.応“:班城 即晦呛相杵PM 弭1咬tt咬H厂恣、小、ffirt SiiftW 吧借戍NiitT 【叫ffi 唆JX幡扣K 吆n[1T c^J=r L -低.中Hi 规鴉処TV{VQr :嶼世订哎肾 咬 t-i_LJLMl,駅够典■横曲6.26.风密根据施统的工作压力'正确选择板厚和采系统类别 系统工作压力P(Pa)密封要求低压系统 P < 500 接缝和接管连接处严密 中压系统 500<P W 1500接缝和接管连接处增加密封措施高压系统P>1500 所有的拼接缝和接管连接处,均应采取密封措施类别风管直径D 或长边尺寸b圆形风管矩形风管除尘系统风管中、低压系统高压系统 D(b) < 320 0.5 0.5 0.75 1.5 320<D(b) < 450 0.60.6 0.75 1.5 450<D(b) < 630 0.75 0.6 0.75 2.0 630<D(b) < 1000 0.75 0.75 1.0 2.0 1000<D(b) < 1250 1.0 1.0 1.0 2.0 1250<D(b) < 2000 1.2 1.0 1.2 按设计2000<D(b) < 4000按设计1.2按设计注:1螺旋管的钢板厚度可适当减少10%〜15%。
角铁的工艺
角铁是一种金属材料,常用于制造或加工家具、门窗、栏杆等产品。
其工艺一般分为以下几个步骤:
1. 材料选择:选择适当的角铁材料,通常为冷轧钢板制成。
2. 切割:根据需要的尺寸,使用切割机械对角铁进行切割。
3. 弯曲:使用弯曲机或模具,将切割好的角铁进行弯曲成需要的形状。
4. 焊接:将弯曲好的角铁进行焊接,通常使用电焊或气焊等方式。
5. 打磨:用砂纸或砂轮等工具对焊接处进行打磨,使表面光滑。
6. 表面处理:根据需要,可以进行喷涂、镀锌、喷漆等处理,增加角铁的耐用性和美观度。
7. 组装:将不同部件的角铁进行组装,可使用螺栓、焊接、铆接等方式。
8. 配件安装:根据需要,安装角铁产品所需的配件,如门把手、轮子、玻璃等。
9. 检验和质量控制:对制作好的角铁产品进行检验,确保质量符合标准要求。
以上是角铁的一般工艺流程,具体工艺步骤可能会因产品类型和需求而有所不同。