沉箱重力式码头课程设计
- 格式:pptx
- 大小:9.30 MB
- 文档页数:24
重力式码头施工设计矩形沉箱方案制作成员:指导老师:编制时间: 2013-11-16重力式码头设计书本港拟选在青岛某海区,根据其海区地形、地质和水文、气象等自然条件及外部条件对工程的影响,确定该码头设为重力式矩形沉箱结构。
矩形沉箱制作比较简单,浮游稳定性好并采用了开孔沉箱以减少码头前波浪反射作用从而提高船舶泊稳性。
该码头主要从事集装箱、煤炭、原油、铁矿、粮食等进出口货物的装卸服务和国际国内客运服务并与多个国家和地区的港口进行贸易往来。
一、工程勘察设计:青岛市地处山东半岛的咽喉部位,濒临黄海,环绕胶州湾,山海形胜,腹地广阔与日本东京处于相同纬度,气候相似,属于北温带季风区域,具有海洋性气候特征——空气湿润,温度适中,四季分明,日温差小,气温升降平缓。
根据1898年以来的资料,青岛年平均气温12.7℃。
最高气温高于30℃的天数,年平均为11.4天;最低气温低于-5℃的天数,年平均为22天。
年平均无霜期251天,比相邻地区长一个月。
青岛春季持续时间较长,气温回升缓慢;夏季较内陆推迟1个月到来,湿润多雨,但无酷暑。
青岛属正规半日潮港,潮差为1.9~3.5米,大潮差发生于朔或望(上弦或下弦)日后2~3天。
二、工程设计内容:根据工程区域的地质结构条件码头结构形式为沉箱重力式结构。
沉箱为钢筋混凝土矩形沉箱。
沉箱尺度为12*8*8m(长、宽、高)。
单个沉箱重约1800t。
沉箱内抛填乱石和石渣,沉箱顶标高为-6m。
沉箱上部为预制空心方块,沉箱后设抛石棱体,其后回填石渣。
沉箱以下为抛石基床结构,采用10~100kg块石。
泊位设1000KN系船柱,共16套,码头防冲设备选取为TD—A1450H橡胶护舷,共计16套。
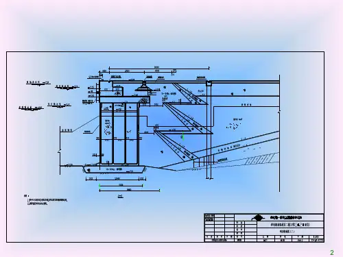
(具体图纸及尺寸见后页附录)所用材料见下表:三、工程的施工流程:1.施工准备:施工前先修复预制场、加工预制构件模板,准备沉箱。
2.基槽挖泥:施工前,抓斗式挖泥船应对船带GPS定位系统进行点校正,校正点应与本工程整体测量控制网相一致。
目录第一章设计资料------------------------------------- 3第二章码头标准断面设计------------------------ 5第三章沉箱设计------------------------------------- 11第四章作用标准值分类及计算----------------- 15第五章码头标准断面各项稳定性验算------- 44第一章设计资料(一)自然条件1.潮位:极端高水位:+6.5m;设计高水位:+5.3m;极端低水位:-1.1m;设计低水位:+1.2m;施工水位:+2.5m。
2.波浪:拟建码头所在水域有掩护,码头前波高小于1米(不考虑波浪力作用)。
3.气象条件:码头所在地区常风主要为北向,其次为东南向;强风向(7级以上大风)主要为北~北北西向,其次为南南东~东南向。
4.地震资料:本地的地震设计烈度为7度。
5.地形地质条件:码头位置处海底地势平缓,底坡平均为1/200,海底标高为-4.0~-5.0m 。
根据勘探资料,码头所在地的地址资料见图1。
图一 地质资料(二)码头前沿设计高程:对于有掩护码头的顶标高,按照两种标准计算:基本标准:码头顶标高=设计高水位+超高值(1.0~1.5m )=5.30+(1.0~1.5)=6.30~6.80m 复核标准:码头顶标高=极端高水位+超高值(0~0.5m )=6.50+(0~0.5)=6.50~7.00m(三) 码头结构安全等级及用途:码头结构安全等级为二级,件杂货码头。
(四) 材料指标:拟建码头所需部分材料及其重度、内摩擦角的标准值可按表1选用。
表1(五)使用荷载:1.堆货荷载:前沿q1=20kpa;前方堆场q2=30kpa。
2.门机荷载:按《港口工程荷载规范》附录C荷载代号Mh-10 -25 设计。
3.铁路荷载:港口通过机车类型为干线机车,按《港口工程荷载规范》表7.0.3-2中的铁路竖向线荷载标准值设计。
目录第一章设计资料------------------------------------- 3 第二章码头标准断面设计------------------------ 5 第三章沉箱设计------------------------------------- 11 第四章作用标准值分类与计算----------------- 15 第五章码头标准断面各项稳定性验算------- 44第一章设计资料(一)自然条件1.潮位:极端高水位:+6.5m;设计高水位:+5.3m;极端低水位:-1.1m;设计低水位:+1.2m;施工水位:+2.5m。
2.波浪:拟建码头所在水域有掩护,码头前波高小于1米(不考虑波浪力作用)。
3.气象条件:码头所在地区常风主要为北向,其次为东南向;强风向(7级以上大风)主要为北~北北西向,其次为南南东~东南向。
4.地震资料:本地的地震设计烈度为7度。
5.地形地质条件:码头位置处海底地势平缓,底坡平均为1/200,海底标高为-4.0~-5.0m。
根据勘探资料,码头所在地的地址资料见图1。
图一地质资料(二)码头前沿设计高程:对于有掩护码头的顶标高,按照两种标准计算:基本标准:码头顶标高=设计高水位+超高值(1.0~1.5m)=5.30+(1.0~1.5)=6.30~6.80m 复核标准:码头顶标高=极端高水位+超高值(0~0.5m)=6.50+(0~0.5)=6.50~7.00m (三)码头结构安全等级与用途:码头结构安全等级为二级,件杂货码头。
(四)材料指标:拟建码头所需部分材料与其重度、摩擦角的标准值可按表1选用。
表1(五)使用荷载:1.堆货荷载:前沿q1=20kpa;前方堆场q2=30kpa。
2.门机荷载:按《港口工程荷载规》附录C荷载代号Mh-10 -25 设计。
3.铁路荷载:港口通过机车类型为干线机车,按《港口工程荷载规》表7.0.3-2中的铁路竖向线荷载标准值设计。
4.船舶系缆力:按普通系缆力计算,设计风速22m/s。
第一篇设计任务书1、概述1.1编制本报告的主要依据和资料《重力式码头设计与施工规范》JTJ290-98、《海港水文规范》JTJ213-98、《水运工程抗震设计规范》JTJ225-98、《港口工程地基规范》JTJ250-98、《港口工程荷载规范》JTJ215-98以及课本《港口水工建筑物》。
1.2建设的必要性和建设规模1.2.1建设的必要性该工程为件杂货码头,将带动周围地区经济社会发展,是综合利用海岸线及海洋资源的需要,也是增加劳动就业,提高当地人民生活水平和促使社会安定的需要。
1.2.2建设的规模该码头结构形式为顺岸沉箱重力式,建筑物等级为二级。
2、自然条件分析2.1地理位置2.2气象码头所在地区常风主要为北向,其次为东南向;强风向(7级以上大风)主要为北~北北西向,其次为南南东~东南向。
2.2.1气温多年平均气温 13℃历年极端最高气温 41℃多年最高月平均气温 28℃历史极端最低气温 -21℃多年最低月平均气温 -6.3℃2.2.2降水本区域年平均降水量640~712mm,最多年降水量1064~1186mm,最小年降水量261~384mm,年降水量集中在夏季(6~8月),其中7月份降水量占全年降水量的30%左右。
2.2.3风况本区域常年主导风向,冬季多东北风,夏季多东南风。
年平均风速为2.8~3.8m/s ,大风多发生于春季,其次为冬季,秋季最少。
年大风天数平均10天,最多24天,最大风速达13~24m/s 。
2.2.4 雾况多年平均雾日为11~14天,多发生于冬季,秋季次之。
2.2.5 相对湿度年平均相对湿度为70%~80%。
2.3 水文2.3.1 潮汐、水位设计高水位: 3.8m 设计低水位: 0.32m 极端高水位: 4.9m 极端低水位: -1.1m 施工水位: 2.0m2.3.2 波浪拟建码头所在水域有掩护,码头前波高小于1米。
50年一遇,%1H 波浪高值为: 设计高水位: 6.3s T m 665.1%1== H 设计低水位: 6.3s T m 665.1%1== H 极端高水位: 6.3s T m 665.1%1== H2.3.3 海流 2.3.4 冰凌本区域一般12月下旬至次年2月上旬水面结冰,最大岸冰厚度2~3cm ,最大冻土深度10cm 。
“港口航道工程学”课程设计任务书--某港口沉箱码头初步设计“港口航道工程学”课程设计指导书某港口沉箱码头初步设计指导教师张劲松田兴参武汉大学水利水电学院2011年1月5日一、设计目的和要求本课程设计的目的,是通过对某市和尚岛港区沉箱码头部分水工结构的设计,进一步掌握所学《港口航道工程学》这门课程的主要内容,并初步学会运用有关专业课、技术基础课的理论去解决实际工程问题,训练编写设计说明书、绘制港口水工建筑物图纸的能力和技巧,以及培养正确的设计思想,熟悉有关的设计规范等。
由于时间关系,本设计是在已有勘测规划及部分设计成果的基础上进行的。
每个学生必须独立完成和提交所规定的设计成果。
说明书应概念明确,简明扼要,计算成果应正确无误,图纸应规范。
二、设计内容1、确定码头的等级;2、确定码头的结构形式并拟定其断面尺寸;3、确定码头的作用荷载;4、对码头进行稳定性验算。
三、设计成果1、设计说明书(包括计算部分)一份;2、码头结构布置剖面图一张(3号图)。
四、设计资料某市地处辽东半岛最南端,三面环海,气候温和,交通方便,是我国东北的一颗明珠,也是我国的重要港口和旅游城市,工业和旅游业十分发达。
但是,多年来该市一直处于缺煤少电状态,已严重影响了工业生产和人民生活,该市是围绕着老港口发展起来的城市,位于市中心的某些货场(如煤场)等已严重威胁着该市的安全。
同时,由于国民经济的蓬勃发展,吞吐量的急骤增加,船舶的停泊时间长,造成政治、经济上不应有的影响和损失。
为缓和本地区能源供应紧张,解决该市缺煤少电状况,并使这些货物有专用装卸码头和库场,国家计委批准兴建和尚岛港区,并列入国家重点工程项目。
(一)概况1、地理位置和尚岛港区位于本市海湾北端的红土堆子湾。
背靠市第四发电厂,与市经济开发区隔海相望,交通方便,有公路与该市至沈阳公路相接,铁路接东北干线,可达全国各地。
港区距市内陆路25公里,水路8海里。
2、自然条件该港区属海洋型气候,平均气温10.2℃,7~8月最高,一般为25︒左右,极值达34.4︒,1~2月最低,一般为-5~-10℃,极值达-21℃。
沉箱码头概预算课程设计一、课程目标知识目标:1. 让学生掌握沉箱码头工程的基本概念、组成和预算编制原则;2. 使学生了解沉箱码头工程预算的编制步骤和主要方法;3. 帮助学生掌握沉箱码头工程预算的相关规范和标准。
技能目标:1. 培养学生运用预算编制方法,独立完成沉箱码头工程预算的能力;2. 培养学生分析和解决沉箱码头工程预算过程中出现问题的能力;3. 提高学生运用计算机软件进行预算编制的技能。
情感态度价值观目标:1. 培养学生严谨、认真、负责的工作态度,增强团队合作意识;2. 激发学生对水利工程建设的兴趣,提高学生的专业认同感;3. 引导学生关注水利工程的社会效益和环境保护,培养其社会责任感。
本课程针对高年级学生,结合学科特点和教学要求,注重理论与实践相结合,旨在提高学生对沉箱码头工程预算的编制能力和实际操作技能。
通过本课程的学习,使学生能够具备从事沉箱码头工程预算编制的基本素质,为未来的职业发展奠定基础。
同时,注重培养学生的情感态度和价值观,使其成为具有社会责任感和专业素养的工程技术人才。
二、教学内容1. 沉箱码头工程基本概念:沉箱结构、码头分类及组成;2. 沉箱码头工程预算编制原则:预算编制的目标、依据、程序和标准;3. 沉箱码头工程预算编制步骤:收集资料、工程量清单编制、单价分析、总预算编制;4. 沉箱码头工程预算编制方法:单价法、实物量法、综合单价法;5. 沉箱码头工程预算相关规范和标准:国家及地方相关规范、行业标准;6. 计算机软件在沉箱码头工程预算中的应用:介绍常用的预算编制软件及操作方法;7. 沉箱码头工程预算案例分析:分析实际案例,提高学生实际操作能力。
教学内容按照教材章节进行组织,结合课程目标,确保科学性和系统性。
教学大纲安排如下:第一周:沉箱码头工程基本概念及组成;第二周:沉箱码头工程预算编制原则;第三周:沉箱码头工程预算编制步骤;第四周:沉箱码头工程预算编制方法;第五周:沉箱码头工程预算相关规范和标准;第六周:计算机软件在沉箱码头工程预算中的应用;第七周:沉箱码头工程预算案例分析及讨论。