挑梁验算
- 格式:ppt
- 大小:168.00 KB
- 文档页数:7
挑 梁 计 算多层砖混住宅,楼面恒载标准值为4.0KN/m2,活载标准值为2.0KN/m2;阳台恒载标准值为4.5KN/m2,活载标准值为2.5KN/m2,240厚KP1砖采用MU10砖与M5混合砂浆砌筑。
墙体重量(包括双面抹灰)为5.24 KN/m2,栏杆重量3.5 KN/m2计算。
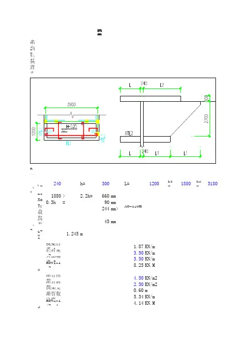
挑梁截面尺寸为240 mm X300 mm,自重为1.87KN/m(包括抹灰);封头梁截面尺寸为200 mm X300 mm,自重为2 .1KN/m(包括抹灰);A、楼面挑梁计算 TL1-1一、抗倾覆验算:b=240h=300L=1200L1=1880L2=3180(1)确定计算倾覆点到墙外边缘的距离X0L1=1880> 2.2h=660mmXo=0.3h=90mm符合0.13L1=244mm>Xo=120mm故取Xo=120mm因有构造柱0.5Xo=45mm(2)确定倾覆力距MovL+Xo= 1.245m1、挑梁、栏杆、墙产生的产生倾覆力距Mov1挑梁自重g1 1.87KN/m栏杆重g2 3.50KN/m外加墙重g3 3.50KN/mMov1=1.2x(g1+g2+g3)xL2/2=8.25KN.M2、阳台在挑梁产生倾覆力距Mov2阳台恒载 4.50KN/m2阳台活载 2.50KN/m2挑梁受荷面积S=L/20.60m阳台设计值g4= 5.34KN/mMov2=1/2xg4x(L+X0)2= 4.14KN.M3、边梁在挑梁产生倾覆力距Mov3边梁自重ga 1.56KN/m边梁上栏杆重gb 3.50KN/m边梁长度Lb3900mm边梁受荷面积S= L/20.60m边梁设计值q11.41KN/m边梁跨中弯矩M=1/8xqxLb221.70KN.M边梁剪力F=1/2xqxLb22.25KNMov3=FX(L+Xo)27.71KN.M总倾覆力距Mov= Mov1+ Mov2+ Mov3=40.10KN.M(3)确定抗倾覆力距Mr=0.8Gr(X2-X0)Gr为抗倾覆荷载,X2为Gr作用点到墙外边缘的距离。
悬挑梁验算一、基本参数二、荷载布置参数附图如下:平面图立面图三、主梁验算荷载标准值:q'=g k=0.205=0.205kN/m第1排:F'1=F1'/n z=5.09/1=5.09kN第2排:F'2=F2'/n z=5.09/1=5.09kN荷载设计值:q=1.3×g k=1.3×0.205=0.267kN/m第1排:F1=F1/n z=8.57/1=8.57kN第2排:F2=F2/n z=8.57/1=8.57kN1、强度验算弯矩图(kN·m)σmax=γ0M max/W=1×13.94×106/141000=98.867N/mm2≤[f]=215N/mm2 符合要求!2、抗剪验算剪力图(kN)τmax=γ0Q max/(8I zδ)[bh02-(b-δ)h2]=1×17.487×1000×[88×1602-(88-6)×140.22]/(8×11300000×6)=20.666N/mm2τmax=20.666N/mm2≤[τ]=125N/mm2符合要求!3、挠度验算变形图(mm)νmax=4.111mm≤[ν]=2×l x/250=2×1300/250=10.4mm符合要求!4、支座反力计算设计值:R1=-8.499kN,R2=26.413kN四、悬挑主梁整体稳定性验算受弯构件整体稳定性分析:其中φb -- 均匀弯曲的受弯构件整体稳定系数:查表《钢结构设计标准》(GB50017-2017)得,φb=2由于φb大于0.6,根据《钢结构设计标准》(GB50017-2017)附表C,得到 φb'值为0.93。
γ0M max/(φb'W x f)=1×13.94×106/(0.929×141×215×103)=0.495≤1符合要求!五、锚固段与楼板连接的计算锚固螺栓1锚固螺栓2 1、螺栓粘结力锚固强度计算锚固点锚固螺栓受力:N/2 =8.499/2=4.25kN螺栓锚固深度:h ≥ N/(4×π×d×[τb])=8.499×103/(4×3.14×16×2.5)=16.908mm螺栓验算:σ=γ0N/(4×π×d2/4)=1×8.499×103/(4×π×162/4)=10.568kN/mm2≤0.85×[f t]=42.5N/mm2 符合要求!2、混凝土局部承压计算如下混凝土的局部挤压强度设计值:f cc=0.95×f c=0.95×11.9=11.305N/mm2γ0N/2 =4.25kN ≤2×(b2-πd2/4)×f cc=2×(802-3.14×162/4)×11.305/1000=140.158kN注:锚板边长b一般按经验确定,不作计算,此处b=5d=5×16=80mm符合要求!11.3 移动钢平台验算计算依据:1、《建筑施工高处作业安全技术规范》JGJ80-20162、《钢结构设计标准》GB50017-20173、《建筑结构可靠性设计统一标准》GB50068-2018一、构造参数二、荷载参数三、设计简图型钢悬挑式_卸料平台平面布置图型钢悬挑式_卸料平台侧立面图四、面板验算面板受力简图如下:计算简图取单位宽度1m进行验算q=γ0[1.3×G k1×1+0.9×1.5×(1.3×Q k1+P k/S)×1]=1.1×[1.3×0.39×1+0.9×1.5×(1.3×2+10/2)×1]=11.844k N/mq静=1.1×1.3×G k1×1=1.1×1.3×0.39×1=0.558kN/mq活=1.1×0.9×1.5×(1.3×Q k1+P k/S)×1=1.1×0.9×1.5×(1.3×2+10/2)×1=11.286kN/m抗弯验算:M max=0.1×q静×s2+0.117×q活×s2=0.1×0.558×12+0.117×11.286×12=1.376kN·mσ=M max/ W=1.376×106/(37.5×103)=36.7N/mm2<[f]=205N/mm2面板强度满足要求!五、次梁验算次梁内力按以两侧主梁为支承点的简支梁计算:承载能力极限状态:q1=γ0[(1.3×G k1+0.9×1.5×1.3×Q k1)×s+1.3×G k2]=1.1×[(1.3×0.39+0.9×1.5×1.3×2)×1+1.3×0.169]=4.66kN/mp1=1.1×0.9×1.5×P k=1.1×0.9×1.5×10=14.85kN正常使用极限状态:q2=(G k1+Q k1)×s+G k2=(0.39+2)×1+0.169=2.559kN/mp2=P k=10kN1、抗弯强度计算简图M max=q1(L12/8-m2/2)+p1×L1/4=4.66×(22/8-02/2)+14.85×2/4=9.755kN.mσ=M max/(γx W X)=9.755×106/(1.05×102×103)=91.085N/mm2<[f]=205N/mm2次梁强度满足要求!2、挠度验算计算简图νmax=q2L14/(384EI x)(5-24(m/L1)2)+p2L13/(48EI x)=2.559×20004/(384×206000×712×104)×(5-24(0/2)2)+10×20003/(48×206000×712×104)=0.365mm<[ν]=L1/250=2000/250=8mm 次梁挠度满足要求!3、支座反力计算承载能力极限状态:R1=q1×B/2=4.66×2/2=4.66kN正常使用极限状态:R2=q2×B/2=2.559×2/2=2.559kN六、主梁验算根据《建筑施工高处作业安全技术规范》(JGJ80-2016),主梁内力按照外侧钢丝绳吊点和建筑物上支承点为支座的悬臂简支梁计算(不考虑内侧钢丝绳支点作用):承载能力极限状态:外悬挑段:q1=γ0γG×(G k3+G k4+G k5)=1.1×1.3×(0.172+0.150+0.010)=0.475kN/mp1=γ0γLγQ×P k/2=1.1×0.9×1.5×10/2=7.425kNR1=4.66kN内锚固段:q=γ0γG×G k3=1.1×1.3×0.172=0.246kN/m正常使用极限状态:外悬挑段:q2=G k3+G k4+G k5=0.172+0.150+0.010=0.332kN/mp2=P k/2=5kNR2=2.559kN内锚固段:q'=G k3=0.172kN/m1、强度验算计算简图弯矩图(kN·m)剪力图(kN)R外=12.761kNM max=9.942kN·mN=R外/tanα=R外/(h1/s1)= 12.761/(6.000/3.600)=7.657kNσ=M max/(γx W X)+N/A=9.942×106/(1.05×108.000×103)+7.657×103/(21.95×102)=91.160 N/mm2<[f]=205.000 N/mm2主梁强度满足要求!2、挠度验算计算简图变形图(mm)νmax=3.694mm<[ν]=(a1+c)/250.00=(3600.00+100)/250.00=14.800mm 主梁挠度满足要求!3、支座反力计算剪力图(kN)设计值:R外=12.761kN剪力图(kN)标准值:R'外=7.523kN如果外侧钢丝绳出现断裂,要求内侧钢丝绳能独立承担支撑作用,由于平台的受力情况发生了改变,故应重新建立计算模型计算:1、强度验算计算简图弯矩图(kN·m)剪力图(kN)R内=15.541kNM max=6.443kN·mN=R内/tanα=R内/(h2/s2)= 15.541/(3.000/3.000)=15.541kNσ=M max/(γx W X)+N/A=6.443×106/(1.05×108.000×103)+15.541×103/(21.95×102)=63.897 N/mm2<[f]=205.000 N/mm2主梁强度满足要求!2、挠度验算计算简图变形图(mm)νmax=1.647mm<[ν]=(a2+c)/250.000=(3000.00+100)/250.000=12.400mm 主梁挠度满足要求!3、支座反力计算剪力图(kN)R内=15.541kN剪力图(kN)标准值:R'内=9.101kN七、钢丝绳验算外侧钢丝绳与主梁夹角α=arctan(h1/s1)=59.036°sinα=sin59.036°=0.857内侧钢丝绳与主梁夹角β=arctan(h2/s2)=45°sinβ=sin45°=0.707标准值:T'=Max[R'外/sinα,R'内/sinβ]=Max[7.523/0.857,9.101/0.707]=12.871kN 设计值:T=Max[R外/sinα,R内/sinβ]=Max[12.761/0.857,15.541/0.707]=21.978kN 由于脚手架所使用的钢丝绳应采用荷载标准值按容许应力法进行设计计算[Fg]=aF g/K=0.820×197.500/10.000=16.195kN>T'=12.871kN钢丝绳强度满足要求!八、拉环验算节点二σ=T/(2A)=21.978×103/[2×3.14×(20/2)2]=34.997 N/mm2 < [f]= 65N/mm2 拉环强度满足要求!九、焊缝验算节点三σf=T/(h e×l w)=21.978×103/(6.000×120.000)=30.525N/mm2<f f w=160N/mm2 拉环焊缝强度满足要求!节点三σf=T/(h e×l w)=20.230×103/(6.000×120.000)=28.097N/mm2<f f w=160N/mm2 拉环焊缝强度满足要求!。
挑梁计算书一、TL1名称梁截面高度梁截面有效高度梁截面宽度梁挑出长度梁埋入长度层高HRB335抗拉强度C25抗压强度代号h h0 b L L1H fy fc 数值350 315 240 1.5 2.3 3 300 11.9 单位mm mm mm m m m N/mm N/mm名称梁挑出左开间梁挑出右开间梁埋入左开间梁埋入右开间C25抗拉强度HPB235抗拉强度代号Lt1Lt2Lm1Lm2ft fyv βcα1数值 3.6 3.3 3.6 3.3 1.27 210 1 1单位m m m m N/mm2N/mm2⒈荷载计算:G k=5*(Lt1+Lt2)/2= 17.25 kNQ k= 0 kNg1k=4*(Lt1+Lt2)/2+26*b*h/106= 15.984 kN/Mq1k=2.5*(Lt1+Lt2)/2= 8.625 kN/Mg2k=4*(Lm1+Lm2)/2= 13.8 kN/MGr=5.2*(2L1*H-L12/2)= 58.006 kNL2=(12L1*H-5*L12)/(12*H-3*L1)= 1.94 m∵L1= 2.3 m > 1.2*h= 0.42 m∴χo=0.3*h=0.11 m⒉内力及抗倾覆验算:Mov1=(1.35*Gk+1.4*0.7*Qk)*(L+χo)+1/2*(1.35*g1k+1.4*0.7*q1k)*(L+χo)2=76.06 kN.MMov2=(1.2*Gk+1.4*Qk)*(L+χo)+1/2*(1.2*g1k+1.4*q1k)*(L+χo)2= 73.48 kN.M ∴Mov= 76.06 kN.MMr=0.8*[1/2*g2k*(L1-χo)2+Gr*(L2-χo)]=111.5825 kN.M >Mov∴满足要求Vo1=1.35*(Gk+g1k*L)+1.4*0.7*(Qk+q1k*L)= 68.33 kNVo2=1.2*(Gk+g1k*L)+1.4*(Qk+q1k*L)= 67.58 kN∴V max= 68.33 kNM max=Mov= 76.06 kN.M⒊配筋计算:a s=M ov/(α1*fc*b*h o2)= 0.268 <0.399ζ=1-(1-2a s)1/2=0.3194 <0.55As=ζ*b*ho*fc/fy=957.79 mm2配HRB335:3根¢=22A s= 1140 mm2h w/b=h o/b= 1.31 <40.25*βc *fc*b*ho=224.91 kN >V max= 68.33 kN0.7*ft*b*ho= 67.21 kN <V max= 68.33 kNA sv/s=(V max-0.7*ft*b*ho)/(1.25fyv*ho)= 0.01 mm2/m 取s=150 mm 则A sv=2.042 mm2箍筋配¢8@150(双肢箍)A sv= 100.4800 mm2∴满足要求二、WTL1名称梁截面高度梁截面有效高度梁截面宽度梁挑出长度梁埋入长度层高HRB335抗拉强度C25抗压强度代号h h0 b L L1H fy fc 数值350 315 240 1.5 3.3 3 300 11.9单位mm mm mm m m m N/mm2N/mm2名称梁挑出左开间梁挑出右开间梁埋入左开间梁埋入右开间C25抗拉强度HPB235抗拉强度代号Lt1Lt2Lm1Lm2ft fyv βcα1数值 3.6 3.3 3.6 3.3 1.27 210 1 1单位m m m m N/mm2N/mm2⒈荷载计算:G k=5*(Lt1+Lt2)/2= 17.25 kNQ k= 0 kNg1k=7*(Lt1+Lt2)/2+26*b*h/106= 26.334 kN/Mq1k=2.0*(Lt1+Lt2)/2= 6.9 kN/Mg2k=7*(Lm1+Lm2)/2= 24.15 kN/M∵L1= 3.3 m > 1.2*h= 0.42 m∴χo=0.3*h=0.11 m⒉内力及抗倾覆验算:Mov1=(1.35*Gk+1.4*0.7*Qk)*(L+χo)+1/2*(1.35*g1k+1.4*0.7*q1k)*(L+χo)2=91.88 kN.MMov2=(1.2*Gk+1.4*Qk)*(L+χo)+1/2*(1.2*g1k+1.4*q1k)*(L+χo)2= 86.37 kN.M ∴Mov= 91.9 kN.MMr=0.8*1/2*g2k*(L1-χo)2=98.61 kN.M >Mov∴满足要求Vo1=1.35*(Gk+g1k*L)+1.4*0.7*(Qk+q1k*L)= 86.76 kNVo2=1.2*(Gk+g1k*L)+1.4*(Qk+q1k*L)= 82.59 kN∴V max= 86.76 kNM max=Mov= 91.9 kN.M⒊配筋计算:a s=M ov/(α1*fc*b*h o2)= 0.324 <0.399ζ=1-(1-2a s)1/2=0.4071 <0.55As=ζ*b*ho*fc/fy=1220.7 mm2配HRB335:4根¢=20A s= 1256 mm2h w/b=h o/b= 1.31 <40.25*βc *fc*b*ho=224.91 kN >V max= 86.76 kN0.7*ft*b*ho= 67.21 kN <V max= 86.76 kNA sv/s=(V max-0.7*ft*b*ho)/(1.25fyv*ho)= 0.24 mm2/m 取s=150 mm 则A sv=35.4620 mm2箍筋配¢8@150(双肢箍)A sv= 100.4800 mm2∴满足要求三、TL1名称梁截面高度梁截面有效高度梁截面宽度梁挑出长度梁埋入长度层高HRB335抗拉强度C25抗压强度代号h h0 b L L1H fy fc 数值300 315 240 1.5 2.3 3 300 11.9 单位mm mm mm m m m N/mm2N/mm2名称梁挑出左开间梁挑出右开间梁埋入左开间梁埋入右开间C25抗拉强度HPB235抗拉强度代号Lt1Lt2Lm1Lm2ft fyv βcα1数值 2.9 2.4 2.9 2.4 1.27 210 1 1单位m m m m N/mm2N/mm2⒈荷载计算:G k=5*(Lt1+Lt2)/2= 13.25 kNQ k= 0 kNg1k=4*(Lt1+Lt2)/2+26*b*h/106= 12.472 kN/Mq1k=2.5*(Lt1+Lt2)/2= 6.625 kN/Mg2k=4*(Lm1+Lm2)/2= 10.6 kN/MGr=5.2*(2L1*H-L12/2)= 58.006 kNL2=(12L1*H-5*L12)/(12*H-3*L1)= 1.94 m∵L1= 2.3 m > 1.2*h= 0.36 m∴χo=0.3*h=0.09 m⒉内力及抗倾覆验算:Mov1=(1.35*Gk+1.4*0.7*Qk)*(L+χo)+1/2*(1.35*g1k+1.4*0.7*q1k)*(L+χo)2=57.93 kN.MMov2=(1.2*Gk+1.4*Qk)*(L+χo)+1/2*(1.2*g1k+1.4*q1k)*(L+χo)2= 55.92 kN.M ∴Mov= 57.93 kN.MMr=0.8*[1/2*g2k*(L1-χo)2+Gr*(L2-χo)]=106.3916 kN.M >Mov∴满足要求Vo1=1.35*(Gk+g1k*L)+1.4*0.7*(Qk+q1k*L)= 52.88 kNVo2=1.2*(Gk+g1k*L)+1.4*(Qk+q1k*L)= 52.26 kN∴V max= 52.88 kN M max=Mov= 57.93 kN.M⒊配筋计算:a s=M ov/(α1*fc*b*h o2)= 0.204 <0.399ζ=1-(1-2a s)1/2=0.2311 <0.55As=ζ*b*ho*fc/fy=693.13 mm2配HRB335:3根¢=22A s= 1140 mm2h w/b=h o/b= 1.31 <40.25*βc *fc*b*ho=224.91 kN >V max= 52.88 kN0.7*ft*b*ho= 67.21 kN <V max= 52.88 kNA sv/s=(V max-0.7*ft*b*ho)/(1.25fyv*ho)= -0.17 mm2/m 取s=150 mm 则A sv=-25.989 mm2箍筋配¢8@150(双肢箍)A sv= 100.4800 mm2∴满足要求二、WTL1名称梁截面高度梁截面有效高度梁截面宽度梁挑出长度梁埋入长度层高HRB335抗拉强度C25抗压强度代号h h0 b L L1H fy fc 数值350 315 240 1.5 3.3 3 300 11.9单位mm mm mm m m m N/mm2N/mm2名称梁挑出左开间梁挑出右开间梁埋入左开间梁埋入右开间C25抗拉强度HPB235抗拉强度代号Lt1Lt2Lm1Lm2ft fyv βcα1数值 3.6 3.3 3.6 3.3 1.27 210 1 1单位m m m m N/mm2N/mm2⒈荷载计算:G k=5*(Lt1+Lt2)/2= 17.25 kNQ k= 0 kNg1k=7*(Lt1+Lt2)/2+26*b*h/106= 26.334 kN/Mq1k=2.0*(Lt1+Lt2)/2= 6.9 kN/Mg2k=7*(Lm1+Lm2)/2= 24.15 kN/M∵L1= 3.3 m > 1.2*h= 0.42 m∴χo=0.3*h=0.11 m⒉内力及抗倾覆验算:Mov1=(1.35*Gk+1.4*0.7*Qk)*(L+χo)+1/2*(1.35*g1k+1.4*0.7*q1k)*(L+χo)2=91.88 kN.MMov2=(1.2*Gk+1.4*Qk)*(L+χo)+1/2*(1.2*g1k+1.4*q1k)*(L+χo)2= 86.37 kN.M ∴Mov= 91.9 kN.MMr=0.8*1/2*g2k*(L1-χo)2=98.61 kN.M >Mov∴满足要求Vo1=1.35*(Gk+g1k*L)+1.4*0.7*(Qk+q1k*L)= 86.76 kNVo2=1.2*(Gk+g1k*L)+1.4*(Qk+q1k*L)= 82.59 kN∴V max= 86.76 kNM max=Mov= 91.9 kN.M⒊配筋计算:a s=M ov/(α1*fc*b*h o2)= 0.324 <0.399ζ=1-(1-2a s)1/2=0.4071 <0.55As=ζ*b*ho*fc/fy=1220.7 mm2配HRB335:3根¢=25A s= 1472 mm2h w/b=h o/b= 1.31 <40.25*βc *fc*b*ho=224.91 kN >V max= 86.76 kN0.7*ft*b*ho= 67.21 kN <V max= 86.76 kNA sv/s=(V max-0.7*ft*b*ho)/(1.25fyv*ho)= 0.24 mm2/m 取s=150 mm 则A sv=35.4620 mm2箍筋配¢8@150(双肢箍)A sv= 100.4800 mm2∴满足要求。
挑长l(m) 1.86层高H(m)2.9混凝土容重KN/m 225墙体抹灰容重KN/m 220砌体容重KN/m 220挑梁根部弯矩M OV1(KN*m)79.7楼面恒载标准值KN/m 25挑梁埋入墙体内长度l 1(m) 2.8挑梁截面高度h(m)0.35挑梁截面宽度b(m)0.24挑梁计算倾覆点距墙边距离x 0(m)0.105挑梁下墙体长度(m) 3.6墙体剩余长度(m)0.8房间1长L 1(m) 4.8房间1宽B 1(m) 2.6房间2长L 2(m) 4.8房间2宽B 2(m) 3.9α1=B 1/(2*L 1)0.27083333α2=B 2/(2*L 2)0.40625楼面传给挑梁的线荷载(KN/m)12.8610165梁自重及抹灰(KN/m) 2.38挑梁尾部45度扩散角及本曾砌体自重本层楼面恒载对挑梁倾覆点产生的弯矩Mr1对挑梁倾覆点产生的弯矩Mr2总弯矩值Mr111.278695是否满足满足挑长l(m) 1.86层高H(m) 2.85混凝土容重KN/m 225墙体抹灰容重KN/m 220砌体容重KN/m 220挑梁根部弯矩M OV1(KN*m)49.9楼面恒载标准值KN/m 2 5.5挑梁埋入墙体内长度l 1(m) 3.8挑梁截面高度h(m)0.35挑梁截面宽度b(m)0.24挑梁计算倾覆点距墙边距离x 0(m)0.105挑梁下墙体长度(m) 4.2墙体剩余长度(m)0.4顶层1、几何参数TL-1挑梁抗倾覆计算2、计算67.000341344.2783534房间1长L 1(m) 4.8房间1宽B 1(m) 2.6房间2长L 2(m) 4.8房间2宽B 2(m) 3.9α1=B 1/(2*L 1)0.27083333α2=B 2/(2*L 2)0.40625楼面传给挑梁的线荷载(KN/m)14.1471181梁自重及抹灰(KN/m)2.38本层楼面恒载对挑梁倾覆点产生的弯矩Mr2总弯矩值Mr90.2580626是否满足满足2、计算90.2580626。
㈢、悬挑梁(槽钢)验算.1、强度验算。
(计算简图如下图所示)①最大弯矩Mmax:Mmax=10.8×1.2+10.8×=15.12KN·m 2700 200 1000根据查表得槽钢的[σ]=21KN/mW=M/[σ]=15.12×100/21=72cm<[16a的[W]=108.3cm3因此,强度满足。
②抗弯验算。
根据查表得:槽钢的抗弯允许应力为17KN/m2W=M/[σ]=15.12×100/17=88.9m3<[16a的[W]=108.3cm因此,满足要求。
2、挠度验算。
(用叠加法求挠度)查表得槽钢[16a的惯性矩lx为866.20cm4,弹性模量E为2.06×10Mpa。
得外立杆作用于槽钢产生的挠度:Fa=PL3/3EL=10.8×1.2×109/(3×2.06×105×866.2×104)=0.16mm则槽钢的总挠度:F=Fa+Fb=0.16+3.5=3.66mm<L/150=8mm 满足要求。
㈣、脚手架稳定性验算。
1、不组合风荷载验算:按公式:N/ϕA≤fc/rn…………………………①其中:N为轴向力。
ϕ为格构式压杆稳定系数。
fc为钢材的抗压、弯强度设计值,即fc=205N/mm2rn为材料强度附加分项系数,查表得rn=1.5607,钢管的回转半径r=15.8mm。
又根据脚手架的布置情况,查表得μ=1.50长细比λx=1.8×1.5/15.8×10-2=171,查表得ϕ=0.243代入①式,得N/ϕA=10.8×106/0.243×489=90.9<fc/rn=205/1.5607=131.4N/mm2。
满足要求2、组合风荷载演算。
按公式N/ϕA+M W /W≤f其中M W为风荷载标准值产生的弯矩,按下列公式计算M W=0.85×1.4M Wk/10=0.85×1.4Wklah2/10=0.85×14×1.5×1.82×Wk=0.58×Wk=0.58×0.7×1.3×Uz×Us×Wo=0.58×0.7×1.3×0.089×1.7×0.7=0.056VKN·MN/ϕA+M W /W=90.9+5.6×104/5080=101.9N/mm2<f=205N/mm2满足要求。
第一节、工程概况一、工程概况【工程概况应针对该危险性较大的分部分项工程的特点及要求进行编写】工程基本情况各责任主体名称建设单位设计单位施工单位监理单位项目经理总监理工程师技术负责人专业监理工程师二、施工平面布置三、施工要求1、确保脚手架、悬挑主梁在使用周期内安全、稳定、牢靠。
2、脚手架在搭设及拆除过程中要符合工程施工进度要求。
操作人员需取得特殊作业人员资格上岗证。
四、技术保证条件1、安全网络2、脚手架、悬挑主梁的搭设和拆除需严格执行该《专项施工方案》。
第二节、编制依据《建筑施工脚手架实用手册》《建筑结构荷载规范》GB50009-2001(06年版)《混凝土结构设计规范》GB50010-2010《钢结构设计规范》GB50017-2003《建筑施工安全检查标准》JGJ59-99《建筑施工高处作业安全技术规范》JGJ80-91危险性较大的分部分项工程安全管理办法(建质[2009]87号文)相关施工设计图纸等。
第三节、施工计划一、施工进度计划二、材料与设备计划1、水平悬挑梁,其钢材强度等级为Q235-A,型号见材料表,水平梁悬挑梁所使用的钢材必须表面平整,无锈蚀。
截面有足够的抗弯抵抗距,在满载条件下其挠度变形应满足相应设计要求。
2、U型螺栓应符合现行国家标准《钢结构设计规范》(GB50017)的有关规定。
固定钢梁的钢筋拉环应符合现行国家标准《混凝土结构设计规范》(GB50010)规定。
主要材料参数表【多排悬挑架主梁验算】第四节、施工工艺技术一、技术参数【多排悬挑架主梁验算】二、工艺流程多排悬挑脚手架预埋件设置→安装悬挑主梁→悬挑主梁上下支撑杆件设置三、施工方法多排悬挑脚手架定距定位,悬挑梁间距应按悬挑架架体立杆纵距倍数设置。
1、水平悬挑梁水平悬挑梁必须保证有足够的锚固强度和截面抗屈曲能力,水平悬挑梁的纵向间距与上部脚手架立杆的纵向间距相同,立杆直接支承在悬挑梁上。
上部脚手架立杆与挑梁支承结构应有可靠的定位连接措施,以确保上部架体的稳定。
悬挑钢梁的验算1、设计荷载取值计算荷载面如下图阴影部分1300×1800mm2。
每层外架固定荷载钢管(3×2+1.3×4+1.4×2+3×2+3.3×2)×36.4 KN/m=894.72N扣件16×13.2N/个+2×18.4 N/个+3×14.6 N/个=262.6N竹笆6 N/m2(1.3×1.8×2)=28.08N槽钢14.53 N/m×1×3.5+2×1.3×12.37 N/m=83.017N每层固定荷载为894.72+262.6+28.08+83.47=1268.41710个楼层,20个步架的固定荷载为10×12684.17N考虑架子处于施工状态,要求活荷载为3KN/m2×3=9考虑荷载的分项细数,10个楼层的设计施工荷载12.68×1.2+9×1.3×1.8×1.4=44.7KN2、计算简图每根立杆荷载为44.17÷2=22.35KN3、锚固端验算采用Ф20锚卡,验算时取最外一道锚卡,w×1.5=22.35×0.6+22.35×1.7锚固力w=34.27KN锚卡的屈服荷载为 3.14(20/2)2×290N/ mm2=91.06KN>34.27KN满足要求。
4、锚卡的锚固强度验算只计入砼钢筋的长度,不计钩作用,偏于安全F=πdhτb其中F—锚固力,d—锚固直径,h—锚筋的锚固深度,τb--砼粘结强度,取2.5 N/ mm2根据所选材料F=3.14×20×150×2.5=23.25KN>22.35KN5、槽钢挑梁的承载验算弯距M=22.35KN×1.5=33.525KNm因选【16Wx=116.2×2=232.4cm2>145.4 cm2(可)Wmax=(Fb2/6EI)(3 L-b)+FL3/3EI=(22.35×0.62/6×2×108N/ mm2×2×563.7×10-8m4)(31.7-0.6)+(22.35×1.73/3×2×108×2×563.7×10-8)=6、纵向槽钢梁的验算为简便取单跨验算:Wmax=22.35KN110=2458.5 KN/mmσ=Μ/NW=2458.5 KN/mm/[σ]=2458.5×102×10-1Kgcm×14.5/1700 Kg/cm3=13.1cm3因选用【14a为使挑梁保证安全,在脚手架每隔三层卸一次荷,因此钢梁实际所承受的荷载要少2/3。
关于悬挑工字钢梁的验算一、I28a 工字钢的力学特性查手册得,A=55.40cm 2,自重q=43.49kg/m,截面惯性矩I=7110cm 4,截面抵抗矩W=508cm 3。
二、建立计算模型 P 立杆承重+立杆自重三、计算按照悬臂梁受集中荷载+均布荷载情况验算 受集中荷载:弯矩M max =pl ,剪力Q max =p,挠度f max =pl 3/3EI 受均布荷载:弯矩M max =21ql 2,剪力Q max =ql,挠度f max =ql 4/8EI 根据《北引桥现浇连续箱梁专项施工方案》,P=25.738KN 。
1、抗弯M=pl+21ql 2=25.738×103×0.9+0.5×434.9×0.92 =23340.335N.Mб=M/W=23340.335/508×10-6=45.946MPa<[бw]=145MPa2、抗剪Q=p+ql=25.738×103+434.9×0.9=26133.91N[Q]=235×106×55.40×10-4=1301900NQ<[Q],所以,抗剪合格。
3、挠度E=2.1×105MPaf=pl3/3EI+ql4/8EI=25.738×103×0.93/3×2.1×105×106×7110×10-8+434.9×0.94/8×2.1×105×106×7110×10-8=4.213×10-4m根据《钢结构设计规范GB50017-2003》,悬臂结构的允许挠度值为L/250,如果是施工平台主梁,应该按照L/400计算。
[f]=L/400=2.25×10-3m。
F<[f],挠度符合要求。
挑梁计算书项目名称_____________构件编号_____________日期_____________ 设计_____________校对_____________审核_____________ 荷载统计:(1)、恒荷载:地面4.8*0.25*25=30kn/m 栏杆:0.5*4.8=2.4 kn (2)、活荷载:2.5*4.8=12 kn/m一、设计资料外挑长度:L = 1200mm埋入墙体长度:L1 = 1800mm墙体高度:L w = 3000mm梁宽度:b = 370mm梁尾端高度:h1 = 350mm梁顶端高度:h2 = 350mm受拉钢筋合力点到受拉边距离:a s = 25mm挑梁类型:楼层挑梁支撑处墙体类型:有构造柱混凝土:C25f t = 1.270N/mm2f c = 11.900N/mm2受拉钢筋:HRB335(20MnSi)f y = 300.000N/mm2箍筋:HPB235(Q235)f yv = 210.000N/mm2墙体材料:烧结普通砖砂浆强度等级:M7.5砌体强度等级:Mu10砌体的抗压强度设计值:f = 1.690N/mm2端部集中恒载:F k = 2.400kN外挑部分活荷载:q k1 = 12.000kN/m 外挑部分恒荷载:g k1 = 30.000kN/m 埋入部分恒荷载:g k2 = 0.000kN/m 挑梁容重:γL = 25.000kN/m3墙体容重:γW = 17.000kN/m3结构重要性系数: 1.00030 1200180035352.400kN12.000kN/m30.000kN/m0.000kN/m抗压强度设计值调整系数: 1.000二、计算结果1.计算倾覆点至墙外边缘距离挑梁的截面高度由于L1 > 2.2h1, x0 = min(0.3h1,0.13L1) = 105.000mm,由于有构造柱,x0 = 0.5x0 = 52.500mm,2.计算荷载与内力(1)荷载计算q =γQ q k1+γG g k1+γGγL(h1+h2)b/2= 1.400×12.000+1.200×30.000+1.200×25.000×(0.350+0.350)×0.370/2 = 56.685kN/mP = γG F k = 1.200×2.400 = 2.880kN(2)内力计算挑梁的荷载设计值对计算倾覆点产生的倾覆力矩:M ov = γ0(P(L+x0)+0.5q(L+x0)2)= 1.00×[2.880×(1.200+0.052)+0.5×56.685×(1.200+0.052)2] = 48.070kN·ml2 = L1 = 1800mm挑梁的抗倾覆力矩设计值M r计算:挑梁尾端上部墙体荷载的水平长度: l3 = L1 = 1800mm挑梁埋入端上方的恒荷载对计算倾覆点产生的抗倾覆力矩:M r1 = 0.5g k2(L1 - x0)2 = 0.5×0.000(1.800 - 0.052)2 = 0.000 kN·m挑梁自重荷载对计算倾覆点产生的抗倾覆力矩:M g0 = 0.5γL h1b(L1 - x0)2 = 0.5×25.000×0.350×0.370×(1.800 - 0.052)2 = 4.943kN·m墙体自重(挑梁垂直上方矩形部分)荷载对计算倾覆点产生的抗倾覆力矩:M g1 = 0.5γW(L w-h1)b w(L1 - x0)2 = 0.5×17.000×(3.000-0.350)×0.240×(1.800 - 0.052)2 = 16.509kN·m墙体自重(挑梁外梯形矩形)荷载对计算倾覆点产生的抗倾覆力矩:M g2 = γW l3(L w - l3)b w(0.5l3 + L1 - x0)= 17.000×1.800×(3.000 - 1.800)×0.240×(0.5×1.800 + 1.800 - 0.052) = 23.332kN·m墙体自重(挑梁外梯形三角形)荷载对计算倾覆点产生的抗倾覆力矩:M g3 = 0.5γW l32b w(1/3l3 + L1 - x0)= 0.5×17.000×1.8002×0.240×(0.333×1.800 + 1.800 - 0.052) = 15.516kN·mM r2 = M g0 + M g1 + M g2 + M g3= 4.943 + 16.509 + 23.332 + 15.516 = 60.300kN·mM r = 0.8G r(l2 - x0) = 0.8(M r1 + M r2) = 0.8×(0.000 + 60.300) = 48.240kN·m 3.抗倾覆验算M ov = 48.070kN·m < M r = 48.240kN·m,满足抗倾覆要求。
说明:本计算书为挑梁计算书,悬挑部分上部有墙体!可能多数人实际计算时都没墙体,当然计算方法是一样的,只需去掉墙体荷载即可,希望此计算书能对大家有所帮助。
楼挑梁验算一层E-F/7-9轴未按原设计修建墙体,一~四层均设置了挑梁。
挑梁截面尺寸为b=240mm,h=400mm,上部钢筋3B14,下部钢筋2B12,箍筋Φ6@200,现对挑梁验算如下:一、荷载及内力计算挑梁荷载设计值计算如下:双面粉刷的240mm厚砖墙25.24kN/m 挑梁自重 2.88kN/m1.2(0.4=⨯⨯25)0.24以上总计荷载设计值.23kN/mq=+=⨯⨯2.192.615.242.88二、挑梁抗倾覆验算砌体中挑梁抗倾覆验算按《砌体结构设计规范(GB 50003-2001)》第7.41~7.43条有关公式进行验算。
计算简图见图1。
图 1挑梁埋入砌体的长度m h m l b 88.040.02.22.221=⨯=>=,则计算倾覆点至墙外边缘的距离0x 为:m h x b 12.040.03.03.00=⨯==则挑梁的荷载设计值对计算倾覆点产生的倾覆力矩V M 0为:()m kN x l ql M v ⋅=+⨯⨯=+=10.2512.05.15.05.123.19)5.0(00挑梁的抗倾覆荷载为图1虚线范围内的砌体重量、楼面恒荷载标准值以及圈梁重量之和。
砌体重量标准值为:()[]kN 54.418.078.218.1238.224.5=⨯++⨯⨯楼面恒载有:100mm 厚现浇板层重为22.5kN/m ,20mm 厚1:2水泥砂浆面层重为20.4kN/m 。
楼面恒荷载标准值总计为22.9kN/m ;则作用在挑梁埋入砌体的长度内的集中力(见图2)为:()kN 36.5245.10.255.09.2=÷⨯+⨯图2圈梁重量标准值为:kN 59.2256.324.012.0=⨯⨯⨯抗倾覆荷载标准值r G 为:kN G r 49.4959.236.554.41=++=楼面恒荷载作用点至墙外边缘的距离为 1.30m ,砌体重量作用点至外面边缘的距离为 1.62m,圈梁重量作用点至外边缘的距离为1.74m ,则r G 作用点至外墙边缘的距离2l 为:m l 59.159.236.554.4174.159.230.136.562.154.412=++⨯+⨯+⨯= 挑梁的抗倾覆力矩设计值r M 为:()()m kN M m kN x l G M v r r ⋅=>⋅=-⨯=-=10.2520.5812.059.149.498.08.0002 满足抗倾覆要求。
钢筋混凝土挑梁计算书项目名称_____________日期_____________设计者_____________校对者_____________一、构件编号: XTL_1二、示意图:三、设计依据:《混凝土结构设计规范》 (GB 50010-2002)《砌体结构设计规范》 (GB 50003-2001)四、计算信息1. 几何参数梁宽度b = 240 mm梁尾端高度h1 = 450 mm墙边缘处高度h2 = 450 mm梁顶端高度h3 = 450 mm挑梁类型: 屋顶挑梁外挑长度L = 1200 mm埋入墙体长度L1 = 2500 mm墙厚b W = 240 mm受拉钢筋合力点到受拉边距离a S = 25 mm支撑处墙体类型: 有构造柱2. 参数信息混凝土等级: C20 f t = 1.100N/mm2f c = 9.600N/mm2纵筋种类: HRB400 f y = 360.000N/mm2箍筋种类: HRB400 f yv = 360.000N/mm2箍筋间距s = 200 mm箍筋肢数n = 2墙体材料: 烧结多孔砖砌体强度等级: MU10砂浆强度等级: M5砌体的抗压强度设计值f C = 1.50 N/mm2砌体材料抗压强度设计值调整系数γa = 1.003. 荷载信息端部集中恒载F k = 4.500 kN外挑部分活荷载q k1 = 3.500 kN/m外挑部分恒荷载g k1 = 8.600 kN/m埋入部分恒荷载g k2 = 10.000 kN/m挑梁容重γL = 25.000 kN/m3墙体容重γW = 20.000 kN/m3恒载分项系数γG = 1.2活载分项系数γQ = 1.44. 计算信息结构重要性系数γO = 1.0五、抗倾覆验算1. 计算倾覆点至墙外边缘距离由于L1>2.2h1,x0 = min(0.3h1,0.13L1) = 135.000mm由于有构造柱,x0 = 0.5*x0 = 67.500mm2. 荷载计算q = γG*g k1+γG*γL*(h1+h2)*b/2+γQ*q k1= 1.200*10.000+1.200*25.000*(0.450+0.450)*0.240/2+1.400*3.500= 18.460 kN/mp = γG*F k = 1.200*4.500 = 5.400 kN3. 挑梁的荷载设计值对计算倾覆点产生的倾覆力矩计算M OV= γO*(p*(L+x0)+0.5*q*(L+x0)2)= 1.0*(5.400*(1.200+0.068)+0.5*18.460*(1.200+0.068)2)= 21.673 kN/m4. 挑梁的抗倾覆力矩设计值M r计算挑梁尾端上部墙体荷载的水平长度:l3 = L1 = 2500 mm挑梁埋入端上方的恒荷载对计算倾覆点产生的抗倾覆力矩:M r1 = 0.5*g k2*(L1-x0)2= 0.5*10.000*(2.500-0.068)2= 29.585kN·m挑梁自重荷载对计算倾覆点产生的抗倾覆力矩:M g0= 0.5*γL*h1*b*(L1-x0)2= 0.5*25.000*0.450*0.240*(2.500-0.068)2= 7.988kN·mM r2 = M g0= 7.988 kN·mM r = 0.8*G r*(l2-x0) = 0.8*(M r1+M r2) = 0.8*(29.585+7.988) = 30.059 kN·m5. 抗倾覆验算M OV= 21.673kN·m < M r= 30.059kN·m,满足抗倾覆要求。
挑长l(m) 1.3层高H(m)3.5混凝土容重KN/m 225墙体抹灰容重KN/m 220砌体容重KN/m 220挑梁根部弯矩M OV1(KN*m)79.7楼面恒载标准值KN/m 25挑梁埋入墙体内长度l 1(m)5挑梁截面高度h(m)0.4挑梁截面宽度b(m)0.24挑梁计算倾覆点距墙边距离x 0(m)0.12挑梁下墙体长度(m)8墙体剩余长度(m)3房间1长L 1(m) 4.8房间1宽B 1(m) 2.6房间2长L 2(m) 4.8房间2宽B 2(m) 3.9α1=B 1/(2*L 1)0.27083333α2=B 2/(2*L 2)0.40625楼面传给挑梁的线荷载(KN/m)12.8610165梁自重及抹灰(KN/m) 2.72挑梁尾部45度扩散角及本曾砌体自重本层楼面恒载对挑梁倾覆点产生的弯矩Mr1对挑梁倾覆点产生的弯矩Mr2总弯矩值Mr450.803103是否满足满足挑长l(m) 1.86层高H(m) 2.85混凝土容重KN/m 225墙体抹灰容重KN/m 220砌体容重KN/m 220挑梁根部弯矩M OV1(KN*m)49.9楼面恒载标准值KN/m 2 5.5挑梁埋入墙体内长度l 1(m) 3.8挑梁截面高度h(m)0.35挑梁截面宽度b(m)0.24挑梁计算倾覆点距墙边距离x 0(m)0.105挑梁下墙体长度(m) 4.2墙体剩余长度(m)0.4302.38208148.421023TL-1挑梁抗倾覆计算2、计算顶层1、几何参数房间1长L 1(m) 4.8房间1宽B 1(m) 2.6房间2长L 2(m) 4.8房间2宽B 2(m) 3.9α1=B 1/(2*L 1)0.27083333α2=B 2/(2*L 2)0.40625楼面传给挑梁的线荷载(KN/m)14.1471181梁自重及抹灰(KN/m)2.38本层楼面恒载对挑梁倾覆点产生的弯矩Mr2总弯矩值Mr90.2580626是否满足满足90.25806262、计算。