某住宅工程施工现场总平面布置图cad
- 格式:doc
- 大小:141.50 KB
- 文档页数:1
住宅楼建筑工程施工平面布置图住宅楼建筑工程施工平面布置图1施工平面布置的原则施工总平面布置合理与否,将直接关系到施工进度的快慢和安全文明施工水平的高低,为保证现场施工顺利进行,具体的施工平面布置原则为:嬘围墙按规范设置,并在围墙上进行CI宣传;布置在起重设备附近或起重臂回转半径范围内;减少临时建设投资;减少场内二次搬运;布置在危险警戒区外。
面用C10砼浇筑,形成硬化的场地,满足CI达标和文明施工的要求;满足CI达标和文明施工的要求;经沉淀池过滤之后方可排入市政管道;2主要施工机械位置本工程总体情况,垂直运输主体期间布置2台QT60tm塔吊,砌筑及装饰时垂直运输按3台施工电梯考虑,(详见平面布置图)3建筑材料、半成品堆放仓库位置靠近南侧围墙,水泥库、模板,钢筋均在塔吊回转半径内,砌块堆在施工电梯旁。
4临时供电、供水网的布置1)给水布置施工用水自院外直接引支管引入,主管管径φ200mm。
2)施工用电布置*施工现场临时供电根据JGJ46-88规范要求,采用TN-S,供电系统(即三相五线制),工作零线和专用保护PE线分开放置.供电线路采用放射性配电布置,共分三路,一路施工区,一路供生产区,一路生活办公区。
3)用电负荷的计算ΣP1=322kWΣP2=272.0kWΣP3=(ΣP1+ΣP2)×10%=59.4kWP=1.05×(0.6×322/0.65+272×0.6+59.4)=519.0kW主线选用3×100+2×50的铜芯电缆。
4)用电布置方式根据现场设备、区域划分情况,拟定出配电室主线及设备用主电源线规格,采用线杆架设。
临建照明用电采用敷墙架设,现场施工照明及小型机械设备用电采用三级配电箱引入各施工点。
在整个现场按需要设若干个二级配电箱,采用线杆将电输送到使用地点。
现场在业主提供的电源接入处设一配电房。
配电房设总配电箱,施工用电共分5路从总配电箱用电缆接至各用电点及分路配电箱,电缆采用三相五线制橡胶铜芯绝缘电缆。
住宅楼及地下车库工程施工现场平面布置图一、现场平面布置图施工现场平面图是根据工程规模及施工现场条件,按照一定的设计原则,合理解决施工所需的各项工程设施、材料堆场同拟建工程和永久性建筑物之间的位置关系。
它是实现有计划、有组织和文明施工的先决条件,是施工方案在施工现场的平面体现,是单位工程施工组织设计的重要组成部分。
布置原则:1、为创建文明施工工地打好基础,严格执行上级有关文明施工的各类文件规定,在满足施工需要的条件下布置紧凑,且尽量减少施工用地。
2、做到现场四周围档稳固美观,施工道路硬化平坦,物资材料堆放整齐有序,加工棚、仓库及施工机具等位置应使场内运输距离最近,减少或避免二次搬运。
3、尽量减少临时设施数量,降低临时设施费用。
临时设施的布置应便利工人的生产和生活。
5、标牌醒目禁令明显,办公设施整洁干净,管理规范安全达标。
4、符合环保、安全和防火要求。
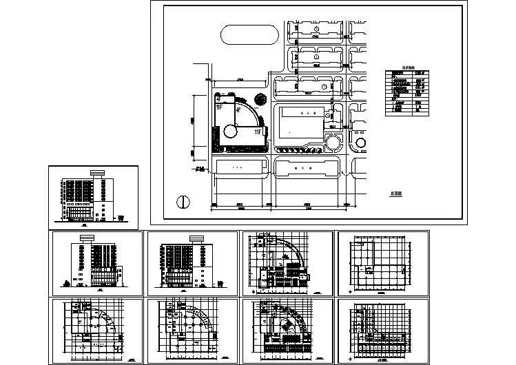
附图《亮丽家园1#、2#、10#、12#、13#住宅楼及地下车库工程施工现场平面布置图》。
二、生产、生活临建布置亮丽家园1#、2#、10#、12#、13#住宅楼及地下车库工程,独特的地理位置决定了本工地在临建布置要上档次,整体布局我们将依照省级文明工地标准进行布置。
根据现场实际情况和建设单位的要求我们拟定的总平面布置主要包括钢筋加工棚、木工棚、砂浆搅拌站、脚手架堆放区、材料区、主要材料仓库、标养室、开水房、休息室、厕所等。
在工地大门处设洗车台,避免车辆带泥土上路,造成污染。
现场布置详见总平面布置图。
三、场地划分根据现场实际情况,经我方研究,施工现场均砌不低于1.8米围墙,粉刷刷白后绘制公益性宣传画和标语。
按照建设单位的要求和生产区与生活区、办公区分开的原则,生活、办公区主要设宿舍、食堂、餐厅、医务室、水厕、娱乐室、职工浴室等,办公室为双层轻型保温活动房,食堂、厕所为一层轻型保温活动房,库房,标养室、门卫房为砖砌体结构,顶盖设置彩钢屋面。
生产区整个施工现场实行全封闭式半军事化管理,详见总平面布置图。