电气接地图解
- 格式:doc
- 大小:89.01 KB
- 文档页数:8
工程基础施工接地方式水利建设工地大多分散在郊区和边远地区,施工场地大,设备和人员分散,施工季节性强,施工单位的安全管理水平参差不齐,临时工和外来民工较多,这些都给现场的安全供用电带来极为不利的影响,水利工地电气事故时有发生,安全用电形势严峻。
因此必须积极贯彻预防为主的方针,认真研究运用各项技术措施和管理措施,提高供用电系统的安全水平,营造工地电气安全环境,保障广大水利建设者的安全。
1 施工用电380/220V低压系统的接地方式380-220V低压系统有三种接地方式。
1.1 IT系统IT系统是电源端中性点不直接接地,电气装置的外露可导电部分直接接地的系统(见图1)。
图1 IT系统1.2 TT系统TT系统是电源系统中性点直接接地,电气装置的外露可导电部分直接接地的系统(见图2)。
图2 TT系统1.3 TN系统TN系统为电源系统中性点直接接地,电气装置外露可导电部分通过保护导体连接到电源接地点的系统。
根据中性线和保护线的布置,TN系统有三种形式:1.3.1 TN-C系统TN-C系统是中性线与保护线合一的三相四线制系统(图3)。
图3 TN-C系统1.3.2 TN-S系统TN-S系统为三相五线制,系统中的保护线与中性线是从电源端开始完全分开的(见图4)。
图4 TN-S系统1.3.3 TN-C-S系统TN-C-S系统的特点是一部分中性线与保护线合一,一部分中性线与保护线分开(见图5)。
图5 TN-C-S系统2 保护接地和保护接零2.1 保护接地TT系统中的接地方式称为保护接地图6是TT系统保护接地原理图,U为相电压,Rde为工作接地电阻,Rpe为保护接地电阻,M为用电装置,当M绝缘损坏外壳带电时,不计线路及电源电阻,则有图6 TT系统保护接地原理Ie=U/(Rde+Rpe)取U=220V,Rde=Rpe=4Ω,则Ie=27.5A在接地短路电流Ie的作用下,电路中保护装置动作切断电源,从而保障了安全。
当保护装置是额定电流为10A的普通熔断器,流过27.5A电流后,10s左右熔体熔断切断了电源,M外壳没有危险电压。
关于电路中的地线的接法最近大家在电路设计中都遇到了一些衔接的问题。
特别在数字模拟设计的过程中,因为电源处理的不好,烧了很多的片子。
现在收集总结一些相关的东西,包含个人的一点经验以及和顾问请教得出的心得了。
1.地线的定义什么是地线?大家在教科书上学的地线定义是:地线是作为电路电位基准点的等电位体。
这个定义是不符合实际情况的。
实际地线上的电位并不是恒定的。
如果用仪表测量一下地线上各点之间的电位,会发现地线上各点的电位可能相差很大。
正是这些电位差才造成了电路工作的异常。
电路是一个等电位体的定义仅是人们对地线电位的期望。
HENRY 给地线了一个更加符合实际的定义,他将地线定义为:信号流回源的低阻抗路径。
这个定义中突出了地线中电流的流动。
按照这个定义,很容易理解地线中电位差的产生原因。
因为地线的阻抗总不会是零,当一个电流通过有限阻抗时,就会产生电压降。
因此,我们应该将地线上的电位想象成象大海中的波浪一样,此起彼伏。
.地线的阻抗谈到地线的阻抗引起的地线上各点之间的电位差能够造成电路的误动作,许多人觉得不可思议:我们用欧姆表测量地线的电阻时,地线的电阻往往在毫欧姆级,电流流过这么小的电阻时怎么会产生这么大的电压降,导致电路工作的异常。
要搞清这个问题,首先要区分开导线的电阻与阻抗两个不同的概念。
电阻指的是在直流状态下导线对电流呈现的阻抗,而阻抗指的是交流状态下导线对电流的阻抗,这个阻抗主要是由导线的电感引起的。
任何导线都有电感,当频率较高时,导线的阻抗远大于直流电阻,表1 给出的数据说明了这个问题。
在实际电路中,造成电磁干扰的信号往往是脉冲信号,脉冲信号包含丰富的高频成分,因此会在地线上产生较大的电压。
对于数字电路而言,电路的工作频率是很高的,因此地线阻抗对数字电路的影响是十分可观的。
3.由于地线阻抗的存在,当电流流过地线时,就会在地线上产生电压。
当电流较大时,这个电压可以很大。
例如附近有大功率用电器启动时,会在地线在中流过很强的电流。
强电井接地示意图5.3 屋面钢筋网(看设计是否要求)屋面钢筋网即是把屋面底板钢盘焊成6m×6m的网格状(按设计),与外圈梁相连通,并与各引下线连通,起到均压作用,敷设施工方法同基础底板接地钢筋的施工方法相同。
就是采用Φ12镀锌圆钢跨接焊,保证纵横跨接连通。
5.4 屋面避雷带1.避雷网安装应符合以下规定:避雷线应平直、牢固,不应有高低起伏和弯曲现象,距离建筑物应一致,平直度每2M检查段允许偏差3/1000,但全长不得超过10mm。
避雷线弯曲处不得小于90度。
弯曲半径不得小于圆钢直径的10倍。
避雷带的支架的直线段安装间距为0.8米——1米间,转弯及分支处为0.5米。
在安装支架之前要根据现场实际情况排版,就仅间距为多少确定下来,保证间距的均匀,根据现场土建抹灰、帖瓷片的情况现场测量排版确定。
在安装支架之前要根据土建的墙的情况确定中线,并要拉通线测量,保证各支架在一条直线上。
支架安装好以后要拉通线测量,高出部分用手砂轮机打磨,做到高度一致。
2.避雷网安装避雷线为Φ12镀锌圆钢,可将圆钢放开,一端固定在牢固地锚的夹具上,另一端固定在绞磨(或倒链)的夹具上,进行冷拉调直。
将避雷线提升到顶部,顺直、敷设、卡固连成一体,同引下线焊好。
进行局部调直后刷银粉漆。
在避雷带的施工中,为避免常规施工中因圆钢与支持件焊接造成截面缩小,采用专用卡码来固定避雷带,方法如下图(右)所示:建筑物屋顶上突出物,铁栏杆爬梯、冷却塔、金属管道(煤气管道、空调管道、给排水管道)等都必须与避雷网焊成一体,镀锌钢管用10#镀锌编织铜带用接地卡箍固定。
5.5 外窗、金属栏杆接地1.外窗栏杆的接地圆钢必须是从均压环直接引上来的。
2.接地电阻在主体完工后安装窗框之前,要进行全数测量,达不到要求的要从就近的达得到要求的引线过来,要做好测试记录,请监理验收。
3.外窗在制作时就要求厂家预留好接地扁钢,在窗框左右高30cm 处各留一根25×3的扁钢,作为以后与接地圆钢相焊接用。
经典电气接线图(值得收藏)!1.电动机接线一般常用三相交流电动机接线架上都引出6个接线柱,当电动机铭牌上标为Y形接法时,D6、D4、D5相连接,D1~D3接电源;为△形接法时,D6与D1连接,D4与D2连接,D5与D3连接,然后D1~D3接电源。
可参见图1所示连接方法连接。
图1 三相交流电动机Y形和△形接线方法2.三相吹风机接线有部分三相吹风机有6个接线端子,接线方法如图2所示。
采用△形接法应接入220V三相交流电源,采用Y形接法应接入380V三相交流电源。
一般3英寸、3.5英寸、4英寸、4.5英寸的型号按此法接。
其他吹风机应按其铭牌上所标的接法连接。
图2 三相吹风机六个引出端子接线方法3.单相电容运转电动机接线单相电动机接线方法很多,如果不按要求接线,就会有烧坏电动机的可能。
因此在接线时,一定要看清铭牌上注明的接线方法。
图247为IDD5032型单相电容运转电动机接线方法。
其功率为60W,电容选用耐压500V、容量为4μF的产品。
图3(a)为正转接线,图3(b)为反转接线。
图3 IDD5032型单相电容运转电动机接线方法4.单相电容运转电动机接线图4 JX07A-4型单相电容运转电动机接线方法图4是JX07A-4型单相电容运转电动机接线方法。
电动机功率为60W,用220V/50Hz交流电源、电流为0.5A。
它的转速为每分钟1400转。
电容选用耐压400~500V、容量8μF的产品。
图4(a)为正转接线,图4(b)为反转接线。
5.单相吹风机接线图5 单相吹风机四个引出端子接线方法有的单相吹风机引出4个接线端子,接线方法如图5所示。
采用并联接法应接入110V交流电源,采用串联接法应接入220V交流电源。
6.Y100LY系列电动机接线目前,Y系列电动机被广泛应用。
Y系列电动机具有体积小、外形美观、节电等优点。
它的接线方式有两种:一种为△形,它的接线端子W2与U1相连,U2与V1相连,V2与W1相连,然后接电源;另一种为Y形,接线端子W2、U2、V2相连接,其余3个接线端子U1、V1、W1接电源。
说明:本表格根据《建设工程文件归档规范》(GB/T50328-2014)及《建筑电气工程施工质量验收规范》(GB50303-2002)相关内容设置表格。
填写说明
一、资料填写说明
1、所有的接地测试记录均应附简图,做出接地测试点的具体位置标识,并做简要说明。
2、本表适用于独立接地装置敷设情况。
一、相关要求:
1、电气接地电阻测试仪表一般选用ZC-8型接地电阻测量仪。
2、回填土前应对敷设地接地装置进行检查验收,包括接地极埋深、接地极规格、尺寸、
接地体规格、焊接处防腐检查等。
3、接地电阻应及时进行测试,应在接地母线敷设完成后,回填土前进行测试。
低压配电系统接地图解1 TN系统电力系统有一点直接接地,电气装置的外露可接近导体通过保护线与该接地点相连接。
TN系统分为TN-S、TN-C、TN-C-S三种。
(1)TN-S系统:整个系统的中性线路与保护线是分开的,如图1所示。
(2)TN-C系统:整个系统的中性线与保护线是合一的,如图2所示。
(3)TN-C-S系统:系统中有一部分线路的中性线与保护线是合一的,如图3所示。
2 TT系统电力系统中有一点直接接地,电气设备的外露可接近导体通过保护接地线接至与电力系统地点无关的接地极,如图4所示。
3 IT系统电力系统与大地间不直接连接,电气装置的外露可接近导体,通过保护接地线与接地极连接,如图5所示。
4 各类接地系统的特点分析上述接地系统各有其特点和优缺点,需对其有全面了解,以便正确地选择使用。
4.1 TN-S系统从图1可知,在整个TN-S系统内,PE线和N线被分为两根平行不相交的导线。
正常运行时,PE线不通过电流,也不带电位。
只有在发生接地故障时,会有故障电流通过,因此电气装置的外露可接近导体,在正常运行时不带电位,该系统安全可靠性高。
但它需在回路的全长多敷设一根导线。
4.2 TN-C系统从图2可知,TN-C系统内的PEN线兼作PE线和N线的作用,可节省一根导线,比较经济。
我国过去长期按前苏联规程的规定,广泛采用这一系统。
但从电气安全着眼,这一系统存在较多问题。
(1)当系统为单相回路,在PEN线中断时,设备金属外壳对地将带220 V的故障电压,当人身碰触时,电击死亡的危险很大。
220 V电压回路见图6虚线所示。
(2)当安装剩余电流保护装置时,其PEN线穿过剩余电流保护装置,因接地故障电流产生的磁场,在剩余电流保护装置内相抵消而使剩余电流保护装置拒动,所以在TN-C系统内不能装用剩余电流保护装置来防人身电击。
(3)进行电气维修时,需用四极断路器来隔断中性线上可能出现的故障电压。
因PEN线含有PE 线而不允许被开关切断,所以TN-C系统内不能装用四极开关,来保证维修人员的安全。
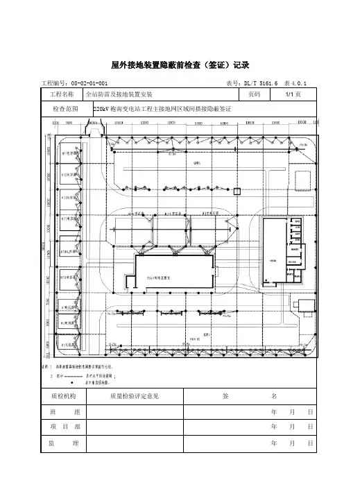
屋外接地装置隐蔽前检查(签证)记录工程编号:08-02-01-001 表号:DL/T 5161.6 表4.0.1工程名称全站防雷及接地装置安装页码1/1页检查范围220kV袍南变电站工程主接地网区域间搭接隐蔽签证质检机构质量检验评定意见签名班组年月日项目部年月日监理年月日屋外接地装置隐蔽前检查(签证)记录工程编号:08-01-01-001 表号:DL/T 5161.6 表4.0.1工程名称全站防雷及接地装置安装页码1/1页检查范围220kV袍南变电站工程主控通信室接地网区域间搭接隐蔽签证质检机构质量检验评定意见签名班组年月日项目部年月日监理年月日屋外接地装置隐蔽前检查(签证)记录工程编号:08-01-01-002 表号:DL/T 5161.6 表4.0.1工程名称全站防雷及接地装置安装页码1/1页检查范围220kV袍南变电站工程35kV配电装置室接地网区域间搭接隐蔽签证质检机构质量检验评定意见签名班组年月日项目部年月日监理年月日屋外接地装置隐蔽前检查(签证)记录工程编号:08-01-01-003 表号:DL/T 5161.6 表4.0.1工程名称全站防雷及接地装置安装页码1/1页检查范围220kV袍南变电站工程110kV屋外配电装置构筑物接地网区域间搭接隐蔽签证质检机构质量检验评定意见签名班组年月日项目部年月日监理年月日屋外接地装置隐蔽前检查(签证)记录工程编号:08-01-01-004 表号:DL/T 5161.6 表4.0.1工程名称全站防雷及接地装置安装页码1/1页检查范围220kV袍南变电站工程220kV屋外配电装置构筑物接地网区域间搭接隐蔽签证质检机构质量检验评定意见签名班组年月日项目部年月日监理年月日屋外接地装置隐蔽前检查(签证)记录工程编号:08-01-01-004 表号:DL/T 5161.6 表4.0.1工程名称全站防雷及接地装置安装页码1/1页检查范围220kV袍南变电站工程主变压器基础及构支架接地网区域间搭接隐蔽签证质检机构质量检验评定意见签名班组年月日项目部年月日监理年月日屋外接地装置隐蔽前检查(签证)记录工程编号:08-01-01-005 表号:DL/T 5161.6 表4.0.1工程名称全站防雷及接地装置安装页码1/1页检查范围220kV袍南变电站工程35kV屋外电容器及电抗器接地网区域间搭接隐蔽签证质检机构质量检验评定意见签名班组年月日项目部年月日监理年月日屋外接地装置隐蔽前检查(签证)记录。
TN-S接地系统(整个系统的中性线和保护线是分开的)TN-C接地系统(整个系统的中性线和保护线是合一的)TT接地系统(TT接地系统有一个直接接地点,电气装置外露可导电部分则是接地)TN-C-S接地系统(整个系统有一部分的中性线和保护线是合一的)IT接地系统(IT接地系统的带电部分与大地间不直接连接,而电气装置的外露可导电部分则是接地的)字母标识第一字母表示电力系统的对地关系T-----一点接地I-----所有带电部分与地绝缘,或一点经阻抗接地第二字母表示装饰的外露可导电部分对地关系T-----外露可导电部分对地直接电气连接,与电力系统的任何接地点无关N-----外露可导电部分与电力系统的接地点直接电气连接(在交流系统中,接地点通常就是中性点)如果后面还有字母,这个字母表示中性线和保护线的组合S-----中性线和保护线是分开的C-----中性线和保护线是合一的(PEN线)我们国家110KV及以上系统普遍采用中性点直接接地系统(即大电流接地系统)。
35KV、10KV系统普遍采用中性点不接地系统或经大阻抗接地系统(即小电流接地系统) 380V/220V低压配电系统按保护接地的形式不同可分为:IT系统、TT系统和TN系统。
IT系统的电源中性点是对地绝缘的或经高阻抗接地,而用电设备的金属外壳直接接地。
即:过去称三相三线制供电系统的保护接地。
TT系统的电源中性点直接接地;用电设备的金属外壳亦直接接地,且与电源中性点的接地无关。
即过去的三相四线制供电系统中的保护接地。
TN系统,在变压器或发电机中性点直接接地的380/220V三相四线低压电网中,将正常运行时不带电的用电设备的金属外壳经公共的保护线与电源的中性点直接电气连接。
即过去的三相四线制供电系统中的保护接零。
TN系统的电源中性点直接接地,并有中性线引出。
按其保护线形式,TN系统又分为:TN-C系统、TN-S系统和TN-C-S系统等三种。
(1)TN-C系统(三相四线制),该系统的中性线(N)和保护线(PE)是合一的,该线又称为保护中性线(PEN)线。
它的优点是节省了一条导线,缺点是三相负载不平衡或保护中性线断开时会使所有用电设备的金属外壳都带上危险电压。
(2)TN-S系统就是三相五线制,该系统的N线和PE线是分开的,从变压器起就用五线供电。
它的优点是PE线在正常情况下没有电流通过,因此不会对接在PE线上的其他设备产生电磁干扰。
此外,由于N线与PE线分开,N线断开也不会影响PE线的保护作用。
③TN-C-S系统(三相四线与三相五线混合系统),该系统从变压器到用户配电箱式四线制,中性线和保护地线是合一的;从配电箱到用户中性线和保护地线是分开的,所以它兼有TN-C 系统和TN-S系统的特点,常用于配电系统末端环境较差或有对电磁抗干扰要求较严的场所。
关于变频器接地问题一、引言在各种工业控制系统中,随着变频器等电力电子装置的广泛使用,系统的电磁干扰日益严重,相应的抗干扰设计技术已经变得越来越重要。
接地是抑制电磁干扰,提高电子设备电磁兼容性的重要手段之一。
正确的接地既可以使系统有效地抑制外来干扰,又能降低设备本身对外界的干扰。
在实际应用系统中,由于系统电源零线(中线)、地线(保护接地、系统接地)不分、控制系统屏蔽地(控制信号屏蔽地和主电路导线屏蔽地)的混乱连接,大大降低了系统的稳定性和可靠性。
二、遵循的主要国家标准:GBJ79 工业企业通讯接地设计规范GBJ65 工业与民用电力装置的接地设计规范GB 50217 电力工程电缆设计规范GB50169 接地装置施工及验收规范DL T 621 交流电气装置的接地SDJ7-79 《电气设备过电压保护设计规程》三、名词术语:●∙∙∙∙∙∙∙∙∙接地体(极) grounding conductor:埋入地中并直接与大地接触的金属导体,统称为接地体(极)。
接地体分为水平接地体和垂直接地体。
●∙∙∙∙∙∙∙∙∙自然接地体natural earthing electrode可利用作为接地用的直接与大地接触的各种金属构件、金属井管、钢筋混泥土建筑的基础、金属管道和设备等,称为自然接地体。
●∙∙∙∙∙∙∙∙∙接地线grounding conductor电气设备、杆塔的接地端子与接地体或零线连接用的在正常情况下不载流的金属导体,称为接地线。
●∙∙∙∙∙∙∙∙∙接地装置grounding connection接地体和接地线的总和,称为接地装置。
●∙∙∙∙∙∙∙∙∙接地grounded将电力系统或建筑物电气装置、设施过电压保护装置用接地线与接地体连接,称为接地。
●∙∙∙∙∙∙∙∙∙接地电阻ground resistance接地体或自然接地体的对地电阻和接地线电阻的总和,称为接地装置的接地电阻。
接地电阻的数值等于接地装置对地电压与通过接地体流入地中电流的比值。
●∙∙∙∙∙∙∙∙∙工频接地电阻power frequency groundresistance按通过接地体流入地中工频电流求得的电阻,称为工频接地电阻●∙∙∙∙∙∙∙∙∙零线null line与变压器或发电机直接接地的中性点连接的中性线或直流回路中的接地中性线,称为零线。
●∙∙∙∙∙∙∙∙∙保护接零(保护接地)protective ground中性点直接接地的低压电力网中,电气设备外壳与保护零线连接称为保护接零。
●∙∙∙∙∙∙∙∙∙集中接地装置concentrated grounding connection为加强对雷电流的散流作用、降低对地电位而敷设的附加接地装置,如在避雷针附近装设的垂直接地体。
●∙∙∙∙∙∙∙∙∙接地装置large-scale groundingconnection110KV及以上电压等级变电所的接地装置,装机容量在200MW以上的火电厂和水电厂的接地装置,或者等效平面面积在5000m2以上的接地装置。
●∙∙∙∙∙∙∙∙∙安全接地safe grounding电气装置的金属外壳、配电装置的构架和线路杆塔等,由于绝缘损坏有可能带电,为防止其危及人身和设备的安全而设的接地。
●∙∙∙∙∙∙∙∙∙接地网grounding grid由垂直和水平接地体组成的具有泄流和均压作用的网状接地装置。
四、电网主回路接地:三相电力系统中,电源侧(发电机或变压器)中性点的运行方式主要有三种:●∙∙∙∙∙∙∙∙∙中性点有效接地;●∙∙∙∙∙∙∙∙∙中性点不接地;●∙∙∙∙∙∙∙∙∙中性点经消弧线圈,或大电阻间接接地;根据SDJ7-79《电气设备过电压保护设计规程》中规定:●∙∙∙∙∙∙∙∙∙220-330kV的电力网:采用中性点直接接地方式;●∙∙∙∙∙∙∙∙∙110-154kV的电力网:一般采用中性点直接接地方式,在雷电活动较强的山岳丘陵地区,构型简单的电网,如直接采用中性点接地方式不能满足安全供电的需求和对联网影响不大时,可采用中性点经消弧线圈接地方式;●∙∙∙∙∙∙∙∙∙3-60kV的电力网:应采用中性点非直接接地方式。
当单相接地故障电流大于下列值时应装设消弧线圈:3-10kV电网30A20kV电网10A●∙∙∙∙∙∙∙∙∙与发电机或调相机电气上直接相连的3-20kV电网,中性点应采用非直接接地方式。
当单相接地故障电流大于5A时,如要求发电机或调相器能带内部单相接地故障运行,应装设消弧线圈。
消弧线圈可装设在变压器中心点,也可装设在发电机或调相器的中性点。
所以在变频器中,系统电压通常为3-10kV系统,此电力网属于中性点非直接接地方式,即主电路没有引出中线。
为防止输入过电压,雷击等,输入安装过电压保护器FLQ1,选用的组合式过电压保护器,其接地点最好与其他电力设备接地点分开,不共地。
隔离开关,整流变压器,真空接触器,柜体等外壳接地。
整流变压器第三线圈属于380V回路,可经高阻抗接地;或者绝缘不接地,用电设备的金属外壳直接接地,构成IT接地系统。
综上◆∙∙∙∙∙∙∙高压避雷器接地线应用不小于16mm2黄绿双色线,不小于M10镀锌螺栓接在接地母排上,再直接可靠接地。
◆∙∙∙∙∙∙∙隔离开关,高压真空接触器,整流变压器外壳建议使用16mm2黄绿双色线,不小于M10镀锌螺栓接在接地母排上。
◆∙∙∙∙∙∙∙互感器、低压避雷器接地线应用不小于2.5mm2黄绿双色线,小于M5镀锌螺栓接在接地母排上,再直接可靠接地。
如有特殊要求按要求执行。
二、二次配电回路接地保护接零与保护接地不能同在一个配电系统中,一般大系统采用保护接零,小系统一般采用保护接地所以:●∙∙∙∙∙∙∙∙∙当变压器第三线圈不接地时,不允许设备金属外壳保护接零。
●∙∙∙∙∙∙∙∙∙当变压器第三线圈接地时,不允许设备金属外壳保护接地。
●∙∙∙∙∙∙∙∙∙隔离变压器的二次中性点不接地时,不允许后面设备金属外壳保护接零;●∙∙∙∙∙∙∙∙∙隔离变压器的二次中性点接地时,不允许后面设备金属外壳保护接地;●∙∙∙∙∙∙∙∙∙上述指的是电网中的不同设备,当然同一设备即做保护接零的同时又做保护接地是更可靠的。
所以考虑接地系统时,若变压器第三线圈和隔离变压器二次零线均接地的话,那么二次配电器件的金属外壳均需要保护接零,在零线接地线断开的情况下,就仍然有触电的危险。
综合考虑变压器第三线圈与隔离变压器中性线可不接地,二次器件采用保护接地。
这就是IT接地系统。
此IT接地系统独立接地,与主回路,屏蔽等分开引入接地。
主要接地器件有:◆∙∙∙∙∙∙∙浪涌抑制保护器FLQ2——4mm2黄绿线(若为AC220V用为2.5mm2黄绿线即可);◆∙∙∙∙∙∙∙插座XS1,XS2—————4mm2黄绿线(若为AC220V用为2.5mm2黄绿线即可);◆∙∙∙∙∙∙∙脉冲群抑制器MCQ1,MCQ2,滤波器FILT;(均属金属外壳,法拉第龙式)————2.5mm2黄绿线◆∙∙∙∙∙∙∙开关电源Pow1,Pow2————1.5mm2黄绿线;◆∙∙∙∙∙∙∙PLC工作地————————1.5mm2黄绿线;◆∙∙∙∙∙∙∙变压器温控仪WKQ、数显表DYP————1.5mm2黄绿线(当变压器温控仪用于底部风机供电时为4mm2黄绿线);◆∙∙∙∙∙∙∙柜顶风机,变压器底部风机————2.5mm2黄绿线;三、柜体接地现有变频器柜体采用的大多是拼装机柜,对于拼装机柜的柜体来说,各个侧板,顶板与骨架之间的连接处均有喷塑,或喷漆的存在,这种情况下各个侧板与骨架,底座之间并不是可靠的电气连接。
所以在变频器柜体接地方面,最好是各个侧板与骨架之间都有接地钉,多通过软连接的方式,使柜体的各个部分有可靠的电气连接,接地钉处不能喷塑或喷漆等。
这样根据法拉第龙效应,也可有效的屏蔽外部电磁干扰和谐波污染。
门把手等也要与地有可靠的电气连接。
◆∙∙∙∙∙∙∙柜体前后门:建议6mm2线或者软连接;◆∙∙∙∙∙∙∙低压室小门(若有):建议2.5mm2线或者软连接;◆∙∙∙∙∙∙∙侧板:建议6mm2线或者软连接;◆∙∙∙∙∙∙∙顶板:建议2.5mm2线或者软连接◆∙∙∙∙∙∙∙柜门锁:建议2.5mm2线或者软连接四、屏蔽接地1、信号的屏蔽线接地:采用标准的4-20mA或0-10V信号的信号回路一定要采用双绞线,或者屏蔽的2芯电缆,并在屏蔽层的一端实施接地。