BAY2断路器保护盘记录讲解
- 格式:doc
- 大小:374.50 KB
- 文档页数:15
220kV母线保护屏看板说明
A菜单操作流程B菜单操作流程
B.1 保护插件刀闸辅助接点与一次设备状态不对应时强制对应
的步骤:
(1)由主界面按“确认”键进入一级菜单;
(2)按“←”键选中“参数”,后按“↓”键选中“运行方式设置”,按“确
认”键,后按“↑”、“↓”键输入密码800后进入下一级菜单,按“确
认”键,间隔数变成灰色;
(3)利用“↓”、“↑”,从界面中找到相应线路所对应的间隔,再按“确认”
键,此时间隔数灰色消失;
(4)按“↓”键选中所要改变的刀闸,再按“确认”键此时又变灰色;
(5)按“↓”改变刀闸位置(合、断、自动)后,按“取消”键提示是否
保存,按确认键保存改变的设置(此时主接线图上,被强制的刀闸上有
一实心矩形块);
(6)按下保护屏上的信号复归按钮,复归信号。
B.2 保护定值打印步骤
(1)按确认键进入一级菜单;
(2)光标落在“查看”菜单,后按“↓”键选中“整定值”;
(3)后按“→”键选中“打印”;
(4)最后按“确认”键即可打印。
B.3BP-2B母差保护故障报告打印步骤:
(1)按确认键进入一级菜单;
(2)光标落在“查看”菜单,按“↓”键选中“录波记录”;
(3)后按“确认”键,进入下一级子菜单,用“←”、“→”键选择所打印
的记录,再选中“打印”最后按“确认”键即可打印。
B.4 保护时钟修改操作步骤:
(1)由主界面按“确认”键进入一级菜单;
(2)按“←”键选中“参数”,后按“↓”键选中“插件时钟设置”,按“确
认”键,进入窗口后;
(3)按“确认”键,使日期、时间逐一变灰色,此时用方向键进行数值修
改、光标移动,逐一完成修改。
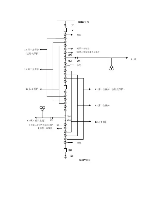
BP-2B 母差及失灵保护装置使用说明BP-2B 母线差动保护是母线故障时的快速保护,能满足双母线运行灵活的要求。
其在双母线并列运行,单母线运行解列运行,固定联结破坏及倒闸操作过程中均能正确动作,不必进行手动切换。
在双母线并列运时发生母线短路或接地故障时保护动作无时限跳开母联及故障母线上联结的各元件断路器。
在单母线运行时,当母线发生短路或接地故障时保护动作无时限跳开母线上联结的各元件断路器。
BP-2B 微机母差及失灵保护装置装置面板布置图如下图1:图1 BP-2B 母差及失灵保护BP-2B 型微机母线保护装置面板指示灯与按钮说明表:见表1表1 BP-2B 型微机母线保护装置面板指示灯与按钮说明表BP-2B保护装置运行或操作时相应的信号指示灯和界面显示表:见表2BP-2B微机母线保护装置异常信息含义及菜单操作BP-2B微机母线保护装置自检信息含义及处理建议:见下表3表3 BP-2B微机母线保护装置自检信息含义及处理建议BP-2B保护插件异常信息含义及处理建议:见下表4BP-2B母线保护装置告警信号灯处理表:见下表5表5 BP-2B母线保护装置告警信号灯处理表BP-2B微机母线成套保护液晶显示画面总体结构示意图,如下图2:图2 BP-2B微机母线成套保护液晶显示画面总体结构示意图保护插件刀闸辅助接点与一次设备状态不对应时强制对应的步骤:a)由主界面按“确认”键进入一级菜单;b)按“←”键选中“参数”,后按“↓”键选中“运行方式设置”,按“确认”键,后按“↑”、“↓”键输入密码后进入下一级菜单,按“确认”键,间隔数变成灰色;c)利用“↓”、“↑”,从界面中找到相应线路所对应的间隔,再按“确认”键,此时间隔数灰色消失;d)按“↓”键选中所要改变的刀闸,再按“确认”键此时又变灰色;e)按“↓”改变刀闸位置(合、断、自动)后,按“取消”键提示是否保存,按确认键保存改变的设置(此时主接线图上,被强制的刀闸上有一实心矩形块);f)按下保护屏上的信号复归按钮,复归信号。
L1线L2L1L1L1四方公司开关保护CSC-121A面板布置运行灯:正常为绿色光,当有保护启动时为闪烁状态;重合闸灯:装置重合闸出口灯,动作后为红色,正常灭;失灵,过流保护灯:保护跳闸出口灯,动作后为红色,正常灭;充满电灯:装置重合闸充满电后为绿色亮,当重合闸停用或被闭锁及合闸放电后灭; 告警灯:此灯正常灭,动作后为红色。
装置有告警I时(严重告警)告警灯闪亮,退出所有保护的功能,装置闭锁保护出口电源;有告警II时(设备异常告警),告警灯常亮,仅退出相关功能,不闭锁保护出口电源✧RG61开关保护及短线保护屏4.2 电源小开关和切换开关名称阿斯通公司开关保护1.P442面板布置失灵/重合闸保护装置面板说明:a.人机接口由4个功能固定的LED灯(左侧),8个用户可编程设定LED灯(右侧),7个面板键,以及RS232与RS485端口构成。
b.4个固定LED灯分别表示为装置总跳闸(TRIP)、装置报警(ALARM)、装置退出运行(OUT SERVICE)、装置正常运行(HEALTHY)。
正常运行时,装置正常运行(HEALTHY)灯常亮。
其它灯不亮。
c.8个可编程设定LED灯分别表示为启动A相重合闸/失灵、启动B相重合闸/失灵、启动C 相重合闸/失灵、失灵三跳出口、重合闸动作、开关压力低、闭锁重合闸、沟通三跳。
正常运行时LED灯熄灭。
2.P122面板布置开关间短线保护当线路停役时,而与该线路相对应的断路器应运行方式需要合环时,两断路器至线路闸刀之间的短距离引线将失去快速保护,影响电网安全。
故装设两套短线保护,在该状态时自动投入运行。
由于该保护依靠线路闸刀的辅助接点自动切换来决定投入还是退出。
故有两种逻辑组合来达到同一目的。
逻辑方式:采用线路闸刀辅助接点常闭接点自动投入。
采用该逻辑时,短线保护投入时,装置屏面会亮LED7红灯,装置屏面板灯说明:LED1(TRIP):该发光二极管亮(红色),表明保护装置发出跳闸命令。
断路器的防跳(跳跃闭锁)控制回路当合闸回路出现故障时进行分闸,或短路事故未排除,又进行合闸(误操作),这时就会出现断路器反复合分闸,不仅容易引起或扩大事故,还会引起设备损坏或人身事故,所以高压开关控制回路应设计防跳。
防跳一般选用电流启动,电压保持的双线圈继电器。
电流线圈串接于分闸回路作为启动线圈。
电压线圈接于合闸回路,作为保持线圈,当分闸时,电流线圈经分闸回路起动。
如果合闸回路有故障,或处于手动合闸位置,电压线圈起启动并通过其常开接点自保持,其常闭接点马上断开合闸回路,保证断路器在分闸过程中不能马上再合闸。
防跳继电器的电流回路还可以通过其常开接点将电流线圈自保持,这样可以减轻保护继电器的出口接点断开负荷,也减少了保护继电器的保持时间要求。
有些微机保护装置自己已具有防跳功能,这样就可以不再设计防跳回路。
断路器操作机构选用弹簧储能时,如果选用储能后可以进行一次合闸与分闸的弹簧储能操作机构(也有用于重合闸的储能后可以进行二次合闸与分闸的弹簧储能操作机构),因为储能一般都要求10秒左右,当储能开关经常处于断开位置时,储一次能,合完之后,将储能开关再处于断开位置,可以跳一次闸;跳闸之后,要手动储能之后才能进行合闸,此时,也可以不再设计防跳回路。
1.断路器的“跳跃”现象及危害如果手动合闸后控制开关(SA的手柄尚未松开 5—8触点仍在接通状态)或者自动重合闸装置的出口触点K1烧结,若此时发生故障,则保护装置动作,其出口K2触点闭合,跳闸线圈YT通电起动使断路器跳闸,则QF2接通,使接触器KM又带电,使断路器再次合闸,保护装置又动作使断路器又跳闸……,断路器的这种多次“跳一合”现象称为“跳跃”。
如果断路器发生跳跃,势必造成绝缘下降、油温上升,严重时会引起断路器发生爆炸事故,危及设备和人身的安全。
2.断路器的“防跳”控制回路在35kV及以上电压的断路器控制回路中,通常加装防跳中间继电器KCF,如图5-3所示。
KCF 常采用DZB型中间继电器,它有两个线圈:电流起动线圈KCF1,串接于跳闸回路中;电压(自保持)线圈KCF2,与自身的动合触点串联,再并接于合闸接触器KM的回路中。
前言:低压配电箱/柜是电力配电网络的最后一,二级配电装置,也就是提供用电设备保护的第一,二级电力设备。
虽然,从电力网络的运行重要性上来说,它比不上低压配电盘,更不用说是高压配电装置。
但是,如果终端配电装置里的电器元件一旦损坏失灵,它轻则造成更大的停电区域,影响生产。
重则,更会导致用电设备的损坏,甚至会引发火灾,人员伤亡等重大事故。
所以,对于这些配电设备维护保养轻视不得。
并且对于内部的电器元件的正确操作要有必要的了解,根据实践经验,低压电器元件的损坏,有很多就是因为不当的操作习惯。
(主要因为这些元件操作的频率一般是最高的)鉴于,如今低压电器品牌众多,操作方式(特别是ACB等大型断路器),调节整定电流的方法都有所不同,故有必要对于中芯国际项目上用于我司出品的低压配电箱/柜上的ABB品牌的开关做一些简单的操作,调节整定的描述。
1.GCK(低压抽出式配电盘)抽屉的操作SMIC项目,照明总箱用的是GCK抽出式配电盘,有必要对抽屉如何抽出,插入做一个简单的操作介绍。
1.1 抽出操作:I.要抽出抽屉,请先确认此抽屉的旋转操作手柄是否已经在分闸位置II.打开抽屉门(门与开关有联锁,只有在分闸时才能开)III.把抽屉下端的一个定位横杆从抽屉的右边拉出,并拉到抽屉的左边。
(此时抽屉从连接位,移到断开位)IV.两手握住抽屉两端,把抽屉从抽架中抽出。
1.2 插入操作:I.两手握住抽屉两端,把抽屉从抽架中插入,推至断开位II.把抽屉下端的一个定位横杆从抽屉的左边拉到抽屉的左边。
(此时抽屉从断开位,移到连接位)III.关上抽屉门,插入操作完成。
2.ABB电器元件的介绍和基本操作电器元件是配电装置的核心部件,我把本司提供的所有的箱体的电器元器件作了以下归类,并简单介绍了电器的特性和一些基本操作事项。
2.1空气断路器(ACB)本项目采用是瑞士ABB公司设计生产的SACE Megamax F系列空气抽出式断路器。
开关具有以下主要特点:1.结构紧凑,标准化的结构形式,构件用压砂印电镀钢板制成2.接线端子都模压在玻璃纤维聚脂材料中,使其具有高机械,热动态稳定性。
【精选】断路器失灵保护二次详解一.500kV 开关失灵以第三串为例,开关的失灵保护是在开关保护RCS-921 里实现的,线路保护 RCS-931和 RCS-902 的分相跳闸命令及来自操作箱的三相跳闸命令TJR 开入至RCS-921,921 经内部逻辑判断――过流判据(失灵高定值 0.6A,失灵低定值 0.4A),满足失灵条件时经第一时限 0.13s 跳本开关,0.2s 跳相邻开关即 SLJ 触点闭合。
Fig.1 失灵启动开入对 5031 边开关来说,两个 SLJ 触点跳相邻中开关;两个 SLJ 触点启动母差失灵;另有四个SLJ 触点开入至FOX-41Ⅰ和Ⅱ启动远跳。
Fig.2 5031 边开关失灵出口对 5033 边开关来说,两个 SLJ 触点跳相邻中开关;两个 SLJ 触点启动母差失灵;另有一个 SLJ 触点开入至主变保护 C 屏,借助 RCS-974 的压力释放跳闸继电器 J8 联跳主变三侧。
Fig.3 5033 边开关失灵出口对 5032 中开关来说,两个 SLJ 触点跳相邻 5031 边开关;两个SLJ 触点跳相邻 5033 边开关;一个 SLJ 触点与 5033 的 SLJ 触点并联开入至主变保护 C 屏,实现联跳主变三侧;另有四个 SLJ 触点开入至FOX-41Ⅰ和Ⅱ启动远跳。
Fig.4 5032 中开关失灵出口二.220kV 开关失灵1.线路开关失灵线路开关的失灵保护是由线路保护、开关保护、失灵保护共同实现的,线路保护 RCS931 和RCS-902 的分相跳闸命令及来自操作箱的三相跳闸命令TJR 和 TJQ 与开关辅助保-护 RCS-923 过流判据(失灵电流定值 0.9 A)串联,开入至失灵保护屏 BP-2B,经失灵出口短延时 0.35s 跳母联/分段开关,失灵长延时 0.5s 跳该母线上所连接的所有开关。
Fig.5 220kV 线路开关失灵启动回路2.母联/分段开关失灵母联/分段开关的失灵保护是由母差保护BP-2B实现的,来自操作箱的三相跳闸命令TJR开入至母差保护屏BP-2B,由母差保护经过流判据(母联失灵电流定值 0.2s)实现失灵保护,满足失灵条件时经 0.2s 跳两条母线上所有开关。
電動機保護斷路器MANUAL MOTOR STARTER2021.10 版工廠驗證結構緊湊符合標準安全性M3~MR-32S MR-32R 接觸器電動機orMR-65R2MMS允許操作環境溫度:-25 ~ 55℃允許儲存環境溫度:-50 ~ 80℃海拔高度:安裝地點海拔高度不能超過2000m污染等級:抗污染等級為3,可在IEC60947標準中定義三級污染環境中運行安裝條件:(1). 安裝面與垂直面傾斜角不能超過30°(2). 採用標準導軌安裝(3). 應安裝和使用在無明顯晃動、沖擊及震盪的地方◆◆◆◆◆額定工作電流:0.16~32A(32AF),13~65(65AF)系列號:S -按鈕式(32AF)、R-旋轉式(32/65AF)框架等級:32,65電動機保護斷路器正常工作條件及安裝條件額定工作電流過載脫扣設定範圍磁脫扣電流產品型號In (A)In (A)Id ±20% (A)按鈕式0.160.1-0.161.92MR-32S-0.160.250.16-0.253MR-32S-0.250.40.25-0.44.8MR-32S-0.40.630.4-0.637.56MR-32S-0.6310.63-112MR-32S-11.61-1.619.2MR-32S-1.62.5 1.6-2.530MR-32S-2.54 2.5-448MR-32S-46.34-6.375.6MR-32S-6.3106-10120MR-32S-10149-14168MR-32S-14LTI >2.5~4A100/100100/100100/10080/804~6.3A100/100100/10050/5050/506~10A100/100100/10015/1510/109~14A100/10015/7.58/46/4.513~18A100/10015/7.58/46/4.517~23A50/5015/66/34/320~25A50/5015/66/34/324~32A50/5010/56/34/3自動●IP20100,000100,000允許操作環境溫度-25 ~ 55℃允許儲存環境溫度-50 ~ 80℃MR-65R3PUi (V)690額定耐受衝擊電壓 Uimp (kV)650/60 Hz4MMSMR-AUMR-AM-11MR-AD-0110MR-AD-0101MR-AD-1010MR-AD-10011NO+1NC D2D1URearm RESET060508>>C2C1附件齊全側裝輔助接點組(MR-AN)短路信號接點組(MR-AM)上裝輔助接點組(MR-AE)電壓跳脫裝置(MR-AS)欠電壓跳脫裝置(MR-AU)or MR-32S MR-32R 故障信號接點組(MR-AD)MR-65Roror or or電 動 機 保 護 斷 路器5MMS 應用例圖【範例一】【範例二】ororororAPS-11N S-P ○○N *MEU-11N MPU-11N S-P ○○NML-01NAP-4NAP-2NorAPS-11N S-P ○○NL MEU-11N MPU-11N S-P ○○NLMR-65R-○○WKM-65NLML-01NAP-4NAP-2NWKX-65NL註1.註6MMS特性曲線圖MMS 接線模組名稱MMS+MC 接線模組正逆轉接線模組圖示接線模組型號WKM-18N WKM-38N WKMD-18N WKMD-38N WKM-65NL WKX-18N WKX-38N WKX-65NL MMS 適用型號MR-32S MR-32R MR-65RMR-32S MR-32RMR-65R接觸器適用型號S-P9N S-P9N3S-P9N4S-P12N S-P12N3S-P12N4S-P18N S-P18N3S-P18N4S-P25N S-P25N3S-P32N S-P32N3S-P38N S-P38N3SD-P9N SD-P12N SD-P18N SD-P25N SD-P32N SD-P38N S-P40NL S-P50NL S-P65NLS-P9N S-P9N4S-P12N S-P12N4S-P18N S-P18N4SD-P9N SD-P12N SD-P18NS-P25N S-P32N S-P38N SD-P25N SD-P32N SD-P38NS-P40NL S-P50NL S-P65NL36007200300120060060120301050.5120.20.10.050.010.02144001.201.05504030201234567811.216.8Tripping characteristicMR-65R(倍)X rated current t (s )Multiple of setting value × In (A)Tripping characteristicMR-32S/R1.201.0550403020123456789.614.4(倍)X rated current 36007200300120060060120301050.5120.20.10.050.010.0214400t (s )Multiple of setting value × In (A)65.512.9TEST 1L12L13L25L34L26L3144544.614.3267514MR-32R-Y13.613.6168MMS◆ 側裝輔助接點組重量:0.10kg37.6458749.66618短路信號接點組4587◆ 側裝輔助接點組◆ 電壓/欠電壓跳脫裝置重量:0.10kg 37.6458749.66618◆ 側裝輔助接點組◆ 電壓/欠電壓跳脫裝置重量:0.10kg 37.6458749.66618◆ 短路信號接點組4587短路信號接點組◆ 側裝輔助接點組重量:0.10kg 37.6458749.66618◆ 短路信號接點組4587◆ 故障信號接點組2110.1,000.mms01-8www本公司保留變更修改機種、規格之權利,恕不另行通知。
漏电保护器测试记录填写范例各位朋友,你们好!今天我要给大家分享一个超级实用的小技巧——如何正确填写漏电保护器的测试记录。
这个小技巧可是能帮你在家庭电路安全上多一份保障哦!别急,跟着我一起往下看,保证让你学到不少东西!咱们得明白什么是漏电保护器(也叫做漏电断路器)。
这可是个高科技玩意儿,专门用来检测电路中的漏电情况,一旦发现有漏电,它就会立刻切断电源,确保咱们的安全不受影响。
所以啊,这个设备可不能少,一定要记得安装哦!那么,问题来了,怎么给漏电保护器做测试呢?别担心,我来给你支招。
你得准备好测试工具,比如万用表、绝缘电阻测试仪啥的。
然后,按照说明书上的步骤来操作,一步步检查漏电保护器的参数。
1. 打开漏电保护器,让它“清醒”一下。
2. 用万用表测一下它的通断情况,看看是不是正常。
3. 接着,咱们来测一测它的漏电电流。
这一步可不能马虎,要确保数值准确无误。
4. 别忘了测一测它的绝缘电阻,这可是衡量它好坏的关键指标。
5. 咱们还得检查一下它的复位功能和报警功能。
完成这些步骤后,如果一切顺利,那说明漏电保护器工作正常;如果发现问题,那就得赶紧找专业的维修人员来帮忙了。
写测试记录的时候,可得把每一项参数都记录下来,包括测试时间、环境温度、湿度等等。
这样不仅能帮助自己更好地了解设备的运行状况,还能为日后的维护工作提供便利。
另外,咱们在测试的过程中还需要注意一些事项。
比如,千万别在雷雨天气或者潮湿的环境中测试漏电保护器;还有啊,每次测试前后都要记得断电,确保安全。
好啦,以上就是关于漏电保护器测试的一些心得和小技巧。
希望我的分享能对大家有所帮助,也希望大家都能养成定期检查漏电保护器的好习惯,让咱们的生活更加安心、美好!。
MPCB system•Rotary and switch types•Rated operational current 32A, 63A and 100A •Switching capacity up to 100kA/400V •Fixed short-circuit release = 13 x I u•Overload release adjustable 0.65 - 1 x I u •Motor protection CLASS 10•Fulfill all needed standardsOptions•ON/OFF indication •T rip alarm/indication •Undervoltage release •Shunt release•Three phase busbar system •Moulded plastic enclosures•Door coupling rotary mechanisms •Insulated Link modulesOrdering Information■Model Number Legend1.Motor Protection Circuit Breaker2.Options for MPCB3.Busbars, line side terminals and shrouds1)Motor Protection Circuit Breaker 2)Type/range3)Setting range 1)Options MPCB 2)Auxiliary contacts T:T rip indicator U:Undervoltage release S:Shuntrelease DC:Door-coupling HU:DIN-rail adaptors V:Link modules PF:Enclosure 3)Other specifications1)Options MPCB 2)CPM:BusbarsBTC:Line side TA:Shrouds 3)Other specifications■System overviewMotor Protection Circuit BreakerRated Current In Suitable formotors 3~400VSetting range Thermal Overload ReleaseInstantaneous Short Circuit ReleaseShort Circuit Breaking Capacity at 3~400VTypeAkW A A kA (Icu)0.16-0.10-0.16 2.1100J7MN-3P-E160.250.060.16-0.25 3.3100J7MN-3P-E250.40.090.25-0.4 5.2100J7MN-3P-E40.630.180.4-0.638.2100J7MN-3P-E6310.250.63-113100J7MN-3P-11.60.551- 1.620.8100J7MN-3P-1E62.50.75 1.6- 2.532.5100J7MN-3P-2E54 1.5 2.5-452100J7MN-3P-46 2.24-678100J7MN-3P-6835-8104100J7MN-3P-81046-1013050J7MN-3P-1013 5.59-1316950J7MN-3P-13177.511-1722120J7MN-3P-17227.514-2228615J7MN-3P-22261118-2633815J7MN-3P-26321522-3241615J7MN-3P-320.16-0.10-0.16 2.1100J7MN-3R-E160.250.060.16 - 0.25 3.3100J7MN-3R-E250.40.090.25-0.4 5.2100J7MN-3R-E40.630.180.4-0.638.2100J7MN-3R-E6310.250.63-113100J7MN-3R-11.60.551- 1.620.8100J7MN-3R-1E62.50.75 1.6- 2.532.5100J7MN-3R-2E54 1.5 2.5-452100J7MN-3R-46 2.24-678100J7MN-3R-6835-8104100J7MN-3R-81046-10130100J7MN-3R-1013 5.59-13169100J7MN-3R-13177.511-1722150J7MN-3R-17227.514-2228650J7MN-3R-22261118-2633850J7MN-3R-26321522-3241650J7MN-3R-322612.518-2633850J7MN-6R-26321522-3241650J7MN-6R-324018.528-4052050J7MN-6R-40502234-5065050J7MN-6R-50633045-6381950J7MN-6R-63633045-6381950J7MN-9R-63753755-7597550J7MN-9R-75904570-90117050J7MN-9R-90100-80- 100130050J7MN-9R-100J7MN-3PJ7MN-3RJ7MN-6RJ7MN-9RAccessoriesTransverse AuxiliarySide AuxiliaryAny Trip AlarmShort circuit Trip Alarm DescriptionMounting place Max. per MPCBRated voltages Type Undervoltage ReleaseTrips the circuit-breaker when the voltage is interrupted. Pre-vents the motor from being re-started accidentally when the voltage is restored, suitable for EMERGENCY STOP acc. to VDE 0113Right hand side 124V 50Hz, 28V 60Hz J77MN-U-24110 - 127V 50Hz, 120V 60Hz J77MN-U-110220 - 230V 50Hz, 240 - 260V 60Hz J77MN-U-230240 V 50 Hz, 277 V 60 HzJ77MN-U-240380 - 400 V 50 Hz, 440 - 460 V 60 Hz J77MN-U-400415 - 440 V 50 Hz, 460 - 480 V 60 Hz J77MN-U-415Shunt ReleaseTrips the circuit-breaker when the release coil energized.Right hand side124 V 50 Hz, 28 V 60 Hz J77MN-S-24110 - 127 V 50 Hz, 120 V 60 Hz J77MN-S-110220 - 230 V 50 Hz, 240 - 260 V 60 Hz J77MN-S-230240 V 50 Hz, 277 V 60 HzJ77MN-S-240380 - 400 V 50 Hz, 440 - 460 V 60 Hz J77MN-S-400415 - 440 V 50 Hz, 460 - 480 V 60 HzJ77MN-S-415DescriptionTypeEnclosurePlastic enclose with rotary operating mechanism, lockable space for aux. contact + release, IP65J77MN-PF-3REnclose with rotary operating mechanism yellow - red, lock space for aux. contact + release, IP65J77MN-PFC-3RDescription ApplicableMPCBsShaft length TypeDoor-coupling rotarymechanism IP65;black/greyThe door locking device prevents accidentalopening of the cubicle door in the ON positionof the circuit-breaker. The OFF position can belocked with up to 3 padlocksJ7MN-3R115mm J77MN-DC-3R-115-B315mm J77MN-DC-3R-315-BJ7MN-6R115mm J77MN-DC-6R-115-B315mm J77MN-DC-6R-315-BJ7MN-9R115mm J77MN-DC-9R-115-B315mm J77MN-DC-9R-315-B Door-coupling rotarymechanism IP65;red/yellowJ7MN-3R115mm J77MN-DC-3R-115-RY315mm J77MN-DC-3R-315-RYJ7MN-6R115mm J77MN-DC-6R-115-RY315mm J77MN-DC-6R-315-RYJ7MN-9R115mm J77MN-DC-9R-115-RY315mm J77MN-DC-9R-315-RY Description TypeLink modules Mechanical and electrical connection betweenMotor Protection Circuit Breaker and Contactor.Up-to max. 32A.Mini Motor Contactor J7KNA J77MN-VKA-3Motor Contactor J7KN J77MN-VKN-3Motor Contactor J7KNG J77MN-VKG-3Electrical connection between Motor ProtectionCircuit Breaker and Contactor.Up-to 32 A J77MN-VD-3Up-to 63 A J77MN-VD-6J77MN-VDG-6Up-to 100 A J77MN-VD-9DIN-rail adaptors For mechanical fixing of circuit-breaker andcontactor. With two moveable DIN-rail clips foreasy mounting & replacing. Can be connectedto one 35W x 15H mm DIN-rail or two 35W x7.5H mm DIN-rails.For J7MN-3 and J7KN(G)-10 up-toJ7KN(G)-40J77MN-HU-3For mechanical fixing of circuit-breaker andcontactor. Can be connected to one 35W x 15Hmm DIN-rail or two 35W x 7.5H mm DIN-rails.For J7MN-6 and J7KN(G)-24 up-toJ7KNG-40 and/or J7KN-62J77MN-HU-6For J7MN-9 and J7KN-50 up-to J7KN-74J77MN-HU-9Scale cover sealable for covering the current setting scale (1bag with 10units)J77MN-KPush-in lugs for screwing the circuit-breaker onto mounting plates. 2units required (1bag with20units)J77MN-LInsulation barriers Up to 600V acc.UL 489 for increased distances and clearances acc. to UL Type "E“4pcs per device (2pcs on each side) (pack 2units)J77MN-TB100Insulated 3-Phase Busbar System IP20DescriptionConnection type VersionFor Units (MPCB)Pack pcs Type3-phase busbars;modular spacing = 45 mmSpadefor 2 units J7MN-3P; J7MN-3R1J77MN-CPM-3-45-2S for 3 units 1J77MN-CPM-3-45-3S for 4 units 1J77MN-CPM-3-45-4S for 5 units1J77MN-CPM-3-45-5S Line side terminal 3-pole,connection from above;conductor cross-section solid or stranded 6-25mm² with end sleeve 4-16mm²Spade acc. IEC/EN 60947-1, 60947-2, 60947-4-1 and VDE 0660J7MN-3P; J7MN-3R 1J77MN-BTC-63-SELine side terminal 3-pole,connection from above;conductor cross-section solid or stranded 6-25mm² with end sleeve 4-16mm²Spade up to 600V acc. UL 489J7MN-3P;J7MN-3R1J77MN-BTC-63-SEVShrouds for unused terminals on busbar systemSpade J7MN-3P; J7MN-3R1J77MN-TA-63S3-phase busbars;modular spacing = 45 mmPin for 2 units J7MN-3P; J7MN-3R1J77MN-CPM-3-45-2for 3 units 1J77MN-CPM-3-45-3for 4 units 1J77MN-CPM-3-45-4for 5 units1J77MN-CPM-3-45-53-phase busbars;modular spacing = 54 mmPin for 2 units J7MN-3P; J7MN-3R1J77MN-CPM-3-54-2for 3 units 1J77MN-CPM-3-54-3for 4 units 1J77MN-CPM-3-54-4for 5 units1J77MN-CPM-3-54-5Line side terminal 3-pole,connection from above;conductor cross-section solid or stranded 6-25mm² with end sleeve 4-16mm²Pin acc. IEC/EN 60947-1, 60947-2, 60947-4-1 and VDE 0660J7MN-3P; J7MN-3R 1J77MN-BTC-63-ELine side terminal 3-pole,connection from above;conductor cross-section solid or stranded 6-25mm² with end sleeve 4-16mm²Pin up to 600V acc. UL 489J7MN-3P;J7MN-3R1J77MN-BTC-63-EVShrouds for unused terminals on busbar systemPin J7MN-3P; J7MN-3R1J77MN-TA-633-phase busbars;modular spacing = 55 mmPin for 2 unitsJ7MN-6P; J7MN-6R1J77MN-CPM-6-55-2■Components for Fuseless Load Feeders, DIN-rail Mounting T ype of coordination …1“ 3 x 415V 10kA (other conditions on request)Motor Contactor Link-module DIN-rail adaptor Circuit-breaker3~400V up to …KW Range Model Model Range4J7KNA-09J77MN-VKA Not needed J7MN-3P / J7MN-3R J7KN-10J77MN-VKN-3J7KN-10-xx VKN3IncludedJ7KNG-10-xx D J77MN-VKG-35.5J7KNA-12J77MN-VKA Not needed J7MN-3P / J7MN-3RJ7KN-14J77MN-VKN-3J7KN-14-xx VKN3IncludedJ7KNG-14-xx D J77MN-VKG-37.5J7KN-18J77MN-VKN-3Not Needed J7MN-3P / J7MN-3RJ7KN-18-xx VKN3IncludedJ7KNG-18-xx D J77MN-VKG-311J7KN-22J77MN-VKN-3Not Needed J7MN-3P / J7MN-3R J7KN-22-xx VKN3IncludedJ7KNG-22-xx D J77MN-VKG-3J7KN(G)-24J77MN-VD-3J77MN-HU-3J7KN-24J77MN-VD-6J77MN-HU-6J7MN-6RJ7KNG-24J77MN-VDG-615J7KN(G)-32J77MN-VD-3J77MN-HU-3J7MN-3P / J7MN-3R J7KN-32J77MN-VD-6J77MN-HU-6J7MN-6RJ7KNG-32J77MN-VDG-618.5J7KN-40J77MN-VD-6J77MN-HU-6J7MN-6RJ7KNG-40J77MN-VDG-622J7KN-50J77MN-VD-6J77MN-HU-6J7MN-6R30J7KN-62J77MN-VD-6J77MN-HU-6J7MN-6RJ7KN-62J77MN-VD-9J77MN-HU-9J7MN-9R 37J7KN-74J77MN-VD-9J77MN-HU-9J7MN-9R45J7KN-85Not available Not available J7MN-9R55J7KN-110Not available Not available J7MN-9RSpecifications■Engineering data and CharacteristicsTechnical Data according to IEC/EN 60947-1, 60947-2, 60947-4-1 and VDE 0660This table shows the rated ultimate short-circuit breaking capacity Icu and the rated service short-circuit breaking capacity Ics of the J7MN circuit-breakers with different operational voltages as a function of the rated current In of the circuit-breakers. The circuit-breakers can be fed at the top or bottom supply terminals without any reduction of the rated data.If the short-circuit current exceeds the rated short-circuit breaking capacity of the circuit-breaker specified in the tables at the installa-tion point, a back-up fuse is to be used. The maximum rated current for the back-up fuse is specified in the tables. These fuses are only suitable for the short-circuit-currents as indicated on the fuses.Circuit- breakerRated current Inup to AC 240V *1*110% overvoltage up to AC 400V *1up to AC 415V *2*25% overvoltageup to AC 440V *1up to AC 460V *2up to AC 500V *1up to AC 525V *2up to AC 690V *1IcuIcsmax.fuse *3(gL/gG)*3Back up fuse required if short-circuit current at installation point > IcuIcu Icsmax.fuse *3(gL/gG)Icu Icsmax.fuse *3(gL/gG)Icu Icsmax.fuse *3(gL/gG)Icu Icsmax.fuse *3(gL/gG)Type AkA kAA kA kAA kA kAA kA kAA kA kA A J7MN-3P0.16 to 0.63100100--100100--100100--100100--100100--1100100--100100--100100--100100--100100--1.6100100--100100--100100--100100--33202.5100100--100100--100100--50100--33354100100--100100--100385015385033406100100--100100--50115010114033508100100--100100--15116310840336310100100--5038801511636863336313100100--5038801088065633363175038--20151001088065803363224030125151110086100658033632640301251511100861006580336332302212515111006410054803363J7MN-3R 0.16 to 1.0100100--100100--100100--100100--100100--1.6100100--100100--100100--100100--100100--2.5100100--100100--100100--100100--88354100100--100100--100100--100100--88406100100--100100--100100--100100--66508100100--100100--503880503863666310100100--100100--503880503880666313100100--100100--503880423280666317100100--503810020158010880446322100100--5038125201510010880446326100100--5038125201510010880446332100100--50381252015100108804463J7MN-6R 26100100--50501253527125129100558032100100--50501253527125108100558040100100--50501603527125108100558050100100--50501603527125108100558063100100--505016035271601081005580J7MN-9R 63100100--50381604030160129100658075100100--50381604030160861255410090100100--503816040301608612554125100100100--503816040301608612554125--No back-up fuse requiredTechnical Data according to IEC/EN 60947-1, 60947-2, 60947-4-1 and VDE 0660Main CircuitConductor cross-sections for main circuitType J7MN-3P J7MN-3R J7MN-6R J7MN-9R Number of poles 3Max. rated current Inmax (=max. rated operational current Ie)32 A32 A63 A100 A Permissible ambient temperature Storage/transport-50 to +80°COperation-20 to +60°CStorage/transport-58 to +176°FOperation-4 to +140°FRated insulation voltage Ui 690 V*1*1Suitable at 690V for: earthed-neutral systems, overvoltage category I to IV, pollution degree 3 (standard-industry): Uimp= 6kV.1000 V*2*2Suitable at 1000V for: earthed-neutral systems, overvoltage category I to IV, pollution degree 3 (standard-industry): Uimp= 8kV.Data for other conditions on request.Rated impulse withstand voltage Uimp 6 kV8 kVRated operational voltage Ue690 VRated frequency50/60 HzUtilization category IEC 60 947-2 (circuit-breaker)AIEC 60 947-4-1 (motor starter)AC3Class acc. to IEC 60 947-4-1 10Power loss Pv per circuit-breaker In -> up to 4 A9.8 W-dependent on rated current In In -> 6 up to 26 A8 W-(upper setting range) In -> 32 A 3.9 W-R per conducting path = P/I² × 3 In -> 26 up to 63 A--12.6 W-In -> up to 63 A W---11.9 WIn -> 75 up to 100 A---15 W Shock resistance acc. to IEC 68 Part 2-2725 gDegree of protection acc. to IEC 60 529IP 20Shock hazard protection acc. to DIN VDE 0106 Part 100safe against finger touchWeight0.32kg0.36kg1kg 2.2kg T emperature compensation acc. to IEC 60 947-4-1 -20 to +60°CMechanical endurance operating cycles100,00050,000 Electrical endurance operating cycles100,00025,000Max. operating frequency per hour (motor starts)1/h25Type J7MN-3J7MN-6J7MN-9Screw type, terminal type Pz2Pz2 4mm hexagon socketscrewTightening torque 0.8 to 2.5 Nm 3 to 4.5 Nm 4 to 6 Nm7 to 22 lb-in26 to 39 lb-in35 to 53 lb-inConductor cross-sections solid 1 x (1 to 10) mm² 1 x (0.75 to 35) mm² 1 x (2.5 to 70) mm²2 x (1 to 6) mm² 2 x (0.75 to 25) mm² 2 x (2.5 to 50) mm²1 x (18 to 8) AWG 1 x (18 to 2) AWG 1 x (12 to 2/0) AWG2 x (18 to 10) AWG 2 x (18 to 4) AWG 2 x (12 to 1/0) AWGstranded 1 x (1 to 6) mm² 1 x (0.75 to 35) mm² 1 x (2.5 to 70) mm²2 x (1 to 6) mm² 2 x (0.75 to 25) mm² 2 x (2.5 to 50) mm²1 x (18 to 10) AWG 1 x (18 to 2) AWG 1 x (12 to 2/0) AWG2 x (18 to 10) AWG 2 x (18 to 4) AWG 2 x (12 to 1/0) AWGflexible 1 x (1 to 6) mm² 1 x (0.75 to 25) mm² 1 x (2.5 to 50) mm²2 x (0.75 to 4) mm² 2 x (0.75 to 16) mm² 2 x (2.5 to 35) mm²1 x (18 to 10) AWG 1 x (18 to 4) AWG 1 x (12 to 1/0) AWG2 x (18 to 10) AWG 2 x (18 to 6) AWG 2 x (10 to 2) AWGAuxiliary switchesTime/Current characteristicJ7MN-3P & J7MN-3RJ7MN-6R & J7MN-9RAux. TypeSwitching capacityControl voltage J77MN-11F / 20F / 02F & J7MN-T(A)Front transverse auxiliary switch with 1 NO + 1 NC, 2 NO, 2 NCRated operational voltage Ue 24 VAC 240 VAC Rated operational current Ie/AC-15 3 A 2 A Ie/AC-12 Ith 5 A 5 A Rated operational voltage Ue L/R 200 ms 24 VDC 220 VDC Rated operational currentIe/DC-13 1 A 0.1 A J77MN-11S / 20S / 02SLateral auxiliary switch with 1 NO + 1 NC, 2 NO, 2 NC & two signalling switches with 1 NO + 1 NCRated operational voltage Ue 24 VAC 240 VAC Rated operational current Ie/AC-15 6 A 4 AIe/AC-12 Ith 10 A Rated operational voltageUe L/R 200 ms 24 VDC 220 VDC Rated operational currentIe/DC-13 2 A0.25 A J77MN-UUndervoltage releasePower consumptionduring pick-up 8.5 VA / 6 W uninterrupted duty3 VA / 1.2 W Response voltagetrip 0.7 to 0.35 × Us (V)pick-up 0.85 to 1.1 × Us (V)J77MN-SShunt releasePower consumption during pick-up 8.5 VA / 6 W uninterrupted duty 3 VA / 1.2 W Response voltagetrip0.7 to 1.1 × Us (V)Short-circuit protection for auxiliary and control circuits Fuse gL/gG10 A Miniature circuit breaker C-characteristic6AConductor cross-sections for auxiliary and control circuits Screw-type Pz2solid 1 x (0.5 to 2.5) / 2x (0.5 to 2.5) mm²flexible 1 x (0.5 to 4) / 2 x (0.75 to 2.5) mm²solid AWG 1 x (20 to 14) / 2 x (20 to 14) AWG flexible AWG 1 x (20 to 10) / 2 x (18 to 14) AWGO p e r a t i o n t i m eO p e r a t i o n t i m eMultiple of set current × Ie Multiple of set current × IeH o u r M i n u t eS e c o n dTime H o u rM i n u t e S e c o n d TimeIr=10.4, ..., 15.6 X InReflex tripping:t ≤5 ms Ir=10.4, ..., 15.6 X InReflex tripping:t ≤5 msI The curve shows the mean operating current at an ambient temperature of 20°C starting from cold.II The tripping characteristic of electromagnetic overcurrent releases (short-circuit releases)The tripping characteristic of the inverse-time delayed overload releases apply for DC and AC with a frequency of 0 to 400 Hz.At operating temperature, the tripping times of the thermal releases are reduced to approximately 25 %.The characteristic shown here is a schematic representation of circuit-breakers for all ranges.Current limiting characteristics and I²t characteristics are available on request.Permissible ratings of devices approved for North America Circuit breakers J7MN as …Manual Motor Starter“If used as …Manual Motor Starter“ the circuit breaker is always oper-ated in combination with a short circuit device. For use with appro-bated fuses or circuit breakers according to UL489 or CSA22.2 No. 5 only. The sizes are selected according to National Electrical Code (UL), or Canadian Electrical Code (CSA)Circuit breakers J7MN as "Combination Motor Controller Type E" and " Suitable for Group Installation"Acc to UL508 demands a line-side 1 inch air and 2 inch creepage distance for …Combination Motor Controller Type E“ is necessary. Therefore circuit breaker J7MN-3R is approved to UL 508 in combi-nation with the T erminal block J75-BTC-25-EC. Circuit-breakers J7MN-9R are approved to UL 508 in combination with the insulation barriers J7MN-TB100. According to CSA these terminal blocks can be omitted when the device is used as "Combination Motor Control-ler T ype E“.J7MN-3Rated operational current Ie0.160.250.40.631 1.6 2.5468101317222632AMax. short-cir-cuit current J7MN-3P240 V100100100100100100100100100100505040303020kA 480 V50505050505050502525101010107.57.5kA 600 V10101010101010555555555kA J7MN-3R240 V100100100100100100100100100100100100100100100100kA 480 V50505050505050505050505030303030kA 600 V10101010101010101010101010101010kAMotor load 1-phase 115 V-------1/81/41/31/21/2111/222HP230 V-----1/101/61/31/2111/223355HPMotor load 3-phase 200 V------1/23/412233571/271/2HP230 V-----1/31/2111/2233571/271/210HP460V ----1/23/41235571/210151520HP600V----1/2111/2355101015202030HPMax.rated fuse1111361015203040506080100125A Max. breaker size1515151515151515203040506080100125AJ7MN-6R J7MN-9RRated operational current Ie2632405063637590100AMax. short-circuit current240 V100100100100100100100100100kA480 V505050505025252525kA600 V101010101010101010kAMotor load 1-phase 115 V23355571/21010HP230 V5571/2101515152020HPMotor load 3-phase 230 V101015152025253040HP 460V 202530401/25050607575HP 600V25304050606075100100HPMax. rated fuse100125150200250250300350400AMax. breaker size100125150200250250300350400AJ7MN-3R + J75-BTC-25-ECRated operational current Ie0.160.250.40.631 1.6 2.5468101317222632A Max. short-circuit current240 V100100100100100100100100100100100100100100100100kA 480 V50505050505050505050505030303030kA600 V10101010101010101010101010101010kAMotor load 1-phase 115 V-------1/81/41/31/21/2111/222HP230 V-----1/101/61/31/2111/223355HPMotor load 3-phase 200 V------1/23/412233571/271/2HP230 V-----1/31/2111/2233571/271/210HP460V ----1/23/41235571/210151520HP600V----1/2111/2355101015202030HPMax. rated fuse or breaker500500500500500500500500500500500500500500500500ADescriptionsReleasesCircuit-breakers J7MN are equipped with bimetallic-based, inverse-time delayed overload releases and with instantaneous overcurrentreleases (electromagnetic short-circuit releases). The overloadreleases can be set in accordance with the load current. The over-current releases are permanently set to a value 13 times the ratedcurrent and thus enable trouble-free start-up of motors. The scalecover can be sealed to prevent unauthorized adjustments to the setcurrent.Operating mechanismsCircuit-breakers J7MN-3P are actuated via a rocker operating mech-anism and circuit-breakers J7MN-3R, J7MN-6R and J7MN-9R via arotary operating mechanism. An electrical signal can be output, at allCircuit-breakers, via a signalling switch to indicate that the Circuit-breaker has tripped. All operating mechanisms can be locked in the 0position with a padlock (shackle diameter 3.5 to 4.5 mm). The J7MNCircuit-breakers fulfil the isolation characteristics specified in IEC60947-2.Operating conditionsCircuit-breakers J7MN are suitable for use in any climate. They aredesigned for operation in enclosed rooms under normal conditions(e. g. no dust, corrosive vapours or harmful gases). Suitable enclo-sures must be provided for installation in dusty or damp rooms. Cir-cuit-breakers J7MN can also be fed from below. In order to preventpremature tripping due to phase failure sensitivity, the three conduct-ing paths must always be uniformly loaded. The conducting pathsmust be connected in series in the case of single-phase loads.Short-circuit protectionThe short-circuit releases of J7MN circuit-breakers disconnect thefaulty load feeder from the system in the event of a short circuit andthus prevent any further damage from being caused. Circuit-breakerswith a short-circuit breaking capacity of 50 kA or 100 kA at a voltageof 400 V AC are practically short-circuit-proof at this voltage, ashigher short-circuit currents are not usually encountered at the instal-lation point. Back-up fuses are only necessary if the short-circuit cur-rent at the installation point exceeds the rated ultimate short-circuitbreaking capacity of the circuit-breakers.Motor protectionThe tripping characteristics of J7MN circuit-breakers are designedmainly to protect three-phase induction motors. The circuit-breakersare therefore also referred to as Manual Motor Starters. The currentof the motor to be protected is set with the aid of the scale.Line protectionJ7MN Circuit-breakers for motor protection are also suitable for lineprotection. The J7MN Circuit-breakers fulfil the isolation conditions ofIEC 60 947-3 as well as the additional test conditions for circuit-breakers with isolation characteristics specified in IEC 60947-2. T ak-ing IEC 60 204-1 into consideration, they can thus be implementedas main and EMERGENCY STOP switches. Door-coupling rotaryoperating mechanism do not fulfil the isolation characteristics. Wiring diagramsJ7MN-6R J7MN-9R + J77MN-TB100Rated operational current Ie2632405063637590100AMax. short-circuit current240 V100100100100100100100100100kA480V505050505040404040kA600V101010101010101010kAMotor load1-phase115V23355571/21010HP230 V5571/2101515152020HPMotor load3-phase230V101015152025253040HP460V 202530405050607575HP600V25304050606075100100HPMax. rated fuse or breaker6006006006006001,0001,0001,0001,000ACombination Motor Controller Type ERatings of auxiliary switches andalarm switchesLateral auxiliary switch withJ77MN-xxS and signallingswitch J77MN-TTransversal auxiliary switchwith J77MN-xxFBreaking capacity A600A300ACQ300R300DCCircuit breakers Traverse Aux. Contact blocks Aux. Contact Block (side mounted)J7MN J77MN-11F J77MN-20F J77MN-02F J77MN-11S J77MN-20S J77MN-02SAlarm Switch Undervoltage Release Shunt ReleaseJ77MN-T-11S J77MN-TA-11S J77MN-U-...J77MN-S-...DimensionsCircuit-breaker J7MN-3PCircuit-breaker J7MN-3RCircuit-breaker J7MN-6RCircuit-breaker J7MN-9RHeight of arcing spaces(clearance from earthed parts )at Ue (V)240415460525690mm 2020202020inch0.80.80.80.80.8Height of arcing spaces(clearance from earthed parts )at Ue (V)240415460525690mm 3030303050inch1.181.21.181.182Height of arcing spaces(clearance from earthed parts )at Ue (V)240415460525690mm 5050505050inch22222Height of arcing spaces(clearance from earthed parts )at Ue (V)240415460525690mm 507070110150inch22¾2¾4,336All1)Side aux. contact 2)Magnetic trip alarm3)Shunt or undervoltage release of arcing 4)T ransverse aux. contact5)35mm DIN-rail acc. to EN 500223P/3R 6)Push-in Lugs for screw mounting 3R/6R/9R 7)Handle lock in OFF-position ( 5mm)9R 8)4mm hexagon socket screw9)70mm DIN-rail acc. to EN 50023Enclosure J77MN-PFDoor-coupling rotary operating mechanism J77MN-DCType AJ77MN-DC-3R-115-B149-210J77MN-DC-3R-115-RY149-210J77MN-DC-3R-315-B149-410J77MN-DC-3R-315-RY149-410Type AJ77MN-DC-6R-115-B194-255J77MN-DC-6R-115-RY194-255J77MN-DC-6R-315-B194-455J77MN-DC-6R-315-RY194-455Type AJ77MN-DC-9R-115-B220-282J77MN-DC-9R-115-RY220-282J77MN-DC-9R-315-B220-482J77MN-DC-9R-315-RY220-482ALL DIMENSIONS SHOWN ARE IN MILLIMETERS.To convert millimeters into inches, multiply by 0.03937. T o convert grams into ounces, multiply by 0.03527.In the interest of product improvement, specifications are subject to change without notice.Cat. No. J08E-EN-03。
前言:低压配电箱/柜是电力配电网络的最后一,二级配电装置,也就是提供用电设备保护的第一,二级电力设备。
虽然,从电力网络的运行重要性上来说,它比不上低压配电盘,更不用说是高压配电装置。
但是,如果终端配电装置里的电器元件一旦损坏失灵,它轻则造成更大的停电区域,影响生产。
重则,更会导致用电设备的损坏,甚至会引发火灾,人员伤亡等重大事故。
所以,对于这些配电设备维护保养轻视不得。
并且对于内部的电器元件的正确操作要有必要的了解,根据实践经验,低压电器元件的损坏,有很多就是因为不当的操作习惯。
(主要因为这些元件操作的频率一般是最高的)鉴于,如今低压电器品牌众多,操作方式(特别是ACB等大型断路器),调节整定电流的方法都有所不同,故有必要对于中芯国际项目上用于我司出品的低压配电箱/柜上的ABB品牌的开关做一些简单的操作,调节整定的描述。
1.GCK(低压抽出式配电盘)抽屉的操作SMIC项目,照明总箱用的是GCK抽出式配电盘,有必要对抽屉如何抽出,插入做一个简单的操作介绍。
1.1 抽出操作:I.要抽出抽屉,请先确认此抽屉的旋转操作手柄是否已经在分闸位置II.打开抽屉门(门与开关有联锁,只有在分闸时才能开)III.把抽屉下端的一个定位横杆从抽屉的右边拉出,并拉到抽屉的左边。
(此时抽屉从连接位,移到断开位)IV.两手握住抽屉两端,把抽屉从抽架中抽出。
1.2 插入操作:I.两手握住抽屉两端,把抽屉从抽架中插入,推至断开位II.把抽屉下端的一个定位横杆从抽屉的左边拉到抽屉的左边。
(此时抽屉从断开位,移到连接位)III.关上抽屉门,插入操作完成。
2.ABB电器元件的介绍和基本操作电器元件是配电装置的核心部件,我把本司提供的所有的箱体的电器元器件作了以下归类,并简单介绍了电器的特性和一些基本操作事项。
2.1空气断路器(ACB)本项目采用是瑞士ABB公司设计生产的SACE Megamax F系列空气抽出式断路器。
开关具有以下主要特点:1.结构紧凑,标准化的结构形式,构件用压砂印电镀钢板制成2.接线端子都模压在玻璃纤维聚脂材料中,使其具有高机械,热动态稳定性。
.500kV 开关失灵以第三串为例,开关的失灵保护是在开关保护 RCS — 921里实现的,线路保护RCS — 931和RCS — 902的分相跳闸命令及来自操作箱的三相跳闸命令 TJR 开入至RCS — 921, 921经内部逻辑判断一一过流判据(失灵高定值0.6A ,失灵低定值0.4A ),满足失灵条件时经第一时限0.13s 跳本开关,0.2s 跳相邻开关即SLJ 触点闭合。
3D53压板名称23TJRFig.1失灵启动开入对5031边开关来说,两个 SLJ 触点跳相邻中开关;两个 SLJ 触点启动母差失灵;另有四个SLJ 触点开入至FOX-41 I 和H 启动远跳。
失灵汇总931902操作箱2」 ------ .於2r ———1D29TJA-3丿TJB-31LP91LP10921 失灵 开 入②1LP9启动5011开关A 相失灵及重合闸1LP10启动5011开关B 相失灵及重合闸1LP11启动5011开关C 相失灵及重合闸1LP9启动5011开关A 相失灵及重合闸1LP10启动5011开关B 相失灵及重合闸1LP11启动5011开关C 相失灵1D291D30TJA-3TJB-31D321LP11TJC-31D301D31TJC-313TJR3D703D641D323D653D714D703D681LP111LP93D671LP101D314D713D755031断路器保护5032操作箱压板名称3LP8 5032开关跳闸I3LP9 5032开关跳闸“3LP10启动1M母差I失灵3LP11启动1M母差"失灵3LP14启动光纤接口一命令7发信I3LP15启动光纤接口一命令8发信I3LP16启动光纤接口二命令7发信“3LP17启动光纤接口二命令8发信“Fig.2 5031边开关失灵出口对5033边开关来说,两个SLJ触点跳相邻中开关;两个SLJ触点启动母差失灵;另有一个SLJ 触点开入至主变保护C屏,借助RCS-974的压力释放跳闸继电器J8联跳主变三侧。