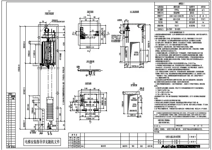
电梯机房布置图
- 格式:pdf
- 大小:714.47 KB
- 文档页数:1
CTRL20-V101(小机房) 现场施工文件目录序 号 图 号 图 纸 名 称 版本号备注 一、敷线图及各接线图 1 C21X0030P01 系统敷线图(机房) B增加曳引断绳开关2 C21X0030P02 系统敷线图(轿厢) B 替换A 版3 C21X0030P03 系统敷线图(井道) A4 C21X0030P04 控制柜外围接线图 B 增加曳引断绳开关5 C21X0030P05 机房接线图 B 替换A 版6 C21X0030P06 轿顶检修箱外围接线图 B 替换A 版7 C21X0030P07 井道电缆接线图 B 替换A 版8 C21X0030P08 井道换速开关接线图 A 9 C21X0030P09 门锁分支电缆及安全回路接线图 A 10 C21X0030P10 外呼通讯 A 11 C21X0030P11 底坑照明及警铃接线图 A 12 C21X0030P12 平层感应接线图 A二、井道开关及电缆安装图 1 C21X0031P01 井道开关安装图 A 2 C21X0031P02 井道电缆安装示意图A12345678ABCDDCBA设计Design审核Check 批准Approve图名Title 图号Drawing No.页码Page/Total版本Ver.MOVING & SERVING机房开关盒M03M01外电网三相五线制电源用户电源箱R S TPER S T 501ZK01ZK02ZK03TK01TK02TK0317位13位11位TK089位ZK08C01井道照明端子端子主机编码器屏蔽电缆抱闸M07M02U V W02 99变频器U V W控制柜W03M06CTRL20-V101(小机房)系统敷线图(机房)C21X0030P011/12B132456789X1P1见图C21X0030P02W01502 601 602 0299+N -L M02R ARDR S T ZK06TK0611位M10TK0421位ZK04U V WM02主电缆配置表电梯速度载重量630kg以下750-800kg800-1000kg 1500-2000kg 1.0RVV 4×6mm m/s 电缆规格2RVV 4×6mm 2RVV 4×6mm2RVV 4×10mm 21.5-1.75RVV 4×6mm2RVV 4×10mm 2RVV 4×10mm2RVV 4×16mm2载荷控制仪传感器M11PG-X2卡V101主控板M12TK055位ZK05见图C21X0030P03KCF KCF1KCFKCF1KCF 消防中心M09其他设备共用电源。
CTRL20-V101(小机房) 现场施工文件目录序 号 图 号 图 纸 名 称 版本号备注 一、敷线图及各接线图 1 C21X0030P01 系统敷线图(机房) B增加曳引断绳开关2 C21X0030P02 系统敷线图(轿厢) B 替换A 版3 C21X0030P03 系统敷线图(井道) A4 C21X0030P04 控制柜外围接线图 B 增加曳引断绳开关5 C21X0030P05 机房接线图 B 替换A 版6 C21X0030P06 轿顶检修箱外围接线图 B 替换A 版7 C21X0030P07 井道电缆接线图 B 替换A 版8 C21X0030P08 井道换速开关接线图 A 9 C21X0030P09 门锁分支电缆及安全回路接线图 A 10 C21X0030P10 外呼通讯 A 11 C21X0030P11 底坑照明及警铃接线图 A 12 C21X0030P12 平层感应接线图 A二、井道开关及电缆安装图 1 C21X0031P01 井道开关安装图 A 2 C21X0031P02 井道电缆安装示意图A12345678ABCDDCBA设计Design审核Check 批准Approve图名Title 图号Drawing No.页码Page/Total版本Ver.MOVING & SERVING机房开关盒M03M01外电网三相五线制电源用户电源箱R S TPER S T 501ZK01ZK02ZK03TK01TK02TK0317位13位11位TK089位ZK08C01井道照明端子端子主机编码器屏蔽电缆抱闸M07M02U V W02 99变频器U V W控制柜W03M06CTRL20-V101(小机房)系统敷线图(机房)C21X0030P011/12B132456789X1P1见图C21X0030P02W01502 601 602 0299+N -L M02R ARDR S T ZK06TK0611位M10TK0421位ZK04U V WM02主电缆配置表电梯速度载重量630kg以下750-800kg800-1000kg 1500-2000kg 1.0RVV 4×6mm m/s 电缆规格2RVV 4×6mm 2RVV 4×6mm2RVV 4×10mm 21.5-1.75RVV 4×6mm2RVV 4×10mm 2RVV 4×10mm2RVV 4×16mm2载荷控制仪传感器M11PG-X2卡V101主控板M12TK055位ZK05见图C21X0030P03KCF KCF1KCFKCF1KCF 消防中心M09其他设备共用电源。
电梯间施工图解说明:各楼电梯顺序,翠景园1#楼西侧电梯为电梯1、东侧为电梯2、中间为电梯3,其余各楼从西侧向东侧依次排序。
翠景园一、1/3/5/7/9/10#楼电梯11、底坑平面布置图新增加2个混凝土墩详见下图(Q箭头方向为电梯门):上图中A=478mm、B=100mm,高度为除建筑地面的高度,施工高度还包括回填土厚度,混凝土墩子混凝土强度C25,主筋4根直径10三级钢,箍筋圆钢直径6间距200。
2、井道平面布置图门洞边尺寸与设计图纸相符。
砌筑墙体上留设呼楼盒孔及消防通讯孔采用砌筑后切割方式施工(现场一次性浇筑的部位同样后钻孔)。
3、电梯机房部位机房地板机房侧墙机房地面平面图下手为门洞位置,墙体后壁预留凹坑尺寸见图纸,设置搁机梁的预留洞口,考虑到墙体渗漏,请设计明确处理方案。
通过施工图与电梯厂家提供图纸对比,电梯机房部位没有冲突,且需要留设凹坑。
4、电梯井电梯井壁为砖砌墙时,除门洞侧外其余三侧均布设钢筋砼圈梁(250×墙厚),电梯坑底以上0.5m布置一道,井道顶部以下0.5m布置一道,中间每2m布置一道,地下室地面上1m增设一道。
砼强度等级C20,配筋参照下图:砖砌电梯井壁拐角处,构造柱混凝土强度等级C20。
配筋参照下图施工时,先砌筑墙,留马牙槎,间距:层进层出,宽度60mm。
电梯门洞口根据BM砌块要求植筋,灌C20细石砼。
5、电梯门口装修预留方案地下室地面处理首层以上地面处理二、5/7/9/10电梯21、底坑平面布置图新增加2个混凝土墩详见下图(Q箭头方向为电梯门):上图中A=478mm、B=100mm,高度为除建筑地面的高度,施工高度还包括回填土厚度,混凝土墩子混凝土强度C25,主筋4根直径10三级钢,箍筋圆钢直径6间距200。
2、井道平面布置门洞边尺寸与设计图纸相符。
砌筑墙体上留设呼楼盒孔及消防通讯孔采用砌筑后切割方式(现场一次性浇筑的部位同样后钻孔)。
3、电梯机房机房地板机房侧墙机房地面平面图下手为门洞位置,墙体后壁预留凹坑尺寸见图纸,设置搁机梁的预留洞口,考虑到墙体渗漏,请设计明确处理方案。