对某酒店的火灾自动报警系统设计
- 格式:doc
- 大小:25.00 KB
- 文档页数:3
酒店火灾自动报警系统如何设计关键信息项:1、火灾探测器的类型与布局名称:____________________________数量:____________________________安装位置:____________________________2、报警装置的设置类型:____________________________位置:____________________________3、控制系统的功能与性能控制方式:____________________________响应时间:____________________________4、供电与备用电源供电方式:____________________________备用电源容量:____________________________5、系统的维护与检修计划维护周期:____________________________检修内容:____________________________11 系统设计原则111 可靠性原则火灾自动报警系统应具备高度的可靠性,能够在火灾发生的初期准确、及时地检测到火灾信号,并发出报警。
采用成熟、稳定的技术和设备,确保系统在长期运行中的稳定性和可靠性。
112 灵敏性原则系统应能够对不同类型和规模的火灾迅速做出响应,探测器的灵敏度应符合相关标准和规范的要求,确保在火灾初期就能及时发现火情。
113 兼容性原则系统的各个组成部分应具有良好的兼容性,能够相互协调工作,同时应便于与其他消防设备和系统进行集成和联动。
114 易于维护原则设计应考虑系统的维护和管理方便性,便于设备的更换、维修和保养,降低系统的维护成本和停机时间。
12 火灾探测器的选择与布局121 探测器类型根据酒店的不同区域和功能,选择合适的火灾探测器类型,如感烟探测器、感温探测器、火焰探测器等。
在客房、走廊等区域,优先选用感烟探测器;在厨房、锅炉房等高温环境,应选用感温探测器或复合型探测器。
一级消防工程师《消防安全技术综合能力》历年真题精选精练天天练(第8天)【含答案】一、单选题(12题)1.《中共中央办公厅国务院办公厅印发的通知》行厅字(2019)34号)明确了多项消防执法改革的具体任务,不属于《关于深化消防执法改革的意见》明确的改革任务的是()。
A.取消消防技术服务机构资质许可B.建设工程消防设计审查验收工作由消防救援机构移交至住房和城乡建设部门C.公众聚集场所投入使用、营业前消防安全检查实行告知承诺制D. 放宽消防产品市场准入限制2.某消防施工单位对某酒店的自动消防设施进行安装施工,根据现行国家标准《火灾自动报警系统设计规范》(GB50116),下列消防设备中,可直接与火灾报警控制器连接的是()。
A.可燃气体探测器B.可燃气体报警控制器C.非独立式电气火灾监控探测器D.集中电源非集中控制型消防应急照明灯具3.某生产加工企业编制了灭火和应急疏散预案,根据现行国家标准《社会单位灭火和应急疏散预案编制及实施导则》(GB/T38315),预案中单位基本情况可不包括()。
A.单位总平面图、分区平面图、疏散示意图B.火灾危险源的位置、性质和可能发生的事故C.消防设施的维护保养和检测计划D.生产的主要产品、主要原材料和生产能力4.应急照明控制器、集中电源和应急照明配电箱的接线应留有不小于()mm的余量。
A.100B.150C.200D.2505.下列关于稳压泵设置的说法中,不符合规定的有()。
A.稳压泵的设计流量应满足系统自动启动和管网充满水的要求B.稳压泵的设计流量宜按消防给水系统设计流量的1%〜3%计,且不宜小于 1.0L/sC.稳压泵设计压力应保持系统最不利点处灭火设施在准工作状态时的静水压力大于0.15MPaD.稳压泵的设计压力应保持系统自动启泵压力设置点处的压力在准工作状态时大于系统设置自动启泵压力值,且增加值宜为0.07MPa~0.10MPa6.下列不属于消防给水及消火栓系统、自动喷水灭火系统、防烟排烟系统和火灾自动报警系统等工程施工质量缺陷的是()。
前言本规范是根据原建设部《关于印发<2006年工程建设标准规范制订、修订计划(第一批)>的通知》(建标[2006]77号)的要求,由公安部沈阳消防研究所会同有关单位对原国家标准《火灾自动报警系统设计规范》GB 50116-98进行全面修订的基础上编制而成。
本规范在修订过程中,修订组遵循国家有关法律、法规和技术标准,进行了广泛深入的调查研究,认真总结了火灾事故教训和我国火灾自动报警系统工程的实践经验,参考了国内外相关标准规范,吸取了先进的科研成果,广泛征求了设计、监理、施工、产品制造、消防监督等各有关单位的意见,最后经审查定稿。
本规范共分12章和7个附录。
主要内容包括:总则、术语、基本规定、消防联动控制设计、火灾探测器的选择、系统设备的设置、住宅建筑火灾自动报警系统、可燃气体探测报警系统、电气火灾监控系统、系统供电、布线、典型场所的火灾自动报警系统等。
本次规范修订是一次全面修订。
在维持原规范基本框架、保留合理内容的基础上作了必要的补充和修改,主要体现在以下四个方面:1.补充了有关线型火灾探测器、吸气式感烟火灾探测器、可燃气体探测器、区域显示器、消防应急广播、气体灭火控制器、消防控制室图形显示装置、消防专用电话、火灾警报装置,以及模块等设备或部件的工程设计要求,使规范内容更加全面,更加符合实际需要。
2.增加了电气火灾监控系统、住宅建筑火灾报警系统、可燃气体探测报警系统的工程设计要求。
3.增加了道路隧道、油罐区、电缆隧道等典型场所使用的火灾自动报警系统的工程设计要求。
4.细化了消防联动控制的工程设计要求,使规范更具有可操作性。
本规范中以黑体字标志的条文为强制性条文,必须严格执行。
本规范由住房城乡建设部负责管理和对强制性条文的解释,由公安部消防局负责日常管理工作,由公安部沈阳消防研究所负责具体技术内容的解释。
在本规范执行过程中,希望各单位结合工程实践认真总结经验,注意积累资料,随时将有关意见和建议反馈给公安部沈阳消防研究所(地址:辽宁省沈阳市皇姑区文大路218-20号甲,邮政编码:110034),以供今后修订时参考。
一级消防工程师《消防安全技术综合能力》历年真题及解析精练402-L73一、单选题(10题)1.根据现行国家标准《气体灭火系统施工及验收规范》(GB 50263),某消防技术服务机构对高压二氧化碳灭火系统所制定的下列维保方案中,不符合规范要求的是()。
A.每季度对灭火剂输送管道和支吊架的固定有无松动进行一次检查B.每季度对防护区的开口是否符合设计要求进行一次检查C.每季度对各储存容器内灭火剂的重量进行一次检查D.每季度对灭火剂钢瓶间内阀驱动装置的铭牌和标志牌是否清晰进行一次检查2.某单位设有泡沫灭火系统,系统设置及系统各项性能参数均符合现行国家标准要求。
该泡沫灭火系统发泡倍数的测量参数为:量桶空桶重量为2κg,量桶装满清水重量为32kg,量桶装满泡沫重量为12kg。
该泡沫灭火系统的形式最有可能的是()。
A.低倍数液上喷射泡沫灭火系统B.中倍数泡沬灭火系统C.高倍数泡沫灭火系统D.低倍数液下喷射泡沫灭火系统3.某大型商业综合体,地下一层各餐饮场所的建筑面积均小于150㎡,每家可容纳人数均少于70人。
下列检查结果中,不符合《大型商业综合体消防管理规则(试行)》(应急消(2019)314号)的是()。
A.餐饮场所集中设置在西北侧B.厨房区域采用60mm厚的增强石膏轻质板墙与其他部位分隔C.开放式食品加工区使用电磁炉进行食品加工D.餐饮场所采用管道天然气供气进行食品加工4.某电子元件生产厂房首层2个防火分区有疏散门通向避难走道,其中,防火分区一设置1个门通向该避难走道门的净宽为1.20m,防火分区二有2个净宽均为1.20m的门通向避难走道。
对该厂房的下列防火检查结果中,不符合现行国家标准要求的是()。
A.避难走道设1个直通室外的出口B.避难走道的净宽度为2.40mC.避难走道入口处前室的使用面积为6.0㎡D.进入避难走道前室的门为甲级防火门5.的压力球罐采用水喷雾灭火系统进行防护,某消防技术服务机构对该水喷雾灭火系统进行检测,下列检测结果中,不符合现行国家标准《水喷雾灭火系统技术规范》(GB50219)的是( )。
一级消防工程师《消防安全技术综合能力》历年真题精练及解析409-Pb一、单选题(8题)1.的压力球罐采用水喷雾灭火系统进行防护,某消防技术服务机构对该水喷雾灭火系统进行检测,下列检测结果中,不符合现行国家标准《水喷雾灭火系统技术规范》(GB50219)的是( )。
A.水雾喷头类型为离心雾化喷头B.水雾喷头与球罐外壁之间的距离为1.2mC.水雾锥沿纬线方向相交,沿经线方向相接D.水雾喷头喷口朝向球心2.对某服装厂的仓库进行电气防火检查,下列检查结果中,符合现行国家标准《建筑设计防火规范》(GB50016)要求的是()。
A.仓库采用卤钨灯照明B.额定功率为100w的照明灯的引入线采用阻燃材料做隔热保护C.照明配电箱设置在仓库门口外墙上D.仓库门口内墙上设置照明开关3.某厂区室外消防给水管网管材采用钢丝网骨架塑料管,系统设计工作压力 0.5MPa,管道水压强度试验的试验压力最小应为()。
A.0.6MPaB.0.75MPaC.1.0MPaD.0.8MPa4.对某厂区进行防火检查,消防电梯设置的下列防火检查结果中,不符合现行国家标准要求的是()A.设置在冷库穿堂区的消防电梯未设置前室B.高层厂房兼做消防电梯的货梯在设备层不停靠C.消防电梯前室的短边尺寸为2.40mD.消防电梯井与相邻电梯井之间采用耐火极限为2.00h的防火隔墙分隔5.某酒店建筑面积为30000㎡,未经消防救援机构许可擅自投入使用,根据《中华人民共和国消防法》酒店将面临的行政处罚是( )。
A.主要负责人被警告B.被责令停业C.被罚款一万元D.主要负责人被罚款五百元6.某制鞋车间拟开展灭火和应急疏散预案演练,下列演练实施方案的内容中,不符合现行国家标准《社会单位灭火和应急疏散预案编制及实施导则》 (GB/T38315) 的是()。
A.告知车间全体员工具体演练时间B.设定加热炉装置处为假想起火部位C.指定车间副主任王某负责记录演练参与人员的表现D.在车间每层楼梯口安排人员作为疏散引导员7.李某受聘于某消防技术服务机构,取得国家一级注册消防工程师注册证书印章,从事消防设施检测、消防安全评估工作。
贵阳市希尔顿酒店项目火灾报警系统技术方案1.总则1.1 概述本火灾报警系统技术规格书(简称规格书)是为贵阳市希尔顿酒店工程项目使用的火灾报警系统编制的。
本规格书和数据表是框架合同的基础文件,经双方签字确认后作为合同的技术附件,是最终商务合同的组成部分。
本规格书对本工程项目范围内的火灾报警系统设备和与之配套的附件,在技术性能、MTV的供货范围、技术服务、工程项目实施及系统集成等方面提出的最基本要求。
对于本规格书中未提及的,MTV有责任向买方提出建议,并提供完善的技术方案和技术支持。
MTV必须提供满足本规格书要求的产品,除非在投标中能够充分地说明原因,卖方推荐的产品不应与本规格书的要求发生偏离。
若有异议应进行讨论并逐条达成一致。
对未尽事宜,卖方应主动提出商议,用户也有权向卖方要求澄清。
除非技术协议中有明确的文字表述,卖方与买方签订技术协议行为本身应视为卖方完全响应买方的技术要求。
除非技术协议中有明确的文字表述,买方与卖方签订技术协议行为本身不能视为卖方已完全达到买方的要求。
对规格书中未提及到的内容,但为了实现火灾报警系统功能、技术性能和完整性的目的,而必须配置的附件,投标方必须向业主提出建议和说明,并补充所需的附件及相关工作内容,以满足项目要求,如果有遗漏,供货商将无偿提供所需的配件,以满足火灾报警系统设备正常的使用要求。
1.2 术语定义本规格书中所用基本术语定义如下:买方——特指贵州宏立城房地产开发有限公司,即本工程的最终用户。
卖方(MTV)——特指按照本规格书的要求向买方提供产品和与之配套的火灾报警系统附件以及工程技术服务的公司或制造厂供货商(MainTelecommunication Vendor)。
2.规范和标准本方案是对本项目火灾自动报警系统构成及设备选型的技术说明,火灾自动报警系统设备符合规格书所提出的技术要求、功能要求和环境使用要求,同时,符合中国的有关标准,并取得国家有关监督、检验、认证机构的认证。
在宿舍、旅馆施工图设计或施工图审查过程中,常常会遇到一个困扰,宿舍、旅馆是否有必要设置火灾自动报警系统?比如某一个总建筑面积3300 m2的四层公寓,暖通专业没有配置防烟系统、机械排烟系统,给排水专业也没配置雨淋系统、预作用系统或其他需要联锁动作的系统,整个建筑配备了火灾自动报警系统,具体是否设置规范未找到相应要求,目前审图机构审查对此也没有强有力的规范条文支持。
随着GB 55025—2022《宿舍、旅馆建筑项目规范》的实施,对于此类问题的解析也越来越清晰。
结合对规范条文的理解,将对宿舍、旅馆建筑是否有必要做火灾自动报警系统进行阐述。
1 系统地剖析火灾自动报警系统由火灾预警系统、火灾探测报警系统、消防联动控制系统、消防电源监控系统组成。
其中,火灾预警系统包含可燃气体探测报警系统与电气火灾监控系统两个子系统。
火灾探测报警系统,通常由消防火灾报警控制器、火灾探测器、手动报警按钮、声/光报警器等器件组成,通过各器件协作自动或者手动实现对火灾早期的探测,并发出报警信号的系统。
消防联动控制系统,通常由消防联动控制器、图形显示装置、消防电气控制装置(气体灭火控制器、防烟排烟控制器、防火卷帘控制器等)、消防电动装置(消防给水设备、防火卷帘、室内消火栓等)、消防联动模块、应急广播、消防电话等设备或器件组成,以拾取报警控制器发送的报警信号,并按照预设的联动逻辑程序,去执行各种消防动作的自动控制系统。
通常《建筑设计防火规范(2018年版)》(以下简称《建规》)与《民用建筑电气设计标准》(以下简称《民标》)所提及的火灾自动报警系统,通常指的是以上阐述的火灾探测报警系统与消防联动控制系统,根据相应规范的需求确定设置两种或仅设置前者。
可燃气体探测系统,通常由可燃气体报警器声光报警器,可燃气体探测器等器件构成,隶属火灾预警系统,因可燃气体探测器功耗大,使用寿命短、报警信号时间及采取的处理方式不同等问题,故不能将可燃气体探测器混入上述的火灾自动报警系统联动总线与信号总线中,避免影响火灾自动报警系统自身的稳定性。
第1章绪论1.1 研究背景及意义火灾在人类社会生活中时有发生,具体是指人们经常遇到的在时间或空间上不受控制的燃烧所引起的灾害。
火灾的发生主要是可燃物、助燃媒介和火源的三个基本要素[1]。
在多数情况下,火灾开始以及火势蔓延的时间段比较长,因此如果能够在火灾刚刚发生的时候能够检测到并立即对用户进行报警并采取及时的补救措施,火灾损失可以降到最低[2]。
目前美国有200多个社区制定了住宅洒水法。
例如,在弗雷斯诺市中心,在其洒水法生效的十年期间,火灾损失仅为42,000美元[3]。
根据美国国家消防协会的统计,1983-87年间,带有喷水装置的宾馆火灾中的财产损失比没有喷水装置的宾馆减少了78%[5-7]。
带喷水装置的宾馆建筑物的平均每起火灾损失为2,300美元,非喷水装置的宾馆建筑物平均每起火灾损失10,300美元。
根据NFPA 1988年的一项调查,在所有酒店和汽车旅馆中,几乎有一半具有洒水系统[8]。
查阅资料显示宾馆的火灾特点是蔓延迅速,产生烟囱效应,快速燃烧造成伤害,大量的烟雾和热量危害严重,直接影响人们的生活,其火灾特点可概括为以下几个方面:(1)火势燃烧快,影响严重(2)安全疏散困难,容易造成伤亡事故(3)复杂的空间与功能,多种火灾因素(4)消防设施不完善,救援难度大目前,随着中国经济和社会的快速发展,社会影响因素明显增多,火灾风险和防控难度相应增加。
消防工作形势依然严峻[10]。
公安部领导多次指出,要用技术手段提高消防作战力量。
他们强调在不断提高抗火灾科技水平的同时,也十分关注在消防技术等新领域的发展[12]。
面对逐年上升的宾馆建筑物火灾事故,我国正在积极地开展宾馆建筑物火灾相关情况的研究。
统计数据表明,在所有宾馆建筑物和住宅中结合使用自动洒水器和预警系统,可以将整体伤害、生命损失和财产损失减少至少50%[15]。
并且定期更换自动喷淋系统中的单个喷淋头或喷淋头组件是必要的。
宾馆建筑物火灾存在火势增长速度快、火势燃烧非常猛烈、有爆炸潜在危险等特殊性,因此宾馆火灾预防的重中之重就是火灾报警之后的消防喷水系统的设计[18]。
文章编号:100926825(2007)0720184202某五星级酒店火灾自动报警系统设计焦兴学摘 要:结合建筑概况,介绍了某五星级酒店的系统构成及其功能,结合具体的工程设计,对其火灾自动报警系统的一些要求进行了总结,并介绍了部分要求的实施方法,为类似火灾自动报警系统的设计提供了参考依据。
关键词:火灾自动报警系统,控制器,系统功能,防火分区中图分类号:TU998.1文献标识码:A 五星级酒店具有功能多样、供电要求高、用电设备多等特点,且入住多为高端人士,具有一定的政治、经济影响力,这些都给建筑物的火灾的预警和扑救提出了很高的要求。
世界几大著名的酒店管理公司对其所管理的五星级酒店的火灾自动报警及联动控制系统设置均有严格的要求。
这些通过长期的管理经验而逐渐积累细化的要求,在我国现行相关规范标准中尚无明确表述。
文中将结合某五星级酒店的火灾自动报警系统设计,对部分要求的应用实施做一介绍。
1 建筑概况该酒店位于北京CBD 核心区域某智能化综合建筑群内。
建筑群由五栋建筑组成,分别为两栋超高层甲级办公楼、两栋超高层高级公寓和一栋五星级酒店,形成了一个集多种功能于一体的综合性国际化商务社区。
酒店高98m ,地下部分共4层,建筑面积约115000m 2,其中22500m 2隶属于酒店,主要为设备用房、车库和后勤服务用房等;酒店地上部分共28层,建筑面积约57700m 2,其中1层~3层及裙楼主要为一个可容纳450人同时就餐的大型宴会厅、9个中小型私人饭厅、2个公共餐厅、3个厨房、会议商务区、游泳池、健身房、酒吧、咖啡厅、水疗(SPA )等,4层为酒店办公区,5层及以上为客房层,共有客房520套。
2 系统构成及功能由于酒店与一栋高180m 超高层公寓楼地下室及裙楼共用,仅按功能区间划分管理区域,且建筑群内五栋建筑地下室与裙楼间均设有连廊,构成了一个超大规模社区,加之五星级酒店的重要性。
综合考虑后,酒店火灾自动报警及联动控制系统按特级保护对象设置,即:除游泳池、卫生间外,均设置火灾自动报警系统。
火灾自动报警系统课程设计一、课程目标知识目标:1. 让学生理解火灾自动报警系统的基本组成、工作原理及分类。
2. 使学生掌握火灾自动报警系统中传感器、控制器、报警装置等关键部件的功能及相互关系。
3. 引导学生了解我国火灾报警系统相关法规、标准及安全要求。
技能目标:1. 培养学生运用所学知识分析、设计简单火灾自动报警系统的能力。
2. 提高学生通过查阅资料、动手实践等方式,解决火灾自动报警系统在实际应用中遇到的问题。
3. 培养学生团队协作、沟通表达的能力,能就火灾自动报警系统的设计与他人进行有效讨论。
情感态度价值观目标:1. 培养学生对火灾自动报警系统相关知识的学习兴趣,激发他们探究火灾防范技术的热情。
2. 增强学生的安全意识,让他们明白火灾自动报警系统在火灾防控中的重要性。
3. 引导学生关注火灾防控领域的发展,培养他们的社会责任感和创新精神。
本课程针对高年级学生,结合学科特点,注重理论与实践相结合,旨在提高学生对火灾自动报警系统的认识和实际应用能力。
课程目标明确,可衡量,有利于教师进行教学设计和评估。
在教学过程中,要关注学生的个体差异,充分调动他们的学习积极性,培养其创新思维和动手实践能力。
二、教学内容1. 火灾自动报警系统概述- 火灾自动报警系统的基本概念、发展历程及在我国的应用现状。
- 火灾自动报警系统的组成、分类及工作原理。
2. 火灾自动报警系统关键部件- 传感器:种类、原理及应用。
- 控制器:功能、分类及工作原理。
- 报警装置:种类、特点及工作原理。
3. 火灾自动报警系统设计与案例分析- 系统设计原则、步骤及注意事项。
- 案例分析:典型火灾自动报警系统设计实例。
4. 火灾自动报警系统法规、标准与安全要求- 相关法规、标准的介绍。
- 系统安全要求及检测、验收标准。
5. 火灾自动报警系统应用与未来发展- 系统在实际工程中的应用案例。
- 火灾自动报警系统的发展趋势及新技术。
教学内容依据课程目标进行选择和组织,注重科学性和系统性。
一级消防工程师《消防安全技术综合能力》历年真题精练题【含答案】785-UK48一、单选题(15题)1.某消防施工单位对某酒店的自动消防设施进行安装施工,根据现行国家标准《火灾自动报警系统设计规范》(GB50116),下列消防设备中,可直接与火灾报警控制器连接的是()。
A.可燃气体探测器B.可燃气体报警控制器C.非独立式电气火灾监控探测器D.集中电源非集中控制型消防应急照明灯具2.某二级耐火等级的单层白酒联合厂房,设有自动喷水灭火系统和火灾自动报警系统,对该厂房进行防火检查时发现:1. 灌装车间与勾兑车间采用耐火极限为3.00h的隔墙分隔。
2. 容量为20立方米的成品酒灌装罐设置在灌装车间内靠外墙部位。
3. 最大防火分区建筑面积为7000平方米。
4. 最大疏散距离为30米。
上述防火检查结果中,符合现行国家标准要求的共有()A.1项B.2项C.4项D.3项3.某高倍数泡沫灭火系统的维护保养方案中包括:(1) 灭火剂储存3年后,每年进行灭火性能检验,以确定产品是否有效;(2) 每两年在防护区内进行一次喷泡沫试验;(3) 每月对高倍数泡沫产生器进行一次外观检查;(4) 每周对泡沫泵进行一次启动试验。
上述4项维护保养要求,符合现行国家标准的有()。
A.1项B.2项C.3项D.4项4.某消防技术服务机构对某煤粉厂的碾磨厂房进行防火检查,厂房内的各单独房间均采用耐火极限为3.00h的防火隔墙和1.50h的楼板与其他部位分隔。
下列检查结果中,符合现行国家标准的是()。
A.总控制室设置在厂房内的单独房间内B.办公室设置在厂房内的单独房间内C.排风设备设置在厂房内地下一层的单独房间内D.具备连续清灰功能的干式除尘器设置在厂房内的单独房间内5.某七氟丙烷气体灭火系统防护区的灭火剂储存容器,在20℃时容器内压力为2.5MPa,50℃时的容器内压力为4.2Mpa,对该防护区灭火剂输送管道采用气压强度试验代替水压强度试验时,最小试验压力应为()MPaA.3.75B.4.62C.4.83D.6.36.根据现行国家规定《气体灭火系统施工及验收规范》(GB50263),关于低压二氧化碳灭火系统管道强度试验及气密性试验的说法,正确的是()。
某星级酒店消防系统配置要求一、消防系统设计要求1、由市政管网引水至位于地下一层消防水泵房内的消防水池,然后经消火栓泵、喷淋泵及水喷雾泵,分别供水给室内消火栓系统、自动喷水系统及水喷雾系统。
2、消防设计参考用水量酒店地下设置消防水池一座,在火灾情况下能确保连续送水满足消防规范相关的规定,消防水池的容量可以减去火灾延续时间内补充的水量。
3、消火栓系统(1)酒店消火栓系统为临时高压系统。
在消防水泵房内设置室内消火栓水泵两台,单台流量为30L/S,扬程为0.65MPa,一用一备。
(2)在顶层水箱间内设消防水箱一座,有效容积均为18m,以满足消防前10分钟的用水。
为保证最不利点消火栓充实水柱10m,消防水箱设置配套稳压设备,其中稳压罐调节水容量450L,稳压泵流量5L/S,扬程为0.3MPa。
当火灾发生时,先启动稳压泵,当管网压力降至额定工作压力之下时,由稳压泵自动切换到消防泵运行。
(3)室内消火栓系统为环状布置,各层均设置消火栓,并保证有至少两支不小于10m的充实水柱同时达到室内的任意一点。
室内消火栓均采用统一单栓式(SNZ65)。
(4)消火栓箱上部配:单口DN65消火栓一个,25米长水龙带及19水枪;下部配:4kg磷酸盐干粉灭火器2个。
(5)每个消火栓箱内均配备手动火灾报警按钮,并与消防水泵连锁。
(6)手提式灭火器将按规范要求设置于各机电室、厨房及地下车库等处,以便保安人员或有关人员于发现火灾时作出即时扑救之用。
4、自动喷洒系统(1)酒店为中度危险II级,采用湿式自动喷洒系统,喷水强度为8L/min.m²,作用面积为160m²。
(2)消防泵房内设自动喷洒水泵两台,单台流量按40L/S考虑,扬程为0.65MPa,一用一备。
(3)屋顶水箱设置喷水稳压设备一套,其中稳压罐调节水量450L,稳压泵流量1L/S,扬程按0.3MPa考虑,以保证最不利点喷头的工作压力>0.05MPa.(4)每个湿式报警阀组后的喷头数不超过800个。
一级消防工程师《综合能力》试题考试题库模拟训练含答案答题时间:120分钟试卷总分:100分姓名:_______________ 成绩:______________第一套一.单选题(共20题)1.【2019真题】某消防施工单位对某酒店的自动消防设施进行安装施工,根据现行国家标准外灾自动报警系统设计规范》(GB50116),下列消防设备中,可直接与火灾报警控制器连接的是()。
A.可燃气体探测器B.可燃气体报警控制器C.非独立式电气火灾监控探测器D.集中电源非集中控制型消防应急照明灯具2.气体灭火系统巡查主要是针对系统组件外观、现场运行状态、系统检测装置工作状态、安装部位环境条件等的日常巡查。
其中要求预制灭火系统、柜式气体灭火装置喷嘴前()m内不得有阻碍气体释放的障碍物。
A.1B.2C.3D.43.公安部令第119号适用于()等建设工程的消防监督管理。
A.新建、扩建、改建B.住宅室内装修、村民自建住宅C.救灾、其他非人员密集场所D.救灾、改建4.防火防爆措施是综合性的措施,包括选用合理的电气设备,保持必要的防火间距,电气设备正常运行并有良好的通风,采用耐火设施,有完善的继电保护装置等技术措施。
平面布置中,室外变、配电装置距堆场、可燃液体储罐和甲、乙类厂房库房不应小于()m。
A.15B.25C.35D.455.净化有爆炸危险粉尘的干式除尘器和过滤器宜布置在厂房外的独立建筑内,且建筑外墙与所属厂房的防火间距不得小于()。
A.5mB.10mC.15mD.20m6.应急预案编制的主观依据不包括()。
A.员工的变化程度B.单位的基本情况C.消防安全素质D.防火灭火技能7.水喷雾灭火系统维护管理时,每天应检查设置储水设备的房间,保持室温不低于()。
A.0℃B.4℃C.5℃D.15℃8.过失引起火灾时,下列情形中不予立案追诉的是()。
A.导致死亡1人以上,或者重伤3人以上的B.导致公共财产或者他人财产直接经济损失10万元以上的C.造成10户以上家庭的房屋以及其他基本生活资料烧毁的D.造成森林火灾,过火有林地面积2公顷以上9.【2017真题】对某医院的高层病房楼进行防火检查时,发现下列避难间的做法中,错误的是()。
一级消防工程师《消防安全技术综合能力》历年真题精练及解析409-Fu一、单选题(8题)1.某单位工作人员在对本单位配置的灭火器进行检查时,发现其中一具干粉灭火器筒体表面轻微锈蚀,筒体有锡焊的修补痕迹,压力指针在绿区范围。
根据现行国家标准《建筑灭火器配置验收及检查规范》(GB50444),对该具灭火器的处置措施正确的是()。
A.筒体锈蚀处涂漆B.报废C.送修D.采取防潮措施2.某消防技术服务机构为某消防安全重点单位出具了年度消防工作综合报告。
上面盖有消防技术服务机构公章,但无注册消防工程师签名,未加盖职业印章。
根据《注册消防工程师管理规定》,下列说法中正确的是()A.救援机构应对该消防技术服务机构责令。
改正处1万元以上5万元以下罚款B.消防救援机构应对该消防技术服务机构责令改正,对直接负责的主管人员处1000元以上1万元以下罚款C.消防救援机构应对该消防技术服务机构责令改正,处1000元以上1万元以下罚款D.年度消防工作综合报告无需注册消防工程师签名盖章3.对建筑进行火灾风险评估时,应确定评估对象可能面临的火灾风险,关于火灾风险识别的说法中,错误的是()A.查找火灾风险来源的过程称为火灾风险识别B.火灾风险识别是开展火灾风险评估工作所必需的基础环节C.消防安全措施有效性分析包括专业队伍扑救能力D.衡量火灾风险的高低主要考虑起火概率大小4.某消防技术服务机构对某宾馆的火灾自动报警系统进行年度检测,下列检测结果中不符合现行国家标准《火灾自动报警系统施工及验收规范》(GB 50166)要求的是()A.断开一个探测回路与控制器之间的连线,56秒时控制器发出故障信号B.断开备用电源与控制器之间的连线,120秒时控制器发出火灾报警信号C.将一个探测回路中任意探测器的接线断开,30秒时控制器发出故障信号D.断开备用电源与控制器之间的连线,66秒时控制器发出故障信号5.某学校宿舍楼长度40m,宽度13m,建筑层数6层,建筑高度21m,设有室内消火栓系统,宿舍楼每层设置 15 间宿舍,每间宿舍学生人数为4人,每层中间沿长度方向设2m宽的走道,该楼每层灭火器布置的做法中,符合现行国家标准《建筑灭火器配置设计规范》(GB50140-2005)要求的是()。
火灾自动报警与消防联动控制系统设计1 系统设计现代建筑消防设计的范围很广。
随着建筑规模和功能的不断扩大,控制项目也越来越多,越来越复杂。
因此在现代化的建筑设施中,建筑消防系统必须尽可能采用迅速可靠的控制方式,使火灾损失减少到最低限度。
90年代以来,火灾报警随着智能化火灾探测技术的发展,总线制开关量,模块化的火灾自动报警系统技术也逐渐趋于成熟。
这种模式的火灾自动报警及消防联动控制系统不仅降低了火灾误报的概率和工程造价,而且也简化了操作程序,提高了控制的速度和可靠性。
由于消防系统涉及到多个专业的配合,火灾自动报警系统的设计也必须做到事先有充分的调查。
《中华人民共和国消防条例》规定:消防工作实行“预防为主,防消结合”的方针。
“预防为主,防消结合”是我国人民长期以来与火灾作斗争的经验总结。
我国古代文献上早就有“防患于未然”的记载,也就是说要在事故和灾害尚未发生之前就要设法加以预防。
我国农村也很早就流传“灶前清,水缸满”的谚语。
灶前治,就是为了防止发生火灾;水缸满,则也兼有要做好灭火准备工作的意思。
这两句话可以说是体现了防消结合的精神。
预防为主,就是要大家把防火工作放在首位。
因为,一旦发生了火灾,即使被及时扑灭,也仍会造成不同程度的损失,产生不良的影响。
因此,我们首先要千方百计地做好防火工作,从根本上防止火灾的发生。
从以往所发生的火灾来看,尽管直接原因多种多样,但主要还是由于人们思想麻痹,缺乏消防知识引起的。
例如违章操作,违章用火,吸烟不慎等,只要人们提高防火警杨性,懂得消防知识,并采取一些有效的预防措施,则极大多数火灾都是可以防止的。
做好了防火工作,能减少火灾事故,但是,由于人们认识水平和客观条件的限制,要完全避免火灾也是不可能的。
因此,在做好防火工作的同时,还必须做好灭火的准备工作,否则,一旦发生火灾事故,就会手忙脚乱,无法对付,造成不应有的损失。
“防”和“消”,是与火灾作斗争的两个基本手段。
既要把防火工作放在首位,也不能忽视灭火准备工作。
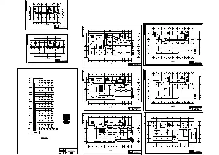
对某酒店的火灾自动报警系统设计
摘要通过对此酒店工程实例,概述如何进行火灾自动报警系统设计。
关键词集中报警系统二级保护对象消防控制室
引言:现代高层、超高层建筑的特点是规模大、标准高、人口密度、设备分散,对消防要求极为严格。
随着高层、超高层现代建筑的兴起,对消防工作提出了越来越高的要求,现代建筑必须设置现代化的消防控制系统。
火灾自动报警系统是人们为了早期发现和通报火灾,并及时采取有效措施,控制和扑灭火灾,而设置在建筑中的一种自动消防设施。
火灾自动报警系统的作用是能自动(或手动)发现火情并及时报警,以不失时机控制火灾的发展,将火灾的损失减到最低限度。
火灾自动报警系统设备一般由火灾探测器、手动报警按钮、消火栓按钮、信号模块、控制模块、隔离模块、报警控制器、消防广播、声光报警器、消防电话、楼层复示器、传输线路中的部分或全部组成。
在设计火灾自动报警系统时,我们应根据工程类别,严格执行《火灾自动报警系统设计规范》GB50116-98、《高层民用建筑设计防火规范》GB50045-95、《建筑设计防火规范》GBJ16-87,做到即安全可靠又经济合理。
以下就是某酒店例进行说明:
了解此酒店工程设计概况
该酒店共八层,一层层高为3.9米,二层层高为4.2米,三至八层层高为3.6米,含室内外高差0.6及女儿墙高度0.9,该建筑物建筑高度为31.2米,属二类高层建筑。
一、二层建筑面积分别为480㎡,三至八层建筑面积分别为400㎡,总建筑面积为1200多平方米,每层为一独立的防火分区。
一层为消防控制室、柴油发电机室及大餐厅,二层为大餐厅,三层为厨房区,四至八层为包房区。
理清设计思路
首先清楚需要进行哪些设计内容,按规范是否需进行火灾自动报警系统设计,根据此酒店工程特点确定火灾自动报警系统包括哪些具体内容,下面就酒店工程分述如下:
按《火灾自动报警系统设计规范》第3.1.1条规定,二类高层建筑其火灾自动报警系统保护对象分级为二级,所以本工程应按二级保护对象进行火灾自动报警系统设计,并且根据规范附录D,本工程火灾探测器的具体设置部位为餐厅、包房、厨房、发电机房、走廊.餐厅、包房、走廊的顶棚设点型感烟探测器,厨房、发电机房的顶棚设点型感温探测器。
另外根据本规范第8.3条规定在每层出
入口附近设手动报警按钮,保证在本层任何位置到手动报警按钮的步行距离不超过30米。
根据《高层民用建筑设计防火规范》第7.4.6.7条规定,临时高压给水系统的每个消火栓处应设直接启动消防水泵的按钮,而本工程消防泵防设在室外,属临时高压给水系统,所以建筑室内消火栓箱内均设启泵按钮,所有启泵按钮通过火灾自动报警系统线路与消防控制室内的报警控制器相连,构成火灾自动报警系统的一部分。
根据《高层民用建筑设计防火规范》具有卡拉OK功能的餐厅应设自动喷水灭火系统,而本工程包房具有卡拉OK功能,所以需设自动喷水灭火系统。
根据《火灾自动报警系统设计规范》第6.3.3条规定火灾自动报警系统对自动喷水灭火系统中的水流指示器、报警阀(即压力开关)具有显示其工作状态的功能,并能联动控制喷淋泵启停。
对自动喷水灭火系统的控制也构成火灾自动报警系统的一部分。
根据《高层民用建筑设计防火规范》第9.4.5条规定设有火灾自动报警系统和自动灭火系统的高层建筑应设消防控制室,所以本工程按要求在一层设消防控制室。
这时电气专业需向建筑专业提供消防控制室的面积等相关要求。
根据《火灾自动报警系统设计规范》第6.3.1.8及6.3.1.9条规定消防控制室在确认火灾后应能切断着火楼层的非消防电源,接通火灾应急照明灯及疏散指示标志灯电源,并使所有电梯迫降至一层。
切断和接通电源可通过控制模块,对配电电源回路上的接触器进行控制,实现电源通断。
电梯迫降也是通过控制模块,实现报警控制器对电梯控制柜的电气控制。
根据本工程层数为八层且报警控制点不是很多的特点,其火灾自动报警系统可按集中报警系统设计,而根据《火灾自动报警系统设计规范》第5.4条的规定集中报警系统宜设火灾应急广播,所以酒店内每层的大厅和走廊设消防广播。
根据第5.6条规定在消防控制室内设外线电话用于向消防部门119报警,并在消防控制室内广播通讯控制柜上设消防专用电话总机用于本建筑物内救火时通讯使用,发电机房设消防专用电话分机,在手动报警按钮及消火栓启泵按钮处设电话塞孔(在选用设备时选用带电话塞孔的手动报警按钮及消火栓启泵按钮)用于救火时与消防控制室取得通讯联系。
在一层消防控制室可选用总线制报警联动控制柜一台、广播通讯控制柜一台,在每层服务台附近墙壁设一台楼层复示器以显示本层火灾自动报警系统的报警点或故障点,报警控制柜通过隔离器与每层的探测器、手动报警按钮、消火栓按钮、信号模块、控制模块通过报警线路相连接,广播通讯控制柜通过控制模块与消防广播、消防电话、手动报警按钮及消火栓启泵按钮的电话塞孔通过广播通讯线路相连接,各层的楼层复示器直接与报警控制柜通过通讯线路相连接,以上各部分共同组成本工程的火灾自动报警系统。
结束语
以上是我根据此酒店工程要求对火灾自动报警系统设计的浅析认识,火
灾自动报警系统的设计,是一项政策性很强,技术性复杂,同时涉及消防法规,涉及人身和财产安全的工作,其从业人员,应该熟练掌握与消防有关的国家现行规范,仅供大家探讨。
参考文献:
1.火灾自动报警系统设计规范GB50116-98
2.高层民用建筑设计防火规范GB50045-95
3.建筑设计防火规范GBJ16-87。