安全文明施工图集及数量
- 格式:xlsx
- 大小:14.21 KB
- 文档页数:2
建筑施工现场安全文明施工标准图集word文档可自由复制编辑
目录
1、木工棚、钢筋棚做法示意图13、电梯井防护图
2、合灰机、搅拌机防护棚做法示意图14、脚手架搭设安全色踢脚板做法
3、安全通道示意图(多层24m以下)15、脚手架内平网设置
4、安全通道示意图(高层24m以上)16、脚手架外排阳角处做法示意图
5、配电箱防雨棚做法示意图Ⅰ17、型钢悬挑双斜支撑系统示意图
6、配电箱防雨棚做法示意图Ⅱ18、落地式接料平台
7、总分箱护栏及地面硬化图19、悬挑式钢平台
8、总分箱护栏及硬化地面尺寸图20、接料平台防护门正立面图
9、楼梯、楼层和阳台临边防护示意图21、接料平台防护门侧面图
10、屋面和楼层临边防护图22、接料平台平面图
11、基坑周边防护栏杆示意图23、限重牌示意图
12、洞口防护图24、轮子锯钢丝网防护板示意图word文档可自由复制编辑
word文档可自由复制编辑
word文档可自由复制编辑
word文档可自由复制编辑。
项⽬施⼯现场安全⽂明标准化图集项⽬施⼯现场安全⽂明标准化图集⽬录⼀、项⽬部办公区1、⼤门和门卫室 (3)2、施⼯围挡、围墙 (7)3、五牌⼀图、宣传栏 (8)4、项⽬部办公楼、办公室 (9)5、会议室、医务室 (11)6、员⼯学校、学习娱乐室 (12)7、绿化设施、停车场 (13)⼆、项⽬部⽣活区1、施⼯⼈员宿舍 (14)2、⾷堂、餐厅 (15)3、浴室、卫⽣间 (17)4、晒⾐棚、晒⾐架及洗⾐房 (18)5、吸烟室、饮⽔休息室 (19)6、化粪池、隔油池……………………………………………………20 三、项⽬部⽣产区1、施⼯道路 (23)2、排⽔设施 (26)3、洗车设施 (26)4、材料堆放、材料标识 (27)5、⽔泥库、搅拌站、配合⽐标识 (30)6、现场加⼯棚 (31)7、常⽤消防器材、消防设施、消防标识、动⽕证明 (33)8、重⼤危险源公⽰牌、危险源告知牌 (35)9、施⼯现场安全提⽰、警⽰标志 (36)10、环境保护(扬尘、噪⾳控制等) (37)四、安全⽣产1、安全教育 (39)2、安全防护⽤品(安全帽、安全⽹、安全带、钢管、扣件等材料要求)..403、临时⽤电 (43)4、临边、洞⼝防护 (49)5、施⼯机具、设备设施防护 (61)⼀、⽂明施⼯1、⼤门和门卫室1.1砖结构⼤门(1)门柱采⽤砌体砌筑,表⾯抹灰后刷涂料。
门扇采⽤Φ50钢管、1.5厚钢板焊接⽽成,表⾯刷防锈漆两道,⾯漆⼀道。
(2)有门楼式⼤门横梁采⽤L40⾓钢及1厚钢板制作成格构形式,⾓钢全部焊接成整体。
门楼应具有⾜够的承载⼒以抵抗风、雪等荷载。
(3)门轴预埋铁件必须在砖柱砌筑时预埋,并具有⾜够的锚固⼒。
门中间地⾯应设门挡。
(4)门扇转动范围内地⾯必须硬化,表⾯要平整。
(5)门柱和门扇颜⾊由企业⾃定,但每个企业必须统⼀。
(6)门扇也可采⽤⾃动伸缩门或⾃动升降栏杆。
(未标单位:mm)1.2钢结构⼤门(1)该⼤门门楼采⽤⾓钢和铁⽪制成须经过承载⼒和稳定性验算,确保安全。
目录电梯井安全门(A型) (2)电梯井安全门(B型) (3)基坑临边防护栏(A型) (4)基坑临边防护栏(B型) (6)基坑临边防护栏(C型) (7)楼梯扶手栏杆 (8)地沟盖板(B型) (10)地沟盖板(B型) (11)楼层盖板 (12)安全通道 (13)卸料钢平台 (14)灯架 (A型) (15)灯架(B型) (16)塔吊过道 (17)梯笼 (18)移动登高平台 (19)人字梯 (20)简易基坑登高梯 (21)脚手登高梯 (22)电箱防护棚 (23)木工圆锯 (24)电焊机防雨车 (25)砂轮机防护罩 (26)危险品仓库 (27)移动式消防架 (28)气瓶推车 (29)进出车辆冲洗设施 (30)防尘洒水车 (31)二级沉淀池 (32)隔音棚 (33)垃圾箱 (34)节电控制电箱(A型) (35)节电控制电箱(B 型) (36)节电控制电箱(C 型) (37)节电控制电箱(D 型) (38)说明:【适用围】门式电梯井安全门是建筑施工现场预防人生伤害必备的保护设施,它涉及到高层建筑、多层建筑、综合性工业厂房等建筑施工工地。
【结构、型号】A 型门式电梯井安全门全部由钢结构组成,适用于门洞宽度(900-1200)的电梯井。
【制作特点】钢材采用国家标准材料,制作严格按图施工,尺寸正确,电焊接点牢固,达到安全防护之目的,喷漆均匀,安全门安装离地200mm 。
【产品特点】门式电梯井安全门,结构简洁,安装、使用方便、感观大方,质量安全可靠,符合安全生产保证体系要求。
【安装要求】铰链固定要求横平竖直,标高准确,铰链固定用膨胀螺栓,要求拧紧;安全门的安装离地200mm 。
【颜色要求】电梯安全门采用黄色,门下部档脚板采用黄、黑间隔,宽度为150 mm ,60度斜向布置。
(适用于900-1200以内宽度)钢管Φ15角铁50圆钢Φ12钢板100×100×5膨胀螺栓5020钢板1.5mm钢板网3mm钢板网3mm钢板1.5mm以20×3扁钢作为压条35080018003502004004008001200说明:【适用围】门式电梯井安全门是建筑施工现场预防人生伤害必备的保护设施,它涉及到高层建筑、多层建筑、综合性工业厂房等建筑施工工地。
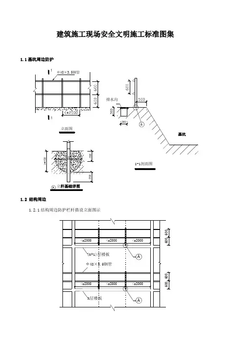
建筑施工现场安全文明施工标准图集1.1基坑周边防护1-1剖面图1.2 结构周边1.2.1结构周边防护栏杆搭设立面图示1.2.2结构周边防护栏杆搭设平面图示根据结构特点不同,安全防护设施的平面布置也不同,具体分以下几种情况。
①结构柱、墙截面尺寸小于500的无悬挑板结构周边防护无悬板平面布置图1②结构柱、墙截面尺寸大于500的无悬挑板板边防护无悬板平面布置图2③悬挑板挑出长度小于500的悬挑板有悬板平面布置图1④悬挑板挑出长度大于500的悬挑板边有悬板平面布置图21.2.3结构周边防护栏杆柱固定方式图示①直接在混凝土楼板上预埋1.4~1.5m的钢管A立杆基础详图1②预埋钢筋头A 立杆基础详图2③预埋短钢管A立杆基础详图3④预埋件(套筒承插式)A立杆基础详图4⑤膨胀螺栓固定式A立杆基础详图5立面图平面图楼面Ф48×3.5钢管1.3 预制混凝土梁、钢梁侧边构件吊装前,预先在梁两端焊接(或螺栓卡压固定)临时立柱,将Ф10以上钢丝绳用花篮螺栓紧绷于临时立柱上作为安全绳,当梁跨度大于8米时,中间应加设临时立柱。
梁桥面临时护栏示意图A混凝土预埋件焊接示意图1.4 楼梯侧边常规的住宅楼、办公楼楼梯可采用钢管扣件搭设防护栏杆,在梯井两端设置通高立杆,然后搭设斜杆即可。
楼梯临边防护立面示意图2181416楼梯临边防护平面示意图2对于特殊的楼梯,如圆弧、单跑、梯井过大的,采用钢筋与预埋件焊接临时栏杆。
楼梯临边防护立面示意图1楼梯临边防护平面示意图11. 5施工电梯、物料提升机楼层出入口两侧边施工电梯、物料提升机楼层卸料平台应采用钢管、扣件搭设,两侧边的防护栏杆也应采用钢管、扣件搭设,同时自上而下加挂安全立网或满扎竹笆或采用层板封闭防护。
立杆Ф48×3.5钢管物料提升机楼层入口防护平面图物料提升机楼层入口防护立面图2 洞口防护应用范围:因工程本身存在或因工序需要而产生的,使人与物有坠落危险而危及人身安全的洞口,均应采取防护措施。
施工现场安全文明施工标准化图集第一部分安全防护一、安全帽、安全带、安全网1、安全帽(1)必须购买有产品检验合格证的安全帽,购入的产品经抽查测试合格后,方准使用。
(2)进入施工现场必须正确佩戴安全帽,并系好帽带。
损坏及无帽带的安全帽严禁使用。
(3)在施工现场,在作业人员进出的主要通道口处设置安全警示镜。
(4)安全帽的形象按中建总公司CI规范执行。
2、安全带安全带应高挂低用,不得擅自接长使用,不准将绳打结使用,也不准将钩直接挂在安全绳上使用,应挂在连接环上用。
安全带的种类安全带的使用3、安全网现场采购的安全网应能提供特种劳动防护用品安全标志、产品合格证、生产许可证、销售单位相关资料等凭证材料。
现场抽样合格后方可使用。
二、洞口防护1、水平洞口(1)边长在500mm(含500mm)以下的水平洞口防护采用旧木板、模板封闭,板下木枋顶紧洞口边,面层刷黑黄相间的警示油漆间距20cm角度45°。
(2)边长在500~1500mm(含1500mm)的水平洞口防护采用洞口上部铺木枋(立放)@400mm,上盖18mm厚木胶合板用铁钉钉牢,木枋侧面与地面之间的缝隙也用18mm厚木胶合板封严,面层刷黑黄相间的警示油漆间距20cm角度45°。
洞口周边设置交圈的φ48钢管防护栏杆,防护栏杆的水平杆、立杆刷间距为400mm黑黄相间油漆,并在最上一道水平杠处悬挂“当心坠落”警示标志。
所有水平杆控制伸出立杆外侧100mm。
(3)边长在1500mm以上的水平洞口防护洞口周边设置交圈的φ48钢管防护栏杆,立杆间距不大于1800mm,防护栏杆下部设置200mm高18mm厚木胶合板挡脚板,防护栏杆的水平杆、立杆以及挡脚板,刷间距为400mm黑黄相间的警示油漆,防护栏杆外立面满挂密目安全网并在最上一道水平杠处悬挂“当心坠落”警示标志。
2、电梯井门洞及水平防护1、电梯井门洞安装高度不低于1500mm的立式钢筋防护门,钢筋直径为φ14~φ16,竖向钢筋间距不大于150mm;2、底部安装200mm高、1mm厚钢板,刷黑黄相间警示油漆间距400mm;3、钢筋防护门的四个角焊接5mm厚150×150mm钢板,φ8膨胀螺栓与电梯井墙体固定;4、电梯井洞口防护门均刷中建蓝油漆,并挂设安全警告标语;如防护门设置为可开式,必须上锁并设置专人管理;5、封闭式电梯井井道内搭设满堂操作架,架体步距≤1800mm,在作业层下一步挂设安全平网,作业层以下每隔10米设置硬质全封闭,±0.000处为第一层全封闭层;每2层全封闭层中间设置1道安全平网;或不搭设满堂架,在结构上预埋钢筋,插入钢管形成钢管网,铺设木方,上钉18mm厚木胶合板,按3层不超过10米进行硬封闭,硬封闭之间设置一道软防护,电梯井门洞处设置挡脚板,层层安装高立式钢筋防护门;在室内电梯安装移交防护时,必须每层按要求设置防护门;6、敞开式电梯井井道内采用在结构上预埋钢管,间距为500mm,铺设木方间距为500mm,上钉18mm厚木胶合板,四周设置挡脚板,高度不超过200mm,层层设置硬防护,四周搭设临边防护;7、在主体施工时,必须设置电梯井操作平台,可采用型钢加工制作,也可采用钢管制作或采用随楼层整体提升。