住宅担架电梯设计参照资料
- 格式:doc
- 大小:447.50 KB
- 文档页数:4
竭诚为您提供优质文档/双击可除住宅设计规范要求候梯厅深度不宜大于轿厢深度篇一:担架电梯《住宅设计规范》gb50096-20xx,中的担架梯现在电梯轿厢一般在1.4米,井道深度2.2米,候梯厅深度1.8米就可以了。
而医梯的轿厢深度最小为2.4米,候梯厅又不能小于轿厢深度,又要加大不少。
差不多要增加1米多。
专门供住宅使用的小进深单架电梯.......各个电梯公司给的都不一样,我看了下日立电梯给过一个数据最小:井道进深2500,宽2300.轿厢进深2000,宽1200我追问一个问题:这个担架电梯到底是按普通住宅电梯考虑呢,还是按医梯考虑?规范为何不明确呢?如果按医梯考虑,根据《通则》表6.8.1,那候梯厅的深度就是1.5b了。
医用:1000kg的,洞口:2100x2800,轿厢外尺寸1150x24001600kg的,洞口:2400x3000,轿厢外尺寸1450x2600这种担架叫铲式担架,是急救车上的标准配置,可伸缩,最长到两米二,最短到一米六,就算缩到最短依然不能够在电梯中平放。
在实际接诊过程中,急救人员就曾遇到过病人家属提前雇搬家公司把病人抬下高层的真实事例。
根据现行住宅电梯标准:载重量为320公斤和400公斤的电梯,轿厢只允许运送人。
载重量为630公斤的电梯,轿厢允许运送童车和残疾人员乘坐的轮椅。
载重量为1000公斤的电梯,轿厢还能运送家具和手把可拆卸的担架。
而我们住宅小区的电梯基本都是载重1000公斤以下的电梯,担架是不能平放的。
如果碰到骨折或心血管急症病人,用不上担架或只能靠搀扶或背送下楼,很容易对病人造成二次伤害,并且延误了最佳救治时间。
对此,北京市政协委员沈小红认为,高层住宅应完善电梯配置,方便抬担架运送病人,并将此列入北京新建高层建筑的强制性规范。
铲式担架是由左右两片铝合金板组成。
有别于一般的担架,它可以分别将两块板插入到病人身体下面,扣合后抬起。
最大限度的减少在搬运过程中对病人造成的二次伤害。
目次1 总则 (1)2 术语 (2)3 新建住宅可容纳担架电梯的设计要求 (3)3.1 一般规定 (3)3.2 设计要求 (4)4 既有住宅增设可容纳担架电梯的设计要求 (6)4.1 一般规定 (6)4.2 建筑设计要求 (7)4.3 结构设计要求 (8)附录A 可容纳担架电梯的核心筒布局方案 (11)附录B 既有住宅增设电梯案例 (14)附录C 既有住宅增设可容纳担架电梯方案 (15)本标准用词说明 (29)引用标准名录 (30)附:条文说明1 总则1.0.1为规范河南省住宅项目中可容纳担架电梯的设计,有效发挥可容纳担架电梯紧急救援的作用,完善新建住宅可容纳担架电梯的工程设计要求,指导既有住宅增设可容纳担架电梯的设计及改造,制定本标准。
1.0.2 本标准适用于河南省新建住宅可容纳担架电梯的设计和既有住宅的改造,非住宅类居住建筑可容纳担架电梯的设计和改造可参照执行。
1.0.3 住宅可容纳担架电梯的设计应遵守安全适用、技术可靠、经济合理、确保质量的原则。
1.0.4可容纳担架电梯的设计除应符合本标准外,尚应符合国家和地方现行有关规范、标准的规定。
2 术语2.0.1可容纳担架电梯 stretcher accessible lift电梯轿厢能够容纳常规医疗急救担架的电梯。
2.0.2 无障碍电梯 barrier free lift适合行动障碍者和视觉障碍者进出和使用的电梯。
2.0.3消防电梯 fire lift在建筑物发生火灾时供消防人员进行灭火与救援使用且具有一定消防功能的电梯。
2.0.4轿厢 elevator car电梯的一部分,用以运送乘客和(或)其他荷载。
2.0.5井道 well保证轿厢、对重(平衡重)和(或)液压缸运行所需的建筑空间。
2.0.6层站 landing各楼层用于出入轿厢的地点。
2.0.7超高层住宅 super high-rise residential building建筑高度大于100m的住宅建筑。
关于《住宅设计规范》(2011版)“可容纳担架的电梯”的基本尺寸要求一、规范组意见:1.不能盲目选用医用电梯。
2.正在协调工程建设标准与产品标准的矛盾。
3.从改造担架和利用住宅电梯轿厢对角线入手,提出“可容纳担架的电梯”的设计参数。
4.支持各地采用论证会议形成实施细则,选用1.5m×1.6m轿厢基本可行,目前是1000kg,今后800kg的能满足要求,门宽0.9m。
《住宅设计规范》(2011版)实施指南:1.5m×1.6m(轿厢),需对担架进行改造:1850200改进担架示意图二、天津“可容纳担架的电梯”的设计参数:2.6m×1.8m(井道)。
三、青岛、云南“可容纳担架的电梯”的设计参数:1.1m×1.8m(轿厢)。
四、宁波“可容纳担架的电梯”的设计参数: 1.6m×1.5m(轿厢),门宽0.9m。
五、上海“可容纳担架的电梯”的设计参数:长边≮1.6m(轿厢)。
六、结论:规范组意见在《实施指南》专题论证15中有详细叙述,目前因全国对此问题反映较多,已成立专题小组进行论证,在此之前,按规范组解释进行设计较为可行,即最小轿厢尺寸为: 1.6m(宽)×1.5m(深),门洞0.9m,根据厂家或标准图选择相应井道尺寸。
源道建筑2012.8.30附:煤院要求新《住宅设计规范》关于可容纳担架的电梯基本要求对于新《住宅设计规范》提供的可容纳担架的电梯轿厢最小尺寸(1600mm×1500mm),门洞最小尺寸900mm。
参考电梯如下:1、日立UAX系列无机房乘客电梯p23,UAX-1000-C060,井道尺寸宽2100mm,深2150mm,轿厢尺寸宽1600mm,深1500mm,门宽900mm,高2100mm,载重量1000kg;2、三菱GPS-III系列乘客电梯p44,GPSIII-1000-CO,井道尺寸宽2100mm,深2100mm,轿厢尺寸宽1600mm,深1500mm,门宽900mm,高2100mm,载重量1000kg(13人)。
住宅建筑担架电梯设置要求1.引言1.1 概述在住宅建筑中,担架电梯的设置要求成为了一个重要的话题。
担架电梯是一种特殊的电梯,用于将无法行动的病人或伤员从一楼平台直接运送到救护车或医疗设施。
由于人们对于生活质量和安全性的要求越来越高,担架电梯的设置要求也变得越来越重要。
本篇文章将探讨住宅建筑中设置担架电梯的必要性,并总结对于住宅建筑担架电梯设置要求的相关规定。
我们将深入探讨担架电梯的定义和作用,以及为什么住宅建筑需要设置担架电梯。
通过阅读本文,读者将了解担架电梯在住宅建筑中的重要性,以及在设计和建造住宅建筑时需要遵守的相关要求。
此外,我们还将展望未来发展方向,以期为住宅建筑的设计和规划提供有益的参考。
请继续阅读本文,了解更多关于住宅建筑担架电梯设置要求的内容。
文章结构部分主要介绍了本文的组织结构和各个部分的主要内容。
通过明确文章的结构,读者可以更好地理解整篇文章的思路和内容安排。
文章结构部分的内容可以如下编写:1.2 文章结构本文分为引言、正文和结论三个主要部分,下面将详细介绍每个部分的内容:引言部分主要包括概述、文章结构和目的三个小节。
在概述部分,将简单介绍住宅建筑中担架电梯设置的背景和重要性。
文章结构部分会逐个说明本文的各个部分的主要内容,帮助读者更好地理解整篇文章的脉络。
目的部分会明确本文的写作目的和意义,以及为读者提供的相关信息和建议。
正文部分主要包括担架电梯的定义和作用以及住宅建筑中设置担架电梯的必要性两个小节。
在担架电梯的定义和作用部分,将详细解释担架电梯的概念和主要功能,例如方便急救和疏散等。
在住宅建筑中设置担架电梯的必要性部分,将探讨为什么住宅建筑需要设置担架电梯,包括老年人和残障人士的需求、医疗方面的考虑等。
结论部分主要包括对住宅建筑担架电梯设置要求的总结和未来发展方向两个小节。
在对住宅建筑担架电梯设置要求的总结部分,将总结前文提到的对住宅建筑担架电梯设置的要求,例如安全性、便捷性和可靠性等。
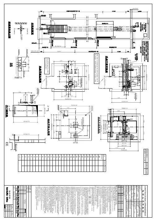
浅析高层住宅小区担架电梯技术要求(德州市池口家园一期电梯设计案例分析)刘传彬德州市池口家园一期安置房住宅小区共有电梯32部,其中具备担架功能的电梯16部。
目前正在进行电梯采购招标的准备工作,在整理电梯招标文件技术参数及功能要求的过程中,发现原设计电梯井道尺寸偏小,不能满足相关技术要求。
设计总说明上对电梯的基本参数有了明确描述,载重800kg,速度1.5m/s,普通电梯具备无障碍功能,井道尺寸2000mmx2000mm,消防电梯兼担架功能,井道尺寸2200mmx2200mm等等。
为了满足担架电梯的设计制造要求,我们查阅了大量的技术规范,高层住宅电梯和可容纳担架的电梯,除了要满足相关设计、制造、安装、维护等国家规范、标准以外还有以下要求:1、在《住宅设计规范》GB50096—2011第6、4、2条规定“十二层及十二层以上的住宅,每栋楼设置电梯不应不少于两台,其中应设置一台能容纳担架的电梯”。
2、在《电梯主参数及轿厢、井道、机房型式与尺寸第1部分Ⅰ、Ⅱ、Ⅲ、Ⅵ类电梯》GBT7025.1—2008中规定①额定载重量1000kg的电梯,除了可以运载乘客和有一人陪伴坐轮椅的人的荷载,还可以运载具有可拆卸把手的担架。
②轿厢尺寸在1100mmx2100mm,额定载重量在1000kg的住宅电梯可进担架,担架尺寸为600mmx2000mm。
对照以上技术要求,该设计中关于担架电梯的井道进深尺寸不符合要求,经过咨询多家电梯生产企业,可承载担架的电梯井道进深至少要满足2500mm。
将问题给建设单位负责人汇报后,协调设计院完成电梯井道变更设计。
目前土建结构施工尚未开始,井道变更设计不增加投资且简单易行。
避免了一起因为电梯使用功能缺陷而引发的住户投诉风险。
关于可容纳担架的住宅电梯的统一要求关于可容纳担架的住宅电梯的统一要求一.《住宅设计规范》(2011年)要求:十二层及十二层以上的住宅,每栋楼设置电梯不应小于两台,其中应设置一台可容纳担架的电梯。
二.此类电梯我院的统一要求如下:1.在建筑平面图上特别标明“此为可容纳担架的电梯”。
2.电梯符合无障碍要求并附有无障碍标记。
额定载重量为1000kg,担架尺寸为600mmX2000mm。
3. 速度不超过2.5m/s,尺寸如下:电梯出入口宽度900(推荐)时,轿厢为1100X2100(深),井道净尺寸为1700X2600(深),但设计井道净尺寸为1800X2700(深),电梯厅设计净尺寸为2200(单侧排列)。
速度不超过2.5m/s,尺寸如下:电梯出入口宽度800(不推荐)时,轿厢为1100X2100(深),井道净尺寸为1600X2600(深),但设计井道净尺寸为1700X2700(深),电梯厅设计净尺寸为2200(单侧排列)。
4. 速度超过2.5m/s时,设计井道的宽度和深度再增加100。
具体的按各品牌电梯厂规定执行。
三.《住宅设计规范》6.4.6条侯梯厅深度不应小于1500,但适用于残障人员使用的电梯的最小侯梯厅深度由1500已改为1800。
四.《住宅设计规范》6.4.7条电梯不应紧邻卧室布置。
当受条件限制,电梯不得不紧邻兼起居的卧室布置时,应采取隔声减振的构造措施。
本条为新增强条。
实施措施:1. 电梯井道不得不时,也只能布置在兼起居的卧室的“起居空间”部分。
2.应采取双层分户墙加20厚空气层或同等隔声效果的构造措施。
担架电梯有关规范汇总担架电梯有关规范汇总1、不能盲目选用医用电梯医用电梯的设计针对的是病床尺寸较大需要配套较大的走道净空及转弯半径往往是担架能进电梯但是进不了家门2、正在协调工程建设标准与产品标准的矛盾3、从改造担架和利用住宅电梯轿厢对角线入手提出“容纳担架电梯”的设计参数4、支持各地采用论证会议形成实施细则选用1500X1600轿厢基本可行目前是1000KG今后800KG的就能满足要求。
担架电梯厅尺寸设计规范
担架电梯厅尺寸设计通常遵循一定的规范,主要包括总体形式、清理宽度、内部尺寸、门尺寸等几个方面,具体参数如下:
一、总体形式
电梯厅应当以矩形和正方形为主。
由于现在市场上常用的担架梯厅面积较小,所以在
次建议选择矩形形式,它可以有效地减少混凝土用量。
二、清理宽度
担架电梯厅的清理宽度应按设计要求而设置,一般情况下不少于1.2米。
三、内部尺寸
根据设计要求,担架电梯厅内部尺寸应考虑载人数和担架电梯空间,一般由宽度、长
度和高度三个方面表示,一般情况下宽度不少于2米,长度和高度以实际情况为准。
四、门尺寸
担架电梯门尺寸根据担架电梯形式,有单门式、双开门式和连台门式,其开门尺寸不
得小于1.75米,最大尺寸不得超过2.75米。
门的宽度与担架电梯的横尺寸比例不得小于1:1.3。
五、其他
担架电梯厅设计时,还应考虑门窗、挂件、空气洁净度等要求,确保设计质量和使用
效果。
担架电梯厅设计时应考虑电梯运行噪音降低措施,确保安全可靠。
《住宅设计规范》GB50096-2011,中的担架梯现在电梯轿厢一般在1.4米,井道深度2.2米,候梯厅深度1.8米就可以了。
而医梯的轿厢深度最小为2.4米,候梯厅又不能小于轿厢深度,又要加大不少。
差不多要增加1米多专门供住宅使用的小进深单架电梯........各个电梯公司给的都不一样,我看了下日立电梯给过一个数据最小:井道进深2500,宽2300.轿厢进深2000,宽1200我追问一个问题:这个担架电梯到底是按普通住宅电梯考虑呢,还是按医梯考虑?规范为何不明确呢?如果按医梯考虑,根据《通则》表6.8.1,那候梯厅的深度就是1.5B了。
医用:1000kg的,洞口:2100x2800,轿厢外尺寸1150x24001600kg的,洞口:2400x3000,轿厢外尺寸1450x2600这种担架叫铲式担架,是急救车上的标准配置,可伸缩,最长到两米二,最短到一米六,就算缩到最短依然不能够在电梯中平放。
在实际接诊过程中,急救人员就曾遇到过病人家属提前雇搬家公司把病人抬下高层的真实事例。
为了真实体验一下担架躺着病人进不了电梯的情况,急救人员来到了热心观众张女士的家。
张女士家住在小区的六层,模拟心脏病发作并进行电话呼救后,急救人员以最快的速度到达现场,并将张女士抬上了担架,可是狭窄的电梯根本容不下平放的担架,两名医护人员只能抬着张女士下楼梯。
经过整整四分钟的努力,两名小伙子终于将100斤左右的张女士抬到了楼下。
而此时两名小伙子已经是汗流浃背了。
好在张女士家住6层,这要是20多层的塔楼,不仅抬担架的小伙子吃不消,病人的病情都可能耽误。
根据现行住宅电梯标准:载重量为320公斤和400公斤的电梯,轿厢只允许运送人。
载重量为630公斤的电梯,轿厢允许运送童车和残疾人员乘坐的轮椅。
载重量为1000公斤的电梯,轿厢还能运送家具和手把可拆卸的担架。
而我们住宅小区的电梯基本都是载重1000公斤以下的电梯,担架是不能平放的。
如果碰到骨折或心血管急症病人,用不上担架或只能靠搀扶或背送下楼,很容易对病人造成二次伤害,并且延误了最佳救治时间。
担架电梯终于有说法了!担架的电梯轿厢最小尺寸为1.50m×1.60m担架电梯困扰了我们整整10年《住宅设计规范》2011年颁布实施,其中6.4.2条十二层及十二层以上的住宅,每栋楼设置电梯不应少于两台,其中应设置一台可容纳担架的电梯。
但是,没有人知道担架电梯到底是多大?好乱好乱各地可容纳担架电梯尺寸:天津:2600*1800(井道)青岛:2100*1100(轿厢)温州:1600*1400(轿厢)河北:进深不小于1800(轿厢)乱象根源造成乱象的原因有两种:1、盲目扩大担架电梯,按医用电梯标准套用;2、对担架产品了解不足,凭想象吐槽。
多数地方将担架电梯尺寸规定过大,因为规则制定者会从自身出发,认为轿厢深度小于1.8m时,担架无法进入。
乱象的根源是:有这样想法的人是坐而论道,凭空想象出来的最小尺寸,没有结合实际救护担架进行测试!事实的真相是:1.5m*1.6m,轿厢门宽度不小于0.9m时,担架完全可以进出电梯!权威解释《住宅项目规范》征求意见稿中:7.5.1 新建住宅建筑电梯设置应符合下列规定:1. 四层及四层以上住宅建筑,或住户入口层楼面距室外设计地面的高度超过9m的新建住宅建筑应设电梯,且应在设有户门和公共走廊的每层设站。
每个设置电梯的居住单元应至少设有1 台可容纳担架的电梯,且电梯轿厢尺寸不应小于为1.50m×1.60m,轿厢门净宽不应小于0.90m;2. 十二层及十二层以上的住宅建筑,每个居住单元设置电梯不应少于2 台,其中设置可容纳担架的电梯不应少于1 台;3. 新建住宅建筑电梯的载重量不应小于800kg。
条文说明中:可容纳担架的电梯是突发急病时救助安全的重要保证,也便于运送较大的家具。
可容纳担架的电梯轿厢最小尺寸为1.50m×1.60m,且开门净宽不小于0.90m,可利用对角线放置铲式担架车。
有条件的老年人住宅可以考虑采用具有病床专用电梯。
重点:①四层及以上设电梯,其中一台必须为担架电梯;②担架电梯尺寸:电梯轿厢尺寸不应小于为1.50m×1.60m,轿厢门净宽不应小于 0.90m;③老年人住宅可考虑病床专用电梯。
轿厢带尾厢的方形轿厢和长方形轿厢的对比2012年8月1日开始实施的GB 50096-2011《住宅设计规范》,其中6.4.2规定“十二层及十二层以上的住宅,每栋楼设置电梯不应少于两台,其中应设置一台可容纳担架的电梯”。
国内大部分电梯厂家为了做成能放下担架的电梯,把轿厢做窄、做深,像医用电梯,但远远达不到医用电梯的使用要求,因为住宅电梯的额定载重量一般为800~1000kg。
而根据GB 7588-2003《电梯制造与安装安全规范》规定:额定载重量为800kg住宅电梯轿厢有效面积为1.73~2.1m2,额定载重量为1000kg住宅电梯轿厢有效面积为2.15~2.52m2,这样常规住宅电梯只能做成轿厢宽度≤1.1m、轿厢深度≤2.1m。
但轿厢宽度窄、深度深的做法会造成下列问题:1)如果做成长方形轿厢,因候梯厅深度应不小于轿厢深度和1500mm两者中的最大值,此时须候梯厅深度B1≥2100mm——增大公摊面积,增大建筑成本;2)当电梯处于非运行高峰时间段时,电梯乘客较少,乘客习惯于站立在轿厢内靠近门口的前半部分,却不知道这种习惯性的行为无意识地造成了轿厢的前、后偏载,造成导靴单面磨损、导靴与导轨间隙增大。
如果维修更换不及时:一方面,运动的轿厢会撞击厅门门锁,导致电梯不能安全停梯、正常平层开门或中途停车,甚至撞坏电梯部件,造成质量事故、安全事故;另一方面,导靴磨损严重时,会导致导靴中钢质部分与导轨工作面摩擦,损伤导轨工作面,在此过程中造成电梯抖动、乘坐舒适感差,最终造成导轨报废,也会造成质量事故、安全事故。
3)当电梯处于运行高峰时(每天的早晨离家上班时间段或傍晚下班回家时间段),乘客较多,因轿厢宽度较窄、深度较深,体型正常的乘客也只能单人进出,容易造成轿厢前端的拥堵。
当轿厢处于约50%载荷时,若有乘客要进入轿厢,则轿厢内的乘客须适当向轿厢深处避让才能保证后进入者所需的空间;若有乘客要离开轿厢,则需费力地挤出轿厢或轿厢内的其它乘客须适当避让才能保证离开者的行走空间,甚至需要轿厢前端(门口)的几位乘客先走出轿厢避让才能保证需要离开者的行走空间。
住宅担架电梯的井道尺寸摘要:1.引言2.住宅担架电梯的井道尺寸规定3.井道尺寸对担架电梯选择的影响4.不同厂家的担架电梯井道尺寸差异5.结论正文:1.引言在现代城市中,住宅建筑越来越高,电梯成为了人们日常出行的必备设施。
其中,担架电梯作为一种特殊的电梯类型,其井道尺寸对于住宅设计的影响尤为重要。
本文将探讨住宅担架电梯的井道尺寸问题,以期为相关领域的研究提供参考。
2.住宅担架电梯的井道尺寸规定在我国,住宅担架电梯的井道尺寸主要受到国家和地方政策的规定。
一般来说,井道尺寸应满足担架电梯的轿厢尺寸和通行需求。
根据相关规定,住宅担架电梯的井道尺寸应满足以下条件:- 轿厢尺寸:根据电梯的载重能力,轿厢尺寸会有所不同。
例如,630kg (8 人)轿厢尺寸为1100x1400,800kg(10 人)轿厢尺寸为1350x1400。
- 井道宽度:通常情况下,井道宽度应大于或等于轿厢宽度,以保证担架的顺利通行。
- 井道深度:井道深度是指电梯从底层到顶层的高度。
根据电梯的载重能力和乘客数量,井道深度会有所不同。
3.井道尺寸对担架电梯选择的影响井道尺寸是选择住宅担架电梯的关键因素之一。
合适的井道尺寸可以确保电梯的正常运行和乘客的安全。
同时,井道尺寸还会影响到电梯的成本、建筑空间的利用率以及乘客的舒适度。
因此,在确定住宅担架电梯的井道尺寸时,需要综合考虑各方面因素。
4.不同厂家的担架电梯井道尺寸差异由于不同厂家的担架电梯在设计、制造和技术方面存在差异,因此它们对井道尺寸的要求也会有所不同。
在实际应用中,应根据所选电梯的具体参数来确定合适的井道尺寸。
5.结论总之,住宅担架电梯的井道尺寸是一个涉及多方面因素的问题。
在确定井道尺寸时,需要综合考虑电梯的载重能力、乘客数量、井道宽度、井道深度以及厂家的技术要求等因素。
二、天津地区执行的标准 2600 x 1800井道三、青岛规划局发的文件执行的标准 其中至少1台电梯保证手把可拆卸的担架平放进去(最小轿厢尺寸为1100 x 2100轿厢)。
四、温州地区设计和图审统一的标准 1400 x 1600轿厢五、宁波地区讨论稿: 住宅楼可容纳担架电梯的轿箱内净尺寸不应小于1600mm × 1500mm 轿箱门洞净宽不应小于900mm 当门洞不居中开设时 其净宽可适当缩小 但最小不得小于800 且应确保担架的出入 六、上海住宅设计标准-2011 5.2.2 十二层及以上高层住宅每栋楼设置电梯不应少于两台 其中一台电梯的轿厢长边尺寸不应小于1.60m。
七、《住宅设计规范》(GB50096-2011)实施指南 林建平的文章 1500 x 1600轿厢
都是地方规定,貌似还没有明确的制定吧,规范上只是写的与厂家协定。
规范组没有明确提出尺寸,但通过《住宅设计规范实施指南》提出:1、不能盲目选用医用电梯;2、正在协调工程建设标准与产品标准的矛盾;3、从改造担架和利用住宅电梯轿厢对角线入手,提出“容纳担架电梯”的设计参数;4、支持各地采用论证会议,形成纪要,目前选用1000KG,1500X1600轿厢基本可行。
关于可容纳担架的住宅电梯的统一要求关于可容纳担架的住宅电梯的统一要求一.《住宅设计规范》(2011年)要求:十二层及十二层以上的住宅,每栋楼设置电梯不应小于两台,其中应设置一台可容纳担架的电梯。
二.此类电梯我院的统一要求如下:1.在建筑平面图上特别标明“此为可容纳担架的电梯”。
2.电梯符合无障碍要求并附有无障碍标记。
额定载重量为1000kg,担架尺寸为600mmX2000mm。
3. 速度不超过2.5m/s,尺寸如下:电梯出入口宽度900(推荐)时,轿厢为1100X2100(深),井道净尺寸为1700X2600(深),但设计井道净尺寸为1800X2700(深),电梯厅设计净尺寸为2200(单侧排列)。
速度不超过2.5m/s,尺寸如下:电梯出入口宽度800(不推荐)时,轿厢为1100X2100(深),井道净尺寸为1600X2600(深),但设计井道净尺寸为1700X2700(深),电梯厅设计净尺寸为2200(单侧排列)。
4. 速度超过2.5m/s时,设计井道的宽度和深度再增加100。
具体的按各品牌电梯厂规定执行。
三.《住宅设计规范》侯梯厅深度不应小于1500,但适用于残障人员使用的电梯的最小侯梯厅深度由1500已改为1800。
四.《住宅设计规范》电梯不应紧邻卧室布置。
当受条件限制,电梯不得不紧邻兼起居的卧室布置时,应采取隔声减振的构造措施。
本条为新增强条。
实施措施:1. 电梯井道不得不时,也只能布置在兼起居的卧室的“起居空间”部分。
2.应采取双层分户墙加20厚空气层或同等隔声效果的构造措施。
担架电梯有关规范汇总担架电梯有关规范汇总1、不能盲目选用医用电梯医用电梯的设计针对的是病床尺寸较大需要配套较大的走道净空及转弯半径往往是担架能进电梯但是进不了家门2、正在协调工程建设标准与产品标准的矛盾3、从改造担架和利用住宅电梯轿厢对角线入手提出“容纳担架电梯”的设计参数4、支持各地采用论证会议形成实施细则选用1500X1600轿厢基本可行目前是1000KG今后800KG的就能满足要求。
住宅担架电梯设计参照资料
?住宅设计规范(GB50096-2011),2012年8月1日实施,其中要求设置担架电梯,如何设置担架电梯,担架电梯的尺度如何控制,一直是争议的地方,现收集整理一些资料,供同行们参考:
一、《住宅设计规范》(GB50096-2011)规范组答复:
1、不能盲目选用医用电梯,医用电梯的设计针对的是病床,尺寸较大,需要配套较大的走道净空及转弯半径,往往是担架能进电梯但是进不了家门;
??《电梯主参数及轿厢、井道、机房型式与尺寸第1部分:ⅠⅡⅢⅥ类电梯》GBT 7025.1-2008中关于担架电梯的标准:(详图5)
第4.2.1.1 特别的,住宅电梯在表3中列出
a)额定载重量为450kg的电梯只适用运载乘客;
b)额定载重重量为630kg的电梯还允许运载一个有一个人陪伴的坐轮椅的人(但不允许为电动轮椅)。
——仅供参考
c) ?额定载重重量为1000kg的电梯除了可运载a)和b)中的荷载外,还可以运载具有可拆卸的把手的担架。
1000kg标准救援电梯,为标准担架电梯.
——仅供参考。
住宅担架电梯设计参照资料(转)
住宅设计规范(GB50096-2011),2012年8月1日实施,其中要求设置担架电梯,如何设置担架电梯,担架电梯的尺度如何控制,一直是争议的地方,现收集整理一些资料,供同行们参考:
一、《住宅设计规范》(GB50096-2011)规范组答复:
1、不能盲目选用医用电梯,医用电梯的设计针对的是病床,尺寸较大,需要配套较大的走道净空及转弯半径,往往是担架能进电梯但是进不了家门;
2、正在协调工程建设标准与产品标准的矛盾;
3、从改造担架和利用住宅电梯轿厢对角线入手,提出“容纳担架电梯”的设计参数;
4、支持各地采用论证会议,形成实施细则,选用1500 x 1600轿厢基本可行,目前是1000KG,今后800KG的就能满足要求。
二、天津地区执行的标准:2600 x 1800井道
三、青岛规划局发的文件执行的标准:其中至少1台电梯保证手把可拆卸的担架平放进去(最小轿厢尺寸为1100 x 2100轿厢)。
四、温州地区设计和图审统一的标准:1400 x 1600轿厢
五、宁波地区讨论稿: 住宅楼可容纳担架电梯的轿箱内净尺寸不应小于1600mm × 1500mm,轿箱门洞净宽不应小于900mm(当门洞不居中开设时,其净宽可适当缩小,但最小不得小于800,且应确保担架的出入)
六、上海住宅设计标准-2011:
5.2.2 十二层及以上高层住宅每栋楼设置电梯不应少于两台,其中一台电梯的轿厢长边尺寸不应小于1.60m。
七、《住宅设计规范》(GB50096-2011)实施指南(林建平的文章):1500 x 1600轿厢
需要对担架做局部改造,如下图所示:
.八、国标担架电梯最小尺寸(2600 x 1600)
《电梯主参数及轿厢、井道、机房型式与尺寸第1部分:ⅠⅡⅢⅥ类电梯》GBT 7025.1-2008中关于担架电梯的标准:(详图5)
第4.2.1.1 特别的,住宅电梯在表3中列出
a)额定载重量为450kg的电梯只适用运载乘客;
b)额定载重重量为630kg的电梯还允许运载一个有一个人陪伴的坐轮椅的人(但不允许为电动轮椅)。
c)额定载重重量为1000kg的电梯除了可运载a)和b)中的荷载外,还可以运载具有可拆卸的把手的担架。
建筑技术总结系列之担架电梯
担架电梯有关规范汇总:
住宅设计规范(GB50096-2011):
上海住宅设计标准-2011:
《住宅设计规范》(GB50096-2011)编写组答复:
1、不能盲目选用医用电梯,医用电梯的设计针对的是病床,尺寸较大,需要配套较大的走
道净空及转弯半径,往往是担架能进电梯但是进不了家门;
2、正在协调工程建设标准与产品标准的矛盾;
3、从改造担架和利用住宅电梯轿厢对角线入手,提出“容纳担架电梯”的设计参数;
4、支持各地采用论证会议,形成实施细则,选用1500X1600轿厢基本可行,目前是1000KG,今后800KG的就能满足要求。
综合分析:
1、轿厢尺寸分析:
《上海住宅设计标准-2011》5.2.2条中规定的“轿厢长边不小于1.60m”,应该是针对容纳担架考虑的,但没明确轿厢短边尺寸,1500X1600轿厢可满足长度185cm规格多功能帆布担架顺利进入及容纳(利用轿厢对角线方向有效净空),基本满足绝大多数住户需要。
在保持轿厢对角线方向有效净空不变的前提下,如轿厢长边大于1.60m,则轿厢短边尺寸可减小,但宜小于1.10m(无障碍设计要求),且轿厢长边+轿厢短边不应小于3.10m。
2、电梯布置分析:
如果采用深轿厢的形式,可节约开间,电梯的成本和普通电梯基本一样,但这种轿厢形式会牺牲运输效率,候梯厅进深相应增大。
如果采用浅轿厢,运输效率会大大提高,但电梯本身成本增加(约5%),为了使担架进入电梯,轿厢开门宽度必须增大,候梯厅开间相应增加。
应综合考虑无障碍轮椅的进出、家具搬运、消防救援、通道和侯梯厅的尺寸要求、建筑成本等因素合理布置电梯。
结论:
可容纳担架的电梯轿厢长边应不小于1.60m,且轿厢长边+轿厢短边不应小于3.10m(如轿厢尺寸1500X1600、1300X1800、1100X2000)。
轿厢长边布置方向应结合通道及电梯厅进深要求综合考虑。
电梯井道布置及尺寸,应先由甲方确定具体电梯品牌厂家,按不小于上述轿厢尺寸要求结合厂家具体产品样本选用电梯型号确定。
2012-8-16。