350×900梁计算书
- 格式:doc
- 大小:189.00 KB
- 文档页数:14
梁模板扣件钢管高支撑架计算书计算依据《建筑施工模板安全技术规范》(JGJ162-2008)。
计算参数:模板支架搭设高度为6.1m,梁截面 B×D=300mm×900mm,立杆的纵距(跨度方向) l=0.90m,立杆的步距 h=1.70m,梁底增加0道承重立杆。
面板厚度18mm,剪切强度1.4N/mm2,抗弯强度15.0N/mm2,弹性模量6000.0N/mm2。
木方45×90mm,剪切强度1.3N/mm2,抗弯强度13.0N/mm2,弹性模量9500.0N/mm2。
梁两侧立杆间距 0.80m。
梁底按照均匀布置承重杆2根计算。
模板自重0.50kN/m2,混凝土钢筋自重25.50kN/m3,施工活荷载2.00kN/m2。
扣件计算折减系数取1.00。
610图1 梁模板支撑架立面简图按照规范4.3.1条规定确定荷载组合分项系数如下:由可变荷载效应控制的组合S=1.2×(25.50×0.90+0.50)+1.40×2.00=30.940kN/m 2 由永久荷载效应控制的组合S=1.35×24.00×0.90+0.7×1.40×2.00=31.120kN/m 2由于永久荷载效应控制的组合S 最大,永久荷载分项系数取1.35,可变荷载分项系数取0.7×1.40=0.98采用的钢管类型为48×3.0。
一、模板面板计算面板为受弯结构,需要验算其抗弯强度和刚度。
模板面板的按照多跨连续梁计算。
作用荷载包括梁与模板自重荷载,施工活荷载等。
1.荷载的计算:(1)钢筋混凝土梁自重(kN/m):q 1 = 25.500×0.900×0.450=10.328kN/m(2)模板的自重线荷载(kN/m):q 2 = 0.500×0.450×(2×0.900+0.300)/0.300=1.575kN/m(3)活荷载为施工荷载标准值与振捣混凝土时产生的荷载(kN):经计算得到,活荷载标准值 P 1 = (0.000+2.000)×0.300×0.450=0.270kN考虑0.9的结构重要系数,均布荷载 q = 0.9×(1.35×10.328+1.35×1.575)=14.462kN/m 考虑0.9的结构重要系数,集中荷载 P = 0.9×0.98×0.270=0.238kN面板的截面惯性矩I 和截面抵抗矩W 分别为:本算例中,截面惯性矩I 和截面抵抗矩W 分别为: W = 45.00×1.80×1.80/6 = 24.30cm 3;I = 45.00×1.80×1.80×1.80/12 = 21.87cm 4;A计算简图0.0002.29变形的计算按照规范要求采用静荷载标准值,受力图与计算结果如下:11.90kN/mA变形计算受力图经过计算得到从左到右各支座力分别为 N 1=2.288kN N 2=2.288kN最大弯矩 M = 0.180kN.m 最大变形 V = 0.941mm (1)抗弯强度计算经计算得到面板抗弯强度计算值 f = 0.180×1000×1000/24300=7.407N/mm 2 面板的抗弯强度设计值 [f],取15.00N/mm 2; 面板的抗弯强度验算 f < [f],满足要求!(2)抗剪计算 [可以不计算]截面抗剪强度计算值 T=3×2288.0/(2×450.000×18.000)=0.424N/mm 2 截面抗剪强度设计值 [T]=1.40N/mm 2 抗剪强度验算 T < [T],满足要求!(3)挠度计算面板最大挠度计算值 v = 0.941mm面板的最大挠度小于300.0/250,满足要求!二、梁底支撑木方的计算 (一)梁底木方计算按照三跨连续梁计算,最大弯矩考虑为静荷载与活荷载的计算值最不利分配的弯矩和,计算公式如下:均布荷载 q = 2.288/0.450=5.085kN/m最大弯矩 M = 0.1ql 2=0.1×5.09×0.45×0.45=0.103kN.m 最大剪力 Q=0.6×0.450×5.085=1.373kN 最大支座力 N=1.1×0.450×5.085=2.517kN木方的截面力学参数为本算例中,截面惯性矩I 和截面抵抗矩W 分别为: W = 4.50×9.00×9.00/6 = 60.75cm 3;I = 4.50×9.00×9.00×9.00/12 = 273.38cm 4;(1)木方抗弯强度计算抗弯计算强度 f=0.103×106/60750.0=1.70N/mm 2 木方的抗弯计算强度小于13.0N/mm 2,满足要求!(2)木方抗剪计算 [可以不计算] 最大剪力的计算公式如下:Q = 0.6ql 截面抗剪强度必须满足:T = 3Q/2bh < [T]截面抗剪强度计算值 T=3×1373/(2×45×90)=0.509N/mm 2 截面抗剪强度设计值 [T]=1.30N/mm 2 木方的抗剪强度计算满足要求!(3)木方挠度计算均布荷载通过上面变形受力图计算的最大支座力除以跨度得到3.968kN/m 最大变形 v =0.677×3.968×450.04/(100×9500.00×2733750.0)=0.042mm 木方的最大挠度小于450.0/250,满足要求!三、梁底支撑钢管计算 (一) 梁底支撑横向钢管计算横向支撑钢管按照集中荷载作用下的连续梁计算。
350×900梁模板计算书一、参数信息1.模板支撑及构造参数梁截面宽度 B(m):0.35;梁截面高度 D(m):0.9混凝土板厚度(mm):0.10;立杆纵距(沿梁跨度方向间距)La(m):0.60;立杆上端伸出至模板支撑点长度a(m):0.10;脚手架步距(m):1.50;梁支撑架搭设高度H(m):2.4/6.1;梁两侧立柱间距(m):1.25/0.85;承重架支设:木方支撑平行梁截面B;支撑系统:1.93x1.25门型架和Φ48×3.00;扣件连接方式:双扣件,考虑扣件质量及保养情况,取扣件抗滑承载力折减系数:0.80;2.荷载参数模板自重(kN/m2):0. 35;钢筋自重(kN/m3):1.50;施工均布荷载标准值(kN/m2):2.5;新浇混凝土侧压力标准值(kN/m2):27.6;倾倒混凝土侧压力(kN/m2):2.0;振捣混凝土荷载标准值(kN/m2):2.03.材料参数木材品种:柏木;木材弹性模量E(N/mm2):10000.0;木材抗弯强度设计值fm(N/mm2):17.0;木材抗剪强度设计值fv(N/mm2):1.7;面板类型:胶合面板;钢材弹性模量E(N/mm2):210000.0;钢材抗弯强度设计值fm(N/mm2):205.0;面板弹性模量E(N/mm2):9500.0;面板抗弯强度设计值fm(N/mm2):13.0;面板抗剪强度设计值fv(N/mm2):1.44.梁底模板参数梁底模板支撑的间距(mm) 600.0;面板厚度(mm):18.0;主楞间距(mm):1200/850次楞间距(mm):2005.梁侧模板参数主楞间距(mm):300;次楞间距(mm):300;穿梁螺栓水平间距(mm):500;穿梁螺栓竖向间距(mm):400;穿梁螺栓直径(mm):M12;主楞龙骨材料:钢楞;截面类型为圆钢管48×3.0;主楞龙骨材料:木楞,,宽度50mm,高度80mm;二、梁模板计算根据设计图纸,梁截面为350×900mm,梁模板采用18mm厚夹板,梁底钢管支撑间距1250mm(层高7.2米的为900mm),侧模加竖向50×80mm木枋间距300mm,梁穿υ12@500,间距300,梁底横楞为间距250mm的50×80mm木枋,纵楞为两条50×80mm木枋(层高7.2米的为48钢管)〔1〕底模板验算计算简图〖1〗荷载计算①模板自重0.35×0.35=0.123KN/m②新浇混凝自重0.35×0.90×25=7.88KN/m③钢筋自重0.35×0.9×1.5=0.47KN/m④施工振捣荷载2.0×0.35=0.700KN/m⑤施工人员及设备荷载:0.35×2.5=0.875 KN/m(均布荷载)F=2.5KN (集中荷载)Ⅰ.当作用于模板上的施工人员及设备为均布荷载时:总竖向荷载q1=(①+②+③)×1.2+1.4×(④+⑤)=(0.123+7.88+0.47)×1.2+1.4×(0.700+0.875)=12.37KN/mⅡ.当作用于模板上的施工人员及设备为集中荷载时:总竖向荷载q2=(①+②+③)×1.2+1.4×④=(0.123+7.88+0.47)×1.2+1.4×0.700=11.15KN/m 〖2〗强度验算按四跨连续梁计算,查表(〘施工手册〙第四版P52)得各系数如下:均布荷载计算系数:Km=-0.107 剪力系数KV=-0.607, 挠度系数Kω=0.632集中荷载计算系数:KmF=0.169 剪力系数KV=-0.661, 挠度系数Kω=1.079l2=0.107×12.37×0.202=0.0529KN.m则M1=Kmq1l2+ KmFFl=0.107×11.15×0.202+0.169×2.5×0.20 M2=Kmq2=0.132KN.m取M2进行验算。
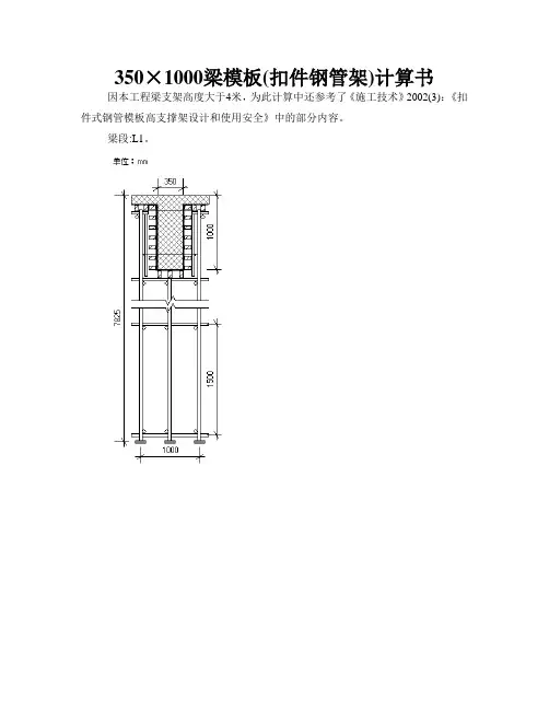
350×1000梁模板支撑计算书350×1000梁模板(扣件钢管架)计算书因本工程梁支架高度大于4米,为此计算中还参考了《施工技术》2002(3):《扣件式钢管模板高支撑架设计和使用安全》中的部分内容。
梁段:L1。
一、参数信息1.模板支撑及构造参数梁截面宽度 B(m):0.35;梁截面高度 D(m):1.00;混凝土板厚度(mm):120.00;立杆沿梁跨度方向间距L a(m):0.80;立杆上端伸出至模板支撑点长度a(m):0.30;立杆步距h(m):1.50;板底承重立杆横向间距或排距L b(m):1.00;梁支撑架搭设高度H(m):7.83;梁两侧立杆间距(m):1.00;承重架支撑形式:梁底支撑小楞垂直梁截面方向;梁底增加承重立杆根数:1;采用的钢管类型为Φ48×3;立杆承重连接方式:双扣件,考虑扣件质量及保养情况,取扣件抗滑承载力折减系数:0.85;2.荷载参数新浇混凝土重力密度(kN/m3):24.00;模板自重(kN/m2):0.30;钢筋自重(kN/m3):1.50;施工均布荷载标准值(kN/m2):2.5;新浇混凝土侧压力标准值(kN/m2):24.0;振捣混凝土对梁底模板荷载(kN/m2):2.0;振捣混凝土对梁侧模板荷载(kN/m2):4.0;3.材料参数木材品种:杉木;木材弹性模量E(N/mm2):9000.0;木材抗压强度设计值fc(N/mm):10.0;木材抗弯强度设计值fm(N/mm2):11.0;木材抗剪强度设计值fv(N/mm2):1.4;面板材质:胶合面板;面板厚度(mm):18.00;面板弹性模量E(N/mm2):9500.0;面板抗弯强度设计值fm(N/mm2):13.0;4.梁底模板参数梁底方木截面宽度b(mm):50.0;梁底方木截面高度h(mm):100.0;梁底纵向支撑根数:3;5.梁侧模板参数主楞间距(mm):800;次楞根数:7;主楞竖向支撑点数量:2;穿梁螺栓直径(mm):M14;穿梁螺栓水平间距(mm):600;竖向支撑点到梁底距离依次是:200mm,800mm;主楞材料:圆钢管;直径(mm):48.00;壁厚(mm):3.00;主楞合并根数:2;次楞材料:木方;宽度(mm):50.00;高度(mm):100.00;二、梁侧模板荷载计算按《施工手册》,新浇混凝土作用于模板的最大侧压力,按下列公式计算,并取其中的较小值:F=0.22γtβ1β2V1/2F=γH其中γ -- 混凝土的重力密度,取24.000kN/m3;t -- 新浇混凝土的初凝时间,取3.000h;T -- 混凝土的入模温度,取25.000℃;V -- 混凝土的浇筑速度,取1.500m/h;H -- 混凝土侧压力计算位置处至新浇混凝土顶面总高度,取1.000m;β1-- 外加剂影响修正系数,取1.200;β2-- 混凝土坍落度影响修正系数,取1.150。
梁模板计算书梁模板的计算主要包括:①底板下内楞、底板下外楞和底板下支撑;②梁侧模板、侧模板内楞、梁侧模板外楞和对拉钢片。
1、梁模底板及内楞计算(1)梁截面≤350×600梁底板按350×600计算①强度验算:底板承受标准荷载:恒载:混凝土自重力 24KN/m3×0.35m×0.6m×1.2=6.048KN/m底板自重力 5KN/m3×0.015m×0.35m×1.2=0.0315KN/m钢筋自重力 1.5KN/m3×0.35m×0.6m×1.2=0.378KN/m动载:振捣混凝土荷载 2.0KN/m3×0.35m×1.4=0.98KN/m施工人员及机械荷载 2.5KN/m3×0.35m×1.4=1.225KN/m合计 q1=8.663KN/m木模板需乘折减系数0.9:则q=q1×0.9=7.8KN/m梁模板下内楞的间距相等,设为L,是一个等跨多跨连续梁,可按四等跨连续梁来计算:所用公式:δ=M/W≤fmM=Km×qL2W=bh2/6式中:δ—计算最大应力M—计算最大内力Km—弯距系数W—截面抵抗矩Fm—木材抗弯强度设计值b×h—模板横截面的宽度与厚度L—内楞间距一般按4跨连续梁计算,按最不利荷载布置,查附表2得:Km=0.121δ=0.121×7.8×L2×6/(350×152)≤13N/mm2解得:L≤425mm②剪应力验算所用公式:τ=3V/2bh≤fv V=Kvql查表得Kv=0.620τ=3×0.620×7.8×L/(2×600×15)≤fv=1.4N/mm2解得:L≤510mm③挠度验算所用公式:w=Kwql4/100EI≤L/250查表得:Kw=0.967w=0.967×7.8×L4×12/(100×9000×350×153)≤L/250解得:L≤361mm综合以上三种情况,L≤361mm,底板可满足要求,可取L=350mm(2)350×600<梁截面≤350×1100梁底板按350×1100计算①强度验算:底板承受标准荷载:恒载:混凝土自重力 24KN/m3×0.35m×1.1m×1.2=11.088KN/m底板自重力 5KN/m3×0.015m×0.35m×1.2=0.0315KN/m钢筋自重力 1.5KN/m3×0.35m×1.1m×1.2=0.693KN/m动载:振捣混凝土荷载 2.0KN/m3×0.35m×1.4=0.98KN/m施工人员及机械荷载 2.5KN/m3×0.35m×1.4=1.225KN/m合计 q1=14.018KN/m木模板需乘折减系数0.9:则q=q1×0.9=12.616KN/m梁模板下内楞的间距相等,设为L,是一个等跨多跨连续梁,可按四等跨连续梁来计算:所用公式:δ=M/W≤fmM=Km×qL2W=bh2/6式中:δ—计算最大应力M—计算最大内力Km—弯距系数W—截面抵抗矩Fm—木材抗弯强度设计值b×h—模板横截面的宽度与厚度L—内楞间距一般按4跨连续梁计算,按最不利荷载布置,查附表2得:Km=0.121δ=0.121×12.616×L2×6/(350×152)≤13N/mm2解得:L≤334mm②剪应力验算所用公式:τ=3V/2bh≤fv V=Kvql查表得Kv=0.620τ=3×0.620×12.616×L/(2×1100×15)≤fv=1.4N/mm2解得:L≤444mm③挠度验算所用公式:w=Kwql4/100EI≤L/250查表得:Kw=0.967w=0.967×12.616×L4×12/(100×9000×350×153)≤L/250解得:L≤307mm综合以上三种情况,L≤307mm,底板可满足要求,可取L=300mm(3)梁截面>350×1100梁底板计算按350×2600计算①强度验算:底板承受标准荷载:恒载:混凝土自重力 24KN/m3×0.35m×2.6m×1.2=26.208KN/m底板自重力 5KN/m3×0.015m×0.35m×1.2=0.0315KN/m钢筋自重力 1.5KN/m3×0.35m×2.6m×1.2=1.638KN/m动载:振捣混凝土荷载 2.0KN/m3×0.35m×1.4=0.98KN/m施工人员及机械荷载 2.5KN/m3×0.35m×1.4=1.225KN/m合计 q1=30.083KN/m木模板需乘折减系数0.9:则q=q1×0.9=27.074KN/m梁模板下内楞的间距相等,设为L,是一个等跨多跨连续梁,可按四等跨连续梁来计算:所用公式:δ=M/W≤fmM=Km×qL2W=bh2/6式中:δ—计算最大应力M—计算最大内力Km—弯距系数W—截面抵抗矩Fm—木材抗弯强度设计值b×h—模板横截面的宽度与厚度L—内楞间距一般按4跨连续梁计算,按最不利荷载布置,查附表2得:Km=0.121δ=0.121×27.04×L2×6/(350×152)≤13N/mm2解得:L≤228mm②剪应力验算所用公式:τ=3V/2bh≤fv V=Kvql查表得Kv=0.620τ=3×0.620×27.074×L/(2×2600×15)≤fv=1.4N/mm2解得:L≤466mm③挠度验算所用公式:w=Kwql4/100EI≤L/250查表得:Kw=0.967w=0.967×27.074×L4×12/(100×9000×350×153)≤L/250解得:L≤238mm综合以上三种情况,L≤228mm,底板可满足要求,可取L=200mm2、梁底外楞验算(1)梁截面≤350×600梁底外楞计算①强度验算:外楞下钢管的纵向间距设为L2,沿纵向为三排。
梁木模板与支撑计算书一、梁模板基本参数梁截面宽度 B=600mm,梁截面高度 H=900mm,H方向对拉螺栓2道,对拉螺栓直径14mm,对拉螺栓在垂直于梁截面方向距离(即计算跨度)1200mm。
梁模板使用的木方截面50×100mm,梁模板截面侧面木方距离250mm。
梁底模面板厚度h=15mm,弹性模量E=6000N/mm2,抗弯强度[f]=15N/mm2。
梁侧模面板厚度h=15mm,弹性模量E=6000N/mm2,抗弯强度[f]=15N/mm2。
二、梁模板荷载标准值计算模板自重 = 0.200kN/m2;钢筋自重 = 1.500kN/m3;混凝土自重 = 24.000kN/m3;施工荷载标准值 = 2.500kN/m2。
强度验算要考虑新浇混凝土侧压力和倾倒混凝土时产生的荷载设计值;挠度验算只考虑新浇混凝土侧压力产生荷载标准值。
当浇筑速度大于10m/h或坍落度大于180mm时,新浇混凝土侧压力按公式2计算;其他情况按两个公式计算,取较小值:——混凝土的重力密度,取24.000kN/m3;其中γct ——新浇混凝土的初凝时间,为0时(表示无资料)取200/(T+15),取3.000h;T ——混凝土的入模温度,取20.000℃;V ——混凝土的浇筑速度,取2.500m/h;H ——混凝土侧压力计算位置处至新浇混凝土顶面总高度,取0.900m;β——混凝土坍落度影响修正系数,取0.850。
根据公式计算的新浇混凝土侧压力标准值 F1=21.590kN/m2考虑结构的重要性系数0.90,实际计算中采用新浇混凝土侧压力标准值:F1=0.90×21.600=19.440kN/m2考虑结构的重要性系数0.90,倒混凝土时产生的荷载标准值:F2=0.90×4.000=3.600kN/m2。
三、梁底模板木楞计算梁底木方的计算在脚手架梁底支撑计算中已经包含!四、梁模板侧模计算面板直接承受模板传递的荷载,应该按照均布荷载下的连续梁计算,计算如下作用在梁侧模板的均布荷载q=(1.2×19.44+1.40×3.60)×0.90=25.531N/mm面板的截面惯性矩I和截面抵抗矩W分别为:本算例中,截面惯性矩I和截面抵抗矩W分别为:截面抵抗矩 W = 33.75cm3;截面惯性矩 I = 25.31cm4;(1)抗弯强度计算f = M / W < [f]其中 f ——面板的抗弯强度计算值(N/mm2);M ——面板的最大弯距(N.mm);W ——面板的净截面抵抗矩;[f] ——面板的抗弯强度设计值,取15.00N/mm2;M = 0.100ql2其中 q ——荷载设计值(kN/m);经计算得到 M = 0.100×(1.20×17.496+1.40×3.240)×0.250×0.250=0.160kN.m 经计算得到面板抗弯强度计算值 f = 0.160×1000×1000/33750=4.728N/mm2面板的抗弯强度验算 f < [f],满足要求!(2)抗剪计算T = 3Q/2bh < [T]其中最大剪力Q=0.600×(1.20×17.496+1.40×3.240)×0.250=3.830kN 截面抗剪强度计算值T=3×3830.0/(2×900.000×15.000)=0.426N/mm2截面抗剪强度设计值 [T]=1.40N/mm2面板抗剪强度验算 T < [T],满足要求!(3)挠度计算v = 0.677ql4 / 100EI < [v] = l / 250面板最大挠度计算值v = 0.677×17.496×2504/(100×6000×253125)=0.305mm面板的最大挠度小于250.0/250,满足要求!五、穿梁螺栓计算计算公式:N < [N] = fA其中 N ——穿梁螺栓所受的拉力;A ——穿梁螺栓有效面积 (mm2);f ——穿梁螺栓的抗拉强度设计值,取170N/mm2;穿梁螺栓承受最大拉力N = (1.2×19.44+1.40×3.60)×0.90×1.20/2=15.32kN 穿梁螺栓直径为14mm;穿梁螺栓有效直径为11.6mm;穿梁螺栓有效面积为 A=105.000mm2;穿梁螺栓最大容许拉力值为 [N]=17.850kN;穿梁螺栓承受拉力最大值为 N=15.319kN;穿梁螺栓的布置距离为侧龙骨的计算间距1200mm。
梁模板(350,950)计算书计算依据:1、《建筑施工模板安全技术规范》JGJ162-20082、《建筑施工扣件式钢管脚手架安全技术规范》JGJ 130-20113、《混凝土结构设计规范》GB 50010-20104、《建筑结构荷载规范》GB 50009-20125、《钢结构设计标准》GB 50017-20176、《建筑结构可靠性设计统一标准》GB50068-2018一、工程属性设计简图如下:平面图立面图四、面板验算面板类型覆面木胶合板面板厚度t(mm) 12面板抗弯强度设计值[f](N/mm2) 15 面板抗剪强度设计值[τ](N/mm2) 1.5面板弹性模量E(N/mm2) 5400W=bh2/6=1000×12×12/6=24000mm3,I=bh3/12=1000×12×12×12/12=144000mm4q1=γ0×[1.3(G1k+(G2k+G3k)×h)+1.5×γL×Q2k]×b=1.1×[1.3×(0.1+(24+1.5)×0.95)+1.5×0.9×2]×1=37.755kN/mq1静=γ0×1.3×[G1k+(G2k+G3k)×h]×b=1.1×1.3×[0.1+(24+1.5)×0.95]×1=34.785kN/mq1活=γ0×1.5×γL×Q2k×b=1.1×1.5×0.9×2×1=2.97kN/mq2=[1×(G1k+(G2k+G3k)×h)]×b=[1×(0.1+(24+1.5)×0.95)]×1=24.325kN/m 计算简图如下:1、强度验算M max=0.1q1静L2+0.117q1活L2=0.1×34.785×0.1172+0.117×2.97×0.1172=0.052kN·mσ=M max/W=0.052×106/24000=2.17N/mm2≤[f]=15N/mm2满足要求!2、挠度验算νmax=0.677q2L4/(100EI)=0.677×24.325×116.6674/(100×5400×144000)=0.039mm≤[ν]=L/400=116.667/400=0.292mm满足要求!3、支座反力计算设计值(承载能力极限状态)R1=R4=0.4q1静L+0.45q1活L=0.4×34.785×0.117+0.45×2.97×0.117=1.779kN R2=R3=1.1q1静L+1.2q1活L=1.1×34.785×0.117+1.2×2.97×0.117=4.88kN标准值(正常使用极限状态)R1'=R4'=0.4q2L=0.4×24.325×0.117=1.135kNR2'=R3'=1.1q2L=1.1×24.325×0.117=3.122kN五、小梁验算梁底面板传递给左边小梁线荷载:q1左=R1/b=1.779/1=1.779kN/m梁底面板传递给中间小梁最大线荷载:q1中=Max[R2,R3]/b = Max[4.88,4.88]/1= 4.88kN/m梁底面板传递给右边小梁线荷载:q1右=R4/b=1.779/1=1.779kN/m小梁自重:q2=1.1×1.3×(0.3-0.1)×0.35/3 =0.033kN/m梁左侧模板传递给左边小梁荷载q3左=1.1×1.3×0.5×(0.95-0.15)=0.572kN/m梁右侧模板传递给右边小梁荷载q3右=1.1×1.3×0.5×(0.95-0.15)=0.572kN/m梁左侧楼板传递给左边小梁荷载q4左=1.1×[1.3×(0.5+(24+1.1)×0.15)+1.5×0.9×2]×(0.45-0.35/2)/2×1=1.247kN/m梁右侧楼板传递给右边小梁荷载q4右=1.1×[1.3×(0.5+(24+1.1)×0.15)+1.5×0.9×2]×((0.9-0.45)-0.35/2)/2×1=1.247kN/m左侧小梁荷载q左=q1左+q2+q3左+q4左=1.779+0.033+0.572+1.247=3.632kN/m中间小梁荷载q中= q1中+ q2=4.88+0.033=4.913kN/m右侧小梁荷载q右=q1右+q2+q3右+q4右=1.779+0.033+0.572+1.247=3.632kN/m小梁最大荷载q=Max[q左,q中,q右]=Max[3.632,4.913,3.632]=4.913kN/m正常使用极限状态:梁底面板传递给左边小梁线荷载:q1左'=R1'/b=1.135/1=1.135kN/m梁底面板传递给中间小梁最大线荷载:q1中'=Max[R2',R3']/b =Max[3.122,3.122]/1= 3.122kN/m梁底面板传递给右边小梁线荷载:q1右'=R4'/b=1.135/1=1.135kN/m小梁自重:q2'=1×(0.3-0.1)×0.35/3 =0.023kN/m梁左侧模板传递给左边小梁荷载q3左'=1×0.5×(0.95-0.15)=0.4kN/m梁右侧模板传递给右边小梁荷载q3右'=1×0.5×(0.95-0.15)=0.4kN/m梁左侧楼板传递给左边小梁荷载q4左'=[1×(0.5+(24+1.1)×0.15)]×(0.45-0.35/2)/2×1=0.586kN/m梁右侧楼板传递给右边小梁荷载q4右'=[1×(0.5+(24+1.1)×0.15)]×((0.9-0.45)-0.35/2)/2×1=0.586kN/m左侧小梁荷载q左'=q1左'+q2'+q3左'+q4左'=1.135+0.023+0.4+0.586=2.145kN/m 中间小梁荷载q中'= q1中'+ q2'=3.122+0.023=3.145kN/m右侧小梁荷载q右'=q1右'+q2'+q3右'+q4右' =1.135+0.023+0.4+0.586=2.145kN/m 小梁最大荷载q'=Max[q左',q中',q右']=Max[2.145,3.145,2.145]=3.145kN/m为简化计算,按二等跨连续梁和悬臂梁分别计算,如下图:1、抗弯验算M max=max[0.125ql12,0.5ql22]=max[0.125×4.913×0.82,0.5×4.913×0.32]=0.393kN·mσ=M max/W=0.393×106/54000=7.279N/mm2≤[f]=11.44N/mm2满足要求!2、抗剪验算V max=max[0.625ql1,ql2]=max[0.625×4.913×0.8,4.913×0.3]=2.457kNτmax=3V max/(2bh0)=3×2.457×1000/(2×40×90)=1.024N/mm2≤[τ]=1.232N/mm2满足要求!3、挠度验算ν1=0.521q'l14/(100EI)=0.521×3.145×8004/(100×7040×243×104)=0.392mm≤[ν]=l1/400=800/400=2mmν2=q'l24/(8EI)=3.145×3004/(8×7040×243×104)=0.186mm≤[ν]=2l2/400=2×300/400=1.5mm满足要求!4、支座反力计算承载能力极限状态R max=max[1.25qL1,0.375qL1+qL2]=max[1.25×4.913×0.8,0.375×4.913×0.8+4.913×0.3]= 4.913kN同理可得:梁底支撑小梁所受最大支座反力依次为R1=3.632kN,R2=4.913kN,R3=4.913kN,R4=3.632kN正常使用极限状态R max'=max[1.25q'L1,0.375q'L1+q'L2]=max[1.25×3.145×0.8,0.375×3.145×0.8+3.145×0.3] =3.145kN同理可得:梁底支撑小梁所受最大支座反力依次为R1'=2.145kN,R2'=3.145kN,R3'=3.145kN,R4'=2.145kN六、主梁验算主梁类型钢管主梁截面类型(mm) Φ48×2.7主梁计算截面类型(mm) Φ48×2.7主梁抗弯强度设计值[f](N/mm2) 205主梁抗剪强度设计值[τ](N/mm2) 125 主梁截面抵抗矩W(cm3) 4.12主梁弹性模量E(N/mm2) 206000 主梁截面惯性矩I(cm4) 9.89可调托座内主梁根数 11、抗弯验算主梁弯矩图(kN·m)σ=M max/W=0.121×106/4120=29.318N/mm2≤[f]=205N/mm2满足要求!2、抗剪验算主梁剪力图(kN)V max=4.913kNτmax=2V max/A=2×4.913×1000/384=25.589N/mm2≤[τ]=125N/mm2满足要求!3、挠度验算主梁变形图(mm)νmax=0.004mm≤[ν]=L/400=180/400=0.45mm满足要求!4、支座反力计算承载能力极限状态支座反力依次为R1=0.165kN,R2=1.374kN,R3=7.336kN,R4=7.336kN,R5=1.374kN,R6=0.165kN七、可调托座验算两侧立杆最大受力N=max[R1,R6]=max[0.165,0.165]=0.165kN≤0.85×8=6.8kN 单扣件在扭矩达到40~65N·m且无质量缺陷的情况下,单扣件能满足要求!2、可调托座验算可调托座最大受力N=max[R2,R3,R4,R5]=7.336kN≤[N]=30kN满足要求!八、立杆验算顶部立杆段:l01=kμ1(h d+2a)=1×1.386×(750+2×200)=1594mm非顶部立杆段:l02=kμ2h =1×1.755×1500=2632mmλ=max[l01,l02]/i=2632/16=164.5≤[λ]=210长细比满足要求!2、风荷载计算M w=γ0×γL×φw1.5×ωk×l a×h2/10=1.1×0.9×0.9×1.5×0.616×0.8×1.52/10=0.148kN·m3、稳定性计算R1=0.165kN,R2=1.374kN,R3=7.336kN,R4=7.336kN,R5=1.374kN,R6=0.165kN顶部立杆段:l01=kμ1(h d+2a)=1.217×1.386×(750+2×200)=1940mmλ1=l01/i=1939.776/16=121.236,查表得,φ1=0.446立杆最大受力N w=max[R1+N边1,R2,R3,R4,R5,R6+N边2]+M w/l b=max[0.165+1.1×[1.3×(0.5+(24+1.1)×0.15)+1.5×0.9×1]×(0.8+0.45-0.35/2)/2×0.8,1.374,7.336,7.336,1.374,0.165+1.1×[1.3×(0.5+(24+1.1)×0.15)+1.5×0.9×1]×(0.8+0.9-0.45-0.35/2)/2×0.8]+0.148/0 .9=7.501kNf=N/(φA)+M w/W=7501.069/(0.446×384)+0.148×106/4120=79.721N/mm2≤[f]=205N/mm2满足要求!非顶部立杆段:l02=kμ2h =1.217×1.755×1500=3204mmλ2=l02/i=3203.753/16=200.235,查表得,φ2=0.18立杆最大受力N w=max[R1+N边1,R2,R3,R4,R5,R6+N边]+1.1×1.3×0.15×(15.5-0.95)+M w/l b=2max[0.165+1.1×[1.3×(0.5+(24+1.1)×0.15)+1.5×0.9×1]×(0.8+0.45-0.35/2)/2×0.8,1.374,7.336,7.336,1.374,0.165+1.1×[1.3×(0.5+(24+1.1)×0.15)+1.5×0.9×1]×(0.8+0.9-0.45-0.35/2)/2×0.8]+3.121+ 0.148/0.9=10.622kNf=N/(φA)+M w/W=10622.044/(0.18×384)+0.148×106/4120=189.598N/mm2≤[f]=205N/mm2满足要求!九、高宽比验算根据《建筑施工扣件式钢管脚手架安全技术规范》JGJ130-2011 第6.9.7:支架高宽比不应大于3H/B=15.5/41=0.378≤3满足要求,不需要进行抗倾覆验算!十、立杆地基基础计算f ak 115kPa满足要求!。
350×650梁模板扣件钢管支撑架计算书依据规范:《建筑施工模板安全技术规范》JGJ 162-2008《建筑结构荷载规范》GB50009-2012《钢结构设计规范》GB50017-2003《混凝土结构设计规范》GB50010-2010《建筑地基基础设计规范》GB50007-2011《建筑施工木脚手架安全技术规范》JGJ 164-2008计算参数:钢管强度为205.0 N/mm2,钢管强度折减系数取1.00。
模板支架搭设高度为3.0m,梁截面 B×D=350mm×650mm,立杆的纵距(跨度方向) l=0.90m,立杆的步距 h=1.50m,梁底增加1道承重立杆。
面板厚度12mm,剪切强度1.6N/mm2,抗弯强度15.0N/mm2,弹性模量6000.0N/mm2。
内龙骨采用50.×70.mm木方。
木方剪切强度1.6N/mm2,抗弯强度15.0N/mm2,弹性模量9000.0N/mm2。
梁两侧立杆间距 1.20m。
梁底按照均匀布置承重杆3根计算。
模板自重0.20kN/m2,混凝土钢筋自重25.50kN/m3。
振捣混凝土荷载标准值2.00kN/m2。
梁两侧的楼板厚度0.12m,梁两侧的楼板计算长度0.45m。
地基承载力标准值100kN/m2,基础底面扩展面积0.270m2,地基承载力调整系数0.40。
扣件计算折减系数取1.00。
2950图1 梁模板支撑架立面简图按照模板规范4.3.1条规定确定荷载组合分项系数如下:由可变荷载效应控制的组合S=1.2×(25.50×0.65+0.20)+1.40×2.00=22.930kN/m 2由永久荷载效应控制的组合S=1.35×25.50×0.65+0.7×1.40×2.00=24.336kN/m 2由于永久荷载效应控制的组合S 最大,永久荷载分项系数取1.35,可变荷载分项系数取0.7×1.40=0.98计算中考虑梁两侧部分楼板混凝土荷载以集中力方式向下传递。
梁模板(扣件式,梁板立柱共用)计算书计算依据:1、《建筑施工脚手架安全技术统一标准》GB51210-20162、《建筑施工扣件式钢管脚手架安全技术规范》JGJ 130-20113、《建筑施工模板安全技术规范》JGJ162-20084、《混凝土结构设计规范》GB 50010-20105、《建筑结构荷载规范》GB 50009-20126、《钢结构设计标准》GB 50017-2017一、工程属性平面图立面图四、面板验算面板类型覆面木胶合板面板厚度t(mm) 18面板抗弯强度设计值[f](N/mm2) 15 面板抗剪强度设计值[τ](N/mm2) 1.5面板弹性模量E(N/mm2) 5400 验算方式三等跨连续梁截面抵抗矩:W=bh2/6=400×18×18/6=21600mm3,截面惯性矩:I=bh3/12=400×18×18×18/12=194400mm4q1=γ0×max[1.2(G1k+(G2k+G3k)×h)+1.4Q1k,1.35(G1k+(G2k+G3k)×h)+1.4φc Q1k]×b=1×max[1.2×(0.1+(24+1.5)×0.9)+1.4×3,1.35×(0.1+(24+1.5)×0.9)+1.4×0.7×3]×0.4=13.623kN/mq1静=γ0×1.35×[G1k+(G2k+G3k)×h]×b=1×1.35×[0.1+(24+1.5)×0.9]×0.4=12.447kN/mq1活=γ0×1.4×0.7×Q1k×b=1×1.4×0.7×3×0.4=1.176kN/mq2=[1×(G1k+(G2k+G3k)×h)]×b=[1×(0.1+(24+1.5)×0.9)]×0.4=9.22kN/m简图如下:1、抗弯验算M max=0.1q1静L2+0.117q1活L2=0.1×12.447×0.22+0.117×1.176×0.22=0.055kN·mσ=M max/W=0.055×106/21600=2.56N/mm2≤[f]=15N/mm2满足要求!2、挠度验算νmax=0.677q2L4/(100EI)=0.677×9.22×2004/(100×5400×194400)=0.095mm≤[ν]=L/250=200/250=0.8mm满足要求!3、支座反力计算设计值(承载能力极限状态)R max=1.1q1静L+1.2q1活L=1.1×12.447×0.2+1.2×1.176×0.2=3.021kN标准值(正常使用极限状态)R'max=1.1q2L=1.1×9.22×0.2=2.028kN五、小梁验算小梁类型钢管小梁截面类型(mm) Φ48.3×3.0小梁计算截面类型(mm) Φ48×2.8 小梁抗弯强度设计值[f](N/mm2) 205小梁抗剪强度设计值[τ](N/mm2) 125 小梁截面抵抗矩W(cm3) 4.25小梁弹性模量E(N/mm2) 206000 小梁截面惯性矩I(cm4) 10.19面板传递给小梁q1=3.021/0.4=7.551kN/m小梁自重q2=1×1.35×(0.3-0.1)×0.2=0.054kN/m梁左侧楼板及侧模传递给小梁荷载F1=1×max[1.2 ×(0.5+(24+1.1)×0.25)+1.4×3,1.35 ×(0.5+(24+1.1)×0.25)+1.4×0.7×3]×(0.4-0.4/2)/2×0.2+1×1.35×0.5×(0.9-0.25)×0.2=0.334kN梁右侧楼板及侧模传递给小梁荷载F2=1×max[1.2 ×(0.5+(24+1.1)×0.25)+1.4×3,1.35×(0.5+(24+1.1)×0.25)+1.4×0.7×3]×((0.8-0.4)-0.4/2)/2×0.2+1×1.35×0.5×(0.9-0.25)×0.2=0.334kN正常使用极限状态:面板传递给小梁q1=2.028/0.4=5.071kN/m小梁自重q2=1×(0.3-0.1)×0.2=0.04kN/m梁左侧楼板及侧模传递给小梁荷载F1=(1×0.5+1×(24+1.1)×0.25)×(0.4-0.4/2)/2×0.2+1×0.5×(0.9-0.25)×0.2=0.201kN 梁右侧楼板及侧模传递给小梁荷载F2=(1×0.5+1×(24+1.1)×0.25)×((0.8-0.4)-0.4/2)/2×0.2+1×0.5×(0.9-0.25)×0.2=0.201kN 计算简图如下:承载能力极限状态正常使用极限状态1、抗弯验算小梁弯矩图(kN·m)σ=M max/W=0.038×106/4250=8.972N/mm2≤[f]=205N/mm2 满足要求!2、抗剪验算小梁剪力图(kN)V max=1.011kNτmax=2V max/A=2×1.011×1000/398=5.083N/mm2≤[τ]=125N/mm2满足要求!3、挠度验算小梁变形图(mm)νmax=0.005mm≤[ν]=L/250=267/250=1.068mm满足要求!4、支座反力计算承载能力极限状态R1=0.012kN,R2=1.854kN,R3=1.854kN,R4=0.012kN正常使用极限状态R'1=0.004kN,R'2=1.227kN,R'3=1.227kN,R'4=0.004kN六、主梁验算主梁类型钢管主梁截面类型(mm) Φ48.3×3.0 主梁计算截面类型(mm) Φ48×2.8 主梁抗弯强度设计值[f](N/mm2) 205主梁抗剪强度设计值[τ](N/mm2) 125 主梁截面抵抗矩W(cm3) 4.25主梁弹性模量E(N/mm2) 206000 主梁截面惯性矩I(cm4) 10.19主梁计算方式三等跨连续梁可调托座内主梁根数 2主梁受力不均匀系数0.6由上节可知P=max[R2,R3]×0.6=1.112kN,P'=max[R2',R3']×0.6=0.736kN主梁计算简图一1、抗弯验算主梁弯矩图一(kN·m)σ=M max/W=0.289×106/4250=68N/mm2≤[f]=205N/mm2满足要求!2、抗剪验算主梁剪力图一(kN)V max=1.751kNτmax=2V max/A=2×1.751×1000/398=8.799N/mm2≤[τ]=125N/mm2满足要求!3、挠度验算主梁变形图一(mm)跨中νmax=0.244mm≤[ν]=L/250=800/250=3.2mm满足要求!悬臂端νmax=0.014mm≤[ν]=2l2/250=2×200/250=1.6mm满足要求!4、支座反力计算图一:R max=4.531kN用小梁的支座反力分别代入可得:承载能力极限状态图一立杆2:R2=4.531kN,立杆3:R3=4.531kN立杆所受主梁支座反力依次为:立杆2:P2=4.531/0.6=7.552kN,立杆3:P3=4.531/0.6=7.552kN七、纵向水平钢管验算钢管截面类型(mm) Φ48.3×3.0 钢管计算截面类型(mm) Φ48×2.8钢管截面面积A(mm2) 398 钢管截面回转半径i(mm) 16钢管弹性模量E(N/mm2) 206000 钢管截面惯性矩I(cm4) 10.19 钢管截面抵抗矩W(cm3) 4.25 钢管抗弯强度设计值[f](N/mm2) 205 钢管抗剪强度设计值[τ](N/mm2) 1251414纵向水平钢管计算简图一1、抗弯验算纵向水平钢管弯矩图一(kN·m)σ=M max/W=0.003×106/4250=0.706N/mm2≤[f]=205N/mm2满足要求!2、抗剪验算纵向水平钢管剪力图一(kN)V max=0.019kNτmax=2V max/A=2×0.019×1000/398=0.095N/mm2≤[τ]=125N/mm2 满足要求!3、挠度验算纵向水平钢管变形图一(mm)跨中νmax=0.001mm≤[ν]=L/250=800/250=3.2mm满足要求!悬臂端νmax=0mm≤[ν]=2l2/250=2×200/250=1.6mm满足要求!4、支座反力计算图一:R max=0.049kN用小梁两侧的支座反力分别代入可得:承载能力极限状态图一:立杆1:R1=0.049kN,立杆4:R4=0.049kN八、可调托座验算两侧立杆最大受力N=max[R1,R4]=max[0.049,0.049]=0.049kN≤0.85×8=6.8kN 单扣件在扭矩达到40~65N·m且无质量缺陷的情况下,单扣件能满足要求!2、可调托座验算可调托座最大受力N=max[P2,P3]=7.552kN≤[N]=30kN满足要求!九、立杆验算顶部立杆段:l01=kμ1(h d+2a)=1×1.386×(750+2×200)=1594mm非顶部立杆段:l02=kμ2h =1×1.755×1500=2632mmλ=max[l01,l02]/i=2632/16=164.5≤[λ]=210长细比满足要求!顶部立杆段:l01=kμ1(h d+2a)=1.155×1.386×(750+2×200)=1841mm非顶部立杆段:l02=kμ2h =1.155×1.755×1500=3041mmλ=max[l01,l02]/i=3041/16=190.062查表得:φ=0.1992、风荷载计算M wd=γ0×φc×γQ×Mωk=γ0×φc×γQ×(ζ2×ωk×l a×h2/10)=1×0.6 ×1.4×(1×0.031×0.8×1.52/10)=0.005kN·m3、稳定性计算R1=0.049kN,P2=7.552kN,P3=7.552kN,R4=0.049kN梁两侧立杆承受楼板荷载:左侧楼板传递给梁左侧立杆荷载:N边1=1×max[1.2×(0.5+(24+1.1)×0.25)+1.4×3,1.35×(0.5+(24+1.1)×0.25)+0.7×1.4×3]×(0.8+0.4-0.4/2)/2×0.8=4.932kN右侧楼板传递给梁右侧立杆荷载:N边2=1×max[1.2×(0.5+(24+1.1)×0.25)+1.4×3,1.35×(0.5+(24+1.1)×0.25)+0.7×1.4×3]×(0.8+0.8-0.4-0.4/2)/2×0.8=4.932kNN d=max[R1+N边1,P2,P3,R4+N边2]+1×1.35×0.15×(3.6-0.9)=max[0.049+4.932,7.552,7.552,0.049+4.932]+0.547=8.099kNf d=N d/(φA)+M wd/W=8099.106/(0.199×398)+0.005×106/4250=103.435N/mm2≤[f]=205N/mm2满足要求!十、高宽比验算根据《建筑施工脚手架安全技术统一标准》GB51210-2016 第8.3.2条: 支撑脚手架独立架体高宽比不应大于3.0H/B=3.6/71=0.051≤3满足要求!十一、架体抗倾覆验算支撑脚手架风线荷载标准值:q wk=l'a×ωfk=0.8×0.674=0.539kN/m:风荷载作用在支架外侧模板上产生的水平力标准值:F wk= l'a×H m×ωmk=0.8×1×0.259=0.207kN支撑脚手架计算单元在风荷载作用下的倾覆力矩标准值M ok:M ok=0.5H2q wk+HF wk=0.5×3.62×0.539+3.6×0.207=4.24kN.m参考《规范》GB51210-2016 第6.2.17条:B2l'a(g k1+ g k2)+2ΣG jk b j≥3γ0M okg k1——均匀分布的架体面荷载自重标准值kN/m2g k2——均匀分布的架体上部的模板等物料面荷载自重标准值kN/m2G jk——支撑脚手架计算单元上集中堆放的物料自重标准值kNb j——支撑脚手架计算单元上集中堆放的物料至倾覆原点的水平距离mB2l'a(g k1+ g k2)+2ΣG jk b j =B2l'a[qH/(l'a×l'b)+G1k]+2×G jk×B/2=712×0.8×[0.15×3.6/(0.8×0.8)+0.5]+2×1×71/2=5490.075kN.m≥3γ0M ok =3×1×4.24=12.72kN.M满足要求!十二、立杆地基基础计算地基土类型素填土地基承载力特征值f ak(kPa) 140立杆垫木地基土承载力折减系数m f 1 垫板底面面积A(m2) 0.15立杆底垫板的底面平均压力p=N/(m f A)=8.099/(1×0.15)=53.994kPa≤γu f ak=1.363×140 =190.82kPa满足要求!。
圆弧梁计算书1、几何参数平面示意图截面尺寸:350x700 M0、M0z及V0−跨中弯矩、扭矩及剪力α=90° R=3.0m β=45°I=bℎ312=350x700312=1x1010mm4a b =hb=2I t=K′hb3=0.229x700x3503=6.87x109mm4λ=EIGI t=3x104x1x10101.2x104x6.87x109=3.62、荷载计算Gk=6.37+8=14.37KN/m qk=4KN/mG/q=3.59>2.8恒荷载起控制作用,q=1.35x14.37+0.98x4=23.32KN/m3、内力计算λ=3.6 α=90° β=90° γ=0°M0=K x qR2=0.273x23.32x32=57.30KN∙mM0z=K Y qR2=0.0663x23.32x32=13.91KN∙mV0=K Z qR=0.526x23.32x3=36.80KN①弯矩计算(1)0<φ<γ(跨中截面)M=M0cosφ=57.30x1=57.30KN∙m M s=M0sinφ=0(2)γ<φ<β(支座截面)M=M0cosφ−qR2(1−cos(φ−γ))=57.30x0−209.88x(1−0)=−209.88KN∙mM s=M0sinφ−qR2((φ−γ)−sin(φ−γ))=57.30x1−209.88x(1.570−1)=−62.33 KN∙m②支座剪力计算V=πRq2=πx3x23.322=109.89KN4、配筋计算(1)跨中截面按矩形单筋梁计算X=ℎ0−√(ℎ02−2Mαf c b )=670−√(6702−2x57.30x10614.3x350)=17.31mmAsn=Xf c bf y=240mm2< Asnmin=0.2%bh=490mm2∴选配420 (As=1257)(2)支座截面按矩形单筋梁计算X=ℎ0−√(ℎ02−2Mαf c b )=670−√(6702−2x209.88x10614.3x350)=65.82mmAsn=Xf c bf y=915mm2> Asnmin=0.2%bh=490mm2截面尺寸计算W t=b26(3h−b)=35026(3x700−350)=3.57x107mm3 Vbℎ0+M s0.8W t=109.89x103350x670+62.33x1060.8x3.57x107=2.65<0.25βc f c=0.25x14.3=3.575∴满足截面要求计算V,M s的剪扭计算面积W t=3.57x107mm3βt=1.51+0.5W t VM s bℎ0=1.51+0.5x3.57x107x109.89x10362.33x106x350x670=1.297>1 取1 V≤(1.5−βt)(0.7f t bℎ0)+f y vA svsℎ0=(1.5−1)(0.7x1.43x350x670)+360x A svsx670A sv s =109.89x103−117367360x670=0.031mm2/mm∴A sv=3.10mm2承受弯剪扭最小配箍率ρsvmin=0.28f tf yv =0.28x1.43360=0.111%A svmin=ρsvmin bs=38.85mm2M s≤βt0.35f t W t+1.2√ξf y v A st1A corsξ=f y A stL Sf yv A st1u cor取1.2A cor=290x240=6.96x104mm2 u cor=2x(290+240)=1060mm62.33x106≤1x0.35x1.43x3.57x107+1.2x√1.2x360A st1x6.96x104sA st1s=1.35mm2/mm取s=100mm A st1=135mm2ξ=360xA stL x100360x135x1060=1.2 得A stL=1717mm2ρstlmin=0.6√M sV r b f tf y=0.6x√31.84x10687.24x103x300x1.43360=0.263%A stLmin=0.263%bt=0.263%x1250x300=987mm2<1717mm2∴取A stL=1717mm2∴剪扭箍筋A sv′’=A sv/2+A st1=136.55mm2选配14@100(4) (As=616)上铁配筋As=915+1717/3=1487.33mm2选配425 (As=1963)抗扭腰筋A stL=17173=572.33mm2选配612 (As=679)。
350×1000梁模板(扣件钢管架)计算书因本工程梁支架高度大于4米,为此计算中还参考了《施工技术》2002(3):《扣件式钢管模板高支撑架设计和使用安全》中的部分内容。
梁段:L1。
一、参数信息1.模板支撑及构造参数梁截面宽度 B(m):0.35;梁截面高度 D(m):1.00;混凝土板厚度(mm):120.00;立杆沿梁跨度方向间距L a (m):0.80;立杆上端伸出至模板支撑点长度a(m):0.30;立杆步距h(m):1.50;板底承重立杆横向间距或排距L b (m):1.00;梁支撑架搭设高度H(m):7.83;梁两侧立杆间距(m):1.00;承重架支撑形式:梁底支撑小楞垂直梁截面方向;梁底增加承重立杆根数:1;采用的钢管类型为Φ48×3;立杆承重连接方式:双扣件,考虑扣件质量及保养情况,取扣件抗滑承载力折减系数:0.85;2.荷载参数新浇混凝土重力密度(kN/m 3):24.00;模板自重(kN/m 2):0.30;钢筋自重(kN/m3):1.50;施工均布荷载标准值(kN/m2):2.5;新浇混凝土侧压力标准值(kN/m2):24.0;振捣混凝土对梁底模板荷载(kN/m2):2.0;振捣混凝土对梁侧模板荷载(kN/m2):4.0;3.材料参数木材品种:杉木;木材弹性模量E(N/mm2):9000.0;木材抗压强度设计值fc(N/mm):10.0;木材抗弯强度设计值fm(N/mm2):11.0;木材抗剪强度设计值fv(N/mm2):1.4;面板材质:胶合面板;面板厚度(mm):18.00;面板弹性模量E(N/mm2):9500.0;面板抗弯强度设计值fm(N/mm2):13.0;4.梁底模板参数梁底方木截面宽度b(mm):50.0;梁底方木截面高度h(mm):100.0;梁底纵向支撑根数:3;5.梁侧模板参数主楞间距(mm):800;次楞根数:7;主楞竖向支撑点数量:2;穿梁螺栓直径(mm):M14;穿梁螺栓水平间距(mm):600;竖向支撑点到梁底距离依次是:200mm,800mm;主楞材料:圆钢管;直径(mm):48.00;壁厚(mm):3.00;主楞合并根数:2;次楞材料:木方;宽度(mm):50.00;高度(mm):100.00;二、梁侧模板荷载计算按《施工手册》,新浇混凝土作用于模板的最大侧压力,按下列公式计算,并取其中的较小值:F=0.22γtβ1β2V1/2F=γH其中 γ -- 混凝土的重力密度,取24.000kN/m 3;t -- 新浇混凝土的初凝时间,取3.000h ;T -- 混凝土的入模温度,取25.000℃;V -- 混凝土的浇筑速度,取1.500m/h ;H -- 混凝土侧压力计算位置处至新浇混凝土顶面总高度,取1.000m ;β1-- 外加剂影响修正系数,取1.200;β2-- 混凝土坍落度影响修正系数,取1.150。
梁木模板与支撑计算书(梁截面350×850)一、梁模板基本参数梁截面宽度 B=350mm,梁截面高度 H=850mm,H方向对拉螺栓1道,对拉螺栓直径12mm,对拉螺栓在垂直于梁截面方向距离(即计算跨度)600mm。
梁模板使用的木方截面50×100mm,梁模板截面侧面木方距离300mm。
梁底模面板厚度h=20mm,弹性模量E=6000N/mm2,抗弯强度[f]=15N/mm2。
梁侧模面板厚度h=20mm,弹性模量E=6000N/mm2,抗弯强度[f]=15N/mm2。
二、梁模板荷载标准值计算模板自重 = 0.340kN/m2;钢筋自重 = 1.500kN/m3;混凝土自重 = 24.000kN/m3;施工荷载标准值 = 2.500kN/m2。
强度验算要考虑新浇混凝土侧压力和倾倒混凝土时产生的荷载设计值;挠度验算只考虑新浇混凝土侧压力产生荷载标准值。
新浇混凝土侧压力计算公式为下式中的较小值:其中c——混凝土的重力密度,取24.000kN/m3;t ——新浇混凝土的初凝时间,为0时(表示无资料)取200/(T+15),取4.500h; T ——混凝土的入模温度,取15.000℃;V ——混凝土的浇筑速度,取2.500m/h;H ——混凝土侧压力计算位置处至新浇混凝土顶面总高度,取0.670m;1——外加剂影响修正系数,取1.200;2——混凝土坍落度影响修正系数,取1.200。
根据公式计算的新浇混凝土侧压力标准值 F1=16.070kN/m2考虑结构的重要性系数0.9,实际计算中采用新浇混凝土侧压力标准值 F1=0.9×16.080=14.472kN/m2考虑结构的重要性系数0.9,倒混凝土时产生的荷载标准值 F2=0.9×4.000=3.600kN/m2。
三、梁底模板木楞计算梁底木方的计算在脚手架梁底支撑计算中已经包含!四、梁模板侧模计算面板直接承受模板传递的荷载,应该按照均布荷载下的连续梁计算,计算如下作用在梁侧模板的均布荷载q=(1.2×14.47+1.40×3.60)×0.85=19.045N/mm面板的截面惯性矩I和截面抵抗矩W分别为:本算例中,截面惯性矩I和截面抵抗矩W分别为:W = 85.00×2.00×2.00/6 = 56.67cm3;I = 85.00×2.00×2.00×2.00/12 = 56.67cm4;(1)抗弯强度计算f = M / W < [f]其中 f ——面板的抗弯强度计算值(N/mm2);M ——面板的最大弯距(N.mm);W ——面板的净截面抵抗矩;[f] ——面板的抗弯强度设计值,取15.00N/mm2;M = 0.100ql2其中 q ——荷载设计值(kN/m);经计算得到 M = 0.100×(1.20×12.301+1.4×3.060)×0.300×0.300=0.171kN.m经计算得到面板抗弯强度计算值 f = 0.171×1000×1000/56667=3.025N/mm2面板的抗弯强度验算 f < [f],满足要求!(2)抗剪计算 [可以不计算]T = 3Q/2bh < [T]其中最大剪力 Q=0.600×(1.20×12.301+1.4×3.060)×0.300=3.428kN截面抗剪强度计算值 T=3×3428.0/(2×850.000×20.000)=0.302N/mm2截面抗剪强度设计值 [T]=1.40N/mm2抗剪强度验算 T < [T],满足要求!(3)挠度计算v = 0.677ql4 / 100EI < [v] = l / 250面板最大挠度计算值 v = 0.677×12.301×3004/(100×6000×566667)=0.198mm面板的最大挠度小于300.0/250,满足要求!五、穿梁螺栓计算计算公式:N < [N] = fA其中 N ——穿梁螺栓所受的拉力;A ——穿梁螺栓有效面积 (mm2);f ——穿梁螺栓的抗拉强度设计值,取170N/mm2;穿梁螺栓承受最大拉力 N = (1.2×14.47+1.40×3.60)×0.85×0.60/1=11.43kN穿梁螺栓直径为12mm;穿梁螺栓有效直径为9.9mm;穿梁螺栓有效面积为 A=76.000mm2;穿梁螺栓最大容许拉力值为 [N]=12.920kN;穿梁螺栓承受拉力最大值为 N=11.427kN;穿梁螺栓的布置距离为侧龙骨的计算间距600mm。
梁板支撑体系计算书一、梁模板计算(以300×900框架梁为例)其传力系统为:现浇砼及施工等荷载、梁底模板、横方木、纵方木、水平钢管、承接层。
1、荷载(底板承受的标准荷载)1)静载模板自重:0.3×0.3=0.09KN/M钢筋砼自重:0.3×0.9×25=6.75KN/M钢筋自重:1.5×0.3×0.9=0.405 KN/M总重:0.09+6.75+0.405=7.25 KN/M2)活载振捣砼动载:2×0.3×0.9=0.54 KN/M3)竖向设计荷载q=18.7×1.2+0.9×1=23.34 KN/M2、内力计算梁静跨8.8m,因跨度校长,按四跨连梁简化计算,按最不利荷载布置,查《建筑施工手册》附录二附表2-14得:Km=-0.121;Kv=-0.62;Kw=0.967。
另模板底横方木间距在250,查《建筑施工手册》表2-54得18mm胶合模板设计强度Fv=1.2N/mm2,Fm=20N/mm2。
弹性模量:E=6500N/mm2。
受力简图如下:①强度验算:M max =2ql K v =-0.121×23.34×0.25²=-0.177KN/m需要截面抵抗矩:W n =mf M =2010177.06⨯=8850mm ³ 选用底板截面为500×18mm ,W n =61bh ²=61×500×18²=27000 mm ³> W n1 可满足要求。
②剪应力验算 V=ql K v =0.62×23.34×0.25=3.62KN剪应力=0.62N/ mm ²< f v =1.2N/mm 2满足要求③刚度验算刚度验算时按标准荷载,同时不考虑振动荷载,所以q=8.04KN/m挠度 ωA =EI ql k m 1004=3418500121650010025004.8967.0⨯⨯⨯⨯⨯⨯=0.45mm <[ω]=400l =400330=0.83mm 可以满足要求。
400X900梁计算书一、 工程参数二、 新浇砼对模板侧压力标准值计算依据《砼结构工程施工规范GB50666-2011》,浇筑速度大于10m/h ,或砼坍落度大于180mm 时,新浇筑砼对模板的侧压力标准值,按下列公式计算:H F c γ==24×0.9=21.6 kN/m 2其中 γc -- 混凝土的重力密度,取24kN/m 3;H -- 混凝土侧压力计算位置处至新浇混凝土顶面总高度,取0.9m ;三、梁侧模板面板验算面板采用木胶合板,厚度为15mm,验算跨中最不利抗弯强度和挠度。
计算宽度取1000mm。
面板的截面抵抗矩W= 1000×15×15/6=37500mm3;截面惯性矩I= 1000×15×15×15/12=281250mm4;(一)强度验算1、面板按三跨连续板计算,其计算跨度取支承面板的次楞间距,L=0.25m。
2、荷载计算新浇筑混凝土对模板的侧压力标准值G4k=21.6kN/m2,砼下料产生的水平荷载标准值Q2K=2kN/m2。
均布线荷载设计值为:q=0.9×(1.35×0.9×21.6+1.4×0.9×2)×1=25.888KN/m3、强度验算施工荷载为均布线荷载:M 1=0.1q1l2=0.1×25.888×0.252=0.16KN·m面板抗弯强度设计值f=12.5N/mm2;σ= Mmax=0.16×106=4.27N/mm2 < f=12.5N/mm2 W 37500面板强度满足要求!(二)挠度验算验算挠度时不考虑可变荷载值,仅考虑永久荷载标准值,故其作用效应的线荷载计算如下:q = 1×21.6=21.6KN/m;面板最大容许挠度值: 250/400=0.63mm;面板弹性模量: E = 4500N/mm2;ν= 0.677ql4=0.677×21.600×2504=0.45mm < 0.63mm 100EI 100×4500×281250满足要求!四、梁侧模板次楞验算次楞采用40×80mm(宽度×高度)方木,间距:0.25m,截面抵抗矩W和截面惯性矩I分别为:截面抵抗矩W =40×80×80/6=42667mm3;截面惯性矩I =40×80×80×80/12=1706667mm4;(一)强度验算1、次楞承受面板传递的荷载,按均布荷载作用下三跨连续梁计算,其计算跨度取主楞间距,L=0.45m。
梁模板(扣件式,梁板立柱共用)计算书计算依据:1、《建筑施工模板安全技术规范》JGJ162-20082、《混凝土结构设计规范》GB 50010-20103、《建筑结构荷载规范》GB 50009-20124、《钢结构设计规范》GB 50017-2003一、工程属性平面图立面图四、面板验算截面抵抗矩:W=bh2/6=350×18×18/6=18900mm3,截面惯性矩:I=bh3/12=350×18×18×18/12=170100mm4q1=0.9×max[1.2(G1k+(G2k+G3k)×h)+1.4Q2k,1.35(G1k+(G2k+G3k)×h)+1.4ψc Q2k]×b=0.9×max[1.2×(0.1+(24+1.5)×0.8)+1.4×2,1.35×(0.1+(24+1.5)×0.8)+1.4×0.7×2]×0.35=9.3 35kN/mq1静=0.9×1.35×[G1k+(G2k+G3k)×h]×b=0.9×1.35×[0.1+(24+1.5)×0.8]×0.35=8.718kN/ mq1活=0.9×1.4×0.7×Q2k×b=0.9×1.4×0.7×2×0.35=0.617kN/mq2=[1×(G1k+(G2k+G3k)×h)]×b=[1×(0.1+(24+1.5)×0.8)]×0.35=7.175kN/m简图如下:1、抗弯验算M max=0.1q1静L2+0.117q1活L2=0.1×8.718×0.22+0.117×0.617×0.22=0.038kN·m σ=M max/W=0.038×106/18900=1.998N/mm2≤[f]=15N/mm2满足要求!2、挠度验算νmax=0.677q2L4/(100EI)=0.677×7.175×2004/(100×5400×170100)=0.085mm≤[ν]=L/40 0=200/400=0.5mm满足要求!3、支座反力计算设计值(承载能力极限状态)R max=1.1q1静L+1.2q1活L=1.1×8.718×0.2+1.2×0.617×0.2=2.066kN标准值(正常使用极限状态)R'max=1.1q2L=1.1×7.175×0.2=1.579kN五、小梁验算面板传递给小梁q1=2.066/0.35=5.903kN/m小梁自重q2=0.9×1.35×(0.3-0.1)×0.2=0.049kN/m梁左侧楼板传递给小梁荷载F1=0.9×max[1.2 ×(0.5+(24+1.1)×0.12)+1.4×2,1.35 ×(0.5+(24+1.1)×0.12)+1.4×0.7×2]×(0.6-0.35/2)/2×0.2+0.9×1.35×0.5×(0.8-0.12)×0.2=0. 351kN梁右侧楼板传递给小梁荷载F2=0.9×max[1.2 ×(0.5+(24+1.1)×0.12)+1.4×2,1.35 ×(0.5+(24+1.1)×0.12)+1.4×0.7×2]×((1.2-0.6)-0.35/2)/2×0.2+0.9×1.35×0.5×(0.8-0.12)×0. 2=0.351kN正常使用极限状态:面板传递给小梁q1=1.579/0.35=4.51kN/m小梁自重q2=1×(0.3-0.1)×0.2=0.04kN/m梁左侧楼板传递给小梁荷载F1=(1×0.5+1×(24+1.1)×0.12)×(0.6-0.35/2)/2×0.2+1×0.5×( 0.8-0.12)×0.2=0.217kN梁右侧楼板传递给小梁荷载F2=(1×0.5+1×(24+1.1)×0.12)×((1.2-0.6)-0.35/2)/2×0.2+1×0.5×(0.8-0.12)×0.2=0.217kN计算简图如下:承载能力极限状态正常使用极限状态1、抗弯验算小梁弯矩图(kN·m)σ=M max/W=0.07×106/42670=1.651N/mm2≤[f]=11.44N/mm2 满足要求!2、抗剪验算小梁剪力图(kN)V max=1.042kNτmax=3V max/(2bh0)=3×1.042×1000/(2×40×80)=0.488N/mm2≤[τ]=1.232N/mm2满足要求!3、挠度验算小梁变形图(mm)νmax=0.068mm≤[ν]=L/400=400/400=1mm满足要求!4、支座反力计算承载能力极限状态R1=0.12kN,R2=1.533kN,R3=1.533kN,R4=0.12kN正常使用极限状态R'1=0.089kN,R'2=1.12kN,R'3=1.12kN,R'4=0.089kN六、主梁验算由上节可知P=max[R1,R2,R3,R4]=1.533kN,P'=max[R1',R2',R3',R4']=1.12 kN主梁计算简图一1、抗弯验算主梁弯矩图一(kN·m)σ=M max/W=0.659×106/4250=155.059N/mm2≤[f]=205N/mm2 满足要求!2、抗剪验算主梁剪力图一(kN)V max=3.879kNτmax=2V max/A=2×3.879×1000/398=19.492N/mm2≤[τ]=125N/mm2满足要求!3、挠度验算主梁变形图一(mm)跨中νmax=0.763mm≤[ν]=L/400=1000/400=2.5mm满足要求!悬臂端νmax=0.431mm≤[ν]=2l2/400=2×300/400=1.5mm满足要求!4、支座反力计算图一:R max=7.711kN用小梁的支座反力分别代入可得:承载能力极限状态图一立柱1:R1=0.604kN,立柱2:R2=7.711kN,立柱3:R3=7.711kN,立柱4:R4=0 .604kN七、扣件抗滑移验算1234c c满足要求!八、立柱验算l0=h=1800mmλ=l0/i=1800/16=112.5≤[λ]=150长细比满足要求!查表得,υ=0.5022、风荷载计算M w=0.9×υc×1.4×ωk×l a×h2/10=0.9×0.9×1.4×0.207×1×1.82/10=0.076kN·m3、稳定性计算根据《建筑施工模板安全技术规范》JGJ162-2008,荷载设计值q1有所不同:1)面板验算q1=0.9×[1.2×(0.1+(24+1.5)×0.8)+1.4×0.9×2]×0.35=8.543kN/m2)小梁验算F1=0.9×[1.2×(0.1+(24+1.1)×0.12)+1.4×0.9×1]×(0.6-0.35/2)/2×0.2+0.9×1.2×0.5×(0.8-0.12)×0.2=0.283kNF2=0.9×[1.2×(0.1+(24+1.1)×0.12)+1.4×0.9×1]×((1.2-0.6)-0.35/2)/2×0.2+0.9×1.2×0.5×(0.8-0.12)×0.2=0.283kNq1=5.415kN/mq2=0.043kN/m同上四~六计算过程,可得:R1=0.548kN,R2=6.866kN,R3=6.866kN,R4=0.548kN立柱最大受力N w=max[R1+N边1,R2,R3,R4+N边2]+0.9×1.2×0.1×(8.75-0.8)+M w/l b=max[0.548+0.9×[1.2×(0.5+(24+1.1)×0.12)+1.4×0.9×1]×(1+0.6-0.35/2)/2×1,6.866,6.8 66,0.548+0.9×[1.2×(0.5+(24+1.1)×0.12)+1.4×0.9×1]×(1+1.2-0.6-0.35/2)/2×1]+0.859+ 0.076/1.2=7.788kNf=N/(υA)+M w/W=7788.093/(0.502×398)+0.076×106/4250=56.863N/mm2≤[f]=205N/mm2满足要求!九、高宽比验算根据《建筑施工扣件式钢管脚手架安全技术规范》JGJ130-2011第6.9.7:支架高宽比不应大于3H/B=8.75/22.73=0.385≤3满足要求,不需要进行抗倾覆验算!十、立柱支承面承载力验算11、受冲切承载力计算根据《混凝土结构设计规范》GB50010-2010第6.5.1条规定,见下表h t0u m =2[(a+h0)+(b+h0)]=800mmF=(0.7βh f t+0.25σpc,m)ηu m h0=(0.7×1×0.858+0.25×0)×1×800×100/1000=48.048kN≥F1=7. 788kN满足要求!2、局部受压承载力计算根据《混凝土结构设计规范》GB50010-2010第6.6.1条规定,见下表c cβl=(A b/A l)1/2=[(a+2b)×(b+2b)/(ab)]1/2=[(300)×(300)/(100×100)]1/2=3,A ln=ab=10000mm 2F=1.35βcβl f c A ln=1.35×1×3×7.488×10000/1000=303.264kN≥F1=7.788kN满足要求!。
梁模板(承插型套扣式)计算书计算依据:1、《混凝土结构设计规范》GB50010-20102、《建筑结构荷载规范》GB 50009-20123、《钢结构设计规范》GB 50017-20034、《建筑施工承插型套扣式钢管脚手架安全技术规程》DBJ15-98-2014、工程属性、荷载设计三、模板体系设计设计简图如下:平面图本图梁侧支撑构it仅作示意, 具体详见梁侧摸板.四、面板验算面板类型覆面木胶合板面板厚度(mm) 18面板抗弯强度设计值[f](N/mm 2)15 面板弹性模量E(N/mm2)10000验算方式三等跨连续梁按三等跨连续梁计算,简图如下:12.631 kN/m 12.631 kN An12.631 kN/m]]]]U [1 v v w 1 ] I [ ] ] [ 1112 3截面抵抗距:W=bh /6=350 X8 X18/6= 18900mm,截面惯性矩:I =3 4bh3/12=350 *8X18X18/12= 170100mm4根据《建筑施工承插型套扣式钢管脚手架安全技术规程》DBJ15-98-2014第4.3节规定可知:q1= Y*max[1.2(G1k+(G2k+G3k) >h)+1.4Q1k,1.35(G1k+(G2k+G3k) X h)+1.4c Q[1k] %=max[1.2 ®.1+(25.5+1.5) 0.9)+1.4 25,1.35 (0.1+(25.5+1.5) 0.9)+1.4 092.5]区35= 12.631kN/m1.35 fG1k+(G2k+G3k)来]为=1.35 卩.1+(25.5+1.5) 0.9]区35= 11.529kN/m1.4 0.9 X Q1k >b= 1.4 *0.92.5 0.35= 1.103kN/mq2= [G1k+(G2k+G3k)来]为=[0.1+(25.5+1.5) 0.9]区35= 8.54kN/m1、抗弯验算2 2 2 2M max= 0.1q1 静L +0.117q活L = 0.1 >11.529 >0.2 +0.117 1.103 0.2 = 0.051kN m0= M max/W = 0.051 106/18900= 2.713N/mm2< [f= 15N/mm2满足要求!2、挠度验算4 4v ax= 0.677q2L /(100EI)=0.677 8.54 200 /(100 10000 >170100)= 0.054mm< [ v] =min [1/150, 10] = min[200/150, 10] = 1.333mm满足要求!3、支座反力计算设计值(承载能力极限状态)R max= 1.1 5静1+1.2 q1 活1 = 1.1 X1.529 >0.2+1.2 *103 >0.2 = 2.801kN标准值(正常使用极限状态)R'max = 1.1q 2l = 1.1 854 &2= 1.879kN五、次楞验算0.512kNI :: 111」I M f 11J I M H1 丄 J til ; rlln 丄,-■,丄丄 M u I M f11 :「丄,--丄 丄 11 JI 、: 11(1)I ; ; I : I I V I 1 1 l V l 1 1 f 1 l v 1 I v l l V I - I ; r I ; - ; I X M r 1 l l I l - rA(1)2(2) ■3 ⑶ 壊— 425~+- —— --------- -----------D.512kN0054kN/maO57kN/m0.054kN/m(3)4253504250 04kN/m承载能力极限状态0.28kN 0.28kN5 4O8kN/m004kN/m正常使用极限状态承载能力极限状态:面板传递给次楞q i = 2.801/0.35= 8.003kN/m次楞自重q2= 1.35 小.3-0.1) 0星=0.054kN/m梁左侧楼板传递给次楞荷载F1 =max[1.2 (0.1+(25.5+1.1) 0.18)+1.4 25, 1.35X(0.1+(25.5+1.1) 0.18)+1.4 09 送.5] (0.6-0.35/2)/2 0.2+<1.35 (X5 09-0.18) 0.40.512kN梁右侧楼板传递给次楞荷载F2=max[1.2 (0.1+(25.5+1.1) 0.18)+1.4 25, 1.35N0.1+(25.5+1.1) 0.18)+1.4 09 2.5] (060.35/2)/2 0.2+1.35 0.5 09-0.18) 0.2= 0.512kN 正常使用极限状态:面板传递给次楞q1= 1.879/0.35= 5.368kN/m次楞自重q2= (0.3-0.1) 0星=0.04kN/m梁左侧楼板传递给次楞荷载F1=(0.1+(25.5+1.1) 0.18) (0.6-0.35/2)/2 0.2+0.5 (0.9-0.18) 0.2= 0.28kN 梁右侧楼板传递给次楞荷载F2=(0.1+(25.5+1.1) 0.18) (0.6-0.35/2)/2 0.2+0.5 (0.9-0.18) 0.2= 0.28kN1、抗弯验算0= M max/W = 0.945 106/83333= 11.341N/mm2< [f= 13N/mm2满足要求!2、抗剪验算次楞剪力图(kN)V max= 1.945kN2 2T ax= 3V max/(2bh o)=3 >1.945 X000/(2 50X100)= 0.583N/mm < [舌].4N/mm 满足要求!3、挠度验算次楞变形图(mm)V ax= 2.097mmC [ min[ 1/150, 10]=min[1200/150, 10]= 8mm满足要求!4、支座反力计算承载能力极限状态R1 = 1.945kN,R2= 1.945kN正常使用极限状态R'1= 1.243kN, R'2= 1.243kN六、主楞验算主楞自重忽略不计,因主楞2根合并,则抗弯、抗剪、挠度验算荷载值取半,计算简图如下:01,9720.9720.9720.972 0.972 0.9720.9720.9720.9720.972 0,9720.9720.9720.9720.9720.9720.9720.9720.972kN主楞计算简图一0.972k 忖主楞计算简图二由上节可知R= max[R i, R2]/2 = 0.972kN, R = max[R i', R2]/2 = 0.622kN1、抗弯验算主楞弯矩图一(kN m)主楞弯矩图二(kN m)尸 M max /W = 0.681 X 06/4490= 151.67N/mm 2 W [f > 205N/mm 2 满足要求!2、抗剪验算主楞剪力图一 (kN)1.SE31 8630391-1 0514^-2.9K-2.9972 43 2.43--- 1.4581.459_ 0.4860.4861 45UM56243 -2.432.9972 9972.025 Z 025 ^^1,0531.053 ^^00810 081 X4^.09L Q ^7OC3-1 86J LbJ0.6G1 0.601020.972Q.97202主楞剪力图二(kN)V max= 2.997kN2 2T ax= 2V max/A=2 >2.997 >1000/424= 14.137N/mm < [舌]25N/mm满足要求!3、挠度验算主楞变形图一(mm)■0.131主楞变形图二(mm)V ax—1.964mmC[ v—min[ 1/150, 10]=min[1200/150, 10]—8mm满足要求!4、支座反力计算承载能力极限状态图一立柱1:R1 —12.798kN,立柱2:R? —12.798kN图二立柱1: R1—1.944kN,立柱2: R2—1.944kN七、可调托座验算可调托座最大受力—1, 2—< —满足要求!h max=max(n h,h'+2a)=max(1.2 x 1200,600+2=1 mm八、立柱验算入=h ax/i=1800/15.9=113.208 < [入]=180长细比满足要求!查《建筑施工承插型套扣式钢管脚手架安全技术规程》DBJ15-98-2014附录A表A.0.1 得,©—0.3862、风荷载计算3稳定性计算2 2M w—Y X 1.4 xx®X a X! /10—1.4 x.9 x.356 X.2 X.2/10—0.078kN mR i = 12.798kN, R2= 12.798kN立柱最大受力N w= max[R i, R2]+1.35 0.15 ©8-0.9)+M w/l b = max[12.798,12.798]+0.587+0.078/1.2= 13.45kNf= N/( © A)+M/W = 13450.137/(0.386 424)+0.078 106/4490= 99.444N/mm2w [f] 2=205N/mm满足要求!九、立杆支承面承载力验算F1=N=13.45kN1、受冲切承载力计算根据《混凝土结构设计规范》GB50100-2010第6.5.1条规定,见下表可得:fh=1, f t=1.43N/mm , n =1 h o=h-2O=38Omm, u m =2[(a+h o)+(b+h o)]=192OmmF=(0.7 i-^f t+0.25 pc,m) n m h o=(O.7 x 1 x 1.43+0.25 x 0) x 1 x 1920 x 380/1000=730.1334NkNW 满足要求!2、局部受压承载力计算根据《混凝土结构设计规范》GB50100-2010第6.6.1条规定,见下表可得:c,陡,1/2 1/2 1/2B=(A b/A i) =[(a+2b)(x+2b)/(ab)] =[(300) (x00)/(100 1x0)] =3,2A in=ab=10000mmF=1.35 ©Bf c A in=1.35 x 1 x 3x 14.3 x 10000/1000=579.15=N3.45F N 满足要求!。
梁模板(扣件式,梁板立柱共用)计算书计算依据:1、《建筑施工脚手架安全技术统一标准》GB51210-20162、《建筑施工扣件式钢管脚手架安全技术规范》JGJ 130-20113、《建筑施工模板安全技术规范》JGJ162-20084、《混凝土结构设计规范》GB 50010-20105、《建筑结构荷载规范》GB 50009-20126、《钢结构设计标准》GB 50017-2017一、工程属性二、荷载设计风荷载参数:三、模板体系设计梁底支撑小梁最大悬挑长度(mm) 200梁底支撑小梁根数 4梁底支撑小梁间距150每纵距内附加梁底支撑主梁根数0结构表面的要求结构表面隐蔽设计简图如下:平面图立面图四、面板验算面板类型覆面木胶合板面板厚度t(mm) 12面板抗弯强度设计值[f](N/mm2) 15 面板抗剪强度设计值[τ](N/mm2) 1.5面板弹性模量E(N/mm2) 5400取单位宽度b=1000mm,按三等跨连续梁计算:W=bh2/6=1000×12×12/6=24000mm3,I=bh3/12=1000×12×12×12/12=144000mm4 q1=γ0×max[1.2(G1k+(G2k+G3k)×h)+1.4Q1k,1.35(G1k+(G2k+G3k)×h)+1.4ψc Q1k]×b=1×max[1.2×(0.1+(24+1.5)×0.9)+1.4×3,1.35×(0.1+(24+1.5)×0.9)+1.4×0.7×3]×1=34.057kN /mq1静=γ0×1.35×[G1k+(G2k+G3k)×h]×b=1×1.35×[0.1+(24+1.5)×0.9]×1=31.118kN/m q1活=γ0×1.4×0.7×Q1k×b=1×1.4×0.7×3×1=2.94kN/mq2=[1×(G1k+(G2k+G3k)×h)]×b=[1×(0.1+(24+1.5)×0.9)]×1=23.05kN/m计算简图如下:1、强度验算M max=0.1q1静L2+0.117q1活L2=0.1×31.118×0.152+0.117×2.94×0.152=0.078kN·m σ=M max/W=0.078×106/24000=3.24N/mm2≤[f]=15N/mm2满足要求!2、挠度验算νmax=0.677q2L4/(100EI)=0.677×23.05×1504/(100×5400×144000)=0.102mm≤[ν]=L/25 0=150/250=0.6mm满足要求!3、支座反力计算设计值(承载能力极限状态)R1=R4=0.4q1静L+0.45q1活L=0.4×31.118×0.15+0.45×2.94×0.15=2.066kNR2=R3=1.1q1静L+1.2q1活L=1.1×31.118×0.15+1.2×2.94×0.15=5.664kN标准值(正常使用极限状态)R1'=R4'=0.4q2L=0.4×23.05×0.15=1.383kNR2'=R3'=1.1q2L=1.1×23.05×0.15=3.803kN五、小梁验算承载能力极限状态:梁底面板传递给左边小梁线荷载:q1左=R1/b=2.066/1=2.066kN/m梁底面板传递给中间小梁最大线荷载:q1中=Max[R2,R3]/b =Max[5.664,5.664]/1= 5.664kN/m梁底面板传递给右边小梁线荷载:q1右=R4/b=2.066/1=2.066kN/m小梁自重:q2=1×1.35×(0.3-0.1)×0.45/3 =0.041kN/m梁左侧模板传递给左边小梁荷载q3左=1×1.35×0.5×(0.9-0.13)=0.52kN/m梁右侧模板传递给右边小梁荷载q3右=1×1.35×0.5×(0.9-0.13)=0.52kN/m梁左侧楼板传递给左边小梁荷载q4左=1×Max[1.2×(0.5+(24+1.1)×0.13)+1.4×3,1.35×(0.5+(24+1.1)×0.13)+1.4×0.7×3]×(0.6-0.45/2)/2×1=1.634kN/m梁右侧楼板传递给右边小梁荷载q4右=1×Max[1.2×(0.5+(24+1.1)×0.13)+1.4×3,1.35×(0.5+(24+1.1)×0.13)+1.4×0.7×3]×((1.2-0.6)-0.45/2)/2×1=1.634kN/m 左侧小梁荷载q左=q1左+q2+q3左+q4左 =2.066+0.041+0.52+1.634=4.26kN/m中间小梁荷载q中= q1中+ q2=5.664+0.041=5.704kN/m右侧小梁荷载q右=q1右+q2+q3右+q4右 =2.066+0.041+0.52+1.634=4.26kN/m小梁最大荷载q=Max[q左,q中,q右]=Max[4.26,5.704,4.26]=5.704kN/m正常使用极限状态:梁底面板传递给左边小梁线荷载:q1左'=R1'/b=1.383/1=1.383kN/m梁底面板传递给中间小梁最大线荷载:q1中'=Max[R2',R3']/b =Max[3.803,3.803]/1= 3.803kN/m梁底面板传递给右边小梁线荷载:q1右'=R4'/b=1.383/1=1.383kN/m小梁自重:q2'=1×(0.3-0.1)×0.45/3 =0.03kN/m梁左侧模板传递给左边小梁荷载q3左'=1×0.5×(0.9-0.13)=0.385kN/m梁右侧模板传递给右边小梁荷载q3右'=1×0.5×(0.9-0.13)=0.385kN/m梁左侧楼板传递给左边小梁荷载q4左'=[1×(0.5+(24+1.1)×0.13)]×(0.6-0.45/2)/2×1=0.7 06kN/m梁右侧楼板传递给右边小梁荷载q4右'=[1×(0.5+(24+1.1)×0.13)]×((1.2-0.6)-0.45/2)/2×1=0.706kN/m左侧小梁荷载q左'=q1左'+q2'+q3左'+q4左'=1.383+0.03+0.385+0.706=2.504kN/m中间小梁荷载q中'= q1中'+ q2'=3.803+0.03=3.833kN/m右侧小梁荷载q右'=q1右'+q2'+q3右'+q4右' =1.383+0.03+0.385+0.706=2.504kN/m 小梁最大荷载q'=Max[q左',q中',q右']=Max[2.504,3.833,2.504]=3.833kN/m为简化计算,按二等跨连续梁和悬臂梁分别计算,如下图:1、抗弯验算M max=max[0.125ql12,0.5ql22]=max[0.125×5.704×0.92,0.5×5.704×0.22]=0.578kN·mσ=M max/W=0.578×106/4110=140.518N/mm2≤[f]=205N/mm2满足要求!2、抗剪验算V max=max[0.625ql1,ql2]=max[0.625×5.704×0.9,5.704×0.2]=3.208kNτmax=V max/(8I zδ)[bh02-(b-δ)h2]=3.208×1000×[40×402-(40-5)×352]/(8×82200×5)=20.614 N/mm2≤[τ]=125N/mm2满足要求!3、挠度验算ν1=0.521q'l14/(100EI)=0.521×3.833×9004/(100×206000×8.22×104)=0.774mm≤[ν]=l1 /250=900/250=3.6mmν2=q'l24/(8EI)=3.833×2004/(8×206000×8.22×104)=0.045mm≤[ν]=2l2/250=2×200/25 0=1.6mm满足要求!4、支座反力计算承载能力极限状态R max=max[1.25qL1,0.375qL1+qL2]=max[1.25×5.704×0.9,0.375×5.704×0.9+5.704×0.2]= 6.417kN同理可得:梁底支撑小梁所受最大支座反力依次为R1=4.792kN,R2=6.417kN,R3=6.417kN,R4=4.7 92kN正常使用极限状态R max'=max[1.25q'L1,0.375q'L1+q'L2]=max[1.25×3.833×0.9,0.375×3.833×0.9+3.833×0.2] =4.312kN同理可得:梁底支撑小梁所受最大支座反力依次为R1'=2.817kN,R2'=4.312kN,R3'=4.312kN,R4'=2. 817kN六、主梁验算主梁自重忽略不计,主梁2根合并,其主梁受力不均匀系数=0.6,则单根主梁所受集中力为Ks×Rn,Rn为各小梁所受最大支座反力1、抗弯验算主梁弯矩图(kN·m)σ=M max/W=0.256×106/4490=57.064N/mm2≤[f]=205N/mm2 满足要求!2、抗剪验算主梁剪力图(kN)V max=3.85kNτmax=2V max/A=2×3.85×1000/424=18.16N/mm2≤[τ]=125N/mm2满足要求!3、挠度验算主梁变形图(mm)νmax=0.119mm≤[ν]=L/250=400/250=1.6mm满足要求!4、支座反力计算承载能力极限状态支座反力依次为R1=0.382kN,R2=7.107kN,R3=7.107kN,R4=0.382kN立杆所受主梁支座反力依次为P1=0.382/0.6=0.637kN,P2=7.107/0.6=11.846kN,P3=7 .107/0.6=11.846kN,P4=0.382/0.6=0.637kN七、可调托座验算荷载传递至立杆方式可调托座可调托座承载力容许值[N](kN) 30扣件抗滑移折减系数k c0.851、扣件抗滑移验算两侧立杆最大受力N=max[R1,R4]=max[0.382,0.382]=0.382kN≤0.85×8=6.8kN单扣件在扭矩达到40~65N·m且无质量缺陷的情况下,单扣件能满足要求!2、可调托座验算可调托座最大受力N=max[P2,P3]=11.846kN≤[N]=30kN满足要求!八、立杆验算1、长细比验算顶部立杆段:l01=kμ1(h d+2a)=1×1.427×(750+2×200)=1641mm非顶部立杆段:l02=kμ2h =1×1.808×1600=2893mmλ=m ax[l01,l02]/i=2893/16=180.812≤[λ]=210长细比满足要求!顶部立杆段:l01=kμ1(h d+2a)=1.155×1.427×(750+2×200)=1895mm 非顶部立杆段:l02=kμ2h =1.155×1.808×1600=3341mmλ=max[l01,l02]/i=3341/16=208.812查表得:φ=0.1672、风荷载计算M wd=γ0×φc×γQ×Mωk=γ0×φc×γQ×(ζ2×ωk×l a×h2/10)=1×0.6×1.4×(1×0.028×0.9×1.62/10)=0.005kN·m3、稳定性计算P1=0.637kN,P2=11.846kN,P3=11.846kN,P4=0.637kN梁两侧立杆承受楼板荷载:左侧楼板传递给梁左侧立杆荷载:N边1=1×max[1.2×(0.5+(24+1.1)×0.13)+1.4×3,1.35×(0.5+(24+1.1)×0.13)+0.7×1.4×3]×(1.2+0.6-0.45/2)/2×0.9=6.177kN右侧楼板传递给梁右侧立杆荷载:N边2=1×max[1.2×(0.5+(24+1.1)×0.13)+1.4×3,1.35×(0.5+(24+1.1)×0.13)+0.7×1.4×3]×(1.2+1.2-0.6-0.45/2)/2×0.9=6.177kNN d=max[P1+N边1,P2,P3,P4+N边2]+1×1.35×0.15×(5.4-0.9)=max[0.637+6.177,11. 846,11.846,0.637+6.177]+0.911=12.757kNf d=N d/(φA)+M wd/W=12756.936/(0.167×398)+0.005×106/4250=193.108N/mm2≤[f]=205N/mm2满足要求!九、高宽比验算根据《建筑施工脚手架安全技术统一标准》GB51210-2016 第8.3.2条:支撑脚手架独立架体高宽比不应大于3.0H/B=5.4/20=0.27≤3满足要求!十、架体抗倾覆验算支撑脚手架风线荷载标准值:q wk=l'a×ωfk=0.9×0.381=0.343kN/m:风荷载作用在支架外侧模板上产生的水平力标准值:F wk= l'a×H m×ωmk=0.9×0.9×0.259=0.21kN支撑脚手架计算单元在风荷载作用下的倾覆力矩标准值M ok:M ok=0.5H2q wk+HF wk=0.5×5.42×0.343+5.4×0.21=6.132kN.m参考《规范》GB51210-2016 第6.2.17条:B2l'a(g k1+ g k2)+2ΣG jk b j≥3γ0M okg k1——均匀分布的架体面荷载自重标准值kN/m2g k2——均匀分布的架体上部的模板等物料面荷载自重标准值kN/m2G jk——支撑脚手架计算单元上集中堆放的物料自重标准值kNb j——支撑脚手架计算单元上集中堆放的物料至倾覆原点的水平距离mB2l'a(g k1+ g k2)+2ΣG jk b j=B2l'a[qH/(l'a×l'b)+G1k]+2×G jk×B/2=202×0.9×[0.15×5.4/(0.9×1.2)+0.5]+2×1×20/2=470k N.m≥3γ0M ok =3×1×6.132=18.397kN.M满足要求!十一、立杆支承面承载力验算支撑层楼板厚度h(mm) 130 混凝土强度等级C30F1=N=12.757kN1、受冲切承载力计算根据《混凝土结构设计规范》GB50010-2010第6.5.1条规定,见下表可得:βh=1,f t=1.115N/mm2,η=1,h0=h-20=110mm,u m =2[(a+h0)+(b+h0)]=840mmF=(0.7βh f t+0.25σpc,m)ηu m h0=(0.7×1×1.115+0.25×0)×1×840×110/1000=72.118kN≥F1=1 2.757kN满足要求!2、局部受压承载力计算根据《混凝土结构设计规范》GB50010-2010第6.6.1条规定,见下表可得:f c=11.154N/mm2,βc=1,βl=(A b/A l)1/2=[(a+2b)×(b+2b)/(ab)]1/2=[(300)×(300)/(100×100)]1/2=3,A ln=ab=10000mm 2F=1.35βcβl f c A ln=1.35×1×3×11.154×10000/1000=451.737kN≥F1=12.757kN满足要求!。
梁模板(承插型套扣式)计算书计算依据:1、《混凝土结构设计规范》GB50010-20102、《建筑结构荷载规范》GB 50009-20123、《钢结构设计规范》GB 50017-20034、《建筑施工承插型套扣式钢管脚手架安全技术规程》DBJ15-98-2014一、工程属性平面图立面图四、面板验算面板类型覆面木胶合板面板厚度(mm) 18面板抗弯强度设计值[f](N/mm2) 15 面板弹性模量E(N/mm2) 10000 验算方式三等跨连续梁截面抵抗距:W=bh2/6=350×18×18/6=18900mm3,截面惯性矩:I=bh3/12=350×18×18×18/12=170100mm4根据《建筑施工承插型套扣式钢管脚手架安全技术规程》DBJ15-98-2014 第4.3节规定可知:q1=γ0×max[1.2(G1k+(G2k+G3k)×h)+1.4Q1k,1.35(G1k+(G2k+G3k)×h)+1.4ψc Q1k]×b=max[1.2×(0.1+(25.5+1.5)×0.9)+1.4×2.5,1.35×(0.1+(25.5+1.5)×0.9)+1.4×0.9×2.5]×0.35=12.631kN/mq1静=1.35×[G1k+(G2k+G3k)×h]×b=1.35×[0.1+(25.5+1.5)×0.9]×0.35=11.529kN/m q1活=1.4×0.9×Q1k×b=1.4×0.9×2.5×0.35=1.103kN/mq2=[G1k+(G2k+G3k)×h]×b=[0.1+(25.5+1.5)×0.9]×0.35=8.54kN/m1、抗弯验算M max=0.1q1静L2+0.117q1活L2=0.1×11.529×0.22+0.117×1.103×0.22=0.051kN·m σ=M max/W=0.051×106/18900=2.713N/mm2≤[f]=15N/mm2满足要求!2、挠度验算νmax=0.677q2L4/(100EI)=0.677×8.54×2004/(100×10000×170100)=0.054mm≤[ν]=min[l/150,10]=min[200/150,10]=1.333mm满足要求!3、支座反力计算设计值(承载能力极限状态)R max=1.1 q1静l+1.2 q1活l=1.1×11.529×0.2+1.2×1.103×0.2=2.801kN标准值(正常使用极限状态)R'max=1.1q2l=1.1×8.54×0.2=1.879kN五、次楞验算次楞类型矩形木楞次楞材料规格(mm) 50×100次楞抗弯强度设计值[f](N/mm2) 13 次楞抗剪强度设计值[τ](N/mm2) 1.4次楞弹性模量E(N/mm2) 9600 次楞截面抵抗矩W(cm3) 83.333次楞截面惯性矩I(cm4) 416.667承载能力极限状态正常使用极限状态承载能力极限状态:面板传递给次楞q1=2.801/0.35=8.003kN/m次楞自重q2=1.35×(0.3-0.1)×0.2=0.054kN/m梁左侧楼板传递给次楞荷载F1=max[1.2 ×(0.1+(25.5+1.1)×0.18)+1.4×2.5,1.35×(0.1+(25.5+1.1)×0.18)+1.4×0.9×2.5]×(0.6-0.35/2)/2×0.2+1.35×0.5×(0.9-0.18)×0.2=0.512kN梁右侧楼板传递给次楞荷载F2=max[1.2 ×(0.1+(25.5+1.1)×0.18)+1.4×2.5,1.35 ×(0.1+(25.5+1.1)×0.18)+1.4×0.9×2.5]×(0.6-0.35/2)/2×0.2+1.35×0.5×(0.9-0.18)×0.2=0.512kN正常使用极限状态:面板传递给次楞q1=1.879/0.35=5.368kN/m次楞自重q2=(0.3-0.1)×0.2=0.04kN/m梁左侧楼板传递给次楞荷载F1=(0.1+(25.5+1.1)×0.18)×(0.6-0.35/2)/2×0.2+0.5×(0.9-0.18)×0.2=0.28kN 梁右侧楼板传递给次楞荷载F2=(0.1+(25.5+1.1)×0.18)×(0.6-0.35/2)/2×0.2+0.5×(0.9-0.18)×0.2=0.28kN1、抗弯验算次楞弯矩图(kN·m)σ=M max/W=0.945×106/83333=11.341N/mm2≤[f]=13N/mm2满足要求!2、抗剪验算次楞剪力图(kN)V max=1.945kNτmax=3V max/(2bh0)=3×1.945×1000/(2×50×100)=0.583N/mm2≤[τ]=1.4N/mm2 满足要求!3、挠度验算次楞变形图(mm)νmax=2.097mm≤[ν]=min[l/150,10]=min[1200/150,10]=8mm满足要求!4、支座反力计算承载能力极限状态R1=1.945kN,R2=1.945kN正常使用极限状态R'1=1.243kN,R'2=1.243kN六、主楞验算主楞类型钢管主楞材料规格(mm) Ф48×3可调托座内主梁根数 2 主楞弹性模量E(N/mm2) 206000 主楞抗弯强度设计值[f](N/mm2) 205 主楞抗剪强度设计值[τ](N/mm2) 125主楞截面惯性矩I(cm4) 10.78 主楞截面抵抗矩W(cm3) 4.49验算方式三等跨连续梁算简图如下:主楞计算简图一主楞计算简图二由上节可知R=max[R1,R2]/2=0.972kN,R'=max[R1',R2']/2=0.622kN1、抗弯验算主楞弯矩图一(kN·m)主楞弯矩图二(kN·m)σ=M max/W=0.681×106/4490=151.67N/mm2≤[f]=205N/mm2 满足要求!2、抗剪验算主楞剪力图一(kN)主楞剪力图二(kN)V max=2.997kNτmax=2V max/A=2×2.997×1000/424=14.137N/mm2≤[τ]=125N/mm2 满足要求!3、挠度验算主楞变形图一(mm)主楞变形图二(mm)νmax=1.964mm≤[ν]=min[l/150,10]=min[1200/150,10]=8mm满足要求!4、支座反力计算承载能力极限状态图一立柱1:R1=12.798kN,立柱2:R2=12.798kN图二立柱1:R1=1.944kN,立柱2:R2=1.944kN七、可调托座验算12满足要求!八、立柱验算h max=max(ηh,h'+2a)=max(1.2×1200,600+2×600)=1800mmλ=h max/i=1800/15.9=113.208≤[λ]=180长细比满足要求!查《建筑施工承插型套扣式钢管脚手架安全技术规程》DBJ15-98-2014附录A表A.0.1得,φ=0.3862、风荷载计算M w=γ0×1.4×ψc×ωk×l a×h2/10=1.4×0.9×0.356×1.2×1.22/10=0.078kN·m3、稳定性计算R1=12.798kN,R2=12.798kN立柱最大受力N w=max[R1,R2]+1.35×0.15×(3.8-0.9)+M w/l b=max[12.798,12.798]+0.587+0.078/1.2=13.45kNf=N/(φA)+M w/W=13450.137/(0.386×424)+0.078×106/4490=99.444N/mm2≤[f]=205N/mm2满足要求!九、立杆支承面承载力验算11、受冲切承载力计算根据《混凝土结构设计规范》GB50100-2010第6.5.1条规定,见下表h t0u m =2[(a+h0)+(b+h0)]=1920mmF=(0.7βh f t+0.25σpc,)ηu m h0=(0.7×1×1.43+0.25×0)×1×1920×380/1000=730.33kN≥F1=13.45kN m满足要求!2、局部受压承载力计算根据《混凝土结构设计规范》GB50100-2010第6.6.1条规定,见下表c cβl=(A b/A l)1/2=[(a+2b)×(b+2b)/(ab)]1/2=[(300)×(300)/(100×100)]1/2=3,A ln=ab=10000mm2F=1.35βcβl f c A ln=1.35×1×3×14.3×10000/1000=579.15kN≥F1=13.45kN满足要求!。