液压自动张紧装置设计
- 格式:doc
- 大小:459.00 KB
- 文档页数:45
DYL型带式输送机液压自动拉紧装置使用说明书徐州五洋科技有限公司目 录产品概述 (1)1 安装手册 (2)1.1 设备安装及连接 (2)1.2 现场调试 (3)2 使用手册 (6)2.1 工作原理 (6)2.2 主要技术参数 (7)2.3 操作规程 (8)3 维护手册 (9)3.1维护和维修 (9)3.2 注意事项 (9)4 附电控系统原理图 (11)产 品 概 述带式输送机自控液压拉紧装置是根据我国带式输送机的特点,吸取世界工业发达国家的先进技术,考虑带式输送机在工作时所需拉紧力不同,经合理的张力模型分析研究而设计的。
本拉紧装置的特点是:(1)改善带式输送机工作时输送带的动态受力效果,特别是输送带受到突变载荷时效果尤其明显。
(2)响应快。
带式输送机起动时,输送带松边会突然松弛伸长,引起“打带”、冲击等现象。
此时,拉紧装置能迅速收缩油缸,及时吸收输送带的伸长,从而大大缓和了输送带的载荷冲击,使起动过程平稳,避免发生撕、断带事故。
(3)具有断带时自动提供断带信号的保护功能。
(4)结构紧凑,占地面积小,便于安装使用。
(5)可与集控系统连接,实现整个系统的集中控制。
带式输送机自控液压拉紧装置于1992年通过原煤炭部级鉴定,现已形成系列,并已全面推广应用。
1994年获原煤炭部科技进步三等奖,1996年被原煤炭部列为重点推广项目,1999年获教育部(原国家教委)科技进步三等奖。
DYL型自控液压拉紧装置适用于长距离带式输送机的张紧,主要由拉紧油缸、液压泵站、蓄能站、电气控制开关和拉紧附件等五大部分组成。
其中液压泵站、蓄能站和电气控制开关不需要做地基,仅要求安放地点不落物料和水即可。
1 安装手册1.1 设备安装及连接本设备初次安装调试前,用户应做好以下工作:①应准备好所需地脚螺栓、螺母以及钢丝绳、绳卡等;②准备好设备运行所需液压油(按照表1.1)。
(1)机械安装:包括油缸支座及油缸、固定绳座等,注意:油缸支座与固定绳座应能承受相应的拉力;拉紧钢丝绳的缠绕及固定,应在油缸往复动作数次后进行,以便于排出油缸内部的气体。
AHD型带式输送机全自动液压张紧装置(比例型)安装使用说明书徐州中国矿业大学科技发展总公司引言■感谢选用AHD比例控制型带式输送机全自动液压张紧装置.■为保证安全、可靠的使用本产品,在安装、调试及使用本设备之前,应仔细阅读本安装使用说明书。
■操作及维护人员均需经过专门的培训后,方可使用本设备。
未经培训擅自操作、维修本设备,有可能造成设备的损坏,甚至造成人身伤害。
■本使用说明书与所供设备配套使用。
未经同意,任何单位和个人不得转载.目录一. 概述 (3)二。
张紧装置工作方式(控制方式) (4)三。
调试前准备工作 (5)四. 张紧装置调试及试运行 (6)五. 运行参数设定及操作 (10)六. 手动备用系统工作 (12)七. 张紧装置卸载 (12)八。
日常维护及保养 (13)九。
故障及维修 (14)十. 注意事项 (16)十一。
附图 (17)十二。
附件 (20)一、概述AHD比例控制型全自动液压张紧装置是带式输送机胶带张紧的理想配套设备,它替代了原有的固定绞车张紧、重锤张紧,成为新一代的胶带张紧设备。
从技术上看,全自动液压张紧装置的发展经历了三个阶段:继电器控制、PLC(可编程控制器)控制和比例控制。
AHD比例控制型全自动液压张紧装置是在原有的第一、二代产品基础上,开发的智能型比例控制液压张紧装置。
该产品除具有一般液压张紧装置的响应快、避免起动时胶带的“打带、飘带、打滑”现象、减小紧边冲击等特点外,还具有以下特点:1.技术先进性方面采用先进的比例控制技术及PLC(可编程控制器)控制技术,对张紧力进行有效地控制,克服了以往各种液压张紧装置存在的不足,最大限度地满足输送机运行时不同工况对胶带张紧力的要求。
主要体现在:●真正实现(满足)启动张紧力为运行张紧力1.4~1.5倍的要求;●采用液压比例控制技术,具有较高的张紧力控制精度;●采用液晶输入、输出控制面板,利用文本显示器上的按键进行张紧力大小设定,具有很高的重复性精度及方便的可调节性能;●可根据输送机对胶带张紧力的需要,在一定范围内设定和调整输送机启动工况、运行工况和停机工况等张紧力的大小,满足输送机多种运行工况对张紧力的要求;●输送机启动后,张紧力按照控制规律,由启动张紧力连续、平缓地降为运行张紧力(实现张紧力的柔性转换),确保胶带在理想状态下运行,减小胶带的冲击,提高胶带使用寿命;●该装置设置现场、远程两种控制方式.现场控制方式方便设备安装、调试及检修;远程控制方式用于正常生产,在这种控制方式下,张紧装置与输送机集中控制实现信号交接,实现对张紧装置的远程自动控制。
皮带机液压自动张紧装置结构和液压系统设计摘要:设计一种用于带式输送机的液压自动张紧装置,分析了其他张紧装置的优缺点的同时,认为此种液压自动张紧装置具有工作较平稳、对空间要求低、性能可靠等优点,是一种较先进、较完善、适合于大型带式输送机的张紧装置。
根据要求,本文分三部分(张紧装置的总体结构设计、张紧装置的液压系统设计与计算、张紧油缸的设计与计算)对此种液压自动张紧装置进行了分析;同时,利用绘图软件Auto CAD2004绘制了结构布置图、系统原理图、零件图及装配图等。
关键词:皮带机;自动张紧装置;液压系统;张紧液压缸;慢速绞车第1章概述1.1 带式输送机简述带式输送机,又称胶带输送机,现场俗称“皮带”。
它是冶金、电力和化工等工矿企业常见的连续动作式运输设备之一,尤其在煤炭工业中,使用更为广泛。
在煤矿上,带式输送机主要用于采区顺槽、采区上(下)山、主要运输平巷及斜井,较常用于地面生产和选煤厂中。
带式输送机的工作原理带式输送机的结构示意图如图1-1所示,输送带绕经驱动滚筒①和机尾换向滚筒⑤形成无机闭合带。
上下两股输送带是由安装在机架上的托辊③支承着。
拉紧装置的作用是给输送带正常运转所需要的张紧力。
工作时,驱动滚筒通过它与输送带之间的摩擦力驱动输送带运行。
货载装载输送带上并与其一起运行。
带式输送机一般是利用上分支输送带输送货载的,并且在端部卸载。
利用专门的卸载装置也可在中间卸载。
带式输送机的构成及特点1.带式输送机的构成带式输送机主要由输送带、驱动装置、托辊及支架、拉紧装置、制动装置、储带装置和清扫装置组成。
如图1-2为SSJ系列可伸缩带式输送机;如图1-3为带式输送机的局部图如图1-4为TD75型通用固定带式输送机。
2.带式输送机特点带式输送机铺设倾角一般为16°~ 18°,一般向上运输取较大值,向下运输取较小值。
带式输送机能力大、调度组织简单、维护方便,因而运营费低。
此外,结构简单、运行平稳可靠、运行阻力小、耗电量低、容易实现自动化也是它的特点。
DYL型自控液压拉紧装置使用说明书徐州五洋科技有限公司目录一、概述 (1)二、工作原理 (1)三、主要技术参数 (3)四、设备安装及连接 (4)五、现场调试步骤 (3)六、操作规程 (5)七、维护和维修 (6)八、其它 (7)九、附录附录一电控系统原理图附录二电气外围信号接线图附录三液压拉紧装置推荐用液压油附录四电控系统面板布置图第1 页一、概述带式输送机液压自动拉紧装置是根据我国散料运输特点,吸取世界工业发达国家的先进技术,考虑输送带在起动和正常运行时所需拉紧力不同,确定合理的张力模型而设计的。
本拉紧装置的特点是:(1)改善带式输送机运行时胶带的动态受力效果,特别是胶带受到突变载荷时尤其明显;(2)起动和各种工况的不同拉紧力,可以根据带式输送机的实际需要任意调节(其调节范围由所选拉紧装置的型号规格确定)。
系统一旦调定后,即按预定的程序自动工作,使输送机处在理想的工作状态下运行,大大改善输送带的受力状况。
(3)响应快。
由于输送机起动时,输送带松边会突然松弛伸长,引起“打带”、冲击现象。
此时,拉紧装置能迅速收缩油缸,及时吸收输送带的伸长,从而大大缓和了输送带的冲击,使起动过程平稳,避免发生断带事故。
(4)具有断带时自动停止输送机的保护功能。
(5)结构紧凑,安装空间小,便于使用。
带式输送机液压自动拉紧装置于1992年通过部级鉴定,现已形成系列,并已全面推广应用。
1994年获原煤炭工业部科技进步三等奖,1999年获教育部(原国家教委)科技进步三等奖,1996年被原煤炭部列为重点推广项目。
DYL型液压自动拉紧装置适用于长距离带式输送机的张紧,主要由拉紧油缸、液压泵站、蓄能站、地面PLC型智能型控制开关和拉紧附件等五大部分组成。
其中液压泵站、蓄能站和地面PLC型智能控制开关不需要做地基,仅要求安放地点不落物料和水即可。
二、工作原理图1为DYL的液压系统原理图及拉紧油缸与拉紧小车连接关系示意图。
为满足带式输送机对各种工况拉紧力变化大的要求,液压系统可相应地提供多点张力,而溢流阀3设定为安全压力。
带式输送机液压紧装置说明书目录1 概述1.1液压绞车式自动紧装置能够满足的功能 (4)1.2输送机及紧装置基本的布置形式 (4)2 主要设计参数及方案确定2.1 主要设计要求 (4)2.2 方案选定 (5)2.3 确定系统主要参数 (6)2.4 液压缸的主要参数 (7)2.5 液压缸的类型和安装形式 (10)2.6 活塞杆的设计 (10)2.7密封圈、防尘圈的选用 (14)3 确定液压泵及配套电机3.1 液压泵的选用 (14)3.2 液压泵的分类 (14)3.3选用液压泵的原则和根据 (15)3.4 液压泵的主要性能参数 (15)3.5 电动机的选用 (16)4 确定液压系统元件、辅件4.1液压系统中液压元件选取 (17)4.2过滤器的选用 (20)4.3 液压管路的设计 (21)4.4 蓄能器的选用 (22)5 油箱的设计5.1油箱的用途和分类 (23)5.2油箱的构造和设计要点 (24)5.3油箱容积确定 (25)6 液压工作介质的选用6.1对液压工作介质的主要要求 (26)7 液压系统的安装、使用和维护7.1 液压系统的安装 (27)7.2 液压元件的安装 (31)7.3管路的安装与清洗 (32)7.4 试压 (32)7.5 调试 (32)7.6 系统的使用和维护 (33)7.7 液压系统常见故障诊断与排除 (35)结论 (36)参考文献 (36)1 概述1.1液压绞车式自动紧装置能够满足的功能:(1)启动时紧力和稳定运行时紧力可根据带式输送机力的需要任意调节。
(启动时紧力是运行紧力的 1.1----1.5倍)一旦调定后,按预定的程序自动工作可保证输送带在各种工况下受力最小;(2)响应速度快。
带式输送机启动速度快,液压绞车式自动紧装置能够及时补偿输送带和吸收波动能量,使靠近驱动滚筒下分支输送带由于突然松弛伸长而引起的弹性震动大大降低,减少打滑和断带事故的发生;(3)结构紧凑,安装方式灵活,所需安装空间小,取消煤矿井下为放置紧装置专设的硐室,大大节约基建投资。
皮带输送机3种张紧装置介绍、区别及适应条件分析皮带输送机是矿井常用的连续运输设备,具有运输能力强、运行平稳、结构简单等优点。
随着大型、超大型矿山的建设,大功率、高运量、智能化、高转速的皮带输送机运用使用也更为普遍。
为了保证输送机胶带在启动、运行以及制动过程中可以平稳进行,张紧装置需要给胶带一定的张紧力,保证胶带与驱动滚筒间有足够的摩擦力,使得胶带不打滑;同时胶带在托辊间的下垂量应符合要求。
01皮带输送机对张力要求皮带输送机保持正常运行,施加给胶带的张力应满足下垂量、稳定性以及张力变化要求。
1.1 下垂量为了满足皮带输送机在动力传输以及胶带下垂量要求,设备在启动时张力值约为平稳运行时张力值的1.3~1.5倍。
1.2 稳定性皮带输送机稳定运行之后,胶带受到的张力值会较启动时显著降低,并趋于稳定。
1.3 张力变化皮带输送机的运输量随时发生变化,胶带的张力值也随之变化。
输送机空载时胶带的张力较小,重载时张力显现增加。
02张紧装置主要类型常用的张紧装置有液压自动张紧装置、固定式张紧装置、可移动张紧装置等类型,不同类型装置具有不同的使用特点。
2.1 液压自动张紧装置设备的主要结构如图1所示,主要设备有电动绞车、张紧滚筒、液压泵站等,具体的工作原理为:当皮带输送机胶带张力增加或者降低时,油缸内的油压会随之增大或者降低,进而压力传感器发出监测信号、液压系统根据传感器监测压力变化按照预先设定程序做出回应,控制活塞杆移动,保证输送机胶带的张力;当皮带输送机胶带的张力值降低到最小设定值时,油缸内的压力值降低,传感器发出信号,液压泵站自动的向油缸的前部补充液压油,活塞杆向后缩回,胶带张紧。
液压自动张紧装置具有响应速度快、启动平稳、输送机胶带张力波动小、可靠性高等特点,是国内井下皮带输送机应用较为广泛的一种张紧设备。
2.2 固定式张紧装置固定式张紧装置可以具体细分为固定绞车张紧以及固定螺旋张紧两种类型。
其中螺旋固定张紧装置采用螺旋丝杠拉动张紧滚筒移动,但是张紧行程较短,仅仅适用于长度在100m以内的小型皮带输送机使用。
皮带机液压自动张紧装置结构和液压系统设计目录前言......................................................... - 1 - 摘要.............................................. 错误!未定义书签。
Abstract ............................................ 错误!未定义书签。
第1章概述...................................... 错误!未定义书签。
1.1 带式输送机简述.................................. 错误!未定义书签。
1.1.1带式输送机的工作原理 .......................... 错误!未定义书签。
1.1.2带式输送机的构成及特点 ........................ 错误!未定义书签。
1.2 带式输送机张紧装置简述.......................... 错误!未定义书签。
1.2.1 带式输送机张紧装置的作用和类型................ 错误!未定义书签。
1.2.2 现有带式输送机张紧装置的原理及特点............ 错误!未定义书签。
1.2.3 带式输送机液压张紧装置........................ 错误!未定义书签。
第2章皮带运输机液压自动张紧装置的总体结构......... 错误!未定义书签。
2.1皮带运输机张紧装置的总体结构的确定 .............. 错误!未定义书签。
2.1.1总体结构各部件的确定 .......................... 错误!未定义书签。
2.1.2 连接各部件并绘制系统结构布置简图.............. 错误!未定义书签。
2.2绘制张紧装置的系统结构布置简图 .................. 错误!未定义书签。
液压张紧装置设计
液压张紧装置主要用于对物体进行张紧或拉伸,通常由电动泵、油缸、油管等组成。
设计液压张紧装置需要考虑以下因素:
1. 动力来源:可以使用电动泵或手动泵,电动泵具有自动,快速,省力的特点,而手动泵则较为简单,成本更低。
2. 油缸性能:油缸的直径和行程需要根据所需的张紧力和需要
调节的距离来确定。
3. 油管:油管应选用高压耐压材料,选用适当的管径和壁厚以
保证压力传递的安全性和稳定性。
4. 液压阀门:选用适当的液压阀门可以控制油液的流量和压力,保证液压系统的运行稳定性。
5. 控制系统:需要通过控制电子或机械装置来调整液压张紧装
置的工作状态,控制液压压力、流量和方向。
6. 安全保护:在液压系统中需要设置安全阀、压力表等装置,
以保证系统的安全运行。
7. 材料选择:由于液压张紧装置承受的是高压力的作用,所以
其所使用的材料需要具有强度和韧性,通常选用优质的钢材。
以上是设计液压张紧装置时需要考虑的主要因素,设计时需要
根据实际情况和需求来具体确定。
带式输送机液压紧装置说明书目录1 概述1.1液压绞车式自动紧装置能够满足的功能 (4)1.2输送机及紧装置基本的布置形式 (4)2 主要设计参数及方案确定2.1 主要设计要求 (4)2.2方案选定 (5)2.3确定系统主要参数 (6)2.4液压缸的主要参数 (7)2.5液压缸的类型和安装形式 (10)2.6活塞杆的设计 (10)2.7密封圈、防尘圈的选用 (14)3 确定液压泵及配套电机3.1液压泵的选用 (14)3.2液压泵的分类 (14)3.3选用液压泵的原则和根据 (15)3.4液压泵的主要性能参数 (15)3.5电动机的选用 (16)4 确定液压系统元件、辅件4.1液压系统中液压元件选取 (17)4.2过滤器的选用 (20)4.3液压管路的设计 (21)4.4蓄能器的选用 (22)5 油箱的设计5.1油箱的用途和分类 (23)5.2油箱的构造和设计要点 (24)5.3油箱容积确定 (25)6 液压工作介质的选用6.1对液压工作介质的主要要求 (26)7 液压系统的安装、使用和维护7.1液压系统的安装 (27)7.2液压元件的安装 (31)7.3管路的安装与清洗 (32)7.4试压 (32)7.5调试 (32)7.6系统的使用和维护 (33)7.7液压系统常见故障诊断与排除 (35)结论 (36)参考文献 (36)1概述1.1液压绞车式自动紧装置能够满足的功能:(1)启动时紧力和稳定运行时紧力可根据带式输送机力的需要任意调节。
(启动时紧力是运行紧力的1.1----1.5 倍)一旦调定后,按预定的程序自动工作可保证输送带在各种工况下受力最小;(2)响应速度快。
带式输送机启动速度快,液压绞车式自动紧装置能够及时补偿输送带和吸收波动能量,使靠近驱动滚筒下分支输送带由于突然松弛伸长而引起的弹性震动大大降低,减少打滑和断带事故的发生;(3)结构紧凑,安装方式灵活,所需安装空间小,取消煤矿井下为放置紧装置专设的硐室,大大节约基建投资。
DYL型带式输送机液压自动拉紧装置使用说明书徐州五洋科技有限公司目 录产品概述 (1)1 安装手册 (2)1.1 设备安装及连接 (2)1.2 现场调试 (3)2 使用手册 (6)2.1 工作原理 (6)2.2 主要技术参数 (7)2.3 操作规程 (8)3 维护手册 (9)3.1维护和维修 (9)3.2 注意事项 (9)4 附电控系统原理图 (11)产 品 概 述带式输送机自控液压拉紧装置是根据我国带式输送机的特点,吸取世界工业发达国家的先进技术,考虑带式输送机在工作时所需拉紧力不同,经合理的张力模型分析研究而设计的。
本拉紧装置的特点是:(1)改善带式输送机工作时输送带的动态受力效果,特别是输送带受到突变载荷时效果尤其明显。
(2)响应快。
带式输送机起动时,输送带松边会突然松弛伸长,引起“打带”、冲击等现象。
此时,拉紧装置能迅速收缩油缸,及时吸收输送带的伸长,从而大大缓和了输送带的载荷冲击,使起动过程平稳,避免发生撕、断带事故。
(3)具有断带时自动提供断带信号的保护功能。
(4)结构紧凑,占地面积小,便于安装使用。
(5)可与集控系统连接,实现整个系统的集中控制。
带式输送机自控液压拉紧装置于1992年通过原煤炭部级鉴定,现已形成系列,并已全面推广应用。
1994年获原煤炭部科技进步三等奖,1996年被原煤炭部列为重点推广项目,1999年获教育部(原国家教委)科技进步三等奖。
DYL型自控液压拉紧装置适用于长距离带式输送机的张紧,主要由拉紧油缸、液压泵站、蓄能站、电气控制开关和拉紧附件等五大部分组成。
其中液压泵站、蓄能站和电气控制开关不需要做地基,仅要求安放地点不落物料和水即可。
1 安装手册1.1 设备安装及连接本设备初次安装调试前,用户应做好以下工作:①应准备好所需地脚螺栓、螺母以及钢丝绳、绳卡等;②准备好设备运行所需液压油(按照表1.1)。
(1)机械安装:包括油缸支座及油缸、固定绳座等,注意:油缸支座与固定绳座应能承受相应的拉力;拉紧钢丝绳的缠绕及固定,应在油缸往复动作数次后进行,以便于排出油缸内部的气体。
带式输送机全自动液压张紧装置设计带式输送机的张紧装置主要用于调整输送带的紧度,以保证带式输送机的正常运行。
传统的张紧装置多采用手动、半自动的方式,操作繁琐且易出错。
为了提高带式输送机的自动化程度和工作效率,设计带式输送机全自动液压张紧装置是一种较好的选择。
1.液压系统设计:液压系统是带式输送机液压张紧装置的核心部分,主要包括液压泵站、油箱、压力阀、液压缸等。
需要根据输送带的长度和重量、运行速度等参数确定液压系统的工作压力和流量,保证系统能够提供足够的力和速度来实现张紧操作。
2.张紧装置设计:张紧装置主要由液压缸、张紧轮和张紧杆组成。
液压缸通过液压系统提供的液压力推动张紧轮向带式输送机的主传动轴施加张紧力,从而实现对输送带的张紧。
张紧杆用于调整张紧力的大小和位置,可根据实际需要进行调整。
3.控制系统设计:控制系统是带式输送机全自动液压张紧装置的重要组成部分,主要用于控制液压系统的工作状态和操作过程。
可以采用PLC、传感器和执行器等设备来实现对液压系统的控制,根据预设的参数和程序来实现自动张紧操作,以及故障诊断和报警功能。
4.安全保护设计:在设计带式输送机全自动液压张紧装置时,应考虑到安全保护的需求。
可以设置液压系统压力、温度和液位等传感器,并配备相应的保护装置,如压力继电器、温度继电器、液位开关等。
同时,还应考虑到现场操作的安全性,设计安全隔离装置和紧急停机装置,以防止人员误操作和事故发生。
带式输送机全自动液压张紧装置的设计需要综合考虑机械工艺、液压原理、自动控制和安全保护等方面的知识和技术,同时还需要根据具体的工况和要求进行合理的选择和布局。
只有设计合理、可靠性好的全自动液压张紧装置才能确保带式输送机的正常运行和长时间稳定工作。
目录摘要 (Ⅰ)Abstract (Ⅱ)第1章绪论.......................... 错误!未定义书签。
1.1 输送机自动张紧装置的一般概念. 错误!未定义书签。
1.2 输送机张紧装置的分类 ......... 错误!未定义书签。
1.3 液压自动张紧装置与其它张紧装置的类比 (2)第2章总体设计 (3)2.1 设计任务 (3)2.2 设计方案的确定 (3)2.2.1 液压自动张紧装置的特点 (3)2.2.2 液压张紧系统工作原理 (3)2.2.3 总体设计方案的确定 (5)第3章各元件的确定 (6)3.1 油缸的选择和计算 (6)3.2 液压油液的功能和基本要求 (7)3.3 液压泵的选择及计算 (9)3.4 电动机的确定 (9)3.5 各种阀类的选择 (10)3.5.1 电磁换向阀的选择 (10)3.5.2 溢流阀的选择 (11)3.5.3 压力继电器的选择 (12)3.5.4 压力表的选择 (13)3.5.5 滤油器的选择 (14)3.5.6 蓄能器的选择 (15)3.5.7 伺服阀的选择 (16)3.5.8 液控单向阀的选择 (18)3.6 其它元件的选择 (20)3.6.1 滑轮的选择 (20)3.6.2 钢丝绳的选取 (20)3.6.3 液压泵站的选择与安装 (20)第4章管路的设计 (22)4.1 管路的确定 (22)4.2 吸油管的设计 (22)4.3 压油管的设计 (23)4.4 液压系统中的压力损失验算 (23)第5章主要部件的设计计算及强度校核 (26)5.1 油缸后的支座的设计及强度校核 (26)5.2 液压缸活塞杆上的耳环的设计及强度设计 (27)第6章设计分析 (29)结论 (31)致谢 (32)参考文献 (33)专题 (34)附录1 (42)附录2 (49)摘要输送机时橡胶和纤维织品两者复合而成的制品,在应用中的重锤张进装置,在运行一段时间后,重锤会自动下降一段距离,使输送带变长。
这说明输送带发生了蠕变,在启动、制动过程中也会产生蠕变现象。
此时张紧装置就必须进一步收缩才不会发生打滑现象。
由此可见,张紧装置是保证带式输送机正常运转必不可少的重要部件。
该论文主要介绍了带式输送机的自动张紧装置的设计过程,详细的介绍了各个液压元件的选取。
自动张紧装置的设计是张紧装置的设计的一个重大变革。
关键词:自动张紧装置带式输送机液压张紧系统AbstractThis paper mainly introduced based on the PRO—ENGINEERING three dimensional entity design software to the Y0X500 model fluid strength coupler design and the assistance manufacture process; Has in detail given the fluid strength coupler shaping process aswell as utilizes PRO—ENGINEERING to the fluid strength coupler spare part design and the assembly process, utilized the PRO—ENGINEERING grass in the design process to draw, modules fully and so on components, assembly, engineering plat as well as movement simulation, basically has realized the design ingenio us, convenient quickly, the efficiency and the reliability higher the merit which could not achieve in the traditional design process. Next, this article also elaborated very much about the fluid strength coupler aspect comprehensive knowledge.Key word:The fluid strength coupler module limits the moment operational factor assembly constrained motion simulationI第1章绪论带式输送机主要用于输送煤炭、矿石、沙石、谷物等散装物料。
其在连续装卸条件下能实现连续运输,所以生产率较高;另外皮带传送机结构简单,设备费用低;工作平稳可靠、噪音小,输送距离长,输送量大,能源消耗少;同时可在皮带的任意位置加料或卸料,容易实现倾斜输送。
其应用范围相当广泛,遍及矿山、冶金、化工、建筑、轻工、港口和车站货场。
而拉紧装置是带式传送机不可缺少的重要组成部分,它直接关系到带式传送机的安全运行及使用寿命,对于大运量、长距离等大型带式传送机而言更是如此。
到目前为止,在社会生产中有多种皮带拉紧装置得到应用。
以往煤矿井下用带式传送机一般均采用固定绞车拉紧或重锤拉紧,很少见到别的类型。
由于固定绞车拉紧装置只能定期张紧皮带,而皮带的张紧程度往往与操作者的经验有关,经常出现张紧力过大或者过小,并且直接影响到带式传送机的冲击动负荷,所以固定绞车拉紧装置对于传送机的安全及平稳运行极为不利。
因此,我们有必要研制成一种自动型的张紧装置来实现输送机的张紧过程。
1.1 输送机自动张紧装置的一般概念自动张紧装置属是保证带式输送机正常工作的重要部件,可自动地对输送机张力进行实时控制满足带式输送机正常运行的要求。
即改善带式输送机的起、制动性能,提高整机运行的可靠性,在不同的使用条件下,可以保证胶带具有最合理的张力。
1.2输送机张紧装置的分类张紧装置可分为固定式张紧装置和自动式张紧装置两大类。
(1)固定式张紧装置。
固定式张紧装置分重锤式张紧装置和刚性张紧装置。
重锤式、水箱式都属于重力张紧装置。
重历式张紧装置始终使输送带初拉力保持恒定,在启动制动时会产生上下振,但惯性力很快消失。
刚性张紧装置有螺旋张紧、手动或电动张紧装置等几种,它们的张紧力是固定不变的,不能自动调整,在安装后,张紧一次可运行一段时间,但还要收紧一次,以消除蠕变。
(2)自动式张紧装置。
自动测力张紧装置以张紧力作为反馈信号随时间变化设定拉力,进行比较,并随时调整张紧装置的该向滚筒的位移。
如启动时会自动加大张紧力,运输时恢复恒定拉力,对延长输送带寿命十分有利。
1.3液压自动张紧装置与其它张紧装置的类比液压式自动张紧装置与机械、电力、气压传动相比,其特点:(1)液压传动装置能在运行过程中进行无级调速,调速范围较大。
(2)在同样功率情况下,液压传动装置的体积小、质量轻、惯性小、结构紧凑,且能传递较大的力和转矩。
(3)液压传动装置工作较平稳、反映快、冲击小,可以高速启动、制动及换向,操作简单方便。
(4)液压传动装置省力,易实现自动化。
(5)液压传动易于实现过载保护,可以自动润滑,因此使用寿命较长。
(6)液压传动装置可以很简单的实现直线运动和回转运动,其布置也具有很大的灵活性。
(7)液压传动装置由于其元件实现了系列化、标准化、通用化,容易设计制造和推广运用。
(8)在液压传动装置中,因功率损失等原因所产生的热量可以由流动着的油液带走,因此避免了局部温升现象。
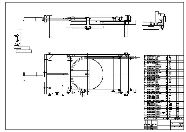
1第2章总体设计2.1 设计任务参数设定及工况分析设:张紧行程L=2m,活塞杆运动速度v=4m/min。
DT-Ⅱ型带式输送机的T3=2460.72N,T4=2559.15,每天工作22h,停车2h,全年工作360天,每天停机两次。
张紧装置在驱动滚筒之后,所以张紧力F= T3+T4,这个张紧力是只考虑带式输送机在满载正常运行情况下的张紧力。
当启动时,所需要的输送带的张紧力启F=1.5F用公式表示为:F= T3+T4=2460.72+2559.15=10.19kNF其=1.5F=75.29kN2.2 设计方案的确定2.2.1 液压自动张紧装置的特点液压自动张紧装置的工作过程中,由于张紧力在输送机启动时和正常运行时不同,这就要求液压系统必须能够在两种压力下工作。
在带式输送机运料的过程中由于负荷或其它原因引起输送带拉力增大、减小,液压系统就会自动调节张紧力,保证输送带正常工作。
2.2.2 液压张紧系统工作原理皮带式传送机在启动时和稳定运行时对皮带的张力要求是不同的,启动时所需要的张力大约是稳定运行时所需要的张力的 1.5 倍。
这就需要液压系统能在两级工作压力下工作,一个是启动压力,另一个是稳定运行时压力,前者约为后者的 1.5 倍。
系统工作原理图如下:1.2. 溢流阀 3. 电磁换向阀 4. 伺服阀 5. 液压缸6. 压力表 7. 力传感器 8. 拉紧小车 9. 压力继电器 10. 液控单向阀 11. 蓄能器 12. 液压泵 13. 电动机 14. 单向阀 15. 过滤器本方案采用一个直动溢流阀 2 和一个叠加溢流阀并联来实现这个目的。
叠加溢流阀由直动溢流阀 1 和二位二通电磁换向阀3 串联而成。
当二位二通电磁换向阀 3 通电时,其阀芯处于右位,二位二通电磁换向阀通导,叠加溢流阀才通导。
直动溢流阀 2 的调定压力较大,是叠加溢流阀的调定压力的 1.5 倍。
系统启动时,二位二通电磁换向阀 3不通电,叠加溢流阀不通导,油液只能经由直动溢流阀 2溢流;系统启动后稳定运行时,二位二通电磁换向阀 3通电,叠加溢流阀通导,油液经由调定压力较低的叠加溢流阀溢流。
这样便可实现两级压力控制。
系统要求启动迅速,即液压缸要迅速拉紧原来松弛的皮带,这就使得液压缸启动时需要很大的流量。
稳定运行时,张紧的皮带使得液压缸活塞杆移动范围很小,这时液压缸需要的流量下降。
为解决这个问题,加了一个蓄能器用以补油,既能及时补油,又能在正常稳定工作时保持恒定压力。
首先,电机 13 启动带动泵 12 运转给系统加压。
当系统压力达到压力继电器9 设定的启动压力后,压力继电器 9 发信号,皮带3式传送机启动。
皮带式传送机启动后带速达到稳定值时,二位二通电磁换向阀 3通电,叠加溢流阀通导,油液经由调定压力较低的叠加溢流阀溢流,同时系统切换到由伺服阀 4 控制的状态。
伺服阀的工作原理:预先确定压力指令信号μr ,它与压力传感器的压力反馈信号μi 相比较,其偏差量(实际压力与给定压力的差值)经放大器处理后产生电流 i 输给伺服阀 4,控制加载液压缸,这样就形成了伺服阀压力控制回路。