空气压缩机装配工艺流程图-微型
- 格式:doc
- 大小:34.50 KB
- 文档页数:1
压缩机工艺流程压缩机工艺流程是指通过一系列的生产工序将各个零件加工、装配成成品压缩机的过程。
下面将分为六个步骤来详细介绍压缩机的工艺流程。
第一步:零件加工首先进行的是压缩机零件的加工。
这些零件包括压缩机的主体、转子、气缸等等。
通过数控机床进行加工,保证每个零件的尺寸和形状的精确度和一致性。
第二步:表面处理加工完成的零件需要进行表面处理,以提高零件的耐腐蚀性和表面光滑度。
常用的表面处理方法包括喷涂、电镀、阳极氧化等。
这些处理可以提高零件的使用寿命和整体质量。
第三步:装配装配是将加工完成的各个零件进行组装成成品压缩机的过程。
装配过程需要保证每个零件的相互协调和紧密结合,使得压缩机能够正常运转。
同时也需要测试和调整零件的位置和功能,保证整个压缩机的运行稳定性和性能可靠性。
第四步:检测和调试装配完成后,通常需要对压缩机进行检测和调试。
检测可以采用多种方式,如压力测试、温度测试、振动测试等。
通过检测,可以确定压缩机的工作性能是否符合要求。
如果检测结果正常,就进入到调试阶段,对压缩机的各个参数进行调整和优化,以达到最佳的工作状态。
第五步:试运行在检测和调试完成后,可以对压缩机进行试运行。
试运行的目的是检查压缩机的运行情况和工作效果。
通过试运行,可以验证压缩机的性能和质量,并排除可能存在的问题。
如果试运行没有问题,说明压缩机可以正式投入使用。
第六步:包装和出厂最后一步是将压缩机进行包装和出厂。
包装主要是保护压缩机免受运输过程中的损坏,包括外包装和內部填充物。
出厂时,对压缩机进行最后的检查和验收,并提供必要的使用说明书和质保证书。
综上所述,压缩机的工艺流程包括零件加工、表面处理、装配、检测和调试、试运行、包装和出厂。
这些步骤保证了压缩机在制造过程中的质量和性能,并最终成功完成产品的生产。
空压机制造工艺流程空压机制造工艺流程是一种应用于各个行业的压缩空气供应系统,它通过压缩空气来满足各种设备的需求。
空压机制造工艺流程的各个环节相互关联,共同构成了一个完整的压缩空气供应系统。
以下是对空压机制造工艺流程的详细扩充。
一、空压机选型与设计在空压机制造工艺流程中,首要环节是空压机的选型与设计。
根据气动设备的用气需求,选择合适的空压机类型和规格。
空压机的设计需要考虑以下几个方面:1.压缩空气产量:根据气动设备的用气量和峰值需求,选择合适的压缩空气产量。
2.压缩比:确定压缩比以满足气动设备对空气压力的要求。
3.工作原理:空压机的工作原理包括活塞式、螺杆式、离心式等,根据实际需求选择合适的原理。
4.冷却方式:根据空压机的运行环境,选择自然冷却或强制冷却方式。
5.电机功率和转速:根据实际工况,选择合适的电机功率和转速。
二、空压机零部件加工在选定空压机类型和设计方案后,进入零部件加工阶段。
这一阶段包括:1.压缩缸体加工:加工压缩缸体,确保同心度和表面光洁度,为压缩机的高效运行提供保障。
2.活塞和气阀加工:加工活塞和气阀,确保密封性能和耐用性。
3.曲轴和连杆加工:加工曲轴和连杆,保证传动效率和稳定性。
4.冷却系统零部件加工:加工冷却系统零部件,如散热器、风扇等,确保空压机运行时的散热需求。
三、空压机总装与调试在零部件加工完成后,进行空压机总装和调试。
1.总装:将加工好的零部件按照设计图纸和组装工艺进行空压机的组装。
2.调试:对组装好的空压机进行调试,检测各部件运行状况,确保整机性能达标。
四、空压机性能测试与验收在完成调试后,对空压机进行性能测试和验收。
1.性能测试:对空压机的压缩性能、排放性能、能耗等指标进行测试。
2.验收:验收合格后,将空压机交付客户使用。
五、空压机售后服务与维护为确保空压机的稳定运行,提供完善的售后服务与维护措施,包括:1.技术支持:为客户提供空压机使用和维护方面的技术支持。
2.配件供应:提供原厂配件,确保空压机的维修和保养需求。
空气压缩机的拆装顺序1.去压缩机橡胶塞一般压缩机在工厂内均经过严格的气密检查,对合格品充入氮气后出厂。
压机在开封状态下放置时间不要超过15分钟。
在拔掉橡胶塞时,如果听不到排气声或感觉不到气体的风压,则这台压缩机请不要使用。
另外,因压缩机中充有冷冻机油,因此拔橡胶塞时请把压缩机竖放在水平的地方,严禁倾斜或倒置。
(下图错误做法)2.电机配线(1)在变压器容量不足,电线尺寸小的时候,电压会有很大下降。
压缩机端子电压变低,会引起启动不良。
(2)在相间电压有很大波动的时候,电动机的发热会变大,电机寿命会缩短。
(3)在没有给曲轴加热器通电时,起泡现象会加剧,从而成为液压缩、压缩机轴承烧损的原因。
3、水分系统回路内的残留水分量请控制在200ppm以下。
通常能达到规定的真空度的话,残留水分量也不会有问题.由于压缩机烧毁后会污染系统,所以在更换压缩机前,有必要对原有系统进行清洗。
只用氮气吹洗的方法是不彻底的,因为系统中有毛细管及气分等结构,很难将杂质和水分吹出。
建议氮气吹洗后,再用干燥过滤器进行清洗:在系统液管和压缩机吸气管处连接干燥过滤器,运转压缩机,使杂质和电机烧毁的酸性物质和水分被过滤器吸收,同时检测过滤器前后的压力,待过滤器前后的压力明显增大后,更换新的过滤器,反复几次,就可以彻底清洗系统。
对于水机水侧换热器,如果漏水,查看视液镜标示,如果视液镜进水标示水分较多,则更换水侧换热器和压缩机、气液分离器、储液罐,在压缩机和换热器焊接之前,先用氮气进行吹洗冷凝器系统管道,然后抽真空,反复数次即可,最后焊接管道系统。
如果进水较少则更换水侧换热器、干燥过滤器,然后焊接系统,运转一段时间后再更换干燥过滤器。
(根据视液镜观察水分情况定是否需要再重新更换干燥过滤器。
)4.焊接对于冷冻机,在焊接时,尤其要注意杂物、水锈及水分等进入系统,因为这些物质同制冷剂或冷冻油等接触易产生化学反应,使压缩机内部电动机的绝缘劣化,如进入压缩机的供油系统内部会使可动部分粘着,发生抱轴现象。
空压机装配步骤流程下载温馨提示:该文档是我店铺精心编制而成,希望大家下载以后,能够帮助大家解决实际的问题。
文档下载后可定制随意修改,请根据实际需要进行相应的调整和使用,谢谢!并且,本店铺为大家提供各种各样类型的实用资料,如教育随笔、日记赏析、句子摘抄、古诗大全、经典美文、话题作文、工作总结、词语解析、文案摘录、其他资料等等,如想了解不同资料格式和写法,敬请关注!Download tips: This document is carefully compiled by theeditor. I hope that after you download them,they can help yousolve practical problems. The document can be customized andmodified after downloading,please adjust and use it according toactual needs, thank you!In addition, our shop provides you with various types ofpractical materials,such as educational essays, diaryappreciation,sentence excerpts,ancient poems,classic articles,topic composition,work summary,word parsing,copy excerpts,other materials and so on,want to know different data formats andwriting methods,please pay attention!以下是一般空压机的装配步骤流程:1. 准备工作确保工作区域整洁,并准备好所需的工具和零件。
投标设备的产品制造生产工艺水平说明、安装、验收标准及质量保证措施1.机组制造工艺流程机组装配工艺流程图:压缩机装配工艺流程图:2.安装及验收标准2.1机组进场2.1.1机组进场严格按照机组上所贴吊装位置及吊装孔进行吊装。
2.1.2机组进场吊装时检查机组外观无损伤。
2.1.3我公司生产的机组在电控箱中已经附带减震胶垫,请在机组就位时安装减震胶垫并固定。
2.2机组水系统安装2.2.1机组牢固安装于基础上并且周围有排水道。
2.2.2机组周边通风良好、有足够的维修空间。
2.2.3机组冷冻水、冷却水进水管处必须安装Y型过滤器。
2.2.4机组冷冻水、冷却水进、出水口管必须安装软连接、压力表、温度计、阀门,且都均工作正常。
2.2.5机组进、出水管路阀门后必须安装旁通管。
2.2.6水泵前必须安装Y型过滤器,后装软连接、止回阀及阀门。
2.2.7管路清洗时,进出水管接通旁通,污水未进机组,且要清洗干净。
(用水瓶盛水清澈)2.2.8冷冻水系统保压(约工作压力的1.5倍,不得低于0.6MPa)2.2.9所有水泵和冷却塔试运转正常,且能保证机组运行所需要求。
(冷却塔处理水量选型不得低于冷却水流量1.3倍)2.2.10冷却塔风机必须与机组连锁。
2.2.11水系统最低点需安装泄水阀。
2.2.12机房与每层的水系统必须安装自动排气阀,且调试时系统已充分排气。
冷冻水管网必须保温完全。
2.3机组配电安装2.3.1电源使用名牌标识电压并为机组专用,三项不平衡小于2%。
2.3.2总电源到主机各项间电源线必须采用铜线,严禁使用铝线。
2.3.3主机空气开关容量及进主机电源线线径参照随机附带说明书中所要求。
2.3.4接线正确无反相,且压紧无虚接。
2.4.5机组必须接地线且是主电源线线径的一半。
3.质量保证措施格力商用空调机组质量可靠性保证分布在生产前、生产中和生产后等三个阶段。
生产前质量保证新产品生产前的质量控制由技术部门与质量控制部一起参与方案评审、样机评审、确认评审。
2010天然气处理站工艺流程图(深冷工艺部分)Ver:4.09.01.08.01天然气处理站2010-1-25目录(一)图例 (4)(二)处理站工艺流程总图 .................................... 错误!未定义书签。
(三)处理站工艺流程详图 .. (8)一、天然气净化系统主流程 (8)1 分离和压缩单元 (8)2 脱硫和脱水单元 (9)3 增压和风冷单元 (10)4 预冷和膨胀制冷单元 (11)5 轻组分(C1、C2)分馏单元 (12)6 液化气(C3、C4)分馏单元 (13)二、天然气净化系统辅流程 (14)1、仪表风和氮气系统流程 (14)2、仪表风分配流程 (15)3、分子筛脱水系统流程 (16)4、燃气系统流程 (17)5、硅油系统流程 (18)6、甲醇注入系统流程 (19)7、净化外输气分配流程 (20)8、循环水冷却系统流程 (21)9、火炬放空系统流程 (22)10、设备排污系统流程 (23)○1排污系统流程(1) (23)○2设备排污系统流程(2) (24)11、单体设备内部流程 (25)○1K/X-600A流程 (25)○2K/X-600B流程 (26)○3K-610A/B进口压缩机 (27)○4直输压缩机 (29)○5港沧线增压机 (31)12、中央空调/热泵系统流程 (33)(一)图例主要工艺管线次要工艺管线软管管线交叉管内介质流向 进出装置或单元的介质流向封头法兰法兰盖截止阀(DN ≥50)闸阀止回阀截止阀(DN <50)锥形过滤器Y 型过滤器网状过滤器阻火器孔板消声器装卸鹤管清管指示器节流阀绝缘接头椭圆封头板式换热器 火炬管壳式冷却器重沸器加热器蒸发空间式重沸器 卧式重沸器板翅式换热器 立式容器固定顶罐球形罐电动离心泵或电动漩涡泵电动往复泵电动往复压缩机(多级) 旋风分离器立式分离器卧式分离器外部取压的自力式阀前压力调节 外部取压的自力式阀后压力调节齿轮泵或螺杆泵压力或真空指示差压指示流量指示 保温管伴热管电伴热管气动或液动活塞阀里程桩检查桩转角桩牺牲阳极压力或真空指示干式空气冷却器电磁阀电动阀温度指示调节阀三通阀 余热锅炉或蒸汽发生器拱管跨越 梁式跨越立式精密过滤器球阀密闭式弹簧安全阀立式加热炉减压阀 蝶阀填料塔桁架跨越板式塔(塔板层序(1,2,…)由下向上固定床层反应器清管球收发器(三)处理站工艺流程详图一、深冷装置主体工艺流程高压分离器:DN1400 4.4MPa 8.87 m360℃中压分离器:DN2000 1.6MPa 20 m360℃低压分离器南/北:DN3000 0.4MPa 71.3 m360℃高压精密过滤器:DN900 3.5 MPa 1.61 m350℃中压精密过滤器:DN900 1.4 MPa 1.54 m325℃低压精密过滤器南/北:DN900 0.6 MPa 1.69 m325℃直输机中压精密过滤器:DN900 3371mm 1.4MPa 1.54 m325℃K-610A/B(进口压缩机):6HOS-3 2450kw 990rpm 直输机:H-78/30-152/8.5 1245kw 420rpmV-265(洗涤器):DN508 4.28MPa 0.16m365.5℃K-600A(膨胀机增压端):EC2-458 40000 m3/h K-600B(国产膨胀机增压端):PLPT-687/41-9.5 40000m3/h AC-715A/B(空冷器):14.9kw3 增压和风冷单元10T-1000(轻组分分馏塔):DN1371 0.98MPa 5.1m3-101℃T-1100(脱乙烷塔):DN762 1.02MPa 7.41m3-101℃T-1750(甲醇水洗塔):DN914 1.4MPa 6m3-23.3℃E-420(小冷箱):DN800 1.42MPa 1.2m3-196℃2200×1.1MBTU/HR E-490(脱乙烷塔底重沸器):DN100 5 轻组分(C1、C2)分馏单元0.81MPa 3.03m350℃1454×1.1MBTU/HR P-15A/B(轻组分分馏塔底泵):3.75kw 16m3/h P-10A/B(脱乙烷塔底泵):18.75kw 27m3/hV-140(燃气洗涤器):DN324 1.07Mpa 0.1m365.5℃HE-101(分子筛加热炉):GL1500-Q/1.6-Q 1500kw 4、燃气系统流程M-2600(硅油炉):FT-1200-C 3480kw7、净化外输气分配流程8、循环水冷却系统流程E-106(再生气冷却器):DN600 1.6Mpa 300℃ E-0101(压缩机后水冷器):4.0Mpa 100℃ 160.2m 2 天然气进/出口温度:70℃/42℃ 冷却水进/出口温度:32℃/37℃ 液化气水冷器: DN500 1.55MPa 0.99m 3 150℃ K/X-600B 水冷器:DN400 6.0Mpa 11.8m 2 水温度:32℃ 天然气温度64℃ 制氮机水冷器:DN303 0.7MPa 10.5m 2 40℃高压分离器:DN1400 4.4Mpa 8.87m360℃中压分离器:DN2000 1.6Mpa 20m360℃低压分离器南/北:DN3000 0.4Mpa 71.3m3 10、设备排污系统流程60℃分离器零位罐:DN1200 1.6Mpa 7.9m340℃高压精密过滤器中压精密过滤器低压精密过滤器低压精密过滤器直输机零位罐:DN1000 1.6Mpa 2.7m360℃高压精密过滤器:DN900 3.5Mpa 1.61m350℃中压精密过滤器:DN900 1.4Mpa 1.54m325℃低压精密过滤器南/北:DN900 0.6Mpa 1.69m325℃污油罐:DN15 常压高压精密过滤器:DN900 3.5Mpa 1.61m350℃中压精密过滤器:DN900 1.4Mpa 1.54m325℃低压精密过滤器南/北:DN900 0.6Mpa 60m3○2设备排污系统流程(2)○3K-610A/B进口压缩机A K-610A/B工艺气流程B K-610A/B油(循环油、高压注油)流程和水流程○4直输压缩机B 直输机油(循环油、高压注油)流程和水流程○5港沧线增压机A 增压机工艺气流程B 增压机油(循环油、高压注油)流程和水流程。
压缩机是如何安装的?没你想的那么简单!(附现场照片)今日话题:大型设备的安装,可不是那么容易的事!下面小七用现场照片文字的形式,给大家讲讲压缩机是如何安装的?安装过程中,有哪些需注意的问题?安装前准备安装压缩前,要先对场地进行验收,按施工图纸及规范要求由质检部门、技术部门和施工班组共同进行;注意:基础混凝土表面应平整、无裂纹、空洞、蜂窝和露筋等缺陷;中心线、标高、沉降观测点等标识齐全、清晰;按安装专业基础图纸、交接资料和验收要求对基础外形尺寸、坐标、标高等进行复测检查。
对超标项目,由交方处理合格后,再次组织验收。
有问题,怎么办?下图如示,由于地脚螺栓孔处基础不平整,地脚螺栓孔较大,难以铲垫铁窝。
放置垫铁,且垫铁的放置不平,由此会延长施工工期,且由于大型机组灌浆用是灌浆料,处理基础时费力,将影响下一步设备就位。
现采用如下方法进行解决:可先做临时垫铁放置在基础靠近螺栓孔较近的地方,机身和中体就位后进行初找平找正,再将地脚螺栓孔四周植上一模,模板长度以地脚螺栓两则能放置垫铁组为宜。
然后进行一次灌浆,待一次灌浆料(高强度无收缩灌浆料)表面平整,灌浆料的初凝期(略有出水现象),然后将垫铁组(一平二斜为宜)放在上面,注意一次灌浆尽量不要碰到地脚螺栓,以免地脚螺栓的垂直度发生变化,影响地脚螺栓的稳定。
待一次灌浆强度达设计强度的75%时拆掉模板。
然后再进度设备的精找平找正的复测工作。
地脚螺栓一次灌浆1—机身底座 2—模板 3——基础 4—一次灌浆层 5—垫铁组 6—地脚螺栓对基础表面进行处理:在基础上平面铲麻面,用塑料编织带(或水泥带)装上石头将基础地脚螺栓孔或螺栓预埋管塞住,将要进行二次灌浆层的基础用风镐或手工工具在每100c㎡范围铲3~5个深10~20mm 的小坑,并将表面的浮浆或疏松层铲去,铲完麻面后将基础表面的废混凝土块清理干净。
地脚螺栓及锚板的处理:锚板(一般为铸铁)上与基础贴合面用毛刷刷开净,去除上面的毛刺等;为了方便压缩机机身设备就位时地脚螺栓顺利的穿入机身螺栓孔,可以地脚螺栓上点焊上一个小的圆钢(大小不超过地脚螺栓的直径),在圆钢上拧一根铁丝。
压缩机生产工艺流程
压缩机是一种将气体进行压缩的设备,广泛应用于空调、冰箱、汽车空调等领域。
它的生产工艺流程主要包括铸造、加工、组装和测试等几个主要环节。
首先是铸造环节。
压缩机主要由铸铁或铝合金材料制成。
在铸造过程中,首先需要制作铸模,然后将铸模放入铸造机器中,加热到一定温度。
在恰当的温度下,将液态金属倒入铸模中,待金属凝固后,取出铸模,完成铸造过程。
接下来是加工环节。
在加工环节中,要对铸造出来的零部件进行修磨、切割、钻孔、铣削等工艺处理。
这些加工操作是根据设计图纸上的要求进行的,以保证零部件的尺寸和形状符合规定。
然后是组装环节。
在组装环节中,将已经加工好的零部件按照一定的顺序进行组装。
首先,将各个部件按照图纸上的要求进行预装,然后逐步进行正式的组装。
组装过程中需要特别注意零部件之间的配合度和装配顺序,以确保压缩机的正常工作。
最后是测试环节。
在测试环节中,对组装好的压缩机进行各种性能和功能的测试。
包括压力测试、噪音测试、震动测试等。
通过测试,检测压缩机是否达到设计要求,并及时发现并解决可能存在的问题。
整个生产工艺流程中还包括材料采购、热处理、表面处理、包装等环节。
材料采购是保证生产的原材料质量的重要环节,热
处理是对零部件进行硬度调节的过程,表面处理是为了防止零部件表面氧化和腐蚀,包装是为了保护压缩机在运输和储存过程中的安全和完整。
以上就是压缩机生产工艺流程的简要介绍。
随着科技的不断进步,压缩机的生产工艺也在不断改进和创新,以提高生产效率和产品质量。
滑片式空气压缩机节能探索与研究(上)前言:空气压缩机是工业现代化的基础产品,常说的“电气自动化”里“气”就有气动的含义,而空气压缩机就是提供气源动力,是气动系统的核心设备。
一台空气压缩机在寿命周期内,其初期购置成本仅占运行电费的1/20~1/15,其是否节能直接导致用户能否降本增效。
而且我国是一个能耗大国,能源供应十分紧张,节能减排任务十分艰巨,推广应用节能新技术或节能产品也符合国家的大政方针。
本文深入分析比较各类型空气压缩机的结构和工作原理,以及在工业运用中跟踪检测能耗情况,得出的实际节能比例让事实说话,供各位领导及同行参考。
一、空气压缩机的分类。
空气压缩机是机械工业的基础产品,其广泛应用于各行业。
空气压缩机是将驱动机(电动机或柴油机)输出的旋转机械能转换为气体的压力能,为气动系统(或气力吹扫点)提供动力的核心设备。
空气压缩机(以下简称空压机)分类,按结构和工作原理不同,可分为活塞式空气压缩机(简称活塞机)、螺杆式空气压缩机(简称螺杆机)、滑片式空气压缩机(简称滑片机)、离心式空气压缩机(简称离心机)、涡旋式空气压缩机(简称涡旋机)五类;按工作压力等级,可分为低压(供气压力≤1.3MPa)、中压(供气压力为1.3~4.0MPa)、高压(供气压力为4.0~40MPa及以上)三类;按压缩气体的形式,可分为容积式和速度式两种;按气体压缩过程是否与润滑油混合,可分为有油润滑和无油润滑两种空压机;按使用过程是否需要移动分为固定式和移动式空压机,移动式根据动力提供类型分为柴油移动机和电动移动机两种。
1、活塞机简介。
活塞机的电动机驱动曲轴产生旋转运动,曲轴带动连杆使活塞产生往复运动,引起气缸容积变化。
由于气缸内压力的变化,空气经过空气滤清器(消声器)和吸气阀进入气缸,在压缩行程中,随着气缸容积的缩小,产生压缩空气。
主要运转零件较多,有曲轴(1件)、曲柄(2件)、连杆(2件)、活塞(2件)、吸排气阀(阀片、弹簧若干)、轴承(2件)等。
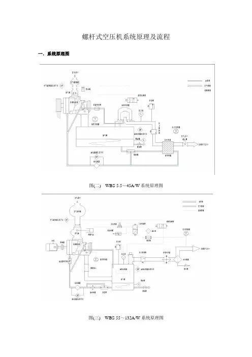
螺杆式空压机系统原理及流程一.系统原理图图(二) WBS-5.5~45A/W系统原理图图(三) WBS-55~132A/W系统原理图二.空气系统流程1.空气由空气过滤器滤掉尘埃后,经由进气阀进入压缩机头,经压缩与油混合后喷入油气桶,经过油细分离器、压力维持阀、后部冷却器、出口截止阀,送入用气系统。
2.组件的作用⑴空气滤清器——过滤空气中的尘埃。
⑵进气阀——空压机启动时,进气阀处于微开状态,以降低主机启动负载。
当泄放电磁阀得电关闭,进气阀完全打开空压机负载运行。
⑶油气桶——油气混合喷入油气桶,其流速减小使油气第一次分离,此阶段称一次油气分离。
⑷安全阀——当压力开关调节不当或失灵而造成油气桶内压力比额定压力高出0.1Mpa时安全阀将开启,使压力降低到额定压力以下。
⑸油细分离器——油细分离器滤芯是多层细密的纤维制成,压缩空气中的所含雾状油气经过油细分离可滤去此阶段称二次分离,过滤后的压缩空气中的油份含量低于3ppm。
油细分离器所滤的油集中于其底部的凹槽内,再由回油管回流到机体轴承端,此过程称二次回油。
⑹压力维持阀——位于油细分离器后端,开启压力设定为0.45Mpa。
其作用为:a. 主机启动时优先建立系统润滑油所需的循环压力,确保机体润滑。
b. 在压力超过0.45Mpa时打开,可降低流过油细分离器的空气流速,确保分离器分离效果且避免油细分离器因压差过大而受损。
⑺冷却器——通过冷却风扇将冷风抽入,通过冷却器冷却压缩空气。
⑻出口截止阀——为空压机输出阀门。
其结构是低进高出,可阻挡系统管内的凝结水的排出。
三.润滑油流程⒈油气桶内的压力将润滑油压出,当油温低于75℃时,经热控阀、油过滤器喷入机头压缩腔,再经压缩,与空气混合后喷入油气桶。
当油温达到75℃以上时,热控阀关闭与机头连接出口,将润滑油导入冷却器冷却后经油过滤器喷入机头压缩腔,再经压缩,与空气混合后喷入油气桶。
油气混合喷入油气桶,分离出大部分的油,残留在压缩空气中的油雾经过油细分离器分离滤出后,经二次回油管回流到机头。
本技术提供一种空调压缩机上盖装配线,包括上料平台、生产装配线、传送带,生产装配线后方与上方分别设有第一支架与第二支架,生产装配线包含若干个冲压机,上料平台与生产装配线之间、相邻冲压机之间、生产装配线与传送带之间均设有支架,支架顶端设有理料平台,理料平台顶端设有6个限位杆,理料平台后方设有2个安装座,安装座上设有机械手臂,第二支架顶端设有控制电脑,控制电脑用于控制机械手臂同步运动,本技术通过视觉检测系统对上盖半成品的位置进行检测,通过理料平台旋转使上盖半成品放置在正确的位置上,之后机械手臂将半成品传送至右方的冲压机上进行冲压,完成自动化操作,同时保证了产品的质量。
技术要求1.一种空调压缩机上盖装配线,包括上料平台(1)、生产装配线(2)、传送带(3),所述生产装配线(2)后方与上方分别设有第一支架(4)与第二支架(5),其特征在于:所述生产装配线(2)包含若干个冲压机(6),所述上料平台(1)与生产装配线(2)之间、相邻冲压机(6)之间、生产装配线(2)与传送带(3)之间均设有支架(7),所述支架(7)顶端设有理料平台(8),所述理料平台(8)顶端设有6个限位杆(9),所述理料平台(8)后方设有2个安装座(10),所述安装座(10)设置在第一支架(4)前端,所述安装座(10)上设有机械手臂(11),所述机械手臂(11)另一端底部设有吸盘(12),所述第一支架(4)顶端设有真空发生设备(13),所述吸盘(12)均通过接管与真空发生设备(13)相连通,所述第二支架(5)顶端设有控制电脑(14),所述控制电脑(14)用于控制机械手臂(11)同步运动。
2.如权利要求1所述的空调压缩机上盖装配线,其特征在于:所述理料平台(8)为电动旋转台。
3.如权利要求1所述的空调压缩机上盖装配线,其特征在于:所述理料平台(8)顶端后侧设有固定杆(15),所述固定杆(15)顶端设有感应器(16)。
4.如权利要求1所述的空调压缩机上盖装配线,其特征在于:所述每个理料平台(8)上方均设有视觉检测系统(17),所述视觉检测系统(17)设置在第二支架(5)底端。
螺杆式空气压缩机生产工艺流程下载温馨提示:该文档是我店铺精心编制而成,希望大家下载以后,能够帮助大家解决实际的问题。
文档下载后可定制随意修改,请根据实际需要进行相应的调整和使用,谢谢!并且,本店铺为大家提供各种各样类型的实用资料,如教育随笔、日记赏析、句子摘抄、古诗大全、经典美文、话题作文、工作总结、词语解析、文案摘录、其他资料等等,如想了解不同资料格式和写法,敬请关注!Download tips: This document is carefully compiled by theeditor. I hope that after you download them,they can help yousolve practical problems. The document can be customized andmodified after downloading,please adjust and use it according toactual needs, thank you!In addition, our shop provides you with various types ofpractical materials,such as educational essays, diaryappreciation,sentence excerpts,ancient poems,classic articles,topic composition,work summary,word parsing,copy excerpts,other materials and so on,want to know different data formats andwriting methods,please pay attention!螺杆式空气压缩机是一种常用的压缩机类型,其生产工艺流程较为复杂,主要包括以下几个步骤:1. 设计阶段:在生产螺杆式空气压缩机之前,首先要进行设计。