制图作业答案作业2答案
- 格式:ppt
- 大小:2.13 MB
- 文档页数:66
《土木工程制图》15春在线作业2
一、单选题(共15 道试题,共60 分。
)
1. 当物体坐标系的XOZ面平行于轴测投影面时,采用斜投影法,生成具有立体感的轴测图是()
A. 正等轴测投影
B. 正二轴测投影
C. 正三轴测投影
D. 斜二轴测投影
正确答案:D
2. 总平面图上标注的尺寸,一律以()为单位
A. 毫米
B. 厘米
C. 米
D. 分米
正确答案:C
3. 轴测轴之间的夹角称为()
A. 轴间角
B. 侧轴间角
C. 相似角
D. 投影角
正确答案:A
4. 直母线M 沿着一曲导线L 移动,并始终通过一定点S ,所形成的曲面称为()
A. 柱面
B. 锥面圆面
C. 马鞍面
正确答案:B
5. 各图上所用标高符号以()绘制
A. 粗实线
B. 细实线
C. 中实线
D. 中粗直线
正确答案:B
6. 对于每幢建筑物来说通常以它的()作为零标高的基准面
A. 基础底部
B. 基础顶部
C. 室外地面。
北交《机械制图(专)》在线作业二一、单选题(共15 道试题,共30 分。
)1. 普通螺纹的牙型符号为().. Tr. M. G正确答案:2. 某图纸一角度为30°,改图采用比例2:1,则该角实际大小(). 15°. 30°. 60°. 90°正确答案:3. 国家标准把公差等级分为( )级. 17. 18. 19. 20正确答案:4. 符号表示该表面是用()方法获得的. 不去除材料. 去除材料. 机械加工. 抛光正确答案:5. 图框线用()画出. 粗实线. 细实线. 细虚线. 细点画线正确答案:6. 图纸的基本幅面有()种。
. 3. 4. 5. 6正确答案:7. 已知点(20,8,8),与点对称于V面的点的坐标值是( ) . (20,-8,8). (-20,-8,8). (-20,8,8). (20,8,-8)正确答案:8. 垂直于H面的平面称为(). 正垂面. 铅垂面. 侧垂面. 一般面正确答案:9. 两等直径的圆柱轴线正交相贯,其相贯线(). 椭圆. 直线. 圆. 圆弧正确答案:10. 在螺纹标注中,M36表示的是(). 粗牙普通螺纹. 细牙普通螺纹. 梯形螺纹. 锯齿形螺纹正确答案:11. 两个一般位置平面相交,其交线是( ). 空间曲线. 直线. 平面曲线. 折线正确答案:12. 国家标准对孔和轴规定了()个基本偏差. 27. 28. 29. 30正确答案:13. 已知点(20,8,8),与点对称于H 面的点的坐标值是( ) . (20,-8,-8). (-20,-8,8). (-20,8,8). (20,8,-8)正确答案:14. 已知点(20,8,8),与点对称于W面的点的坐标值是( ) . (20,-8,-8). (-20,-8,8). (-20,8,8). (20,8,8)正确答案:15. 已知直齿圆柱齿轮的齿数Z=60,模数m=3,其分度圆直径是( ) . 180. 186. 174. 185正确答案:北交《机械制图(专)》在线作业二二、多选题(共10 道试题,共40 分。
《建筑制图》2014年秋学期在线作业(二)
一,单选题
1. 标高符号的高度约为()mm
A. 4
B. 6
C. 3
D. 5
?
正确答案:C
2. 详图符号圆的线型和直径分别为()
A. 粗实线10
B. 细实线10
C. 粗实线14
D. 细实线14
?
正确答案:C
3. 指北针圆的线型和直径分别为()
A. 粗实线20
B. 细实线20
C. 粗实线24
D. 细实线24
?
正确答案:D
4. 若详图与被索引的图样不在同一张图纸内时,索引符号的上、下半圆注明的分别是()的编号。
A. 详图详图所在图纸
B. 详图所在图纸详图
C. 均为详图
D. 以上均错
?
正确答案:A
5. 总平面图和其它图样上的标高数值分别表示()
A. 相对标高绝对标高
B. 绝对标高相对标高
C. 均为相对标高
D. 均为绝对标高
?
正确答案:B。
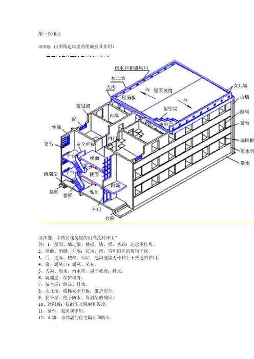
第一次作业读图题:由图简述房屋的组成及其作用?读图题:由图简述房屋的组成及其作用?答:1、屋面、墙过梁、楼板、墙、梁、基础:起承重作用。
2、屋面、雨棚、外墙:防风、雨、雪和阳光的侵蚀干扰。
3、门、走廊、楼梯、台阶:起沟通屋内外和上下交通的作用。
4、窗、通风口:通风、采光。
5、天沟、散水、雨水管、屋面坡度:排水。
6、防潮层:保护墙身。
7、架空层:隔热、排水。
8、女儿墙、楼梯安全栏板:维护安全。
9、找平层:便于防水、保温层的铺设。
10、遮阳板:控制阳光照射和温度。
11、窗台:起美观作用。
12、山墙:与邻居的住宅隔开和防火。
简答题:什么叫平法?答:把结构构件的尺寸和配筋等,整体直接表达在该构件(钢筋混凝土柱、梁和剪力墙)的结构平面布置图上,再配合标准构造详图,构成完整的结构施工图。
1、工程建设制图中的主要可见轮廓线应选用(粗实线)2、在建筑平面图中,横行定位轴线应用阿拉伯数字从左至右依次编写;竖向定位轴线应用(大写拉丁字母)从下至上顺序编写。
3、图样上的尺寸包括(尺寸界线)、尺寸线、尺寸起止符号、尺寸数字。
4、条形基础埋入地下的墙称为(基础墙)5、房屋结构施工图的图样一般包括(结构平面图)和(构件详图)两种。
墙体是房屋的一个重要组成部分,按墙的平面位置不同分为( B ).A、纵墙与横墙B、外墙和内墙C、承重墙与非承重墙D、砖墙与钢筋混凝土墙在施工中,L代表( C ).A、板B、柱C、梁D、墙建筑的耐火等级可分为( B )级。
A、3B、4C、5D、6建筑施工图中索引符号的圆的直径为( B )。
A、8mmB、10mmC、12mmD、14mm建筑物结构承重可分为( D )。
A、墙承重式、框架结构B、墙承重式C、半框架结构,框架结构D、墙承重式、框架结构、空间结构、半框架结构下列立面图的图名中错误的是( A )A、房屋立面图B、东立面图C、⑦-----①立面图D、A-----F立面图主要用来确定新建房屋的位置、朝向以及周边环境关系的是( C )。
14秋学期《画法几何及土木建筑制图》在线作业2
一,单选题
1. 绘制建筑立面图时,立面图两端的定位轴线要与()相对应标出,以便于明确与平面图的联系。
A. 平面图
B. 剖面图
C. 楼梯详图
D. 总平面图
?
正确答案:A
2. 当棱锥的底面与水平面平行时,该面的水平投影具有(),且该底面上点的水平投影()。
A. 真实性,可见
B. 积聚性,可见
C. 类似性,不可见
D. 真实性,不可见
?
正确答案:D
3. 尺寸起止符号采用斜短线形式时,应与尺寸界线成(),长度是()。
A. 45°,5
B. 45°,2~3
C. 60°,2~3
D. 30°,2~3
?
正确答案:B
4. 标注尺寸时,尺寸线()与其他图线重合或画在其延长线上。
A. 可以
B. 不可以
C. 没有规定
D. 视情况而定
?
正确答案:B
5. 绘制结构平面布置图的常用比例为()。
A. 1:5、1:10
B. 1:10、1:20
C. 1:50、1:100
D. 1:200、1:500
?
正确答案:C。
东北农业大学网络教育学院建筑制图作业题(一)一、填空1. 建筑工程图上标注的尺寸,除标高和总平面图以为单位外,其它一律以mm为单位。
2.工程上常用投影法分为两类:中心投影法和,后者又分为和斜投影法两种。
3. 尺寸标注由、、起止符号和尺寸数字组成。
4. 比例是指图样中与实际工程中相应要素的线性尺寸之比,一般注写在图名的侧。
5. 按施工图的内容和作用不同,一套房屋施工图分为、和。
二、判断题1. 两点的V投影能反映出点在空间的上下、左右关系。
( )2. 空间两直线相互平行,则它们的同名投影一定互相平行。
( )3. 一般位置直线对三投影面的倾角,可由其三面投影与投影轴的夹角反应。
( )4. 投影面平行线的三个投影都是直线,并都能反映直线的实长。
()5. 投影面垂直线在所垂直的投影面上的投影必积聚成为一个点。
()6. 垂直H面的平面,皆称为铅垂面。
()7. 钢筋的标注2Φ16中的2表示钢筋的编号。
()8. 房屋施工图中详图索引符号用细实线圆圈表示,其直径是10mm。
()9. 建筑总平面图中,表示原有建筑物要用粗实线。
()10. 绝对标高是以室内地面为零,而测定的标高。
()三、简答1.建筑制图中的常用比例有哪些?2.剖视图和断面图的区别?3.请表示下面两种建筑材料的图例。
(1) 钢筋混凝土(2)砖砌体四、根据立体图找投影五、根据形体的两面投影做出第三面投影。
(a)(b)六、参照立体图,补画三面投影中的漏线,标出ABC相应投影字母。
七、判别两线段之间的相对位置。
a'a b c db'c ' d'八、补出三棱锥的W面投影,根据已知条件判别E、F点所在的平面,再求其投影。
九、结构施工图中某梁的标注数据如下,说明它代表的意义。
建筑制图作业题(二)一、 填空1、建筑平面图中,外墙尺寸应标注三道,最内一道是 尺寸,中间一道是 尺寸,最外一道是 尺寸。
2、图样中的汉字应写成 。
3、基础图是表示房屋建筑地面以下基础部分的平面布置和详细构造的图样,包括 图与 图。
国开一网一平台机专《计算机制图》教学考形考任务作业练习2答案1.如果要以指定的值为半径,绘制一个与两个对象相切的圆,应选择“绘图”“圆”菜单中的O子命令。
多选题(2分)A.圆心、半径B.相切、相切、相切C相切、相切、半径D.三点方式正确答案:C2.设置图形界限的操作方式有O多选题(2分)A.选择“格式”-“图形界限”命令,进行设置B.选择“工具”一“草图设置”命令,在“草图设置”对话框中设置C.在命令行中输入LimitS(界限),按Enter键确定设置D.在“视图”菜单的“缩放”子菜单中进行设置正确答案:AC3.一列命令中,不是“修改”一“实体编辑”命令的子命令的是O多选题(2分)A.并集B.干涉C.交集D.差集正确答案:B4.在AutoCAD中,输入命令的方式有O多选题(2分)A.从键盘输入命令B.选择工具栏命令C.从菜单中选择D.使用功能键或组合键正确答案:ABC5.使用椭圆命令(ELLIPSE)绘制椭圆弧时,在选择项中应选择O多选题(2分)Λ.CenterB.EngeC.AreI).Axisendpoint正确答案:C6.一组同心圆可由一个已画好的圆用O命令来实现。
多选题(2分)A.STRETCHB.MOVEC.EXTENDD.OFFSET正确答案:D7.绘制圆时可以采用O多选题(2分)A.圆心、直径方式8.圆心、半径方式C.切点、切点、切点方式D.三点方式正确答案:ABCD8.以下各命令中,用于绘制椭圆命令的是O多选题(2分)A.DONUTB.MOVEC.EXTENDD.OFFSET正确答案:B9.“捕捉自”工具可以提示输入基点,并将该点作为临时参照点,这与通过输入前缀@使用O作为参照点类似。
多选题(2分)A.第一个点B.第二个点C.第三个点D.上一操作点正确答案:D10.以下各命令中,用于绘制椭圆的命令是O多选题(2分)A.DONUTB.RECTANGC.POLYGOND.ELLIPSE正确答案:DIL不能对多段线进行倒角。
建筑制图基础实训学号姓名小作业二得分教师签字一、填空题1、结构是建筑物的基本部分,是用一定的建筑材料建成的,具有足够的抵抗能力的空间骨架,这种骨架就是结构。
2、建筑结构按使用的材料不同,可分为钢结构、木结构、混合结构和钢筋混凝土结构。
3、钢筋混凝土是由钢筋和混凝土两种材料组成的一种复合材料。
钢筋的特点是抗拉力、抗压力强度都很高,而混凝土抗拉强度低,抗压强度高,在钢筋混凝土结构中,钢筋主要承受拉力,混凝土主要承受压力。
4、用钢筋混凝土制成的板、梁和柱等组成的结构物,叫做钢筋混凝框架结构。
5、钢筋混凝土结构中的钢筋,有的是由于受力需要而配置的,有的则是因为构造要求而安放的,这些钢筋的形式及作用各不相同,一般可分为:受力筋、箍筋、架立钢筋、分布钢筋和其他构造筋。
6、为了保护钢筋,防止锈蚀,防火及加强钢筋与混凝土的粘结力,在构件中的钢筋的外表面要留有保护层。
梁、柱的保护层最小厚度为25mm,板和墙的保护层厚度为10~15mm,且不应小于受力筋的直径。
7、钢筋布置图也就是钢筋混凝土构件详图中的配筋图,它包括立面图、断面图、钢筋详图以及钢筋表。
8、说明钢筋图上所标注4Ф16和Ф6@150各字母和数字的意义:4表示钢筋4根;Ф表示I级钢筋;6表示钢筋直径为6mm;@表示相等中心距;150表示相邻钢筋轴线之间的中心距为150mm。
9、用平面图表示配置双层钢筋图时,顶层钢筋的画法是弯钩向下或向右,底110、在钢筋混凝土结构图中,钢筋的断面图例是黑圆点·,无弯钩钢筋的端部图例是或,无弯钩钢筋的搭接图例是。
二、根据梁的配筋图及钢筋表,绘制1-1及2-2断面③2φ101φ16②φ8@100⑤1φ8④φ8@200⑥2φ14①2φ10③φ8@200⑤φ8@200⑥1φ8④①2φ14⑦2φ81φ16②提醒:1-1及2-2断面图中钢筋标注应在两侧标注,因版面问题我这里做的答案标在一侧,同学完成题目时,务必参考课本《土木工程制图》P52页,标注在两侧。
1:[单选题]结构施工图包括()等A:总平面图、平立剖、各类详图B:基础图、楼梯图、屋顶图C:基础图、结构平面图、构件详图D:配筋图、模板图、装修图参考答案:C2:[单选题]在结构平面图中,TB代表构件()A:楼梯板B:预制板C:阳台板D:预应力板参考答案:A3:[单选题]柱子的最小保护层厚度为()A:15mmB:25mmC:35mmD:45mm参考答案:B4:[单选题]建筑施工图主要表示房屋的建筑设计内容,下列不属于建筑施工图表示范围的是()。
A:房屋的总体布局B:房屋的内外形状C:房屋承重构件的布置D:房屋内部的平面布局参考答案:C5:[单选题]下面属于居住建筑的有()A:住宅、宿舍、学校、办公楼;B:公寓、旅馆、商场、医院;C:火车站、商店、航空站、中小学校;D:宿舍、公寓、旅馆、住宅。
参考答案:D6:[论述题]配置在钢筋混凝土结构中的钢筋,按其作用可分为哪几种,各有什么主要作用参考答案:1.受力筋――承受拉、压应力的钢筋。
2.钢筋(箍筋)――承受一部分斜拉应力,并固定受力筋的位置,多用于梁和柱内。
3.架立筋――用以固定梁内钢箍的位置,构成梁内的钢筋骨架。
4.分布筋――用于屋面板、楼板内,与板的受力筋垂直布置,将承受的重量均匀地传给受力筋,并固定受力筋的位置,以及抵抗热胀冷缩所引起的温度变形。
5.其它――因构件构造要求或施工安装需要而配置的构造筋。
如腰筋、预埋锚固筋、环等。
1:[填空题]结构平面布置图。
它表示了承重构件的、和或的配置。
参考答案:结构平面布置图。
它表示了承重构件的位置、类型和数量或钢筋的配置2:[论述题]什么是剖面图?什么是断面图?它们有什么区别?参考答案:假想用剖切面把物体分割成两部分,移去观察者和剖切面之间的部分,而将其余部分向投影面投射,所得的图形就叫剖面图。
用剖切平面将物体的某处切断,仅画出该剖切面与物体接触部分的图形,该图称为断面图。
区别:①断面图只画出物体截断面的投影,而剖面图还要画出剖切平面后物体可见部分的投影。
工程制图第二版作业答案作者:沈培玉出版社:国防工业出版社第一章作业答案1.1 填空题1.工程图是工程设计和制造的“语言”和“数字化工具”。
2.平面图是几何体的截面图。
3.有三种尺寸标注方法,即基准尺寸标注、链式尺寸标注和统一尺寸标注。
4.直径符号是一个圆内切一条直线。
5.NOC表示的尺寸公差的含义是不得越界。
1.2 选择题1.下列关于工程图的表述中,不正确的是(B)。
– A. 工程图是工程设计和制造的“语言”和“数字化工具”。
– B. 工程图中必须包含主视图、剖视图和细节视图三个部分。
– C. 平面图是几何体的截面图。
– D. 施工图通常只包含一道施工部位的图样。
2.下列关于尺寸标注的表述中,正确的是(C)。
– A. 基准尺寸标注适用于相同部分的多个尺寸相同的要素。
– B. 链式尺寸标注适用于不同部分的多个要素的尺寸全部相同。
– C. 统一尺寸标注适用于相同部分的多个尺寸相同的要素,且要素的顺序可以颠倒。
– D. 尺寸标注只有一种方法,并不存在不同的方式。
1.3 解答题1.解释下列符号的含义:直径符号,直角符号。
–直径符号表示一个圆的直径,是一个圆内切一条直线的符号。
–直角符号表示两条直线相交成直角的符号。
2.简述尺寸公差的目的和作用。
尺寸公差是指允许零件尺寸与设计尺寸之间的允许偏差范围。
其目的和作用的主要有:–保证零件的功能和配合要求,确保零件的正确性。
–降低制造成本,通过控制公差范围,避免过度精度造成的浪费。
–提高生产效率,减少制造过程中的调试和不合格品的数量。
–保持零件和装配件之间的互换性。
第二章作业答案2.1 填空题1.正交图法是工程制图的基本方法之一。
2.视图间的顺序没有特定的要求,只要逻辑清晰即可,但通常要求将主视图放在第一个。
3.剖视图有三种基本类型,即全剖/半剖/零剖视图。
4.针对几何要素的不同特征,分为尺寸、形状、位置三类公差。
5.公差分别采用数值带单位、公差带、公差带位置公差、公差带尺寸公差位置公差四种标注方法。
大工19秋《建筑制图》在线作业2-0001------------------------1.用假想的剖切面将物体切开,仅画出该切面与物体接触的部分图形,称为()。
A.半剖面B.阶梯剖面C.分层剖切面D.断面正确答案:D2.在AutoCAD中,想把一条直线延长到与另一条直线相交,可使用()命令。
A.修剪B.延伸C.偏移D.阵列正确答案:B3.AutoCAD中,鼠标左键不可以进行下列哪项操作()。
A.指定位置B.选择编辑对象C.结束某项操作D.选择菜单选项正确答案:C4.下列选项中,不属于楼梯剖面图主要表达内容的是()。
A.梯段数B.楼梯踏步数C.楼梯栏杆材料D.楼梯类型及结构形式正确答案:C5.下列命令中,不属于AutoCAD中的基本编辑修改命令的是()。
A.复制B.捕捉C.移动D.修剪正确答案:B------------------------1.AutoCAD中,可以利用Polygon(多边形)命令可以直接画出的正多边形有()。
A.正三角形B.正四边形C.正六边形D.正600边形正确答案:ABCD2.AutoCAD基本绘图命令中的“圆”命令,提供了多种绘制圆的方法,包括()。
A.圆心、半径法B.圆心、直径法C.三点法D.相切、相切、半径法正确答案:ABCD------------------------1.屋顶平面图主要表示屋顶的形状、屋面排水方向及坡度、天沟或檐沟、女儿墙、屋脊线、雨水管、水箱、上人孔、避雷针的位置等。
T.对F.错正确答案:T2.楼梯平面图是楼梯某位置上的一个水平剖面图。
T.对F.错正确答案:T3.CAD中的偏移命令不能偏移闭合的对象。
T.对F.错正确答案:F4.AutoCAD中,CAD图形文件的后缀名可以是“dwg”。
T.对F.错正确答案:T5.建筑详图是指导房屋细部施工、建筑构配件制作的重要依据。
T.对F.错正确答案:T6.定位轴线是施工时定位、放线的依据。
T.对F.错正确答案:T7.建筑施工图中不得使用Z作为定位轴线的编号。
西南交?画法几何及工程制图?在线作业二一、单项选择题〔共 40 道试题,共 80 分。
〕1. 以下备选答案中,〔〕是制图国家标准规定的字体高度。
. 3. 4. 5. 6正确答案:2. 图纸上的字母和数字可写成斜体或直体,斜体字字头向右倾斜与水平成:. 45°. 60°. 75°. 80°正确答案:3. 平行投影中的投射线与投影面垂直时,称为〔〕。
. 垂直投影法. 正投影法. 斜投影法. 中心投影法正确答案:4. 在斜二等轴测图中,取一个轴的轴向伸缩系数为0.5时,另两个轴的轴向伸缩系数为〔〕. 1正确答案:5. 为了促进各国间的技术交流与合作,国际标准化组织制定有国际标准,这些标准的代号为:. ISO. G. OEM. SII正确答案:6. 尺寸线终端形式有〔〕两形式. 箭头和圆点. 箭头和斜线. 圆圈和圆点. 粗线和细线正确答案:7. 获得投影的要素有投射线、〔〕、投影面. 光源. 物体. 投射中心. 画面正确答案:8. 空间直线与投影面的相对位置关系有〔〕种。
. 1. 2. 3. 4正确答案:9. 索引符号圆的直径为〔〕mm。
. 6. 14. 10. 12正确答案:10. 手工绘制工程图要先打底稿。
绘制底稿的铅笔通常用:. H. 2H或3H. H或H.正确答案:11. 制图国家标准规定,图纸幅面尺寸应优先选用〔〕几种根本幅面尺寸。
. 3. 4. 5. 6正确答案:12. 〔〕的特点是,物体的投影与物体距投影面的距离无关,投影都能够真实地反映物体的形状和大小。
. 中心投影法. 平行投影法. 正投影法. 斜投影法正确答案:13. 〔〕分为正投影法和斜投影法两种。
. 平行投影法. 中心投影法. 投影面法. 辅助投影法正确答案:14. 斜二测的轴间角分别为〔〕。
. 97°、131°、132°. 120°、120°、120°. 90°、135°、135°. 45°、110°、205°正确答案:15. 在土木工程制图中,除了遵守建筑工程制图标准和某些行业标准外,还必须遵守的国家标准为:. 总图制图标准. 水利水电工程制图标准. 技术制图标准. 铁路工程制图标准正确答案:16. 如果物体的长度为1000mm,绘图比例是1:20,那么在其图形上长度的尺寸数字为:. 100. 1000. 50. 20正确答案:17. 〔〕一个投影面同时倾斜于另外两个投影面的直线称为投影面平行线。