梁的标注内容
- 格式:doc
- 大小:47.00 KB
- 文档页数:3
梁集中标注的五项必注值梁集中标注的五项必注值是指在梁氏学风传承中特别重要的五个重点。
这五项必注值包括:德性,孝敬,廉节,诚信和学问。
下面将对每一项必注值进行详细的解释。
首先是德性。
德性是指一个人忠诚、正直、有道德修养的品质。
梁氏学风强调道德行为对个人和社会的重要性。
一个人如果具备了好的德性,他就能够正确地对待他人和事物,以及正确地面对挫折和困难。
德性还包括了对自己的要求,即自律的品质。
一个有德性的人会注重自律,注重修身养性,注重自己的言行举止是否符合礼义廉耻。
只有具备了良好的德性,一个人才能够充实自己,对他人产生积极的影响。
其次是孝敬。
孝敬是中华传统文化的核心价值观之一,也是梁氏学风中特别重视的一项。
孝敬是指对父母的尊敬和关爱,也包括对长辈和师长的尊重。
在梁氏学风中,孝敬被视为道德的基础和人际关系的基石。
一个孝顺的人会尊重他人,关注他人的感受,体谅他人的困难,并主动帮助他人。
孝敬不仅是对家庭的责任和担当,更是对社会的尊重和关爱。
第三是廉节。
廉节是指廉洁正直、节约节俭的品质。
梁氏学风特别强调以廉洁自持和节俭为人的态度。
一个有廉节的人会崇尚简朴生活,注重勤俭持家,抵制奢侈浪费的消费行为。
同时,廉节也包括了廉洁自律的品质,即在面对财务诱惑时能够坚守公正廉洁的原则,不为私利所动,不贪图不义之财。
第四是诚信。
诚信是指诚实守信、信守承诺的品质。
在梁氏学风中,诚信被视为社会交往的基础和人际关系的关键。
一个诚信的人会言行一致,言出必行,言而有信。
他会守信用,不轻易违反承诺,并且对他人的言行会表示尊重和信任。
诚信是建立和谐社会关系的必要条件,也是一个人赢得他人信任和尊重的重要因素。
最后是学问。
学问是指知识的积累和对学术的追求。
在梁氏学风中,学问被视为人生追求的最高境界。
一个有学问的人会注重自己的学业,不断努力学习,追求卓越。
他会对自己所从事的领域有深入的了解和研究,并且有能力将所学知识转化为实际行动和社会价值。
学问的追求是梁氏学风中重要的一环,它代表了一个人对自己的要求和期望,也代表了一个人对社会的责任和贡献。
梁集中标注与原位标注梁平面布置图上采用的两种注写方式:、平面注写方式 在梁平面布置图上, 分别在不同编号的梁中各选一根梁, 在其上注写截面尺寸和配筋具体数值的方 式来表达梁平法施工图。
平面注写包括集中标注与原位标注, 集中标注表达梁的通用数值, 原位标 注表达梁的特殊数值。
当集中标注中的某项数值不适用于梁的某部位时,则将该项数值原位标注, 施工时, 原位标注取值优先 。
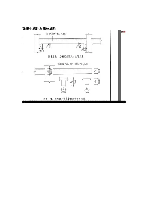
2 梁编号由梁类型代号、序号、跨数及有无悬挑代号几项组成,见下表: 梁编规定如下:(一 梁编号,见上表,该项为必注值。
(二 )梁截面尺寸,该项为必注值。
当为等截面梁时,用hXb 表示;当为加腋梁时 丫C1XC2表示,其中为C1腋长,为C2腋高;当有悬挑没且根部和端部的高度不同时,用斜线分隔根部与端 部的高度值,即为bX h1/h2 (图4-2-3b )。
(三 梁箍筋,包括钢筋级别、直径、加密区与非加密区的不同间距及肢数需用斜线“ /”分隔; 当梁箍筋为同一种间距及肢数时, 则不需用斜线; 当加密区与非加密区的箍筋肢数相同是南昌将肢 数注写一次; 箍筋肢数应写在括号内。
加密区范围见相应抗震级别的标准构造详图。
当抗震结构中 的非框架梁、 悬挑梁、井字梁,及非抗震结构中的各类梁采用不同的箍筋间距及肢数时, 也用“/” 将其分隔开来。
注写时,先注写梁支座端部的箍筋(包括箍筋的箍数、钢筋级别、直径、间距与肢 数 ,在斜线后注写梁跨中部分的箍筋间距及肢数。
(四 梁上部通长筋或架立筋配置, 该项为必注值。
所注规格与根数应根据结构受力要求及筋肢数 等构造要求而定。
当同排纵筋中既有通长筋又有架立筋时, 应用加号“ +”将通长筋和架立筋相联 。
注写时须将角部纵筋写在加事的前面, 架立筋写在加号后面的括号内, 以示不同直径及与通长筋的 区别。
当全部采用架立筋时,则将其写入括号内。
当梁的上部纵筋和下部纵筋均为通长筋, 且多数跨配筋相同时, 此项可加注下部纵筋的配筋值, 用分号“: ”将上部与下部纵筋 配筋值分隔开来,少数跨不同者,按第 4-2-1 条的规定处理。
基础井字梁平法标注中B,T分别代表什么?/基础井字梁平法标注为:JXL1(5)400*600Φ8@200(4)B4Φ25,T4Φ16其中B,T分别代表什么?陈清来教授主编的04G101-3筏型基础图集中说的比较清楚:B表示基础梁底部贯通纵筋,T表示顶部贯通纵筋,本梁原位标注表示的是:梁底部贯通纵筋4Φ25,顶部贯通纵筋4Φ16 ,箍筋为Φ8间距200,四肢箍.JL6(6B)750*1400YC10-150(4)B10C25;T8C25N8C18;LA8-400YC16-170;A8-300YB 3600*400基梁6(6跨)截面宽750mm高1400mm箍筋为三级钢直径10mm间距150四肢箍下部为10根直径25二级钢;上部为8根直径25三级钢抗扭为8根[每侧4根]直径18三级钢;拉筋为直径8一级钢间距400mmYc应该是加腋的三级钢16的间距170 分布筋是一级钢8间距300DL500*1000、Φ8@100/200B8Φ25;T6Φ20抗扭配筋DL:名称500*1000:截面尺寸,梁宽*梁高A8@100/200(4):箍筋道数、强度等级、直径、第一种间距/第二种间距、(肢数)B4B25:底部(B)贯通纵筋根数、强度等级、直径T5B20:顶部(T)贯通纵筋根数、强度等级、直径N4B16:梁侧面纵向抗扭钢筋根数、强度等级、直径7B25:底部纵筋(含贯通筋)原位标注JZL1(4)400*800Y Φ8-200(4)B2Φ25+2Φ22 N2Φ16;LΦ8-400 YΦ12-150;Φ-300JZL1(4)400*800Y 梁的尺寸为400宽800高,Y是表示梁加腋,为倒T型。
Φ8-200(4)梁箍筋一级钢间距200,四肢箍B表示梁底通长钢筋,B是英文底部的开头字母。
好像是bottom吧。
N2Φ16;LΦ8-400 抗扭钢筋每侧1根16二级钢,拉筋8间距400,用于固定两根抗扭钢筋YΦ12-150;Φ-300 Y还是加腋,值得是条形基础,受力钢筋时12间距150,分布钢筋时8间距300.多看看图集吧!这个梁的所谓加腋应该就是它的倒T形条形基础!梁宽小于柱宽是正常的,因为是基础梁。
梁3.1 梁的平面注写方法3.1.1 梁的平法标注方式梁的平面注写集中标注和原位标注。
集中标注表达梁的通用值,原位标注表达梁的特殊值。
当集中标注中的某些数值不适用与梁的某跨或某部位时,该数值需要用原位标注。
在识图时,原位标注优先于集中标注。
注解:我们在理解两种标注方式时,可以认为集中标注所表达的数据是梁的任何一跨都有的信息,即所谓的公共属性;而原位标注是只在梁的某一跨才有,其它跨没有,即所谓的私有属性。
当在描述梁某跨数据时,要用它这跨的数据,而不是其它跨的数据。
这也就是原位标注要优先集中标注的原因。
3.1.1.1 集中标注内容任何梁的集中标注应包括以下6项内容,即梁的类型、编号、梁截面尺寸、梁内箍筋、梁的上下部通长筋、构造钢筋以及梁顶面标高高差。
(1)梁类型、编号梁编号梁类型代号序号跨数及是否带有悬挑楼层框架梁KL ××(xx)、(xxA)或(xxB)屋面框架梁WKL ××(xx)、(xxA)或(xxB)框支梁KZL ××(xx)、(xxA)或(xxB)非框架梁L ××(xx)、(xxA)或(xxB)悬挑梁XL ××井字梁JZL ××(xx)、(xxA)或(xxB)注:(××A)为一端有悬挑,(××B)为两端有悬挑,悬挑不计入跨数。
注:(XX)表示梁的跨数;A表示该梁一端悬挑,B表示该梁两端悬挑。
例:KL7(5A)表示第7号框架梁,5跨,一端有悬挑;L9(7B)表示第9号非框架梁,7跨,两端有悬挑。
(2)梁截面梁截面表达顺序是“截面宽×截面高”。
(3)箍筋表示箍筋按如下顺序表达:钢筋级别、直径、加密区与非加密区间距、肢数。
(4)梁上、下部通长筋及架立筋一般情况下,框架梁的上部通长筋都设,下部通长筋根据具体情况设置;而架立筋在梁中配置四肢以上的箍筋时才有。
梁集中标注与原位标注井字梁JZL XX (XX)、(XXA)或(XXB)悬挑梁XL XX框支梁KZL XX (XX)、(XXA)或(XXB)注:(XXA)为一端有悬挑,(XXB)为两端有悬挑,悬挑不计入跨数非框架梁L XX (XX)、(XXA)或(XXB)(一)梁编号,见上表,该项为必注值。
即为b×h1/h2(图4-2-3b)。
其中为C1腋长,为C2腋高;当有悬挑没且根部和端部的高度不同时,用斜线分隔根部与端部的高度值,(二)梁截面尺寸,该项为必注值。
当为等截面梁时,用h×b表示;当为加腋梁时 Y C1×C2表示,屋面框架梁WKL XX (XX)、(XXA)或(XXB)3 梁集中标注的内容,有五项必标注和一项选注值(集中标注可以从梁的任意一跨引出,),规定如下:在梁平面布置图上,分别在不同编号的梁中各选一根梁,在其上注写截面尺寸和配筋具体数值的方式来表一、平面注写方式楼层框架梁KL XX (XX)、(XXA)或(XXB)梁平面布置图上采用的两种注写方式:殊数值。
当集中标注中的某项数值不适用于梁的某部位时,则将该项数值原位标注,施工时,原位标注取达梁平法施工图。
平面注写包括集中标注与原位标注,集中标注表达梁的通用数值,原位标注表达梁的特梁类型代号序号跨数及是否带有悬挑梁编号2 梁编号由梁类型代号、序号、跨数及有无悬挑代号几项组成,见下表:值优先。
为方便施工,凡框架梁的所有支座和非框架梁(不包括井字梁)的中间支座上部纵筋的延伸长度A值在(二)梁支座上部纵筋的长度规定便。
用引出单独放大进行注写的措施来表达。
当表达异形截面梁的尺寸与配筋时,用截面注写方式相对比较方标准构造详图中统一取值为:第一排非通长筋从柱(梁)边起延伸至ln / 3位置;第二排非通长筋从柱(梁)在梁平法施工图的平面图中,当局部区域的梁布置过密时,了全了采用截面注写方式表达外,也可采时,应由设计者另加注明。
基础井字梁平法标注中B,T分别代表什么?/基础井字梁平法标注为:JXL1(5)400*600Φ8@200(4)B4Φ25,T4Φ16其中B,T分别代表什么?陈清来教授主编的04G101-3筏型基础图集中说的比较清楚:B表示基础梁底部贯通纵筋,T表示顶部贯通纵筋,本梁原位标注表示的是:梁底部贯通纵筋4Φ25,顶部贯通纵筋4Φ16 ,箍筋为Φ8间距200,四肢箍.JL6(6B)750*1400YC10-150(4)B10C25;T8C25N8C18;LA8-400YC16-170;A8-300YB 3600*400基梁6(6跨)截面宽750mm高1400mm箍筋为三级钢直径10mm间距150四肢箍下部为10根直径25二级钢;上部为8根直径25三级钢抗扭为8根[每侧4根]直径18三级钢;拉筋为直径8一级钢间距400mmYc应该是加腋的三级钢16的间距170 分布筋是一级钢8间距300DL500*1000、Φ8@100/200B8Φ25;T6Φ20抗扭配筋DL:名称500*1000:截面尺寸,梁宽*梁高A8@100/200(4):箍筋道数、强度等级、直径、第一种间距/第二种间距、(肢数)B4B25:底部(B)贯通纵筋根数、强度等级、直径T5B20:顶部(T)贯通纵筋根数、强度等级、直径N4B16:梁侧面纵向抗扭钢筋根数、强度等级、直径7B25:底部纵筋(含贯通筋)原位标注JZL1(4)400*800Y Φ8-200(4)B2Φ25+2Φ22 N2Φ16;LΦ8-400 YΦ12-150;Φ-300JZL1(4)400*800Y 梁的尺寸为400宽800高,Y是表示梁加腋,为倒T型。
Φ8-200(4)梁箍筋一级钢间距200,四肢箍B表示梁底通长钢筋,B是英文底部的开头字母。
好像是bottom吧。
N2Φ16;LΦ8-400 抗扭钢筋每侧1根16二级钢,拉筋8间距400,用于固定两根抗扭钢筋YΦ12-150;Φ-300 Y还是加腋,值得是条形基础,受力钢筋时12间距150,分布钢筋时8间距300.多看看图集吧!这个梁的所谓加腋应该就是它的倒T形条形基础!梁宽小于柱宽是正常的,因为是基础梁。
梁集中标注的五项必注值1. 简介在梁集中标注任务中,有五项必注值需要特别关注。
这些必注值是指在标注过程中需要特别注意和准确标注的值或信息。
本文将对这五项必注值进行详细解释和说明。
2. 必注值一:实体在梁集中标注任务中,实体是指具体的人、地点、组织、日期等有明确含义的名词。
在进行标注时,需要准确地识别并标记出文本中出现的实体。
例如,在一段文本中提到了”张三”、“北京”和”谷歌公司”,则需要将这些实体分别标记为人名、地名和组织名。
实体的标记可以使用不同的方式,比如使用方括号括起来、使用特殊符号或使用特定的颜色等。
无论采用何种方式,都应保证清晰可辨。
3. 必注值二:时间与日期时间与日期是梁集中标注任务中另一个重要的必注值。
在文本中出现的时间和日期信息需要被准确地识别并进行标记。
例如,在一篇新闻报道中提到了”2022年6月1日”,则需要将其正确地识别为一个日期,并进行相应的标注。
时间与日期的标记可以采用统一的格式,比如使用ISO 8601标准的日期格式,或者使用常见的日期表示方式,如”年-月-日”。
在进行标记时,应确保格式一致、清晰可辨。
4. 必注值三:关系在梁集中标注任务中,关系是指实体之间的相互联系和作用。
在进行标注时,需要准确地识别并标记出实体之间的关系。
例如,在一段文本中提到了”张三是李四的父亲”,则需要将这个关系正确地识别为”父子关系”。
关系的标记可以使用不同的方式,比如使用箭头表示、使用特殊符号或使用特定的颜色等。
无论采用何种方式,都应保证清晰可辨。
5. 必注值四:情感情感是梁集中标注任务中另一个重要的必注值。
在文本中出现的情感信息需要被准确地识别并进行标记。
例如,在一篇评论中提到了”这个产品很好用”,则需要将其正确地识别为一个正面情感。
情感可以分为积极、消极和中性三种类型。
在进行情感标记时,应根据文本内容和上下文判断出主要情感,并进行相应的标注。
6. 必注值五:事件事件是梁集中标注任务中最后一个必注值。
梁标注详解
梁标注是梁架建筑物施工图中被广泛使用的一种标记方式,它是为了
提高施工进度,管理施工材料和提高施工质量而引入的。
它的具体内容包
括梁的宽度、高度、型号和材质等。
梁标注的标号规则一般是“梁类型+宽度+高度+材料材质”,比如
H25x150x8x25K表示是H梁类型,宽度25厘米,高度150厘米,梁材8
厘米,材质25K即25兆帕碳素钢梁材。
梁标注一般由梁材型号、梁材宽度、梁材高度、梁材节距、梁材材质、梁架净空尺寸、节点位置等7个部分组成,如H25x150x8x25K,分别代表
H型梁,宽度25厘米,高度150厘米,节距8厘米,材质25K即25兆帕
碳素钢材质,梁架净空尺寸25厘米。
梁标注有助梁架施工,在施工进度上能更高效、精确,避免不必要的
损失,但也要求施工人员懂得正确地理解、使用梁标注,有正确操作技术,否则会导致施工失败。
梁原位标注方法
以下是 6 条关于梁原位标注方法的内容:
1. 嘿,你知道梁原位标注方法吗?这就好像是给梁量身定制衣服一样重要啊!就拿那根大梁来说吧,要是标注不准确,后果可不堪设想。
比如标注纵筋的时候,要是标错了位置,那这梁的强度能有保障吗?所以啊,一定要仔细再仔细!
2. 梁原位标注方法其实不难理解呀!想象一下,这就像是给梁画一幅详细的地图。
像标注箍筋的间距,那可不是随便画画就行的呀,万一间距搞大了或者小了,梁的稳定性咋办哟!像我们上次遇到的那个项目,就是因为标注马虎了点,差点出问题呢!
3. 梁原位标注方法,你们真的懂吗?这可不是开玩笑的事情哟!好比给梁安装各种关键零件,每一个标注都得精准无误。
比如说标注梁的截面尺寸,要是标错了,那不就成了四不像啦?还怎么支撑起整个建筑呀!
4. 哇塞,梁原位标注方法真的很关键啊!这简直就是梁的灵魂标注啊!就好比给梁赋予了特别的使命。
例如标注梁的标高,这要是弄错了,上下不就对不上了,那不是乱套了吗?可不能小瞧了这个环节呀!
5. 梁原位标注方法其实挺有趣的哦!就跟玩拼图一样。
比如在标注梁的支座情况时,就得像对待最珍贵的宝贝一样细心。
要是随随便便标一下,到时候出问题了怎么办呢?这可不是闹着玩的呀!
6. 梁原位标注方法你们千万不能忽视呀!这可以说是梁的生命线呢!如同给梁打造独特的印记。
像标注梁的混凝土强度等级,这要是搞错了,梁的质量能合格吗?所以一定要重视起来呀!我觉得梁原位标注方法真的非常重要,一定要认真对待!。
梁集中标注的内容,有五项必注值及一项选注值(集中标注可以从梁的任意一跨引出),规定如下:
一、梁编号,该项为必注值。
梁编号
梁类型代号序号跨数及是否带有悬挑
楼层框架梁屋面框架梁框支梁非框架梁悬挑梁井字梁
KL
WKL
KZL
L
XL
JZL
XX
XX
XX
XX
XX
XX
(XX)、(XXA)或(XXB)
(XX)、(XXA)或(XXB)
(XX)、(XXA)或(XXB)
(XX)、(XXA)或(XXB)
(XX)、(XXA)或(XXB)
注:(XXA)为一端有悬挑,(XXB)为两端有悬挑,悬挑不计入跨数。
例KL7(5A)表示第7号框架梁,5跨,一端有悬挑:
L9(7B)表示第9号非框架梁,7跨,两端有悬挑。
二、梁截面尺寸,该项为必注值。
当为等截面梁时,用b×h表示;当为加腋梁时,用b×h Y c1×c2表示,其中c1为腋长,c2为腋高;
当有悬挑梁且根部和端部的高度不同时,用斜线分隔根部与端部的高度值,即为b×h1/h2。
三、梁箍筋,包括钢筋级别、直径、加密区与非加密区间距及肢数,该项为必注值。
箍筋加密区与非加密区的不同间距及肢数需用斜线“/”分隔;当梁箍筋为同一种间距及肢数时,则不需用斜线;当加密区与非加密区的箍筋肢数相同时,则将肢数注写一次;箍筋肢数应写在括号内。
加密区范围见相应抗震级别的标准构造详图。
例Φ10@100/200(4),表示箍筋为Ⅰ级钢筋,直径φ10,加密区间距为100,非加密区间距为200,均为四肢箍。
Φ8@100(4)/150(2),表示箍筋为Ⅰ级钢筋,直径φ8,加密区间距为100,四肢箍,非加密区间距为150,两肢箍。
当抗震结构中的非框架梁、悬挑梁、井字梁,及非抗震结构中的各类梁采用不同的箍筋间距及肢数时,也用斜线“/”将其分隔开来。
注写时,想注写梁支座端部的箍筋(包括箍筋的箍数、钢筋级别、直径、间距与肢数),在斜线后注写梁跨中部分的箍筋间距及肢数。
例13Φ10@150/200(4),表示箍筋为Ⅰ级钢筋,直径φ10,梁的两端各有13个四肢箍,间距为150;梁跨中部分间距为200,四肢箍。
18Φ12@150(4)/200(2),表示箍筋为Ⅰ级钢筋,直径φ12,梁的两端各有18个四肢箍,间距为150,梁跨中部分,间距为200,双肢箍。
四、梁上部通长钢筋或架立筋配置(通长筋可为相同或不同直径采用搭接连接、机械连接或对焊连接的钢筋),该项为必注值。
所注规格与更熟应根据结构受力要求及箍筋肢数等构造要求而定。
当同排纵筋中既有通长筋又有架立筋时,应采用加号“+”将通长筋和架立筋相联。
注写时须将角部纵筋写在加号的前面,架立筋写在加好后面的括号内,以示不同直径及与通长筋的区别。
当全部采用架立筋时,则将其写入括号内。
例2Φ22 用于双肢箍;2Φ22+(4Φ12)用于六肢箍,其中2Φ22为通长筋,4Φ12为架立筋。
当梁的上部纵筋和下部纵筋为全跨相同,且多数跨配筋相同时,此项可加注下部纵筋的配筋值,用分号“;”将上部与下部纵筋的配筋值分隔开来,少数跨不同者,按第4.2.1条的规定处理。
例3Φ22;3Φ20 表示梁的上部配置3Φ22的通长筋,梁的下部配置3Φ20的通长筋。
五、梁侧面纵向构造钢筋或受扭钢筋配置,该项为必注值。
当梁腹板高度h w≥450mm时,需配置纵向构造钢筋,所注规格与根数应符合规范规定。
此项注写值以大写字母G打头,接续注写设置在梁两个侧面的总配筋值,且对称配置。
例G4Φ12,表示梁的两个侧面共配置4Φ12的纵向构造钢筋,每恻各配置2Φ12。
当梁侧面需配置受扭纵向钢筋时,此项注写值以大写字母N打头,接续注写配置在梁两个侧面的总配筋值,且对称配置。
受扭纵向钢筋应满足梁侧面纵向构造钢筋的间距要求,且不再重复配置纵向构造钢筋。
例N6Φ22,表示梁的两个侧面共配置6Φ22的受扭纵向钢筋,每侧各配置3Φ22。
注:1、当为梁侧面构造钢筋时,其搭接与锚固长度可取为15d。
2、当为梁侧面受扭纵向钢筋时,其搭接长度为l l或l lE(抗震);其锚固长度与方式同框架梁下部纵筋。
六、梁顶面标高高差,该项为选注值。
梁顶面标高高差,系指相对于结构层楼面标高的高差值,对于位于结构夹层的梁,则指相对于结构夹层楼面标高的高差。
有高差时,须将其写入括号内,无高差时不注。
注:当某梁的顶面高于所在结构层的楼面标高时,其标高高差为正值,反之为负值。
例如:某结构层的楼面标高为44.950m和48.250m,当某梁的梁顶面标高高差注写为(-0.050)时,即表明该梁顶面标高分别相对于44.950m和48.250m低0.05m。
梁原位标注的内容规定如下:
一、梁支座上部纵筋,该部位含通长筋在内的所有纵筋:
1、当上部纵筋多于一排时,用斜线“/”将各排纵筋自上而下分开。
例梁支座上部纵筋注写为6Φ25 4/2,则表示上一排纵筋为4Φ25,下一排纵筋为2Φ25
2、当同排纵筋有两种直径时,用加号“+”将两种直径的纵筋相联,注写时将角部纵筋写在前面。
例梁支座上部有四根纵筋,2Φ25放在角部,2Φ22放在中部,梁支座上部应注写为2Φ25+2Φ22。
3、当梁中间支座两边的上部纵筋不同时,须在支座两边分别标注;当梁总监支座两边的上部纵筋相同时,可仅在支座的一边标注配筋值,另一边省去不注。
(下图)设计时应注意:
1、对于支座两边不同配筋值的上部纵筋,宜尽可能选用相同直径(不同根数),使其贯穿支座,避免支座两边不同直径的上部纵筋均在支座内锚固。
2、对于以边柱、角柱为端支座的屋面框架梁,当能够满足配筋截面面积要求时,其梁的上部钢筋应尽可能只配置一层,以避免梁柱纵筋在柱顶处因层数过多、密度过大导致不方便施工和影响混凝土浇筑质量。
二、梁下部纵筋:
1、当下部纵筋多于一排时,用斜线“/”将各排纵筋自上而下分开。
例梁下部纵筋注写为6Φ25 2/4,则表示上一排纵筋为2Φ25,下一排纵筋为4Φ25,全部伸入支座。
2、当同排纵筋有两种直径时,用加号“+”将两种直径的纵筋相联,注写时角筋写在前面。
3、当梁下部纵筋不全部伸入支座时,将梁支柱下部纵筋减少的数量写在括号内。
例梁下部纵筋注写为6Φ25 2(-2)/4,则表示上排纵筋为2Φ25,且不伸入支座;下排纵筋为4Φ25,全部伸入支座。
梁下部纵筋注写为2Φ25+3Φ22(-3)/5Φ25,则表示上排纵筋为2Φ25和3Φ22,其中3Φ22不伸入支座;下排纵筋为5Φ25,全部伸入支座。
4、当梁的集中标注中已按集中标注的规定(注:即上文第四条)分别注写了梁上部和下部均为通长的纵筋值时,则不需在梁下部重复做原位标注。