1、先张法预应力空心板台座的设计及分析
- 格式:doc
- 大小:89.50 KB
- 文档页数:5
先张法预应力空心板张拉台座结构设计1先张法台座的基本要求承力台座必须具有足够的强度和刚度,其抗倾覆安全系数应不小于,抗滑移系数应不小于。
横梁须有足够的刚度,受力后挠度应不小于2mm0在台座上铺放预应力筋时,应采取措施防止沾污预应力筋。
张拉前,应对台座,横梁及各项张拉设备进行详细检查,符合要求后方可进行操作。
2压杆式台座的设计压杆式台座结构形式的选定压杆式台座采用矩形截面。
压杆式台座为双肢受压结构,主要算其截面强度,稳定性及变形。
2.1.1压杆的受力分析及计算方法由于钢绞线距底模距离一般设计为4.5cm,因此纵向力作用在偏离压杆形心0.5cm处,可近似认为压杆为中心受压构件,压杆按素碇设计,按构造进行配筋,单肢压杆承受力为P/2,按极限状态法计算。
(1)强度验算NjW a AR j a r mNj—纵向力;a—纵向力偏心系数;A—构件截而而积aXb;RL-材料抗压强度;心-材料安全系数。
设等式右边为R,当NjWR时强度满足要求;NpR时强度不满足要求,需重新设计压杆截面,重新验算。
(2)稳定性验算NjW 4)a AR J a/r m受压构件纵向弯曲系数首先因压杆中心设置系梁,限制压杆侧向位移,因此压杆按一端固结,一端较接计算。
求出长细比S/h,查出4)值进行验算。
若有一条件式不满足要求时,就需重新设置压杆断面。
设计荷载的确定由于端横梁的刚度大,无挠曲变形,因此每根钢绞线的张拉力取同一值。
根据一片空心板中钢绞线的设计根数、张拉控制应力及超张拉系数,确定台座的设计荷载。
P = n o An—钢绞线根数;o —张拉控制应力;A—钢绞线截而积;已知一片空心板梁设计23根钢绞线,每根钢绞线张拉控制应力为1395Mpa,张拉力为。
计算时超张拉系数考虑,每根张拉力为205KN,则台座的设计荷载P=23x205=4715 (KN)。
台座长度的确定采用长线台座既有经济上的考虑,也有力学性能方面的考虑。
特别在力学方面有两个优点:可以减少张拉和锚固工作量及预应力筋端头损失;可以减少因预应力筋在锚具中滑移及横梁变形所造成的预应力损失。
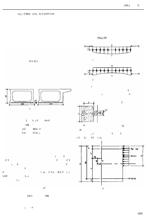
先张法预应力空心板梁长线台座设计与施工l 概述xx至xx(xx界)高速公路LJ-11标段的先张法预应力空心板梁采用了先简支、后连续的预制梁结构体系,板梁跨径为16m,梁体采用C5O 混凝土,其横断面尺寸见图1(以中跨中梁为例),梁内钢绞线单根分开布置,最多达12根(中跨中梁为11根),板梁最大自重荷载为221.5KN(中跨中梁为184KN)。
预应力刚束采用1×7标准型GB/T5224—2003钢绞线,预应力设计采用一端张拉,单根钢绞线公称直径l5.24㎜,钢绞线截面A=140mm2,标准强度f pk=1860MPa,钢绞线锚下控制应力为0.72f pk =1339.2MPa,弹性模量Ep=1. 95×105MPa。
图1 16m先张预应力空心板梁横断面(单位:cm)2 空心板梁长线槽式台座设计构造2.1设计依据及原理本文以一次性生产4片16m先张法空心板梁的张拉力作为台座的受力设计,中板设计为11根预应力钢绞线,边板设计为12根预应力钢绞线,施工时采用先采用小千斤顶逐根张拉至初始应力,然后再采用大型千斤顶一次同时逐级张拉,并达到设计控制应力。
采用槽式台座,其设计原理是把长线受压纵向传力柱作为一个两端受压杆件,这样可以大大增强台座的稳定性,以达到多次重复利用(大批量生产)的目的。
2.2 设计结构构造空心板梁长线槽式台座由端柱、传力柱、横梁和台面组成,端柱和传力柱为钢筋混凝土结构,是承受张拉力的构件,需要具有足够的稳定性和强度。
为增强传立柱的稳定性,两道传立柱之间每隔5m 左右设一道钢筋混凝土横梁,其中第一道横梁距端柱不超过2m,且传力柱有30cm埋置于土中。
台面采用10cm厚C20混凝土,台面混凝土表面铺5mm厚钢板,两边利用∠50×50×5角钢贴边,每隔1m横向连接一根Ф12钢筋,角钢与预埋钢筋进行焊接。
台面的宽度主要取决于预制构件的宽度,本台面宽度为99cm,在台座张拉端留出2m 宽空地,作为张拉操作空间和通道。
先张预应力空心板张拉台座设计计算预制板台座采用一般墩式台座形式,下面对其主要受力部位进行受力计算:一、 尺寸拟定说明1、墩式台座有钢筋砼加强墩,台面及钢横梁组成(尺寸如图所示),加强墩与台面共同受力。
加强墩采用C30钢筋混凝土浇筑,其端部采用45cm ×60cm ×2cm 加强钢板来分散压力,台面下部为10cm 厚的C30混凝土,台面上部为10cm 厚C50混凝土。
台座验算附后。
2、钢横梁钢横梁采用56C 号工字钢,两根重叠,工字钢上下用2cm 厚钢板焊接加固,以增加横梁的钢性。
正面亦用2cm 钢板加固,并在钢板上按设计尺寸预留钢绞线的位置。
钢梁要求位置准确,保证钢绞线的中心与压柱中心位于同一直线上。
钢横梁的验算附后。
二、台座验算1、台墩抗倾覆能力验算。
如上图所示,可按下式验算(忽略土地13090070的侧压力影响):K0=M’/M=(G1L1+G2L2)/Te式中: K0--台墩的抗倾覆安全系数;M—张拉力T产生的倾覆力矩(KN〃m);T—张拉力(KN); 以10m预制边板超张拉5%计算得:T=δ控×A×β=1395×106×140×10-6×1.05×15=3076KNe—张拉力T的作用点至倾覆转动点的力臂(m),该点位置台面下5cm处,e=0.7-0.45+0.05=0.3mM’—台墩的抗倾覆力矩(KN〃m);G1—台墩主体部分的自重力(KN);砼的单位体积重量取25 KN/m3G1=(1.3×2.7×1.5+0.7×0.5×1.5+0.5×0.5×1.5)×25 =154.13 KNL1--台墩主体部分的重心至倾覆转动点距离(m);L1=9-1.5/2=8.25mG2—台墩外伸部分的自重力(KN);G2=(7.5×0.7×0.7+0.35×0.35/2×2.7)×25=96KNL2--台墩外伸部分的重心至倾覆转动点距离(m)。
先张法台座设计及施工张拉台座是先张法施以预应力的主要设备,它承受预应力筋在构件制作时的全部张拉力。
张拉台座必须具有足够的强度和刚度,其抗倾覆安全系数应≥1.5,抗移系数应≥1.3。
同时固定横梁与活动横梁必须有足够的刚度,受力后挠度应不大于钢梁的最大挠度。
先张法是在台座上张拉预应力钢材,然后浇筑水泥混凝土以形成预应力构件的施工方法。
此先张法台座按构造形式为槽墩结合式。
工程概况:共有45片13米先张空心板梁,全部采用预应力1860MPa低松驰钢绞线,单根钢绞线张拉控制应力1302MPa,空心板梁设计规格普遍为13m(长)×1.24m(宽)×0.7m(高),单块板梁配置12根(边梁13根)钢绞线。
1 设计依据及设计要求1.1 设计依据(1)技术资料。
该桥梁工程设计图纸及工程有关文件。
(2)规范、标准。
《公路桥涵设计通用规范》(JTJ021-89);《公路桥涵施工技术规范》(JTJ041-2000)。
1.2 设计要求要求空心板梁预应力钢绞线强度标准值达到1860MPa,张拉控制应力1302MPa。
2 台座设计2.1 台座形式工程选用墩槽式台座,根据施工及进度要求,台座设计纵向两排台座,台座设计长度为48.2m,每排采用3线长线台座,宽度为3.2m。
每线可同时生产3片空心板梁,台座需承受2400t的张拉力。
先张法台座见附图。
2.2 台座结构设计及验算2.2.1 结构设计台座设置2根通长纵梁(传力柱),台座两侧2根纵梁规格为600mm(宽)×500mm (高),中间1根纵梁规格为1200mm(宽)×500mm(高),配8根Φ16螺纹钢筋和φ10@200箍筋。
两头设立端承台,规格1600mm(宽)×1500mm(高)。
台面下每7m设置一道600mm(宽)×500mm(高)横向联系梁,共四道,横系梁主筋为8根Φ16mm螺纹钢,箍筋为φ8@200。
混凝土强度均为C30。
预应力空心板张拉台座设计及施工马坝大桥预应力空心板张拉台座设计及施工摘要:马坝大桥先张法预应力空心板张拉台座的设计及施工。
一、工程概况马坝大桥是国道106线马坝炮师至狮子岩段改建工程项目中的一座大桥,跨越马坝河,全长171.2米,宽21.5m,其上部结构为跨径20米先张法预应力空心板,全桥8跨,全桥共160片空心板梁,采用槽式张拉台座进行空心板的预制施工。
二、空心板张拉台座的设计(1)预制场的设置空心板梁预制场设在马坝大桥8#台后广州方向已平整压实的路基上,预应力张拉台座设在左幅路基上,张拉台左外边预留3米左右的位置为起梁、移梁等设施用地,钢筋加工棚、砂、碎石、水泥堆放场地、搅拌站设在路基右侧,在路基中间预留一条5米左右的施工便道,根据该桥场地和工期及梁的数量,确定采用3长线、4片梁/线的槽式张拉台座进行空心板的预制。
(如图1所示)(2)、预应力空心板张拉台座的设计张拉台座由压杆、横向连续梁、端部重力墩、底板及端部横梁构成。
1、初定张拉台座尺寸及砼标号张拉台座主要受力构件为压杆,由C30砼浇筑,取其截面尺寸:边杆为45cm×50cm,中杆为50cm×50cm,压杆之间净距取:(梁宽)1.0m+(工作空位)0.2m×2=1.40m;为保证台座刚度和稳定性设置了横向连续梁,由C30砼浇筑,其间距为5.0m(或5.5m),其截面尺寸为40cm×20cm;出于安全保守设计,台座端部设置了重力墩,由C15片石砼浇筑;底板为厚15cmC20砼,5cm厚C20砼细石砼台座面层;张拉台座长宽尺寸(如图2所示)台座长:(梁)4×20.0m+(梁间距)3×1.0m+(台座端部)2×2.7m=88.4m;台座宽:槽宽[(1.0m+0.2m×2)×3]+压杆宽[0.45m×2+0.5m×2]=6.1m;2、张拉台座的受力计算:①计算数据:图纸要求:预应力钢绞线采用符合ASTM A-416-87a ,标准的270级φ12.7的钢绞线,空心板中板为17根、边板18根钢绞线,其物理力学指标如下:标准强度:Kby=1860Mpa公称截面积:Ai=98.71mm2张拉控制应力:σk=0.75Kby=1395Mpa张拉控制力:Pk=1395×98.71/1000=137.7KN超张拉103%应力: 1.03σk=1436.85Mpa每根钢绞线最大张拉力:P1=1.03σk×Ai=141.8KN每片中梁17根钢绞线张拉总计为:P=17×141.8=2410.6KN每片中梁18根钢绞线张拉总计为:P=18×141.8=2552.4KN②受力计算:Ⅰ、压杆受力验算:当多条生产线同时生产时,中压杆为受力最大的构件,采用有效承压面50cm×50cm,中柱受力计算取边梁最大张拉力2552.4KN,正应力:σk=2552.4×1000/(500×500)=10.21Mpa<30Mpa因此,压杆采用C30砼浇筑强度符合设计要求。
先张法预应力空心板预制场及台座设计及施工方案1设计依据及设计要求1.1设计依据(1)技术资料。
跨线桥梁工程设计图纸及工程有关会议纪要及有关文件。
(2)规范标准。
《公路桥涵设计通用规范》(JTJ021-89);《公路桥涵施工技术规范》(JTJ041-2000)。
1.2设计要求空心板梁预应力钢绞线强度标准值达到1860MPa,张拉控制应力1395MPa。
2 台座设计2.1 台座形式工程选用框架式台座,根据施工及进度要求,台座共设置5槽,台座设计长度为72.2m。
每线可同时生产4片空心板梁,台座需承受1800t的张拉力。
先张法框架式台座见附图。
2.2台座结构设计及验算2.2.1结构设计台座设置6根通长纵梁(传力柱),台座两侧纵梁2根规格为500mm(宽)×600mm(高),中间4根纵梁规格为600mm(宽)×600mm(高),配8根Φ20螺纹钢筋和φ10@200箍筋。
两头设立端承台,规格900mm(宽)×750mm(高)。
每6m设置一道400mm(宽)×250mm (高)横向联系梁,共十三道,横系梁主筋为6根Φ16mm螺纹钢,箍筋为φ8@200。
混凝土强度均为C30。
张拉端采用钢梁,由2根56#I字钢和钢板焊接而成。
2.2.2结构验算(1)选择台座截面形式:台座采用C30钢筋混凝土结构,为简化形式节约材料,本方案将预应力钢束的作用面及预应力张拉传力系统(千斤顶、横梁等)与台座传力柱设计在同一平面上。
在施工时要严格控制张拉及传力系统的位置以保证施工安全。
依据空心板梁的设计要求,每片中梁钢绞线(20m)张拉力为195×17=3315KN,每片边梁钢绞线张拉力为195×18=3510KN,故传力柱最大压力出现在边梁张拉时,每根传力柱所受最大压应力为:F=3510KN传力柱采用C30号混凝土,其设计抗压强度为15N/mm2,则受压端的最小受力面积为:Smin=3510000÷15=234000mm2=2340cm2考虑安全系数1.5后的截面为:S1.5 =2340×1.5=3510cm2选择传力柱截面形式为:S=宽×高=60×60=3600㎝2(2)先张法台座验算。
先张法预应力空心板台座的设计及分析河北路桥集团有限公司孟祥马【内容简介】近几年来随着经济的增长, 在公路桥梁建设中, 跨径大于10m的中小桥梁上部结构基本采用先张法预应力空心板。
先张法预应力空心板梁在预制场中一般采取集中预制, 因此先张法张拉台座的结构设计是重要的一环。
本文结合在商漫高速公路先张法梁板预制工程为实例, 依据先张法空心梁施工原理, 对张拉台座进行了结构设计, 通过张拉台座受力检算, 优化结构尺寸, 尽可能的降低了建设成本。
本文将本工程先张法预制梁张拉台座结构设计方案及受力检算进行分析。
【关键词】先张法台座设计及分析在先张法预应力空心板施工中,张拉台座的设计对梁板生产的成败起着决定性作用。
由于张拉台座的设计要与生产数量、要求工期、梁板型式、张拉力等指标相适应,所以目前尚无定型设计。
2006年6月,河北路桥集团有限公司承接了商漫高速公路N14合同段工程,该标段共有预应力混凝土连续空心板1838片,梁板预制工期为2006年9月到2007年12月,施工时间约为13个月,这样,按生产数量和工期要求,需建立一个月生产能力为150片以上的预制场。
本文结合张拉台座设计与施工的实践,介绍该台座的设计要点及使用情况。
先张预应力梁主要优点是生产周期短,适用于工期紧、数量多、工厂化生产。
因其设施费用一次性投资较多,为提高经济效益、降低成本,就必须最大限度地提高设备利用率,用较高的生产效率以发挥设施投资的应有作用。
预制场的总体设计包括台座型式、张拉与放张、移梁方式、生产数量,应综合考虑如下因素:生产数量和设施期限;安全适用,经济合理,质量有保证;操作简便,可控性好,周转快,生产周期短;设施可靠、耐久性强,支拆模板方便。
为满足上述要求,我公司根据线路走向及地理条件,我公司在互通区匝道圈内设计了长度为104.8m,宽度为30m,存梁区长度为200m,预制厂设置了80T龙门吊两台,其跨度为30m。
内设12线框架式制梁台座,每线预制5片空心板,一个循环可预制20m 空心板60片。
先张法预应力空心板张拉台座结构设计张稳柱 宋殿国 耿小义(辽宁省路桥建设一公司,沈阳 110141) (辽宁省交通勘测设计院,沈阳 110005) (辽宁省路桥建设一公司,沈阳 110141) 摘 要 主要介绍先张法预应力空心板张拉台座结构设计的方法。
关键词 先张法 张拉台座 结构设计1 前言近几年来随着经济的增长,高速公路发展越来越快,在高速公路建设中,跨径大于10m的中小桥梁上部结构基本采用先张法预应力空心板。
先张法预应力空心板在预制场中一般集中进行预制,预制场中先张法张拉台座的设计及布设是重要的一环。
2 先张法台座结构的基本要求(1)承力台座必须具有足够的强度和刚度,其抗倾覆安全系数应不小于1.5,抗滑移系数应不小于1.3。
(2)横梁须有足够的刚度,受力后挠度应不小于2mm。
(3)在台座上铺放预应力筋时,应采取措施防止沾污预应力筋。
(4)张拉前,应对台座、横梁及各项张拉设备进行详细检查,符合要求后方可进行操作。
3 压杆式台座的设计3.1 台座长度的确定采用长线台座既有经济上的考虑,也有力学性能方面的考虑。
特别在力学方面有两个优点:可以减少张拉和锚固工作量及预应力筋端头损失;可以减少因预应力筋在锚具中滑移及横梁变形所造成的预应力损失。
台座长度L的确定根据下面几个方面:(1)空心板长度L1;(2)一座台座同时预制空心板个数n;(3)空心板端头与张拉横梁之间的距离L2(取决于胶囊端头长度);(4)空心板端头之间距离L3。
L=nL1+2L2+(n-1)L33.2 台座宽度的确定台座宽度主要取决于构件外形尺寸的大小,生产操作的方便程度以及用料经济情况等方面。
台座宽度太窄,会影响模板的安装与拆卸;太宽则需用较大的横梁,用钢量及占地就增多。
式中:B=b1+2b2B———台座内部净宽;b1———空心板底模宽度;b2———压杆内侧面与底模间的距离。
3.3 台座高度的确定压杆式台座一般在地表以上,台座突出地面的高度不宜太大。
结合工程探讨先张法预应力空心板台座的设计与施工摘要:本文结合工程实例分析了先张法预应力空心板台座结构特征及其刚度、稳定性验算,并对先张法张拉台座施工中应注意的事项进行了阐述。
关键词:桥梁;先张法;预应力空心板台座;设计;施工Abstract: this paper analyzed in the light of engineering examples of law first prestressed concrete hollow slab base structure characteristics and stiffness and stability checking, and a method of first drawing pedestal matters needing attention in the construction is discussed in this paper.Keywords: bridge; First a law; Prestressed concrete hollow slab base; Design; construction0.前言桥梁工程预应力技术至今已得到广泛应用,预应力筋的张拉方法分为先张法与后张法两种,先张法因建设张拉台座需要投入一定的资金,预制少量板梁时一般采用后张法施工,而需要大批量生产板梁时先张法就充分表现出其经济性和质量稳定性的优点,而张拉台座是先张法预应力混凝土板梁的主要构件,其主要作用是承受张拉预应力筋时产生的反力。
对张拉台座的设计主要考虑其稳定性、安全性、经济性。
三亚海棠大道二标段桥梁工程总共4座桥梁,均为20m先张法预应力空心板梁,中梁及板梁共计1148片,下面就介绍该工地先张法预制场台座的设计及施工情况。
1. 预制场的总体规划在一定的工期内所要求预制的空心板梁数量较大,为能保证在规定的工期内按时完成板梁的预制,根据现有的场地征用情况,在海棠湾5号路转盘与二标交接处西南面约27亩长方形地设置空心板梁预制场。
先张法预应力空心板梁施工工艺1、先张法的设计理论先张法是先在台座上张拉预应力钢筋并作临时固定,然后浇筑砼,待砼达到一定的强度时(一般不低于设计强度的70%),放松预应力钢筋。
当预应力筋回缩时,从而使砼获得预压应力。
所以,先张法是靠钢筋与砼粘结来传递的。
2、先张法预制场的组成设施先张法预制台座3、生产工艺流程=(1)预应力张拉张拉时,两台千斤顶需要同步,采用油压表读数和伸长量双控,保持拉杆平衡伸出。
张拉完,马上放入马蹄铁,阻挡拉杆回缩,保持钢绞线的张拉力。
(2)内模板构造内模板1米一节,设合叶,可折叠回收。
折叠后的单节内模板,可以人工搬运,便于回收。
内模板的底缝隙比较大,便于浇捣底板砼。
内模板上表面有活动钢板,可封闭,完成箱体的砼浇注。
(3)混凝土浇筑(4)绑扎面板钢筋面板混凝土浇筑(4)回收内模板和封梁头砼浇捣后的第二天,便可以进行内模板的回收。
人员进入板梁内部,拆下螺丝及支撑,折叠模板,传递出梁外。
拆模时需要注意箱梁内部的通风和降温。
回收完内模板,进行封梁头。
可以采取砌砖和模板相结合的办法。
(5)放张的注意事项砼达到设计要求的强度,并达到龄期要求。
千斤顶上油,抽起马蹄铁,回油,缓慢放松钢绞线。
梁片之间不能战人,在放张过程中,梁片会挪动。
切割钢绞线要求采用砂轮切割机,不允许采用气焊切割。
(6)移梁和归梁梁片在梁头砼达到强度后,便可以吊离生产台座,空出台座进行下批次梁片的生产。
吊梁归梁可采用预埋吊环或兜底的方法,但对应16cm跨的小梁,并考虑到先张法预制场空间比较狭小,采用吊环进行归堆。
先张法预应力空心板台座的设计及分析
河北路桥集团有限公司孟祥马
【内容简介】近几年来随着经济的增长, 在公路桥梁建设中, 跨径大于10m的中小桥梁上部结构基本采用先张法预应力空心板。
先张法预应力空心板梁在预制场中一般采取集中预制, 因此先张法张拉台座的结构设计是重要的一环。
本文结合在商漫高速公路先张法梁板预制工程为实例, 依据先张法空心梁施工原理, 对张拉台座进行了结构设计, 通过张拉台座受力检算, 优化结构尺寸, 尽可能的降低了建设成本。
本文将本工程先张法预制梁张拉台座结构设计方案及受力检算进行分析。
【关键词】先张法台座设计及分析
在先张法预应力空心板施工中,张拉台座的设计对梁板生产的成败起着决定性作用。
由于张拉台座的设计要与生产数量、要求工期、梁板型式、张拉力等指标相适应,所以目前尚无定型设计。
2006年6月,河北路桥集团有限公司承接了商漫高速公路N14合同段工程,该标段共有预应力混凝土连续空心板1838片,梁板预制工期为2006年9月到2007年12月,施工时间约为13个月,这样,按生产数量和工期要求,需建立一个月生产能力为150片以上的预制场。
本文结合张拉台座设计与施工的实践,介绍该台座的设计要点及使用情况。
先张预应力梁主要优点是生产周期短,适用于工期紧、数量多、工厂化生产。
因其设施费用一次性投资较多,为提高经济效益、降低成本,就必须最大限度地提高设备利用率,用较高的生产效率以发挥设施投资的应有作用。
预制场的总体设计包括台座型式、张拉与放张、移梁方式、生产数量,应综合考虑如下因素:生产数量和设施期限;安全适用,经济合理,质量有保证;操作简便,可控性好,周转快,生产周期短;设施可靠、耐久性强,支拆模板方便。
为满足上述要求,我公司根据线路走向及地理条件,我公司在互通区匝道圈内设计了长度为104.8m,宽度为30m,存梁区长度为200m,预制厂设置了80T龙门吊两台,其跨度为30m。
内设12线框架式制梁台座,每线预制5片空心板,一个循环可预制20m 空心板60片。
台座由纵梁(传力柱)、横梁、活动钢横梁、横系梁、底板组成框架,其中,横梁、
活动钢横梁采用装配式钢组合梁,纵梁及横系梁采用混凝土现浇制成,底板采用混凝土现浇制作,顶面平整后在铺设水磨石面层。
横梁、活动钢横梁的预应力筋定位孔的平面位置、相互间距及标高必须准确,安装后定位孔中心轴线与底板表面的高差应符合设计及规范要求。
底板标高必须严格控制,且表面平整、光滑、排水畅通,直接作为预制空心板底摸板。
制梁台座必须坚固、无沉陷,按施工设计图纸设置梁底垫块凹槽。
在台座两端设置安全防护墙(板),以保证预应力施工时的安全。
张拉方法
1、张拉台型式,框架式制梁台座张拉方法是在张拉端和固定端各设一固定钢横梁(1号和2号),张拉端固定横梁前设一活动式钢横梁(3号)。
(示意图一)
钢铰线的一端用工具锚固定在2号横梁上,另一端通过连接器与张拉杆相连,并用螺母固定于3号横梁上(也可用工具锚将钢铰线直接固定在3号横梁上,但钢铰线浪费较多)。
安装在3号和1号横梁之间的2个千斤顶推动3号横梁向左移动,并通过张拉杆带动钢铰线,从而达到张拉钢铰线的目的。
一条生产线张拉完毕时,将套在张拉杆上位于1号横梁处的锚定、螺母锁紧,千斤顶回油,再松开套上张拉杆位于3号横梁处的螺母,以便3号横梁与2个千斤顶移位到另一条生产线进行张拉。
2、千斤顶与3号横梁的移位
2台千斤顶与3号横梁安装在1号平车上(见图3),张拉时,1号平车沿纵向轨道移动。
纵向轨道末端设有与1号横梁等长的横向轨道,并置于2号平车上。
2号平车顶面设有纵向轨道与1号平车的纵向轨道在同一水平面内,二者可以接轨。
需要将千斤顶与3号横梁移位时,只要将1号平车推到2号平车上,应可横向移动到任一生产线上。
这种移位方法与用小型天车相比,具有设备简单、灵活方便、省时省力等优点。
(示意图二)
3、放张方法
框架式制梁台座长大张拉台座的放张方法,采用千斤顶整体放张法,放张时,将3号活动横梁重新归位、锁紧其螺母,千斤顶适度超张拉,松开1号横梁上的锚定螺母,千斤顶缓慢回油,达到整体放张。
这种方法的优点是:操作方便、迅速,放张较平缓,虽产生超张拉应力,但实践证明,对构件未造成不良影响。
二、长大张拉台座的设计要求
1、台座抗倾覆稳定性验算
本场采用的框架式制梁台座,由于张拉力与传力柱轴线不重合,故需对台座进行抗倾覆稳定性验算。
其验算公式为:c
k M M K
≥1.5 式中:K ——抗倾覆稳定系数
M k ——抗倾覆力矩
M c ——倾覆力矩
验算式应按6条生产线同时受载的最不利情况考虑,并根据台座实际几何尺寸有关数据确定验算截面和倾覆点(力矩中心),分别计算Mk 和Mc ,代入公式验算。
2、传力柱正截面强度和稳定性验算
本场采用的框架式制梁台座,2个台座间设纵向传力柱,传力柱之间每隔15m 设一大横系梁,每隔7.5m 设一小横系梁。
钢横梁的支座反力分别作用于对应的传力柱上。
计算时按台座、台面(底模)、传力柱共同受力考虑,则台座的抗滑移稳定性取决于传力柱的强度和稳定性。
传力柱可视为偏心受压的混凝土构件,其纵向稳定性的计算长度可取相邻大横系梁之间的长度15m ,代入下列公式(式中符号意义及取值方法见JTJ022-85)可进行强度和纵向稳定性验算:
强度条件m j j R N γααA ≤; 纵向稳定条件m j j R N γϕααA ≤
3、钢横梁的强度和刚度验算
为了设计与加工方便,3个钢横梁可采用相同的材料和相同的截面,由上面确定的受力状态按计算结构内力和位移的一般方法算出横梁的Mmax 、Qmax 、Fmax 代入下列公式进行强度和刚度验算。
弯曲正应力强度条件:σmax =≤[σw]
弯曲剪应力强度条件:τmax =≤[τ]
弯曲刚度条件: f max ≤[f]
式中符号均为《公路桥梁设计规范》通用符号,其意义不再赘述。
其中钢横梁的最大挠度fmax ,依据图3,由结构位移计算的常用方法可导出其计算式为:
⎪⎪⎭
⎫ ⎝⎛+++=644853845134234max c ql c ql qlc qc EI f 式中:E ——钢横梁所用材料的弹性模量
I ——钢横梁横截面对其中性能的惯性矩
实际采用的钢横梁横截面尺寸见图5所示,使用结果安全可靠。
4、张拉杆与连接器的设计要点
(1)张拉杆
张拉杆的设计荷载为轴向拉力P =σcon Ap ,张拉杆采用精轧螺纹钢梯形螺杆配梯形
螺母,张拉杆与连接器相连的一端,是以螺母的外螺纹与连接器相连。
张拉杆的设计要点如下。
(2)拉伸强度条件
由σe =≤[σe ]确定控制截面的最小直径(即螺纹小径)[]e P d σπ3.141⨯≥
式中σe 和[σe ]分别为螺杆的计算拉应力和容许拉应力。
根据d 1的计算值由GB784-65选择相应的梯形螺纹,同时也就确定了螺母的螺纹大
径D 和螺距P 。
(3)强度条件
由公式:()
212214141d D D ππ≥- 确定螺母的最小外径2121D d D +≥
(4)把螺纹牙看作悬臂梁,由螺纹牙的弯曲强度条件
[]b b Db H Php Db Z Ph σππσ≤==2
1233 确定螺母的高度:[]213Db Php H b σπ≥
式中:h —— 螺纹牙的工作高度,h =0.5p
Z —— 螺纹的工作圈数,Z =H/p
b —— 螺纹牙的根部宽度,b =0.65p
[σb ] —— 螺母材料的容许弯曲应力
(5)连接器
连接器的设计荷载亦为轴向拉力P =σcon Ap ,其设计要点如下:
①连接器的内径和内螺纹与张拉杆螺母的外螺纹配套;
②连接器的最小外径(或壁厚),由拉伸强度条件确定;
③连接器右端壁厚δ由剪切强度条件确定。
张拉台座的型式有多种,本文介绍的“框架式制梁台座”只是其中的一种,由于具体的设计与计算牵涉诸多因素,且计算过程繁冗,不再赘述。
文中着重论述了总体设计构思和主要验算项目的计算方法,为类似工程的设计和计算提供参考。