GW4—40.5GD型户外高压隔离开关安装使用说明书
- 格式:doc
- 大小:54.50 KB
- 文档页数:6
GW4-40.5/72.5/126KV户外高压隔离开关安装尺寸结构简介1)35kV 成套隔离开关由GW4-40.5(D)(W)型隔离开关本体、CSⅡ、CS17或CS8-6D型人力操动机构、传动附件等组成,也可配用CJ6型等电动机构。
110kV 成套隔离开关由GW4-126(D)(W)型隔离开关本体、CS14G人力操动机构、传动附件等组成,也可配用CJ6型等电动机构。
2)该隔离开关属双柱水平开启式隔离开关。
制成单极型式,当三极同步使用时,极间用连接杆连接起来。
各单级都由基座、支柱绝缘子、出线座及触头等部分组成,两支柱绝缘瓷瓶相互平行地安装在基座两端地轴承上,且与基座垂直。
主导电部分分别安装在两支柱绝缘瓷瓶上方,随支柱绝缘瓷瓶作约90°转动。
3)隔离开关的每个轴承座内装有轴装配,两轴装配间通过连扳、调节螺杆等连接传动。
4)出线座中的紫铜编织带软连接分别紧固在导电杆和接线板上,接线板供用户连接路之用。
5)中间触头部分的触指称为装配,采用外压式或自力型触指,其形式为转入式,以减少分、合闸时触头与触指间的磨损,提高使用寿命。
6)隔离开关附有接地开关时,主导电回路与接地开关的联锁用基座上的扇形板与弧形板保证,在主导电回路合闸时,接地开关不可合闸,接地开关合闸时,主导电回路不可合闸。
配用CS8-6D或CS17-Ⅱ型时隔离开关与接地开关联锁由机构上的连锁板实现。
产品特点 GW4-40.5/72.5/126KV户外高压隔离开关安装尺寸1)隔离开关采用双柱中开、触头转入式结构,具有自动清洁触头的能力,提高了接触可靠性;2)触指采用高强度、高导电率、高弹性的新型材料制造。
依靠触指自身的弹力夹紧触头,避免了目前因弹簧锈蚀、发热退火而引起的触头夹紧力降低,接触电阻增加,触头发热家具的恶性循环;3)隔离开关转动部分按免维护的要求设计。
转动座设计成密封结构,水汽、尘埃、有害气体无法进入。
使轴承、二硫化钼锂基锂基润滑脂永远工作在良好的环境中,轴承永不生锈、润滑脂无法柳市,永不干涸,使隔离开关长期运行后的操作力距不会增加。
一、产品概述GW4-40.5型系列户外交流高压隔离开关适用于频率为50Hz,额定电压为40.5kV的电力系统中,作为有电压无负荷时分合电路用。
其中防污型的隔离开关可满足重污秽地区用户的要求,并可以有效的解决隔离开关在运行中出现的污闪问题。
产品分不接地、单接地、双接地。
本系列隔离开关满足GB1985《交流高压隔离开关与接地开关》、IEC60129《交流隔离开关与接地开关》和IEC60694《高压开关设备和控制设备共用条款》等标准的相关要求。
二、使用环境1. 海拔不超过1000米;2. 周围空气温度不高于+40℃及不低于-10℃;3. 空气相对温度不大于90%的户内场所(当温度为+25℃);4. 无导电性尘埃的环境中;无破坏金属和绝缘的腐蚀性气体的物体;无剧烈震动和冲击的地方;无燃烧与爆炸危险的环境中。
三、型号及定义四、技术参数五、结构简介隔离开关本体隔离开关均为双柱水平旋转式,由底架、支柱绝缘子、导电系统、接地开关(不接地除外)及传动系统组成:1)底架:底架一端或两端焊有接地开关支座,备装接地开关。
隔离开关有不接地、单接地及双接地三种形式;2)支柱绝缘子:每级有两柱,按使用条件分为普通型与耐污型及高原型三种。
支柱绝缘子下端固定在轴承座的转动板上,支柱绝缘子上端固定主导电部分。
3)导电系统:导电部分固定在支柱绝缘子的上端,主闸刀分成两半,接触部分在中间,接触部分触头合闸时圆柱形触头嵌入两排触指内,630A、1250A、1600A结构型式基本相同、仅导电杆截面及表面处理有所区别。
4)接地开关:产品所配装的接地刀组装于底座转动轴上,静触头装于主导电系统导电杆上,接地开关分Ⅰ型(单接地)与Ⅱ型(双接地)。
5)传动系统:配用CS系列机构。
六、外形及安装尺寸图七、订货须知:用户订货时请注明:1) 隔离开关的型号、规格和数量;2) 配用接地开关数量及形式(单接地或双接地);3) 操作机构:手动机构型号,辅助开关级数(4级或8级);4) 要求提供备件的代号名称及数量。
GW4(A)-40.5D(G²W)型户外高压交流隔离开关安装使用说明书0SR.412.084江苏省如高高压电器有限公司2010年05月GW4(A)-40.5D(G·W)型户外高压交流隔离开关安装使用说明书1 概述1.1 GW4A-40.5D(G²W)型户外高压交流隔离开关系三相交流额定频率50Hz、额定电压35kV 的户外高压输电设备,用以在无负载情况下断开或接通高压线路,以便对高压线路进行转换,改变运行方式,以及对检修的母线与断路器等高压电器设备实行安全的电气隔离。
1.2 隔离开关配用CS11、CS14G型人力操动机构(以下简称手动机构)或CJ2型电动操动机构。
接地开关配CS11、CS14G手动机构。
1.3 本设备依据以下标准制造:a) GB1985-2004 高压交流隔离开关和接地开关b) GB/T11022 高压开关设备和控制设备标准的共用技术条件c) DL/T486 交流高压隔离开关和接地开关订货技术条件d) DL/T593 高压开关设备和控制设备标准的共用技术条件2使用环境条件2.1 使用环境条件:a﹚海拔高度不超过2000m;b﹚环境温度-50℃~+50℃;c﹚风速不大于34m/s;d﹚地震强度不超过9度;e﹚覆冰厚度不大于10mm;f﹚安装场所无严重灰尘、污垢、易燃物质、爆炸危险、化学腐蚀及剧烈震动;g﹚安装基础应水平;h﹚本隔离开关爬电比:不小于GB/T5582规定的Ⅲ级(按用户要求)。
2.2 用户使用周围环境超出2.1条的要求,可与我公司协商解决。
3 技术参数3.1 GW4(A)-40.5 D(G²W)系列隔离开关和接地开关的主要技术数据如表1所示:表1表1(续)3.2 操动机构中辅助开关型号与触点对数如表2所示表24 主要结构4.1 GW4(A)-40.5系双柱水平断口中央开断式隔离开关, 可增设接地开关, GW4(A)-40.5D (G²W)为带有接地开关。
概述GW5-40.5户外隔离开关为交流50Hz的户外高压电器设备,额定电压等级有40.5kV,供高压线路在无负载情况下进行开合,以及对被检修高压母线、断路器等电气设备带电的高压线路进行电气隔离之用,也可用于开、合小的电容或电感电流。
本系列户外隔离开关满足GB1985《交流高压隔离开关和接地开关》、IEC60129《交流隔离开关与接地开关》以及GB/T11022《高压开关设备和控制设备标准的共用技术要求》等标准的相关规定。
型号及其含义G W 5 - (40.5) D额定电流A(630,1000,1250,1600)结构类型(W防污型,G高原型,普通型不标)接地开关耐受电流能力(ⅠⅡ)单接地 (ⅠD 为单接地,ⅡD 为双接地 )额定电压kV 设计序号使用场所(户外)隔离开关(加H绝缘子为硅橡胶材料)主要技术参数GW5-40.5户外高压交流隔离开关高压电器121图1 GW5-40.5隔离开关安装示意图结构特征● 每台隔离开关单极由两个支柱绝缘子,分别固定在一个底座上,交角为50°构成V型结构,主要由以下几部份组成:底座部份、支柱绝缘子、接线座部份、触头部份、接地刀、接地静触头、接线端子等。
● 本隔离开关分不接地、单接地和双接地三种,主轴与接地刀之间具有机械联锁,并带辅助开关。
开关的操作方式有手动和电动两种。
本隔离开关具有如下几方面特点:1、转动灵活,开合自如。
由于采用滚动轴承传动,所以在转动过程中较为灵活,操作比较省力。
2、通过伞齿轮机构来传动,从而保证两柱的分合闸动作一致。
3、分合闸有限位装置,保证触头接触在最佳位置。
同时,操作完毕手柄被锁环扣住,以免发生有无意识的外力作用下自由分合,从而保证了分合位置的可靠性。
4、触头开距大,有足够裕量的绝缘隔离断口,从而保证了其安全性。
5、接地与不接地共有三种方式,主轴与接地之间有可靠的机械联锁,从而保证安全,用户可根据需要选定接地方式。
6、根据用户的方便,操动机构可以安装在任一极的下方,操动效果一样。
GW4-12(40.5) Outdoor HV Disconnect SwitchRated current Anti-pollutionSingle earth, D is double earth Rated voltage Design serial No.OutdoorDisconnect switchModelThis disconnect switch consists of pedestal, insulating brace, electric material and operating mechanism. There aretwo braces on each pole, and electric blade is installed on the top of each brace and the connection point of the two blades is between the two braces . With the driving of operating mechanis m, the two blades can rotate horizontally ninety degrees to close. We can connect three single-pole disconnect switches into a linkage three-pole switch through interlink rod. This dis connect switch can be matched with CS11 type or CS17 type manual mechanism, thereinto, CS17 be usedi n disconne ct switch with earth ing fittin g.(motor mec hanism can be installed according to user's requirement), Reasonable structure, fle xible operating; conv enien t installati o n, able to use single-pole or three-pole; wide distance of contact, safe and reliable insulating. The ear thing type is flexible according to user's requirement, single earthing dual earthing or without earthing can be chosen.Structure featureSummaryGW4-12(40.5)outdoor AC high voltage disconnect switch (disconnect switch for short) is used to open and close circuit with voltage but no-load 50/60Hz,12(40.5)kV power system. It accords with standards of nd GB1985 and other relative standards.IEC62271-103: High voltage switches a Technical specification4s short-time withstand current(kA)Withstand current(kA)Rated current(A)Rated voltage(kV)1240.5ModelGW4-12GW4-40.5GW4-40.5D2004006301000125040063010001250162020252520202531.54050506363505063801. Altitude:3000m;2. Ambient temperature: -25~+40;3. Wind speed: 35m/s;4. Pollution degree:III;5. Earthquake intensity:8 degree;6. Applicable occasions should free from inflammable, explo sives , cau stic gas .Ambient conditionG W 4 - 12(40.5) DI (W) / 63064Fig.1 GW4-12D/630 Disconnect switch (three pole)Fig.2 GW4-12D/630 Disconnect switch (single pole)2- 18283595530415530415595L (300)L (300)Fig.3 GW4-40.5D/630 Disconnect switch (three pole)Fig.4 GW4-40.5D/630 Disconnect switch (single pole)L (1200)L (1200)7009339655006024465。
G W 4 - 40.5D (W) / 630额定电流防污型(普通型不标)单接地(ⅠD 为单接地,ⅡD为双接地 )额定电压设计序号使用场所(户外)隔离开关概述主要技术参数结构特征1、装有导电闸刀,两侧闸刀触头接触处在两支柱的中间部位。
支柱的下端各装有轴承套,在操动机构的带动下,可使闸刀作水平旋转90°从而达到分合闸之要求。
2、隔离开关为单极型,也可通过连杆将三极连成能够联动的三极型式。
配用CS11型或CS8-6D 型手动机构操作。
其中CS17用于带双接地装置的隔离开关。
(可据需要配电动机构)。
3、本隔离开关结构合理,操动灵活自如;可单极,也可三极使用,安装方便;触刀开距大,绝缘安全可靠。
还可根据用户需要,不接地或配装单边接地或双接地均可。
隔离开关由底座、绝缘支柱及导电部分以及操动机构等组成。
每极有两个支柱,每个支柱上端各型号及其含义GW4-40.5户外隔离开关适用于装置在户外交流50Hz、额定电压分别为40.5kV的电力系统中,供线路在有电压、无负载时作为开合电路之用。
产品符合GB/T 1985及其他相关标准的要求。
GW4-40.5户外高压交流隔离开关1181、接线板2、导电回路3、绝缘支柱4、连接杆5、底架图1GW4-40.5型户外高压交流隔离开关外形图图2 GW4-40.5型户外高压交流隔离开关(单接地)安装示意图GW4-40.5户外高压交流隔离开关高压电器1191、机构转轴2、手柄3、基座4、罩5、定位锁件图3GW4-40.5型户外高压交流隔离开关手动操作机构CS11手动操作机构CS8-6D手动操作机构订货须知客户订货时,请注明:1、产品型号、名称、主要技术数据;2、使用环境条件;3、安装方式及对接地装置之要求;4、操动机构型号;5、装配形式:焊接式或组装式;6、如有其他特殊要求,可协商解决。
GW4-40.5户外高压交流隔离开关120。
GW4(A)-40.5D(G·W)型户外高压交流隔离开关安装使用说明书0SR.412.084江苏省如高高压电器有限公司2010年05月GW4(A)-40.5D(G·W)型户外高压交流隔离开关安装使用说明书1 概述1.1 GW4A-40.5D(G·W)型户外高压交流隔离开关系三相交流额定频率50Hz、额定电压35kV 的户外高压输电设备,用以在无负载情况下断开或接通高压线路,以便对高压线路进行转换,改变运行方式,以及对检修的母线与断路器等高压电器设备实行安全的电气隔离。
1.2 隔离开关配用CS11、CS14G型人力操动机构(以下简称手动机构)或CJ2型电动操动机构。
接地开关配CS11、CS14G手动机构。
1.3 本设备依据以下标准制造:a) GB1985-2004 高压交流隔离开关和接地开关b) GB/T11022 高压开关设备和控制设备标准的共用技术条件c) DL/T486 交流高压隔离开关和接地开关订货技术条件d) DL/T593 高压开关设备和控制设备标准的共用技术条件2使用环境条件2.1 使用环境条件:a﹚海拔高度不超过2000m;b﹚环境温度-50℃~+50℃;c﹚风速不大于34m/s;d﹚地震强度不超过9度;e﹚覆冰厚度不大于10mm;f﹚安装场所无严重灰尘、污垢、易燃物质、爆炸危险、化学腐蚀及剧烈震动;g﹚安装基础应水平;h﹚本隔离开关爬电比:不小于GB/T5582规定的Ⅲ级(按用户要求)。
2.2 用户使用周围环境超出2.1条的要求,可与我公司协商解决。
3 技术参数3.1 GW4(A)-40.5 D(G·W)系列隔离开关和接地开关的主要技术数据如表1所示:表1表1(续)3.2 操动机构中辅助开关型号与触点对数如表2所示表24 主要结构4.1 GW4(A)-40.5系双柱水平断口中央开断式隔离开关, 可增设接地开关, GW4(A)-40.5D (G·W)为带有接地开关。
每极由三个独立的单极组成,每个单极是由底座,绝缘支柱及导电部分组成。
每极有两个绝缘支柱分别固定在底座两端的衬套上、以连杆连结,每个绝缘支柱可以水平旋转,转角为90°,绝缘支柱上装有导电接线座、左、右触头(图4b)。
左、右触头通过导电管在两个绝缘支柱中间接触。
1、接地开关的结构
接地开关静触头固定在隔离开关的导电管上,动触头安装在底座上的接地闸刀钢管的端部。
2、隔离开关与接地开关的机械联锁
隔离开关与接地开关的机械联锁部分是通过CS8-6D型手动机构上的联锁盘来实现的。
3、手动机构的结构
手动机构分为CS11不接地机构(图5)、CS8-6D单接地机构(图6)两种。
其操作手柄为水平旋转,转动角度为90°; CS14G机构安装尺寸与CS11机构相同,只是转动角度为180°,用于双接地隔离开关的主刀手动机构。
九、成套供应
隔离开关以三个单极和配用的手动为一组,带接地开关时所配用的手动机构也配套供应,并附有安装所需的零部件。
十、订货须知
1、订货时应说明∶
(1)产品型号。
(2)额定电压。
(3)额定电流。
(4)有无接地装置或接地开关种类、方向和类型。
(5)污秽等级:(未注按0级供货)。
(6)机构型号,辅助极点数目:(未注按CS11机构供货)。
(7)有无电磁锁或电磁锁型号及控制电压。
五、动作原理本系列户外交流隔离开关的分合闸的动作基本相同。
三级联动时,需将安装完成的各独立的单极隔离开关分别按安装图10或图11用拉杆等零件连接起来。
1.隔离开关动作原理隔离开关的操作机构通过连接管与隔离开关的主动级相连,机构主轴旋转90°,带动主动级的绝缘支柱旋转90°,底座内的伞型齿轮带动另一侧绝缘支柱按相反方向旋转,实现分、合闸动作,主动级通过极间联动管、带动另外两个从动极转动,从而保持三相同步动作。
2.接地开关动作原理三相接地开关的主轴,用水平连接管通过接头连接起来,操作机构的手柄水平旋转90°或竖直旋转180°,通过连杆带动连接管转动,实现接地开关分、合闸动作。
3.配用传动箱动作原理配用传动箱,水平安装时传动箱的位置可根据需要,置于两极之间,也可置于三极的任意一端。
隔离开关操动机构则置于其下,用水煤气管与其连接。
当机构主轴旋转时,连接传动箱的水煤气管带动隔离开关中的一个支柱绝缘子转动,此时装在底座中的一对啮合伞齿轮带动另一个支柱绝缘子旋转。
从而保证了左、右触刀合、合闸动作的一致性。
隔离开关的分、合闸转角均为90°,其分、合状态终端位置由隔离开关的机械限位装置确定。
4.配用CSl7一G型手力操动机构动作原理配用CSl7一G型手力操动机构时,使用CS17-G4、5、6机构对隔离开关进行分、合闸,将机构拔杆移至“E”形槽中间位置,即可扳动机构手柄进行旋转180°进行操作,分、合闸终了再将拔杆由“E”形槽的中心移至“分”“合’’牌方向两端的槽中。
使用CS17-G1、2、3机构操作接地开关时,其操作程序与操作隔离开关相同,只是机构手柄为竖直操动。
5.配用附装电磁锁CSl7一G型手力操动机构动作原理配用附装电磁锁的CSl7一G型手力操动机构,操作时将机构拔杆移至“E’’形槽中间位置,然后按下电磁锁的按钮;同时将电磁锁旋钮顺时针转至限位处,锁杆退出锁孔,即可扳动机构手柄进行分、合操作。
附录7:GW4户外高压隔离开关使用说明一用途GW4-27.5T(D)(W)型电气化铁道户外交流高压隔离开关是频率为50HZ的户外高压电器设备,供交流27.5kV接触网高压线路在有电压无负载情况下进行换接,以及对被检修的高压母线、断路器等电器设备与带电的高压线路进行电气隔离之用。
也可用于分、合很小的电容电流和电感电流。
二使用环境条件1.海拔高度不超过4700米。
2.环境温度:上限+40℃,下限-40℃。
3.风速不超过35m/s。
4.不适用于有易燃物质、爆炸危险、化学腐蚀及剧烈运动场所使用。
5.绝缘子污秽等级:防污型为Ⅲ级重污秽(盐密0.3毫克/平方厘米)。
6.安装场所:户外混凝土单极电杆上。
三分类和技术参数1.隔离开关的分类特性结构方式有无接地开关 1.无接地开关;2.带一个接地闸刀;安装方式 1.水平安装;接地闸刀传动方式带接地闸刀一次操作型;带接地闸刀二次操作型;操作方式CS11(CS8-6D)手动操作机构或CX-6电动操作机构工作环境Ⅲ级重污秽2.隔离开关的主要技术参数型号额定电压Kv最高工作电压Kv额定电流A额定峰值耐受电流KA4秒额定短时耐受电流KA单相重量KgGW4-27.527.531.56305020906325112 12508031.5100 16008031.5120 20008031.5120四结构GW4-27.5T(D)(W)型电气化铁道户外交流高压隔离开关性能可靠、结构简单、安装方式灵活、维修容易、适用范围广,通用性系列性强。
GW4-27.5T型户外隔离开关是单极隔离开关组成的高压电器,又是派生其它结构的基本单元,以下称为普通型隔离开关。
W4-27.5T(D)型户外隔离开关是在普通型隔离开关上增设接地刀而成的,其中分一次操作型和二次操作型两种,以下称为接地型隔离开关。
GW4-27.5T(D)W型户外隔离开关、是在普通型(接地型)隔离开关的基础上将普通型棒式柱绝缘子改成防污型棒式支柱绝缘子而成,适用于重污秽或高海拔地区。
每极由三个独立的单极组成,每个单极是由底座,绝缘支柱及导电部分组成。
每极有两个绝缘支柱分别固定在底座两端的衬套上、以连杆连结,每个绝缘支柱可以水平旋转,转角为90°,绝缘支柱上装有导电接线座、左、右触头(图4b)。
左、右触头通过导电管在两个绝缘支柱中间接触。
1、接地开关的结构
接地开关静触头固定在隔离开关的导电管上,动触头安装在底座上的接地闸刀钢管的端部。
2、隔离开关与接地开关的机械联锁
隔离开关与接地开关的机械联锁部分是通过CS8-6D型手动机构上的联锁盘来实现的。
3、手动机构的结构
手动机构分为CS11不接地机构(图5)、CS8-6D单接地机构(图6)两种。
其操作手柄为水平旋转,转动角度为90°; CS14G机构安装尺寸与CS11机构相同,只是转动角度为180°,用于双接地隔离开关的主刀手动机构。
九、成套供应
隔离开关以三个单极和配用的手动为一组,带接地开关时所配用的手动机构也配套供应,并附有安装所需的零部件。
十、订货须知
1、订货时应说明∶
(1)产品型号。
(2)额定电压。
(3)额定电流。
(4)有无接地装置或接地开关种类、方向和类型。
(5)污秽等级:(未注按0级供货)。
(6)机构型号,辅助极点数目:(未注按CS11机构供货)。
(7)有无电磁锁或电磁锁型号及控制电压。
手动机构分为CS11不接地机构(图5)、CS8-6D单接地机构(图6)两种。
其操作手柄为水平旋转,转动角度为90°; CS14G机构安装尺寸与CS11机构相同,只是转动角度为180°,用于双接地隔离开关的主刀手动机构。
同时CJ2、CJ5、CJ6、CJ11(电动机构),电磁锁也可供用户选配。
五、动作原理1、隔离开关动作原理隔离开关的操作机构通过连接管与隔离开关的主动级相连,机构主轴旋转90°,带动主动级的绝缘支柱旋转90°,底座内的连杆带动另一侧绝缘支柱按相反方向旋转,实现分、合闸动作,主动级通过极间联动管、带动另外两个从动极转动,从而保持三相同步动作。
机构中的辅助开关与机构主输出轴相连,在分合闸位置时发出相应的分合信号。
2、接地开关动作原理三相接地开关的主轴,用水平连接管通过接头连接起来,操作机构的手柄水平旋转90°,通过连杆带动水平连接管转动,实现接地开关分、合闸动作。
3 、手动机构动作原理操作机构通过连接管与隔离开关及接地开关的主轴相连,CS11手动机构配不带接地刀的隔离开关,CS8-6D手动机构配带接地刀的隔离开关,其输出轴设有机械联锁板,保证按规定的程序(主分-地合-地分-主合)进行操作。
六、安装与调整1、隔离开关的安装调整应达到下列各项要求:(1)配用手动机构时,一般体力的操作人员应能独立进行分、合闸操作,动作灵活。
(2)隔离开关的三相联动的合闸同期性数值为:40.5kV不大于5mm。
2 、隔离开关的安装调整(1)将每极隔离开关底座固定在水平基础上,并使三极的接地刀转轴成一直线。
(2)将操作机构置于隔离开关主动级侧面的转动主轴下方,在隔离开关主体和机构隔离开关操作主轴处于合闸位置时,用水煤气管连接,当主、从动两绝缘支柱不同步时,可以调整极间正反牙螺杆来达到分、合闸同步。
(3)隔离开关的三相联动的合闸同期性的安装调整,在两接线端承受正常母线拉力的条件下,调整相间正反牙连杆长度,达到上述要求。
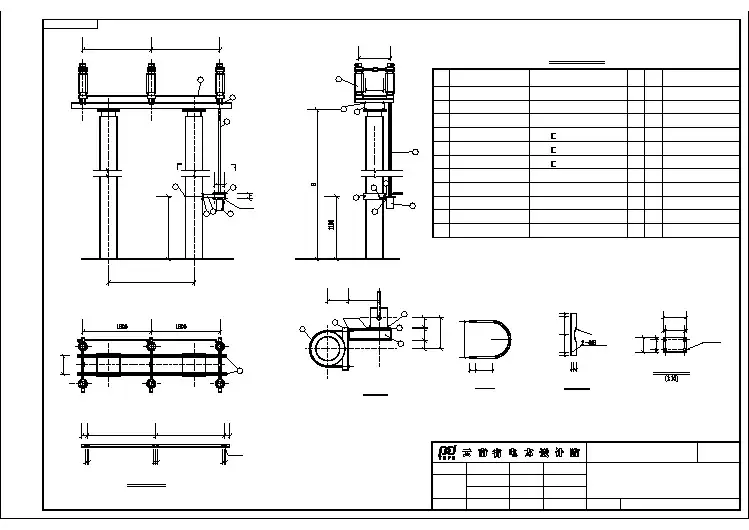
GW4-40.5/72.5/126KV户外高压隔离开关安装尺寸结构简介1)35kV 成套隔离开关由GW4-40.5(D)(W)型隔离开关本体、CSⅡ、CS17或CS8-6D型人力操动机构、传动附件等组成,也可配用CJ6型等电动机构。
110kV 成套隔离开关由GW4-126(D)(W)型隔离开关本体、CS14G人力操动机构、传动附件等组成,也可配用CJ6型等电动机构。
2)该隔离开关属双柱水平开启式隔离开关。
制成单极型式,当三极同步使用时,极间用连接杆连接起来。
各单级都由基座、支柱绝缘子、出线座及触头等部分组成,两支柱绝缘瓷瓶相互平行地安装在基座两端地轴承上,且与基座垂直。
主导电部分分别安装在两支柱绝缘瓷瓶上方,随支柱绝缘瓷瓶作约90°转动。
3)隔离开关的每个轴承座内装有轴装配,两轴装配间通过连扳、调节螺杆等连接传动。
4)出线座中的紫铜编织带软连接分别紧固在导电杆和接线板上,接线板供用户连接路之用。
5)中间触头部分的触指称为装配,采用外压式或自力型触指,其形式为转入式,以减少分、合闸时触头与触指间的磨损,提高使用寿命。
6)隔离开关附有接地开关时,主导电回路与接地开关的联锁用基座上的扇形板与弧形板保证,在主导电回路合闸时,接地开关不可合闸,接地开关合闸时,主导电回路不可合闸。
配用CS8-6D或CS17-Ⅱ型时隔离开关与接地开关联锁由机构上的连锁板实现。
产品特点 GW4-40.5/72.5/126KV户外高压隔离开关安装尺寸1)隔离开关采用双柱中开、触头转入式结构,具有自动清洁触头的能力,提高了接触可靠性;2)触指采用高强度、高导电率、高弹性的新型材料制造。
依靠触指自身的弹力夹紧触头,避免了目前因弹簧锈蚀、发热退火而引起的触头夹紧力降低,接触电阻增加,触头发热家具的恶性循环;3)隔离开关转动部分按免维护的要求设计。
转动座设计成密封结构,水汽、尘埃、有害气体无法进入。
使轴承、二硫化钼锂基锂基润滑脂永远工作在良好的环境中,轴承永不生锈、润滑脂无法柳市,永不干涸,使隔离开关长期运行后的操作力距不会增加。
For personal use only in study and
research; not for commercial use
GW4—40.5D型
户外高压隔离开关
安装使用说明书
1. 概述
GW4-40.5 (D) 型户外交流高压隔离开关(以下简称隔离开关),是三相交流50HZ户外高压开关设备,供高压线路在有电压无负荷时分合线路之用,宜作变电站出线隔离开关。
该型产品下列技术标准:
GB1985—89《交流高压隔离开关和接地开关》
GB/T11022—1999《高压开关设备和控制设备标准的共同技术要求》
IEC129(1984)《交流隔离开关与接地开关》
2. 使用环境条件
a. 海拔高度普通型≤1000m、高原型≤4000m。
b. 覆水厚度10<mm
c.风压≤700pa。
d.地震烈度<8度。
e. 周围空气温度:上限+40℃、下限-30℃。
g.安装场所无易燃物质、爆炸危险、化学腐蚀及剧烈震动。
3.产品型号组成
3.1 特征标志意义
D—接地开关,I II—接地开关类型,G—改进型产品
3.2 特殊派生符号意义
W—耐污型,GY—高原型,H—高寒型,TA—干热型,TH—湿热型
4. 技术参数
5. 主要结构
隔离开关为单极双柱式水平旋转结构,三极成组配套使用,亦可单极使用。
隔离开关单极由底架、轴承座、支柱绝缘子、导电主回路、机械连杆等组成。
隔离开关的三极用接头、联动拉杆、管接头、轴销、钢管(用户自备)、以及手力操动机构(以下简称操动机构)等连接成组。
隔离开关的底架一端或两端均可装设接地开关。
隔离开关两端的接地开关由手力操动机构联锁控制,从而使隔离开关与接地开关按主分—地合—地分—主合的顺序实现防误动操作,产品外形参见图1、图2。
5.1 底架:由GB9787—88热轧角钢构成,在底架的两端安装有轴承座,内置2个圆锥滚子轴承以保证轴装配转动灵活,其结构和安装尺寸见图1、图2。
5.2 支柱绝缘子:有普通型、耐污型、高原型三种,其性能符合GB8287.1《高压支柱瓷绝缘子技术条件》、GB8287.2—87《高压支柱瓶绝缘子尺寸与特性》。
耐污型还符合GB127744—91《耐污型户外棒型支柱绝缘子》。
每极隔离开关配用支柱绝缘子两只,支柱绝缘子竖立安装在轴装配上,其上端固定导电主回路。
5.3 导电主回路:由接线座及左、右触头装配所组成。
630A与3150A之结构基本相同,仅有导电管截面、表面镀层、触指数目及软导线上的区别。
接线座内装导电杆及软导线装配,比传统滚动接触方式电阻小、导电性能好,如图3所示。
左、右触头装配的构造及合闸到位后的接触状态见图4。
5.4 接地开关:接地开关装在隔离开关底架的端部,接地开关的静触头装在导电主回路的导电管上。
5.5 机械连杆:隔离开关由操动机构通过装在底架中间的操动轴操动,经过主轴拉杆驱动左触头侧支柱绝缘子旋转90°。
联动拉杆驱使三极隔离开关联动分合闸。
接地开关由操动轴带动地刀拉杆驱使地刀,向上(向下)旋转一定角度,完成合闸(分闸)。
三极接地开关的每极之闸用φ32×3钢管连接实现三极联动。
三极隔离开关联动φ25×2.5钢管连接实现三极联动。
三极隔离开关联动用φ25×2.5钢管连接实现三极联动。
隔离开关与操动机构用φ42×3钢管连接,钢管用户自备。
5.6 操动机构:隔离开关出厂时配用CS17手力操动机构。
机构由底座、联锁板、手柄及辅助开关组成。
辅助开关有4极、8极两种规格,分别有2对与4对常开常闭触点。
供联锁及
传递信号之用。
手力操动机构加装电磁锁后,可使隔离开关增加电气闭锁防动功能。
电磁锁及其安装附件另行计价供给,由用户自行安装。
6. 安装与调试
6.1 安装前检查
a.检查隔离开关、零部件、附件的数目与装箱单是否相符。
b.产品铭牌数据与订货一致。
c.产品有无损伤,支柱绝缘子有无碰伤裂纹。
d.各转动部位转动是否灵活有无卡滞。
e.操动机构转动是否灵活。
分、合闸位置是否正确,辅助开关切换是否正常。
6.2 隔离开关只能水平安装。
先将隔离开关置于同一水平高度的安装架上,然后校正极间距离,使底架相互平行。
再校正三极隔离开关两列支柱绝缘子轴心线,接地开关地轴的轴心线,把隔离开关安装固定之后用联动拉杆连接成组。
6.3 隔离开关合闸到位后,左、右触头应在同一水平线上,其上下偏<5mm,左、右触头装配接触位置处在2只支柱绝缘子轴心线正中,右触头嵌入左触头侧的触指内成面接触,左触头侧触指与定位板之间间隙≤2mm。
必要时,可调节单极拉杆的长度;并允许在支柱绝缘子顶端,底部两处增减调整垫片,但每处加垫厚<3mm。
6.4 调节联动拉杆长度,使三极隔离开关合闸同期误差<5mm。
然后分别调节主轴拉杆及联动拉杆长度,使隔离开关分闸到位后的打开角度是90°。
6.6 调整接地开关地轴上的拐臂角度及连杆的有效长度,使接地开关分、合闸到位时与操动机构同步。
接地开关分闸到位时呈水平状态。
6.7手力操动机构的安装位置如图1、图2所示,把机构和板装配配钻后,打入A10×50圆锥销,紧固上面两M10螺栓。
双接地隔离开关,从底架中间操动轴轴心向下垂线,单接地和不接地从支柱绝缘子下端轴装配向下垂线,使之与操动机构转轴中心吻合,然后,把机构安装固定。
双接地隔离开关把轴套装在操动轴上,单接地和不接地隔离开关把轴套装在操动轴和轴装配上,测量其中间的有效尺寸,并自备φ42×3无缝钢管。
钢管两端分别与轴套和板装配连接焊牢。
6.8清除各机械转动部位及电接触部位的尘垢重新注入润滑油脂。
6.9测量隔离开关导电主回路的电阻值应符合表2中规定。
6.10手力操作3~5次,操作平稳,隔离开关及接地开关分、合闸位置正确,接触良好。
6.11 安装完毕经检查证实符合要求后,可挂网运行。
7. 运行与检修
7.1 隔离开关必须在线路负荷切断后进行操作。
运行后的隔离开关每年应定期检修1次,如发生严重短路故障,在故障后即检修。
7.2清除各电接触面、支柱绝缘子表面尘垢,在各电接触面涂以工业凡士林。
7.3清洗各机械传动部位、转动部位油污,重新注入润滑油脂;涂漆部位重新涂漆。
7.4更换损坏的零件。
检查所有紧固件及各部位轴销,如有松动应作紧固。
7.5在必要时,按表1规定作工频耐压试验,按表2测量主回路电阻,隔离开关挂网运行后主回电阻值会有升高,但不大于表2所列数值的1.2倍。
8. 包装、运输与保管
8.1隔离开关一般为三极共箱包装,在用户提出特需时作单极包装,手力操动机构及附件的附件箱,均随产品共箱包装。
8.2运输产品应遵从包装箱外所注作业标志,不准翻、倒。
8.3产品到站后,请及时验收。
如发现问题,请立即与生产厂联系,以便于迅速处理。
8.4产品开箱后,如不能立即安装,作长期库存时,应存放干燥有遮蔽的场所,并作定期检查。
9.随机技术文件
产品合格证、安装使用说明书、装箱单
10.订货须知请用户在订货时写明以下内容
10.1隔离开关的型号、规格和数量。
10.2对接地开关的要求(不接地、单接地、双接地,以及接地开关类型)。
10.3手力操动机构型号、辅助开关极数。
10.4手力操机构如加装电磁锁时,所需电磁锁型号、数量以及工作线圈电压。
10.5要求选购备件、附件及零件的名称、数量。
10.6收货单位、到站、开户银行及帐号、纳税人登记号。
产品装箱单
仅供个人参考
仅供个人用于学习、研究;不得用于商业用途。
For personal use only in study and research; not for commercial use.
Nur für den persönlichen für Studien, Forschung, zu kommerziellen Zwecken verwendet werden.
Pour l 'étude et la recherche uniquement à des fins personnelles; pas à des fins commerciales.
толькодля людей, которые используются для обучения, исследований и не должны использоваться в коммерческих целях.
以下无正文。