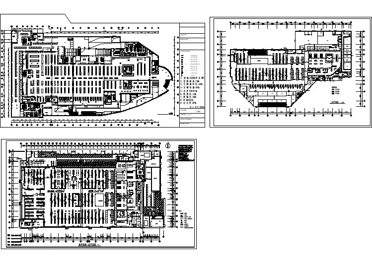
超市卖场平面布局图
- 格式:doc
- 大小:17.85 KB
- 文档页数:1
一超市平面布局设计,一座三层卖场,面积有一万二千平米左右,建筑本身不规则,设计不好超市会产生许多死角。
客户方运营人员可能来之沃尔玛,有意沃尔玛风格的超市布局,一般设计都是C4、大润发风格,一个美式超市,一个法式系统,如何把一个固定单梯上下不规则形状的建筑设计成动线流畅、商品过渡衔接自然的卖场,让设计师很费脑筋。
当初谈设计方案时,客户说电梯位置可以根据设计的需要设定位置,设计师和客户承揽设计合同签好后,客户物业方却不允许改变电梯位置,客户也无可奈何。
设计交工时间10天,时间不等人,也不能因为物业的问题耽误交工,超市布局设计只有从建筑本身现有条件来找方案了。
针对这个建筑做设计,前期需要了解一些超市周边交通、人口数量、顾客消费习惯、临近商圈和竞争对手等资料,因为接近春节了,设计师没有到客户所在地了解,客户向设计师提供了这些具体情况,设计师也和客户运营人员电话里做了详细的交谈,了解这家未来的超市经营理念和运营,对于运营人员谈到的具体要求一一笔记,在设计中这些都要注意的问题。
对于不是当地人的设计师是无法了解的生活习惯经验,当然没有和客户的交流沟通,一切设计都是纸上谈兵。
在了解了客户的详细要求后,设计师开始了设计的第一步,确定每层楼面的经营范围,楼面的经营商品决定了超市布局的动线和电梯的运动方向。
经过楼层可利用面积计算和客户要求,确定一楼为外租区,把大小家电、手机、数码产品由超市内转到一楼开放式经营,(因超市营业面积有限,这类商品也适合开放式经营)二楼、三楼为超市。
一楼主要经营高档化妆品、服装、金银珠宝、手机、数码产品、钟表眼镜,还有大小家电。
设计的第二步,规划一层经营各类商品面积和顾客流动动线。
一楼的商品经营面积及通道的设计要根据商品本身的属性来布局的,比如:大小家电属于同一属性的商品,需要归类在一个区域布局;再如:化妆品,属于高附加值商品,商家会针对既定的区域做精致的装修来体现化妆品的本身,精细的装修区域当然是规划在显眼的位置。