开店项目超市平面设计方案
- 格式:docx
- 大小:38.39 KB
- 文档页数:3
超市方案设计超市作为现代都市生活中不可或缺的一部分,其方案设计直接关系到消费者的购物体验和企业的盈利能力。
本文将从超市的布局、陈列设计、商品搭配等方面,为您介绍一套完善的超市方案设计。
一、超市布局设计超市布局设计是超市方案设计的基础,合理的布局能够提高商品展示效果、购物便利性和用户体验。
一般而言,超市的布局可分为几个区域:1.入口区:作为超市的门面,入口区的设计要引导顾客进入店内。
适当设置广告牌、橱窗,展示超市的特色产品或促销信息。
2.主通道区:主通道是顾客流动最频繁的区域,要保证宽阔、畅通,并设置平面图或指示牌,帮助顾客快速找到所需商品。
3.陈列区:陈列区是超市最吸引顾客的地方,要注重产品陈列的多样性和美感。
可以采用岛式陈列或专柜式陈列,适时调整位置和样式,以刺激顾客购买欲望。
4.收银区:超市的收银区域应设在主通道区附近,方便顾客结账。
同时,要配置充足的收银台和设备,以提高结账效率。
二、陈列设计超市的陈列设计直接关系到商品的销售。
下面列举几点陈列设计的要点:1.商品分类:将商品按照类别进行陈列,如食品、家居用品、个人护理等。
同时,可以设置明显的分类指示牌,方便顾客找到想要购买的商品。
2.产品配对:将相似或互相搭配的产品放在一起陈列,如牛奶和麦片、酱油和醋等,以增加购买的可能性。
3.产品推荐:在产品的前方或显眼位置,设置推荐产品的陈列区域,吸引顾客的注意力,并提高特定产品的销售额。
4.限时促销:根据季节或节假日,设置限时促销陈列区域,将促销商品集中展示,并配以明确的促销标识,吸引顾客购买。
三、商品搭配设计超市的商品搭配设计是为了提高顾客购买的便利性和体验,同时增加超市的销售额。
以下是一些常见的商品搭配设计策略:1.相似商品搭配:将相同或类似的商品放在一起陈列,方便顾客在购买时进行比较,如绿茶和红茶、沐浴露和洗发水等。
2.补充商品搭配:将商品按照顾客的购买需求进行搭配,如面包和牛奶、面食和调味品等,方便顾客一次性购买多个相关商品。
超市设计-布局方案引言超市作为零售业中的重要一环,其设计和布局直接关系到顾客的购物体验和销售效益。
良好的超市设计可以提高顾客的转化率和满意度,增加销售额。
本文将从超市的整体布局、陈列方式、货架摆放和导购流线等方面探讨超市设计的一些具体方案。
一、布局设计超市的整体布局是超市设计的第一步。
良好的布局能够使顾客更方便地浏览商品,提高购买的意愿。
1.大区域划分:超市可以根据商品分类和销售热度进行大区域划分,如食品区、生鲜区、日用品区等。
每个大区域设置标志性的招牌,方便顾客寻找所需商品。
2.流线设计:合理的流线设计可以引导顾客按照预定路线浏览商品。
例如,超市的入口和出口要有明显的标识,通道要宽敞舒适,适当设置导购指示牌,提供顾客导购服务。
3.特色区域设计:超市可以根据不同的商品特色设置专门的展示区,如礼品区、促销区等,以提高商品吸引力和销售额。
二、陈列方式商品的陈列方式直接影响顾客的购买行为。
合理的陈列方式可以使商品更加吸引顾客的注意和购买欲望。
1.陈列高度:超市货架的高度应根据商品的特性和目标顾客群体来确定。
常购买的商品可以设置在易于顾客取得的位置,而对于较少购买的商品可以放置在较高的位置。
2.陈列分类:将同类型的商品放在一起陈列,方便顾客比较选择。
例如,将各种品牌的洗衣液放在一个区域。
3.陈列整齐:商品陈列整齐有序,可以表现出超市的专业度,避免顾客有乱七八糟的感觉。
可以使用货架分隔板、托盘等工具来保持陈列整齐。
三、货架摆放货架是超市中最重要的陈列工具之一,合理摆放货架可以最大化地展示商品,提高促销效果。
1.货架高度:货架的高度要适中,方便顾客取货。
一般来说,成人的手能够触及到1.6米左右的高度为宜。
2.货架位置:常购买的商品应放在顾客易于可及到的位置,不同商品的陈列位置要考虑到店内流线的规划。
3.货架面积:根据商品的销售情况和顾客购买习惯,调整货架的面积。
畅销商品可以设置较大面积的货架,而滞销商品可以设置较小面积的货架。
超市规划布局设计方案模板1.引言1.1 概述超市规划布局设计是指根据超市的经营需求和空间特点,通过科学的规划和合理的布局,使超市的各项功能和空间得到有效的利用,提高超市的运营效率和顾客满意度。
超市规划布局设计方案不仅要考虑到货架和商品陈列的合理布局,还需要考虑到人流线路的规划、灯光照明、通风与采光等因素,以及安全和便利性。
因此,超市规划布局设计方案的制定对于超市的运营和管理具有重要意义。
本文旨在探讨超市规划布局设计方案的模板,以便于超市相关人员在实际操作中能够更加科学地进行规划和布局,提升超市的经营效益。
1.2 文章结构文章结构部分的内容可以是:本文将从超市规划布局设计的重要性、设计方案的考虑因素以及布局设计的实施步骤这三个方面展开论述。
首先,我们将分析超市规划布局设计的重要性,为什么需要进行规划和设计,以及规划布局对超市经营的影响;其次,我们将讨论设计方案的考虑因素,即在进行布局设计时需要考虑的各种因素,如顾客流量、货架摆放、通道设计等;最后,我们将介绍布局设计的实施步骤,包括如何进行规划布局、布局设计的具体步骤和注意事项等内容。
通过对这三个方面的论述,读者可以全面了解超市规划布局设计的重要性和实施过程。
1.3 目的本文的目的是为了提供超市规划布局设计方案的模板,帮助超市业主和设计师们更好地理解超市布局设计的重要性和实施步骤。
通过分析超市规划布局设计的重要性和考虑因素,以及详细阐述实施步骤,本文旨在为超市规划布局设计提供指导,使超市能够更高效地运营和提升顾客体验。
通过本文,读者可以了解超市规划布局设计的核心理念和方法,从而为实践中的超市规划布局设计提供有益的参考和借鉴。
2.正文2.1 超市规划布局设计的重要性超市规划布局设计是超市开业前必不可少的环节,它直接关系到超市的运营效率和顾客的购物体验。
一个合理的布局设计可以有效地利用空间,提高销售额;同时也可以让顾客更加便利地找到所需商品,并且提高他们的购物满意度。
超市门店开发与设计策划方案一、市场调研与分析1.1确定目标市场我们要明确超市门店的目标市场。
这个市场可以是城市中的某个区域,也可以是针对某个消费群体。
我们要了解这个市场的消费需求、消费习惯、消费能力等,为后续的门店开发与设计提供依据。
1.2竞争对手分析了解竞争对手的情况是必不可少的。
我们要分析竞争对手的门店数量、分布、经营状况、优势与劣势等,以便在竞争中找到自己的定位。
1.3消费者需求分析消费者需求是超市门店生存的根本。
我们要了解消费者对商品种类、价格、服务、购物体验等方面的需求,为门店开发与设计提供方向。
二、门店开发策略2.1门店选址交通便利,便于消费者到达商圈成熟,有一定的消费群体竞争对手较少,有利于市场份额的拓展2.2门店规模小型超市:面积在100-300平方米,适合社区、学校周边等区域中型超市:面积在300-1000平方米,适合城市繁华地段2.3商品结构生活必需品:占比50%左右,包括食品、日用品等时令商品:占比20%左右,包括水果、蔬菜、海鲜等促销商品:占比10%左右,用于吸引消费者特色商品:占比10%左右,展示超市特色三、门店设计策划3.1外立面设计颜色搭配:以绿色、蓝色等自然色调为主,体现环保理念标志性:门口要有醒目的招牌,便于消费者识别环境融合:与周边建筑风格相协调,融入环境3.2内部布局进门区域:设置收银台、服务台,方便消费者咨询、结账商品陈列:按照商品类别、用途进行分区,便于消费者挑选购物动线:设计流畅的购物动线,避免拥堵休息区:设置休息区,提供座椅、饮水等设施,提高购物体验3.3装修风格色调:以白色、灰色等淡色调为主,营造舒适氛围灯光:采用柔和的灯光,突出商品特点装饰:点缀一些绿植、装饰画等,提升空间美感四、运营管理4.1人员配置收银员:负责收银、验钞等工作服务员:负责商品陈列、清洁卫生等工作管理人员:负责门店运营、人员管理等工作4.2营销策略促销活动:定期举办促销活动,吸引消费者会员制度:设立会员制度,提高消费者忠诚度网络推广:利用社交媒体、线上平台等渠道,扩大宣传4.3服务质量员工培训:定期对员工进行培训,提高服务意识投诉处理:设立投诉渠道,及时处理消费者反馈购物体验:关注消费者购物体验,不断优化服务超市门店开发与设计策划方案是一个系统性的工程,涉及市场调研、门店开发、设计策划、运营管理等多个方面。
民生超市设计方案背景随着经济的发展和城市化进程的加速,新型的生活方式和消费观念逐渐成为主流,人们对于超市的需求也在不断演变。
民生超市作为一种常见的购物场所,其设计方案也需要根据消费者需求的变化及市场的变化而适时地进行调整和创新,以满足消费者的需求,提升购物体验。
设计目标民生超市的设计方案需要围绕以下目标进行:•提高消费者购物体验•提高店面视觉效果,加强品牌形象•提高营业额、提高销售额设计方案1. 店铺布局民生超市的店铺布局需要根据不同时间段和消费者需求进行差异化设计,在布局上应注重以下几点:•高清晰度标识:更好的店内标识可以方便顾客更快速地找到自己想要的商品。
•中央岛:增加便利性,提高顾客的购买兴趣。
•按类别划分:便于顾客快速找到自己需要的商品,提高购物效率和顾客满意度。
•放置度通道:放置度通道是连接各个区域的道路,能够高效的引导顾客准确地找到自己需要的路径,同时也可以帮助顾客从商场快速出口。
2. 灯光设计民生超市灯光设计的目的是为了更好地展示商品区域,让顾客获得更佳的购物体验,同时也可以加强整个店面的视觉效果。
在灯光设计中应注意以下几点:•光源均匀分配:消费者在视线范围内的物体会更加显眼,因此应该巧妙地在全面均匀地发散光源,以减少商品与顾客之间的视觉距离,并使商品更醒目。
•合理的颜色和亮度:超市可以使用塑料光管或LED光源,以打造更灵活的灯光设计,同时,应当根据不同商品区域的需求,合理地搭配细致而丰富的灯光色彩和亮度等参数。
•通过光和暗的对比提供快速识别:黑色可以使其他色彩更加有层次感。
通过搭配高亮度的灯光和深陷的阴影,可以使商品区域更具层次感。
3. 陈列设计民生超市的商品陈列设计需要考虑到以下因素:•能够高效利用有限的空间,把整个空间布置的极致美观。
•根据商品特点进行分类,使统一类别的商品摆放在同一区域内,方便消费者寻找。
•利用正反面供应商提供的促销宣传资料,吸引消费者注意力,同时优化商品信息的宣传效果。
超市规划设计方案第1篇超市规划设计方案一、项目背景随着社会经济的快速发展和人们生活水平的提高,消费者对购物环境、商品种类及服务品质的需求日益增长。
为满足市场需求,提高超市竞争力,本项目旨在规划一座功能齐全、布局合理、服务优质的现代化超市。
二、规划目标1. 满足消费者多样化、个性化的购物需求。
2. 提高超市运营效率,降低运营成本。
3. 打造舒适、安全、便捷的购物环境。
4. 体现绿色环保、可持续发展的理念。
三、规划原则1. 合法合规:严格遵守国家相关法律法规,确保项目合法合规。
2. 科学合理:充分考虑超市的功能需求、人流物流、安全消防等因素,合理布局。
3. 灵活多样:根据市场需求和消费者喜好,灵活调整商品种类和布局。
4. 绿色环保:注重节能降耗,提高资源利用率,减少环境污染。
四、规划设计方案1. 总体布局超市总体布局分为入口区、销售区、仓储区、服务区、办公区等五个区域。
(1)入口区:设置在超市正门,便于消费者进出。
(2)销售区:按照商品种类进行分区,包括食品区、日用品区、家电区等。
(3)仓储区:设置在超市后部,便于货物的储存和配送。
(4)服务区:包括收银台、咨询台、服务中心等,提供便捷的服务。
(5)办公区:设置在超市内部,便于管理和办公。
2. 商品分类及布局(1)食品区:包括生鲜、熟食、零食、饮料等,布局在超市左侧,便于消费者选购。
(2)日用品区:包括洗化、家居、文具等,布局在超市右侧。
(3)家电区:包括大小家电、手机通讯等,布局在超市后部。
(4)特色区:根据市场需求,设置特色商品区,如进口商品、地方特产等。
3. 人流物流规划(1)入口区:设置宽敞的通道,便于消费者进出。
(2)销售区:合理规划货架间距,保证消费者通行和选购。
(3)仓储区:设置专用通道,确保货物快速配送。
(4)服务区:设置在超市显眼位置,便于消费者咨询和投诉。
4. 安全消防规划(1)设置足够数量的安全出口,保证人员疏散。
(2)配备消防设施,如灭火器、消防栓等。
一超市平面布局设计,一座三层卖场,面积有一万二千平米左右,建筑本身不规则,设计不好超市会产生许多死角。
客户方运营人员可能来之沃尔玛,有意沃尔玛风格的超市布局,一般设计都是C4、大润发风格,一个美式超市,一个法式系统,如何把一个固定单梯上下不规则形状的建筑设计成动线流畅、商品过渡衔接自然的卖场,让设计师很费脑筋。
当初谈设计方案时,客户说电梯位置可以根据设计的需要设定位置,设计师和客户承揽设计合同签好后,客户物业方却不允许改变电梯位置,客户也无可奈何。
设计交工时间10天,时间不等人,也不能因为物业的问题耽误交工,超市布局设计只有从建筑本身现有条件来找方案了。
针对这个建筑做设计,前期需要了解一些超市周边交通、人口数量、顾客消费习惯、临近商圈和竞争对手等资料,因为接近春节了,设计师没有到客户所在地了解,客户向设计师提供了这些具体情况,设计师也和客户运营人员电话里做了详细的交谈,了解这家未来的超市经营理念和运营,对于运营人员谈到的具体要求一一笔记,在设计中这些都要注意的问题。
对于不是当地人的设计师是无法了解的生活习惯经验,当然没有和客户的交流沟通,一切设计都是纸上谈兵。
在了解了客户的详细要求后,设计师开始了设计的第一步,确定每层楼面的经营范围,楼面的经营商品决定了超市布局的动线和电梯的运动方向。
经过楼层可利用面积计算和客户要求,确定一楼为外租区,把大小家电、手机、数码产品由超市内转到一楼开放式经营,(因超市营业面积有限,这类商品也适合开放式经营)二楼、三楼为超市。
一楼主要经营高档化妆品、服装、金银珠宝、手机、数码产品、钟表眼镜,还有大小家电。
设计的第二步,规划一层经营各类商品面积和顾客流动动线。
一楼的商品经营面积及通道的设计要根据商品本身的属性来布局的,比如:大小家电属于同一属性的商品,需要归类在一个区域布局;再如:化妆品,属于高附加值商品,商家会针对既定的区域做精致的装修来体现化妆品的本身,精细的装修区域当然是规划在显眼的位置。
超市规划设计方案超市规划设计方案超市规划设计方案旨在为超市提供一个高效、舒适和吸引顾客的环境。
以下是一个基于700字的超市规划设计方案的简要概述。
地理位置:超市将建在一个交通便利的地理位置,可以轻易地进出,同时也方便顾客前来购物。
建筑布局:超市建筑的布局应考虑到最大化空间利用和提供顾客方便的购物环境。
建议采用开放式布局,使顾客在一进入超市就能清晰地看到各个部门和商品陈列区。
另外,超市的主走廊应宽敞明亮,以容纳大量顾客并方便他们浏览商品。
商品陈列:超市的商品陈列需要合理规划,以确保每个商品都能被充分展示,并且能够方便顾客浏览和选择。
可以采用不同的商品分类区域,将相似的商品放在一起,方便顾客一站式购物。
此外,还可以在较高的位置设置特别商品展示台,以吸引顾客的目光。
通风和采光:超市应有良好的通风和采光设施,以确保顾客在超市内的舒适度。
可以采用大窗户和天窗,以增加自然光的进入,减少对人工照明的依赖。
同时,还可以考虑使用环保的通风和空调系统,以提供清新的空气。
安全:超市的安全是非常重要的。
建议使用监控摄像头系统,以确保顾客和店员的安全。
同时,也应提供灭火器和防火设施,并经常进行安全检查和培训。
便利设施:超市应提供便利设施,以提高顾客的购物体验。
例如,设立购物车和篮子储存区,方便顾客选择和使用购物车。
另外,也应设置婴儿车停放区和儿童游乐区,以照顾顾客的不同需求。
可持续发展:超市规划设计方案还应考虑到可持续发展的原则。
可以使用节能设备和照明系统,减少能源消耗。
同时,还应鼓励顾客使用可回收的购物袋,减少塑料垃圾的产生。
总结:超市规划设计方案旨在提供一个高效、舒适和吸引顾客的环境。
通过合理的建筑布局、商品陈列、通风和采光、安全、便利设施和可持续发展考虑,可以帮助超市提供更好的购物体验,吸引更多的顾客。
超市平面布局设计如何布局,方显超市的特色魅力(一)稳中示变的店面设计店面设计是超市整个第一步。
在日常生活中,我们经常能够看到一些超市店面很平淡,如果没有购物需求,根本还会注意到这是一家超市。
像这样的店面,对于中小超市而言是万万不可取的。
中小超市本身就是一个低成本入市的待业不可能投入大笔宣传费用做媒体广告和强势促销的情况下,超市投资者就要关于布局这些细节上做好文章。
总体来讲,成功的店面设计不仅起到美化店容、提升形象的作用,而且还便于消费者辨认,利于超市的形象和氛围的营造。
一个和谐、独特、鲜明的超市门店外观,能创造出良好的企业形象,引人注目、诱人进店。
1. 店面装饰店面的外观影响消费得的购买动机,对顾客是否能够上门购物有很大的关系。
其中,最理想的设计就是让你的店面以其独特的风格来吸引消费者,比如说以超市企业的整体Ci为参照,在确保整体效果的情况下突出某一点或某几个点的特色等。
超市在进行店面的外部装饰时,要使外部装饰与整体建筑结构和设计风格直辖市一致,应该从整体效果出发拟定超市店面装饰的设计思路,尽可能突出超市的门店规模和相应档次。
在装饰色彩的选择上,一般要以单纯清新、赏心悦目的色彩位置,避免滥用色彩渲染,任何不适宜的装饰和“浓妆艳抹”都可能致使消费者产生一种烦躁不安、杂乱无章的消极思想。
尤其对于中小超市而言,我们不提倡投入大量资金进行大肆装修。
一定要在坚持低成本入市的原则下,以简约之美为贯穿始终的设计思想,进而有效体现中小超市企业的优势和特性,做到四个结合:与超市定位档次的结合、与超市商品结构的结合、与超市营业方式和营业时间的结合心脏与超市目标消费群购物习惯的结合。
2. 橱窗设计在笔者居住的城市,每当灯火初上时,有的超市大幅橱窗通体透亮,货架林立,人影幢幢;有的超市则似乎是随着下班人流的不断增多也下了班似的,丝毫不见活力。
其实,这就是橱窗之于超市的魅力。
原则上说,中小超市不同于商厦、综超这些面积较大的大卖场,专门的橱窗不仅会挤占很大的货架面积,而且投资花费和日常维护加起来也是一项不菲的费用,所以,中小超市作橱窗只能是“大题小做”而非“小题大做”。
“易初莲花”作为泰国正大集团的支柱企业,与家乐福、沃尔玛并称为国际三大超级品牌卖场,其中作为亚洲品牌超级大卖场的“易初莲花”更符合东方人的生活习惯。
序1 )超市的规模A 国内资料: 超级市场营业厅面积大小没有具体规定,一般营业厅面积在300平方米以下为小型,主要经营食品,也销售一些洗涤卫生用品;500平方米左右为中型,主要销售食品和日用品;营业厅面积超过1000平方米为大型超级市场,大量经营食品和日用品、服装和家电产品等等,这时营业厅内部需要安装电视监控装置。
例:联华超市现有便利(小型)、标准门店(中型)、大卖场(大型)三种业态的门店资料B国外资料:何谓大型超市(HyperMarkets)普通超市和大型超市的区别并不总是十分清晰的。
一个典型的超级市场的售货面积在400平方米到2500平方米之间,货物品种在5000种到10000种之间。
而大型超级市场通常在2500平方米以上的面积内陈列了40000种到50000种商品。
“大型超市”这个词最早由LibreServiceActualites(LSA)的创刊人雅克·皮科特(JacquesPictet)先生于1969年引用。
LSA是一本自助式零售的商业出版物,它定义的“大型超市”主要指销售区域大于2500平方米大型超市应当具备以下的特征:1-至少2500平方米的销售区域;2-品种齐全的食品和商品;3-超大型免费停车场(最少1000辆车的容量);4-自助式付款程序,中央集中式付款。
大型超市发展很快,但是25年来,它的定义一直保持不变,北欧家乐福(包括法国)的首席执行官瑞恩·布里特(ReneBrillet)先生称,一个大型超市应当满足80%顾客的需求。
但是这在5000平方米以下的超市是不可能实现的。
5000平方米以下的超市只能提供一些基本的生活用品和有限的服装用品,食品也只可能是干燥和新鲜的才可以保存。
考虑到商业界的变化,LSA决定改变大型超市的定义:保留“大型超市”的名称,但是只有那些销售面积在5000平方米以上的超市可获此称呼。
超市平面优化课程设计一、课程目标知识目标:1. 学生能够理解超市平面布局的基本概念,掌握超市货品摆放的优化原则。
2. 学生能够运用比例和尺度知识,设计合理的购物路线,提高超市空间利用率。
3. 学生了解超市商品分类及标识系统的基本知识,提高商品检索效率。
技能目标:1. 学生能够运用制图工具,如尺规作图或电脑软件,绘制超市平面布局图。
2. 学生通过小组合作,提高沟通协调能力,解决超市平面布局中的实际问题。
3. 学生能够运用创新思维,提出超市布局优化的方案,并进行评估和修改。
情感态度价值观目标:1. 学生培养对商业空间布局的兴趣,激发对生活实际问题解决的积极性。
2. 学生在小组合作中,学会尊重他人意见,培养团队合作精神和责任感。
3. 学生关注超市布局对消费者购物体验的影响,提高对公共空间设计的认识,树立以人为本的设计理念。
课程性质:本课程为实践性较强的综合设计课程,结合数学、美术和实际生活,培养学生解决实际问题的能力。
学生特点:六年级学生具有一定的数学知识基础、审美观念和合作能力,对新鲜事物充满好奇心。
教学要求:结合学生特点,注重实践操作和小组合作,引导学生在动手实践中掌握知识,提高技能,培养正确的情感态度价值观。
通过分解课程目标为具体学习成果,为教学设计和评估提供依据。
二、教学内容1. 超市平面布局基本概念:介绍超市平面布局的定义、功能及重要性,结合课本相关章节,让学生了解超市布局的基本要素。
2. 货品摆放优化原则:讲解货品摆放的合理性、美观性和便捷性原则,引用课本案例,分析货品摆放对购物体验的影响。
3. 购物路线设计:教授比例和尺度知识,指导学生运用这些知识设计合理的购物路线,提高超市空间利用率。
4. 商品分类及标识系统:介绍超市商品分类的方法和标识系统的设计,结合课本内容,让学生了解商品分类及标识对购物效率的影响。
5. 制图工具的使用:教授尺规作图和电脑软件绘制超市平面布局图的方法,培养学生动手实践能力。
点土成金超市平面设计随着超市的普及,超市平面设计在市场中的作用越来越受到重视。
平面设计可以帮助超市提高销售量和品牌形象,传达公司文化和价值观。
在过去的几十年中,平面设计一直在发展和创新。
本文将探讨点土成金超市平面设计的重要性、设计原则以及实例展示。
重要性超市是我们日常生活中必不可少的场所。
它们为我们提供了必要的商品和服务,让我们的生活更加便利。
然而,在如此激烈的市场竞争中,超市平面设计变得十分重要。
在超市内,优秀的平面设计可以起到以下作用:提高销售量优秀的超市平面设计可以吸引顾客的视线,引导顾客前往特定区域或商品陈列区。
通过合理的设计和安排,可以最大化顾客在超市内停留的时间,从而增加销售量。
塑造品牌形象超市平面设计是一个品牌宣传的重要手段。
通过品牌色彩、标志、字体和图片等元素的结合,可以帮助企业塑造独特的品牌形象,让顾客对品牌有深刻印象。
传达企业文化和价值观超市平面设计不仅仅是商品展示的手段,它也是企业文化和价值观的呈现。
合理的设计可以传达企业的理念和形象,调动顾客的情感,增强顾客对企业的信任感和忠诚度。
设计原则超市平面设计需要遵循一定的设计原则,才能取得理想的效果。
比例与排版超市平面设计中,比例是非常重要的。
比例不仅仅是指设计元素之间的大小关系,而且还可以反映超市内商品价格的高低、销售的热度等因素。
排版也是超市平面设计中必不可少的,合理的排版可以让顾客更快地找到所需商品。
色彩搭配对于超市平面设计来说,色彩搭配是非常重要的。
颜色可以影响顾客的情感和心理预期。
比如,红色能够引起顾客的注意力;绿色则更容易被人们认为是健康的颜色。
超市平面设计需要通过色彩搭配,给顾客留下良好的印象。
图片与文本文本是超市平面设计的重要组成部分。
它可以用于标识商品名称、价格、描述等信息,帮助顾客了解商品的具体情况。
图片也同样重要,精美的图片可以吸引注意力、增加视觉冲击力。
实例展示下面是点土成金超市的平面设计实例展示:主打商品区域在主打商品区域,商家使用大幅图片和生动的文本描述来吸引顾客的注意,突出主打商品的特色和卖点。
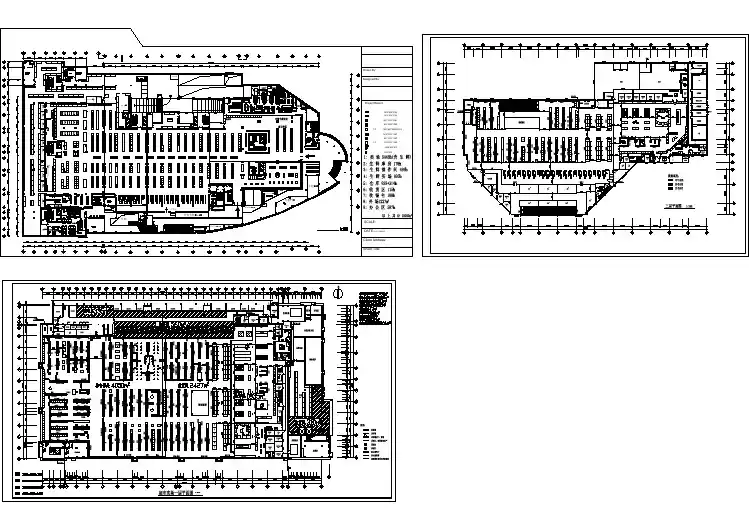
超市平面设计方案
超级市场以普通工薪阶层为服务对象,商品价位是“百姓价格”,主要供应食品及大众化的日常用品。
因此,超级市场的平
面布置是其空间组织的最主要部分,它的根本目的是对超级市场
的各个部分进行合理安排,包括营业厅入口、出口设计和营业厅
内部布置等等,把“商场方面的机能”与“顾客方面的机能”有
机地结合起来,实现购物的方便、舒适和快捷,提高单位营业面
积销售额。
在商场内部确定上述安排对象的位置,使其满足一定的要求,达到一定的目标,就是平面布置所要研究的问题。
由于超级市场
实行开架售货,顾客自选,因而超级市场平面布置的中心任务是
设计顾客流动线。
一条好的顾客流动线应该符合以下要求:
1.充分利用商场空间,合理组织顾客流动与商品配置;
2.顾客从入口进入在商场内步行一圈后离店之前必须通过收
银台;
3.避免出现顾客只能止步往回折的死角;
4.尽可能地拉长顾客的回游时间、在商场内滞留时间,以创
造销售机会;
5.采取适当的通道宽度,以便顾客环顾商场,观察商品;
6.尽量避免与商品配置流动线交叉。
超级市场的组成与一般商场基本相同,分为营业、仓储和辅
助三个部分,所以一般商场的平面布置原则对超级市场同样适用,有区别的主要是超级市场营业厅内部的平面布置。
由于超级市场
采用开架自选,在出口处集中结算的售货方式,与一般商场通过
营业员直接售货的方式不同,因此超级市场营业厅的入口、出口,顾客流动线,货柜布置形式和商品陈列方式均与一般商场营业厅
有所区别。
超级市场营业厅面积大小没有具体规定,一般营业厅面积在300平方米以下为小型,主要经营食品,也销售一些洗涤卫生用品1500平方米左右为中型,主要销售食品和日用品;营业厅面积超过1000平方米为大型超级市场,大量经营食品和日用品、服装和家
电产品等等,这时营业厅内部需要安装电视监控装置。
营业厅人口通常设在顾客流量大的一边,人口较宽,而出口
相应窄一些,根据出入口的位置,设计顾客流动线,以保持通道
的畅通。
为保证顾客单向通行,营业厅出口必须与人口分开,出
口处安放自动收银机,一般情况下可按每500人设置一台。
因为
顾客不能将自己的物品带进营业厅内,所以在出入口外面要留有
适当的顾客活动区域以及供顾客寄存随身物品的柜台。
在入口处
尚需留出供顾客选购物品所用的筐具、自选用手推车的位置(参见
图一)。
国外中型及大型超级市场大多在商场营业厅外划出互相连
锁的自选用手推车区域,用车时投币开锁,用完后还车上锁硬币
退回。
营业厅的内部布置也很有讲究,首先要根据商品的类别进行
区划设计,应使整个一层商场的商品均匀分布,避免东挤西稀或
南轻北重。
在以食品为主的超级市场,一般在人口处布置日常生
活必需的食品以吸引顾客,方便采购,出口处常布置一些口香糖,香烟,杂志等商品,留待顾客排队付款时选购;非食品超级市场则
突出主要商品。
货架的具体布置和商品陈列要能使顾客均等地接
近全部商品。
营业厅的内部布置多采取直线型布置,旨在充分利
用商场空间和合理组织顾客流动线。
根据心理学研究成果,人的
纵向视野宽于横向视野,视线上下垂直移动比横向移动方便,在
商品陈列上改传统的横向陈列法为纵向陈列法,让陈列的艺术产
生艺术的销售。
其布局方法大多为格子式,当然这种格子式布局
方法也有另种型式可供选择。
可以看出,这种方法的优点是:商
品敞开陈列,易于保持清洁,简化安全保卫;顾客熟悉陈列,方便
自行选购。
它的缺点也非常明显,布置单调缺乏创造力,测览场
所有限难以留住顾客。
同时,营业厅的内部布置还应考虑自选用手推车大小和商场
内通道宽度,通道宽度包括通行区和活动区,它们受到货架的长
短与布置方式,陈列商品的销售情况以及营业厅的顾客人数等因
素的影响。
活动区划分在货架旁边,使购买者可以或蹲或站选购
商品,还可以在此装车;通行区要能够使两位推车者并行。
此外,
超级市场平面布置的其它方面如橱窗布置、节日装饰、 pop广告
等等,总的来说应布局合理,消费流向畅通,光线明亮,色调柔和,这样将会吸引更多的顾客。