地下防水工程细部的构造防水及图示
- 格式:docx
- 大小:7.43 MB
- 文档页数:11
8 地下防水工程细部的构造防水及图示8.1 变形缝8.1.1 细部构造:1 变形缝处的混凝土结构厚度不应小于300mm。
2 用于沉降的变形缝其最大允许沉降差值不应大于30mm。
当计算沉降值大于30mm时,应在设计时采取措施。
3 用于沉降的变形缝宽度宜为20~30mm,用于伸缩的变形缝宽度宜小于此值。
4 变形缝的防水措施可根据工程开挖方法、防水等级按规范规定要求选用。
变形缝的几种复合防水构造形式见图8.1.1-1、图8.1.1-2、图8.1.1-3。
图8.1.1-1 中埋式止水带与外贴防水层复合使用外贴式止水带L≥300 外贴防水卷材L≥400 外涂防水涂层L≥4001—混凝土结构;2—中埋式止水带;3—填缝材料;4—外贴防水层图8.1.1-2 中埋式止水带与遇水膨胀橡胶条、嵌缝材料复合使用1—混凝土结构;2—中埋式止水带;3—嵌缝材料;4—背衬材料;5—遇水膨胀胶条;6—填缝材料图8.1.1-3 中埋式止水带与可卸式止水带复合使用1—混凝土结构;2—填缝材料;3—中埋式止水带;4—预埋钢板;5—紧固件压板;6—预埋螺栓;7—螺母;8—垫圈;9—紧固件压块;10—Ω型止水带;11—紧固件圆钢8.1.2 变形缝施工。
1 中埋式止水带施工应符合以下规定:(1)止水带埋设应准确,其中间空心圆环应与变形缝的中心线重合。
(2)止水带应妥善固定,顶、底板内止水带应成盆状安设,止水带宜采用专用钢筋套或扁钢固定。
采用扁钢固定时,止水带端部应先用扁钢夹紧,并将扁钢与结构内钢筋焊牢。
固定扁钢用的螺栓间距宜为500mm,见图8.1.2。
图8.1.2 顶(底)板中埋式止水带的固定1—结构主筋;2—混凝土结构;3—固定用钢筋;4—固定止水带用扁钢;5—填缝材料;6—中埋式止水带;7—螺母;8—双头螺杆(3)中埋式止水带先施工一侧混凝土时,其端模应支撑牢固,严防漏浆。
(4)止水带的接缝宜为一处,应设在边墙较高位置上,不得设在结构转角处,接头宜采用热压焊。
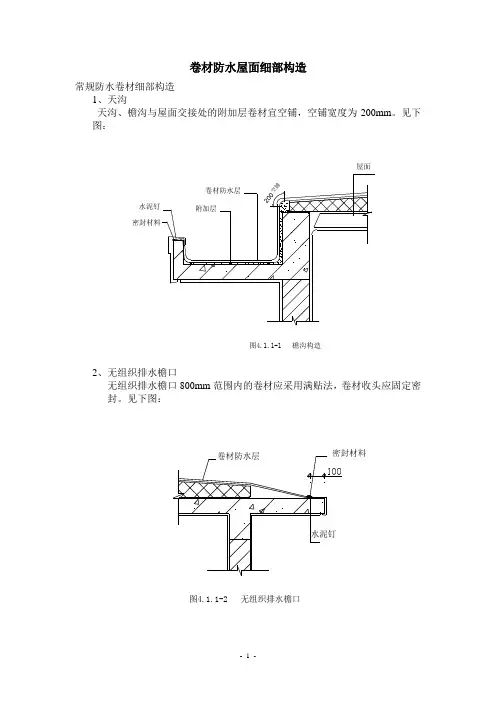
卷材防水屋面细部构造常规防水卷材细部构造1、天沟天沟、檐沟与屋面交接处的附加层卷材宜空铺,空铺宽度为200mm。
见下图:图4.1.1-1 檐沟构造屋面2、无组织排水檐口无组织排水檐口800mm范围内的卷材应采用满贴法,卷材收头应固定密封。
见下图:图4.1.1-2 无组织排水檐口3、女儿墙泛水①墙体为砖墙做法,见下图:图4.1.1-3 有压顶卷材泛水收头墙体为砖墙时,卷材可直接铺至女儿墙压顶下,用压条钉压固定,并用密封材料封闭严格。
压顶应做防水处理。
②砖墙女儿墙高度大于600mm时,做法见下图:图4.1.1-4 砖墙卷材泛水收头当砖墙女儿墙高度大于600时,可将卷材压入砖墙凹槽内固定密封,凹槽距屋面找平层高度应大于250,凹槽上部的墙体应做防水处理。
③墙体为混凝土时,做法见下图:图4.1.1-5 混凝土墙卷材泛水收头墙体为混凝土墙时,卷材的收头可采用金属压条钉压,并用密封材料封严。
4、变形缝变形缝内宜填充泡沫塑料,并用卷材封盖,顶部加扣混凝土盖板或金属盖板,见下图:图4.1.1-6 变形缝防水构造图4.1.1-7 高低跨变形缝密封材料5、水落口水落口周围直径500mm 范围内排水坡度不小于5%,并应用防水涂料密封,其厚度不小于2mm 。
水落口杯与基层接触处,应留宽度20mm 、深20mm 凹槽。
嵌填密封材料。
水落口图4.1.1-8 横式水落口卷材防水层图4.1.1-9 直式水落口6、伸出屋面管道Array图4.1.1-10 伸出屋面管道注:伸出屋面管道周围的找平层应做成圆锥台,管道与找平层间应留凹槽,并嵌填密封材料。
防水层收头处应用金属箍箍紧,并用密封材料封严。
注:屋面垂直出入口防水层收头,应压在混凝土压顶圈下。
卷材防水层附加层混凝土压顶圈人孔盖图4.1.1-11 垂直出入口注:水平出入口防水层收头,应压在混凝土踏步下,防水层的泛水应设护墙。
图4.1.1-12 水平出入口护墙附加层踏步卷材防水层外径Φ32镀锌薄壁钢管或塑料管插至保温层底在找平层图4.1.1-13 排汽屋面出汽孔注:找平层的分隔缝兼做排汽道时宜加宽至30,并纵横贯通。
地下室防水构造图集(卷材防水、涂料防水)内容介绍1、疏水构造:防水层和地下结构施工之前,地下水位需事先降至施工面以下不少于500mm处,并持续至后浇带施工完毕。
软土地基上的结构,低于基础底板的坑槽,其垫层下宜设厚度为300~400mm,以砾石粗砂构成的疏水排水层,各疏水排水层以疏水排水通道连接,并引至降水点;排水通道排水坡度为0.5%~1%,地下室周边设置排水明渠,渠宽400~500mm,渠宽低于疏水层底不小于300mm。
2、结构自防水:地下室结构层应选用自防水混凝土。
防水混凝土的抗渗等级应小于S8,结构厚度不应小于250,裂缝宽度≤0.2控制;钢筋迎水面保护层厚度≥50。
3、刚性防水层:刚性防水层设计关键控制刚性材料的开裂问题。
除通过掺入密实性防水砂浆(如:LB-7氯丁胶乳水泥砂浆、LB-21环氧乳液水泥砂浆)外,还可根据混凝土及水泥砂浆特性,加入各种抗裂、堵漏型外掺料,克服混凝土(或水泥砂浆)开裂以及多孔透气的渗漏根源。
例如:聚丙烯单丝纤维、萘系减水剂、膨胀剂等。
4、涂料防水层:地下室防水工程不宜选用水乳型防水涂料,宜选用反应固化型涂料。
而且,考虑人员长期停留或人员经常活动的要求,应选用无毒无害的防水涂(如:LB-2沥青聚氨酯涂膜橡胶,LB-20SBS 单组份防水涂料)。
5、卷材防水层:卷材防水层总体上比涂料防水层强度高且较耐老化。
但必须考虑卷材多道搭接,收口密封处理。
故本设计有专业提出防水卷材的搭接方法。
……排结合构造图基坑(或桩承台)、疏排水通管道断面图地下室深基坑抽、排水预埋井构造大样地下室外防外涂防水构造图地下室外防外涂防水构造图(I级设防)地下室外防内贴防水构造图(I级设防)外防外贴(涂)法地下室顶板与壁板转角位防水构造外防内贴(涂)法顶板与壁板转角位搭接防水大样。
8 地下防水工程细部构造防水8.1 变形缝8.1.1 一般规定本施工工艺标准的适用范围为;适用于地上、地下、土木工程变形缝的建筑施工。
(1)变形缝应满足密封防水、适应变形、施工方便、检修容易的要求。
(2)用于伸缩的变形缝宜不设或少设,可根据不同的工程结构类别及工程地质情况采用诱导缝、加强带、后浇带等替代措施。
(3)变形缝处混凝土结构的厚度不应小于300㎜。
(4)用于沉降的变形缝其最大允许沉降差值不应大于30㎜。
当沉降差值大于30㎜时,应在设计时采取措施。
(5)用于沉降的变形缝的宽度宜为20~30㎜,用于伸缩的变形缝的宽度宜小于此值。
(6)对环境要求高于50℃处的变形缝,可采用2㎜厚的紫铜片或3㎜厚不锈钢等金属止水带,其中间呈圆弧形。
(7)止水带宽度和材质的物理性能均应符合设计要求,且无裂缝和气泡;接头应采用热接,不得叠接,接缝平整、牢固,不得有裂口和脱胶现象。
(8)中埋式止水带中心线应和变形缝中心线重合,止水带不得穿孔或用铁钉固定。
(9)变形缝设置中埋式止水带时,混凝土浇筑前应校正止水带位置,表面清理干净,止水带损坏处应修补;顶、底板止水带的下侧混凝土应振捣密实,边墙止水带内外侧混凝土应均匀,保持止水带位置正确、平直,无卷曲现象。
(10)变形缝处增设的卷材或涂料防水层,应按设计要求施工。
8.1.2 施工准备1.技术交底(1)单位工程、分部工程和分项工程开工前,项目技术负责人应向承担施工的负责人或分包人进行书面技术交底。
技术交底资料应办理签字手续并归档。
(2)在施工过程中,项目技术负责人对发包人或监理工程师提出的有关施工方案、技术措施及设计变更的要求,应在执行前向执行人员进行书面技术交底。
(3)技术交底内容应包括:本施工项目的施工作业特点和危险点;针对危险点的具体预防措施;应注意的安全事项;相应的安全操作规程和标准;发生事故后应及时采取的避难和急救措施。
(4)确定施工技术方案,针对防水变形缝的不同部位、不同功能要求、不同的现场条件,编制满足设计要求、相关规范和工艺要求的施工技术方案。
地下室防水节点做法第一节结构自防水一般规定第一条防水混凝土应采用硅酸盐水泥或普通硅酸盐水泥,防水混凝土掺入粉煤灰的级别不得低于二级。
第二条预拌防水混凝土入泵坍落度控制在120mm~160mm,并做好现场实测。
底板防水混凝土施工前要做好降排水工作,不得在有积水的环境中浇注混凝土。
第三条地下室穿外墙群管部位应现场用竹胶合板模板套孔封堵,不得采用钢丝网封堵。
第四条外墙和底板防水混凝土应分层浇注,分层厚度不大于 500mm,每层应振捣密实。
如坍落度损失不能满足施工要求时,严禁直接加水后使用。
第五条防水混凝土应按后浇带分块连续浇注,尽量少留施工缝。
第六条模板拆除后防水施工前及时割除一次性止水螺杆,并用防水砂浆将螺杆端头封闭。
第二节地下室其它防水一般规定第七条若地下室采用除结构自防水之外的其它防水做法,防水应包裹整个地下室;除渗透结晶防水做法之外,其它防水基层阴阳角应抹成50mm的圆弧角。
第八条不管采用何种防水材料,防水基层无杂质、打磨修补平整,施工面过于光滑的应打磨成粗糙面。
第九条涂料防水前后两遍应相互垂直涂刷,涂膜厚度必须达到设计要求或规范规定。
第三节地下室防水细部做法(适用卷材防水)第十条后浇带防水细部做法1.底板、外墙、地下室顶板后浇带部位必须做防水附加层,防水附加层宽度需在两侧各伸出后浇带 250mm 以上。
2.结构底板、外墙、地下室顶板后浇带结构施工时必须居中预埋钢板止水带,同时封堵严密,固定牢固,振捣密实。
3.后浇带浇筑必须满足设计的要求时间;收缩型后浇带一般在两侧混凝土龄期达到图纸规定时间后施工,沉降型后浇带必须待高层部位主体结构施工结束、沉降基本完成后浇筑。
4.后浇带应采用补偿收缩混凝土浇筑,其抗渗和抗压等级按设计要求,且不应低于两侧混凝土。
5.后浇带混凝土应一次浇筑,不得留设施工缝;混凝土浇筑后应及时养护,养护时间不少于 28 天。
6.节点图(止水钢板详结构图)底板后浇带节点图第十一条施工缝防水细部做法1.地下室底板上返导墙的施工缝必须居中预埋钢板止水带,其它水平施工缝埋设钢板止水带或膨胀止水条;止水钢板接长时两块钢板搭接处必须满焊,同时钢板 U 型口朝向迎水面一侧;止水条应居中、连续,不得间断。
预埋套管防水处理方法(如图4-23所示)。
图4-23 刚性防水套管
(4) 地下室外墙支模采用防水型穿墙螺栓(如图4-24)。
10)特殊部位处理
水落口设在檐沟底标高的最低处,水落口周围500mm 半径内的找平层坡度为5%,在水落口与找平层连接处留设宽20mm、深20mm 的槽,用沥青防水祖膏嵌填,上面增贴一层附加层(如图4-25 所示)。
(三) 卫生间防水
1.卫生间防水施工工艺流程:
卫生间施工为多工种交叉进行,各工种操作除必须遵照各自的规程外尤应注意工种之间的先后施工顺序及相互配合。
其工艺流程为:
土建楼板浇筑完毕⇒隔墙砌筑完毕⇒管道定位安装,检查管道位置⇒浇筑管道周围堵缝细石混凝土⇒地面防水层⇒第一次蓄水试验⇒抹面层(保护防水层)⇒砌砖(隔板等)⇒固定管卡和洁具卡⇒地面防滑地砖贴地面⇒第二次蓄水试验⇒安放洁具
⇒防水合格。
卫生间地面防水构造图(如图4-26所示)。
1.基层(结构层)
2.找平层
3.防水层
4.面层
5.装饰地面
2.对卫生间防水层基层要求
(1)本工程卫生间楼板为现浇混凝土楼板,混凝土必须振捣密实,随抹压光,形成自身防水层。
现浇楼板支承在墙上的四边,可同时做高为120mm反边。
靠墙板处转角
做成半径100mm圆边,可防止积水吸附至墙面,造成渗水(如图所示)。
墙根部构造图1.Φ8钢筋 2.面层3.现浇钢筋混凝土楼板。
地下防水工程防水涂料细部构造
1、底板与立墙施工防水层连接部位甩槎与接茬构造见图1-1、图1-2和图1-3。
图1-1 甩槎
1-垫层 2-喷涂防水涂料 3-底板结构层
图1-2 接槎
1-垫层 2-喷涂防水涂料 3-地板结构层
图1-3 接槎
1-垫层 2-喷涂防水涂料 3-底板结构层
2、地下工程混凝土施工缝采用喷涂防水涂料作防水层时,应采用防水涂料配合胎体增强
材料对施工缝先行加强处理,增强层在施工缝两侧向外延伸的宽度不应小于250mm,防水构造见图2。
图2 施工缝防水构造示意图
1-结构层 2-加强层 3-喷涂防水涂料
3、地下工程底板、顶板、侧墙变形缝采用喷涂防水涂料做防水层时,变形缝两侧应做增强层,增强层向外延伸宽度不应小于250mm,防水构造见图3-1、图3-2。
图3-1 底板变形缝防水构造示意图
1-垫层 2-喷涂防水涂料 3-结构底板
图3-2 顶板及侧墙变形缝防水构造示意图
1-结构层 2-加强层 3喷涂防水涂料
4、地下工程混凝土结构后浇带接缝处喷涂防水涂料应设置加强层,加强层两边均应超出接缝250mm。
防水构造见图4-1、图4-2。
图4-1 顶板及侧墙后浇带防水构造示意图
1-结构顶板 2-加强层 3-喷涂防水涂料
图4-2 底板后浇带防水构造示意图
1-喷涂防水涂料 2-加强层 3-结构底板
5、桩头的防水层应紧密连接,并与作为加强层的喷涂防水涂料连接成整体。
防水层应做到桩头根部,喷涂时应对桩头钢筋做保护处理,见图5。
图5 桩头防水构造示意图
1-结构层 2-喷涂防水涂料 3-加强层 4-水泥基渗透结晶型防水涂料
5-遇水膨胀止水胶(环)。
防水工程施工做法细部构造图集,图文详解【防水工程】
材料探秘
关键词:
#地下室底板#地下室侧墙#
1 地下室底板防水做法示意图
■底板变形缝防水做法
■底板后浇带防水构造做法
■高低跨连接处防水做法
■桩头防水处理
采用水泥基渗透结晶型防水涂料 +改性沥青防水涂料 +卷材的复合防水做法。
◎防水处理工序
1)由总承包方凿出桩头至设计标高位置,调整受力钢筋,并切割露出的定位钢筋,并由总承包方用高压水枪冲洗暴露的桩身上的泥土、浮浆、松动的碎石等,并经验收合格。
2)水泥基渗透结晶型防水材料涂刷桩顶表面、暴露的桩身及周圈250mm范围,涂刷参考用量1.2kg/㎡,成膜厚度约1.0mm;
3)在桩头部位收口卷材采用橡胶沥青防水涂料涂抹。
◎注意事项
1)桩头防水处理的关键是桩头的清理工序,采用高压水枪冲洗桩顶面混凝土能够有效清除混凝土的浮灰泥皮。
同时,涂料采用硬毛刷搓揉涂刷。
见下图:
2 地下室侧墙防水做法
■地下室底板防水交接处预留做法
■地下室侧墙抗渗增强处理方法
■侧壁底板防水接头做法
■地下室侧墙地面收口做法
■穿墙管件防水处理
■穿墙群管的防水做法
3 屋面防水做法
■种植屋面基本做法
■上人屋面做法
■出屋面管道防水做法4 卫生间防水构造做法。
地下室防水节点做法第一节结构自防水一般规定第一条防水混凝土应采用硅酸盐水泥或普通硅酸盐水泥,防水混凝土掺入粉煤灰的级别不得低于二级。
第二条预拌防水混凝土入泵坍落度控制在120mm~160mm,并做好现场实测。
底板防水混凝土施工前要做好降排水工作,不得在有积水的环境中浇注混凝土。
第三条地下室穿外墙群管部位应现场用竹胶合板模板套孔封堵,不得采用钢丝网封堵。
第四条外墙和底板防水混凝土应分层浇注,分层厚度不大于 500mm,每层应振捣密实。
如坍落度损失不能满足施工要求时,严禁直接加水后使用。
第五条防水混凝土应按后浇带分块连续浇注,尽量少留施工缝。
第六条模板拆除后防水施工前及时割除一次性止水螺杆,并用防水砂浆将螺杆端头封闭。
第二节地下室其它防水一般规定第七条若地下室采用除结构自防水之外的其它防水做法,防水应包裹整个地下室;除渗透结晶防水做法之外,其它防水基层阴阳角应抹成50mm的圆弧角。
第八条不管采用何种防水材料,防水基层无杂质、打磨修补平整,施工面过于光滑的应打磨成粗糙面。
第九条涂料防水前后两遍应相互垂直涂刷,涂膜厚度必须达到设计要求或规范规定。
第三节地下室防水细部做法(适用卷材防水)第十条后浇带防水细部做法1.底板、外墙、地下室顶板后浇带部位必须做防水附加层,防水附加层宽度需在两侧各伸出后浇带 250mm 以上。
2.结构底板、外墙、地下室顶板后浇带结构施工时必须居中预埋钢板止水带,同时封堵严密,固定牢固,振捣密实。
3.后浇带浇筑必须满足设计的要求时间;收缩型后浇带一般在两侧混凝土龄期达到图纸规定时间后施工,沉降型后浇带必须待高层部位主体结构施工结束、沉降基本完成后浇筑。
4.后浇带应采用补偿收缩混凝土浇筑,其抗渗和抗压等级按设计要求,且不应低于两侧混凝土。
5.后浇带混凝土应一次浇筑,不得留设施工缝;混凝土浇筑后应及时养护,养护时间不少于 28 天。
6.节点图(止水钢板详结构图)底板后浇带节点图第十一条施工缝防水细部做法1.地下室底板上返导墙的施工缝必须居中预埋钢板止水带,其它水平施工缝埋设钢板止水带或膨胀止水条;止水钢板接长时两块钢板搭接处必须满焊,同时钢板 U 型口朝向迎水面一侧;止水条应居中、连续,不得间断。
地下室、楼地面、屋面、外墙防水节点构造详图,
编方案肯定用的到(筑)
地下防水节点楼地面防水节点屋面防水节点外墙保温防水节点
节点构造详图
目录:
1、地下防水节点
2、楼地面防水节点
3、屋面防水节点
4、外墙保温防水节点
1、地下防水节点
2、楼地面防水节点
节点详图
3、屋面防水节点
节
点
大样
烟道出屋面(不上人)节点详图
烟道
出屋面(上人)节点详图4、外墙保温防水节点
屋面落水口节点图
(一)
Oft 匐行钟的摩内制的需
附加防水浅材AFF 律八刷用冽位空QI 3)
姑构版的期前作觥 博签 M ———二一
露台、屋面管根处理节点图
防水揩财AI 中加
----- 9H 助水谅膜胃原
1%0细石磋授坡金搏处3n m
y 】i 防水滤膜2摩
911防水标膜2厚。
.地下防水工程细部的构造防水及图示一、变形缝(一) 细部构造:1 变形缝处的混凝土结构厚度不应小于300mm。
2 用于沉降和变形缝其最大允许沉降差值不应大于30mm。
当计算沉降值大于30mm时,应在设计时采取措施。
3 用于沉降的变形缝宽度宜为20~30mm,用于伸缩的变形缝宽度宜小于此值。
4 变形缝的防水措施可根据工程开挖方法、防水等级按规范规定要求选用。
变形缝的几种复合防水构造形式见下图。
中埋式止水带式外贴防水层复合使用图400≥外涂防水涂层L≥≥处贴式止水带L300 外贴防水卷材L400—外贴防水层4321—混凝土结构;—中埋式止水带;—填缝材料;教育资料..图一中埋式止水带与遇水膨胀橡胶条、嵌缝材料复合使用一嵌缝材料;中埋式止水带;31一混凝土结构;2- 填缝材料一遇水膨胀胶条:6-4一背衬材料:5圈一中埋式止水带与可卸式止水带复合使用紧固件压板;4-预埋钢板;5-中埋式止水带;1-混凝土结构;2-填缝材料;3- Ω型止水带;11-紧固件圆钢螺母;8-垫圈;9-紧固件压块;10-7-6-预埋螺栓;变形缝施工。
(二) 1 中埋式止水带施工应符合以下规定:止水带埋设应准确,其中间空心圆环应与变形缝的中心线重合。
(1)止水带应妥善固定,顶、底板内止水带应成盆状安设,止水带宜采用专用钢筋套或(2)采用扁钢固定时,止水带端训应先用扁钢夹紧,并将扁钢与结构内钢筋焊牢。
固扁钢固定。
定扁钢用的螺栓间距宜为500mm,见下图。
图顶(底)板中埋式止水带的固定一固定用钥筋:一混凝土结构;一结构主筋:1234一固定止水带有扁钢;教育资料..5一填缝材料;6-中埋式止水带;7-螺母:8一双头螺杆(3) 中埋式止水带先施工一侧混凝土时,其端模应支撑牢固,严防漏浆。
(4) 止水带的接缝宜为一处,应设在边墙较高位置上,不得设在结构转角处,接头宜采用热压焊。
(5) 中埋式止水带在转弯处宜采用直角专用配件,并应做成圆弧形,橡胶止水带的转角半径应不小于200mm,钢边橡胶止水带应不小300mm.且转角半径应随止带的宽度增大而相应加大,2 宜采用遇水膨胀橡胶与普通复合的复合型橡胶条、中间夹有钢丝或纤维织物的遇水膨胀橡胶条、中空圆环型遇水膨胀橡胶条。
防水细部构造处理(通用)细部构造防水主要是阴阳角、变形缝、施工缝、后浇带、穿墙管道、埋设件等细部构造的防水处理。
在突出墙面的管根、阴阳角等部位,做卷材附加层,附加层宽度不小于500mm,两边均匀搭接250mm,要求进行满粘,附加层做法如下图所示。
1、变形缝的防水施工⑴止水条宽度和材质的物理性能均应符合设计要求,且无裂缝和气泡;接头应采用热接,不得叠接,接缝平整、牢固,不得有裂口和蛻胶现象。
⑵中埋式止水条中心线应和变形缝中心线重合,止水带不得穿孔或用铁钉固定。
⑶变形缝设置中埋式止水条时,混凝土浇筑前应校正止水带位置,表面清理干净,止水条损坏处应修补;顶、底板止水条的下侧混凝土应振捣密实,边墙止水条内外侧混凝土应均匀,保持止水条位置正确、平直,不能有卷曲现象。
2、施工缝的防水施工⑴水平施工缝浇筑砼前,应将其表面浮浆和杂物清除,铺水泥砂浆并及时浇筑砼。
⑵垂直施工缝浇筑砼前,应将其表面清理干净,涂刷砼界面处理剂并及时浇筑砼。
⑶施工缝采用遇水膨胀胶腻子止水条,应将止水条牢固地安装在缝表面预留槽内。
3、后浇带的防水施工(1)顶板底板后浇带防水做法说明:预埋钢板止水带,钢板厚3,宽300,同时钢板U型口朝向迎水面一侧;清理后浇带;后浇带膨胀混凝土浇筑;在后浇带位置设置附加防水层一道,两边须各超出后浇带300以上。
(2)地下室外墙后浇带非超前止水防水节点做法说明:A.预埋钢板止水带竖直安装在板墙厚1/2处,与钢板网焊接固定牢固钢板U型口朝向迎水面一侧;B.止水钢板应沿施工缝连续设置,采用搭接焊接,搭接长度不小于50mm,双面满焊;预埋钢板止水带,钢板厚3,宽300.C.后浇带处安装具有一定强度的密目钢丝网以阻挡砼的流失,浇筑时须保证钢;D.清理干净外墙与后浇带结合处的浮浆和杂物;浇筑时须保证钢丝网处砼密实;E.后浇带砼浇筑前,应先将后浇带两侧砼湿润24h以上,应施工高于顶板砼强度一个等级的微膨胀砼,后浇带砼应一次浇筑完成,不得留设施工缝。
地下防水工程细部的构造防水及图示
一、变形缝
(一) 细部构造:
1 变形缝处的混凝土结构厚度不应小于300mm。
2 用于沉降和变形缝其最大允许沉降差值不应大于30mm。
当计算沉降值大于30mm 时,应在设计时采取措施。
3 用于沉降的变形缝宽度宜为20~30mm,用于伸缩的变形缝宽度宜小于此值。
4 变形缝的防水措施可根据工程开挖方法、防水等级按规范规定要求选用。
变形缝的几种复合防水构造形式见下图。
图中埋式止水带式外贴防水层复合使用
处贴式止水带L≥300 外贴防水卷材L≥400 外涂防水涂层L≥400
1—混凝土结构;2—中埋式止水带;3—填缝材料;4—外贴防水层
图一中埋式止水带与遇水膨胀橡胶条、嵌缝材料复合使用
1一混凝土结构;2-中埋式止水带;3一嵌缝材料;
4一背衬材料:5一遇水膨胀胶条:6-填缝材料
圈一中埋式止水带与可卸式止水带复合使用
1-混凝土结构。
2-填缝材料;3-中埋式止水带;4-预埋钢板;5-紧固件压板;
6-预埋螺栓;7-螺母;8-垫圈;9-紧固件压块;10-Ω型止水带;11-紧固件圆钢
(二)变形缝施工。
1 中埋式止水带施工应符合以下规定:
(1) 止水带埋设应准确,其中间空心圆环应与变形缝的中心线重合。
(2)止水带应妥善固定,顶、底板内止水带应成盆状安设,止水带宜采用专用钢筋套或扁钢固定。
采用扁钢固定时,止水带端训应先用扁钢夹紧,并将扁钢与结构内钢筋焊牢。
固定扁钢用的螺栓间距宜为500mm,见下图。
图顶(底)板中埋式止水带的固定
1一结构主筋:2一混凝土结构;3一固定用钥筋:4一固定止水带有扁钢;
5一填缝材料;6-中埋式止水带;7-螺母:8一双头螺杆
(3)中埋式止水带先施工一侧混凝土时,其端模应支撑牢固,严防漏浆。
(4)止水带的接缝宜为一处,应设在边墙较高位置上,不得设在结构转角处,接头宜采用热压焊。
(5) 中埋式止水带在转弯处宜采用直角专用配件,并应做成圆弧形,橡胶止水带的转角半径应不小于200mm,钢边橡胶止水带应不小300mm.且转角半径应随止带的宽度增大而相应加大,
2宜采用遇水膨胀橡胶与普通复合的复合型橡胶条、中间夹有钢丝或纤维织物的遇水膨胀橡胶条、中空圆环型遇水膨胀橡胶条。
当采用遇水膨胀橡胶条时,应采取有效的固定措施,防止止水条胀出缝外。
二、后浇带
(一)细部构造:
1 后浇带应设在受力和变形较小的部位,间距宜为30~60m,宽度宜为700~1000mm。
2 后浇带可做成平直缝,结构主筋不宜在缝中断开,如必须断开,则主筋搭接长度应大于45倍主筋直径,并应按设计要求加设附加钢筋。
后浇带的防水构造见图1-1、图1-2、图1-3。
(二)后浇带施工
后浇带施工应符合以下规定:
1 后浇带应在其两侧混凝土龄期达到42d后再施工,但高层建筑的后浇带应在结构顶板浇混凝土14d后进行;
2 后浇带混凝土施工前,后浇带部位和外贴式止水带应予以保护,严防入杂物和损伤外贴式水带;
3后浇带应采用补偿收缩混凝土浇筑,其强度等级不应低于两侧混凝土;
4后浇带混凝土的养护时间不得少于28d.
三、穿墙管(盒)
(一)细部构造:
1穿墙管(盒)应在浇筑混凝土前预埋。
2穿墙管与内墙角、凹凸部位的距离应大于250mm.
3穿墙管应采用套管式防水法,套管外应加焊止水环,见图1一1、图1-2。
1-1穿培份防水构造(一)
1—止水环:2—嵌缝材料;3—主管:4—套管.5—混凝土结构;6—填缝材料
图1-2套管式穿墙管防水构造(二)
1—翼环;2—嵌缝材料:3—背衬材料;4—填缝材料;5—档圈;6—套管:7—止水环;8—橡胶圈;9—翼盘;10—螺母;11—双头螺栓;12—短管;13—主管;14—法兰盘
4穿墙管线较多时,宜相对集中,采用穿墙盒方法。
穿墙盒的封口钢板应与墙上的预埋角焊钢焊严,并从钢板上的预留浇注孔注入改性沥青柔性密封材或细石混凝土处理,见图1-3。
图1-3穿墙群管防水构造
1—浇注孔;2—柔性材料或细石混凝土;3—穿墙管;
4—封口钢板:5—固定角钢;6—预留孔
(二)穿墙管防水施工。
穿墙管防水施工应符合以下规定:
1 采用套管式穿墙管防水构造时,翼环与套管应满焊密实,并在施工前将套管内表面清理干净。
2 管与管的间距应大于300mm。
3 当工程有防护要求时,穿墙管除应采取有效防水措施外,还应采取措施满足防护要求。
四、埋设件
1结构上的埋设件预埋。
2埋设件端部或预留孔(槽)底部的混凝土厚度不得小于250mm,当厚度小于250mm时,应采取局部加厚或其他防水措施。
见下图。
3 预留孔(槽)内的防水层,宜与孔(槽)外的结构防水层保持连续。
五、预留通道接头
(一)细部构造:
1 预留通道接缝处的最大沉降差值不得大于30mm。
2 预留通道接头应采取复合防水构造形式,见图1-1、图1-2、图1-3。
(二)预留通道接头的防水施工。
预留通道接头的防水施工应符合以下规定:
1 中埋式止水带,遇水膨胀橡胶条,嵌缝材料、可卸式止水带的施工应符合本节变形缝施工中的有关规定;
2 预留通道先施工部位的混凝土、中埋式止水带、与防水相关的预埋件等应及时保护,确保端部表面混凝土和中埋式止水带清洁,埋件不锈蚀;
图1-3预留通道接头防水构造(三)
1—先浇泥凝土结构;2—防水涂料;3—填缝材料;4—可卸式止水带;5—后浇混凝土结构
3采用图(一)-2的防水构造时,在接头混凝土施工前应将先浇混凝土端部表面凿毛,露出钢筋或预埋的钢筋接驳器钢板,与待浇混凝土部位的钢筋焊接或连接好后再行浇筑;
4当先浇混凝土中未预埋可卸式止水带的预埋螺栓时,可选用金属或尼龙的膨胀螺栓固定可卸式止水带。
采用金属膨胀螺栓时,可用不锈钢材料或用金属膜、环氧涂料进行防锈处理。
六、桩头
(一)细部构造:
桩头防水构造形式见下图
圈桩头防水构造(一)
1—结构底板;2—底板防水层:3—细石混凝土保护层:4—-聚合物水泥防水砂浆;5—水泥基渗透结晶型防水涂料;6—桩墓受力筋;7—遇水膨胀止水条。
8—混凝土垫层;9—桩基混凝土
圈桩头防水构造(二)
1—构造底板:2—底板防水层;3—细石棍凝土保护层:4—聚合物水泥防水砂浆;
5—水泥基渗透结晶型防水徐料;6—桩基受力筋;7—遇水膨胀止水条;8—混凝土垫层;9—桩基混凝土(二)桩头防水施工。
桩头防水施工应符合以下规定:
1 破桩后如发现渗漏水,应先采取措施将渗漏水止住;
2 采用其他防水材料进行防水时,基面应符合防水层施工的要求;
3 应对遇水膨胀止水条进行保护。
七、孔口
1 地下工程通向地面的各种孔应设置防地面水倒灌措施。
人员出入口应高出地面不小于500mm,汽车出入口设明沟排水时,其高度宜为150mm,并应有防雨措施。
2 窗井的底部在最高地下水位以上时,窗井的底板和墙应做防水处理并宜与主体结构断开,见下图。
3 窗井或窗井的一部分在最高地下水位以下时,窗井应与主体结构连成整体,其防水层也应连成整体,并在窗井内设集水井。
见图3。
1—窗井;2—防水层;3—主体结构;4—防水层保护层;5—集水井;6—垫层
4 无论地下水位高低,窗台下部的墙体和底板应做防水层。
5 窗井内的底板,应比窗下缘低300mm,墙井墙高出地面不得小于500mm,窗井外地面应做散水,与墙面间应采用密封材料嵌填。
6 通风口应与窗井同样处理,坚井窗下缘离室外地面高度不得小于500mm。
八、坑池
1 坑、池、储水库宜用防水混凝土整体浇筑,内设其他防水层。
受振动作用时应设柔性防水层。
2 底板以下的坑、池,其局部底板必须相应降低,并应使防水层保护连续,见下图。
1—底板;2—盖板;3—坑、池防水层;4—坑、池;5—主体结构防水层
11 / 11。