4.预算
绘制要求
• (一)根据用地范围的大小和图样复杂程度,选定适宜的 绘图比例,对同一个工程而言,一般采用与总体规 划设计图相同的比例。
• (二)确定合适的图幅,合理布置图面 • (三)确定定位轴线,或绘制直角坐标网 • (四)根据地形设计选定合适的等高距,并绘制等高线,
在绘制竖向设计图时一般要根据地形设计中地形在 竖向上的变化情况,选定适合的等高距,现代园林 中不建议大规模的挖湖堆山,因此,在不说明的情 况下等高距默认为1m。 在竖向设计图中一般用细实线表示设计地形的等高 线,用细虚线表示原地形的等高线。等高线上应标 注高程,高程数字处等高线应断开,高程数字的字 头应朝向山头,数字要排列整齐。周围平整地面 (或者说相对零点)高程标注为±0.00。高于相对 零点为正,数字前面应注写“+”号,但一般情况下 常省略不写;低于相对零点为负,数字前应注写
2 种植施工图的内容
种植施工图是指导园林种植工程施工的技术 性图纸,一份完整的种植施工图纸主要包括以下内 容:
① 种植工程施工平面图; ② 立面图和剖面图; ③ 局部放大图; ④ 做法说明; ⑤ 苗木表; ⑥ 预算.
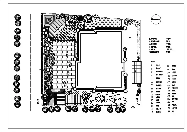
1.种植工程施工平面图
在平面图上应按实际距离尺寸标注出各种植物的品种、 数量,标明与周围固定构筑物和地下管线距离的尺寸.应写 明施工放线依据.
6.预算
应根据有关主管部批准的定额,按实际工程量进行计 算,其内容包括:基本费用、不可预见费用、附加费用以
线型要求
在园林植物种植设计图上,要求绘制出植物、建筑、 水体、道路及地下管线等位置,其中植物用细实线表示; 水体边界用粗实线表示出驳岸,沿水体边界内侧用细实线 表示出水面;建筑用中实线;道路用细实线;地下管线或 构筑物用中虚线。
“-”号。高程单位为m,要求保留两位小数。