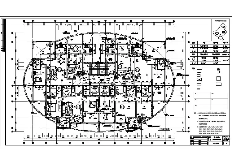
合用前室卧室阳台阳台卧室风井风井电井水井前室卧室卧室餐厅客厅阳台阳台客厅餐厅卧室储藏室卧室客厅餐厅餐厅客厅卧室卧室储藏室阳台阳台连接梁连接梁连接梁椭圆圆心(圆心至长轴定位点17000mm)椭圆长轴定位点(圆心至短轴定位点11200mm)椭圆短轴定位点建 筑电 气给 排 水结 构暖 通1-10.51.1.1.51.59.14.校 对审 核专业负责SHENZHEN YIHENG ARCHITECTS & ENGINEERS LTD.制 图计 算设 计工程号图 别日 期号图湖北新安房地产开发有限公司1-22层平面图容内单 位兴 建新安·金沙豪庭D栋工程名称052006.2.建 施YHW-06-07冰箱%%C15003.42m 24.87m 26.16m 2%%C1500K1阳台阳台单体平面相对关系示意图BDA C本层总面积212.15M83.91M261.81M22453.62M219.89M26.12M27.04M25.14M234.78M2二房二厅二卫户型D-1编号户型面积85.13M212.49M2阳台面积16.74M2108.12M27.04m 213.89m 2 22.72m 23.71m10.72m 24.95m 26.30m 216.92m 28.04m 2 211.56m 24.45m8.57m 217.06m 2 29.26m24.42m 2 219.89m12.10m 26.82m 2D-1D-2D-3D-2D-3一房二厅一ห้องสมุดไป่ตู้一房一卫FHM-1冰箱洗衣机冰箱洗衣机%%C1500%%C1500K洗衣机A1-bd户型编号空调室外机K1图例K挂式空调室内机柜式空调室内机钢筋混凝土冰箱洗衣机成品烟道YD燃气热水器1-22层平面图1:5021.000,24.000,27.000,30.000,33.000,36.0003、本层标高H为6.000,9.000,12.000,15.000,18.00039.000,42.000,45.000,48.000,51.000,54.00057.000,60.000,63.000,66.000,69.000上下下上做法:选用省标《住宅排风道安装构造》03EJ504做法:选用省标《住宅排风道安装构造》03EJ504性质:预制卫生间排烟道楼板留洞650X350PYD2位置:详平面布置位置:详平面布置性质:%%C80柜式空调冷媒管预留洞做法:预埋%%c80PVC套管,向外倾斜10度性质:预制厨房排烟道楼板留洞750X450位置:中心距地300PYD1KD2做法:预埋%%c80PVC套管,向外倾斜10度性质:%%C80分体空调冷媒管预留洞位置:中心距地2400KD1截面、定位、标高详结施作空调板用,板面标高同楼层标高现浇板封闭KD1PYD1SD1性质:污水立管板面留洞做法:预埋PVC套管,防水详建施说明,管径详水施位置:具体定位详水施SD1阳台外边沿出椭圆轴线150阳台栏杆详建施详图0.5%单联阳台组织排水98ZJ411150厨房、卫生间隔墙厚150,管道井隔墙厚100。墙体定位除注明说明:1、本工程填充墙均为加气混凝土砌块,外墙厚250,户内隔墙厚200,PYD20.5%0.5%飘窗详图详建施详图SD1SD10.5%冷凝水管KD1冷凝水管KD2KD20.5%0.5%SD198ZJ513蹲位做法1190.5%阳台栏杆详建施详图单联阳台组织排水98ZJ411150PYD1SD198ZJ411单联阳台组织排水501阳台栏杆详建施详图KD10.5%PYD2SD198ZJ513蹲位做法1190.5%SD1PYD1双联阳台组织排水98ZJ411250阳台栏杆详建施详图KD2KD1详建施详图楼梯详图编号D-1D-2D-3户型公摊面积户型建筑面积2、凡未注明定位尺寸的门洞,门垛出墙边、柱边尺寸均为100。者外,轴线位于墙中;构造柱详见结施图;D-3D-2D-1消防电梯无障碍电梯消火栓箱留洞底距楼地面900700宽x850高x100深FDM-2FDM-2FDM-2FDM-2FHM-1FHM-1FHM-1FHM-1360036003000300024003000300024003000200034000300020003400051002000360021002000270036003000210027005100390036002400120036002400240084020602240060021001200150019002600240048001200120021002700240018001200240012003000180015002250225012001800300012002400760210090055075020001200900150035075015009001050105015006001500105015001050600900350750200015009001200900150055015007502000105021006001500105075075012001800600210010507505100200012007501500105051007509007501250900250150120075075012001501075250800206022400390024003600240012003600240084025090075012509007502608005509001501503000500100015009001700250700250400120080011005001000400100030038001900150095060070011001200480065018001200300160015007501200130055040095012505501100700130055021002100240036002550500700200110046001100200110057557511007009009006008001000150017508009005751502250380010008002700240015001075600FHM-2FHM-2FHM-3FHM-3M-1M-1M-1M-1M-1M-1M-2M-2M-2M-2M-2M-2M-2M-2M-2M-2SM-1SM-1SM-1SM-1SM-1SM-1SM-1SM-1SM-2SM-2M-2M-2M-3M-3C-1C-1C-1C-1C-1C-1C-2C-2C-2C-2C-3C-3C-4C-4C-5雨篷板0.5%板底标高为5.600消火栓