综合教学楼建筑部分样本
- 格式:doc
- 大小:344.50 KB
- 文档页数:37
1建筑设计1.1文献综述本设计为土木工程专业建筑工程方向本科生毕业设计一某些, 是本科培养方案一种环节, 目是培养学生综合运用所学建筑设计知识, 依照详细资料和环境, 初步分析解决工程实际问题能力。
本建筑设计题目是:某高校规模扩大, 已有教学楼已不能满足寻常教学规定, 因而拟建一综合教学楼, 并设立必要办公、生活和会议等辅助用房。
学校位于风光秀丽珠山脚下, 东临前湾港海滨, 环山依势而就。
拟建建筑物要考虑与校区建筑风格相协调, 同步也要突出自身建筑特点, 倡导新创意。
建筑设计本着“合用、安全、经济、美观”设计原则, 以及对教学楼柱网尺寸、面积、层高以及荷载等设计应有较大合用性和使用灵活性, 符合当代化教学规定为广大师生提供一种良好学习环境, 并且恰当考虑在此后发展过程中具备调节和改造也许性设计规定, 经综合所学知识和查阅大量文献以及工程实例, 依照规范、防火疏散、防震等方面详细规定, 考虑了各房间面积、形状、平面尺寸、门窗布置及房间在建筑平面中位置、拟定了走廊、门厅、楼梯间等交通联系部位布置, 并依照统一与变化、均衡与稳定、韵律、对比与尺度等建筑构图基本原则绘制了平、立、剖面图。
本毕业设计任务是综合教学楼类设计, 设计任务涉及建筑设计和构造设计两某些。
依照设计任务我查阅了大量国内外文献和工程实例。
如下为我摘录某些重要资料:美国洛杉矶西南政法大学: 其教学楼采用了钢筋混凝土构造。
大楼采用了中间对称布局方式, 建筑形象挺拔、高耸, 建筑体块由底到高组合给建筑一种向上生长活力, 大理石贴面柱状体粗细交叉相交替组合以及参差不齐排列更加丰富了建筑形象。
建筑物柱子暴露在外面做装饰效果。
青岛市某教学楼: 建筑面积约为5800m2, 功能涉及: 教学、办公、会议和接待等。
建筑造型突出基本体块呼应与联系, 强调构造构造逻辑性与秩序感。
建筑色彩以灰白为基本色调, 蓝灰色调为深基色, 局部采用横竖向纹理材质, 体现教诲建筑内涵。
1建筑设计
1.1文献综述
本设计为土木工程专业建筑工程方向本科生毕业设计的一部分, 是本科培养方案的一个环节, 目的是培养学生综合运用所学建筑设计知识, 根据具体资料和环境, 初步分析解决工程实际问题的能力。
本建筑的设计题目是: 某高校规模扩大, 已有教学楼已不能满足日常教学的要求, 因此拟建一综合教学楼, 并设置必要的办公、生活和会议等辅助用房。
学校位于风光秀丽的珠山脚下, 东临前湾港海滨, 环山依势而就。
拟建建筑物要考虑与校区建筑风格相协调, 同时也要突出自身的建筑特点, 提倡新的创意。
建筑设计本着”适用、安全、经济、美观”的设计原则, 以及对教学楼的柱网尺寸、面积、层高以及荷载等设计应有较大适用性和使用的灵活性, 符合现代化的教学要求为广大师生提供一个良好的学习环境, 而且适当考虑在今后发展过程中具有调整和改造的可能性的设计要求, 经综合所学知识和查阅大量文献以及工程实例, 根据规范、防火疏散、防震等方面的具体要求, 考虑了各房间的面积、形状、平面
尺寸、门窗布置及房间在建筑平面中的位置、确定了走廊、门厅、楼梯间等交通联系部位的布置, 并根据统一与变化、均衡与稳定、韵律、对比与尺度等建筑构图的基本原则绘制了平、立、剖面图。
本毕业设计任务是综合教学楼类设计, 设计任务包括建筑设计和结构设计两部分。
根据设计任务我查阅了大量国内外文献和工程实例。
以下为我摘录的部分主要资料:
美国洛杉矶西南政法大学: 其教学楼采用了钢筋混凝土结构。
大楼采用了中间对称的布局方式, 建筑形象挺拔、高耸, 建筑体块由底到高的组合给建筑一种向上生长的活力, 大理石贴面的柱状体粗细交叉相交替的组合以及参差不齐的排列更加丰富了建筑的形象。
建筑物的柱子暴露在外面做装饰效果。
青岛市某教学楼: 建筑面积约为5800m2, 功能包括: 教学、办公、会议和接待等。
建筑造型突出基本体块的呼应与联系, 强调结构构造的逻辑性与秩序感。
建筑色彩以灰白为基本色调, 蓝灰色调为深基色, 局部采用横竖向纹理的材质, 体现教育建筑的内涵。
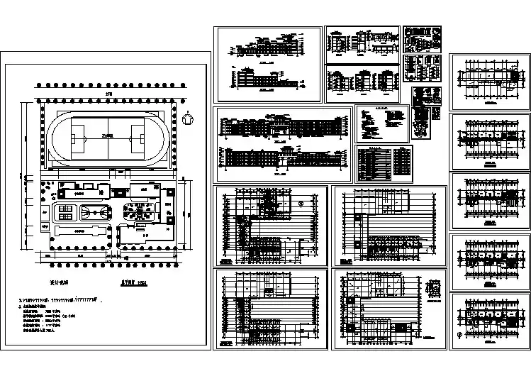
青岛第53中学教学楼: 青岛第53中学教学楼总用地面积
20273m2,总建筑面积684815m2,,普通教室: 6300×9000mm, 实验室: 7500×10200mm, 阶梯教室: 11400×19200mm。
教学楼采用体部组合将各功能区组织在一个组合体的设计手法。
教学楼分初中部、高中部、办公区、实验及公共教室区, 以及餐厅、厨房等, 根据功能关系, 交通联系关系, 使用及管理关系等进行分区、分栋组合。
为解决采光、通风及隔离的需要, 设置若干庭院, 既满足功能分区, 又可为师生创造良好的休息交往环境, 丰富了室外空间。
它们的组合方式, 既满足可功能使用要求, 节省了建筑用地, 又创造了个组成部分的交通联系方便, 但也回带来一定的干扰及增加消防的难度。
厦门旅游学校教学楼: 总建筑面积: 4031m2, 主要教学用房规格及面积: 普通教室: 6900×9000mm, 实验室: 6900×18000mm。
该教学楼包括教学、实验、办公等。
教学楼半环形平面和山上的”望高石”、”休息厅”相互烘托构成完整的空间。
教学楼单体设计, 采用双廊式及单廊式相结合的形式, 为学生提供了尽可能多的与自然交融的条件, 也提供了相互交往的场所。
教学楼从两端退台处理, 中部为高体部, 上设观察天体的穹窿圆顶形成高潮, 此绿色圆顶和鼓浪屿的八卦楼红色球顶隔海遥遥相对, 增加了城市景观也形成与自然和谐,
蓬勃向上的效果。
但中部球顶似觉稍大, 不甚理想。
青岛理工大学: 其教学楼采用矩形结构, 单外廊, 多功能大教室为12×14m, 普通教室为9×14m, 楼梯台阶踏步高度150mm, 宽度300mm; 未设防震缝; 设有两个出入口, 主要出入口门厅为12m, 门厅两侧设为传达室, 辅助出入口楼梯设在阳面。
室内采光效果不好, 楼梯处窗户设置不太恰当。
总图制图标准( GBJ/T 50103- ) 有关标高的要求:
1)应以含有±0.00标高的平面图作为总平面图;
2)总图中标注的标高应为绝对标高, 如标注相对标高, 则应注明相对标高与绝对标高关系;
3)建筑物、构筑物、道路、管沟等应按以下规定标注有关部位的标高:
①建筑物室内地坪, 标注建筑图中±0.00处的标高, 对不同高度的地坪, 分别标注其标高;
②建筑物室外散水, 标注建筑物四周转角或两对角的散水坡角处的标高。
建筑设计防火规范( GBJ 16-87) 有关防火和安全疏散的要求主要有:
学校耐火等级为三级时, 最多允许层数为五层, 防火分
区间最大允许长度100m ,最大允许建筑面积1200m2,。
建筑物的长度, 系指建筑物各分段中线长度的总和。
如遇有不规则的平面而有各种不同量法时, 应采用较大值。
建筑内设置自动灭火系统时, 每层最大允许建筑面积可增加一倍。
局部设置时, 增加建筑面积可按该局部面积一倍计算。
防火分区间应采用防火墙分隔, 如有困难时, 可采用防火卷帘和水幕分隔。
混凝土结构设计规范( GB/T 50010- ) 有关材料选择的要求:
钢筋混凝土结构的混凝土强度等级不应低于C15; 当采用HRB335级钢筋时, 混凝土强度等级不宜低于C20; 当采用HRB400级和RRB400级钢筋以及承重重复荷载的构件, 混凝土强度等级不得低于C20, 预应力混凝土强度等级不应低于C30。
钢筋混凝土结构及预应力混凝土结构的钢筋, 应按下列规定选用:
1)普通钢筋宜采用HRB400级和HRB335级钢筋, 也可采用HPB235级和RRB400级钢筋;
2)预应力钢筋宜采用预应力钢绞线、钢丝, 也可采用热处理钢筋。
高层建筑结构设计:。