小学教学楼建筑施工图纸(共15张)
- 格式:dwg
- 大小:1.62 MB
- 文档页数:1
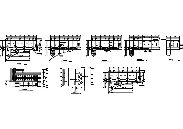
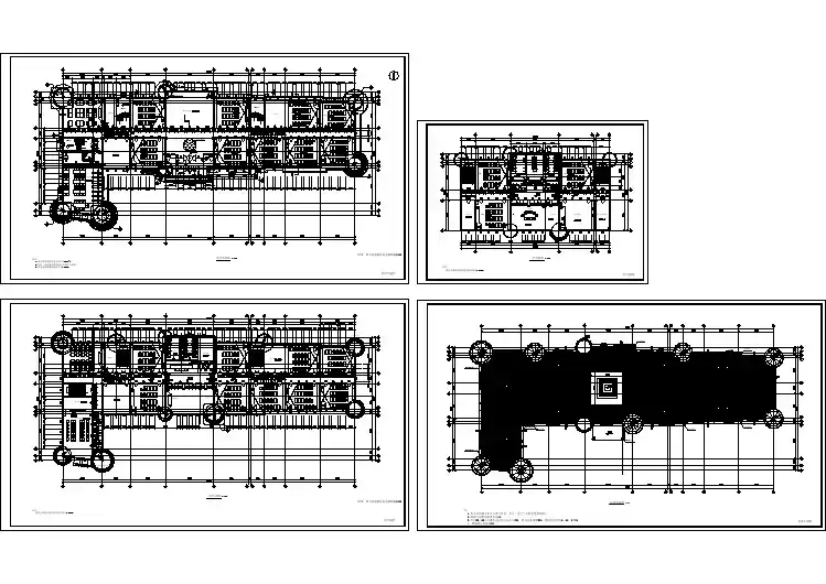
图纸名称一、报慈小学1、报慈小学教学楼施工图(土建)2、报慈小学图书馆施工图(土建)3、抱慈小学教学楼二三楼施工图(土建)4、抱慈小学配电车间发电机房土建施工图5、报慈小学食堂、风雨操场土建施工图6、报慈小学地下停车库土建施工图7、抱慈小学电化教学楼土建施工图二、厂房类1、单层工业厂房(1)2、单层工业厂房(2)3、单层工业厂房(3)4、多层工业厂房(排水、消防)5、多层工业厂房(结构)6、多层工业厂房(建筑)7、生产车间结构8、金属成品库(建筑、结构、水电)9、1#生产车间(建筑)10、1#生产车间(水电)11、2#生产车间(水电)12、2#生产车间(建筑、结构)13、综合2#车间接建14、5#钢材车间(结构、建筑)15、5#钢材仓库(安装、消防)16、甲类仓库17、库房18、挡墙工程三、住宅类1、门卫(1)(建筑、结构、水电)2、门卫(2)(建筑、结构、水电)3、独院别墅(建筑、结构)4、独院别墅(水电)5、联排别墅(建筑、结构)6、联排别墅(水电)7、联排住宅(建筑、结构)8、联排住宅(水电)9、繁华丽岸二期(建筑)1#2#楼10、繁华丽岸二期(结构)1#2#楼11、繁华丽岸二期(水电)1#2#楼12、繁华丽岸4#楼(建筑、结构)13、繁华丽岸4#楼(水电)14、城市花园A类商业综合楼(建筑)15、城市花园A类商业综合楼(结构)16、城市花园A类商业综合楼(水)17、城市花园A类商业综合楼(电)18、滨河家园(结构、建筑)19、滨河家园(水电)20、商住楼(1)(建筑、结构)21、商住楼(水电、安装)22、商品房(建筑、结构)23、商品房(水电)24、多层住宅(1)(建筑、结构)25、多层住宅(1)(水电)26、东胡招待所(建筑、结构)27、安置房主楼装饰图28、安置房主楼装饰图(续)29、公寓楼(建筑、结构、水电)30、人才安居房(建筑、结构)31、常熟市国盛商务酒店(室内装饰工程)四、道路、河流1、桥梁(1)2、桥梁(2)3、河道整治工程(1)4、河道治理(2)5、污水收集官网工程6、黄河路消防中队改建装饰图7、道路工程(1)(排水、桥涵)8、道路工程(2)9、道路工程(3)10、道路工程(4)11、道路工程(5)12、道路工程(6)13、道路工程(7)(道路、雨水)14、道路工程(8)(桥涵)15、道路工程(箱涵)五、办公楼1、办公楼(建筑)2、办公楼(结构)3、办公楼(消防)4、办公楼(1)(建筑、结构)5、办公楼(1)(水电)6、办公楼(2)(建筑、结构)7、办公楼(2)(水电)8、支塘农商行(装饰图)。