管道支架安装图集
- 格式:doc
- 大小:6.82 MB
- 文档页数:53
7.无特别说明管道采用一般支架,固定支架安装在图纸标注的位置,系统直管道如无固定支架 , 管道两端及中间设防晃支架。
组合式固定支架另出大样图。
8.管井内的立管,每隔 2-3 层应设导向支架。
9.管道支、吊架的焊接应由合格持证焊工施焊,并不得有漏焊、欠焊或焊接裂纹等缺陷。
支架与管道焊接时,管道侧的咬边量,应小于 0.1 管壁厚。
10.本工程水平管道支架采用三种形式:固定支架、一般支架、防晃支架。
形式见下图:防晃支架 :般支架 :固定支架 :11 、立管固定支架按通用大样图制作(有图纸)三、支架安装:1 、清理干净预埋件上的水泥。
2 、按设计测量出管线离墙距离放线,确认标高、间距、坡度正确后,将预制好的支架用膨 胀螺栓固定。
支架安装后补刷防锈漆。
3 、位置正确,埋设应平整牢固。
4 、固定支架与管道接触应紧密,固定应牢靠。
技术交底记录编号05-01-C2-002工程名称 三亚海棠湾国际购物中心(一期)施工单位 交底日期 分项工程名2013 年 2 月 25 日给水管道及配件安装5、固定在建筑结构上的管道支、吊架不得影响结构的安全。
6、采暖、给水及热水供应系统的塑料管及复合管垂直或水平安装的支架间距应符合下表的规定。
7、采暖、给水及热水供应系统的金属管道立管管卡安装应符合下列规定:7.1楼层高度小于或等于 5m ,每层必须安装 1 个。
7.2楼层高度大于 5m ,每层不得小于 2 个。
7.3管卡安装高度,距地面应为 1.5-1.8m , 2 个以上管卡应匀称安装,同一房间管卡安装在同一高度上。
8 、管道及管道支墩(座),严禁铺设在冻土和未经处理的松土上。
9 、金属排水管道上的吊钩或卡箍应固定在承重结构上。
固定件间距:横管不大于2m ,立管不大于 3m 。
楼层高度小于或等于 4m ,立管可安装 1 个固定件。
立管底部的弯管处应设支墩或采取固定措施。
四、自喷系统1、管道支架、吊架、防晃支架的安装应符合下列要求:1.1 管道应固定牢固;管道支架或吊架之间的距离不应大于下表的规定2、管道支架、吊架的安装位置不应妨碍喷头的喷水效果;管道支架、吊架与喷头之间的距离不宜小于 300mm ;与末端喷头之间的距离不宜大于 750mm 。
管道支架制作与安装1、管道支架制作规定(1)管道支架的形式、材质、加工尺寸、精度及焊接质量应符合设计文件和有关施工验收规范的要求。
(2)支架底板及吊架弹簧盒的工作面应平整。
(3)管道支架焊缝应进行外观检查,焊缝应均匀完整,外观成型良好,不得有漏焊,欠焊,裂纹、姣边等缺陷。
(4)制作合格的支架成品应及时进行防腐处理,防腐层应完整,厚度均匀。
(5)管道支架必须满足管道的稳定和安全,允许管道自由伸缩并符合安装高度。
2、管道支架制作(1)管道支架加工制作前应根据管道的材质,管径大小等按标准图集进行选型,支架的高度应根据深化设计图纸进行确定,防止施工过程中管道与其它专业的管道发生“碰撞”。
(2)图纸的翻样,管道支架种类规格繁多,加工前必须进行翻样,作出一个每一个部件的样图,注明每一道工序的加工要求和质量标准,再做出一个样板进行核对,不符合要求,及时更改翻样图和加工要求,直至符合。
(3)一般采用砂轮切割机或半自动切割机切割,也可采用气割切断。
切断时要注意刀具的一则靠线,使下的料长度一致。
切断后要及时处理断面边角的毛刺。
(4)对需要做相对滑动、滚动的表面,一般要做车、铣、刨等作业,无施工条件用磨光机把加工面磨光滑。
使工件表面达到设计要求的粗糙度。
其它型钢的切割表面一般不做表面处理,而只是做边角的倒角处理。
(5)管道需要钻孔的部位,应采用手电钻机机和台钻,钻空前要按翻样图在下好的型钢上划十字线,并在交点上打样冲眼,然后钻孔,钻孔要一次钻透,钻后要用锉刀将毛边锉平。
(6)对有弯曲要求的部件,应先做个磨具,用挤压或滚压法进行弯曲。
(7)组装焊接。
需要组装焊接的支架,要先划出定位线,组对时先点焊,经复查合格后再进行满焊,焊接质量必须符合焊接质量标准,焊缝高度必须达到,不得有夹渣、裂纹、未焊透等。
(8)支架的焊接应由合格焊工施焊,管道支、吊架焊接后应进行外观检查,不得有漏焊、欠焊、裂纹、烧穿、咬边等缺陷,焊缝附近的飞溅物应予清理。
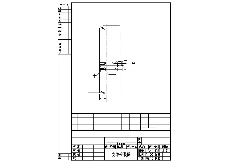
立管承重支架安装技术要求立管承重支架安装示意图
立管承重支架设置
立管承重支架安装示意图
1、工艺流程:
编制施工方案→承重支架荷载复核→承重支架点定位→承重支架制作并防腐→承重支架安装→管道受力部件焊接并防腐→立管管道安装
2、操作工艺:
2.1立管管道安装前,需要依据相关的设计、施工图集对管道的承重支架进行受力分析和计算,保证管道在使用时能够安全承重而不会损坏。
2.2管井内立管应合理设置承重支架或支座,同时应明装在承重结构上,不得埋入分隔墙或地坪内。
2.3管道承重方式可以利用两个机械三通背面件抱紧立管后搁置在槽钢支架上,也可以制作两片长度不小于1倍管径的抱卡,且长度不小于100mm,内衬防滑垫,利用摩擦力承重;或者先预制承重件,然后满焊在无缝管上(如图)。
2.4承重受力部件焊接时,严禁将受力部件直接焊接在管道上。
为避免受力面积过小,造成局部压强过大而拉裂管道,必须在受力部件焊接的管道外面焊接圆弧状的管道保护片,而且要满焊,再将受力部件焊接在保护片上,增大受力面积,保护管道的受力安全。
3、质量要求:
3.1横向槽钢需离地300mm以上,防止被地面覆盖或半覆盖;承重件离管道接头距离需大于200mm,方便操作,保证受力。
3.2 承重支架适用于消防水管、空调水管和采暖水管等高层建筑。
3.3承重支架设置部位规定首层一个,管径小于等于DN200的,每隔5层一个,管径大于DN200的,每隔3层一个(具体可通过测试或计算确定承重支架设置间距)。
5、管道支架制作安装1)、管道支架制作规定(1)、管道支架的形式、材质、加工尺寸、精度及焊接质量应符合设计文件和有关施工验收规范的要求。
(2)、支架底板及吊架弹簧盒的工作面应平整。
(3)、管道支架焊缝应进行外观检查,焊缝应均匀完整,外观成型良好,不得有漏焊,欠焊,裂纹、姣边等缺陷。
(4)制作合格的支架成品应及时进行防腐处理,防腐层应完整,厚度均匀。
(5)管道支架必须满足管道的稳定和安全,允许管道自由伸缩并符合安装高度。
2)、管道支架制作(1)、管道支架加工制作前应根据管道的材质,管径大小等按标准图集进行选型,支架的高度应根据深化设计图纸进行确定,防止施工过程中管道与其它专业的管道发生“碰撞”。
(2)、图纸的翻样,管道支架种类规格繁多,加工前必须进行翻样,作出一个每一个部件的样图,注明每一道工序的加工要求和质量标准,再做出一个样板进行核对,不符合要求,及时更改翻样图和加工要求,直至符合。
(3)、一般采用砂轮切割机或半自动切割机切割,也可采用气割切断。
切断时要注意刀具的一则靠线,使下的料长度一致。
切断后要及时处理断面边角的毛刺。
(4)、对需要做相对滑动、滚动的表面,一般要做车、铣、刨等作业,无施工条件用磨光机把加工面磨光滑。
使工件表面达到设计要求的粗糙度。
其它型钢的切割表面一般不做表面处理,而只是做边角的倒角处理。
(5)、管道需要钻孔的部位,应采用手电钻机机和台钻,钻空前要按翻样图在下好的型钢上划十字线,并在交点上打样冲眼,然后钻孔,钻孔要一次钻透,钻后要用锉刀将毛边锉平。
(6)、对有弯曲要求的部件,应先做个磨具,用挤压或滚压法进行弯曲。
(7)、组装焊接。
需要组装焊接的支架,要先划出定位线,组对时先点焊,经复查合格后再进行满焊,焊接质量必须符合焊接质量标准,焊缝高度必须达到,不得有夹渣、裂纹、未焊透等。
(8)、支架的焊接应由合格焊工施焊,管道支、吊架焊接后应进行外观检查,不得有漏焊、欠焊、裂纹、烧穿、咬边等缺陷,焊缝附近的飞溅物应予清理。