电梯布置及识图资料
- 格式:ppt
- 大小:2.08 MB
- 文档页数:31
施工电梯布置方案1、施工电梯分布1.1、施工电梯平面布置根据施工现场实际情况,主体工程施工结束后进行安装室外施工电梯,计划安装9部SCD200/200型施工电梯,具体布置如下:电梯平面分布图1.2、电梯现场分布表2、施工电梯安装2.1、施工电梯安装流程施工电梯安装流程图2.2、施工电梯安装序号安装项目内容注:右图图样仅作参考,以实物为准。
2.3、安装后的检查1)、紧固所有螺栓。
2)、调整滚轮与导向轮间隙。
3)、测试导轨架垂直度,并纪录在案。
4)、各润滑部位加足润滑脂或润滑油。
5)、做上下运行试验及各限位开关和层门等试验。
6)、做静态试验,吊笼离地一米高,吊笼内装125%负载,检验下滑现象。
7)、做安全限速器坠落试验三次,检查制动距离。
8)、做起重量力矩限制器效果试验,超载125%时,电器系统停止工作。
9)、空载试验:上下运行三个循环,每个循环上升,下降各一次,正常制动。
10)、额定负载试验:上下运行三个循环,每个循环上升、下降各做一次,正常制动。
11)、超载试验:上下运行三个循环,每个循环上升、下降各做一次,正常制动。
12)、检查各机构温升状态。
3、施工电梯垂直运输3.1、施工电梯运行管理规划因本工程垂直运输量巨大,因此设立专门的垂直运输调度组,统一调配塔吊和施工电梯的运行,并负责设备的日常维护。
针对施工电梯的特点,制定以下施工电梯运行的管理措施。
1)、运送时间规划每日上、下班时间规定为所有施工电梯均用于人员运送。
调度人员可协调上、下班时间,使各工种、专业施工人员的上、下班时间错开,以达到分流目的,减少等待时间。
2)、人员运输规划在进行人员运输时,施工电梯按照一定的楼层进行停靠,施工人员达到最近楼层后通过楼梯到达所在施工楼层。
上下班高峰期所有梯笼均进行人员运输,按照工种分时段上下班,兼顾考虑将所从事施工楼层相近的工种安排在同一时段上下班。
3)、材料运输总体规划3.2、所有需要运输的材料须提前2日向工程协调部提出申请,经主管人员审核后排入施工电梯日运行计划,供部门人员执行。
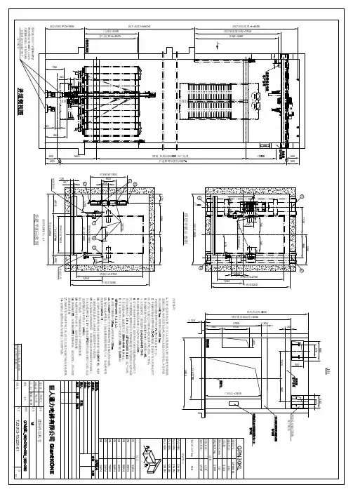
蒂森电梯图纸详解主回路:1,主机电源回路网络电源L11,L21,L31--总开关--K00--运行接触器--K06--运行接触器--K06,1--电抗器-- L03--波滤器--Z03--变频器输入端--变频器输出出端--主机2,位置和速度检测信号位置和速度信号由旋转编码器--B03完成,于主电动机同轴旋转的编码器运行时产生的脉冲送到变频器的输入端TM1插座。
3,再生放电电阻再生放电电阻R03,变频器内部冷却风扇M034,抱闸电路电磁制动装置抱闸电路电磁制动装置G12,受微机MC2控制,执行制动元件为制动电磁铁Y1,Y2,既Y07制动结构,电梯启动运行时运行接触器常开点-K01,-K01.1接通,电磁铁-Y1及-Y2得电后主机松闸并启动。
到站停车时,运行接触器失电其长开点-K01及-K01.1断开,电磁铁-Y1及-Y2失电使电动机抱闸关闭。
安全装置信号1, L13---机房急停开关S100---限速器断绳开关S132---对重缓冲器开关S133---轿厢缓冲器开关S134---上终端极限开关S101B ---下终端极限开关S101F-----限速器开关S102--安全钳开关S140B---安全窗开关S141---轿厢急停开关S100---运行检测继电器常闭点S44----在呼叫继电器常闭点S01---危机厅轿门锁开关安全信号S1---运行检测继电器常闭点S44---轿门锁开关S150----轿门锁开关S150.1----第一层S1厅门锁开关S138---第二层S2厅门锁开关S138----微机主控制电路图1,运行接触器线包K06.K06.1受运行继电器K01.K01.1的控制。
运行继电器线圈K01.1的控制线路如下~ 220VS2----变频器G03的运行开关K1----运行接触器常闭点138,K01.1--运行接触器辅常闭点K06--运行接触器辅常闭点K06.1----主板MC2输出继电器常开点K803,K802,K801----运行接触器线圈K01.1...K01----N....可知运行继电器是受微机控制,主机启动条件具备时,主板输出启动运行信号K801,K802,K803,运行继电器----K01.1,K01得电并经常开点K01自保,启动运行接触器K06,K06,1,电梯启动并松闸。
施工电梯布置方案施工电梯概述本工程具有庞大的工程体量、狭窄的施工场地、复杂的结构形式、众多的施工单位等特点都给施工电梯的选择和布置带来了诸多影响,为了保证布置的合理和经济性,我们借鉴了以往类似医用建筑施工电梯布置的经验,同时充分考虑本工程的特殊性,针对多个难点逐一研究解决,从而确定最优的布置方案。
为了最大限度的提高施工电梯的运输效率,我方将在以下几方面采取措施和进行管理:1 优化施工电梯的配置,以满足施工需求。
2 合理设置电梯位置和材料的运输通道,提高电梯的运输效率。
3采取完善的保证措施和全面的制度管理,确保电梯安全、高效地运行。
施工电梯需求情况主楼每层砌体施工量约为650m³,裙房结构每层的砌体施工量约为450m³,根据施工进度计划要求,主楼在进度主线上,需至少布置两台施工电梯,另考虑后续机电安装管道和装饰装修材料同步穿插,需至少安排一台施工电梯,方能满足施工进度计划要求,裙房不在施工进度主线,且施工若不满足运输条件时,可借助主楼施工电梯,所需布置一台施工电梯即可。
因此本项目拟计划布置四台施工电梯。
具体分析过程详见下表1.2-1。
表1.2-1 施工电梯垂直运输需求分析区域主楼高峰期运送人数主体250人砌体50人初装修80人其他30人材料月平均运次100次1200次600次200次电梯垂直运输需求计算主楼施工需求分析:高峰期人数达410人,此时运输最大高度为99m,人员运输完成总时间按60分钟计算(人员错峰上下班)。
1)人员运输需求分析:每次往返时间=[99/0.6+(5+5+30×2)]÷0.9÷60×2=8.7min;所需梯笼数量(个)=410×8.7/(60×15)=4个;2)材料运输需要分析:每次运输时间=[99/0.6×2+(5+5+240)×6]÷60÷0.8=38.13mim;区域主楼所需梯笼数量(个)=2100×38.13/(30×16×60)=3个。